№1685 от 14.08.2025
Приказ Федерального агентства по техническому регулированию и метрологии (Росстандарт)
# 703747
ПРИКАЗ_Об утверждении типов средств измерений (14)
Приказы по основной деятельности по агентству Вн. Приказ № 1685 от 14.08.2025

МИНИСТЕРСТВО ПРОМЫШЛЕННОСТИ И ТОРГОВЛИ РОССИЙСКОЙ ФЕДЕРАЦИИ
ФЕДЕРАЛЬНОЕ АГЕНТСТВО
ПО ТЕХНИЧЕСКОМУ РЕГУЛИРОВАНИЮ И МЕТРОЛОГИИ
(Росстандарт)
14 августа 2025 г.
1685
Москва
Об утверждении типов средств измерений
В соответствии с Административным регламентом по предоставлению Федеральным агентством по техническому регулированию и метрологии государственной услуги по утверждению типа стандартных образцов или типа средств измерений, утвержденным приказом Федерального агентства по техническому регулированию и метрологии от 12 ноября 2018 г. № 2346, п р и к а з ы в а ю:
1. Утвердить:
типы средств измерений, сведения о которых прилагаются к настоящему приказу;
описания типов к настоящему приказу.
средств
измерений,
прилагаемые
-
2. ФБУ «НИЦ ПМ - Ростест» внести сведения об утвержденных типах средств измерений согласно приложению к настоящему приказу в Федеральный информационный фонд по обеспечению единства измерений в соответствии с Порядком создания и ведения Федерального информационного фонда по обеспечению единства измерений, передачи сведений в него и внесения изменений в данные содержащихся в нем документов и сведений, Министерства промышленности и торговли от 28 августа 2020 г. № 2906.
сведения, предоставления утвержденным приказом Российской Федерации
-
3. Контроль за исполнением настоящего приказа оставляю за собой.
Заместитель руководителя
Подлинник электронного документа, подписанного ЭП, хранится в системе электронного документооборота Федерального агентства по техническому регулированию и метрологии
Сертификат: 7B1801563EA497F787EAF40A918A8D6F Кому выдан: Лазаренко Евгений Русланович Действителен: с 19.05.2025 до 12.08.2026
ч
Е.Р. Лазаренко
№ п/
Наименование типа
1.
Газоанализатор
Обозначение типа
SolarEx
Код характера произ-вод-ства
Рег. Номер
5
96142-25
Зав. номер(а) *
SG20230804001
Изготовители
Signal (Shanghai) Technology Co., Ltd., Китай
Правообладатель
Signal (Shanghai) Technology Co., Ltd., Китай
Код иден-тифи-кации производства
Методика поверки
Интервал между поверками
Заявитель
Юридическое лицо, проводившее испытания
Дата утверждения акта
__9
ОС
10
МП-684
2025 "ГСИ. Газоанализатор SolarEx.
Методика поверки"
__11
1 год
12

Хромато-масс-спектрометр жидкостный
6475
LC/TQ

96143-25
SG2321S001
Фирма "Agilent Technologies Singapore Pte Ltd.", Сингапур
Фирма "Agilent Technologies Singapore Pte Ltd.", Сингапур
ОС
ИМТ-МП-0059-2024 "ГСИ. Хромато-масс-спектрометр жидкостный
1 год
Акционерное общество "Институт по проектированию предприятий целлюлознобумажной промышленности Сибири и Дальнего Востока" (АО "Сибгипро-бум"), г. Иркутск, ИНН 3808110031 Общество с ограниченной ответственностью "Компания Хеликон" (ООО "Компания Хеликон"), г. Москва,
13
ООО
"ПРОММАШ ТЕСТ Метрология", Московская область, г. Чехов
ФГБУ "ВНИИИМТ" Росздравнадзора, г. Москва
14
02.06.2025
26.11.2024










Индикаторы рычажнозубчатые с ценой деления 0,01 мм
Обозначение отсутствует

96144-25
ИРБ зав. №№ 442103, 428578
Общество с ограниченной ответственностью Торговый дом "ИТО-Туламаш" (ООО ТД "ИТО-
Общество с ограниченной ответственностью Торговый дом "ИТО-Туламаш" (ООО ТД "ИТО-
ОС

Анализаторы влажности
HMS-
100

96145-25
001P2490030
Туламаш"), г. |
Туламаш"), г. |
Москва ИНН |
Москва ИНН |
7719465230 (производственная площадка: JiangXi Provincial RuiFeng Machinery and Tools Co. Ltd, Китай) |
7719465230 |
Focused Pho- |
Focused Pho- |
tonics (Hang- |
tonics (Hang- |
zhou) Inc., Ки- |
zhou) Inc., Ки- |
тай |
тай |
ОС

Газоанализаторы много-компонентные
DSM-X

96146-25

DXG Ltd., Республика Корея
DXG Ltd., Республика Корея
ОС
6475 LC/TQ. Методика поверки"
МИ 1928
88 "ГСИ. Индикаторы рычаж-но-зубчатые с ценой деления 0,01 мм. Методика поверки"
МП-7662025 "ГСИ. Анализаторы влажности HMS-100. Методика поверки"
МП-4322024 "ГСИ. Газоанализаторы многокомпонентные DSM-X. Методика

ИНН
7704543951


1 год
1 год
1 год
Общество с ограниченной ответственностью Торговый дом "ИТО-Туламаш" (ООО ТД "ИТО-Туламаш"), г. Москва ИНН 7719465230
Общество с ограниченной ответственностью "Группа Ай-Эм-Си" (ООО "Группа Ай-Эм-Си"), г. Москва, ИНН 7714953587
DXG Ltd., Республика Корея
ООО "МЦ Севр групп", г. Москва
ООО "ПРОММАШ ТЕСТ Метрология", Московская область, г. Чехов
ООО "ПРОММАШ ТЕСТ Метрология", Московская область, г. Чехов
14.04.2025
28.04.2025
29.01.2025
поверки" | |||||||||||||
6. |
Вычислители количества энергоносителей |
Ирга-2 |
С |
96147-25 |
Исполнение Ирга-2/5-24 В-2-USB-Ж- I, зав. № 1000; ис полнение Ирга-2/5- 220 В-2-USB-r-F, зав. № 1001 |
Общество с ограниченной ответственностью "ГЛОБУС" (ООО "ГЛОБУС"), г. Белгород, ИНН 3123001722 |
Общество с ограниченной ответственностью "ГЛОБУС" (ООО "ГЛОБУС"), г. Белгород, ИНН 3123001722 |
ОС |
МП-5122024 "ГСИ. Вычислители количества энергоносителей Ирга-2. Методика поверки" |
4 года |
Общество с ограниченной ответственностью "ГЛОБУС" (ООО "ГЛОБУС"), г. Белгород, ИНН 3123001722 |
ООО "ПРОММАШ ТЕСТ Метрология", Московская область, г. Чехов |
04.04.2025 |
7. |
Резервуары стальные вертикальные цилиндрические |
РВС- 1000 |
Е |
96148-25 |
У-1-6481, У-1-6482, У-1-6483, У-1-6484, У-1-6485, У-1-6487 |
Общество с ограниченной ответственностью "Томск-нефтепереработка" (ООО "ТНП"), Томская область, Воронинское с. п., с. Семилужки ИНН 7014067223 |
Общество с ограниченной ответственностью "Томск-нефтепереработка" (ООО "ТНП"), Томская область, Воронинское с. п., с. Семилужки ИНН 7014067223 |
ОС |
МП 5042025 "ГСИ. Резервуары стальные вертикальные ци-линдриче-ские РВС-1000. Методика поверки" |
5 лет |
Общество с ограниченной ответственностью "Томск-нефтепереработка" (ООО "ТНП"), Томская область, Воронинское с. п., с. Семилужки ИНН 7014067223 |
ФБУ "Томский ЦСМ", г. Томск |
18.04.2025 |
8. |
Анализаторы электропроводности |
EC3000 |
С |
96149-25 |
B22486, B22487, B22488, B22491 |
"HYDRO-AIR PROCESS INSTRUMENTS GLOBAL", Малайзия |
"HYDRO-AIR PROCESS INSTRUMENTS GLOBAL", Малайзия |
ОС |
МП 16002924-2025 "ГСИ. Анализаторы электропровод-ности EC3000. Методика поверки" |
1 год |
Общество с ограниченной ответственностью "НОВИТЕК" (ООО "НОВИТЕК"), г. Пермь, ИНН 5905995707 |
ФБУ "Нижегородский ЦСМ", г. Нижний Новгород |
24.04.2025 |
9. |
Система ав-томатизиро-ванная ин-формацион-но-измерительная коммерческого учета электро- |
Обозна чение отсут ствует |
Е |
96150-25 |
001 |
Общество с ограниченной ответственностью "Энерго-промсбыт" (ООО "Энер-гопромсбыт"), г. Москва ИНН |
Общество с ограниченной ответственностью "БЕЛЛА" (ООО "БЕЛ ЛА"), Московская обл., г. Егорьевск ИНН |
ОС |
МИ 30002022 "Ре-коменда-ция. ГСИ. Системы автоматизирован-ные ин-формаци- |
4 года |
Индивидуальный предприниматель Тихонравов Виталий Анатольевич (ИП Тихонравов Виталий Анатольевич), |
ООО "Спец-энергопроект", г. Москва |
26.05.2025 |

энергии
(АИИС КУЭ) ООО "Белла"




7722781966
5011021499

10.
Приборы контроля чистоты жидкости
ПКЖ-904М

96151-25
2234, 2235
11.
Резервуар горизонтальный стальной цилиндрический
Резервуар горизонтальный стальной двустенный
РГП 25-
1-1-О-У
РГСД-25

96152-25
0220

96153-25
379
Открытое акционерное общество "Научно-исследовательский технологический институт "НИТИ-Тесар" (ОАО "НИТИ-Тесар"), г. Саратов, ИНН 6455003849
Общество с ограниченной ответственностью "Углерод" (ООО "Углерод"),
Ростовская область, Каменский район, хутор Старая Станица ИНН 6147021593
Общество с ограниченной ответственностью "Техмон-тажспецстрой" (ООО "Тех-
Открытое акционерное общество "Научно-исследовательский технологический институт "НИТИ-Тесар" (ОАО "НИТИ-Тесар"), г. Саратов, ИНН 6455003849
Общество с ограниченной ответственностью "Углерод" (ООО "Углерод"),
Ростовская область, Каменский район, хутор Старая Станица ИНН 6147021593
Общество с ограниченной ответственностью "Техмон-тажспецстрой" (ООО "Тех-
ОС
ОС
ОС
онно-измерительные коммерческого учета электрической энергии. Методика поверки"
МП 640
001-25 "ГСИ.
Приборы контроля чистоты жидкости
ПКЖ-904М. Методика поверки"
ГОСТ 8.346-2000 "ГСИ. Резервуары стальные горизонтальные цилиндрические.
Методика поверки"
ГОСТ 8.346-2000 "ГСИ. Резервуары стальные горизон-

г. Москва ИНН
602713617396


1 год
5 лет
5 лет
Открытое акционерное общество "Научно-исследовательский технологический институт "НИТИ-Тесар" (ОАО "НИТИ-Тесар"), г. Саратов, ИНН 6455003849
ФГУП "ВНИИФТРИ" , Московская область, г.
Солнечногорск, р.п.
Менделеево
12.02.2025
Войсковая |
ООО "Метро- |
часть 2148, |
КонТ", |
г. Цхинвал |
г. Казань |
ИНН | |
7702232171 |
Войсковая часть 2148, г. Цхинвал ИНН 7702232171
ООО "Метро-КонТ", г. Казань
10.06.2025
10.06.2025






монтажспец-строй"), г. Пятигорск ИНН 2632065302
монтажспец-строй"), г. Пятигорск ИНН 2632065302

13.
Система ав- |
Обозна- |
томатизиро- |
чение |
ванная ин- |
отсут- |
формацион- |
ствует |
но- | |
измеритель- | |
ная коммер- | |
ческого уче- | |
та электро- | |
энергии | |
АИИС КУЭ | |
ЕНЭС ПС | |
750 кВ | |
Опытная |

96154-25
702
Публичное акционерное общество "Федеральная сетевая компания - Россети" (ПАО "Россети"), г. Москва ИНН 4716016979
Публичное акционерное общество "Федеральная сетевая компания - Россети" (ПАО "Россети"), г. Москва ИНН 4716016979
ОС
14.
Меры для поверки систем коор-динатно-измерительных
CORE-D

96155-25
мод. CORE-D CAL-SPHEREMOUNT-D25mm зав. № CAL_19.0930, мод.
CORE-D Calibration bar 2 spheres зав. № CS4-240-CD_20.0822, мод.
CORE-D Calibration bar 6 spheres зав. № CS6-400-CD_20.0822
WENZEL |
WENZEL |
Group GmbH |
Group GmbH |
& Co. KG, |
& Co. KG, |
Германия |
Германия |
ОС
тальные цилиндрические. Методика поверки"
МП-0082025 "ГСИ. Система автоматизированная информационно-измерительная коммерческого учета электроэнергии
АИИС КУЭ ЕНЭС ПС 750 кВ Опытная.
Методика поверки" МП 20343-2023 "ГСИ. Меры для поверки систем коор-динатно-измерительных
CORE-D.
Методика поверки"

4 года
2 года



Общество с ограниченной ответственностью "Инженерный центр "ЭНЕРГОАУДИТ-КОНТРОЛЬ" (ООО "ИЦ ЭАК"), г. Москва ИНН 7733157421
Акционерное общество "КАМАДИ" (АО "КАМА-ДИ"), г. Санкт-Петербург ИНН 7811471772
ООО "Энер-Тест", Московская обл., г. Химки
ФГБУ "ВНИИМС", г. Москва
06.02.2025
22.12.2023
УТВЕРЖДЕНО приказом Федерального агентства по техническому регулированию
и метрологии
от « __ » _^гус^та 2025 г. № г^Г85
Лист № 1
Всего листов 5
Регистрационный № 96142-25
ОПИСАНИЕ ТИПА СРЕДСТВА ИЗМЕРЕНИЙ
Газоанализатор SolarEx
Назначение средства измерений
Газоанализатор SolarEx (далее по тексту - газоанализатор) предназначен для непрерывных измерений довзрывоопасной концентрации горючих органических газообразных веществ в технологических газовых смесях.
Описание средства измерений
Газоанализатор представляет собой стационарный автоматический прибор непрерывного действия, конструктивно состоящий из оснащенного дисплеем металлического корпуса, внутри которого установлен электронный блок управления и регистрации данных, фильтр твердых частиц и пламенно-ионизационный детектор ПИД.
Принцип действия газоанализатора основан на ионизации молекул анализируемых органических соединений в водородном пламени с последующим измерением ионного тока.
При поступлении на газоанализатор проба фильтруется, во избежание попадания твердых частиц на детектор, и подогревается до 200 °С. Молекулы органических веществ, поступающие на детектор с потоком газа-носителя, под воздействием высокой температуры подвергаются термическому разрушению (деструкции) с образованием радикалов НС*:
CnH^YZ ^тПС
При взаимодействии радикалов НС* с атомарным кислородом протекает химическая реакция с образованием комбинации двух разнозаряженных частиц - хемоионизация:
т(НС^ + 0^) 1(НСО+ + е-)
В камере детектора при этом горит водородное пламя в соответствии с реакцией:
2Н2 + О2^ 2Н2О
Основными носителями положительных зарядов в пламени ПИД являются ионы гидроксония, которые образуются при взаимодействии карбонильных ионов СНО+ с водой:
СНО+ + Н2О^Н3О+ + СОИменно ионы гидроксония и электроны обеспечивают электропроводность в пламени детектора. ПИД работает в области насыщения вольтамперной характеристики, поэтому величина тока, протекающего через детектор, определяется скоростью образования заряженных частиц, т.е. массовой скоростью поступления органических веществ в пламя. Содержание органических веществ в исходных газах определяет величину фонового (нулевого) тока ПИД. С поступлением в детектор анализируемых горючих органических газообразных веществ скорость образования заряженных частиц возрастает, что приводит к увеличению ионного тока, протекающего через детектор. Величина ионного тока, образующегося в пламени горелки, пропорциональна концентрации органических веществ, поступивших на детектор. Результат измерения отображается на дисплее в виде довзрывоопасной концентрации в % НКПР (LEL) в пересчете на пропан.
Газоанализатор имеет заводской номер (зав. № SG20230804001), который в виде буквенно-цифрового обозначения, состоящего из арабских цифр и букв латинского алфавита, нанесен методом лазерной маркировки на идентификационную табличку, приклеенную к передней панели корпуса газоанализатора. Внешний вид таблички представлен на рисунке 2.
Пломбирование газоанализатора не предусмотрено. Конструкция газоанализатора обеспечивает ограничение доступа к частям, несущим первичную измерительную информацию, и местам настройки (регулировки).
Нанесение знака поверки на газоанализатор не предусмотрено.
Общий вид газоанализатора представлен на рисунке 1.


Место нанесения идентификационной таблички
Место нанесения
идентификационной
таблички
Рисунок 1 - Общий вид газоанализатора с указанием места нанесения идентификационной таблички

Рисунок 2 - Идентификационная табличка с указанием места нанесения заводского номера
Программное обеспечение
Газоанализатор эксплуатируется с программным обеспечением (далее - ПО), которое установлено на предприятии-изготовителе во время производственного цикла в микропроцессор, расположенный внутри корпуса газоанализатора на электронной плате. ПО выполняет следующие функции:
-
- управление газоанализатором;
-
- калибровка;
-
- получение и обработка результатов.
ПО защищено от преднамеренных изменений с помощью криптографических методов защиты. Влияние программного обеспечения газоанализаторов учтено при нормировании метрологических характеристик.
Обновление ПО в процессе эксплуатации не предусмотрено.
Таблица 1 - Идентификационные данные ПО
Идентификационные данные (признаки) |
Значение |
Идентификационное наименование |
SOLAREx FID |
Номер версии (идентификационный номер) ПО |
V1.1 |
Защита ПО от непреднамеренных и преднамеренных изменений соответствует уровню
«высокий» согласно Р 50.2.077-2014.
Метрологические и технические характеристики
Таблица 2 -
Наименование характеристики |
Значение |
Диапазон измерений довзрывоопасной концентрации суммы горючих органических газообразных веществ (в пересчете на пропан), % НКПР |
от 0 до 10o |
Пределы допускаемой абсолютной погрешности измерений довзрывоопасной концентрации суммы горючих органических газообразных веществ (в пересчете на пропан), % |
±5 |
Номинальное время установления выходного сигнала (To,9), с, не более |
180 |
Таблица 3 - Технические характеристики
Наименование характеристики |
Значение |
Параметры электрического питания: | |
- напряжение переменного тока, В |
220 |
- частота переменного тока, Гц |
50 |
- напряжение постоянного тока, В |
24 |
Потребляемая мощность, Вт, не более |
200 |
Габаритные размеры (ширина^длина^высота), мм, не более |
445x440x265 |
Масса, кг, не более |
15 |
Условия эксплуатации: | |
- температура окружающей среды, °С |
от +5 до +40 |
- относительная влажность, %, не более |
85 |
- атмосферное давление, кПа |
от 84 до 106 |
Степень защиты оболочки внешнего исполнения по ГОСТ 14254-2015 |
IP54 |
Маркировка взрывозащиты по ГОСТ 31610.0-2019 |
1Ex db ib pxb IIC T6 Gb |
Таблица 4 - Показатели надежности
Наименование характеристики |
Значение |
Средний срок службы, лет |
10 |
Средняя наработка на отказ, ч |
36000 |
Знак утверждения типа
наносится типографским способом на титульный лист руководства по эксплуатации.
Комплектность средства измерений
Таблица 5 - Комплектность средства измерений
Наименование |
Обозначение |
Количество, шт./экз. |
Газоанализатор SolarEx |
- |
1 |
Руководство по эксплуатации |
SGN 1.02 |
1 |
Сведения о методиках (методах) измерений
приведены в разделе 8 «Эксплуатация» документа «Газоанализатор SolarEx. Руководство по эксплуатации».
Нормативные документы, устанавливающие требования к средству измерений
Приказ Федерального агентства по техническому регулированию и метрологии от 31 декабря 2020 г. № 2315 «Об утверждении Государственной поверочной схемы для средств измерений содержания компонентов в газовых и газоконденсатных средах».
Правообладатель
Signal (Shanghai) Technology Co., Ltd., Китай
Адрес: 3500 Xiupu Road, Pudong New Area, Shanghai, China Телефон: +86-0755-29886112 / 0755-29886179 E-mail: sales@sz-signal.com / info@sz-signal.com
Изготовитель
Signal (Shanghai) Technology Co., Ltd., Китай
Адрес: 3500 Xiupu Road, Pudong New Area, Shanghai, China Телефон: +86-0755-29886112 / 0755-29886179 E-mail: sales@sz-signal.com / info@sz-signal.com
Испытательный центр
Общество с ограниченной ответственностью «ПРОММАШ ТЕСТ Метрология»
(ООО «ПРОММАШ ТЕСТ Метрология»)
Юридический адрес: 119415, г. Москва, пр-кт Вернадского, д. 41 стр. 1, помещ. 263 Адрес места осуществления деятельности: 142300, Россия, Московская обл., г. Чехов, Симферопольское ш., д. 2, литера А, помещ. I
Телефон: +7 (495) 108 69 50
E-mail: info@metrologiya.prommashtest.ru
Уникальный номер записи об аккредитации в реестре аккредитованных лиц Росаккредитации RA.RU.314164

УТВЕРЖДЕНО приказом Федерального агентства по техническому регулированию
и метрологии
от « '14 » 2025 г. № сс85
Лист № 1
Всего листов 5
Регистрационный № 96143-25
ОПИСАНИЕ ТИПА СРЕДСТВА ИЗМЕРЕНИЙ
Хромато-масс-спектрометр жидкостный 6475 LC/TQ
Назначение средства измерений
Хромато-масс-спектрометр жидкостный 6475 LC/TQ (далее - хромато-масс-спектрометр) предназначен для измерений содержания компонентов, входящих в состав органических и неорганических смесей веществ различной природы.
Описание средства измерений
Принцип действия хромато-масс-спектрометра основан на разделении компонентов пробы, поступающей из жидкостного хроматографа, их ионизации и детектировании с помощью масс-спектрометрического детектора. Образовавшиеся ионы поступают в масс-анализатор, где осуществляется их разделение по соотношению массы к заряду. Попадая в детектор, ионы образуют ток, который преобразуется в импульсы напряжения, пропорциональные количеству ионов, поступивших на детектор.
Хромато-масс-спектрометр состоит из высокоэффективного жидкостного хроматографа 1290 Infinity II (далее - хроматограф) и масс-спектрометрического детектора с тройным квадруполем G6475A (далее - масс-спектрометрический детектор G6475A).
Хроматограф включает в себя жидкостный градиентный насос G7104A 1290 Flexible Pump с узлами контроля давления и потока элюента, автосемплер G7129B 1290 Vialsampler, термостат для разделительных колонок G7116B 1290 MCT.
Масс-спектрометрический детектор G6475A включает в себя источник ионизации, блок насосов (форвакуумный и турбомолекулярный), последовательно соединенные квадрупольные масс-анализаторы (3 шт.) и детектор ионов на основе электронного умножителя. В качестве источника ионизации компонентов пробы используется источник ионизации с технологией Agilent Jet Stream (AJS), работающий по технологии электрораспылительной ионизации при атмосферном давлении (ESI).
К хромато-масс-спектрометру данного типа относится хромато-масс-спектрометр жидкостный 6475 LC/TQ с серийным номером SG2321S001.
Серийный номер хромато-масс-спектрометра расположен справа внизу на передней панели масс-спектрометрического детектора G6475A в специальном застекленном окне. Нанесение знака поверки на хромато-масс-спектрометр в обязательном порядке не предусмотрено.
Общий вид хромато-масс-спектрометра с указанием места нанесения знака утверждения типа и места нанесения серийного номера представлен на рисунке 1.
Пломбирование хромато-масс-спектрометра не предусмотрено.

Рисунок 1 - Общий вид хромато-масс-спектрометра жидкостного 6475 LC/TQ с указанием места нанесения знака утверждения типа и серийного номера
Программное обеспечение
Хромато-масс-спектрометр оснащен автономным программным обеспечением (далее - ПО) Agilent MassHunter Workstation. ПО позволяет проводить контроль процесса измерений, осуществлять сбор экспериментальных данных и сохранять полученные результаты.
Обработка данных хроматограмм осуществляется в подпрограмме Qualitative Analysis.
Уровень защиты ПО «средний» в соответствии с Р 50.2.077-2014.
Влияние ПО хромато-масс-спектрометра учтено при нормировании метрологических характеристик. Метрологически значимой является подпрограмма Qualitative Analysis.
Идентификационные данные ПО приведены в таблице 1.
Таблица 1 -
данные ПО
Идентификационные данные (признаки) |
Значение |
Идентификационное наименование ПО |
Qualitative Analysis |
Номер версии (идентификационный номер) ПО |
12.X |
Цифровой идентификатор ПО |
- |
Примечания:
|
Метрологические и технические характеристики
Таблица 2 - Метрологические характеристики
Наименование характеристики |
Значение |
Диапазон показаний массовых чисел, а.е.м. |
от 5 до 3000 |
Чувствительность (отношение сигнал/шум), не менее:
|
3500 3500 |
Предел допускаемого относительного среднего квадратичного отклонения (ОСКО) выходного сигнала, %:
|
8,0 1,0 |
Таблица 3 - Основные технические характеристики
Наименование характеристики |
Значение |
Параметры электрического питания: - напряжение переменного тока, В |
от 200 до 240 |
- частота переменного тока, Гц |
50 |
Рабочие условия измерений: - температура окружающей среды, °С |
от +15 до +35 |
- относительная влажность воздуха, %, не более |
85 |
- атмосферное давление, кПа |
от 85 до 106 |
Потребляемая мощность масс-спектрометрического детектора G6475A, В^А, не более |
2850 |
Габаритные размеры масс-спектрометрического детектора G6475A, мм, не более: - высота |
480 |
- ширина |
780 |
- длина |
840 |
Масса масс-спектрометрического детектора G6475A, кг, не более |
117 |
Потребляемая мощность термостата для разделительных колонок G7116B 1290 MCT, В^А, не более |
150 |
таблицы 3
Наименование характеристики |
Значение |
Габаритные размеры термостата для разделительных колонок G7116B 1290 MCT, мм, не более: - высота |
160 |
- ширина |
435 |
- длина |
430 |
Масса термостата для разделительных колонок G7116B 1290 MCT, кг, |
12,5 |
не более | |
Потребляемая мощность автосемплера G7129B 1290 Vialsampler, В^А, не более |
350 |
Габаритные размеры автосемплера G7129B 1290 Vialsampler, мм, не более: - высота |
320 |
- ширина |
396 |
- длина |
468 |
Масса автосемплера G7129B 1290 Vialsampler, кг, не более |
24,0 |
Потребляемая мощность жидкостного градиентного насоса G7104A 1290 Flexible Pump, В^А, не более |
120 |
Габаритные размеры жидкостного градиентного насоса G7104A 1290 Flexible Pump, мм, не более: - высота |
180 |
- ширина |
396 |
- длина |
436 |
Масса жидкостного градиентного насоса G7104A 1290 Flexible Pump, кг, |
16,1 |
не более |
Таблица 4 - Показатели надежности
Наименование характеристики |
Значение |
Средний срок службы, лет |
8 |
Средняя наработка на отказ, ч |
5000 |
Знак утверждения типа
наносится справа внизу на передней панели масс-спектрометрического детектора G6475A в специальном застекленном окне в виде наклейки, а также на титульный лист руководства по эксплуатации методом компьютерной графики.
Комплектность средства измерений
Таблица 5 - Комплектность средства измерений
Наименование |
Обозначение |
Количество |
Хромато-масс-спектрометр жидкостный 6475 LC/TQ, серийный номер SG2321S001, в составе: масс-спектрометрический детектор жидкостный хроматограф |
G6475A 1290 Infinity II |
1 шт. 1 шт. 1 шт. |
Руководство по эксплуатации |
Хромато-масс-спектрометр жидкостный 6475 LC/TQ. Руководство по эксплуатации |
1 экз. |
Методика поверки |
- |
1 экз. |
Сведения о методиках (методах) измерений приведены в главе 4 «Основные операции» руководства по эксплуатации.
Нормативные документы, устанавливающие требования к средству измерений Техническая документация фирмы-изготовителя «Agilent Technologies Singapore Pte Ltd.»
Правообладатель
Фирма «Agilent Technologies Singapore Pte Ltd.», Сингапур
Адрес: 1Yishun Avenue 7, Singapore 768923
Тел.: +6563077637
Факс: +6563077631
Web-сайт: www.agilent.com
Изготовитель
Фирма «Agilent Technologies Singapore Pte Ltd.», Сингапур
Адрес: 1Yishun Avenue 7, Singapore 768923
Тел.: +6563077637
Факс: +6563077631
Web-сайт: www.agilent.com
Испытательный центр
Федеральное государственное бюджетное учреждение «Всероссийский научно-исследовательский и испытательный институт медицинской техники» Федеральной службы по надзору в сфере здравоохранения
(ФГБУ «ВНИИИМТ» Росздравнадзора)
Адрес: 115478, г. Москва, Каширское ш., д. 24, стр. 16
Телефон: +7 (495) 989-73-62
E-mail: info@vniiimt.ru
Уникальный номер записи об аккредитации в Реестре аккредитованных лиц RA.RU.312253

УТВЕРЖДЕНО приказом Федерального агентства по техническому регулированию
и метрологии
от «__ » 2025 г. №
Лист № 1
Всего листов 4
Регистрационный № 96144-25
ОПИСАНИЕ ТИПА СРЕДСТВА ИЗМЕРЕНИЙ
Индикаторы рычажно-зубчатые с ценой деления 0,01 мм
Назначение средства измерений
Индикаторы рычажно-зубчатые с ценой деления 0,01 мм (далее по тексту индикаторы) предназначены для измерений радиального биения, центрирования валов и отверстий, а также для контроля параллельности и выравнивания поверхностей в станках и приспособлениях.
Описание средства измерений
Принцип действия индикаторов основан на преобразовании малых перемещений измерительного рычага, в пропорциональные угловые перемещения стрелки отсчетного устройства.
Индикаторы изготавливаются типа ИРБ - боковые со шкалами, параллельными оси измерительного рычага в среднем положении.
Индикаторы могут быть оснащены зажимным устройством типа «ласточкин хвост», со втулкой для крепления в стойках и штативах.
Конструкция индикаторов обеспечивает возможность поворота измерительного рычага в пределах ±90° от его среднего положения и неизменность установленного положения в процессе измерения.

Товарный знак , или наносится на циферблат краской или
лазерной гравировкой, а также на титульный лист паспорта типографским методом.
Заводской номер в виде цифрового обозначения наносится на корпус индикатора лазерной маркировкой в месте, указанном на рисунке 1.
Пломбирование индикаторов от несанкционированного доступа не предусмотрено. Нанесение знака поверки на средство измерений не предусмотрено.
Общий вид индикаторов указан на рисунке 1.

' 0 | |
1^’0 | |
—20 | |
-ни-ао1я»п | |
■ 40 , |

Рисунок 1 - Общий вид индикаторов типа ИРБ с указанием места нанесения заводского номера
Метрологические и технические характеристики
Таблица 1 - Метрологические характеристики
Наименование характеристики |
Значение |
Диапазон измерений, мм |
от 0 до 0,8 |
Цена деления, мм |
0,01 |
Измерительное усилие, Н |
от 0,1 до 0,4 |
Усилие поворота измерительного рычага, Н |
от 2,5 до 7,0 |
Наибольшая разность погрешностей* измерений индикатора при любом его положении и положении рычага, мм:
|
0,004 0,010 |
Размах показаний**, мм, не более |
0,003 |
* Под наибольшей разностью погрешностей индикатора понимают наибольшую алгебраическую разность значений погрешностей на проверяемом участке при прямом и обратном ходе измерительного рычага. ** Под размахом показаний понимается наибольшая разность между отдельными повторяемыми показаниями индикатора, соответствующими одному и тому же действительному значению измеряемой величины при неизменных внешний условиях. |
Таблица 2 - Технические характеристики
Наименование характеристики |
Значение |
Параметр шероховатости Ra по ГОСТ 2789-73 измерительной поверхности рычага, мкм, не более |
0,08 |
Габаритные размеры (ДхШхВ), мм, не более |
83х30х24 |
Масса, кг, не более |
0,052 |
Условия эксплуатации:
|
от +17 до +23 от 40 до 80 |
Знак утверждения типа
наносится на титульный лист паспорта типографским методом.
Комплектность средства измерений
Таблица 3 - Комплектность средства измерений
Наименование |
Обозначение |
Комплектность |
Индикатор рычажно-зубчатый с ценой деления 0,01 мм |
- |
1 шт. |
Державка для крепления индикатора |
- |
1 шт. |
Переходная втулка с диаметра 5 мм на диаметр 8 мм |
- |
1 шт. |
Футляр |
- |
1 шт. |
Паспорт |
- |
1 экз. |
Сведения о методиках (методах) измерений
приведены в разделе 6 «Порядок работы» паспорта индикаторов.
Нормативные документы, устанавливающие требования к средству измерений
ГОСТ 5584-75 «Индикаторы рычажно-зубчатые с ценой деления 0,01 мм. Технические условия».
Правообладатель
Общество с ограниченной ответственностью Торговый дом «ИТО-Туламаш»
(ООО ТД «ИТО-Туламаш»)
ИНН 7719465230
Адрес юридического лица: 121099, г. Москва, вн.тер.г. муниципальный округ Арбат, пер Малый Каковинский, д. 1/8, стр. 2, помещ. 1/1
Тел.: +7 495 935-70-94
Web-сайт: www.itotulamash.ru
Изготовитель
Общество с ограниченной ответственностью Торговый дом «ИТО-Туламаш»
(ООО ТД «ИТО-Туламаш»)
ИНН 7719465230
Адрес юридического лица: 121099, г. Москва, вн.тер.г. муниципальный округ Арбат, пер Малый Каковинский, д. 1/8, стр. 2, помещ. 1/1
Производственная площадка: JiangXi Provincial RuiFeng Machinery and Tools Co. Ltd, КНР Адрес: NO.299 HONGDU NORTH RD., NANCHANG JIANGXI P.R CHINA
Испытательный центр
Общество с ограниченной ответственностью «Метрологический Центр Севр групп» (ООО «МЦ Севр групп»)
Адрес: 111141, г. Москва, вн.тер.г. муниципальный округ Новогиреево, ул. Кусковская, д. 20А, этаж/помещ./ком. манcарда/XШA/33Б
Тел.: +7 (495) 822-18-08
Web-сайт: www.mcsevr.ru, E-mail: info@mcsevr.ru
Уникальный номер записи об аккредитации в Реестре аккредитованных лиц №
RA.RU.314382

УТВЕРЖДЕНО приказом Федерального агентства по техническому регулированию
и метрологии
от «_^ » 2025 г. № “^85
Лист № 1
Всего листов 5
Регистрационный № 96145-25
ОПИСАНИЕ ТИПА СРЕДСТВА ИЗМЕРЕНИЙ
Анализаторы влажности HMS-100
Назначение средства измерений
Анализаторы влажности HMS-100 (далее - анализаторы) предназначены для непрерывных автоматических измерений молярной доли паров воды (H2O) в газовых средах, в пылегазовых потоках стационарных источников загрязнения окружающей среды.
Описание средства измерений
Принцип действия анализаторов - термодинамический.
Анализаторы являются стационарными приборами, конструктивно состоящими из зонда и контроллера. Внутри зонда установлены два датчика, которые подключаются к контроллеру с помощью соединительных проводов через отверстие, расположенное в верхней части зонда. В нижней части зонда находятся отверстия для подачи и отвода проб газа.
Анализаторы имеют цифровые интерфейсы передачи данных через токовый выход (от 4 до 20 мА) и через RS-485 для подключения к персональному компьютеру или другому цифровому устройству.
Заводской номер анализаторов в виде буквенно-цифрового обозначения, состоящего из арабских цифр и букв латинского алфавита, типографским способом наносится на идентификационную табличку, приклеиваемую к корпусу контроллера. Внешний вид таблички представлен на рисунке 2.
Пломбирование анализатора не предусмотрено. Конструкция анализатора обеспечивает ограничение доступа к частям анализатора, несущим первичную измерительную информацию, и местам настройки (регулировки).
Нанесение знака поверки на анализатор не предусмотрено.
Общий вид анализатора представлен на рисунке 1.
Рисунок 1 - Общий вид анализаторов: а - зонд, б - контроллер

Анализатор влажности
Заводской номер
Дата производства:
Производитель.
Версия встроенного ПО:
Рисунок 2 - Идентификационная табличка анализаторов с указанием мест нанесения заводского номера и знака утверждения типа
Программное обеспечение
Программное обеспечение (далее - ПО) анализаторов состоит из встроенного и автономного ПО.
Встроенное ПО анализаторов выполняет следующие функции:
-
- расчет молярной доли паров влаги;
-
- передача результатов измерений через токовые выходы (от 4 до 20 мА);
-
- передача результатов измерений через интерфейс RS-485;
-
- контроль целостности программных кодов ПО, настроечных и калибровочных констант;
-
- контроль общих неисправностей (связь, конфигурация).
Встроенное ПО анализаторов имеет защиту от несанкционированного доступа и оперирования, защита осуществляется путем запроса пароля у пользователя.
Уровень защиты - «средний» по Р 50.2.077-2014.
Автономное ПО базируется на операционной системе Microsoft Windows и осуществляет следующие функции:
-
- управление работой анализаторов;
-
- приём данных от анализаторов;
-
- настройка и калибровка анализаторов (ввод калибровочных констант);
-
- отображение результатов измерений на экран персонального компьютера (ПК);
-
- просмотр параметров анализаторов (в том числе версии встроенного ПО).
Автономное ПО анализаторов имеет защиту от несанкционированного доступа и оперирования, защита осуществляется путем запроса пароля у пользователя.
Уровень защиты - «средний» по Р 50.2.077-2014.
Влияние ПО учтено при нормировании метрологических характеристик анализаторов.
Идентификационные данные ПО анализаторов приведены в таблице 1.
Таблица 1 -
данные ПО
Идентификационные данные (признаки) |
Значение | |
Встроенное ПО |
Автономное ПО | |
Идентификационное наименование ПО |
- |
O2_H2O_Monitor.exe |
Номер версии (идентификационный номер), не ниже |
1.00 |
1.0 |
Метрологические и технические характеристики
Таблица 2 -
Наименование характеристики |
Значение |
Диапазон показаний молярной доли влаги (Н2О), % (млн-1) |
от 0 до 40 (от 0 до 400000) |
Диапазон измерений молярной доли влаги (Н2О), % (млн-1) |
от 0,001 до 40 (от 10 до 400000) |
Пределы допускаемой приведенной1) погрешности измерений молярной доли влаги, в поддиапазоне от 0,001 % до 10 % включ., % |
±10 |
Пределы допускаемой относительной погрешности измерений молярной доли влаги, в поддиапазоне св. 10 % до 40 % включ., % |
±10 |
Предел допускаемого времени установления показаний То,9, с |
300 |
1) Нормирующим значением является верхняя граница поддиапазона измерений |
Таблица 3 - Технические
Наименование характеристики |
Значение |
Параметры электрического питания: | |
- напряжение переменного тока, В |
от 210 до 230 |
- частота переменного тока, Гц |
50/60 |
Время прогрева, мин, не более |
60 |
Диапазон значений расхода анализируемой пробы на входе, дм3/мин |
от 1 до 9 |
Потребляемая мощность, Вт, не более |
35 |
Габаритные размеры, мм, не более: | |
- зонд (длинахдиаметр) |
89х59 |
- контроллер (ширинахдлинахвысота) |
200x160x54 |
Масса, кг, не более: | |
- зонд |
1 |
- контроллер |
1,25 |
Условия эксплуатации: | |
- температура окружающей среды, °С |
от -10 до +50 |
- относительная влажность, % |
от 20 до 90 |
- атмосферное давление, кПа |
от 84 до 106 |
Таблица 4 - Показатели надежности
Наименование характеристики |
Значение |
Срок службы, лет |
10 |
Средняя наработка на отказ, ч |
24000 |
Знак утверждения типа
наносится типографским способом на идентификационную табличку анализатора и на титульный лист руководства по эксплуатации.
Комплектность средства измерений
Таблица 5 - Комплектность
Наименование |
Обозначение |
Количество, шт./экз. |
Анализатор влажности HMS-1001) |
- |
1 |
Руководство по эксплуатации |
- |
1 |
1) Комплект поставки формируется в соответствии с заказом |
Сведения о методиках (методах) измерений
приведены в разделах 6 «Запуск устройства» и 7 «Функции и параметры меню» документа «Анализаторы влажности HMS-100. Руководство по эксплуатации».
Нормативные документы, устанавливающие требования к средству измерений
Стандарт предприятия Focused Photonics (Hangzhou) Inc., Китай. Анализаторы влажности HMS-100;
Приказ Федерального агентства по техническому регулированию и метрологии от 21.11.2023 г. № 2415 «Об утверждении Государственной поверочной схемы для средств измерений влажности газов и температуры конденсации углеводородов».
Правообладатель
Focused Photonics (Hangzhou) Inc., Китай
Адрес: 760 Bin'an Road, Binjiang District, Hangzhou, Zhejiang, P.R. China Телефон: +86 0571 8501 2111
E-mail: fpi-online@fpi-inc.com, juanxiu_zhong@fpi-inc.com
Изготовитель
Focused Photonics (Hangzhou) Inc., Китай
Адрес: 760 Bin'an Road, Binjiang District, Hangzhou, Zhejiang, P.R. China Телефон: +86 0571 8501 2111
E-mail: fpi-online@fpi-inc.com, juanxiu_zhong@fpi-inc.com
Испытательный центр
Общество с ограниченной ответственностью «ПРОММАШ ТЕСТ Метрология» (ООО «ПРОММАШ ТЕСТ Метрология»)
Юридический адрес: 119415, г. Москва, пр-кт Вернадского, д. 41 стр. 1, помещ. 263 Адрес места осуществления деятельности: 142300, Россия, Московская обл., г. Чехов, Симферопольское ш., д. 2
Телефон: +7 (495) 108 69 50
E-mail: info@metrologiya.prommashtest.ru Уникальный номер записи
в реестре аккредитованных лиц
об аккредитации
Росаккредитации RA.RU.314164

УТВЕРЖДЕНО
приказом Федерального агентства по техническому регулированию и метрологии
14 августа аг 1685
от « » _ 2025 г. №
Лист № 1
Всего листов 4
Регистрационный № 96146-25
ОПИСАНИЕ ТИПА СРЕДСТВА ИЗМЕРЕНИЙ
Г азоанализаторы многокомпонентные DSM-Х
Назначение средства измерений
Газоанализаторы многокомпонентные DSM-Х (далее - газоанализаторы) предназначены для непрерывного измерения содержания газообразных веществ: оксида азота (NO), диоксида азота (NO2), диоксида серы (SO2), монооксида углерода (CO), диоксида углерода (СО2), кислорода (О2) внутри воздуховодов.
Описание средства измерений
Принцип действия газоанализаторов оптический. При измерении содержания диоксида серы, монооксида азота и диоксида азота - метод дифференциального поглощения в ультрафиолетовых лучах. Измерение содержания монооксида углерода и диоксида углерода проводится методом недисперсионного инфракрасного поглощения, а для измерения объемной доли кислорода применяется циркониевый метод.
Газоанализаторы являются многоканальными стационарными приборами непрерывного действия, обеспечивают унифицированный аналоговый выходной сигнал от 4 до 20 мА.
Конструктивно газоанализаторы выполнены в металлическом корпусе, который состоит из главного блока управления и блока предварительной обработки. В состав главного блока управления входят источник ультрафиолетового излучения, кислородный датчик, газовая камера и плата управления.
Общий вид газоанализатора приведен на рисунке 1.
Газоанализаторы имеют заводские номера, обеспечивающие идентификацию каждого экземпляра, которые наносятся методом лазерной гравировки в виде обозначения модификации и цифрового кода на идентификационную табличку (рисунок 2). Нанесение знака поверки на газоанализаторы не предусмотрено. Опломбирование от несанкционированного доступа не предусмотрено.

Рисунок 1 - Общий вид газоанализаторов

Ai Т Я Л| |
«SS»I |
MO, SO2 attpT" V.’ Hit | |
1‘ 9; |
a(8¥^| BSg»( |
10-50T | |
i- аяя |
ав4м |
эе?я Sif 9! ^3 | |
Multi |
W^'W±a!*!g | ||
DSM.X |
»Ч*Э»а | ||
AMie а |
bsM-X>2«-OOe |
z:—1 |
Рисунок 2 - Идентификационная табличка
Программное обеспечение
Программное обеспечение (далее по тексту - ПО) газоанализаторов состоит автономного встроенного ПО (ПО газоанализатора) и пользовательского ПО
из (ПО пользователя), устанавливаемого на ПК.
Метрологически значимым является автономное встроенное ПО газоанализаторов. Идентификационные данные ПО газоанализаторов приведены в таблице 1.
Таблица 1 -
ПО
данные
Идентификационные данные (признаки) |
Значение |
Идентификационное наименование ПО |
10000-1 |
Номер версии (идентификационный номер) ПО |
не ниже 10000-1 |
Защита ПО газоанализаторов от непреднамеренных и преднамеренных изменений соответствует уровню «высокий» по Р 50.2.077-2014.
Метрологические и технические характеристики
Метрологические и основные технические характеристики газоанализаторов приведены в таблицах 2 - 3.
Таблица 2 - Метрологические характеристики
Наименование характеристики |
Значение |
Диапазон измерений объемной доли компонента, млн-1:
Диапазон измерений объемной доли компонента, %:
|
от 0 до 600 от 0 до 600 от 0 до 100 от 0 до 600 от 0 до 50 от 0 до 25 |
Пределы допускаемой приведенной погрешности измерений объемной доли компонентов, % |
±10 |
Примечание - Нормирующим значением при определении приведенной погрешности измерений объемной доли компонента является верхнее значение диапазона измерений объемной доли компонента |
Таблица 3 - Основные технические
Наименование характеристики |
Значение |
Время прогрева, мин, не более |
120 |
Параметры электрического питания: - напряжение переменного тока, В |
220 |
- частота, Гц |
50/60 |
Условия эксплуатации: - температура окружающей среды, °С |
от -10 до +50 |
- относительная влажность, %, не более |
98 |
- атмосферное давление, кПа |
от 80 до 110 |
Габаритные размеры, мм, не более - длина |
440 |
- ширина |
550 |
- высота |
240 |
Масса, кг, не более |
30 |
Знак утверждения типа
наносится типографским способом на титульный лист руководства по эксплуатации.
Комплектность средства измерений
Комплектность поставки газоанализаторов приведена в таблице 4.
Таблица 4 - Комплект поставки газоанализаторов | ||
Наименование |
Обозначение |
Количество |
Газоанализатор многокомпонентный |
DSM-Х |
1 шт. |
Руководство по эксплуатации |
Г азоанализатор многокомпонентный DSM-Х |
1 экз. |
Соединительные и кабельные вводы |
- |
1 шт. |
Сведения о методиках (методах) измерений
приведены в пункте 6 «Работа программы» руководства по эксплуатации.
требования к средству
Нормативные и технические документы, устанавливающие измерений
содержания компонентов
Федерального агентства
Государственная поверочная схема для средств измерений в газовых и газоконденсатных средах, утвержденная приказом по техническому регулированию и метрологии от 31 декабря 2020 г. № 2315;
Стандарт предприятия «Газоанализаторы многокомпонентные DSM-Х».
Правообладатель
DXG Ltd., Республика Корея
Адрес: 102-8, Hoean-Daero, Opo-Eup, Gwangju-Si, Gyeonggi-Do, Korea
Телефон: +82-31-765-0300
E-mail: os@dxg.kr
Изготовитель
DXG Ltd., Республика Корея
Адрес: 102-8, Hoean-Daero, Opo-Eup, Gwangju-Si, Gyeonggi-Do, Korea Телефон: +82-31-765-0300
E-mail: os@dxg.kr
Испытательный центр
Общество с ограниченной ответственностью «ПРОММАШ ТЕСТ Метрология»
(ООО «ПРОММАШ ТЕСТ Метрология»)
Юридический адрес: 119415, Россия, г.Москва, вн. тер. г. муниципальный округ
Проспект Вернадского, пр-кт Вернадского, д. 41, стр. 1, помещ. 263
Адрес места осуществления деятельности: 142300, Россия, Московская обл., г. Чехов, Симферопольское ш., д. 2
Телефон: +7 (495) 108 69 50
E-mail: info@metrologiya.prommashtest.ru
Уникальный номер записи об аккредитации в реестре аккредитованных лиц RA.RU.314164

УТВЕРЖДЕНО приказом Федерального агентства по техническому регулированию
и метрологии
от « 2025 г. №
Лист № 1
Всего листов 10
Регистрационный № 96147-25
ОПИСАНИЕ ТИПА СРЕДСТВА ИЗМЕРЕНИЙ
Вычислители количества энергоносителей Ирга-2
Назначение средства измерений
Вычислители количества энергоносителей Ирга-2 (далее - вычислители) предназначены для измерений силы постоянного электрического тока, электрического сопротивления постоянного тока и сигналов от термопреобразователей сопротивления (далее - ТС), частоты, хранения собственной шкалы времени, а также совместно с первичными измерительными преобразователями (далее - ПП) для преобразований, вычисления и хранения данных о приведённом к стандартным условиям (температура плюс 20 °C, абсолютное давление 0,101325 МПа) объёмном расходе и объёме газов (природный газ, воздух, пар, кислород, попутный (свободный) нефтяной газ и другие газы), массовом расходе и массе (объёме) газов и жидкостей (вода, нефтепродукты и другие жидкости), тепловой мощности и количестве теплоты (тепловой энергии) и других параметрах энергоносителей в закрытых и открытых системах теплоснабжения при их отпуске и потреблении.
Описание средства измерений
Принцип действия вычислителей заключается в аналого-цифровом преобразовании входных электрических сигналов, поступающих с ПП расхода, давления, перепада давления и температуры в значения измеряемых величин, а затем в вычислении расхода и объёма газов в рабочих условиях, расхода и объёма газов, приведенных к стандартным условиям, массы жидкости и пара, а также потреблённого (отпущенного) количества теплоты.
Конструктивно вычислители представляют собой корпус, внутри которого размещены платы с электронными компонентами и клеммами. На передней панели вычислителей расположен сенсорный ЖКИ. На боковых панелях расположены кабельные вводы и разъем USB.
Вычислители изготавливаются в исполнениях, соответствующих условному обозначению и отличающихся параметрами электрического питания, количеством составных измерительных каналов, типом сигнала подключаемого ПП расхода, интерфейсами передачи данных выходных сигналов, особенностями режимов работы, программируемых изготовителем.
Один составной измерительный канал вычислителя состоит из:
-
- одного простого канала обработки данных частотных сигналов или токового сигнала (ПП расхода);
-
- одного простого канала обработки данных токового сигнала (ПП давления);
-
- одного простого канала обработки данных резистивного сигнала (ПП температуры).
Количество одновременно обслуживаемых составных измерительных каналов вычислителей в зависимости от исполнения - от 1 до 4.
Условное обозначение исполнений вычислителей:
Ирга-2/ а - b - с - d - e
Обозначение типа вычислителей_____________________________
Исполнение вычислителей:
-
5_________________________________________________________________________
Тип питания:
24 В; 220 В.__________________________________________________________________
Количество составных измерительных каналов:
1; 2; 3; 4._________________________________________________________________________________________________
Интерфейсы передачи данных выходных сигналов:
USB; Centronics; Ethernet; GSM; Wi-Fi; Bluetooth; RS-485; RS-232; RS-485/RS-232;
RS-485/RS-232/HART._____________________________________________________
Измеряемая среда:
Г - Газ; П - Пар; Ж - Жидкость._____________________________________________
Вид выходного сигнала с ПП расхода:
F - Частотный; I - унифицированный токовый; D - цифровой сигнал.
В качестве ПП расхода могут использоваться:
-
- стандартные сужающие устройства по ГОСТ 8.586.1-2005, ГОСТ 8.586.5-2005 с преобразователями перепада давления;
-
- преобразователи расхода различного принципа действия (вихревые, струйные, ультразвуковые, турбинные и др.) с выходным, частотным, унифицированным токовым или цифровым сигналами.
Вычислители позволяют производить настройку (на заводе-изготовителе или у официального представителя) на требуемые схемы учёта, а также вводить или редактировать значения настроек вычислителей в соответствии с применяемыми ПП (расхода, давления, перепада давления и температуры).
В процессе функционирования в составе узла учёта вычислители по каждому каналу обеспечивают (в зависимости от измеряемой среды и введённых настроек):
-
- измерение и хранение текущих значений температуры, давления, перепада давления и расхода путём преобразования электрических сигналов от ПП;
-
- вычисление текущих значений приведённого к стандартным условиям объёмного расхода газов, массового расхода и массы газов и жидкостей, тепловой мощности теплоносителя, а также других параметров (энтальпии, коэффициента сжимаемости и т. п.) в соответствии с действующими утверждёнными методиками и требованиями НТД;
-
- выбор единиц измерения расхода, температуры, давления, массы, массового расхода и тепловой мощности;
-
- подсчёт нарастающим итогом значений объёма в рабочих условиях, объёма, приведённого к стандартным условиям, массы носителя, количества тепловой энергии, объёма конденсата;
-
- сбор, хранение и передачу измерительной и диагностической информации на внешние устройства посредством интерфейсов RS-232, RS-485, USB, Centronics, Ethernet, по проводным линиям связи с помощью модема или по беспроводным линиям связи с помощью GSM радиомодема, Wi-Fi, Bluetooth;
-
- регистрацию нештатных ситуаций заданных типов и учёт суммарного времени нештатных ситуаций по типам;
-
- использование в вычислениях контрактных значений параметров при выходе соответствующих ПП из строя;
-
- защиту значений настроек, влияющих на коммерческий учёт, от несанкционированного изменения;
-
- ведение календаря и времени суток;
- самодиагностику и диагностику ПП;
- сигнализацию о нормальной работе вычислителей;
- сохранение значений параметров настройки и архива глубиной до 366 суток при перерывах питания продолжительностью до 10 лет.
Вычислители архивируют, хранят в памяти и могут выводить на ЖКИ (в зависимости от измеряемой среды и введённых настроек) следующую информацию:
- текущую дату и время (год, день, часы, минуты);
- номер канала;
- текущее, среднечасовое, среднесуточное, среднемесячное значения давления измеряемой среды в трубопроводах;
- текущее значение перепада давления;
- текущее, среднечасовое, среднесуточное, среднемесячное значения температуры измеряемой среды в трубопроводах;
- текущее, среднечасовое, среднесуточное, среднемесячное, максимальное, минимальное значения: температуры, объёмного расхода в трубопроводах, массового расхода измеряемой среды;
- текущее значение расхода измеряемой среды в трубопроводах в рабочих условиях и стандартных условиях;
- почасовые, посуточные и помесячные объёмы измеряемой среды в рабочих условиях и приведённые к стандартным условиям;
- суммарный объём измеряемой среды нарастающим итогом за период измерений, приведённый к стандартным условиям;
- время штатной работы вычислителей;
- время нештатной работы вычислителей;
- время, когда по трубопроводу проходил пар насыщенный;
- время, когда по трубопроводу проходил пар перегретый;
- время, в течение которого среда не являлась паром;
- время, когда расход превышал максимально допустимое значение;
- время, когда давление превышало максимально допустимое значение;
- время, когда температура превышала максимально допустимое значение;
- время, когда расход был меньше минимально допустимого значения;
- время, когда давление было меньше минимально допустимого значения;
- время, когда температура была меньше минимально допустимого значения;
- общее время работы вычислителей;
- время отсутствия электропитания.
При учёте пара (в составе теплосчётчика) вычислители обеспечивают вычисления тепловой мощности, количества теплоты (тепловой энергии), массы (объёма) носителя. При этом вычислители могут выводить на индикатор передней панели (в зависимости от исполнения вычислителей, условий применения и введённых настроек), архивировать и хранить в памяти, помимо указанной общей информации, следующие данные:
- текущие значения расхода возвращаемого конденсата;
- почасовые, посуточные и помесячные объёмы возвращенного конденсата и суммарный его объём нарастающим итогом за период измерений;
- почасовые, посуточные и помесячные значения количества отпущенной (потреблённой) теплоты и суммарное её значение нарастающим итогом за период измерений;
- текущее значение тепловой мощности;
- текущий массовый расход пара;
- почасовые, посуточные и помесячные значения массы отпущенного (потреблённого) пара и суммарное её значение нарастающим итогом за период измерения;
- температуру холодной воды.
При учёте газа вычислители могут выводить на индикатор передней панели (в зависимости исполнения вычислителей, условий применения и введённых настроек), архивировать и хранить в памяти, помимо указанной общей информации, следующие данные:
-
- плотность газа;
-
- массовые доли N2, CO2 (в настройки вычислителей, предназначенных для учёта энергоносителей, таких как попутный нефтяной газ и аналогичные, заносится информация о массовой или объёмной доле азота и углеводородов);
-
- барометрическое давление;
-
- калибровочные коэффициенты;
-
- договорные значения расхода в рабочих условиях;
-
- договорные значения давления.
Вычислители производят расчёт объёмного и массового расхода, массы и объёма рабочей среды, тепловой энергии и количества теплоносителя (в зависимости от измеряемой среды и введённых настроек) в соответствии с требованиями:
-
- ГОСТ 8.586.1 2005 Государственная система обеспечения единства измерений (ГСИ). Измерение расхода и количества жидкостей и газов с помощью стандартных сужающих устройств. Часть 1. Принцип метода измерений и общие требования;
-
- ГОСТ 8.586.5-2005 Государственная система обеспечения единства измерений (ГСИ). Измерение расхода и количества жидкостей и газов с помощью стандартных сужающих устройств. Часть 5. Методика выполнения измерений;
-
- ГОСТ 8.611-2013 Государственная система обеспечения единства измерений (ГСИ). Расход и количество газа. Методика (метод) измерений с помощью ультразвуковых преобразователей расхода;
-
- ГОСТ Р 8.740-2023 Государственная система обеспечения единства измерений (ГСИ). Расход и объем газа. Методика (метод) измерений с с применением турбинных, ротационных и вихревых расходомеров и счетчиков;
-
- по методикам, указанным в таблице 1, и другим действующим утверждённым методикам и требованиям НТД на соответствующие виды измеряемой среды.
Таблица 1 - Таблица соответствия реализованных методик расчёта измеряемой среде
Измеряемая среда |
Реализованная методика расчёта |
1 |
2 |
Газ природный |
ГОСТ 30319.2-2015 Газ природный. Методы расчёта физических свойств. Вычисление физических свойств на основе данных о плотности при стандартных условиях и содержании азота и диоксида углерода |
Умеренно сжатые газовые смеси |
ГСССД МР 118-2005 Расчёт плотности, фактора сжимаемости, показателя адиабаты и коэффициента динамической вязкости умеренно сжатых газовых смесей |
Влажные газовые смеси |
ГСССД МР 273-2018 Методика расчётного определения плотности, фактора сжимаемости, скорости звука, показателя адиабаты, коэффициента динамической вязкости влажных газовых смесей в диапазоне температур от 263 К до 500 К при давлениях до 30 МПа |
Технически важные газы и смеси |
ГСССД МР 135-2007 Расчёт плотности, фактора сжимаемости, показателя адиабаты и коэффициента динамической вязкости технически важных газов и смесей при температурах -40...+60 °С и давлениях до 5 МПа |
Воздух |
ГСССД 8-79 Воздух жидкий и газообразный. Плотность, энтальпия, энтропия и изобарная теплоемкость при температурах 70-1500 К и давлениях 0,1-100 МПа |
1 |
2 |
Азот, ацетилен, кислород, диоксид углерода аммиак, аргон, водород |
ГСССД МР 134-2007 Расчёт плотности, фактора сжимаемости, показателя адиабаты и коэффициента динамической вязкости азота, ацетилена, кислорода, диоксида углерода, аммиака, аргона и водорода в диапазоне температур 200...425 К и давлений до 10 МПа |
Гелий |
ГСССД МР 121-2006 Методика расчетного определения основных термодинамических свойств и коэффициентов динамической вязкости и теплопроводности гелия-4 в диапазоне температур 2,5^450 К при давлении 100 МПа |
Водород |
ГОСТ Р 8.1018-2023 ГСИ. Водород нормальный. Теплофизические свойства при температурах до 1000 К и давлениях до 100 МПа |
Пар, вода |
МИ 2412-97 ГСИ. Водяные системы теплоснабжения. Уравнения измерений тепловой энергии и количества теплоносителя; МИ 2451-98 Рекомендация. ГСИ. Паровые системы теплоснабжения. Уравнения измерений тепловой энергии и количества теплоносителя; ГСССД МР 147-2008. Расчёт плотности, энтальпии, показателя адиабаты и коэффициента динамической вязкости воды и водяного пара при температурах 0...1000 °С и давлениях 0,0005...100 МПа на основании таблиц стандартных справочных данных ГСССД 187-99 и ГСССД 6-89 |
Заводской номер вычислителей, идентифицирующий каждый экземпляр средства измерений, в виде цифрового обозначения, состоящего из арабских цифр, наносится типографским способом на лицевую панель в левом нижнем углу.
Нанесение знака поверки на вычислители не предусмотрено.
Место пломбирования вычислителей предусмотрено. Пломба-наклейка устанавливается внутри корпуса на левом нижнем винте экранирующей пластины.
Общий вид вычислителей с указанием мест нанесения знака утверждения типа и заводского номера представлен на рисунке 1. Цвет корпуса вычислителей всех исполнений может отличаться от представленных на рисунке 1.
Места пломбирования вычислителей представлены на рисунке 2.
Место нанесения заводского номера
Место нанесения знака утверждения типа

Рисунок 1 - Общий вид вычислителей с указанием мест нанесения знака утверждения типа и заводского номера
Вычислитель количества энергоносителей (rtectronic Corrector)

Места
пломбирования

а) Ирга-2/5 в одноканальном и двухканальном исполнении с типом питания 24 В
а) Ирга-2/5 в трехканальном и четырехканальном исполнении с типом питания 220 В
Рисунок 2 - Места пломбирования вычислителей
Программное обеспечение
Программное обеспечение (далее - ПО) разделяется на встроенное и внешнее ПО.
Встроенным ПО вычислителей является ПО, хранящееся в энергонезависимой памяти. Встроенное ПО устанавливается на заводе-изготовителе в процессе производственного цикла и не подлежит изменению на протяжении всего срока эксплуатации. Встроенное ПО выполняет функции аналого-цифрового преобразования электрических сигналов, последующую обработку и вычисление реализованных методик расчёта, и передачу в цифровой форме данных на ПК.
Внешнее ПО «Конфигуратор, ООО «Глобус», 2018» (далее - конфигуратор) включает в себя набор инструментальных и исполнительных программных модулей и является метрологически значимым. Команды и данные, переданные через интерфейсы связи, не оказывают влияние на достоверность результатов измерений.
Внешнее ПО «Ирга Архив. ООО Глобус,2019» не является метрологически значимым и предназначено для получения накопленных архивов из вычислителей.
Уровень защиты ПО от непреднамеренных и преднамеренных изменений «высокий» в соответствии с Рекомендацией Р 50.2.077-2014.
Метрологические характеристики вычислителей нормированы с учетом влияния встроенного и внешнего ПО.
Идентификационные данные ПО приведены в таблице 2.
Таблица 2 - Идентификационные данные ПО
Идентификационные данные (признаки) |
Значение | |
Внешнее ПО |
Встроенное ПО | |
Идентификационное наименование ПО |
Конфигуратор, ООО «Глобус», 2018 |
- |
Номер версии (идентификационный номер) ПО, не ниже |
1.0.0.28 |
1.2.18 |
Цифровой идентификатор ПО (контрольная сумма исполняемого кода) |
- |
0x1623b40f |
Алгоритм вычисления цифрового идентификатора ПО |
- |
CRC-32 |
Примечание - Значение номера версии и цифрового идентификатора встроенного ПО вычислителя указываются в паспорте вычислителей. |
Метрологические и технические характеристики
Таблица 3 -
Наименование характеристики |
Значение |
Диапазон измерений силы постоянного электрического тока, мА |
от 4 до 20 |
Пределы допускаемой приведенной погрешности измерений силы постоянного электрического тока, % |
±0,1 |
Диапазон измерений электрического сопротивления постоянного тока, Ом |
от 20,02 до 400 |
Пределы допускаемой приведенной погрешности измерений электрического сопротивления постоянного тока, % |
±0,1 |
Диапазон измерений электрического сопротивления постоянного тока в температурном эквиваленте от термопреобразователей сопротивления по ГОСТ 6651-2009, °C
|
от -196,53 до +850 от -193,67 до +850 |
Пределы допускаемой абсолютной погрешности измерений электрического сопротивления постоянного тока в температурном эквиваленте от термопреобразователей сопротивления Pt100 (а 0,00385 С"*), 100П (а=0,00391 С"*) по ГОСТ 6651-2009, С в диапазоне рабочих условий эксплуатации:
|
±0,2 ±0,1 ±0,15 |
Диапазон измерений частоты, Гц |
от 2 до 1000 от 100 до 1100 |
Пределы допускаемой относительной погрешности измерений частоты, % |
±0,1 |
Пределы допускаемой абсолютной погрешности хранения формируемой шкалы времени в автономном режиме за сутки, с |
±1,5 |
Примечание - Нормируемым значением для приведенной погрешности является разность между максимальным и минимальным значениями диапазона измерений. |
Таблица 4 - Метрологические характеристики при вычислении реализованных методик расчёта
Наименование характеристики |
Значение |
1 |
2 |
Пределы допускаемой относительной погрешности вычислений расхода и количества жидкостей и газов, обусловленной алгоритмом вычислений в соответствии с ГОСТ 8.586.5-2005 и его программной реализацией, % |
±0,02 |
Пределы допускаемой относительной погрешности вычислений физических свойств на основе данных о плотности при стандартных условиях и содержании азота и диоксида углерода, обусловленной алгоритмом вычислений в соответствии с ГОСТ 30319.2-2015 и его программной реализацией, % |
±0,02 |
Пределы допускаемой относительной погрешности вычислений плотности, энтальпии, энтропии и изобарной теплоёмкости жидкого и газообразного воздуха при температурах от 70 до 1500 К и давлениях от 0,1 до 100 МПа, обусловленной алгоритмом вычислений в соответствии с ГСССД 8-79 и его программной реализацией, % |
±0,02 |
1 |
2 |
Пределы допускаемой относительной погрешности вычислений плотности, фактора сжимаемости, скорости звука, показателя адиабаты, коэффициента динамической вязкости влажных газовых смесей в диапазоне температур от 263 К до 500 К при давлениях до 30 МПа, обусловленной алгоритмом вычислений в соответствии с ГСССД МР 273-2018 и его программной реализацией, % |
±0,02 |
Пределы допускаемой относительной погрешности вычислений плотности, фактора сжимаемости, показателя адиабаты и коэффициента динамической вязкости умеренно сжатых газовых смесей, обусловленной алгоритмом вычислений в соответствии с ГСССД МР 118-2005 и его программной реализацией, % |
±0,02 |
Пределы допускаемой относительной погрешности вычислений основных термодинамических свойств и коэффициентов динамической вязкости и теплопроводности гелия-4 в диапазоне температур 2,5^450 К при давлении 100 МПа, обусловленной алгоритмом вычислений в соответствии с ГСССД МР 121-2006 и его программной реализацией, % |
±0,02 |
Пределы допускаемой относительной погрешности вычислений плотности, энтальпии, показателя адиабаты и коэффициента динамической вязкости воды при температурах 0...1000 °С и давлениях 0,0005...100 МПа на основании таблиц стандартных справочных данных ГСССД 6-89, обусловленной алгоритмом вычислений в соответствии с ГСССД МР 147-2008 и его программной реализацией, % |
±0,02 |
Пределы допускаемой относительной погрешности вычислений плотности, энтальпии, показателя адиабаты и коэффициента динамической вязкости водяного пара при температурах 0...1000 °С и давлениях 0,0005...100 МПа на основании таблиц стандартных справочных данных ГСССД 6-89, обусловленной алгоритмом вычислений в соответствии с ГСССД МР 147-2008 и его программной реализацией, % |
±0,02 |
Пределы допускаемой относительной погрешности вычислений расчёта плотности, фактора сжимаемости, показателя адиабаты и коэффициента динамической вязкости азота, ацетилена, кислорода, диоксида углерода, аммиака, аргона и водорода в диапазоне температур от 200 до 425 К и давлений до 10 МПа, обусловленной алгоритмом вычислений в соответствии с ГСССД МР 134-2007 и его программной реализацией, % |
±0,02 |
Пределы допускаемой относительной погрешности вычислений расчёта плотности, фактора сжимаемости, показателя адиабаты и коэффициента динамической вязкости технически важных газов и смесей при температурах от -40 °C до +60 °C и давлениях до 5 МПа, обусловленной алгоритмом вычислений в соответствии с ГСССД МР 1352007 и его программной реализацией, % |
±0,02 |
Пределы допускаемой относительной погрешности вычислений теплофизических свойств нормального водорода, обусловленной алгоритмом вычислений в соответствии с ГОСТ Р 8.1018-2023 и его программной реализацией, % |
±0,02 |
Таблица 5 - Технические
Наименование характеристики |
Значение |
Параметры электрического питания исполнений с типом питания 220 В:
|
от 85 до 265 от 49 до 51 |
Параметры электрического питания исполнений с типом питания 24 В: - напряжение постоянного тока, В |
от 23 до 25 |
Потребляемая мощность:
|
12,5 5 |
Габаритные размеры (Ширина^Длина^Высота), мм, не более |
265x75x175 |
Масса, кг, не более |
2,3 |
Условия эксплуатации:
|
от -20 до +50 98 |
Таблица 6 - Показатели надежности
Наименование характеристики |
Значение |
Средняя наработка на отказ, ч |
75000 |
Средний срок службы, лет |
15 |
Знак утверждения типа
наносится на переднюю панель корпуса вычислителей в левом нижнем углу типографским способом согласно схеме, указанной на рисунке 1, и на титульные листы паспорта и руководства по эксплуатации типографским способом.
Комплектность средства измерений
Таблица 7 - Комплектность средства измерений
Наименование |
Обозначение |
Количество |
Вычислитель количества энергоносителей Ирга-2 |
В соответствии с исполнением |
1 шт. |
Паспорт |
РДСГ.421412.005.000ПС |
1 экз. |
Руководство по эксплуатации |
РДСГ.421412.005.000РЭ |
1 экз. |
Петли для крепления |
- |
4 шт. |
Сведения о методиках (методах) измерений
приведены в разделе 1 «Описание и работа» руководства по эксплуатации РДСГ.421412.005.000РЭ.
Нормативные документы, устанавливающие требования к средству измерений
Приказ Федерального агентства по техническому регулированию и метрологии от 1 октября 2018 г. № 2091 «Об утверждении государственной поверочной схемы для средств измерений силы постоянного электрического тока в диапазоне от 1^10-16 до 100 А»;
Приказ Федерального агентства по техническому регулированию и метрологии от 30 декабря 2019 г. № 3456 «Об утверждении государственной поверочной схемы для средств измерений электрического сопротивления постоянного и переменного тока»;
Приказ Федерального агентства по техническому регулированию и метрологии от 26 сентября 2022 г. № 2360 «Об утверждении государственной поверочной схемы для средств измерений времени и частоты»;
ТУ 26.51.52-001-22221983-2020 «Вычислитель количества энергоносителей Ирга-2. Технические условия».
Правообладатель
Общество с ограниченной ответственностью «ГЛОБУС»
(ООО «ГЛОБУС»)
ИНН 3123001722
Юридический адрес: 308023, г. Белгород, ул. Садовая, д. 45А, офис 1
Изготовитель
Общество с ограниченной ответственностью «ГЛОБУС» (ООО «ГЛОБУС»)
ИНН 3123001722
Юридический адрес: 308023, г. Белгород, ул. Садовая, д. 45А, офис 1
Адрес места осуществления деятельности: 308023, г. Белгород, ул. Садовая, д. 45А
Испытательный центр
Общество с ограниченной ответственностью «ПРОММАШ ТЕСТ Метрология» (ООО «ПРОММАШ ТЕСТ Метрология»)
Юридический адрес: 119415, г. Москва, пр. Вернадского, д. 41, стр. 1, пом. 263
Адрес места осуществления деятельности: 142300, Московская обл., Чеховский р-н,
г. Чехов, Симферопольское ш., д. 2
Тел.: +7 (495) 108 69 50
E-mail: info@metrologiya.prommashtest.ru
Уникальный номер записи в реестре аккредитованных лиц RA.RU.314164

УТВЕРЖДЕНО приказом Федерального агентства по техническому регулированию
и метрологии
14 августа аг 1685
от « » _ 2025 г. №
Лист № 1
Всего листов 5
Регистрационный № 96148-25
ОПИСАНИЕ ТИПА СРЕДСТВА ИЗМЕРЕНИЙ
Резервуары стальные вертикальные цилиндрические РВС-1000
Назначение средства измерений
Резервуары стальные вертикальные цилиндрические РВС-1000 (далее - резервуары) предназначен для измерения объема нефтепродуктов, а также для их приема, хранения и отпуска.
Описание средства измерений
Принцип действия резервуаров РВС-1000 основан на заполнении их нефтепродуктами до произвольного уровня, соответствующего объему нефти и нефтепродуктов, согласно градуировочным таблицам резервуаров.
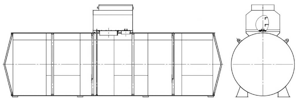
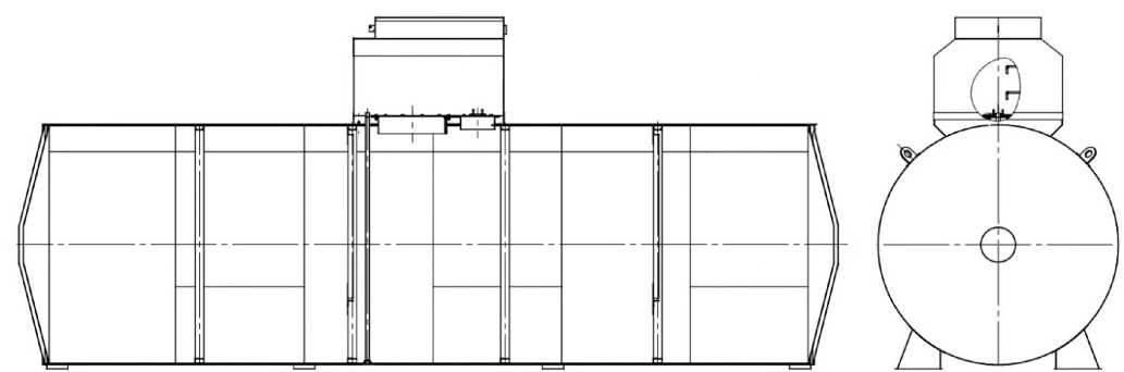
Резервуары стальные вертикальные цилиндрические РВС-1000 представляет собой вертикально установленный стальной сосуд, состоящий из цилиндрической стенки, днища и стационарной крыши.
Резервуары оборудованы приемо-раздаточными устройствами и люками. Заполнение выдача нефти и нефтепродуктов осуществляется через приемо-раздаточные устройства. верхней части резервуаров предусмотрена площадка, предназначенная для удобства безопасности перемещения обслуживающего персонала. По периметру верхней части
и
В
и
резервуаров установлены секции ограждения.
Расположение резервуаров стальных вертикальных цилиндрических РВС-1000 -наземное.
Резервуары стальные вертикальные цилиндрические РВС-1000 с заводскими номерами У-1-6481, У-1-6482, У-1-6483, У-1-6484, У-1-6485, У-1-6487 расположены на территории ООО «ТНП», Томская область, Томский м. р-н, Воронинское с. п., с. Семилужки, ул. Нефтепровод, д.2.
Общий вид резервуаров РВС-1000 представлен на рисунке 1.
Знак поверки наносится в свидетельство о поверке (при наличии) и в градуировочную таблицу.
Пломбирование резервуаров стальных вертикальных цилиндрических РВС-1000 не предусмотрено.
Заводские номера в виде буквенно - цифрового обозначения, нанесены в паспорта и маркировочные таблички резервуаров печатным способом обеспечивающим идентификацию, возможность прочтения и сохранность в процессе эксплуатации резервуаров.
Маркировочные таблички резервуаров представлены на рисунке 2.



Рисунок 1 - Общий вид резервуаров стальных вертикальных цилиндрических РВС-1000

ооо.тнп» | |
Тип резервуара |
РВС -1000 |
Объем |
1000 м* |
Зав. иемер |
¥•10481 |


ООО «те |
1 п» • |
Тип резервуара |
РВС • 1000 |
Объем |
1000 |
Зав. номер |
У-1648В V |


Рисунок 2 - Маркировочные таблички резервуаров РВС-1000
Метрологические и технические характеристики
Таблица 1 - Метрологические характеристики
Наименование характеристики |
Значение |
Номинальная вместимость, м^ |
1000 |
Пределы допускаемой относительной погрешности определения вместимости резервуаров (геометрический метод), % |
±0,2 |
Таблица 2 -Технические
Наименование характеристики |
Значение |
Условия эксплуатации: - температура окружающего воздуха, °С |
от -55 до +40 |
Знак утверждения типа
наносится на титульные листы паспортов печатным способом.
Комплектность средства измерений
Таблица 3 - Комплектность резервуаров
Наименование |
Обозначение |
Количество |
Резервуар стальной вертикальный цилиндрический |
РВС-1000 |
6 шт. |
Резервуар стальной вертикальный цилиндрический РВС-1000. Паспорт |
— |
6 экз. |
Сведения о методиках (методах) измерений
приведены в паспорте (раздел 5 «Заметки по эксплуатации»).
Нормативные документы, устанавливающие требования к средству измерений
Приказ Росстандарта от 26 сентября 2022 г. № 2356 «Об утверждении Государственной поверочной схемы для средств измерений массы и объема жидкости в потоке, объема жидкости и вместимости при статических измерениях, массового и объемного расходов жидкости».
Правообладатель
Общество с ограниченной ответственностью «Томскнефтепереработка»
(ООО «ТНП»)
ИНН: 7014067223
Юридический адрес: 634530, Россия, Томская область, Томский м. р-н, Воронинское с. п., с. Семилужки, ул. Нефтепровод, д. 2, стр. 18, помещ. 5
Изготовитель
Общество с ограниченной ответственностью «Томскнефтепереработка» (ООО «ТНП»)
ИНН: 7014067223
Адрес: 634530, Россия, Томская область, Томский м. р-н, Воронинское с. п., с. Семилужки, ул. Нефтепровод, д. 2, стр. 18, помещ. 5
Испытательный центр
Федеральное бюджетное учреждение «Государственный региональный центр стандартизации, метрологии и испытаний в Томской области» (ФБУ «Томский ЦСМ»)
Адрес: 634012, Россия, Томская область, г. Томск, ул. Косарева, д.17а Уникальный номер записи об аккредитации в реестре аккредитованных лиц RA.RU.313315

УТВЕРЖДЕНО приказом Федерального агентства по техническому регулированию
и метрологии
14 августа аг 1685
от « » _ 2025 г. №
Лист № 1
Всего листов 6
Регистрационный № 96149-25
ОПИСАНИЕ ТИПА СРЕДСТВА ИЗМЕРЕНИЙ
Анализаторы электропроводности ЕС3000
Назначение средства измерений
Анализаторы электропроводности ЕС3000 (далее - анализаторы) предназначены для измерений удельной электропроводности (УЭП) и температуры водных растворов на объектах энергетики, химической, металлургической, фармацевтической и других отраслях промышленности, в сельском хозяйстве, в составе газоочистного и другого промышленного оборудования.
Описание средства измерений
Анализатор - это измерительный прибор, конструктивно состоящий из преобразовательного блока (контроллера) и датчика.
Принцип действия анализатора при измерении удельной электропроводности основан на измерении электрической проводимости раствора, пропорциональной току, проходящему между электродами датчика. При измерении температуры принцип действия основан на измерении сигнала с температурного сопротивления, которое изменяется в зависимости от температуры анализируемой среды.
Внутри датчика установлена четырехэлектродная система, состоящая из первичных и вторичных электродов. Между парой первичных электродов подается переменный ток постоянного напряжения. Вторичные электроды позволяют его регулировать. Напряжение между первичными электродами зависит от активного сопротивления раствора, а значит, от удельной электропроводности. На измерение электропроводности влияет температура, поэтому температурный электрод датчика выполняет функцию температурной компенсации.
Конструктивно преобразовательный блок выполнен в пластиковом корпусе, на лицевой панели которого расположен дисплей и пять клавиш управления, назначение которых зависит от того, какой экран просматривает пользователь. На нижней панели контроллера расположены входы для подключения питания и датчика. Лицевая панель преобразовательного блока открывается для обеспечения доступа к местам подключения датчика и питания. Внешний вид преобразовательного блока представлен на рисунке 1.
Анализатор может быть установлен в панель управления, стену и трубы. Электропитание анализатора осуществляется от источника постоянного тока напряжением 24 В или от сети переменного напряжения 220 В.

Место нанесения заводского номера
Рисунок 1 - Общий вид преобразовательного блока анализатора электропроводности ЕС3000
В зависимости от решаемой аналитической задачи, анализаторы могут быть оснащены датчиками следующих типов:
-
- S-8505-EN1-S10FF,
-
- С-Е204-ЕС6-S10FF.
Общий вид датчиков приведен на рисунке 2. Характеристики применяемых датчиков приведены в таблице 1.

Рисунок 2 - Общий вид и схема датчиков S-8505-EN1-S10FF и С-Е204-ЕС6-S10FF
Таблица 1 -
датчиков
Характеристики |
Тип датчика | |
S-8505-EN1-S10FF |
С-Е204-ЕС6-S10FF | |
Материал |
Нейлон |
Нейлон |
Встроенный температурный зонд |
NTC30К (по умолчанию) / PT1000 (по запросу) |
PT1000 / NTC10К / \ТС30К |
Длина кабеля |
10 м |
5 м |
Заводской номер анализатора в формате буквенно-цифрового обозначения наносится методом печати на информационную табличку, расположенную на боковой панели контроллера.
Конструкцией анализаторов предусмотрена пломбировка корпуса путем приклеивания пломбировочной наклейки изготовителя на верхний левый крепежный винт внутри корпуса преобразовательного блока. Ограничение доступа к местам настройки (регулировки) осуществляется путем нанесения мастичной пломбы с изображением знака поверки на правый верхний крепежный винт корпуса преобразовательного блока, расположенный под лицевой панелью. Место пломбировки анализатора указано на рисунке 3.
Место нанесения пломбы изготовителя

Место нанесения знака поверки в целях ограничения доступа к местам настройки (регулировки)
Рисунок 3 - Место нанесения знака поверки в целях ограничения доступа к местам настройки (регулировки) и места пломбирования внутри преобразовательного блока
Программное обеспечение
В анализаторе имеется встроенное программное обеспечение.
Программное обеспечение предназначено для преобразования сигнала от датчиков в единицы УЭП и передачи информации на преобразовательный блок, а также для управления датчиками, хранения калибровочных и других настроек.
Программное обеспечение устанавливается в энергонезависимую память изготовителем, и не может быть модифицировано или загружено через какой-либо интерфейс пользователем. Влияние встроенного программного обеспечения учтено при нормировании метрологических характеристик анализатора
Уровень защиты программного обеспечения «высокий» в соответствии с Р 50.2.077-2014.
Идентификационные данные программного обеспечения представлены в таблице 2.
Таблица 2 -
обеспечения
данные
Идентификационные данные (признаки) |
Значение |
Идентификационное наименование ПО |
HW |
Номер версии |
не ниже V1.00 |
Цифровой идентификатор ПО |
SW |
Метрологические и технические характеристики
Метрологические и технические характеристики анализаторов приведены в таблицах 3 - 5.
Таблица 3 - Основные
Наименование характеристики |
Значение |
Диапазон показаний УЭП, мСм/см |
от 0 до 2000 |
Диапазон измерений УЭП:
|
от 10 мкСм/см до 500 мСм/см от 10 мкСм/см до 300 мСм/см |
Диапазон измерений температуры, °С |
от 0 до +50 |
Пределы допускаемой приведенной1) погрешности измерений УЭП, % |
±1 |
Пределы допускаемой абсолютной погрешности измерений температуры, °С |
±0,2 |
1) Нормирующее значение - разность между максимальным и минимальным значениями диапазона измерений |
Таблица 4 - Основные технические
Наименование характеристики |
Значение |
Параметры электрического питания: - напряжение переменного тока, В |
от 90 до 260 |
- напряжение постоянного тока, В |
24 |
- потребляемая мощность, Вт, не более |
5 |
Параметры электрического присоединения |
5А / 250В переменного тока 5А / 30В постоянного тока |
Габаритные размеры преобразовательного блока, мм, не более: - длина (глубина) |
107 |
- ширина |
144 |
- высота |
144 |
Масса преобразовательного блока, кг, не более |
0,85 |
Условия эксплуатации: - температура окружающей среды, °С |
от 0 до +70 |
- относительная влажность воздуха, %, не более |
70 |
- атмосферное давление, кПа |
от 84 до 106,7 |
Степень защиты от пыли и влаги по ГОСТ 14254-2015 |
IP65 |
Таблица 5 - Показатели надежности
Наименование характеристики |
Значение |
Средняя наработка на отказ, ч |
100000 |
Средний срок службы, лет |
12 |
Знак утверждения типа
наносится типографским способом на титульный лист руководства по эксплуатации.
Комплектность средства измерений
Таблица 6 - Комплектность поставки
Наименование |
Количество, шт./экз. |
Анализатор электропроводности ЕС3000: - преобразовательный блок |
1 |
- датчик |
1 |
Руководство по эксплуатации анализатора электропроводности ЕС3000 |
1 |
Краткое руководство пользователя датчика |
1 |
Лист заводской проверки и калибровки (Quality Control Form) |
1 |
Сведения о методиках (методах) измерений
приведены в разделе 7.0 «Использование по назначению» руководства по эксплуатации.
Нормативные документы, устанавливающие требования к средству измерений регулированию и поверочной схемы
Приказ Федерального агентства по техническому от 27.03.2025 г. № 609 «Об утверждении Государственной измерений удельной электрической проводимости жидкостей»;
Приказ Федерального агентства по техническому от 19.11.2024 г. № 2712 «Об утверждении Государственной измерений температуры»;
регулированию и поверочной схемы
метрологии для средств
метрологии
для средств
Техническая документация фирмы «HYDRO-AIR PROCESS INSTRUMENTS GLOBAL».
Правообладатель
«HYDRO-AIR PROCESS INSTRUMENTS GLOBAL», Малайзия
Адрес: 100, Jalan Pusat Perniagaan 1, Pusat Perniagaan Raja Uda, 12300, Butterworth, Penang, Malaysia
Изготовитель
«HYDRO-AIR PROCESS INSTRUMENTS GLOBAL», Малайзия
Адрес: 100, Jalan Pusat Perniagaan 1, Pusat Perniagaan Raja Uda, 12300, Butterworth, Penang, Malaysia
Испытательный центр
Федеральное бюджетное учреждение «Г осударственный региональный центр стандартизации, метрологии и испытаний в Нижегородской области» (ФБУ «Нижегородский ЦСМ»)
Адрес: Россия, 603950 г. Нижний Новгород, ул. Республиканская, д. 1
Тел. 8(800) 200-22-14
E-mail: mail@nncsm.гu
Web-сайт: http://www.nncsm.ru
Уникальный номер записи в реестре аккредитованных лиц 30011-13

УТВЕРЖДЕНО приказом Федерального агентства по техническому регулированию
и метрологии
от « '14 » 2025 г. № сс85
Лист № 1
Всего листов 11
коммерческого
Регистрационный № 96150-25
ОПИСАНИЕ ТИПА СРЕДСТВА ИЗМЕРЕНИЙ
Система автоматизированная информационно-измерительная учета электроэнергии (АИИС КУЭ) ООО «Белла»
Назначение средства измерений
Система автоматизированная информационно-измерительная коммерческого учета электроэнергии (АИИС КУЭ) ООО «Белла» (далее - АИИС КУЭ) предназначена для измерений активной и реактивной электроэнергии, сбора, обработки, хранения и передачи полученной информации.
Описание средства измерений
АИИС КУЭ представляет собой многофункциональную, многоуровневую автоматизированную систему с централизованным управлением и распределённой функцией измерений.
АИИС КУЭ включает в себя следующие уровни:
-
1- й уровень - уровень - измерительно-информационные комплексы (далее - ИИК), которые включают в себя трансформаторы тока (далее - ТТ), трансформаторы напряжения (далее - ТН) и счетчики активной и реактивной электроэнергии (далее - счетчики), вторичные измерительные цепи и технические средства приема-передачи данных.
-
2- й уровень - измерительно-вычислительный комплекс электроустановки (далее - ИВКЭ), включающий в себя устройство сбора и передачи данных (далее - УСПД) ИВКЭ, каналообразующую аппаратуру.
-
3- й уровень - информационно-вычислительный комплекс (ИВК), включающий в себя коммуникационный сервер ПАО «Россети МР» с программным обеспечением (ПО) «АльфаЦЕНТР», устройство синхронизации времени УСВ-3/ сервер точного времени СТВ-01 (далее - УССВ), коммуникационный сервер ООО «Энергопромсбыт» и сервер базы данных ООО «Энергопромсбыт» с ПК «Энергосфера», устройство синхронизации времени УСВ-3 (далее - УСВ-3), технические средства для организации локальной вычислительной сети и разграничения прав доступа к информации.
Первичные токи и напряжения трансформируются измерительными трансформаторами в аналоговые сигналы низкого уровня, которые по проводным линиям связи поступают на соответствующие входы электронного счетчика электрической энергии. В счетчике мгновенные значения аналоговых сигналов преобразуются в цифровой сигнал. По мгновенным значениям силы электрического тока и напряжения в микропроцессоре счетчика вычисляются мгновенные значения активной и полной мощности, которые усредняются за период 0,02 с. Средняя за период реактивная мощность вычисляется по средним за период значениям активной и полной мощности.
Электрическая энергия, как интеграл по времени от средней за период 0,02 с мощности, вычисляется для интервалов времени 30 мин.
Средняя активная (реактивная) электрическая мощность вычисляется как среднее значение мгновенных значений мощности на интервале времени усреднения 30 мин.
Для ИК №№ 1, 2 цифровой сигнал с выходов счетчиков по проводным линиям связи поступает на УСПД, где осуществляется накопление и хранение поступающей информации, а также отображение информации по подключенным к УСПД устройствам. Далее измерительная информация от УСПД по защищённому каналу передачи данных (локальная сеть ПАО «Россети МР») поступает на коммуникационный сервер ПАО «Россети МР», где осуществляется обработка измерительной информации, в частности вычисление электрической энергии и мощности с учетом коэффициентов трансформации ТТ и ТН, формирование и хранение поступающей информации, оформление отчетных документов.
От коммуникационного сервера ПАО «Россети МР» информация в виде xml-файлов установленных форматов поступает на коммуникационный сервер ООО «Энергопромсбыт» по каналу связи сети Internet.
Для измерительных каналов (ИК) №№ 3, 4 цифровой сигнал с выходов счетчиков через коммуникационное оборудование (GPRS терминал) поступает на коммуникационный сервер ООО «Энергопромсбыт». На верхнем уровне системы выполняется обработка измерительной информации, в частности вычисление электроэнергии и мощности с учетом коэффициентов трансформации, формирование и хранение поступающей информации на сервере базы данных ООО «Энергопромсбыт», оформление отчетных документов.
Передача информации производится через удаленный АРМ субъекта ОРЭМ или от коммуникационного сервера ООО «Энергопромсбыт» верхнего уровня системы в организации-участники оптового рынка электрической энергии и мощности, в том числе в АО «АТС», АО «СО ЕЭС» и смежным субъектам, через каналы связи с протоколом TCP/IP сети Internet в виде xml-файлов, установленных форматов, в соответствии с Приложением 11.1.1 к Положению о порядке получения статуса субъекта оптового рынка и ведения реестра субъектов оптового рынка электрической энергии и мощности (ОРЭМ) с использованием электронной подписи субъекта рынка. Передача результатов измерений, состояния средств измерений по группам точек поставки производится с верхнего уровня настоящей системы или с АРМ энергосбытовой организации по каналу связи с протоколом TCP/IP сети Internet.
Коммуникационный сервер ООО «Энергопромсбыт» имеет возможность принимать измерительную информацию в виде xml-файлов установленных форматов от ИВК прочих АИИС КУЭ, зарегистрированных в Федеральном информационном фонде по обеспечению единства измерений, и передавать всем заинтересованным субъектам ОРЭМ.
АИИС КУЭ имеет систему обеспечения единого времени (СОЕВ), которая охватывает уровень ИИК, ИВКЭ и ИВК.
Для ИК № 1, 2 устройство синхронизации времени УСВ-3 (основное) и сервер точного времени СТВ-01 (резервный) обеспечивают передачу шкалы времени, синхронизированной по сигналам глобальных навигационных спутниковых систем с национальной шкалой координированного времени РФ UTC(SU). При этом допускается, что в работе находится только УСВ-3 (основное), а сервер точного времени СТВ-01 (резервный) используется как резервное устройство синхронизации времени. Сравнение шкалы времени коммуникационного сервера ПАО «Россети МР» со шкалой времени УСВ-3 осуществляется 1 раз в час. Независимо от величины расхождений проводится коррекция шкалы времени коммуникационного сервера ПАО «Россети МР».
Сравнение шкалы времени УСПД со шкалой времени коммуникационного сервера ПАО «Россети МР» осуществляется при каждом сеансе связи с УСПД, но не реже 1 раза в сутки. При наличии расхождения шкал времени коммуникационного сервера ПАО «Россети МР» и УСПД равном или более ±2 с, проводится коррекция шкалы времени УСПД.
Сравнение шкалы времени счетчиков со шкалой времени УСПД осуществляется при каждом сеансе связи с УСПД, но не реже 1 раза в сутки. При наличии расхождения шкал времени УСПД и счетчиков равном или более ±2 с, проводится коррекция шкал времени счетчиков.
Для ИК № 3, 4 УСВ-3 обеспечивает передачу шкалы времени, синхронизированной по сигналам глобальных навигационных спутниковых систем с национальной шкалой координированного времени РФ UTC(SU). Сравнение шкалы времени коммуникационного сервера ООО «Энергопромсбыт» со шкалой времени УСВ-3 осуществляется 1 раз в час. При наличии расхождения шкал времени УСВ-3 и коммуникационного сервера ООО «Энергопромсбыт» равном или более ±1 с, проводится коррекция шкалы времени коммуникационного сервера ООО «Энергопромсбыт».
Сравнение шкалы времени счетчиков со шкалой времени коммуникационного сервера ООО «Энергопромсбыт» осуществляется при каждом сеансе связи со счетчиками, но не реже 1 раза в сутки. При наличии расхождения шкал времени коммуникационного сервера ООО «Энергопромсбыт» и счетчиков равном или более ±1 с, проводится коррекция шкал времени счетчиков, коррекция осуществляется не чаще 1 раза в сутки.
Журналы событий счетчиков электроэнергии содержат сведения о времени и величине (дата, часы, минуты, секунды) коррекции шкал времени счетчиков.
Журналы событий серверов и УСПД содержит сведения о времени (дата, часы, минуты, секунды) коррекции часов указанных устройств и расхождении времени в секундах корректируемого и корректирующего устройств в момент, непосредственно предшествующий корректировке.
Нанесение заводского номера на конструкцию средства измерений не предусмотрено. АИИС КУЭ присвоен заводской номер 001. Заводской номер указывается в формуляре на АИИС КУЭ типографским способом. Формат, способ и места нанесения заводских номеров измерительных компонентов, входящих в состав ИК АИИС КУЭ, приведены в формуляре на АИИС КУЭ.
Нанесение знака поверки на АИИС КУЭ не предусмотрено.
Программное обеспечение
В АИИС КУЭ используется программное обеспечение ПО «АльфаЦЕНТР» и ПО ПК «Энергосфера», в состав которых входят модули, указанные в таблице 1 ПО «АльфаЦЕНТР» и ПО ПК «Энергосфера» обеспечивают защиту программного обеспечения и измерительной информации паролями в соответствии с правами доступа. Средством защиты данных при передаче является кодирование данных, обеспечиваемое программными средствами ПО «АльфаЦЕНТР» и ПО ПК «Энергосфера».
Таблица 1 - Идентификационные данные ПО
Идентификационные данные (признаки) |
Значение |
1 |
2 |
ПО «АльфаЦЕНТР (коммуникационный сервер ПАО |
» «Россети МР») |
Идентификационное наименование ПО |
ac metrology.dU |
Номер версии (идентификационный номер) ПО |
не ниже 12.1 |
Цифровой идентификатор ПО |
3e736b7f380863f44cc8e6f7bd211c5 4 |
Алгоритм вычисления цифрового идентификатора ПО |
MD5 |
таблицы 1
1 |
2 |
ПК «Энергосфера» (коммуникационный сервер и сервер базы данных ООО «Энергопромсбыт») | |
Идентификационное наименование ПО |
pso metr.dU |
Номер версии (идентификационный номер) ПО |
не ниже 7.0 |
Цифровой идентификатор ПО |
cbeb6f6ca69318bed976e08a2bb7814 b |
Алгоритм вычисления цифрового идентификатора ПО |
MD5 |
ПО «АльфаЦЕНТР» и ПО ПК «Энергосфера» не влияют на метрологические характеристики ИК АИИС КУЭ.
Уровень защиты ПО от непреднамеренных и преднамеренных изменений - «высокий» в соответствии с Р 50.2.077-2014.
Метрологические и технические характеристики
Состав ИК АИИС КУЭ и их основные метрологические характеристики приведены в таблице 2.
Таблица 2 - Состав ИК АИИС КУЭ и их основные
о S о к |
Наименование ИК |
Измерительные компоненты |
Вид электроэнергии |
Метрологические характеристики ИК | ||||
ТТ |
ТН |
Счётчик |
УСПД/ УССВ |
Границы основной погрешности, (5), % |
Границы погрешности в рабочих условиях, (5), % | |||
1 |
ПС 110 кВ Сирена, РУ 6 кВ, секция I Б 6 кВ, яч. 8, КЛ 6 кВ |
ТЛК-СТ Кл. т. 0,2S Ктт 1500/5 Рег. № 58720-14 |
НАМИ-10-95 УХЛ2 Кл. т. 0,5 Ктн 6000/100 Рег. № 20186-05 |
А1802RALXQ- P4GB-DW-4 Кл. т. 0,2S/0,5 Рег. № 31857-11 |
RTU-327L Рег. № 41907-09/ УСВ-3 Рег. № 64242-16 СТВ-01 Рег. № 86603-22 |
активная реактивная |
±0,8 ±1,7 |
±1,6 ±2,6 |
2 |
ПС 110 кВ Сирена, РУ-6 кВ, секция II А 6 кВ, яч.45, фид. №45 |
ТЛК-СТ Кл. т. 0,2S Ктт 1500/5 Рег. № 58720-14 |
НАМИТ-10 Кл. т. 0,5 Ктн 6000/100 Рег. № 16687-07 |
А1802RALXQ- P4GB-DW-4 Кл. т. 0,2S/0,5 Рег. № 31857-11 |
активная реактивная |
±0,8 ±1,7 |
±1,6 ±2,6 | |
3 |
РП-2 6 кВ, 1 СШ 6 кВ, яч. 6 |
ТЛО-10 Кл. т. 0,5S Ктт 1500/5 Рег. № 25433-11 |
НАЛИ-НТЗ Кл. т. 0,5 Ктн 6300/100 Рег. № 70747-18 |
СЭТ-4ТМ.03М Кл. т. 0,2S/0,5 Рег. № 36697-17 |
УСВ-3 Рег. № 64242-16 |
активная реактивная |
±1,0 ±2,6 |
±2,9 ±4,7 |
4 |
РП-2 6 кВ, 2 СШ 6 кВ, яч. 11 |
ТЛО-10 Кл. т. 0,5S Ктт 1500/5 Рег. № 25433-11 |
НАЛИ-НТЗ Кл. т. 0,5 Ктн 6300/100 Рег. № 70747-18 |
СЭТ-4ТМ.03М Кл. т. 0,2S/0,5 Рег. № 36697-17 |
активная реактивная |
±1,0 ±2,6 |
±2,9 ±4,7 |
Продолжение таблицы 2_____________________________________________________________________________
Пределы допускаемых смещений шкалы времени СОЕВ АИИС КУЭ относительно национальной шкалы времени UTC(SU), (А), с______________________________________________________________________________________________
±5
Примечания
-
1 Характеристики погрешности ИК даны для измерений электроэнергии и средней мощности (получасовой).
-
2 В качестве характеристик относительной погрешности указаны границы интервала, соответствующие вероятности 0,95.
-
3 Погрешность в рабочих условиях указана для cos9 = 0,8 инд, 1=0,02 1ном и температуры окружающего воздуха в месте расположения счетчиков электроэнергии для ИК № 1 - 4 от 5 °C до плюс 35 °C.
-
4 Допускается замена ТТ, ТН и счетчиков на аналогичные утвержденных типов с метрологическими характеристиками не хуже, чем у перечисленных в таблице 2, при условии, что Предприятие-владелец АИИС КУЭ не претендует на улучшение указанных в таблице 2 метрологических характеристик.
-
5 Допускается замена УСПД, УССВ на аналогичные утвержденных типов.
-
6 Допускается замена серверов АИИС КУЭ без изменения используемого ПО (при условии сохранения цифрового идентификатора ПО).
-
7 Допускается замена ПО на аналогичное, с версией, не ниже указанной в описании типа средств измерений.
-
8 Замена оформляется техническим актом в установленном на Предприятии-владельце АИИС КУЭ порядке с внесением изменений в эксплуатационные документы. Технический акт хранится совместно с эксплуатационными документами на АИИС КУЭ как их неотъемлемая часть.
Основные технические характеристики ИК приведены в таблице 3.
Таблица 3 - Основные технические
ИК
Наименование характеристики |
Значение |
1 |
2 |
Количество ИК |
4 |
Нормальные условия: параметры сети: | |
- напряжение, % от Uном |
от 99 до 101 |
- ток, % от Iном |
от 100 до 120 |
- частота, Гц |
от 49,85 до 50,15 |
- коэффициент мощности cos9 |
0,9 |
- температура окружающей среды, оС |
от +21 до +25 |
Условия эксплуатации: параметры сети: | |
- напряжение, % от Uном |
от 90 до 110 |
- ток, % от Iном |
от 2 до 120 |
- коэффициент мощности cos9 |
от 0,5 инд до 0,8 емк |
- частота, Гц |
от 49,6 до 50,4 |
- температура окружающей среды для ТТ и ТН, оС |
от -45 до +40 |
- температура окружающей среды в месте расположения | |
счетчиков, оС |
от +5 до +35 |
- температура окружающей среды в месте расположения | |
серверов, оС |
от +10 до +30 |
Надежность применяемых в АИИС КУЭ компонентов: Счетчики: - среднее время наработки на отказ, ч, не менее: | |
для счетчика А1802RALXQ-P4GB-DW-4 |
120000 |
для счетчика СЭТ-4ТМ.03М |
220000 |
- среднее время восстановления работоспособности, ч |
2 |
УСПД: - среднее время наработки на отказ не менее, ч | |
для RTU-327L |
250000 |
- среднее время восстановления работоспособности, ч |
24 |
УСВ-3: | |
среднее время наработки на отказ, ч, не менее среднее время |
45000 |
восстановления работоспособности, ч |
2 |
СТВ-01 | |
среднее время наработки на отказ, ч, не менее среднее время |
100000 |
восстановления работоспособности, ч |
2 |
Сервер: | |
- среднее время наработки на отказ, ч, не менее |
70000 |
- среднее время восстановления работоспособности, ч |
1 |
1 |
2 |
Глубина хранения информации | |
Счетчики: | |
- тридцатиминутный профиль нагрузки в двух направлениях, | |
сут, не менее |
113 |
- при отключении питания, лет, не менее |
45 |
УСПД: | |
- суточные данные о тридцатиминутных приращениях | |
электропотребления по каждому каналу и электропотребление за | |
месяц по каждому каналу, суток, не менее |
210 |
- сохранение информации при отключении питания, лет, не | |
менее |
5 |
Сервер: | |
- хранение результатов измерений и информации состояний | |
средств измерений, лет, не менее |
3,5 |
Надежность системных решений:
-
- защита от кратковременных сбоев питания сервера и УСПД с помощью источника бесперебойного питания;
-
- резервирование каналов связи: информация о результатах измерений может передаваться в организации-участники оптового рынка электроэнергии с помощью электронной почты и сотовой связи.
В журналах событий фиксируются факты:
-
- журнал счетчика:
-
- параметрирования;
-
- пропадания напряжения;
-
- коррекции времени в счетчике;
-
- результат самодиагностики;
-
- перерывы питания;
-
- журнал УСПД:
-
- параметрирования;
-
- пропадания напряжения;
-
- коррекции времени в счетчике и УСПД;
-
- пропадание и восстановление связи со счетчиком;
-
- результат самодиагностики;
-
- перерывы питания;
-
- журнал серверов:
-
- параметрирования;
-
- пропадания напряжения;
-
- коррекции времени в счетчиках, УСПД и сервере БД;
-
- пропадание и восстановление связи со счетчиком;
-
- результат самодиагностики;
-
- перерывы питания.
Защищённость применяемых компонентов:
-
- механическая защита от несанкционированного доступа и пломбирование:
-
- счетчика;
-
- промежуточных клеммников вторичных цепей напряжения;
-
- испытательной коробки;
-
- УСПД;
-
- сервера;
- защита на программном уровне информации при хранении, передаче, параметрировании:
-
- счетчика;
-
- УСПД;
-
- сервера.
Возможность коррекции времени в:
-
- счетчиках (функция автоматизирована);
-
- УСПД (функция автоматизирована);
-
- ИВК (функция автоматизирована).
Возможность сбора информации:
-
- о результатах измерений (функция автоматизирована).
Цикличность:
-
- измерений 30 мин (функция автоматизирована);
-
- сбора 30 мин (функция автоматизирована).
Знак утверждения типа
наносится на титульный лист формуляра АИИС КУЭ типографским способом.
Комплектность средства измерений
Комплектность АИИС КУЭ представлена в таблице 4.
Таблица 4 - Комплектность АИИС КУЭ
Наименование |
Обозначение |
Количество, шт./экз. |
Трансформатор тока |
ТЛК-СТ |
4 |
Трансформатор тока |
ТЛО-10 |
6 |
Трансформатор напряжения |
НАМИ-10-95 УХЛ2 |
1 |
Трансформатор напряжения |
НАМИТ-10 |
1 |
Трансформатор напряжения |
НАЛИ-НТЗ |
2 |
Счётчик электрической энергии многофункциональный |
A1802RALXQ-P4GB-DW- 4 |
2 |
Счётчик электрической энергии многофункциональный |
СЭТ-4ТМ.03М |
2 |
Сервер точного времени |
СТВ-01 |
1 |
Устройство сбора и передачи данных |
RTU-327L |
1 |
Устройство синхронизации времени |
УСВ-3 |
2 |
Программное обеспечение |
ПК «Энергосфера» |
1 |
Программное обеспечение |
«АльфаЦЕНТР» |
1 |
Формуляр |
СНДЛ.411711.218.ЭД.ФО |
1 |
Сведения о методиках (методах) измерений
приведены в документе «Методика измерений электрической энергии и мощности с использованием системы автоматизированной информационно-измерительной коммерческого учета электроэнергии (АИИС КУЭ) ООО «Белла», аттестованном ООО «Спецэнергопроект», г. Москва. Уникальный номер записи об аккредитации в реестре аккредитованных лиц RA.RU.312236.
Нормативные документы, устанавливающие требования к средству измерений
ГОСТ 22261-94 «Средства измерений электрических и магнитных величин. Общие технические условия»;
ГОСТ Р 59793-2021 «Информационная технология. Комплекс стандартов на автоматизированные системы. Автоматизированные системы. Стадии создания»;
ГОСТ Р 8.596-2002 «ГСИ. Метрологическое обеспечение измерительных систем. Основные положения».
Правообладатель
Общество с ограниченной ответственностью «БЕЛЛА» (ООО «БЕЛЛА»)
ИНН 5011021499
Юридический адрес: 140301, Московская обл., г.о. Егорьевск, г Егорьевск, ул. Промышленная, д. 9
Телефон: +7 (495) 726-55-25
E-mail: e.rubcova@bella-tzmo.ru
Изготовитель
Общество с ограниченной ответственностью «Энергопромсбыт»
(ООО «Энергопромсбыт»)
ИНН 7722781966
Адрес: 111250, г. Москва, пр-д. завода «Серп и Молот», д. 6, корп. 1, помещ. 13 Телефон: +7 (495) 664-23-38
E-mail: info@enersbyt.ru
Испытательный центр
Общество с ограниченной ответственностью «Спецэнергопроект»
(ООО «Спецэнергопроект»)
Адрес: 115419, г. Москва, ул. Орджоникидзе, д. 11, стр. 3, этаж 4, помещ. I, ком. 6, 7 Телефон: +7 (495) 410-28-81
E-mail: info@sepenergo.ru
аккредитации в реестре аккредитованных лиц
Уникальный номер записи об
RA.RU.312429

УТВЕРЖДЕНО приказом Федерального агентства по техническому регулированию
и метрологии
от « _ » 2025 г. №
Лист № 1
Всего листов 5
Регистрационный № 96151-25
ОПИСАНИЕ ТИПА СРЕДСТВА ИЗМЕРЕНИЙ
Приборы контроля чистоты жидкости ПКЖ-904М
Назначение средства измерений
Приборы контроля чистоты жидкости ПКЖ-904М (далее - приборы) предназначены для измерений счетной концентрации взвешенных частиц механических примесей в технологических и горюче-смазочных жидкостях (маслах).
Описание средства измерений
Принцип действия прибора основан на измерении ослабления оптического излучения при пропускании через него жидкости со взвешенными в ней частицами. Проба жидкости определенного объема пропускается через освещенную проточную измерительную ячейку. Частицы, попадая в освещенный объем, затеняют фотоприемник. Соотношение площадей освещенной и затененной областей пересчитывается в размер частицы, а количество последовательных затенений фотоприемника определяет количество частиц в определенном объеме пробы.
Конструктивно прибор представляет собой моноблок, в корпусе которого расположены измерительный датчик (съемный) и электронный узел. При эксплуатации на пробоотборный вход прибора устанавливается пробоотборник, куда заливается проба.
Основными элементами измерительного датчика являются: проточная ячейка, источник света (светодиод), оптическая система, формирующая световой луч для освещения проточной ячейки, и фотоприемник.
Электронный узел осуществляет обработку измерительных сигналов с фотоприемника, отображение и хранение данных, а также обеспечивает управление аппаратной частью прибора.
Пробоотборник представляет собой колбу в виде воронки с герметичной крышкой, которая является также устройством поддавливания пробы (при необходимости). Для этого в крышке предусмотрены: штуцер для подвода воздуха под давлением, штуцер для подключения манометра, контролирующего давление воздуха, и дренажный штуцер.
Прибор имеет встроенный жидкокристаллический дисплей для отображения данных, расположенный на верхней панели корпуса. Результаты измерений отображаются в виде значений счетной концентрации частиц в жидкости по размерным диапазонам частиц, а также в виде класса чистоты жидкости по ГОСТ 17216-2001.
Корпус измерительного датчика выполнен из нержавеющей стали, оптические детали -из кварцевого стекла, материалы пробоотборника - нержавеющая сталь и поликарбонат.
Питание прибора осуществляется от сети переменного тока.
По способу эксплуатации приборы являются переносным оборудованием. Для этого на приборе предусмотрена соответствующая ручка.
Общий вид прибора с указанием места нанесения знака утверждения типа приведен на рисунке 1.

Идентификационные данные (наименование и обозначение типа, заводской номер, дата изготовления, данные об изготовителе) включены в маркировку прибора. Маркировка наносится методом термопечати на пластиковую или металлическую табличку, которая крепится клеевым или винтовым способом на заднюю панель прибора, как показано на рисунке 1. Заводской номер указывается в цифровом формате (не менее четырех знаков). Маркировка прибора показана на рисунке 2. _________________________________

Прибор контроля чистоты жидкости ПКЖ>9(ММ
f--------------------------
Место нанесения заводского номера \___________________________

2234 25.04.24
Рисунок 2 - Маркировка прибора
Опломбирование приборов и нанесение знака поверки на приборы не предусмотрены.
Программное обеспечение
Приборы имеют встроенное программное обеспечение (далее - ПО), являющееся полностью метрологически значимым. Основные функции встроенного ПО: обработка измерительных сигналов, отображение и хранение, а также управление работой прибора. Идентификационные данные встроенного ПО приведены в таблице 1.
Таблица 1 -
ПО
данные
Идентификационные данные (признаки) |
Значение |
Идентификационное наименование ПО |
- |
Номер версии (идентификационный номер) ПО |
не ниже PKG25.01.001 |
Уровень защиты встроенного ПО от преднамеренных и непреднамеренных изменений соответствует уровню «средний» по Р 50.2.077-2014.
Метрологические и технические характеристики
Таблица 2 - Метрологические характеристики
Наименование характеристики |
Значение |
Диапазон измерений счетной концентрации взвешенных частиц в жидкости, частиц/100 см3 |
от 100 до 150000 |
Пределы допускаемой относительной погрешности измерений счетной концентрации взвешенных частиц в жидкости, % |
±30 |
Таблица 3 - Основные технические
Наименование характеристики |
Значение |
Наименьший размер регистрируемых взвешенных частиц в жидкости, мкм |
5 |
Параметры электрического питания от сети переменного тока: - напряжение переменного тока, В |
от 198 до 242 |
- частота переменного тока, Гц |
от 49 до 51 |
Габаритные размеры, мм, не более: - высота без пробоотборника/с пробоотборником |
220/600 |
- ширина |
240 |
- длина |
320 |
Масса без пробоотборника/с пробоотборником, кг, не более |
5,0/6,0 |
Условия эксплуатации: - температура окружающего воздуха, °С |
от +15 до +35 |
- относительная влажность окружающего воздуха при температуре плюс 20 °С, %, не более |
80 |
- атмосферное давление, кПа |
от 84,0 до 106,7 |
Знак утверждения типа
наносится непосредственно на прибор и на титульные листы руководства по эксплуатации и паспорта прибора методом компьютерной графики.
Комплектность средства измерений
Таблица 4 - Комплект поставки
Наименование |
Обозначение |
Количество |
Прибор контроля чистоты жидкости |
ПКЖ-904М |
1 шт. |
Штатив* |
72609.950.07.000 |
1 шт. |
Пробоотборник |
72609.950.11.000 |
1 шт. |
Узел поддавливания |
72609.950.12.000 |
1 шт. |
Трубка |
72609.950.00.850 |
2 шт. |
Кабель соединительный* |
72609.950.30.010 |
1 шт. |
Кабель сетевой |
- |
1 шт. |
Манометр 150кПа МТП-4 |
- |
1 шт. |
Руководство по эксплуатации |
72609.950.00.000 РЭ |
1 экз. |
Паспорт |
72609.950.00.000 ПС |
1 экз. |
*Входят в комплектность, при необходимости удаленного отбора пробы |
Сведения о методиках (методах) измерений
приведены в разделе 4 «Использование изделия по назначению» документа 72609.950.00.000 РЭ
«Прибор контроля чистоты жидкости ПКЖ-904М. Руководство по эксплуатации».
Нормативные документы, устанавливающие требования к средству измерений Приказ Росстандарта от 30.12.2021 № 3105 «Об
измерений дисперсных
поверочной схемы для средств и порошкообразных материалов»;
ТУ 26.51.53-140-07548215-2024 «Прибор контроля Технические условия».
утверждении Государственной параметров аэрозолей, взвесей
чистоты жидкости ПКЖ-904М.
Правообладатель
Открытое акционерное общество «Научно-исследовательский технологический институт «НИТИ-Тесар»
(ОАО «НИТИ-Тесар»)
ИНН 6455003849
Адрес юридического лица: 410071, г. Саратов, ул. Шелковичная, д. 186
Изготовитель
Открытое акционерное общество «Научно-исследовательский технологический институт «НИТИ-Тесар»
(ОАО «НИТИ-Тесар»)
ИНН 6455003849
Адрес: 410071, г. Саратов, ул. Шелковичная, д. 186
Испытательный центр
Федеральное государственное унитарное предприятие «Всероссийский научно-исследовательский институт физико-технических и радиотехнических измерений»
(ФГУП «ВНИИФТРИ»)
Адрес юридического лица: 141570, Московская обл., г. Солнечногорск, пгт. Менделеево, промзона ФГУП «ВНИИФТРИ», к. 11
Адрес места осуществления деятельности: 141570, Московская обл., г. Солнечногорск, пгт. Менделеево, промзона ФГУП «ВНИИФТРИ», к. 11
Уникальный номер об аккредитации в реестре аккредитованных лиц 30002-13

УТВЕРЖДЕНО приказом Федерального агентства по техническому регулированию
и метрологии
14 августа аг 1685
от « » _ 2025 г. №
Лист № 1
Всего листов 3
Регистрационный № 96152-25
ОПИСАНИЕ ТИПА СРЕДСТВА ИЗМЕРЕНИЙ
Резервуар горизонтальный стальной цилиндрический РГП 25-1-1-О-У
Назначение средства измерений
Резервуар горизонтальный стальной цилиндрический РГП 25-1-1-О-У
(далее - резервуар) предназначен для измерений объема нефти и нефтепродуктов, а также для их приема, хранения и отпуска.
Описание средства измерений
Тип резервуара - горизонтальный стальной цилиндрический, номинальной вместимостью 25 м3 подземного расположения.
Принцип действия резервуара основан на заполнении его нефтью или нефтепродуктом до определенного уровня, соответствующего заданному значению объема.
Резервуар представляет собой горизонтально расположенный цилиндрический стальной сосуд с днищами.
Заполнение и выдача продукта осуществляется через приемно-раздаточные патрубки.
Заводской номер резервуара в виде цифрового обозначения, состоящий из арабских цифр, нанесен ударным способом на маркировочную табличку резервуара. Маркировочная табличка крепится к корпусу резервуара.
Резервуар РГП 25-1-1-О-У с заводским номером 0220 расположен по адресу: Республика Южная Осетия, нп Орчосан.
Эскиз общего вида резервуара приведен на рисунке 1. Фотография горловины и измерительного люка приведена на рисунке 2.
Нанесение знака поверки на средство измерений не предусмотрено.


Место нанесения заводского номера
Рисунок 2 - Горловина и измерительный люк резервуара
РГП 25-1-1-О-У зав.№ 0220
Пломбирование резервуара РГП 25-1-1-О-У не предусмотрено.
Метрологические и технические характеристики
Таблица 1 -
Наименование характеристики |
Значение |
Номинальная вместимость, м3 |
25 |
Пределы допускаемой относительной погрешности определения вместимости (объемный метод), % |
±0,25 |
Таблица 2 - Технические
Наименование характеристики |
Значение |
Условия эксплуатации: Температура окружающего воздуха, оС Атмосферное давление, кПа |
от -50 до +50 от 84,0 до 106,7 |
Таблица 3 - Показатели надежности
Наименование характеристики |
Значение |
Средний срок службы, лет, не менее |
10 |
Знак утверждения типа
наносится на титульный лист паспорта резервуара типографским способом.
Комплектность средства измерений
Таблица 4 - Комплектность
Наименование |
Обозначение |
Количество |
Резервуар горизонтальный стальной цилиндрический |
РГП 25-1-1-О-У |
1 шт. |
Паспорт |
- |
1 экз. |
Градуировочная таблица |
- |
1 экз. |
Сведения о методиках (методах) измерений
приведены в пункте 8 паспорта на резервуар.
Нормативные документы, устанавливающие требования к средству измерений Приказ Росстандарта от 26 сентября 2022 г. № 2356 «Об утверждении Государственной поверочной схемы для средств измерений массы и объема жидкости в потоке, объема жидкости и вместимости при статических измерениях, массового и объемного расходов жидкости».
Правообладатель
Общество с ограниченной ответственностью «Углерод»
(ООО «Углерод»)
ИНН 6147021593
Юридический адрес: 347830, Ростовская обл., Каменский р-н, хутор Старая Станица, ул. Железнодорожная, д.1
Изготовитель
Общество с ограниченной ответственностью «Углерод»
(ООО «Углерод»)
ИНН 6147021593
Адрес: 347830, Ростовская обл., Каменский р-н, хутор Старая Станица, ул. Железнодорожная, д.1
Испытательный центр
Общество с ограниченной ответственностью «МетроКонТ» (ООО «МетроКонТ»)
Адрес места осуществления деятельности: 420036, Республика Татарстан, г. Казань, ул. Тэцевская, д. 4б, помещ. 1011
Юридический адрес: 420132, Республика Татарстан, г. Казань, ул. Адоратского, д. 39Б, офис 51
Телефон: +7 9196969693
E-mail: trifonovua@mail.ru
Уникальный номер записи об аккредитации в реестре аккредитованных лиц RA.RU.312640

УТВЕРЖДЕНО приказом Федерального агентства по техническому регулированию
и метрологии
от «__ » 2025 г. №
Лист № 1
Всего листов 4
Регистрационный № 96153-25
ОПИСАНИЕ ТИПА СРЕДСТВА ИЗМЕРЕНИЙ
Резервуар горизонтальный стальной двустенный РГСД-25
Назначение средства измерений
Резервуар горизонтальный стальной двустенный РГСД-25 (далее - резервуар) предназначен для измерений объема нефти и нефтепродуктов, а также для их приема, хранения и отпуска.
Описание средства измерений
Тип резервуара - горизонтальный стальной двустенный, номинальной вместимостью 25 м3 подземного расположения.
Принцип действия резервуара основан на заполнении его нефтью или нефтепродуктом до определенного уровня, соответствующего заданному значению объема.
Резервуар представляет собой горизонтально расположенный цилиндрический стальной двустенный сосуд с днищами.
Заполнение и выдача продукта осуществляется через приемно-раздаточные патрубки.
Заводской номер резервуара в виде цифрового обозначения, состоящий из арабских цифр, нанесен типографским способом на табличку резервуара. Табличка крепится к люку резервуара.
Резервуар РГСД-25 с заводским номером 379 расположен по адресу: Республика Южная Осетия, нп Знаур.
Эскиз общего вида резервуара приведен на рисунке 1. Фотография горловины и измерительного люка приведена на рисунке 2.
Нанесение знака поверки на средство измерений не предусмотрено.


Рисунок 2 - Горловина и измерительный люк резервуара
РГСД-25 зав.№ 379
Пломбирование резервуара РГСД-25 не предусмотрено.
Метрологические и технические характеристики
Таблица 1 - Метрологические характеристики
Наименование характеристики |
Значение |
Номинальная вместимость, м3 |
25 |
Пределы допускаемой относительной погрешности определения вместимости (объемный метод), % |
±0,25 |
Таблица 2 - Технические характеристики
Наименование характеристики |
Значение |
Условия эксплуатации: Температура окружающего воздуха, оС Атмосферное давление, кПа |
от -50 до +50 от 84,0 до 106,7 |
Таблица 3 - Показатели надежности
Наименование характеристики |
Значение |
Средний срок службы, лет, не менее |
20 |
Знак утверждения типа
наносится на титульный лист паспорта резервуара типографским способом.
Комплектность средства измерений
Таблица 4 - Комплектность
Наименование |
Обозначение |
Количество |
Резервуар горизонтальный стальной двустенный |
РГСД-25 |
1 шт. |
Паспорт |
- |
1 экз. |
Градуировочная таблица |
- |
1 экз. |
Сведения о методиках (методах) измерений приведены в пункте 8 паспорта на резервуар.
Нормативные документы, устанавливающие требования к средству измерений
Приказ Росстандарта от 26 сентября 2022 г. № 2356 «Об утверждении Государственной поверочной схемы для средств измерений массы и объема жидкости в потоке, объема жидкости и вместимости при статических измерениях, массового и объемного расходов жидкости».
Правообладатель
Общество с ограниченной ответственностью «Техмонтажспецстрой» (ООО «Техмонтажспецстрой»)
ИНН 2632065302
Юридический адрес: 357500, Ставропольский край, г. Пятигорск, ул. Орджоникидзе, д.11 к.2
Изготовитель
Общество с ограниченной ответственностью «Техмонтажспецстрой»
(ООО «Техмонтажспецстрой»)
ИНН 2632065302
Адрес: 357500, Ставропольский край, г. Пятигорск, ул. Орджоникидзе, д. 11 к. 2
Испытательный центр
Общество с ограниченной ответственностью «МетроКонТ» (ООО «МетроКонТ»)
Адрес места осуществления деятельности: 420036, Республика Татарстан, г. Казань, ул. Тэцевская, д. 4б, пом. 1011
Юридический адрес: 420132, Республика Татарстан, г. Казань, ул. Адоратского, д. 39Б, офис 51
Телефон: +7 9196969693
E-mail: trifonovua@mail.ru
Уникальный номер записи об аккредитации в реестре аккредитованных лиц RA.RU.312640

УТВЕРЖДЕНО приказом Федерального агентства по техническому регулированию
и метрологии
14 августа пппс лг 1685
от « » _ 2025 г. №
Лист № 1
Всего листов 10
коммерческого
Регистрационный № 96154-25
ОПИСАНИЕ ТИПА СРЕДСТВА ИЗМЕРЕНИЙ
Система автоматизированная информационно-измерительная учета электроэнергии АИИС КУЭ ЕНЭС ПС 750 кВ Опытная
Назначение средства измерений
Система автоматизированная информационно-измерительная коммерческого учета электроэнергии АИИС КУЭ ЕНЭС ПС 750 кВ Опытная (далее по тексту - АИИС КУЭ) предназначена для измерений активной и реактивной электроэнергии, сбора, обработки, хранения и передачи полученной информации.
Описание средства измерений
АИИС КУЭ представляет собой многофункциональную многоуровневую автоматизированную систему с централизованным управлением и распределенной функцией измерения.
АИИС КУЭ включают в себя следующие уровни.
Первый уровень - измерительно-информационные комплексы (ИИК), включающие измерительные трансформаторы тока (ТТ), измерительные трансформаторы напряжения (ТН), счетчики активной и реактивной электроэнергии (счетчики), вторичные измерительные цепи и технические средства приема-передачи данных.
Второй уровень - информационно-вычислительный комплекс электроустановки (ИВКЭ), включающий устройство сбора и передачи данных (УСПД), технические средства приема-передачи данных, каналы связи для обеспечения информационного взаимодействия между уровнями системы, коммутационное оборудование.
Третий уровень - информационно-вычислительный комплекс (ИВК), включающий сервер сбора и сервер баз данных (ЦСОД) Исполнительного аппарата (ИА), устройство синхронизации системного времени (УССВ ИВК), автоматизированные рабочие места (АРМ), расположенные в ЦСОД ИА и в филиалах ПАО «Россети» - МЭС, ПМЭС, каналообразующую аппаратуру, средства связи и приема-передачи данных.
АИИС КУЭ обеспечивает выполнение следующих функций:
- сбор информации о результатах измерений активной и реактивной электрической энергии;
- синхронизация времени компонентов АИИС КУЭ с помощью системы обеспечения единого времени (СОЕВ), соподчиненной национальной шкале координированного времени UTC(SU);
- хранение информации по заданным критериям;
- доступ к информации и ее передача в организации-участники оптового рынка электроэнергии и мощности (ОРЭМ).
Первичные токи и напряжения преобразуются измерительными трансформаторами в аналоговые унифицированные сигналы, которые по кабельным линиям связи поступают на входы счетчика электроэнергии, где производится измерение мгновенных и средних значений активной и реактивной мощности. На основании средних значений мощности измеряются приращения электроэнергии за интервал времени 30 мин.
УСПД автоматически проводит сбор результатов измерений и состояния средств измерений со счетчиков электрической энергии (один раз в 30 минут) по линиям связи.
Сервер сбора ИВК АИИС КУЭ единой национальной (общероссийской) электрической сети (далее по тексту - ЕНЭС) автоматически опрашивает УСПД. Опрос УСПД выполняется с помощью выделенного канала (основной канал связи), присоединенного к единой цифровой сети связи электроэнергетики (ЕЦССЭ). При отказе основного канала связи опрос УСПД выполняется по резервному каналу связи.
По окончании опроса сервер сбора автоматически производит обработку измерительной информации (умножение на коэффициенты трансформации) и передает полученные данные в сервер баз данных ИВК. В сервере баз данных ИВК информация о результатах измерений приращений потребленной электрической энергии автоматически формируется в архивы и сохраняется на глубину не менее 3,5 лет по каждому параметру.
Один раз в сутки оператор ИВК АИИС КУЭ ЕНЭС формирует файл отчета с результатами измерений, в формате XML и передает его в ПАК АО «АТС» и в АО «СО ЕЭС» и смежным субъектам ОРЭМ посредством электронной почты с использованием электронно-цифровой подписи.
Каналы связи не вносят дополнительных погрешностей в измеренные значения энергии и мощности, которые передаются от счетчиков в ИВК, поскольку используется цифровой метод передачи данных.
СОЕВ функционирует на всех уровнях АИИС КУЭ. УССВ ИВК, принимающее сигналы спутниковых навигационных систем, обеспечивает автоматическую непрерывную синхронизацию времени в ИВК с национальной шкалой координированного времени UTC(SU).
ИВК выполняет функцию источника точного времени для ИВКЭ. Коррекция часов УСПД проводится при расхождении времени в УСПД и времени национальной шкалы координированного времени UTC(SU) более чем на 2 с. Интервал проверки текущего времени в УСПД выполняется с периодичностью не менее одного раза в 60 мин.
В процессе сбора информации со счетчиков с периодичностью один раз в 30 минут УСПД автоматически выполняет проверку текущего времени в счетчиках электрической энергии, и, в случае расхождения более чем на 2 с, автоматически выполняет синхронизацию текущего времени в счетчиках электрической энергии.
Нанесение знака поверки на конструкцию средства измерений не предусмотрено.
Нанесение заводского номера на конструкцию средства измерений не предусмотрено. АИИС КУЭ присвоен заводской номер 702. Заводской номер указывается в формуляре на АИИС КУЭ типографским способом. Место, способ и форма нанесения заводских номеров измерительных компонентов, входящих в состав измерительных каналов (ИК) АИИС КУЭ, приведены в формуляре на АИИС КУЭ.
Программное обеспечение
В АИИС КУЭ используется специализированное программное обеспечение автоматизированной информационно-измерительной системы коммерческого учета
электроэнергии ЕНЭС (Метроскоп) (далее по тексту - СПО АИИС КУЭ ЕНЭС (Метроскоп)). СПО АИИС КУЭ ЕНЭС (Метроскоп) используется при учете электрической энергии и обеспечивает обработку, организацию учета и хранения результатов измерений, а также их отображение, распечатку с помощью принтера и передачу в форматах, предусмотренных регламентом оптового рынка электроэнергии.
СПО АИИС КУЭ ЕНЭС (Метроскоп) не оказывает влияния на метрологические характеристики АИИС КУЭ.
Уровень защиты программного обеспечения «высокий» в соответствии с Рекомендацией Р 50.2.077-2014.
Метрологически значимой частью СПО АИИС КУЭ ЕНЭС (Метроскоп) являются файлы DataServer.exe, DataServer_USPD.exe.
Идентификационные данные СПО АИИС КУЭ ЕНЭС (Метроскоп), установленного в ИВК, указаны в таблице 1.
Таблица 1 - Идентификационные данные программного обеспечения
Идентификационные данные (признаки) |
Значение |
Идентификационное наименование ПО |
СПО АИИС КУЭ ЕНЭС (Метроскоп) |
Номер версии (идентификационный номер) ПО |
не ниже 1.0.0.4 |
Цифровой идентификатор ПО |
26B5C91CC43C05945AF7A39C9EBFD218 |
Другие идентификационные данные (если имеются) |
DataServer.exe, DataServer_USPD.exe |
Метрологические и технические характеристики
Состав измерительных каналов АИИС КУЭ, метрологические и основные технические характеристики приведены в таблицах 2, 3, 4.
Таблица 2 - Состав
каналов АИИС КУЭ
№ ИК |
Наименование ИК |
Состав измерительных каналов АИИС КУЭ | ||||
Трансформатор тока |
Трансформатор напряжения |
Счетчик электрической энергии |
С и |
и и Н | ||
1 |
2 |
3 |
4 |
5 |
6 |
7 |
1 |
ВЛ 750 кВ Калининская АЭС -Опытная |
CA-765 кл.т 0,2S Ктт = 3000/1 рег. № 45979-10 |
TEHMF 765 кл.т 0,2 Ктн = (750000/V3)/(100/V3) рег. № 25474-03 |
СТЭМ-300 кл.т 0,2S/0,5 рег. № 71771-18 |
< Q W 1Г) 1—1 40 N tOj < и О н |
1 СЛ Д CQ Н и I-.' о С1и |
2 |
ВЛ 500 кВ Конаковская ГРЭС -Опытная |
ТФМ-500-П-У1 кл.т 0,2S Ктт = 2000/1 рег. № 92399-24 |
НДКМ кл.т 0,2 Ктн = (500000/V3)/(100/V3) рег. № 60542-15 |
СТЭМ-300 кл.т 0,2S/0,5 рег. № 71771-18 | ||
3 |
КЛ-6 кВ Кон.ГРЭС Бл.4 яч.436 |
ТВЛМ-10 кл.т 0,5 Ктт = 100/5 рег. № 1856-63 |
НТМИ-6-66 кл.т 0,5 Ктн = 6000/100 рег. № 2611-70 |
СТЭМ-300 кл.т 0,2S/0,5 рег. № 71771-18 | ||
4 |
КЛ-6 кВ Кон.ГРЭС Бл.3 яч.311 |
ТВЛМ-10 кл.т 0,5 Ктт = 100/5 рег. № 1856-63 |
НТМИ-6-66 кл.т 0,5 Ктн = 6000/100 рег. № 2611-70 |
СТЭМ-300 кл.т 0,2S/0,5 рег. № 71771-18 | ||
5 |
КЛ-6 кВ Кон.ГРЭС Бл.6 яч.631 (ВМ-9) |
ТВЛМ-10 кл.т 0,5 Ктт = 100/5 рег. № 1856-63 |
НТМИ-6-66 кл.т 0,5 Ктн = 6000/100 рег. № 2611-70 |
СТЭМ-300 кл.т 0,2S/0,5 рег. № 71771-18 |
1 |
2 |
3 |
4 |
5 |
6 |
1 |
6 |
КЛ-6 кВ Кон.ГРЭС Бл.6 яч.631 (ВМ-8) |
ТВЛМ-10 кл.т 0,5 Ктт = 100/5 рег. № 1856-63 |
НТМИ-6-66 кл.т 0,5 Ктн = 6000/100 рег. № 2611-70 |
СТЭМ-300 кл.т 0,2S/0,5 рег. № 71771-18 |
< Q W IT) 40 N tOj < и О н |
(N 1 СЛ Д CQ Н' ^О1 и I-.' о С1и |
7 |
фидер 0,4 кВ Стойка связи (ОАО "МТС") |
- |
- |
Альфа А1800 кл.т 0,5S/1 рег. № 31857-11 |
Пр имечания
-
1 Допускается замена измерительных трансформаторов, счетчиков, УСПД, УССВ на аналогичные утвержденных типов с метрологическими характеристиками не хуже, чем у перечисленных в таблице 2, при условии, что владелец АИИС КУЭ не претендует на улучшение указанных в таблице 3 метрологических характеристик. Замена оформляется техническим актом в установленном владельцем порядке с внесением изменений в эксплуатационные документы. Технический акт хранится совместно с эксплуатационными документами на АИИС КУЭ как их неотъемлемая часть.
-
2 Виды измеряемой электроэнергии для всех ИК, перечисленных в таблице 2, -активная, реактивная.
Таблица 3 - Метрологические характеристики
Номер ИК |
COSф |
Границы интервала допускаемой относительной погрешности ИК при измерении активной электрической энергии в нормальных условиях (±5), %, при доверительной вероятности, равной 0,95 | |||
51(2)%, |
55 %, |
520 %, |
5100 %, | ||
I1(2)% < I изм< I 5 % |
I5 %<I изм<1 20 % |
I20 %<1изм<1100% |
I100 %<1изм<1120% | ||
1 (Счетчик 0,2S; ТТ 0,2S; ТН 0,2) |
1,0 |
1,4 |
0,7 |
0,5 |
0,5 |
0,8 |
1,6 |
1,0 |
0,7 |
0,7 | |
0,5 |
2,7 |
1,7 |
1,2 |
1,2 | |
2 (Счетчик 0,2S; ТТ 0,2S; ТН 0,2) |
1,0 |
1,0 |
0,6 |
0,5 |
0,5 |
0,8 |
1,1 |
0,8 |
0,6 |
0,6 | |
0,5 |
1,8 |
1,3 |
0,9 |
0,9 | |
3-6 (Счетчик 0,2S; ТТ 0,5; ТН 0,5) |
1,0 |
- |
1,8 |
1,1 |
0,9 |
0,8 |
- |
2,8 |
1,6 |
1,2 | |
0,5 |
- |
5,4 |
2,9 |
2,2 | |
7 (Счетчик 0,5S) |
1,0 |
- |
1,1 |
0,6 |
0,6 |
0,8 |
- |
1,1 |
0,6 |
0,6 | |
0,5 |
- |
1,1 |
0,7 |
0,7 |
Номер ИК |
COSф |
Границы интервала допускаемой относительной погрешности ИК при измерении реактивной электрической энергии в нормальных условиях (±5), %, при доверительной вероятности, равной 0,95 | |||
52%, |
55(10) %, |
520 %, |
5100 %, | ||
I2% < I изм< I 5 % |
I5(10) %<I изм<I 20 % |
I20 %<Iизм<I100% |
I100 %<Iизм<I120% | ||
1 (Счетчик 0,5; ТТ 0,2S; ТН 0,2) |
0,8 |
2,4 |
1,6 |
1,1 |
1,1 |
0,5 |
1,8 |
1,1 |
0,8 |
0,8 | |
2 (Счетчик 0,5; ТТ 0,2S; ТН 0,2) |
0,8 |
1,8 |
1,4 |
1,0 |
1,0 |
0,5 |
1,5 |
0,9 |
0,8 |
0,8 | |
3-6 (Счетчик 0,5; ТТ 0,5; ТН 0,5) |
0,8 |
- |
4,4 |
2,4 |
1,9 |
0,5 |
- |
2,5 |
1,5 |
1,2 | |
7 (Счетчик 1) |
0,8 |
- |
1,5 |
1,1 |
1,1 |
0,5 |
- |
1,2 |
1,1 |
1,1 | |
Номер ИК |
cosф |
Границы интервала допускаемой относительной погрешности ИК при измерении активной электрической энергии в рабочих условиях (±5), %, при доверительной вероятности, равной 0,95 | |||
51(2)%, |
55 %, |
520 %, |
5100 %, | ||
I1(2)% < I изм< I 5 % |
I5 %<I изм<I 20 % |
I20 %<Iизм<I100% |
I100 %<Iизм<I120% | ||
1 (Счетчик 0,2S; ТТ 0,2S; ТН 0,2) |
1,0 |
1,5 |
0,9 |
0,8 |
0,8 |
0,8 |
1,7 |
1,2 |
0,9 |
0,9 | |
0,5 |
2,7 |
1,8 |
1,3 |
1,3 | |
2 (Счетчик 0,2S; ТТ 0,2S; ТН 0,2) |
1,0 |
1,2 |
0,8 |
0,7 |
0,7 |
0,8 |
1,3 |
1,0 |
0,9 |
0,9 | |
0,5 |
1,9 |
1,4 |
1,1 |
1,1 | |
3-6 (Счетчик 0,2S; ТТ 0,5; ТН 0,5) |
1,0 |
- |
1,9 |
1,2 |
1,0 |
0,8 |
- |
2,9 |
1,7 |
1,4 | |
0,5 |
- |
5,5 |
3,0 |
2,3 | |
7 (Счетчик 0,5S) |
1,0 |
- |
1,6 |
1,3 |
1,3 |
0,8 |
- |
1,7 |
1,4 |
1,4 | |
0,5 |
- |
1,7 |
1,5 |
1,5 |
Номер ИК |
COSф |
Границы интервала допускаемой относительной погрешности ИК при измерении реактивной электрической энергии в рабочих условиях (±5), %, при доверительной вероятности, равной 0,95 | |||
52%, |
55(10) %, |
520 %, |
5100 %, | ||
I2% < I изм< I 5 % |
I5(10) %<I изм<1 20 % |
I20 %<1изм<1100% |
I100 %<1изм<1120% | ||
1 (Счетчик 0,5; ТТ 0,2S; ТН 0,2) |
0,8 |
2,7 |
2,1 |
1,7 |
1,7 |
0,5 |
2,2 |
1,6 |
1,5 |
1,5 | |
2 (Счетчик 0,5; ТТ 0,2S; ТН 0,2) |
0,8 |
2,2 |
1,9 |
1,6 |
1,6 |
0,5 |
1,9 |
1,5 |
1,4 |
1,4 | |
3-6 (Счетчик 0,5; ТТ 0,5; ТН 0,5) |
0,8 |
- |
4,6 |
2,8 |
2,3 |
0,5 |
- |
2,8 |
1,9 |
1,7 | |
7 (Счетчик 1) |
0,8 |
- |
3,4 |
3,2 |
3,2 |
0,5 |
- |
3,2 |
3,2 |
3,2 |

Пределы допускаемой абсолютной погрешности смещения шкалы времени компонентов АИИС КУЭ, входящих в состав СОЕВ, относительно шкалы времени UTC(SU), (±А), с Пр имечания
1 Границы интервала допускаемой относительной погрешности Si(2)%p для coso=l,0 нормируются от Ii%, границы интервала допускаемой относительной погрешности Si(2)%p и 52%q для cos9<1,0 нормируются от I2%.
2Границы интервала допускаемой относительной погрешности ИК № 7 при измерении реактивной электрической энергии нормируются от Ii0%.
-
3 Метрологические характеристики ИК даны для измерений электроэнергии и средней мощности (получасовой).
Таблица 4 - Основные технические
Наименование характеристики |
Значение |
1 |
2 |
Нормальные условия: | |
параметры сети: | |
- напряжение, % от ином |
от 99 до 101 |
- ток, % от 1ном |
от 1(5) до 120 |
- коэффициент мощности |
0,87 |
- частота, Гц |
от 49,85 до 50,15 |
температура окружающей среды, °C: | |
- для счетчиков электроэнергии |
от +21 до +25 |
1 |
2 |
Рабочие условия: параметры сети: - напряжение, % от Uном |
от 90 до 110 |
- ток, % от Iном |
от 1(5) до 120 |
- коэффициент мощности, не менее |
0,5 |
- частота, Гц |
от 49,6 до 50,4 |
диапазон рабочих температур окружающей среды, °C: - для ТТ и ТН |
от -45 до +40 |
- для счетчиков |
от +10 до +30 |
- для УСПД |
от +10 до +30 |
- для сервера, УССВ |
от +18 до +24 |
Надежность применяемых в АИИС КУЭ компонентов: счетчики электроэнергии СТЭМ-300: - средняя наработка до отказа, ч, не менее |
220000 |
- среднее время восстановления работоспособности, ч |
72 |
счетчики электроэнергии Альфа А1800: - средняя наработка до отказа, ч, не менее |
120000 |
- среднее время восстановления работоспособности, ч |
72 |
УСПД TOPAZ IEC DAS: - средняя наработка на отказ, ч, не менее |
140000 |
комплекс измерительно-вычислительный СТВ-01: - средняя наработка на отказ, ч, не менее |
10000 |
Глубина хранения информации счетчики электроэнергии: тридцатиминутный профиль нагрузки в двух направлениях, сут, не менее |
45 |
УСПД: - суточные данные о тридцатиминутных приращениях электроэнергии по каждому каналу и электроэнергии, потребленной за месяц, сут, не менее |
45 |
при отключенном питании, лет, не менее |
3 |
ИВК: - результаты измерений, состояние объектов и средств измерений, лет, не менее |
3,5 |
Надежность системных решений:
-
- резервирование питания УСПД с помощью источника бесперебойного питания и устройства АВР;
измерений может
-
- резервирование каналов связи: информация о результатах передаваться с помощью электронной почты и сотовой связи;
-
- в журналах событий счетчиков и УСПД фиксируются факты:
-
- параметрирования;
-
- пропадания напряжения;
-
- коррекция шкалы времени.
Защищенность применяемых компонентов:
и пломбирование:
-
- наличие механической защиты от несанкционированного доступа
-
- счетчиков электроэнергии;
-
- промежуточных клеммников вторичных цепей напряжения;
-
- испытательной коробки;
-
- УСПД.
-
- наличие защиты на программном уровне:
-
- пароль на счетчиках электроэнергии;
-
- пароль на УСПД;
-
- пароли на сервере, предусматривающие разграничение прав доступа к измерительным данным для различных групп пользователей.
Возможность коррекции шкалы времени в:
-
- счетчиках электроэнергии (функция автоматизирована);
-
- УСПД (функция автоматизирована).
Знак утверждения типа
наносится на титульный лист формуляра АИИС КУЭ типографским способом. Нанесение знака утверждения типа на средство измерений не предусмотрено.
Комплектность средства измерений
Комплектность АИИС КУЭ приведена в таблице 5.
Таблица 5 - Комплектность
Наименование |
Обозначение |
Количеств о шт./экз. |
1 |
2 |
3 |
Трансформатор тока измерительный |
ТВЛМ-10 |
8 |
Трансформатор тока |
CA-765 |
6 |
Трансформатор тока |
ТФМ-500-П-У1 |
3 |
Трансформатор напряжения емкостной |
НДКМ |
3 |
Трансформатор напряжения емкостной |
TEHMF 765 |
6 |
Трансформатор напряжения |
НТМИ-6-66 |
2 |
Счетчик электрической энергии трехфазный статический |
СТЭМ-300 |
6 |
Счетчик электрической энергии трехфазный многофункциональный |
Альфа А1800 |
1 |
Устройство сбора и передачи данных |
TOPAZ IEC DAS |
1 |
Комплекс измерительновычислительный |
СТВ-01 |
1 |
Формуляр |
АУВП.411711.ФСК.ОРЭМ.Ц.П7500001.ФО |
1 |
Сведения о методиках (методах) измерений
приведены в документе «Методика измерений электрической энергии и мощности с использованием системы автоматизированной информационно-измерительной коммерческого учета электроэнергии АИИС
КУЭ ЕНЭС ПС
750 кВ Опытная», аттестованном
ООО «ИЦ ЭАК», г. Москва уникальный номер записи об аккредитации в реестре аккредитованных лиц RA.RU.311298.
Нормативные документы, устанавливающие требования к средству измерений
Постановление Правительства РФ от 16.11.2020 N 1847 «Об утверждении перечня измерений, относящихся к сфере государственного регулирования обеспечения единства измерений» (п. 6.12; п. 6.13);
ГОСТ 22261-94 «Средства измерений электрических и магнитных величин. Общие технические условия»;
ГОСТ Р 59793-2021 «Информационные технологии. Комплекс стандартов на автоматизированные системы. Автоматизированные системы. Стадии создания»;
ГОСТ Р 8.596-2002 «ГСИ. Метрологическое обеспечение измерительных систем. Основные положения».
Правообладатель
Публичное акционерное общество «Федеральная сетевая компания - Россети»
(ПАО «Россети»)
ИНН 4716016979
Юридический адрес: 121353, г. Москва, вн.тер.г. муниципальный округ Можайский, ул. Беловежская, д. 4
Телефон: +7 (800) 200-18-81
E-mail: info@rosseti.ru
Web-сайт: www.rosseti.ru
Изготовитель
Публичное акционерное общество «Федеральная сетевая компания - Россети»
(ПАО «Россети»)
ИНН 4716016979
Адрес: 121353, г. Москва, вн.тер.г. муниципальный округ Можайский,
ул. Беловежская, д. 4
Телефон: +7 (800) 200-18-81
E-mail: info@rosseti.ru
Web-сайт: www.rosseti.ru
Испытательный центр
Общество с ограниченной ответственностью «ЭнерТест» (ООО «ЭнерТест»)
Адрес: 141401, Московская обл., г. Химки, ул.Рабочая, д. 2А, к. 22А, офис 207 Телефон: +7 (495) 109-09-22
Web-сайт: www.enertest.ru
E-mail: info@enertest.ru
аккредитации в реестре аккредитованных лиц
Уникальный номер записи об
RA.RU.314754

УТВЕРЖДЕНО приказом Федерального агентства по техническому регулированию
и метрологии
от « _ » 2025 г. № 1685
Лист № 1
Всего листов 6
Регистрационный № 96155-25
ОПИСАНИЕ ТИПА СРЕДСТВА ИЗМЕРЕНИЙ
Меры для поверки систем координатно-измерительных CORE-D
Назначение средства измерений
Меры для поверки систем координатно-измерительных CORE-D (далее по тексту -меры) предназначены для воспроизведения единицы длины в области измерений геометрических параметров поверхностей сложной формы и поверки систем координатно-измерительных.
Описание средства измерений
Принцип действия мер основан на воспроизведении диаметров и расстояний между центрами сфер и последующем определении отклонений измеренных величин от действительных значений.
Меры выпускаются в трех модификациях: CORE-D CAL-SPHEREMOUNT-D25mm, CORE-D Calibration bar 2 spheres, CORE-D Calibration bar 6 spheres, отличающихся между собой количеством сфер, техническими и метрологическими характеристиками.
Меры модификации CORE-D CAL-SPHEREMOUNT-D25мм представляют собой меры с одной сферой, выполненные в виде матовой сферы на стержне с двумя удлинителями и подставкой, на которую ее можно установить. Общий вид мер модификации CORE-D CAL-SPHEREMOUNT-D25мм представлен на рисунке 1.
Меры модификации CORE-D Calibration bar 2 spheres представляют собой меры с двумя сферами, выполненными в виде горизонтального стального параллелепипеда с закрепленными на нем матовыми сферами. Общий вид мер модификации CORE-D Calibration bar 2 spheres представлен на рисунке 2.
Меры модификации CORE-D Calibration bar 6 spheres представляют собой меры с шестью сферами, выполненными в виде стального параллелепипеда на ножке в защитном кожухе с закрепленными на нем матовыми сферами. Общий вид мер модификации CORE-D Calibration bar 6 spheres на рисунке 3.
Серийный номер мер в формате буквенно-цифрового обозначения на маркировочной наклейке (рисунок 4) наносится на нерабочую поверхность в местах, указанных на рисунках 1-3 мер методом наклейки.
Возможность нанесения знака поверки на средство измерений отсутствует.
Пломбирование мер от несанкционированного доступа не предусмотрено.

Место нанесения маркировочной наклейки с серийным номером
Рисунок 1 - Общий вид мер для поверки систем координатно-измерительных CORE-D модификации CORE-D CAL-SPHEREMOUNT-D25mm с указанием места нанесения серийного номера

Место нанесения маркировочной наклейки с серийным номером
Рисунок 2 - Общий вид мер для поверки систем координатно-измерительных CORE-D модификации CORE-D Calibration bar 2 spheres с указанием места нанесения серийного номера

Место нанесения маркировочной наклейки с серийным номером

б)
Рисунок 3 - а), б) Общий вид мер для поверки систем координатно-измерительных CORE-D модификации CORE-D Calibration bar 6 spheres и с указанием места нанесения серийного номера
Место нанесения серийного номера
Type: m^D CAL-.qPHFPF
T-D25MM
Mads in Germany
Рисунок 4 - Вид маркировочной наклейки
Метрологические и технические характеристики
Метрологические и технические характеристики мер представлены в таблицах 1 - 6.
Таблица 1 - Метрологические характеристики мер для поверки систем координатноизмерительных CORE-D модификации CORE-D CAL-SPHEREMOUNT-D25mm
Наименование характеристики |
Значение |
Номинальный диаметр сферы и допускаемое отклонение действительного значения диаметра сферы от номинального, мм |
25,000±0,25 |
Пределы допускаемой абсолютной погрешности воспроизведения диаметра, мкм |
±1,00 |
Допускаемое отклонение от круглости, мкм, не более |
1,50 |
Таблица 2 - Метрологические характеристики мер для поверки систем координатноизмерительных CORE-D модификации CORE-D Calibration bar 2 spheres
Наименование характеристики |
Значение |
Номинальное расстояние между центрами сфер и допускаемое отклонение действительного значения расстояния между центрами сфер от номинального, мм |
226,0±0,35 |
Пределы допускаемой абсолютной погрешности воспроизведения расстояния между центрами сфер, мкм |
±(1,5+L/350), |
Примечание: L - измеряемый размер, м |
Таблица 3 - Метрологические характеристики мер для поверки систем координатноизмерительных CORE-D модификации CORE-D Calibration bar 6 spheres
Наименование характеристики |
Значение |
Номинальное расстояние между центрами сфер и допускаемое отклонение действительного значения расстояния между центрами сфер от номинального, мм | |
S1-S2 |
105,0±0,35 |
S1-S3 |
170,0±0,35 |
S1-S4 |
245,0±0,35 |
S1-S5 |
290,0±0,35 |
S1-S6 |
385,5±0,35 |
S2-S3 |
65,0±0,35 |
S2-S4 |
140,0±0,35 |
S2-S5 |
185,0±0,35 |
S2-S6 |
280,5±0,35 |
S3-S4 |
75,0±0,35 |
S3-S5 |
120,0±0,35 |
S3-S6 |
215,5±0,35 |
S4-S5 |
45,0±0,35 |
S4-S6 |
140,5±0,35 |
S5-S6 |
95,5±0,35 |
Пределы допускаемой абсолютной погрешности воспроизведения расстояния между центрами сфер, мкм |
±(1,5+L/350) |
Примечание: L - измеряемый размер, м |
Таблица 4 - Основные технические характеристики мер для поверки систем координатно-
измерительных CORE-D модификации CORE-D CAL-SPHEREMOUNT-D25мм | |
Наименование характеристики |
Значение |
Габаритные размеры, мм, не более: - длина |
115 |
- ширина |
25 |
- высота |
190 |
Масса, кг, не более |
0,7 |
Условия эксплуатации: - температура окружающей среды, °С |
От +18 до +21 |
- относительная влажность, %, не более |
75 |
Таблица 5 - Основные технические характеристики мер |
для поверки систем координатно |
измерительных CORE-D модификации CORE-D Calibration |
bar 2 spheres |
Наименование характеристики |
Значение |
Номинальный диаметр сфер, мм |
12,00 |
Габаритные размеры, мм, не более: - длина |
270 |
- ширина |
80 |
- высота |
140 |
Масса, кг, не более |
1,1 |
Условия эксплуатации: - температура окружающей среды, °С |
От +18 до +21 |
- относительная влажность, %, не более |
75 |
Таблица 6 - Основные технические характеристики мер для поверки систем координатно-
измерительных CORE-D модификации CORE-D Calibration |
bar 6 spheres |
Наименование характеристики |
Значение |
Номинальный диаметр сфер, мм |
12,00 |
Габаритные размеры, мм, не более: - длина |
450 |
- ширина |
100 |
- высота |
50 |
Масса, кг, не более |
2,5 |
Условия эксплуатации: - температура окружающей среды, °С |
От +18 до +21 |
- относительная влажность, %, не более |
75 |
Знак утверждения типа
наносится на титульный лист паспорта типографским методом.
Комплектность средства измерений
Таблица 7 - Комплектность средства измерений
Наименование |
Обозначение |
Комплектность |
Меры для поверки систем координатно-измерительных |
CORE-D |
1 шт.1’ |
Кейс |
- |
1 шт. |
Паспорт |
- |
1 экз. |
1)- конфигурация и количество мер определяется при заказе и указывается в |
Паспорте |
Сведения о методиках (методах) измерений приведены в разделе 7 «Порядок работы» паспорта.
Нормативные документы, устанавливающие требования к средству измерений
Государственная поверочная схема для средств измерений геометрических параметров поверхностей сложной формы, в том числе эвольвентных поверхностей и угла наклона линии зуба, утвержденная Приказом Федерального агентства по техническому регулированию и метрологии от 06 апреля 2021 г. №472;
Стандарт предприятия WENZEL Group GmbH & Co. KG.
Правообладатель
WENZEL Group GmbH & Co. KG, Германия
Адрес: Werner-Wenzel-StraBe, 97859 Wiesthal, Germany
Phone: +49 6020 201-0
Fax: +49 6020 201-1999
E-Mail: info@wenzel-group.com
Изготовитель
WENZEL Group GmbH & Co. KG, Германия
Адрес: Werner-Wenzel-StraBe, 97859 Wiesthal, Germany
Phone: +49 6020 201-0
Fax: +49 6020 201-1999
E-Mail: info@wenzel-group.com
Испытательный центр
Федеральное государственное бюджетное учреждение «Всероссийский научноисследовательский институт метрологической службы»
(ФГБУ «ВНИИМС»)
Адрес: 119361, г. Москва, ул. Озерная, д. 46
Телефон: +7 (495) 437-55-77, факс: +7 (495) 437-56-66
Web-сайт: www.vniims.ru
E-mail: office@vniims.ru
Уникальный номер записи об аккредитации в реестре аккредитованных лиц 30004-13
