Инструкция «ГСИ. Резервуары (танки) стальные горизонтальные РГС-550, РГС-420, РГС-520 » (МП 1079-7-2019)
ФЕДЕРАЛЬНОЕ АГЕНТСТВО НО ТЕХНИЧЕСКОМУ РЕГУЛИРОВАНИЮ И МЕТРОЛОГИИ
Федеральное государственное унитарное предприятие «Всероссийский научно-исследовательский институт расходометрии» Государственный научный метрологический центр
ФГУП «ВНИИР»
УТВЕРЖДАЮ

ИНСТРУКЦИЯ
ГОСУДАРСТВЕННАЯ СИСТЕМА ОБЕСПЕЧЕНИЯ ЕДИНСТВА ИЗМЕРЕНИЙ
Резервуары (танки) стальные горизонтальные
РГС-550, РГС-420, РГС-520
МЕТОДИКА ПОВЕРКИ
МП 1079-7-2019
Начальн
ИО-7

Кондаков А.В.
5; 272-54-55
Казань 2019 г.
Предисловие | |
1 РАЗРАБОТАНА |
Федеральным государственным унитарным предприятием Всероссийским научно-исследовательским институтом расходометрии Государственным научным метрологическим центром (ФГУП «ВНИИР») |
ИСПОЛНИТЕЛИ: |
А.В. Кондаков, В. М. Мигранов |
2 УТВЕРЖДЕНА |
ФГУП «ВНИИР» 14 августа 2019 г. |
3 ВВЕДЕНА ВПЕРВЫЕ
Содержание
Стр.
-
7 Требования к квалификации поверителей и требования безопасности
-
-
11.2 Измерения длины, высоты и ширины поясов резервуара (танка) с не гофрированными переборками
-
11.3 Измерения длины, высоты и ширины резервуара (танка) с гофрированными переборками
-
11.4 Измерения координаты точки измерений базовой высоты и уровня жидкости
-
11.5 Измерения высоты превышения точки касания дна измерительной трубы грузом рулетки
Государственная система обеспечения единства измерений
Резервуары (танки) стальные горизонтальные
РГС-550, РГС-420, РГС-520.
Методика поверки. МП 1079-7-2019
-
1 ОБЛАСТЬ ПРИМЕНЕНИЯ
Настоящая инструкция распространяется на стальные горизонтальные резервуары (танки) номинальной вместимостью 550 м3 (РГС-550), 420 м3 (РГС-420), 520 м3 (РГС-520), предназначеные для измерения объема нефти и нефтепродуктов, а также для их приема, отпуска и транспортировки в составе наливных судов (барж) проекта ROB07.
-
2 НОРМАТИВНЫЕ ССЫЛКИ
В настоящей инструкции использованы ссылки на следующие стандарты:
ГОСТ 12.0.004-2015 Система стандартов безопасности труда. Организация обучения рабочих безопасности труда;
ГОСТ 12.1.005-88 Система стандартов безопасности труда. Общие санитарногигиенические требования к воздуху рабочей зоны;
ГОСТ 12.4.010-75 Система стандартов безопасности труда. Средства индивидуальной защиты. Рукавицы специальные. Технические условия;
ГОСТ 12.4.087-84 Система стандартов безопасности труда. Строительство. Каски строительные. Технические условия;
ГОСТ 12.4.137-2001 Обувь специальная с верхом из кожи для защиты от нефти, нефтепродуктов, кислот, щелочей, нетоксичной и взрывоопасной пыли. Технические условия;
ГОСТ 12.4.253-2013 Система стандартов безопасности труда. Средства индивидуальной защиты глаз. Общие технические условия;
ГОСТ 12.4.310-2016 Система стандартов безопасности труда. Одежда специальная для защиты работающих от воздействия нефти, нефтепродуктов. Технические требования;
ГОСТ 166-89 Штангенциркули. Технические условия;
ГОСТ 427-75 Линейки измерительные металлические. Технические условия;
ГОСТ 7502-98 Рулетки измерительные металлические. Технические условия;
ГОСТ 13837-79 Динамометры общего назначения. Технические условия;
ГОСТ 28498-90 Термометры жидкостные стеклянные. Общие технические требования. Методы испытаний.
-
3 ОПРЕДЕЛЕНИЯ
В настоящей инструкции применяют следующие термины с соответствующими определениями:
3.1 резервуар (танк) горизонтальный: Стальной сосуд прямоугольной формы с вертикальными, непроницаемыми продольными и поперечными переборками (стенками),
индивидуальной градуировочной таблицей, предназначенный для хранения нефти и нефтепродуктов и измерений их объема (массы) совместно со средствами измерений уровня, плотности и температуры.
Переборки представляют собой обшивку из листовой стали, подкрепленную силовым набором, или гофрированную пластину из листовой стали.
Продольные и поперечные переборки, выполненные по первому варианту, образуют пояса танка.
Танки сооружают с двойным или одинарным дном. При сооружении танка с одинарным дном днищем танка является днищевая обшивка наливного судна.
3.2 поверка танка наливного судна (далее - танка): Совокупность операций, выполняемых органами Государственной метрологической службы или аккредитованными на право поверки метрологическими службами юридических лиц с целью определения вместимости и градуировки танка, составления и утверждения градуировочной таблицы, установления пригодности танка к применению.
Градуировочная таблица: зависимость вместимости от уровня наполнения танка при нормированном значении температуры, равной 20°С. Таблицу прилагают к свидетельству о поверке танка и применяют для определения объема жидкости в нем.
-
3.3 градуировка танка: Операция поверки по установлению зависимости вместимости танка от уровня его наполнения с целью составления градуировочной таблицы.
-
3.4 вместимость танка: Внутренний объем танка, который может быть наполнен жидкостью до определенного уровня.
-
3.5 номинальная вместимость танка: Вместимость танка, соответствующая предельному уровню наполнения его, установленная нормативным документом для конкретного типа.
-
3.6 действительная (фактическая) полная вместимость танка: Вместимость танка, соответствующая предельному уровню его наполнения, полученная по результатам измерений параметров танка при поверке.
-
3.7 посантиметровая вместимость танка: Объем жидкости в танке, соответствующий уровню налитых в него доз жидкости, приходящихся на 1см высоты наполнения.
-
3.8 коэффициент вместимости: Вместимость, приходящаяся на 1 мм высоты наполнения.
-
3.9 точка касания дна измерительной трубы грузом рулетки: Точка на дне измерительной трубы танка, которой касается груз измерительной рулетки при измерениях базовой высоты танка и от которой проводят измерения уровня нефти и нефтепродуктов и воды при эксплуатации танка.
-
3.10 базовая высота танка: Расстояние от точки касания дна измерительной трубы грузом рулетки до верхнего края измерительной трубы.
-
3.11 уровень жидкости (высота наполнения): Расстояние по вертикали между свободной поверхностью жидкости и точкой касания дна измерительной трубы грузом рулетки.
-
3.12 рабочая зона: Пространство, ограниченное по высоте 2м над уровнем площадки, на которой находятся места постоянного или непостоянного (временного) пребывания специалистов при поверке танка - по ГОСТ 12.1.005.
3.13 дифферент наливного судна: Наклон наливного судна в продольной плоскости. Дифферент наливного судна определяет разность осадки (углубления) его кормой и носом. Дифферент наливного судна регулируют приемом или удалением водяного балласта.
3.14 степень наклона танка (судна): Величина ц, выражаемая через тангенс угла дифферента, рассчитываемая по формуле

(1)
где а - угол дифферента судна в градусах.
3.15 геометрический метод поверки танка: Метод поверки танка, заключающийся в определении вместимости танка по результатам измерений его геометрических параметров.
-
4 МЕТОД ПОВЕРКИ
-
4.1 Поверку танка проводят геометрическим методом
-
4.1.1 При поверке танка с не гофрированными переборками вместимость его определяют по результатам измерений длины, ширины и высоты поясов , образованных по продольным и поперечным переборкам танка (рисунок А.1). При этом по поперечным переборкам измеряют только ширину поясов.
-
4.1.2 При поверке танка со скошенной частью (рисунок А.2) вместимость его определяют суммированием вместимостей прямолинейной и скошенной частей танка по результатам измерений длины, ширины и высоты поясов, образованных в прямолинейной и скошенной частях танка.
-
4.1.3 При поверке танка с гофрированными переборками вместимость его определяют по результатам измерений длины, ширины и высоты переборок. При этом по поперечным переборкам измеряют только ширину танка.
-
4.1.4 Измерения параметров проводят изнутри танка.
-
5 ТЕХНИЧЕСКИЕ ТРЕБОВАНИЯ
Таблица 1
Наименование параметра |
Пределы допускаемой погрешности измерений параметра танка |
Длина переборки, мм |
± 6,0 |
Ширина переборки, мм |
± 6,0 |
Высота переборки, мм |
± 6,0 |
Объем внутренних деталей, м3 |
± 0,020 |
-
5.1.2 При соблюдении указанных в таблице 1 пределов допускаемой погрешности измерений, погрешность определения вместимости резервуаров будет находиться в пределах ± 0,20%.
-
5.1.3 Значение погрешности измерения вместимости танка приводят на титульном листе градуировочной таблицы.
-
5.2.1 При поверке танка применяют следующие основные и вспомогательные средства поверки:
-
5.2.1.1 Рулетку измерительную 2-го класса точности с верхними пределами измерений 10; 20 и 30 м по ГОСТ 7502.
-
5.2.1.2 Рулетку измерительную с грузом 2-го класса точности с верхними пределами измерений 5; 10; 20 и 30 м.
-
5.2.2 Вспомогательные средства поверки:
-
5.2.2.1 Штангенциркуль с диапазоном измерений 0-150 мм по ГОСТ 166.
-
5.2.2.2 Линейку измерительную металлическую с диапазоном измерений 0-1000 мм по ГОСТ 427.
-
5.2.2.3 Термометр с ценой деления 1° С и диапазоном измерений от 0 до плюс 50° С по ГОСТ 28498.
-
5.2.2.4 Газоанализатор типа АНТ-2М по [3].
-
5.2.2.5 Динамометр с диапазоном измерений 0-100 Н по ГОСТ 13837.
-
5.2.2.6 Чертилка, мел, графитовый стержень, щетки (металлические), лестницы переносные, микрокалькулятор.
-
5.2.3 Основные средства поверки танков должны быть поверены в установленном порядке.
-
5.2.4 Допускается применение других, вновь разработанных или находящихся в эксплуатации средств измерений, удовлетворяющих по точности и пределам измерений требованиям настоящей методики..
-
6 ТРЕБОВАНИЯ К ОРГАНИЗАЦИИ ПРОВЕДЕНИЯ ПОВЕРКИ
-
6.1 Поверку резервуара, проводят юридические лица и индивидуальные предприниматели (далее - организация), аккредитованные в соответствии с действующим законодательством Российской Федерации на право проведения поверки.
-
6.2 Поверку резервуара проводят:
-
- первичную - после завершения строительства резервуара или капитального ремонта и его гидравлических испытаний - перед вводом его в эксплуатацию;
-
- периодическую - по истечении срока интервала между поверками.
-
6.3 Интервал между поверками - 5 лет.
-
7 ТРЕБОВАНИЯ К КВАЛИФИКАЦИИ ПОВЕРИТЕЛЕЙ И ТРЕБОВАНИЯ БЕЗОПАСНОСТИ
-
7.1 Измерения параметров при поверке резервуара проводит группа лиц (не менее двух человек), включая не менее одного специалиста, прошедшего курсы повышения квалификации в качестве поверителя в установленном порядке.
-
7.2 К проведению работ допускаются лица, изучившие настоящую инструкцию, техническую документацию на резервуар и его конструкцию и прошедших инструктаж по безопасности труда в соответствии с ГОСТ 12.0.004-2015.
-
7.3 Лица, проводящие работы, используют спецодежду по ГОСТ 12.4.310-2016, спецобувь по ГОСТ 12.4.137-2001, строительную каску по ГОСТ 12.4.087-84.
-
7.4 Предельно допустимая концентрация (ПДК) вредных паров и газов в воздухе, измеренная газоанализатором вблизи или внутри резервуара не должна превышать ПДК, определенной по ГОСТ 12.1.005-88 и соответствовать гигиеническим нормативам ГН 2.2.5.3532.
-
7.5 При необходимости для дополнительного освещения при проведении измерений параметров резервуара применяют переносные светильники.
-
7.6 Перед началом работ проверяют исправность лестниц, перил и помостов с ограждениями.
-
7.7 В процессе измерений параметров резервуара обеспечивают двух или трех кратный обмен воздуха внутри резервуара. При этом анализ воздуха на содержание вредных паров и газов проводят через каждый час.
-
7.8 Продолжительность работы внутри резервуара не более 4-х часов, после каждой четырехчасовой работы - перерыв на один час.
-
8 УСЛОВИЯ ПОВЕРКИ
-
8.1 При поверке соблюдают следующие условия:
-
8.1.1 Измерения параметров танка проводят изнутри.
-
8.1.2 Для проведения измерений параметров танка его освобождают от остатков нефти и нефтепродуктов, зачищают, пропаривают (при необходимости), промывают и вентилируют.
Не допускают образование хлопунов днища танка с двойным дном.
-
8.1.3 Температура окружающего воздуха и воздуха внутри танка: (20 ± 15)°С. Состояние погоды - без осадков.
-
9 ПОДГОТОВКА К ПОВЕРКЕ
-
9.1 При подготовке к поверке проводят следующие работы:
-
9.1.1 Изучают техническую документацию на танк, наливное судно и средства поверки.
-
9.1.2 Подготавливают средства поверки к работе согласно технической документации на них, утвержденной в установленном порядке.
-
9.2 Подготавливают танки к проведению необходимых измерений
-
9.2.1 Подготовка танка с негофрированными переборками
-
9.2.1.1 Подготавливают продольные боковые переборки (без скошенной части) и продольные переборки в диаметральной плоскости (без рамных шпангоутов) к проведению измерений в следующей последовательности (рисунок А.3):
а) на стенках переборок (бортовой и в диаметральной плоскости) мелом отмечают точки А о , В^ с координатами, отсчитываемыми от поперечной переборки (находящейся, например, ближе к кормовой части судна) 1* и от места стыка переборок с палубой судна h , равными 500 мм;
б) через точки А оо и Воо чертилкой наносят горизонтальные отметки 1 и 7 длиной 50 мм;
в) к горизонтальным отметкам 1 и 7 прикладывают измерительную рулетку с грузом и проводят чертилкой вертикальные линии 10 и 11;
г) по вертикальным линиям 10 и 11 на % высоты первого пояса и середине высоты второго и третьего поясов отмечают точки А1,А3 ,А5 на боковой переборке и В ,В , В на переборке в диаметральной плоскости;
д) через точки А1,А3 ,А5 и В ,В ,В чертилкой или графитовым стержнем толщиной не более 3 мм наносят горизонтальные отметки 2 и 8 (через точки А1 и В1). Отметки, нанесенные через точки А ,А и В ,В , на рисунке А.3 не обозначены.
Выполняя аналогичные операции, приведенные в перечислениях а) + д), отмечают точки Аоо, Воо с координатами, отсчитываемыми от поперечной переборки (находящейся ближе к носовой части судна) 1° и h0, проводят вертикальные линии и через точки А ,А ,А и В ,В ,В наносят горизонтальные отметки.
Обозначения «к» и «н» соответствуют терминам: «корма» и «нос».
-
9.2.1.2 На стенке продольной переборки со скосом (рисунок А.4) дополнительно по месту стыка прямолинейной и скошенной частей переборки в порядке, установленном в 9.2.1.1, проводят вертикальную линию 5 и через точки А ,А , А наносят горизонтальные отметки.
-
9.2.1.3 На стенке продольной переборки в диаметральной плоскости с рамными шпангоутами (рисунок А.5):
а) отмечают точки Воо ,Вооо с координатами, отсчитываемыми от поперечных переборок на расстоянии соответственно на Ьк и Ьн и от мест стыка переборки с палубой судна ho , равными 500 мм;
б) через точки Воо и Вооочертилкой наносят горизонтальные отметки 1 и 6 длиной 50 мм;
в) к горизонтальным отметкам 1 и 6 прикладывают измерительную рулетку с грузом и проводят чертилкой вертикальные линии 7 и 8;
г) по вертикальным линиям 7 и 8 и по кромкам полок рамных шпангоутов на % высоты первого пояса и середине высот второго и третьего поясов отмечают точки: на вертикальных линиях D1-D6 , кромках рамных шпангоутов В1-В6.
-
9.2.1.4 На стенке поперечной переборки наносят отметки и проводят линии в следующей последовательности (рисунок А.6):
а) на стенке поперечной переборки (находящейся, например, ближе к носовой части судна) мелом отмечают точки А '0, А " с координатами , отсчитываемыми от продольных переборок (левого борта и в диаметральной плоскости) b н и от места стыка переборки с палубой судна ho, равными 500 мм;
б) выполняя аналогичные операции, указанные в 9.2.1.1 (перечислениях б, в), проводят вертикальные линии 11 и 12;
в) по вертикальным линиям 11 и 12 на %высоты первого пояса и середине высоты второго и третьего поясов отмечают точки А : А;
г) через точки А : А, как и в 9.2.1.1 (перечисление д), наносят горизонтальные отметки 2 и 3. Отметки, нанесенные через точки А ,А ,А , А , на рисунке не обозначены.
Выполняя аналогичные операции, приведенные в перечислениях а): г), на стенке поперечной переборке (находящейся ближе к кормовой части судна и от левого борта) отмечают точки СОиСО с координатами, отсчитываемыми от продольных переборок b К и от места стыка переборок с палубой судна h , равными 500 мм, проводят вертикальные линии и через точки С :С наносят горизонтальные отметки.
-
9.2.2 Подготовка танка с гофрированными переборками
-
9.2.2.1 Перед проведением измерений параметров танка отмечают точки и проводят линии:
а) на кромках полок рамных шпангоутов 5 и 9 (рисунок А.7) продольной бортовой переборки в трех их сечениях: нижнем, среднем и верхнем отмечают точки А : А , равномерно расположенные по высоте переборки;
б) на кромках полок рамных шпангоутов 5 и 9 (рисунок А.8) продольной переборки в диаметральной плоскости (как при наличии рамных шпангоутов, так и их отсутствии) отмечают на тех же уровнях аналогичные точки В : В ;
в) на кромках полок рамных шпангоутов 1 и 6 (рисунок А.9) поперечной переборки (находящейся ближе к носу судна) через точки А1 и В1 наносят горизонтальные отметки 3 и 5. Горизонтальные отметки, нанесенные через точки А , А5 и В3, В5 на рисунке А.9 не показаны;
г) на кромках полок рамных шпангоутов поперечной переборки, находящейся ближе к кормовой части судна, отмечают аналогичные горизонтальные отметки.
-
10 ОПЕРАЦИИ ПОВЕРКИ
-
10.1 При проведении поверки танка выполняют операции, указанные в таблице 2. Таблица 2
Наименование операции
Номер пункта, подпунктаИнструкц ии
Внешний осмотр
11.1
Измерения длины, высоты и ширины поясов танка с
негофрированными переборками:
11.2
- измерения длины поясов
11.2.1
- измерения высоты поясов
11.2.2
- измерения ширины поясов
11.2.3
Измерения длины, высоты и ширины танка с гофрированными
переборками
11.3
- измерения длины танка
11.3.1
- измерения высоты танка
11.3.2
- измерения ширины танка
11.3.3
Измерения координаты точки измерений базовой высоты и уровня
жидкости
11.4
Измерения высоты превышения точки касания дна измерительной
11.5
-
11 ПРОВЕДЕНИЕ ПОВЕРКИ
-
11.1.1 При внешнем осмотре резервуара (танка) проверяют:
- соответствие конструкции и внутренних деталей танка технической документации (паспорту) на него;
- наличие необходимой арматуры и оборудования;
- исправность лестниц (трапов) и помостов;
- чистоту внутренней поверхности танка;
- отсутствие прогибов и хлопунов днища (для танков с двойным дном);
- отсутствие деформаций стенок поясов, препятствующих проведению измерений линейных размеров (параметров) танка.
-
11.1.2 По результатам внешнего осмотра устанавливают возможность применения геометрического метода поверки танка.
-
11.2.1 Измерения длины поясов
-
11.2.1.1 Длину первого пояса L , мм, (рисунок А.3) определяют на высоте, равной % высоты первого пояса, по результатам измерений расстояний: lf (отсчитываемое от точки А5 до точки А ), l\ (отсчитываемое от точки В5 до точки В6), 1* и l*.
-
11.2.1.2 Расстояния lf и 1Д (левого танка, не имеющего рамные шпангоуты) измеряют измерительной рулеткой в следующей последовательности:
а) по нанесенным (по 9.2.1.1 и 9.2.1.3) через точки А и А ( В и В ) горизонтальным отметкам прикладывают рулетку. При этом рулетку укладывают нижней кромкой по горизонтальным отметкам и лента её должна быть натянута;
б) начальную отметку шкалы рулетки совмещают с вертикальной линией 11 (10) и после создания усилия натяжения ленты рулетки динамометром (100±10)Н отсчитывают показания шкалы рулетки по вертикальной линии 6 (9) с погрешностью: ±1 мм;
в) расстояние /Д (правого танка, имеющего рамные шпангоуты) (рисунок А.5) измеряют измерительной рулеткой, совмещая нулевую отметку рулетки с точкой В5 на левой кромке полки рамного шпангоута и отсчитывая (после натяжения ленты рулетки) показания рулетки в точке В6 на правой кромке полки рамного шпангоута с погрешностью: ± 1 мм;
г) измерения величин /Б и /Д проводят не менее двух раз. Расхождение между результатами двух измерений должно быть: не более 3 мм.
-
11.2.1.3 Расстояния (/0)1, (/Н)i (по бортовой переборке) и (/Д)Д,(/Д )” (по переборке в диаметральной плоскости левого танка) измеряют штангенциркулем с погрешностью : ±0,1 мм. Измерения каждой величины проводят не менее двух раз. Расхождение между результатами двух измерений должно быть: не более 0,4 мм.
-
11.2.1.4 Расстояния (/Д) Д,(/Д ) ” (по переборке в диаметральной плоскости правого танка) (рисунок А.5), определяют по результатам измерений величин аД ,ЬД, аН ,bf, с. Измерения указанных величин проводят при помощи штангенциркуля с погрешностью: ± 0,1 мм.
Измерения каждой величины проводят не менее двух раз. Расхождение между результатами двух измерений должно быть: не более 0,4 мм.
Величины (/Д ) Д,(/Д ) Д ,мм, вычисляют по формулам:
(/о)" = (ак + bk ) - с, (2)
(/Н)" = (аН + ЬН) - с. (3)
-
11.2.1.5 Результаты измерений величин /Д, /Д, ) Д, (/Д )Д, (/Д ) Д,(/Д ) 'Д вносят в
протокол, форма которого приведена в приложении Б.
Примечание- Значения величин (Д/Д) Д,(/Д)Д переборки правого танка
предварительно определяют по формулам (2) и (3).
-
11.2.1.6 Длину i-го вышестоящего пояса L; , мм, (рисунки А.3 и А.5) определяют на средней высоте i-го пояса по результатам измерений расстояний: /Д, /Д, (/Д ) ■ , (/Д ) ■,
(/к )'Д,(/Д) Д.
-
11.2.1.7 Величины, указанные в 11.2.1.6, измеряют по методике, изложенной в
11.2.1.2, 11.2.1.3 и 11.2.1.4.
-
11.2.1.8 Результаты измерений величин lf , If, (lf ) ' , (lf ) ' , (lf )”,(lf ) " вносят в протокол, форма которого приведена в приложении Б.
-
11.2.1.9 Длины поясов LБ, мм, по боковой переборке, имеющей скошенную часть (рисунок А.4), определяют по результатам измерений расстояний: lf (отсчитываемое от точки А До точки Aj+1), lf (отсчитываемое от точки Aj+1 до точки Aj+2 ), (lf)' и (lf)'. Обозначения «с» и «п» соответствуют терминам : «скос» , «прямолинейно».
Длины поясов по переборке в диаметральной плоскости L, мм, определяют по результатам измерений расстояний (рисунки А.3 и А.5): lД , (отсчитываемое от точки Bj до точки Bj+1), (If )",(lf)". При наличии в переборке рамных шпангоутов величины (lf ) ",(lf ) ” вычисляют по формулам (2) и (3).
Результаты измерений величин lf, ln, lД, (lf)', (lff)', (lf ) ” ,(lf) '' вносят в протокол, форма которого приведена в приложении Б.
-
11.2.2 Измерения высоты поясов
-
11.2.2.1 Высоту i-го пояса hi ,мм, измеряют по боковой переборке изнутри танка при помощи рулетки с грузом.
-
11.2.2.2 Измерения высоты поясов (рисунки А.3 и А.5) проводят, опуская рулетку с грузом от отметки 1 боковой переборки до верхнего края сварочного шва пояса и считывая разницу в показаниях рулетки относительно отметки 1.
Показания шкалы рулетки отсчитывают с погрешностью: ± 1 мм.
-
11.2.2.3 Результаты измерений h вносят в протокол, форма которого приведена в приложении Б.
-
11.2.3 Измерения ширины поясов
-
11.2.3.1 Ширину первого пояса В1 мм, (рисунок А.6) определяют на высоте % высоты первого пояса по результатам измерений расстояний: bf (отсчитываемое от точки А5 до точки А6 ), b К (отсчитываемое от точки С5 до точки С6 ), b f, b К.
-
11.2.3.2 Расстояния bf, bК измеряют измерительной рулеткой в следующей последовательности:
а) по нанесенным (по 9.2.1.4, перечисления а:г) через точки А5 и А6 (С5 и С6) горизонтальным отметкам прикладывают рулетку. При этом рулетку укладывают нижней кромкой по горизонтальным отметкам и лента её должна быть натянута;
б) начальную отметку шкалы рулетки совмещают с вертикальной линией 12 (10) и после создания усилия натяжения ленты рулетки по 11.2.1.2 (перечисление б) отсчитывают показания шкалы рулетки по вертикальной линии 11 (9) с погрешностью: ± 1 мм;
в) измерения величин bН, bК проводят не менее двух раз. Расхождение между результатами двух измерений должно быть :не более 3 мм.
-
11.2.3.3 Расстояния (bН )J, (bН )'" (по поперечной переборке от носа судна) и ( b К ) 1, (b К ) " , (по поперечной переборке от кормы судна) измеряют штангенциркулем с погрешностью: ±0,1 мм. Измерения каждой величины проводят не менее двух раз. Расхождения между результатами двух измерений должно быть: не более 0,4 мм.
-
11.2.3.4 Результаты измерений величин b Н, b^, (bН )1, (b0 ) 1, (bК)1, (bК )1', вносят в протокол, форма которого приведена в приложении Б.
-
11.3.1 Измерения длины танка
-
11.3.1.1 Длину танка определяют по результатам измерений длин продольных переборок.
-
11.3.1.2 Длину боковой переборки LБ , мм, (рисунок А.7) определяют по результатам измерений расстояний: Р (отсчитываемое от точки Aj до точки Aj+1), (lf)', (Z*) ' в трех сечениях (нижнем, среднем, верхнем), равномерно расположенных по высоте переборки.
-
11.3.1.3 Длину переборки в диаметральной плоскости Lfl ,мм, (рисунок А.8) определяют по результатам измерений расстояний: Iй (отсчитываемое от точки Вj до точки Bj+1), (lН)'', (lК )и также в трех сечениях (нижнем, среднем, верхнем), равномерно расположенных по высоте переборки.
-
11.3.1.4 Расстояния /Б и Iй измеряют измерительной рулеткой в следующей последовательности:
а) по отмеченным (по 9.2.2.1, перечисления а,б) точкам (Aj- Aj+1) и (Bj- Bj+1) прикладывают рулетку. При этом лента рулетки должна быть натянута;
б) начальную отметку шкалы рулетки совмещают торцом полки рамного шпангоута 9 (рисунок А.7 и рисунок А.8) и после создания усилия натяжения ленты рулетки динамометром (100±10)Н отсчитывают показания шкалы рулетки по торцу полки рамного шпангоута 5 с погрешностью: ±1 мм;
в) ) измерения величин Р и Iй проводят не менее двух раз. Расхождение между результатами двух измерений должно быть не более 3 мм.
-
11.3.1.5 Расстояния (lН )', (l* )' (по бортовой переборке) и (l* ) " , (lК ) " (по переборке в диаметральной плоскости) измеряют штангенциркулем с погрешностью: ± 0,1 мм. Измерения каждой величины проводят не менее двух раз. Расхождение между результатами двух измерений должно быть: не более 0,4 мм.
-
11.3.1.6 Результаты измерений величин Р , Р , (lН )', (lК )', (lН )'', (l* )'' вносят в протокол, форма которого приведена в приложении Б.
-
11.3.1.7 Длину боковой переборки, имеющей скошенную часть, измеряют расстояния lf и lв порядке, установленном в 11.2.1.9.
-
11.3.2 Измерения высоты танка
-
11.3.2.1 Высоту танка h ,мм, определяют по результатам измерений высот профилей карлингса и кильсона и высоты стенки продольной бортовой переборки (рисунок А.7)
-
11.3.2.2 Высоту стенки переборки (расстояние между полками карлингса и кильсона) hс , мм, измеряют измерительной рулеткой с грузом в сечении, находящемся приблизительно в середине длины переборки, не менее двух раз. Отсчитывают показания шкалы рулетки с погрешностью: ± 1 мм. Расхождение между результатамидвух измерений должно быть: не более 2 мм.
-
11.3.2.3 Высота профилей карлингса Икли кильсона Икс , мм, измеряют штангенциркулем. Показания шкалы штангенциркуля отсчитывают с погрешностью: ± 0,1 мм.
-
11.3.2.4 Результаты величин Ис, Икл, Иксвносят в протокол, форма которого приведена в приложении Б.
-
11.3.3 Измерения ширины танка
-
11.3.3.1 Ширину танка определяют по результатам измерений ширины поперечных переборок.
-
11.3.3.2 Ширину поперечной переборки, находящейся ближе к кормовой части судна (рисунок А.9), определяют по результатам измерений расстояний: bк (отсчитываемое от точки до точки Вj ), (bК )', (bК )" в трех сечениях (нижнем, среднем и верхнем), равномерно расположенных по высоте боковой переборки.
-
11.3.3.3 Ширину поперечной переборки, находящейся ближе к новой части судна, определяют по результатам измерений расстояний: bн ( отсчитываемое от точки А до точки Вj ), (l* )", (l* )"" также в трех сечениях (нижнем, среднем и верхнем), равномерно расположенных по высоте боковой переборки.
-
11.3.3.4 Расстояния bк и bн измеряют измерительной рулеткой в последовательности:
а) по нанесенным (по 9.2.2.1 , перечисления а-г) через точки А,и Вj
горизонтальным отметкам прикладывают рулетку.
При этом рулетку укладывают нижней кромкой по горизонтальным отметкам и лента её должна быть натянута;
б) начальную отметку шкалы рулетки совмещают торцом полки рамного шпангоута 1 (рисунок А.9) и после создания усилия натяжения ленты рулетки динамометром (100±10)Н отсчитывают показания шкалы рулетки по торцу полки рамного шпангоута с погрешностью : ± 1 мм;
в) измерения величин bк , bн проводят не менее двух раз. Расхождение между результатами двух измерений должно быть: не более 2 мм.
-
11.3.3.5 Расстояния (bК )”,(ЪК )” (по поперечной переборке находящейся ближе к корме судна) и (ЪН) ”, (ЪН) ” (по поперечной переборке находящейся ближе к носу судна) измеряют при помощи штангенциркуля - по 11.3.1.5.
-
11.3.3.6 Результаты измерений величин Ък, Ън, (ЪК )”,(ЪК )” , (ЪН)”, (ЪН ) вносят в протокол, форма которого приведена в приложении Б.
11.4 Измерения координаты точки измерений базовой высоты и уровня жидкости
-
11.4.1 Координату точки измерений базовой высоты и уровня жидкости (расстояния от торца танка, находящегося ближе к носу судна до центра измерительной трубы) l , мм, (рисунки А.1 и А.2), измеряют по палубе судна измерительной рулеткой не менее двух раз. Показания шкалы рулетки отсчитывают погрешностью: 1 мм. Расхождение между результатами двух измерений должно быть: не более 5 мм.
-
11.4.2 Результаты измерений l вносят в протокол, форма которого приведена в приложении Б.
-
11.5.1 Высоту превышения (рисунок А.10) точки касания дна измерительной трубы грузом рулетки f , мм, измеряют штангенциркулем не менее двух раз. Показания шкалы штангенциркуля отсчитывают с погрешностью: ±0,1 мм. Расхождение между результатами двух измерений должно быть: не более 0,4 мм.
-
11.5.2 Результаты измерений f вносят в протокол, форма которого приведена в приложении Б.
-
11.6.1 Определение объема внутренних деталей танка с негофрированными переборками
-
11.6.1.1 К внутренним деталям (рисунок А.11) относят элементы поперечного и продольного силового набора таврового и уголкового профилей. К элементам силового набора таврового профиля относят: кильсон, флор, карлингс, рамный шпангоут.
-
11.6.1.2 Линейными размерами элемента силового набора, подлежащими определениям, являются:
а) таврового профиля (рисунок А.12): длина ЪП и толщина дп полки, высота hT, толщина t стенки, m (число кильсонов), m (число флор), m (число рамных шпангоутов), m6 (число карлингсов) ;
б) уголкового профиля (рисунок А.13): длина 1п, высота lс, дс толщина профиля, m (число профилей, расположенных на днище танка) и m (число профилей, расположенных на переборках).
-
11.6.1.3 Толщину стенки таврового профиля t определяют по результатам измерений (рисунок А.12) расстояний от торцов полки до стенки профиля bЦ, b" .
-
11.6.1.4 Толщину стенки уголкового профиля определяют по результатам измерений расстояния от торца полки до стенки профиля l в.
-
11.6.1.5 Линейные размеры профилей, указанные в 11.6.1.2, 11.6.1.3, 11.6.1.4, измеряют одного из них по каждому виду профиля (кильсона, флора, рамного шпангоута и т.д.) и определяют их количества. При наличии прикрепленных горизонтально на продольных или поперечных переборках танка элементов силового набора таврового сечения дополнительно указывают их нижние и верхние границы относительно контура днища танка.
-
11.6.1.6 Высоту таврового профиля h , мм, (рисунок А.12) измеряют измерительной линейкой. Показания шкалы линейки отсчитывают с погрешностью: ± 1 мм.
-
11.6.1.7 Величины bп, bП, bП ,8П , 1п, 1'П , lс , мм, указанные в 11.6.1.2, 11.6.1.3 и
-
11.6.1.4 , измеряют штангенциркулем. Показания шкалы штангенциркуля отсчитывают с погрешностью: ± 0,2 мм.
-
11.6.1.8 Нижние и верхние границы расположения силовых элементов таврового профиля hн ,hв, мм, по 11.6.1.5, измеряют измерительной рулеткой с грузом. Показания рулетки отсчитывают с погрешностью: ± 1 мм.
11.6.1.9 Результаты измерений величин
П, П, дс, н , в и числа
~ imпрофилей 1 6 вносят в протокол, форма которого приведена в приложении Б.
-
11.6.2 Определение объема внутренних деталей танка гофрированными переборками
-
11.6.2.1 К внутренним деталям (рисунки А.14 и А.15) относят элементы продольного силового набора таврового и уголкового профилей, продольные и поперечные гофры.
-
11.6.2.2 Линейные размеры элементов силового набора таврового и уголкового профилей hT, bn, bЦ, b" , £п, la, l^ , lc измеряют по методике, изложенной в 11.6.1.6,
-
11.6.1.7 . Результаты измерений их вносят в протокол, форма которого приведена в приложении Б.
-
11.6.2.3 Линейные размеры гофр (рисунок А.14) а ,b ,с , мм, измеряют штангенциркулем не менее двух раз. Показания штангенциркуля отсчитывают с погрешностью: ±0,1 мм. Расхождения между результатами двух измерений должно быть: не более 0,2 мм.
-
11.6.2.4 Результаты измерений величин а ,b ,с вносят в протокол, форма которого приведена в приложении Б.
-
11.6.2.5 Нижние и верхние границы (рисунок А.14) горизонтальных гофр hБ ,hД ,hБ ,hД, мм, измеряют измерительной линейкой или измерительной рулеткой не менее двух раз. Показания линейки или рулетки отсчитывают с погрешностью: ±1 мм. Расхождение между результатами двух измерений должно быть: не более 2 мм.
Результаты измерений hБ ,hД ,hд ,hД , m7 (число вертикальных гофр) вносят в протокол, форма которого приведена в приложении Б.
-
11.6.2.6 За значение нижней границы hГ вертикальных гофр принимают высоту флора.
Значения величин hГ, hГ вносят в протокол, форма которого приведена в приложении Б.
-
11.7.1 Базовую высоту Н , мм, измеряют рулеткой с грузом не менее двух раз. Показания шкалы рулетки отсчитывают с погрешностью: ± 1 мм. Расхождение между результатами двух измерений не должно превышать 2 мм.
Значение базовой высоты наносят на табличку, прикрепленной к измерительной трубе.
-
11.7.2 Результаты измерений Н б вносят в протокол, форма которого приведена в приложении Б.
-
11.7.3 Базовую высоту измеряют ежегодно. При изменении базовой высоты по сравнению с её значением, установленном при поверке танка, более чем на 0,1% проводят внеочередную поверку танка.
Результаты ежегодных измерений базовой высоты оформляют актом, форма которого приведена в приложении Г.
-
12 ОБРАБОТКА РЕЗУЛЬТАТОВ ИЗМЕРЕНИЙ
-
12.1 Обработку результатов измерений при поверке проводят в соответствии с приложением В.
-
12.2 Результаты вычислений вносят в журнал, форма которого приведена в приложении Г.
-
13 СОСТАВЛЕНИЕ ГРАДУИРОВОЧНОЙ ТАБЛИЦЫ
-
13.1 Градуировочную таблицу составляют, начиная от точки касания дна измерительной трубы грузом рулетки до предельного уровня Н , вычисляя посантиметровую вместимость танка.
-
13.1.1 При поверке танков с негофрированными переборками посантиметровую вместимость танка определяют:
- при наполнении первого пояса V(H) от уровня, равного нулю, до уровня Н по формуле (В.17);
- при наполнении второго пояса V(H)2 от уровня Н1 до уровня Н 2
по формуле
- при наполнении третьего пояса V(H) от уровня Н до уровня предельного уровня Н по формуле (В.19).
-
13.1.2 При поверке танков с гофрированными переборками посантиметровую вместимость танка при измерении уровня от нуля до Н определяют по формуле (В.30).
-
13.1.3 Предельный уровень Н , см, до которого составляют градуировочную таблицу, вычисляют:
- при поверке танка с негофрированными переборками по формуле
НПр = h1 + h2 + h3 - 1 , (4)
где h , h , h - высоты поясов, см;
f л - высота превышения точки касания дна измерительной трубы грузом рулетки, см;
- при поверке танка с гофрированными переборками по формуле
НПр = hkc + hc + h - , (5)
где h , h - высоты профилей кильсона и корлингса, см;
h - высота стенки переборки,см.
-
13.2 В пределах предельного уровня Н вычисляют коэффициент вместимости, равный вместимости, приходящейся на 1 мм высоты наполнения.
-
13.3 При составлении градуировочной таблицы значения вместимости танка округляют до 1 дм3.
-
13.4 Значения посантиметровой вместимости танка, указанные в градуировочной таблице, соответствуют температуре 20° С.
-
13.5 Результаты расчетов при составлении градуировочной таблицы вносят в журнал, форма которого приведена в приложении Г.
-
13.6 Обработка результатов измерений может быть проведена ручным способом или с использованием компьютера.
-
13.7 Результаты измерений должны быть оформлены протоколом поверки танка, форма которого приведена в приложении Б.
-
13.8 Протокол поверки является входным документом при расчете градуировочной таблицы на компьютере.
-
13.9 Требования к машинному алгоритму обработки результатов измерений:
-
- вместимость танка в пределах изменения уровня на 1 см определяют последовательным вычислением вместимости танка через каждое изменение уровня на 1 мм;
-
- последовательно вычисляя вместимость каждого наполнения на 1 мм, определяют вместимость танка с интервалом 1 см.
-
14.1 Результаты поверки танка оформляют свидетельством о поверке в соответствии с [4].
-
14.2 К свидетельству о поверке прилагают:
а) градуировочную таблицу;
б) протокол поверки (оригинал прикладывают к первому экземпляру градуировочной таблицы);
в) журнал обработки результатов измерений при поверке1).
-
14.3 Форма титульного листа градуировочной таблицы и форма градуировочной таблицы приведены в приложении Д. Форма акта ежегодных измерений базовой высоты танка приведена в приложении Е.
Протокол поверки, титульного листа и последнюю страницу градуировочной таблицы подписывает поверитель.
-
14.4 Градуировочную таблицу утверждает руководитель или уполномоченное лицо организации, аккредитованной на право проведения поверки.
ПРИЛОЖЕНИЕ А
Схемы оборудования и измерений параметров танка при поверке а) б) а-танк левого борта (левый танк); б-танк правого борта (правый танк);



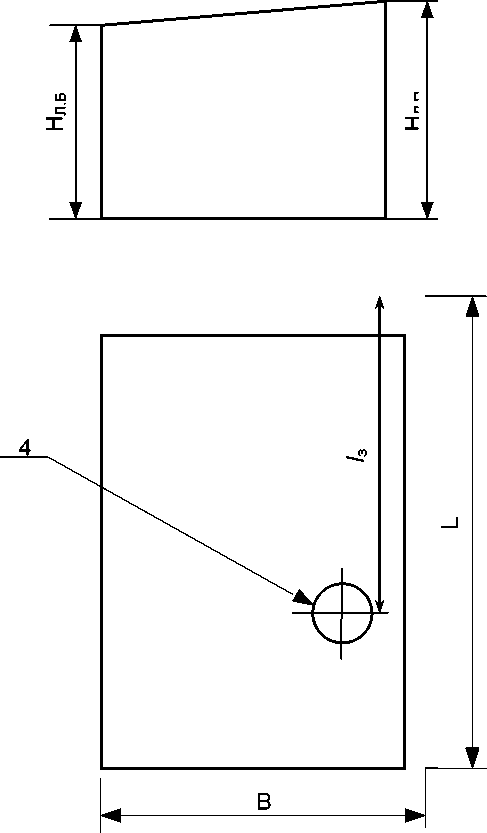
1-шпации; 2-рамные шпангоуты; 3,4 - измерительные трубы; НЛ.Б - высота танка по левому борту; НП.Б - высота танка по правому борту; НД.П - высота танка по диаметральной плоскости; L - длина танка; В - ширина танка.
Рисунок А.1 - Схема танка без скоса
а)
б)

а-танк левого борта; б-танк правого борта; 1- шпации; 2-рамные шпангоуты;
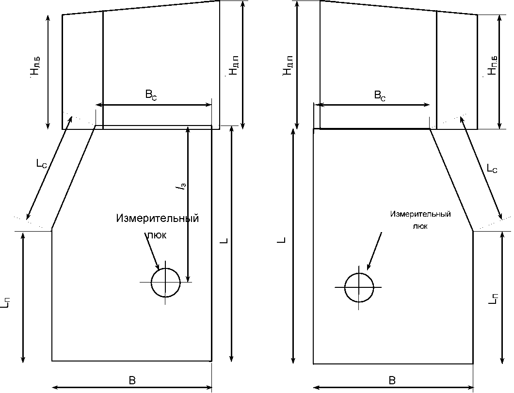
НЛ.Б - высота танка по левому борту; НП.Б - высота танка по правому борту; НД.П - высота танка по диаметральной плоскости; L - общая длина танка; Ln — длина прямоугольной части; В - ширина танка; Вс-ширина в скошенной части; L^ длина скоса.
Рисунок А.2 - Схема со скошенной частью
а)

б)

а- продольная переборка от левого борта судна; б- продольная переборка в диаметральной плоскости; 1,2,7,8 -горизонтальные отметки; 3- измерительная рулетка с грузом; 4,5 - сварные швы танка; 6,9,10,11 - вертикальные линии; А1-А6 , В1-В6 - точки измерений;
1° - расстояние между поперечной переборкой от носа судна и линией 6 или линией 9;
l*- расстояние между поперечной переборкой от кормы судна и линией 10 или линией 11; ho - расстояние между отметками 1и 7 и местом стыка переборки с палубой судна; h1 , h2 ,h3 - высоты поясов; I, II, III-номера поясов.
Рисунок А.3-Схема измерений параметров танка по продольной переборке
1 2
3
5
6
7

1, 2, 3, 4, 6, 7 - горизонтальные отметки; 5, 8, 9 - вертикальные линии; ho - расстояние между отметками 1, 3, 7 и местом стыка переборки с палубой судна; А1-А9 ,В1-В9 - точки измерений.
Рисунок А.4 - Схема измерений линейных размеров танка по продольной переборке со скошенной частью


1,6-горизонтальные отметки; 2,3-рамные стойки (шпангоуты); 4,5-сварочные швы; 7,8 -вертикальные линии; (В1-В6)-точки измерений; 10 - расстояние между поперечной переборкой от носа судна и точкой Bi (правой кромкой полки рамной стойки); 10 - расстояние между поперечной переборкой от кормы судна и точкой Волевой кромкой полки рамной стойки); b - расстояние между поперечной переборкой и вертикальной линией 7; а -
расстояние между вертикальной линией 7 до стенки рамной стойки; с-расстояние между
правой кромкой полки рамной стойки до её стенки.
Величину 1o вычисляют по формуле
lo =(a+b)-c.
Рисунок А.5 - Схема измерений параметров танка по продольной переборке в диаметральной плоскости судна при наличии рамных стоек

R Я 7 Я

а - поперечная переборка от носа судна; б- поперечная переборка от кормы судна; 1, 2, 3, 4, 5, 6, 7, 8 - горизонтальные отметки; А1 -А6, С1-С6 - точки измерений; ho -расстояние между отметками 1, 4, 5, 8 и палубой судна; 9, 10, 11, 12 - вертикальные линии; (bН )' -расстояние между продольной переборкой от левого борта судна и линией 12 в точках измерений А1, А3, А5; (bН)" - расстояние между продольной переборкой в
диаметральной плоскости судна и линией 11 в точках измерений А2, А4, А6.
Рисунок А.6 - Схема измерений ширины поясов по поперечной переборке танка
2
3

JI
Ml
h-:
Ml

Г

/ J |
/------------- |
' / | |
• Ai |
см < |
• А3 | - |
< |
► А5 |
Аб < |
£ -С |
I
М1:10


___ 3
1,4 -рамные бимсы; 2- карлингс; 3- горизонтальные гофры; 5,9
* \ рамные шпангоуты; 6-кильсон; 7,8 -флоры; 10-вертикальные
гофры; А1:А6-точки на торце полок рамных шпангоутов; h^-/ высота профиля карлингса^с - высота стенки; h^- высота / профиля кильсона; (/ Н)' -расстояние от стенки поперечной
переборки (гофры) до края полки рамного шпангоута.
10
Рисунок А.7 - Схема измерений длины гофрированной переборки от борта
2
3


1, 4 -рамные бимсы; 2 - карлингс; 3 - горизонтальные гофры; 5, 9 - рамные шпангоуты; 6-кильсон; 7, 8 -флоры;
10 - вертикальные гофры; В1:В6-точки на торце полок рамных шпангоутов; (1 н)" - расстояние от стенки поперечной переборки (гофры) до края полки рамного шпангоута.
Рисунок А.8 - Схема измерений длины гофрированной
переборки в диаметральной плоскости

1,6-рамные шпангоуты; 2- рамный бимс; 3,5 - горизонтальные отметки; 4- полотно (вертикальные гофры) поперечной переборки; 7,9- полотна (горизонтальные гофры) продольных переборок; А1,А3,А5-точки на торце полки шпангоута 1; В1,В3,В5- точки на торце полки шпангоута 6; (ЬК )',(Ь0)" - расстояния от стенок продольных переборок до полок рамных шпангоутов 1,6.
Рисунок А.9 - Схема измерений ширины танка по гофрированной поперечной переборке

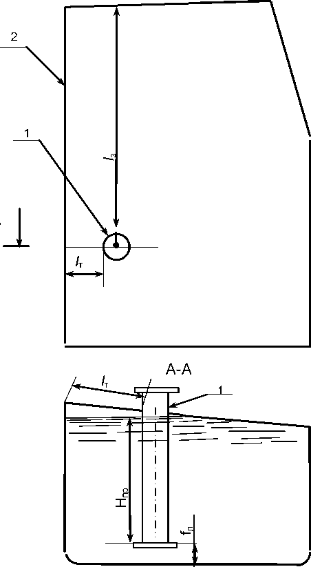
1 - измерительная труба; 2 - продольная диаметральная переборка; /з - координата точки измерений базовой высоты танка и уровня жидкости; /т - рассояние от продольной диаметральной переборки до образующей измерительной трубы; Нпр- предельный уровень градуировки танка; fn - расстояние от днища танка до дна измерительной трубы.
Рисунок А.10 - Схема измерений параметров танка.
1
2
3


3 - карлингс; 4 - настил палубы; 5 - стенка танка по диаметральной плоскости судна;
6-рамный шпангоут; 7 - клинкет; 8 - кильсон; 9,10 - флоры
Рисунок А.11 - Схема силового набора танка
х , 1 |
оо| | ||||
////////к//////// | |||||
. ЬП |
ЬП |
t | |||
1- |
2 | ||||
3 | |||||
////////////W/////////Z |
полка профиля; 2-стенка профиля; 3- присоединенный поясок обшивки; ЬП ,5п -длина и толщина полки; h7, tc - высота и толщина стенки профиля; Ь, Ь ” - расстояние от торцов полки до стенки профиля
Рисунок А.12 - Сечение таврового профиля
by
ЬП
1 - полка профиля; 2 - стенка профиля; 3 - обшивка днища; by - ширина полки; 8-У толщина стенки профиля; h - высота стенки профиля .

1-настил палубы судна; 2,6 -элементы силового набора уголкового профиля; 3-карлингс; 4-гофрированная продольная переборка в ДП; 5-кильсон; 7-гофриро ванная бортовая продольная переборка; аг - ширина верхнего основания гофра; Ьг - высота гофра; сг -ширина нижнего основания гофра; В-ширина танка; hБ, hБ, h Д, h Д - нижние и верхние границы гофр.
Рисунок А.14 - Схема сечения вертикальной плоскостью танка с гофрированными переборками
ПРИЛОЖЕНИЕ Б (обязательное)
Форма протокола поверки танка
ПРОТОКОЛ
поверки танка геометрическим методом
Т а б л и ц а Б.1 - Общие данные
Код документа |
Регистрационный номер |
Дата |
Основание для проведения поверки | ||
число |
месяц |
год | |||
Продолжение таблицы Б.1
Место проведенияповерки |
Средство измерения |
1 |
2 |
Окончание таблицы Б.1
Танк | |||
Номер |
Тип |
Назначение |
Погрешность определения вместимости, % |
3 |
4 |
5 |
6 |
Таблица Б.2 - Условия проведения измерений
Температура воздуха, оС |
Загазованность, мг/м3 |
Таблица Б.3 - Длина поясов В
миллиметрах
Номер пояса |
Номер измере ния |
Расстояние между точкамиизмерений |
Расстояние между поперечной переборкой и вертикальной линией | ||||||
lБ |
lД |
lБ Ас |
lБ Ап |
(10)' |
(10)' |
(10)" |
(10)" | ||
1 |
2 |
3 |
4 |
5 |
6 |
7 |
8 |
9 |
10 |
I |
1 | ||||||||
2 | |||||||||
II |
1 | ||||||||
2 | |||||||||
III |
1 | ||||||||
2 | |||||||||
Примечание - Граф |
)ы 5 и 6 заполняют только при наличии скошенной части танка |
Т а б л и ц а Б.4 - Высота поясов В миллиметрах
Высота пояса | ||
hi |
h2 |
h3 |
Номер пояса |
Номер измерени я |
Расстояние между точками измерений |
Расстояние между продольной переборкой и вертикальной линией | ||||
bн |
bк |
(b Н)) |
(ь Н)” |
(ь К) ’ |
(ь К)" | ||
I |
1 | ||||||
2 | |||||||
II |
1 | ||||||
2 | |||||||
III |
1 | ||||||
2 |
Т а б л и ц а Б.6 - Длина танка В
миллиметрах
Сечение переборк и |
Номер измерени я |
Расстояние между точками измерений |
Расстояние между поперечной переборкой и вертикальной линией | ||||||
lБ |
lД |
lБ с |
l пБ |
(1сН ) ' |
(1С)' |
(1сН ) " |
(1сК ) " | ||
1 |
2 |
3 |
4 |
5 |
6 |
7 |
8 |
9 |
10 |
Верхнее |
1 | ||||||||
2 | |||||||||
Среднее |
1 | ||||||||
2 | |||||||||
Нижнее |
1 | ||||||||
2 |
П р и м е ч а н и я
-
1 Графы 5 и 6 заполняют только при наличии скошенной части танка.
-
2 Графу 3 заполняют только для танков без скоса.
Т а б л и ц а Б . 7 - Высота танка
В миллиметрах
Высота стенки переборки hc |
Высота профиля | ||
1-е измерение |
2 -е измерение |
h кл |
h КС |
Т а б л и ц а Б . 8 - Ширина танка В миллиметрах
Сечение переборки |
Номер измерени я |
Расстояние между точками измерений |
Расстояние между продольной переборкой и вертикальной линией | ||||
bн |
bк |
(b Н)' |
(b Н)" |
(b К)' |
(b К)" | ||
Верхнее |
1 | ||||||
2 | |||||||
Среднее |
1 | ||||||
2 | |||||||
Нижнее |
1 | ||||||
2 |
Таблица Б.9 - Другие параметры танка
Измеряемый параметр |
Номер измерения |
Показание рулетки, штангенциркуля ,мм |
Координата точки измерений базовой высоты иуровня жидкости l3 |
1 | |
2 | ||
Высота превышения точки касания дна измерительной трубы грузом рулетки fn |
1 | |
2 | ||
Базовая высота танка Н б |
1 | |
2 |
Таблица Б.10 - Тавровый профиль
Наимено вание профиля |
Число m |
Размеры профиля,мм |
Размеры полки профиля,мм | ||||||
длина L п |
высота h т |
положение |
длина Ь п |
толщина ^п |
расстояние | ||||
нижнее h н |
верхнее h в |
b П |
b П | ||||||
1 |
2 |
3 |
4 |
5 |
6 |
7 |
8 |
9 |
10 |
Кильсон | |||||||||
Флор | |||||||||
Примечания
|
Т а б л и ц а Б.11 - Уголковый профиль
Месторасположе ние профиля |
Число профилей m |
Высота профиля l , мм |
Длина полки l , мм |
Толщина полки8п, мм |
Толщинапро филя8с, мм |
Т а б л и ц а Б.12 - Параметры горизонтальных гофр
Размер гофр,мм |
Числого фрМ |
Высота от днища танка,мм |
Схема расположения гофра«+», «-» | |||||
нижняяг раница h Б |
верхняяг раница h в |
нижняяг раница h Д н |
верхняяг раница h Д | |||||
аг |
сг |
b г | ||||||
1 |
2 |
3 |
4 |
5 |
6 |
7 |
8 |
9 |
Примечания
-
1 В графах 5,6 вносят данные по боковой переборке.
-
2 В графах 7,8 вносят данные по переборке диаметральной плоскости.
-
3 В графе 9 указывают знак «+», если выпуклость гофры направлена в наружу танка; знак «-», если выпуклость гофра направлена во внутрь танка.
Таблица Б.13 - Параметры вертикальных гофр
Размер гофр,мм |
Числого фрт |
Высота от днища танка,мм |
Схема расположения гофра«+», «-» | |||
нижняя граница h Г |
верхняя граница h Г | |||||
аг |
сг |
b г | ||||
1 |
2 |
3 |
4 |
5 |
6 |
7 |
Примечания
|
Примечания
-
1. В таблицы Б.3, Б.4, Б.5 вносят данные только по танкам с негофрированными переборками.
-
2. В таблицы Б.6, Б.7, Б.8, Б.12, Б.13 вносят данные только по танкам с гофрированными переборками.
Должность
Подпись
Инициалы, фамилия
ПРИЛОЖЕНИЕ В
(обязательное)
В.1 Вычисление площадей поперечных сечений поясов танка
В.1.1 Площадь поперечного сечения i-го пояса танка без скошенной части S;, м2, вычисляют по формуле
(В.1)
где L - длина i-го пояса,мм;
В - ширина i-го пояса,мм.
В.1.1.1 Длину Li, мм, вычисляют по формуле
L Sly), + (lfp).+ (10 )cpi+ (Ocpi
2
Величины (lCp)1,(lCp)1,(l0)cp1,(l0'')cp1 вычисляют по формулам (/в х = (11 )i + (12 )i адд = (1Д )i + (1Д )i
2;
... =(ik )1i + (ik )2i+(iH )1i + (iH )2i
(lo )cpi
(В.2)
4.
Значения величин
(1Б )i, (1Б )i, (1Д )i ,(1Д )i ,(1K )ii, (iok) 2i, (1H )ii, (10) 2i, (1k);', (1oK ) 2bW ХЖ ) 2i принимают по таблице Б.3 приложения Б. В.1.1.2 Ширину В,мм, вычисляют по формуле
n (bHp)i + (bkp)i + (bH )cpi + (bO )cpi
b. =
2
Величины (bCp)1,(bKp)1,(b0)cpi,(b K)cpi вычисляют по формулам ,hH x _(b1)i + (b2)u (bK )1 + (bk )1.
(bcp)i 2 ; (bcp)i 2 ;
=(bH )1i + (bH )2i + (bH )1i+(bH )2i.
(bo)cpi - ;
(В.3)
Значения величин (Ъ? ),,(Ь2н )-,(Ъ1к В(Ь2К Х,(ЬН )',(bo" ) '-,(ЪОИ )"Ж ) ",
(b 0)1i,(b о) 2i,(b O)1i,(b 0) 2i принимают по таблице Б.5 приложения Б.
В.1.2 Площадь поперечного сечения i-го пояса танка со скошенной частью (рисунок
А.2) S c , м2, вычисляют по формуле
106
,(В.4)
где
Lj - длина i-го пояса по продольной переборке в диаметральной плоскости танка, мм;
ВК - ширина i-го пояса по поперечной переборке танка, находящейся ближе к кормовой части судна, мм;
(Ln); - длина прямоугольной части i-го пояса по продольной бортовой переборе, мм;
(Lc); - длина скоса i-го пояса, мм;
(В )i - ширина i-го пояса по поперечной переборке танка, находящейся ближе
к носовой части судна, мм.
В.1.2.1 Длину Lj, мм, вычисляют по формуле
,д_ «U + (1оД )cpi
(В.5)
L —
Величины (lJp)i,(l0t )cPi вычисляют по формулам
,,д, _(1Д)i + (12Д)i. =(>o)1,+ (10)2,+ (IH)1,+ (IH)2,
(lcp )i ~ ; \lo )cpi
Значения величин (1Д\,(1ДХ,(/0)Ц,(/оК)2i,(l<?)11,(1?)21 принимают по таблице
Б.3 приложения Б.
В.1.2.2 Ширину Вк , мм, вычисляют по формуле
ок (bKp)i + (ьК)ср, в —---------
(В.6)
Величины (ЬКр);,(ЬК)cpi вычисляют по формулам
,Ькх _(ЬК)i + (ЬК= (b0)1 i + (b0)2i+(bo)1 + (b0)2i (bcp)i 2 ; (bo)cpi
Значения величин (ЬК)i,(b2)i,(b0)1i,(b0)2i,(b0)11,(b0)2i принимают по таблице Б.5 приложения Б.
В.1.2.3 Длину (L ) , мм, вычисляют по формуле
(L п )i
(1П )cpi + (10 )cpi
(В.7)
Величины (l^ ) ;, (lк ) ; вычисляют по формулам
ПБ. _(1пБ )li + (1пБ к. „к. )1 i + (lOK)2i
(1п )cpi ; (lo )cpi
O cpi 2
Значения величин (1б )н,(1б )2j, (loK )u,(loK ) 2i принимают по таблице Б.3 (графы
-
6,8) приложения Б.
В.1.2.4 Длину (LС )i, мм, вычисляют по формуле
„ . _(1сБ )cpi + (loH )cpi
(В.8)
(Lс )i =
2
вычисляют по формулам
(IH )cpi_(loH )1i + ') 2i
2
Величины (lСБ )cpi , (loH )cpi
(lсБ )cp,_(lf )1i + (lсБ )2i .
2 ;
Значения величин (1сб )l{,(lf )2i, (loH )u,(loH ) 2i принимают по таблице Б.3 (графы
-
5,7) приложения Б.
В.1.2.5 Ширину ( В ) , мм, вычисляют по формуле
(bcHp)i + (boH)cpi
(В.9)
(Bс )i
Величины (bH ) , (bH ) вычисляют по формулам
rbM = (bH)i + (bH_ = (bH)1 i + (bH)2i + (bH)1i+(bH)2i
(bcp)i 2 ; (bo)cpi
Значения величин (bH)i,(bH)i,(bH)ii,(bH)2i,(bH)u,(bH)2i принимают по таблице Б.5 (графы 3,5,6) приложения Б.
В.2 Вычисление площадей поперечных сечений танка с гофрированными переборками
В.2.1 Площадь поперечного сечения танка без скошенной части S , м2, вычисляют по формуле
c Lг • Вг
S т = , (В.10)
т 106
где L - длина танка, мм;
Вг - ширина танка, мм.
В.2.1.1 Длину L , мм, вычисляют по формуле
3 3 3 3
z (/Cp), +z C), +z (ic )cpi +z (ic) cpi
т _ i=1 i=1 i=1 i=1
L г =
6
Величины (1Ср)[,(1Др)1,{1С )cpi>(le")cpi вычисляют по формулам . ,М = (1Д )i + (1Д )i ,,Д, = (1 )i + (>Д )i
(lcp)i 2 (lcp)i 2
;
=(/ск )1i + (/к )2i + (/н )1i + (/н )2i
(lc )cpi
(В.11)
4;
J ,n =(1? )1i + (lK )2i + (1C )1i + (1C )2i (lc )cpi
4.
Значения величин (/*)i ,(l2)i,(1Д)i,(12)i,(ic)ii,(ic)2i,(lf )ii,(lf )2i,(lC)£, (P )” ,(L)" ,(L)” принимают по таблице Б.6 приложения Б.
В.2.1.2 Ширину Вг, мм, вычисляют по формуле
3 3 3 3
Z (bHp)i +Z (bCp)i +Z (bc) cpi +Z (bc) cpi i=1 i =1 i=1 i=1
(В.12)
Величины (bcHp)1,(bKp)1,(b C )Cpi,(b C )cpi вычисляют по формулам
K)i = ='b'' -'b''
J
zb4 =(bK )1i + (bO )2i + (bH )1i + (bH )2i (bc )cpi
4;
=(bK )1i + (bK )2i + (bH )1i + (bH )2i (bc )cpi
Значения величин
(bH )i,(bH )i,(bk )i,(b 2)i,(b к )ii,(b о )2i,(b о );.,(b H )2i,(b К )н,
(bк ) ” (bн ) ” (bн ) ”
о 2i о 1i о 2i принимают по таблице Б.8 приложения Б.
В.2.2 Площадь поперечного сечения танка со скошенной частью вычисляют по формуле
(В.13)
LJ - длина танка по продольной переборке в диаметральной плоскости, мм;
Вс - ширина танка по поперечной переборке, находящейся ближе к носовой части
судна, мм;
L - длина скоса продольной бортовой переборки, мм.
В.2.2.1 Длину Lrn, мм, вычисляют по формуле
33
Z (1пБ )cpi + Z (1С )cpi
Т Г _ i=1 i=1
(В.14)
П = 6 .
Величины (1Б)cpi,(l^ )cpi вычисляют по формулам
=(n )11 + (1Б)
(ln ) cpi
Пк, =(IC )11 + (IC )21
(lC )cp1
Значения величин (1Б )н, (1Б )2i, (l* ) ц, (l* )2i принимают по таблице Б.6 (графы
-
6,8) приложения Б.
В.2.2.2 Длину Lc, мм, вычисляют по формуле
33
Z«Б )cpi + Z (lcH )cpi L с = >=---------j=------
(В.15)
c6
Величины (1Б)cpi,(lc )cpi вычисляют по формулам:
(1Б. _(l сБ )11 + (1сБ )21 .
(lc )cp1 ~ ;
=(IC )11 + (IC )21
(lc )cp1
Значения величин (lСБ )u, (1Б )2i, (графы 5,7) приложения Б.
В.2.2.3 Величину Вк, мм , вычисляют
(lC )11, (lC)21 пРинимают по
таблице Б.6
по формуле
Вкг
3 3 3
]E(bkp)i +Z(b с) cpi +S(b с) cpi
i=1 i=1 i=1
(В.16)
Величины (bKp)1,(bC )Cp1 , (b C ) cp1
(bCp)i = Ml
вычисляют по формулам
J
__(bк)11 + (bк)21 ...
(b C )cp1 Q (b C )cp1
.(b к )1i + (b к
J
Значения величин (bK)i,(bK)i,(bo)1i,(b0X,i,(b0)1i,(b0)2/ пРинимают по таблице Б.8 (графы 3,5,6) приложения Б.
В.3 Вычисление посантиметровой вместимости танка с негофрированными переборками
В.3.1 Посантиметровую вместимость танка при наполнении первого пояса V(H)1 ,м3, при изменении уровня от 0 до Н1 вычисляют по формуле
V(H), = Vo + S, - H --^ -AV,'g, (В.17)
где V - вместимость танка, соответствующая уровню, равному нулю, м3;
S - площадь поперечного сечения первого пояса, вычисляемая по формуле (В.1) или по формуле (В.4), м2;
Н - уровень жидкости, отсчитываемый от точки касания дна измерительной трубы грузом рулетки, см;
Н1- уровень жидкости, соответствующий высоте (h1 — fn ), см;
h - высота первого пояса, см;
f - высота превышения точки касания дна измерительной трубы грузом рулетки, измеренная по 11.5.1, см;
AV - объем внутренних деталей, находящихся выше точки касания дна измерительной трубы грузом рулетки в пределах высоты первого пояса, м3.
В.3.2 Посантиметровую вместимость танка при наполнении второго пояса V(H) , м3, при изменении уровня от Н до Н вычисляют по формуле
V(H)2 = V( н 1) + S2 - (Н — Н 1) — av;;, (В.18)
где V(H1 ) - вместимость танка при уровне Н1 , м3;
S 2 - площадь поперечного сечения второго пояса, вычисляемая по формуле (В.1) или по формуле (В.4), м2;
Н2 - уровень жидкости, соответствующий высоте (h + h2 — fa), см;
AV," - объем внутренних деталей в пределах высоты второго пояса, м3.
В.3.3 Посантиметровую вместимость танка при наполнении третьего пояса V(H) 3 ,м3, при изменении уровня от Н 2 до Н вычисляют по формуле
V(H)3 = V(H 2) + S3 - (Н — Н 2) — av;; , (в.19)
где Нпр - предельный уровень жидкости, соответствующий высоте (h, + h2 + h3 — fn ) , см;
AV," - объем внутренних деталей в пределах высоты третьего пояса, м3.
В.3.4 Вычисление объема внутренних деталей
В.3.4.1 К внутренним деталям относят элементы силового набора (рисунок А.11):
- таврового профиля: кильсоны, флоры, карлингсы, рамные шпангоуты;
- уголкового профиля: продольные, так называемые, холостые балки, проходящие по днищу, бортам и палубе судна.
В.3.4.2 Объемы внутренних деталей АУВД, входящие в формулы (В.17)-(В.19), при расчете градуировочной таблицы на танк определяют суммированием объемов элементов силового набора, приходящихся на 1 см высоты, с учетом верхнего и нижнего положений элементов силового набора от точки касания дна измерительной трубы грузом
рулетки.
В.3.4.3 Суммарные объемы уголковых профилей, расположенных на днище танка и его переборках, распределяют равномерно по днищу танка и высоте переборок.
высоты
В.3.4.3.1 Объем профилей, находящихся на днище танка, приходящийся w , м3/см, вычисляют по формуле (рисунок А.13 )
на 1 см
[ln An + Ac • (lc )] • mi • Lу
W д =------------ ------------,
(В.20)
- число профилей, расположенных на днище танка;
- длина профиля, принимаемая равной длине танка L , мм.
Длину танка L т вычисляют для негофрированных танков по формуле
n
Z Li
L = k1__
L т
(В.21)
- длина i-го пояса, вычисляемая по формуле (В.2);
n - число поясов, принимаемое равным 3.
Пояснение символов lu ,Sn ,дс,lc приведена на рисунке А.13.
В.3.4.3.2 Объем профилей, находящихся диаметральной плоскости, приходящихся на 1 см вычисляют по формуле
на продольной переборке высоты w (рисунки А.11
танка в
и А.13),
(В.22)
где m 2 - число профилей, расположенных на продольной переборке; h1,h2,h3 - высоты поясов, мм.
В.3.4.3.3 Величины ln ,An ,Ac,lc , входящие в формулы (В.20),(В.21) и (В.22), выражают в миллиметрах.
В.3.4.4 Объем кильсонов (рисунки А.11, А.12), приходящийся на 1 см высоты w , вычисляют, м3/см :
- в пределах высоты стенки профиля (hT) w&с по формуле
[bп - (ЬП + bП )] • m3 • Lк
(В.23)
где bi - ширина полки профиля,0мм;
m - число кильсонов по ширине танка;
L - длина кильсона, мм. Значение L принимают равным длине танка, мм; h - высота стенки профиля, см;
- в пределах от высоты hT до высоты (hT + ) w "с по формуле где h - высота стенки таврового профиля флора, см; да - толщина полки таврового профиля флора, см.
ff
кс
bп • m3 • Lк
108
(В.24)
где 8а - толщина полки профиля, см.
В.3.4.5 Объем флоров (рисунки А.11, А.12), приходящийся на 1 см высоты w ,
вычисляют, м3/см:
- в пределах высоты стенки профиля (hT) w ф по формуле
[ЬП - (ьп + ьп)] • Ш4 • l ф w ф =
108
• hT ,
(В.25)
где L - длина флора, за значение которой принимают ширину танка,мм;
m4 - число флор по длине танка;
h - высота стенки профиля, см;
- в пределах от высоты hт до высоты (hт + Зп) wф по формуле
_ ь П • Ш4 • L ф
^^ф £ ,
ф 108
(В.26)
где дп - толщина полки профиля, см.
В.3.4.6 Объем рамных шпангоутов (рисунки А.11, А.12), приходящийся высоты w , м3/см, в пределах высоты шпангоута ( h ) вычисляют по формуле _{ЬП А + hт • [Ьп - (ЬП + ьП)]} • Ш5
w ш = ---------------—о--------------- ,
на 1 см
h - высота рамного шпангоута, см; ш
108
(В.27)
m5- число рамных шпангоутов.
В.3.4.6.1 Величину h ,см, вычисляют по формуле
hш = (h1 + h2 + h3) - hф ,
где h , h , h - высоты поясов, см;
h - высота флора, см.
В.3.4.6.2 Высоты флора h, см, вычисляют по формуле
В.3.4.7 Объем карлингсов (рисунки А.11, А.12), приходящийся на 1 см высоты w , вычисляют, м3/см:
- в пределах уровня от (h1 + h2 + h3 - hт) до уровня (h + h2 + h3 + £П - hT)
wпо формуле
w'
кг
b п • m6 • L К.Г
108
(В.28)
где L кг - длина карлингса, принимаемая равной длине танка, мм;
в пределах уровня от (h + h2 + h3 +£П — hT) до
уровня (
(В.29)
h1 + h2 + h3 + Зп + hт) wКГ по формуле
ff кг
[bп — (bП + bП)] • m6 • LК.Г
108
В.4 Вычисление посантиметровой вместимости танка с гофрированными переборками
В.4.1 Посантиметровую вместимость танка V(H), м3, вычисляют по формуле
S • H
V(H)= Vo + 75т1 ЛУВД — AVeg , (В.30)
где Vo - вместимость танка, соответствующая уровню, равному нулю, м3;
S - площадь поперечного сечения танка, вычисляемая по формуле (В.10) или (В.13), м2;
Н - уровень жидкости, изменяющийся (рисунок А.7) от 0 до предельного уровня Н , соответствующего высоте (h кс + h с + h кл — fn ), см;
ЛУвгД - объем гофр (горизонтальных и вертикальных), м3;
ЛУВД - объем внутренних деталей (таврового и уголкового сечений), м3.
В.4.2 Вычисление объема внутренних деталей
В.4.2.1 К внутренним деталям относят элементы силового набора (рисунок А.13), указанные в В.3.4.1, и гофры горизонтальные и вертикальные.
В.4.2.2 Объемы внутренних деталей, ЛУвГД, ЛУвД, входящие в формулу (В.30), при расчете градуировочной таблицы на танк определяют суммированием объемов элементов силового набора, приходящихся на 1 см высоты по В.3.4.2, и суммированием объемов гофр, приходящихся на 1 см высоты, с учетом верхнего и нижнего положений гофр от точки касания дна измерительной трубы грузом рулетки по продольным и поперечным переборкам танка.
В.4.2.3 Гофры продольных переборок трапецеидальной формы (рисунок А.14) заменяют равновеликими прямоугольниками, имеющими высоту, равную большому основанию трапеции с , ширину b ,мм, вычисляемую по формуле
(аг + сг ) • bг
(В.31)
В.4.2.4 Объем гофр продольных переборок, приходящийся на 1 см высоты w , вычисляют ,м3/см:
- гофр продольной переборки в диаметральной плоскости w 'т по формуле
f b ш • L г
(В.32)
w Г = ;
г 108
- гофр продольной переборки со скошенной частью w " по формуле
ff
г
bш • (Lrn + Lc)
108
(В.33)
где L - длина танка, вычисляемая по формуле (В.11),мм;
Lrn - длина прямоугольной части продольной бортовой переборки, вычисляемая по формуле (В.14);
L с - длина скоса продольной бортовой переборки, вычисляемая по формуле (В.15);
b - ширина прямоугольника, вычисляемая по формуле (В.31).
В.4.2.5 Объем гофр поперечных переборок, расположенных вертикально, приходящийся на 1 см высоты w , м3/см, вычисляют по формуле
(аг + сг) • bг • m7
(В.34)
2 • 108
где аг, сг ,bг - линейные размеры гофр (рисунок А.14),мм;
m - общее число гофр, расположенных на поперечных переборках.
ПРИЛОЖЕНИЕ Г (обязательное)
Форма журнала обработки результатов измерений
Ж У Р Н А Л
обработки результатов измерений
Г.1 Вычисление площадей поперечных сечений поясов танка: а) без скошенной части
Sj =... м2; S2... м2; S3... м2;
б) со скошеной частью
Sc2
Sc2
Sc2
Г.2 Вычисление площади поперечного сечения танка с гофрированными переборками:
а) без скошенной части
б) со скошенной частью
м2.
Г.3 Вычисление объемов внутренних деталей (углового и таврового профилей), приходящихся на 1 см высоты:
- угловых профилей:
W =■■■ м3/см; wС =■■■ м3/см; wБ =... м3/см;
-
- кельсонов:
w' =... м3/см; w” =... м3/см;
кс кс
-
- флор:
wф =... м3/см; wф =... м3/см;
-
- рамного шпангоута:
w3
ш =. м3/см;
-
- карлингсов:
wКг =... м3/см; wКГ=... м3/см.
Г.4 Вычисление объемов внутренних деталей (гофр) , приходящихся на 1 см высоты:
-
- горизонтально расположенных:
w' =... м3/см; w " =... м3/см;
-
- вертикально расположенных:
w3
в =. м3/см.
Нб =... мм.
Г.6 Вычисление координаты точки измерений базовой высоты и уровня жидкости
4 =... мм.
Г.7 Вычисление высоты превышения точки касания дна измерительной трубы грузом рулетки
f =. мм.
Г.8 Составление градуировочной таблицы Т а б л и ц а Г.1
Уровень наполнения, см |
Вместимость, м3 |
Коэффициентвместимости3), м3/мм |
1 |
2 |
3 |
0 |
4,581 | |
1 |
5,497 |
0,092 |
2 |
6,413 |
0,092 |
Нг |
45,8101) | |
Нг +1 |
46,720 |
0,091 |
Нг + 2 |
47,630 | |
Нг + Сг 2) |
73,296 | |
Нг + Сг + 1 |
74,217 |
0,092 |
Нг + Сг + 2 |
75,128 |
0,092 |
Нпр |
432,884 | |
1) Вместимость при уровне, соответствующем нижней границе первого гофра. 2) Вместимость при уровне, соответствующем верхнему положению первого гофра. 3) Коэффициент вместимости, равный 5 497 - 4 581 , , = 0,092 м3/мм. 10 |
Вычисление провел
подпись инициалы, фамилия
«____»_____________ ____г.
ПРИЛОЖЕНИЕ Д
(обязательное)
Форма титульного листа градуировочной таблицы и форма градуировочной таблицы
Д.1 Форма титульного листа градуировочной таблицы
УТВЕРЖДАЮ


г.
ГРАДУИРОВОЧНАЯ ТАБЛИЦА
на резервуар (танк) стальной горизонтальный
№ _________________ танкер типа _________________________________
Организация ________________________________________________________
Погрешность определения вместимости:
Программа расчета градуировочной таблицы на ПЭВМ утверждена ФГУП ВНИИР-ГНМЦ
«___»________________________ г
Срок очередной поверки ___________________________
Поверитель
подпись
должность,инициалы,фамилия
*
* Указывают в зависимости от номинальной вместимости танка.
Д.2 Форма градуировочной таблицы танка с негофрированными переборками
Организация ______________________________________
Танк № _____________________________
Таблица Д.1 - Посантиметровая вместимость пояса танка
Уровень наполнения, см |
Вместимость,м3 |
Уровень наполнения, см |
Вместимость,м3 |
0 | |||
1 | |||
2 | |||
Таблица Д.2 - Средняя вместимость пояса танка в пределах
вместимости,приходящейся на 1 см высоты наполнения
Уровень наполнения, мм |
Вместимость ,м3 |
Уровень наполнения, мм |
Вместимость ,м3 |
Уровень наполнения, мм |
Вместимость ,м3 |
1 |
4 |
7 | |||
2 |
5 |
8 | |||
3 |
6 |
9 |
Д.3 Форма градуировочной таблицы танка с гофрированными переборками
Организация ______________________________________
Танк № ___________________
Т а б л и ц а Д.3 - Посантиметровая вместимость пояса танка
Уровень наполнения, см |
Вместимость,м3 |
Коэффициент вместимости м3/см |
0 | ||
1 | ||
2 | ||
ПРИЛОЖЕНИЕ Е (обязательное)
Форма акта ежегодных измерений базовой высоты танка
УТВЕРЖДАЮ Руководитель предприятия владельца танкера (директор, гл.инженер)
А К Т измерений базовой высоты танка от «____»________________201__г.
Составлен в том, что комиссия, назначенная приказом по ______________________
наименованиепредприятия-
_____________________________________ , и членов:________________________ -владельца танкера инициалы, фамилии
провела по _________ контрольные измерения базовой высоты танка танкера типа ______
*
30 номинальной вместимостью _______ м при температуре окружающего воздуха С_____.
Результаты измерения представлены в таблице 1. Таблица 1
В миллиметрах
Базовая высота танка | |
Среднее арифметическое значение результатов двух измерений ( Нб)к |
Значение базовой высоты, установленное при поверке танка ( Нб)п ,мм |
1 |
2 |
Относительное изменение базовой высоты танка дб,%, вычисляют по формуле
(Нб)к - (Нб)п
дб =----"-----• 100, где значения величин ( Нб) к, ( Нб)п приведены в 1-й , 2-й графах.
(Нб)п
Вывод: требуется (не требуется) внеочередная поверка танка
Председатель комиссии
подпись инициалы, фамилия
Члены :
подпись |
инициалы, фамилия |
подпись |
инициалы, фамилия |
подпись |
инициалы, фамилия |
Указывают при заполнении.
БИБЛИОГРАФИЯ
-
[1] Приказ Минпромторга России от 30.11.2009 № 1081 (ред. от 25.06.2013) «Об утверждении Порядка проведения испытаний стандартных образцов или средств измерений в целях утверждения типа, Порядка утверждения типа стандартных образцов или типа средств измерений, Порядка выдачи свидетельств об утверждении типа стандартных образцов или типа средств измерений, установления и изменения срока действия указанных свидетельств и интервала между поверками средств измерений, требований к знакам утверждения типа стандартных образцов или типа средств измерений и порядка их нанесения»;
-
[2] ТУ 257761.007-87 Толщиномер ультразвуковой УТ-93П;
-
[3] ТУ ДКТЦ 413441.102 Анализатор - течеискатель АНТ-2М;
-
[4] Приказ Минпромторга России от 02.07.2015 № 1815 «Об утверждении Порядка проведения поверки средств измерений, требования к знаку поверки и содержанию свидетельства о поверке».
УДК 53.089.6: 621.642.2/3.001.4:531.73:006.354 ОКС 17.020 Т88.3 ОКСТУ 0008
Ключевые слова : танк, танкер, вместимость, уровень, поверка, градуировка, груз, высота, дифферент, угол, поверитель, измерение, погрешность, температура, судно .
53
Lrn ■ BK . (L? - Lrn) ■ [Bк + 0,5 JLj - (L? - Lrn)2]
т 103 --A ,
где Lrn - длина прямоугольной части продольной бортовой переборки танка, мм;
Вк - ширина танка по поперечной переборке танка, находящейся ближе к кормовой части судна, мм;