Методика поверки «Барьеры искробезопасности НБИ» (МП ЛПА-21.011.01)
УТВЕРЖДАЮ
Директор ФГУП

Барьеры искробезопасности НБИ
Методика поверки
ЛПА-21.011.01 МП
(с изменением №1)
Санкт-Петербург 2017 г.
Содержание-
1 Общие требования......................................................................................................................3
-
2 Операции поверки.......................................................................................................................3
-
3 Средства поверки..
-
4 Требования к квалификации поверителей...............................................................................
-
5 Требования безопасности..........................................................................................................
-
6 Условия поверки.........................................................................................................................
-
7 Подготовка к поверке.................................................................................................................
-
8 Проведение поверки...................................................................................................................
-
8.1 Внешний осмотр......................................................................................................................
-
8.2 Проверка сопротивления изоляции...................................................................
-
8.3 Опробование.............................................................................................................................
-
8.4 Определение метрологических характеристик.....................................................................
-
-
9 Оформление результатов поверки............................................................................................
Приложение А. Схемы подключения барьеров НБИ при поверке (обязательное).............
Приложение Б. Форма протокола первичной/периодической поверки (рекомендуемое) ...12
1 Общие требования-
1.1 Настоящая методика поверки (далее - методика) распространяется на барьеры искро-безопасности НБИ (далее - барьеры НБИ), изготовленные ООО «Ленпромавтоматика» и устанавливает методы и средства их первичной и периодической поверки.
-
1.2 Интервал между поверками - 2 года.
-
1.3 В случае ремонта барьеров НБИ производится поверка в объеме первичной.
-
2.1 При первичной и периодической поверке барьеров НБИ необходимо выполнять операции, указанные в таблице 1.
Таблица 1 - Операции поверки
Наименование операции |
Номер пунк-та методики поверки |
Проведение операции при | |
первичной поверке |
периодической поверке | ||
1 Внешний осмотр |
8.1 |
Да |
Да |
2 Проверка сопротивления изоляции |
8.2 |
Да |
- |
3 Опробование |
8.3 |
Да |
Да |
4 Определение метрологических характеристик |
8.4 |
- |
- |
4.1 Определение основной приведенной к диапазону преобразования (ДП) погрешности преобразования силы постоянного тока в значения силы постоянного тока в рабочем диапазоне преобразования |
8.4.1 |
Да |
Да |
-
2.2 При несоответствии характеристик поверяемых барьеров НБИ установленным требованиям по любому из пунктов таблицы 1 поверка прекращается и последующие операции не производятся, за исключением оформления результатов по подразделу 9.3.
-
3.1 При проведении поверки должны применяться средства поверки, указанные в таблице 2 и вспомогательное оборудование, приведённое в таблице 3.
Таблица 2 - Основные средства поверки
Номер пункта методики поверки |
Наименование и тип (условное обозначение) основного средства поверки. Обозначение нормативного документа, регламентирующего технические требования, и (или) метрологические и основные технические характеристики средства поверки |
8.2 |
Цифровой мегаомметр Е6-24/1 Диапазон измерений сопротивления 10,0. ..99,9 МОм, пределы относительной погрешности измерений сопротивления 5 = ± (3 % + 3 емр). |
8.4.1 |
Калибратор процессов документирующий Fluke 753, диапазон воспроизведения силы постоянного тока - до 22 мА, основная относительная погрешность воспроизведения 0,01 %+0,003 мА (за 1 год); Мультиметр В7-64/1, диапазон измерения напряжения постоянного тока от 1 мкВ до 1250 В, основная погрешность измерения постоянного напряжения ± 0,004 %; Мера электрического сопротивления однозначная Р3030, номинальное значение сопротивления -10 Ом, кл. 0,002. |
Таблица 3 - Вспомогательное оборудование
Номер пункта документа по поверке |
Наименование и тип (условное обозначение) дополнительного оборудования поверки; обозначение нормативного документа, регламентирующего технические требования и (или) основные технические характеристики |
Не входящие в комплект изделия | |
6.1 |
Источник питания постоянного тока Б5-12: пределы установки выходного напряжения постоянного тока от 0,01 до 50 В. Измеритель влажности и температуры ИВТМ-7 Н-01: диапазон измерений относительной влажности от 0 до 99 %, пределы допускаемой основной абсолютной погрешности измерений относительной влажности ± 2,0 %; диапазон измерений температуры от минус 20 до 60 °C, пределы допускаемой основной абсолютной погрешности измерений температуры ± 0,2 °C. Барометр-анероид контрольный М67: диапазон измерения атмосферного давления от 610 до 790 мм рт. ст., предел допустимой погрешности ± 0,8 мм рт. ст., поправки на любой отметки шкалы не более ± 1,5 мм рт. ст. |
3.2 При проведении поверки допускается применять другие средства измерений, удовлетворяющие по точности и диапазону измерений требованиям настоящей методики.
-
3.3 При поверке должны использоваться средства измерений утвержденных типов.
-
3.4 Используемые при поверке средства измерений должны быть поверены в соответствии с Порядком проведения поверки средств измерений, утвержденным Приказом Минпромторга России № 1815 от 02 июля 2015 г. и иметь действующие свидетельства о поверке (знак поверки).
-
3.4 (Измененная редакция, Изм. №1)
-
4.1 К поверке допускаются лица, аттестованные на право поверки средств измерений электрических величин, изучившие Руководство по эксплуатации на барьеры искробезопасности НБИ ЛПА-21.011.01 РЭ, знающие принцип действия используемых средств измерений.
-
4.2 К поверке допускаются лица, освоившие работу с барьерами НБИ и используемыми средствами измерений, изучившие настоящую методику и имеющие достаточную квалификацию.
-
4.3 Поверитель должен пройти инструктаж по технике безопасности (первичный и на рабочем месте) в установленном в организации порядке.
-
4.1,4.2 (Измененная редакция, Изм. №1)
-
5.1 При проведении поверки необходимо соблюдать требования техники безопасности, предусмотренные «Правилами технической эксплуатации электроустановок потребителей» и «Правилами техники безопасности при эксплуатации электроустановок потребителей» (изд.З), ГОСТ 12.2.007.0-75, ГОСТ 12.1.019-79, ГОСТ 12.2.091-94, требования безопасности, указанные в технической документации на применяемые средства поверки, а также прочие документы, устанавливающие требования к безопасности выполнения работ в месте проведения поверки.
-
6.1 При проведении поверки должны соблюдаться следующие условия:
-
- температура окружающего воздуха, °C.....................................................20 ± 5;
-
- относительная влажность воздуха, %..................................................от 30 до 80;
-
- атмосферное давление, кПа.........................................................от 86 до 106,7.
-
-
7.1 При подготовке к поверке:
-
- проверить наличие свидетельств о поверке (знаков поверки) средств поверки;
-
- подготовить средства поверки согласно их эксплуатационной документации;
-
- проверить соблюдение условий разделов 5, 6 настоящей методики;
-
- занести в протокол поверки условия окружающей среды (температура, влажность воздуха и атмосферное давление)
-
7.2 Барьер НБИ должен быть полностью укомплектован согласно эксплуатационной документации.
-
8.1.1 При внешнем осмотре барьеров НБИ проверить маркировку и отсутствие механических повреждений.
Маркировка барьера должна быть четкой и содержать:
-
- изображение знака утверждения типа в соответствии с Приложением 4 к Приказу Минпромторга России от 30.11.2009 г. № 1081;
-
- наименование барьера НБИ;
-
- наименование и товарный знак предприятия - изготовителя;
-
- заводской номер барьера по системе нумерации предприятия-изготовителя;
-
- вид и номинальные значения силы тока и напряжения.
Барьеры НБИ не должны иметь механических повреждений, таких как вмятины на корпусе, царапины, некачественный крепеж элементов прибора, которые могут повлиять на его работу. Особое внимание следует обратить на наличие возможных повреждений разъемов.
-
8.1.2 Результаты внешнего осмотра считать положительными, если выполняются все вышеперечисленные требования. В противном случае поверка не проводится до устранения выявленных недостатков.
-
8.2.1 Проверку электрического сопротивления изоляции барьеров НБИ в зависимости от их модификации производить мегаомметром с рабочим напряжением 500 В в следующей последовательности:
- при проверке сопротивления изоляции барьеров НБИ-20П, НБИ-20У, НБИ-21П и НБИ-21У соединить между собой клеммы «9», «10», «И», «12», «13», «14», «15» и «16» поверяемого барьера. Затем соединить между собой клеммы «1», «3», «4», «5», «7» и «8». Измерение сопротивления изоляции проводят между получившимися двумя цепями;
-
- при проверке НБИ-22П и НБИ-22У соединить между собой клеммы «10», «11», «12», «14», «15» и «16» поверяемого барьера. Затем соединить между собой клеммы «1», «3», «4», «5», «7» и «8». Измерение сопротивления изоляции проводить между получившимися двумя цепями;
-
- при проверке НБИ-10П, НБИ-10У, НБИ-11П и НБИ-11У соединить между собой клеммы «9», «10», «И» и «12», «13» поверяемого барьера. Затем соединить между собой клеммы «1», «3», «4». Измерение сопротивления изоляции проводить между получившимися двумя цепями;
-
- при проверке НБИ-12П и НБИ-12У соединить между собой клеммы «1», «3» и «4» испытуемого барьера. Затем соединить между собой клеммы «10», «И», «12». Измерение сопротивления изоляции проводить между получившимися двумя цепями.
-
8.2.2 Результаты проверки считать положительными, если значения сопротивления изоляции при всех измерениях составили не менее 20 МОм.
-
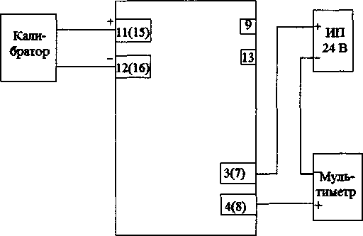
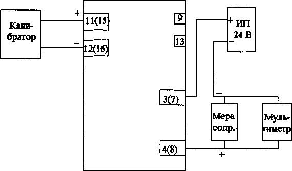
8.3.1 Собрать измерительную схему в соответствии с рис. А.1 а, б, в, г Приложения А (в зависимости от модификации барьера НБИ), подать питание на калибратор.
-
8.3.2 Включить питание мультиметра и подготовить его к работе в режиме измерения силы постоянного тока.
-
8.3.3 Подать питание на барьер НБИ от источника постоянного напряжения (кроме НБИ-12П, НБИ-12У, НБИ-22П и НБИ-22У).
-
8.3.4 Подать с калибратора тока одно из значений силы постоянного тока из диапазона преобразуемых барьером НБИ (от 4 до 20 мА). Для двухканальных модификаций НБИ-2ХП, НБИ-2ХУ проверку проводить для каждого канала (нумерация клемм второго канала указана в скобках на соответствующих схемах Приложения А)
-
8.3.5 Результаты опробования считать положительными, если показания мультиметра изменились и соответствуют поданному с калибратора.
8.4 Определение метрологических характеристик (MX)
8.4.1 Определение основной приведенной к ДП погрешности преобразования силы постоянного тока в значения силы постоянного тока в рабочем диапазоне преобразования-
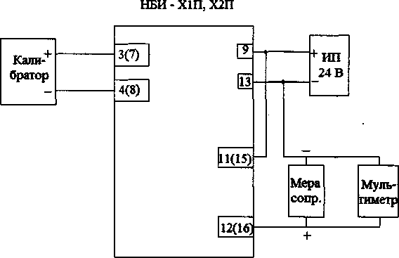
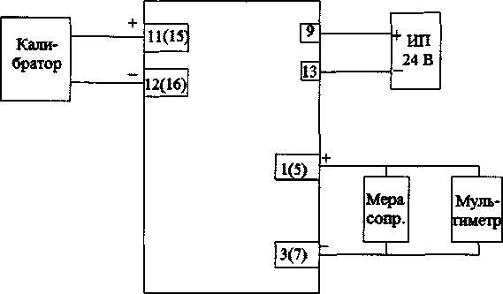
8.4.1.1 Собрать измерительную схему в соответствии с рис А.2, а, б, в, г Приложения А (в зависимости от модификации поверяемого барьера НБИ и числа каналов преобразования), подать питание на калибратор.
-
8.4.1.2 Включить питание мультиметра и подготовить его к работе в режиме измерения напряжения постоянного тока.
-
8.4.1.3 Подать питание на барьер НБИ от источника постоянного напряжения (кроме НБИ-12П, НБИ-12У, НБИ-22П и НБИ-22У) и прогреть его в соответствии с РЭ (в течение 15 мин).
-
8.4.1.4 Задать на калибраторе значение силы постоянного тока 1кал, из ст. 1 таблицы Б.2 Приложения Б.
-
8.4.1.5 Измерить мультиметром значение падения напряжения на мере сопротивления однозначной, подключенной к выходным клеммам барьера. Зафиксировать полученное значение имеры в ст. 2 таблицы Б.2.
-
8.4.1.6 Рассчитать силу постоянного тока проходящего через меру по формуле (1):
1вых = имеры /10, (1)
где имеры - значение напряжения постоянного тока на мере сопротивления, измеренное мультиметром, мВ;
-
10 - номинальное значение меры электрического сопротивления, Ом;
и зафиксировать полученное значение 1вых в ст. 3 таблицы Б.1 Приложения Б.
-
8.4.1.7 Рассчитать основную приведенную к ДП погрешность преобразования силы постоянного тока в значения силы постоянного тока в заданном диапазоне преобразования (у, %) по формуле (2):
у = ± (1вых - 1кал)-100/16 , (2)
где 1вых - значение силы постоянного тока на выходе барьера НБИ, мА;
1кал - эталонное значение силы постоянного тока на входе барьера, мА;
16 -диапазон преобразования силы постоянного тока, мА.
-
8.4.1.8 Последовательно задать на калибраторе все значения силы постоянного тока (1кал, мА) из таблицы Б.1 Приложения Б.
-
8.4.1.9 Повторить п.п. 8.4.1.5 - 8.4.1.7 для всех значений силы постоянного тока (1кал, мА). Результат зафиксировать в таблицу Б.1 приложения Б.
-
8.4.1.10 Отключить средства поверки от канала преобразования 1.
-
8.4.1.11 Подключить средства поверки к каналу преобразования 2 барьера НБИ согласно рисунку А.2 а, б, в, г.
-
8.4.1.12 Повторить п.п. 8.4.1.4 - 8.4.1.9 для канала преобразования 2. При этом использовать таблицу Б.2 Приложения Б.
-
8.4.1.13 Отключить средства поверки от каналов преобразования барьеров НБИ. Выключить питание.
-
8.4.1.14 Результаты поверки считать положительными, если максимальное значение приведенной к ДП погрешности преобразования силы постоянного тока в значения силы постоянного тока в рабочем диапазоне преобразования находится в допускаемых пределах ± 0,1 %.
-
9.1 Результаты измерений, полученные в результате поверки занести в протокол. Рекомендуемая форма протокола приведена в приложении Б.
-
9.2 Положительные результаты поверки барьера НБИ оформить нанесением знака поверки на корпус или в паспорт прибора, или выдать «Свидетельство о поверке» в соответствии с Порядком проведения поверки средств измерений, утвержденным Приказом Минпромторга России № 1815 от 02 июля 2015 г.
-
9.3 При несоответствии результатов поверки требованиям любого из пунктов настоящей методики барьеры НБИ к дальнейшей эксплуатации не допускаются и выдается извещение о их непригодности к использованию в соответствии с Порядком проведения поверки средств измерений, утвержденным Приказом Минпромторга России № 1815 от 02 июля 2015 г. В извещении указывается причина непригодности и приводится указание о направлении в ремонт или невозможности дальнейшего использования барьеров НБИ.
Ведущий инженер
ФГУП «ВНИИМ им. Д.И. Менделеева»
Руководитель отдела
ФГУП «ВНИИМ им. Д.И. Менделеева»

П.Н. Мичков
А.Н. Пронин
НБИ-ХОП

а)
НБИ-Х1П, Х2П

б)
НБИ - ХОУ, Х1У

в)
НБИ-Х2У

г)
Рисунок А. 1 Схемы подключения барьеров НБИ при опробовании
Рисунок А.1 а), б) (Измененная редакция, Изм. №1)
НБИ-ХОП

а)

б)
НБИ - ХОУ, Х1У

в)
НБИ-Х2У

г)
Рисунок А.2 Схемы подключения барьеров НБИ при определении основной приведенной к ДП погрешности преобразования силы постоянного тока в значения силы постоянного тока в рабочем диапазоне преобразования
Рисунок А.2 а), б) (Измененная редакция, Изм. №1)
Приложение Б. Форма протокола первичной/периодической поверки(рекомендуемое)
ПРОТОКОЛ поверки №______
Барьеры искробезопасности НБИ (далее - барьеры НБИ) модификации___________, зав. №____________
-
1 Вид поверки..............................................................................................
-
2 Дата поверки.............................................................................................
-
3 Условия поверки:
-
3.1 Температура окружающего воздуха, °C..........................................................
-
3.2 Относительная влажность воздуха, %............................................................
-
3.3 Атмосферное давление, мм рт. ст..................................................................
-
-
4 Используемые средства измерений:
-
5 Поверка проводится согласно документу «Барьеры искробезопасности НБИ. Методика поверки ЛПА-21.011.01 МП»
-
6 Результаты поверки:
-
6.1 Внешний осмотр.......................................................................................
-
6.2 Проверка сопротивления изоляции...............................................................
-
6.3 Опробование............................................................................................
-
6.4 Метрологические характеристики:
-
6.4.1 Определение основной приведенной к ДП погрешности преобразования силы постоянного тока в значения силы постоянного тока в рабочем диапазоне преобразования.
Таблица Б.1 Канал 1
1кал, мА |
имеры, мВ |
1вых, мА |
у, % |
Допускаемые значения 1вых, мА | |
мин. |
макс. | ||||
1 |
2 |
3 |
4 |
5 |
6 |
4,0 |
3,984 |
4,016 | |||
8,0 |
7,984 |
8,016 | |||
12,0 |
11,984 |
12,016 | |||
16,0 |
15,984 |
16,016 | |||
20,0 |
19,984 |
20,016 |
Таблица Б.2 Канал 2
1кал, мА |
имеры, мВ |
1вых, мА |
у, % |
Допускаемые значения 1вых, мА | |
мин. |
макс. | ||||
1 |
2 |
3 |
4 |
5 |
6 |
4,0 |
3,984 |
4,016 | |||
8,0 |
7,984 |
8,016 | |||
12,0 |
11,984 |
12,016 | |||
16,0 |
15,984 |
16,016 | |||
20,0 |
19,984 |
20,016 |
Максимальное значение основной приведенной к ДП погрешности преобразования силы постоянного тока в значения силы постоянного тока в рабочем диапазоне преобразования составило______________и находится в допускаемых пределах ± 0,1 %.
-
7 Дата очередной поверки...........................................................................
Результаты поверки - положительные.
Поверитель:
Должность
Дата
Подпись
Фамилия И.О.
13