Паспорт «ИOНОМЕР ЛАБОРАТОРНЫЙ И-130» (Г.Р. 9096-83)


СССР
ЭКСПОРТ
V. _J
ПАСПОРТ
В связи с совершенствованием прибора предприятие-изготовитель оставляет за собой право вносить непринципиальные изменения в конструкцию и схеьгу прибора, не влияющие на основные технические характеристики, без отражения этих изменений в паспорте.
ШИМАНИа ПОТРЕБИТЕЛЯ!
При настройке прибора для измерения pH (рХ) и в измерения (поверки) необходимо использовать один вид температурной компенсации.
процессе и тот же
При
сации на
переходе с одного вида температурной компен-другой необходимо произвести полную настройку прибора в соответствии с п.7.3 (9.4).
13. ПОВдаСА HOHOIvitPA И-130 ПОВЕРОЧНШкШ 0РГАНЖ1-..
Зав. №
■'1
‘I ;
Наименование поверочного органа
i Заключение jПодпись повери-
f 0 поверке (теля.
i i Оттиск новери-
j [тельного клейма
т '
i
i
i
I
I ii
i
i
i
i i tт i i i i i i i
I i i
! I i
металлов в иономере
№№ пп |
— Наименование материалов |
Марка |
“1--------------- !Кол-во ! г I |
--- Примечание |
I. |
Бронза |
БрБ-2 |
1,66 |
контакты, пружины |
2. |
Цинк |
Ц-0 |
27,8 |
покрытие винтов, гаек |
3. |
Медь |
кпшт |
1315,18 |
платы, каркас |
ш |
корпус, компенсатор. | |||
lllvUi |
шнуры, катушки | |||
провода марок HBfd, НЭВ, кабель | ||||
4. |
Латунь |
Л63 TKpIff |
экраны, лепестки, панели, планки. | |
628,487 |
колпачки, каркас, | |||
депт |
заклепки | |||
5. |
Алюминий и алюминиевые сплавы |
АМг |
5920,085 |
платы, крьппки. |
АОМ |
стяжки, панели, | |||
1Ж16 |
759 |
винты |
драгоценных материалов
входящих в электроды,
-
12.6.2. Сведения о суммарной массе иономере:
золото - 0,2791 г.
серебро - 1,1156 г.
палладий - 0,09731 г.
Количество драгоценных материалов, соответствии с паспортами на них.
-
12.6.3. -Сведения о наличии цветных
СОДЕРЖАНИЕ
ТЕХНИЧЕСКОЕ ОПИСАНИЕ
-
1. Назначение иономера
-
2. Технй^ёские характеристики
-
3. Состав иономера и комплект поставки
-
4. Устройство и принцип работы
-
4.1. Общие сведения
-
4.2. Принцип действия и схема измерительного преобразователя
-
4.3. Конструкция иономера
-
ИНСТРУКЦИЯ ПО ЭКСПЛУАТАЦИИ
-
5. Указание мер безопасности
-
6. Подготовка иономера к работе
-
7. Порядок работы
7.1. Общие указания
7.3.
„ощие указания Измерения окислительно-восстановительного потенциала (Eh ), э.д.с. электродных систем и других источников
____ Настройка иономера и измерение рХ
-
8. Градуировка, проверка и настройка преобразователя
-
8.1. Общие указания
-
8.2. Вспомогательные устройства и приборы
-
8.3. Градуировка преобразователя в режиме рХ
-
8.4. фоверка градуировки преобразователя
-
8.5. Настройка преобразователя
-
8.6. Проверка и регулировна выходных напряжений преобразователя
-
-
9. Методы и средства поверки
-
9.1. Операции поверки
-
9.2. Средства поверки
-
9.3. Условия поверки
-
9.4. Подготовка к поверке
-
9.5. Проведение поверки
-
9.6. Оформление результатов поверки
-
-
10. Характерные неисправности и методы их устранения
-
11. Правила хранения и транспортирования
-
12. Прочие сведения
ПРИЛОЖЕНИЯ: I, Таблица значений pH буферных растворов
-
2. Таблица значений э.д.с. для градуировки преобразователя при измерении активности одновалентных катионов (рХ)
-
3. Таблица значений э.д.с, для градуировки преобразователя при эимерении активности двухвалентных катионов (рХ) Основные технические данные термокомплен-сатора Принципиальная схема и намоточные данные силового трансформатора преобразователя Схема испытательной установки для проверки преобразователя иономера И-130
стр.
5
5
9
9
9
17
29
29
29
29
35
35
35
-
35
-
36
36
39
39
-
39
-
40
-
41
-
42
-
48
-
49
-
50
-
4.
-
5.
-
7.
8.
9.
10.
II.
12.
13.
Преобразователь. Схема электическая принципиальная, Перецень элементов
Усилитель (плата А7). Схема электрическая принципиальная. Перечень элементов Измерительная схема (плата Аб). Схема электрическая принципиальная. Перечень элементов
Аналого-цифровой преобразователь (плата А5) Схема электрическая принципиальная Перечень элементов
Аналого-цифровой преобразователь (плата А4) Схема электрическая принципиальная Перечень элементов
Плата индикаторная. Схема электрическая принципиальная. Перечень элементов
Плата индикаторная. Схема электрическая
принципиальная, йеречень элементов
14, 14а, 146. Цифро-аналоговый преобразователь. Схема
15, 15а.
16
электрическая принципиальная
Перечень элементов
Блок питания. Схема электрическая принципиальная. Перечень элементов
. к%шалка. Схема электрическая принципиальная. Перечень элементов
Принципиальная схема и нагло точные данные силового трансформатора и электромагнитпв мешалки
I
* !Наименование изделий i |
I Наличие j 1 драгметаллов j i i |
Кол-во на I изделие мг |
ГД------- j приме-(Чанне i | |
22. |
кМкросхема 1й1544УД1А |
золото |
18,0001 |
Г---— |
23. |
-"- K56lJiH2 |
золото |
0,3662 | |
24. |
К572Г1А2 |
золото |
70,3410 | |
бронза |
81,2000 | |||
25. |
KI42EH6A ■ |
золото |
8,8760 | |
26. | ||||
27. | ||||
28. |
Диод световой АдЗО7Бм |
золото |
5,4336 | |
29. |
^Ьадикатор цифровой AJiC324b золото |
16,2826 |
имеет | |
серебро |
24,9754 |
•золоченые выводы | ||
30. |
-"- AjiC333B |
золото |
13,3363 | |
серебро |
24,7735 | |||
31. |
Вьшрямительный блок 1гЦ405и |
золото |
1,4000 | |
32. |
Переключатель П2К |
серебро |
8,2750 |
содержит эдна группа |
33. |
ГД"3-5П8Н-1ГГ |
серебро с |
П9,44 | |
34. |
ПКН-41-1 |
серебро |
25,836 | |
35. |
Резонатор РК170БВ-.'6^/7 |
с серебр.Электр и серебросодерж | ||
припоем | ||||
36. |
Блок диодный КЦ-407 |
золото |
3,3120 | |
37. |
Предохранитель БПТ6.-5 |
серебро |
16,6200 |
Примечанкч,. Количество комплектующих изделий и место установки - в соответствии с перечнем элементов приложений 7-16.
-
12,6. Сведения о драгоценных металлах.
12.6,1. В комплектующих изделиях
ш |
i Наименование изделий ! |
!Наличие !драгметал. |
!Кол-во на !1 изделие, ! мг |
!Приме- !чание ! |
I. |
Резистор KIIM-0,125 |
серебро |
84,606 | |
2. |
fUIT |
2,4754 |
МЛТ-05 нет | |
3. |
С2-29В-0.062 |
II |
2,4754 | |
4. |
C2-29B-0,I25 |
2,4754 | ||
5. |
С2-29В-0,25 |
п |
4,6086 | |
6. |
02-34-0,125 |
.2,4754 | ||
7. |
С5-55 |
II |
17,57 | |
3. |
СП5-2 |
ПЭСрМ серебро ПСр |
18,000 з.ёо I"?,20 ■ | |
9. |
Фоторезистор ФРЗ |
серебро |
5,561 |
10.
II.
Диод ВД-521
-
13.
-
14.
-
15.
-
16.
17.
IS.
Стабилитрон
п
Микросхема
И
II
-
19.
-
20.
11
21,
II
золото серебро |
0,0013 0,0521 | |
[ КС I9I |
серебро |
0,0521 |
КС 210 |
II |
-0,0521 |
КС-175 |
IT |
0,0521 |
К140УД13 |
золото |
17,2073 |
К555ЛЛ1 |
II |
0,3793 |
К555Ж1 |
It ПЗЛЛЗД14И |
0,2733 0,0070 |
К293ЛП1А |
ЗОЛОТО. |
1,6687 |
KPI42EH5A |
золото серебро , палладий |
2,4020 14.3ПЗ 4,5270 |
КР514ад2 |
золото |
0,3754 |
-5-
ТЕХВИЧйЗСКОЕ ОПИСАНИЕ
-
1. HA3HA4i^MB ИОНОМЕРА
Иономер лабораторный И-130 (в дальнейшем иономер) предназначен для измерения активности ионов водорода (рН), активности .других одновалентных и двухвалентных анионов и катионов (рХ) и окислительно-восстановительных потенциалов (Ей) в водных растворах с представлением результатов в цифровой форме и в виде аналогового сигнала напряжения постоянного тока".
Иономер предназначен для использования в лабораториях предприятий и научно-исследовательских учреждений химической, металлургической', фармацевтической промышленности, в сельском хозяйстве, в медицине, в биологии, а также в других отраслях народного хозяйства.
Иономер изготавливается для н^лвд народного хозйства и для поставки на экспорт, в том числе в районы с тропическим климатом.
Рабочие условия применения иономера соответствуют значениям климатических йакторов для изделий исполнения УХ)! категории 4.2 по ГОСТ 15150-69, а при поставке в районы с тропическим - исполнению 0 категории 4.1 по ГОСТ 15150-69.
-
2. ТЕХНИЧЕСКИЕ ХАРАКТЕРИСТИКИ
-
2.1. Диапазон измерительного преобразователя (в дальнейшем - преобразователя):
-
-
1) в режиме измерения активности единиц pH (рХО
-
2) в режиме измерения э.д.с., мВ
Диапазон измерения величины рХ и нов определяется типом применяемого в измерительного электрода.
ионов от минус 20
до плюс 20 от минус 2000 до плюс 2000.
вид контролируемых ио-комплекте с иономером
-
2.2. Цена единицы младшего, разряда (дискретность):
-
1) в режиме измерения активности ионов, единиц pH (рХ)
-
2) в режиме измерения э.д.с., мВ
-
2.3. Пределы допускаемых значений погрешности преобразователя
-
I) в режиме измерения активности ионов, единиц рН(рХ)
0,001
0,1 основной абсолютной
4. /0,01 при1ХИ0, ,
10,001Гщ)и 10<}ХЬ20, где Х-значение измеряемой величины
. fl пои 1X16 1000 lo.OOiX при 10004X1*2000, где X - значение измеряемой величины
2.4. Преобразователь обеспечивает работу с электродными системами, имеющими следующие характеристики:
I) зависимость э.д.с. электродной активности следующего вида
В =Е^ + СрХ - рХ„),
2) в режиме измерения э.д.с., мВ
системы от измеряемой
(I)
где Ё - э.д.с. электродной системы, мВ;
Е , рХ. - координаты изопотенциальной точки электродной системы, мВ и рХ соответственно.
Преобразователь обеспечивает настройо для значений в пределах: Е - ни?кний предел, мВ - минус 100'Л IUU, верхний предел - плюс 1000 + 100; рХ - нижний предел~О, верхний предел единиц рХ - плюс 10 _+_ I.
Si - значение крутизны электродной системы при данной температуре t 0, мВ/рХ;
5 = -0,1984 (273,16 + I ' (2)
где K-i- коэффициент, равный 0,82 ... 1,09, позволяющий учитывать отклонение крутизны электродной системы от теоретического значения, для которого Kj =1;
t - температура измеряемого раствора, °C;
п - коэффигттиент, зависящий от вида и валентности иона (см. табл. I).
Таблица I
т i
т i
т i т i
т i i
_2
Валентность и тип иона Одновалентные катионы, X* Одновалентные анионы, X" Двухвалентные катионы, Х**' Двухвалентные анионы, X
При выпуске из производства преобразователь выпускается настроенным на электродную систему с параметрами:
- О мВ pXj, - 'Л ООО •Sso “"08,163
мВ/рХ ( i = 20°С,
-
2) электрическое сопротивление цепи измерительного электрода от О до ЮООЮм
электрода от
-
3) электрическое сопротивление цепи вспомогательного электрода от О до 20 кОм
2.Ь. Диапазон ручной теомокомпенсации - от О до 150°С, автоматической - от минус 20°С до 150*^0.
2;6. Входное сопротивление преобразователя не менее
I • 10 ’■ Ом (при = 2В).
2.7. Пределы допускаемых значений дополнительных погрешностей (наибольшие допускаемые изменения погрешностей, обусловленные изменением влияющих величин в пределах рабочей области) преобразователя должны соответствовать табл. 2.
12 Л. ГАРАНТИЙНЫЕ ОБЯЗАТЕЛЬСТВА
1. Изготовитель гарантирует соответствие иономера требованиям технических условий при соблюдении потребителем правил эксплуатации, транспортирования и хранения.
Гарантийный срок хранения - 6 месяцев со дня изготовле-
2.
НИЯ.
-
3.
Гарантийный срок эксплуатации иономера - 18 месяцев ввода в эксплуатацию.
Гарантийный срок на электроды - в соответствии с паспор-них.
Предприятие-изготовитель обязано в течение гарантийного
со дня
-
4.
том на
-
5. ________ _________________ __________ -- ______ -_г__________
срока безвозмездно ремонтировать иономер, принадлеткности и запасные части вплоть до замены иономера в целом, если они за этот срок выйдут из строя или их характеристики окажутся ниже норм технических требований.
Гарантийный срок продляется на время от подачи рекламации до введения иономера в строй силами предприятия-изготовителя.
-
12.5. СВЕдаНИЯ О PEIUlAlvlAiJ^flX
При неисправности яономера в период гарантийного срока
• потреоителем должен быть составлен акт с указанием признаков . неисправностей.
I Акт с указанием точного адреса и № телефона потребителя высылается в адрес завода-изготовителя.
J 246634,г.Гомель, ул.Интернациональная,49
Завод измерительных приборов
I Все предъявляемые рекламации и их краткое содержание
' регистрируемое*
12. ПРОЧИЕ СВЕДЕНИЯ.
12.I. Свидетельство о приемке и поверке.
Иономер лабораторный типа И-1Х ______заводской №
соответствует техническим условиям ТУ 25-0511.044-84 и признан годным для эксплуатации .
Прибор прошел первичную ведомственную поверку на заводе -изготовителе.
Дата вьшуска _________________
Представитель ОТК. ведомственный поверитель
‘if
Представитель Госприемки
12.2. Свидетельство о консервации и упаковке. г
Иономер лабораторный типа И-130 ______ заводской №
законсервирован по варианту временной противокоррозионной защиты ВЗ-Ю и упатсован по варианту НУ-5 ГОСТ 9.0I4-7B согласно требованиям технических условий и комплекту конструкторской документации.
Срок защиты без переконсервации
3 года
./i
- f
упаковки
Дата
Дата
Упаковку и консервацию }
произвел
и
Изделие после упаковки и консервации принял
консервации _2

Таблица 2
Влияющие величины
(Значение влияго-(Щих величин в (Пределах рабо-(Чей области
(преобразователя !
i
i
Температура измеряемого раствора (погрешность термокомпенсации)
(Пределы допускаемых (Значений дополни-(Тельньк погрешнос-( тей (в долях пре-(Дела основной абсо-(Лготной погрешности (На конце диапазона (Преобразователя
0,002 X (рХ-рХ„)х X (t-20),
гдet - температура контролируемого раствора, оС
а) при ручной термо-компенсации
б) при автоматической термокпмпенса-ции
Сопротивление цепи из мерительного электрода (R^)
Сопротивление цепи вспгмогатэльного электрода (Rg)
э.д.с. постоянного тока в цепи "Земля-раствор’*
Напряжение переменного тока частотой 50 Гц в цепи вспомогательного электрода
Напряжение питания сети
Температура окружающего воздуха (на каж-цые 10 °C изменения температуры): в режиме измерения рХ
в режиме измерения э.д.с.
от о до 150 °C
от миьг/с 20 до
150 °C'
от
от
от
ЦО
от
О до ТООО МОм
о. 5 и на каждые
500 МОм
О до 20 'кОм
минус 1,5 в
плюс 1,5В
О до 50 мВ
(220+22) В
0,25«. на каждые
10 кОм
0,5и. (при £g=I0 кОм)
0,5 и.
0,5 и
0,5«+ 0,000251и/, где и - измеряемое напряжение, мВ Примечание. Коэффихшентн = I при измерениях в режиме "V" и измерениях активности одновалентных ионов. При измерениях активности двухвалентных ионов п. =2.
-<s-
В,В. Входные и выходные цепи преобразователя гальванически разделены - имеетсяв возможность производить измерения в заземленных растворах и подключать к выходу устройства с заземленным входом.
-
2.9. Время установления показаний преобразователя в секундах не превышает значения, определяемого по формуле
tycT. ‘3’
где - значение сопротивления цепи измерительного электрода,
5 - коэффициент, имеющий размерность с/ГОм
I - постоянная, имеющая размерность I ГОм
-
2.10. Время прогрева преобразователя не превышает 30 мин.
-
2.11. Выходные напряжения 0...2 В и О -... 100 мВ для нагрузок с сопротивлением не менее 4 кОм и 50 кОм соответстванно.
Предел допустимых значений, основной приведенной погрешности выходных напряжений соответствует + 0,5 %.
-
2.12. Изменение показаний преобразователя за 6 ч непрерывной работы не превышает 0,5n значения предела допускаемой основной абсолютной погрешности. Коэффициент и = I для режимов рХ+(рХ-) иУ
И = 2 для режимов рХ-^(рл—).
-
2.13. Питание преобразователя от сети нием (220 + 22) В частотой (50 + 1,0) Гц, сети с частотой (60 + Х2 ) Гц. "
переменного тока напрнже-допускаетсн питание от
превьш1ать 50 BA дл.1 пре-
-
2.14. Потребляемая мощность не должна образователя .
-
2.15. Иономер предназначен для работы
в следующих условиях: от 10 до 35 °С;
температура окружающего воздуха
относительная влажность окружающего воздуха от
'30 до 80 .
атмосферное давление от 66 до 106 кЛн (от 630 до 795 мм.рт.ст.).
-
2.16. Параметры анализируемой среды:
анализируемая среда - водные растворы неорганических и органических соединений, технологические растворы; пожаровзрывобезопасная;
пленок и осадок не образует;
не радиоактивна и не токсична;
температура среды определяется типом электродной системы и указывается в паспортах на соответствующие электроды.
-
2.17. Габаритные размеры, мм, не более
преобразователя 330x155x350;
штатива в сборе 200x200x370.
-k3-
II. ПРАВИЛА ХРАНЕНИЯ И ТРАНСПОРТИРОВАНИЯ
-
11.1. Иономеры должж храниться в помещении с температурой воздуха от 10 до 35 °C при относительной влажности до 80% при температуре (20 + 5) °C. В помещении не должно быть токопроводящей пыли, паров кислот, щелочей, а также газов, вызывающих коррозию и разрушающих изоляцию.
-
11.2. Иономеры должны транспортироваться при следующих условиях:
а) совместно со стеклянными (измерительными) электродами и вспомогательными электродами - при температуре от мицус 25 до плюс 50 °C;
б) без стеклянных (измерительных) и вспомогательных электродов - при температуре от минус 50 до плюс 50 "С (от минус 50 до плюс 60 ° для исполнения О категории 4.1).
Относительная влажность воздуха при транспортировании не должна превышать 80% при температуре (20 + 5) °C.
-
11.3. Транспортирование иономеров может осуществляться любым видом транспорта с защитой от дождя, снега и обливания морской водой.
Транспортирование воздушным транспортом должно осуществлять ся только в отапливаемых герметизированных отсеках.
-
11.4. Расстановка и крепление транспортных ящиков при транспортировании должны ооеспечиват-ь устойчивое положение при следовании в пути, отсутствие смещений и ударов друг о др:^га.
-
11.5. Не допускается транспортирование- иономера в транспортных средствах, имеющих остатки активнодействующих химикатов, цементной пыли и угольной пыли и т.д.
-
11.6. После транспортирования при отрицательных температурах иономеры должны быть выдержаны в нормальных условиях в течение 24 часов.
iO. UPAICTEHIUE НЕИСПРАВНОСТИ И МЕТОДЫ ИХ
УСТРА1-1ЕНШ1
Таблица II
Наименование' неисправности, внешнее проявление и дополнительные признаки
I. При включении преобразователя в сеть светится цифровое табло
! Вероятная причина!
)
Перегорел предохранитель, обрыв в се-'тевом шнуре
Метод
устранения
3. Показания иономера самопроизвольно изменяются
Обрыв в кабеле или разъеме измерительного злектрода, выход из строя измерительного или вспо-
Проверить и заменить предохранитель, проверить и отремонтировать сетевой шнур Заменить измерительный электрод, проверить сопротивление вспомогательного электрода;
3, При настройке иономера по контрольным растворам показания иономера почти не изменяются
могательного электро--при необходимости
да . ' ----------- ----------
Трещина в измерительном электроде
заменить электрод
Заменить электрод
Примечание. Проверка электродов производится указаниями паспортов на них.
в соответствии с
B.IB. Масса иономера, кг, не более числе преобразователя, кг, не более 7,0.
расп-
В.19. Срок службы иономера - 8 лет (на электроды не ространяется).
3. СОСТАВ ИОНОМЕРА И К0Ш1ЕНТ ПОСТАВКИ
и И-130.1.
-
3.1, Иономер поставляется в двух исполнениях: И-130 Комплект поставки иономера приведен в табл.З.
Таблица
Наименование
I. Преобразователь
В. Паспорт
3. Комплект запасных частей
Обозначение |
Кол-во i |
5M2.206.0I3 |
I шт. ■ |
IE2.840.780 ПС |
I экз. |
5М4.070.020 |
I компл. |
Примечание
З.В. Исполнения иономера различаются комплектом поставки запасных частей. Состав комплекта запасных частей приведен в таблице 4.
4. УСТРОЙСТВО И ПРИНЦИП РАБОТЫ
-
4.1. Общие сведения
Для измерения активности одно- и двухвалентных ионов в растворах используется электродная система с ионоселективными измерительными электродами и преобразователь. В качестве вспомогательного Электрода используется хлорсеребряный электрод.
Электродвижущая сила электродной системы зависит от активности соответствующих ионов в растворе и определяется уравнением (I), приведенным в п. 2.4.
Значение рХ контролируемого раствора определяется измерением э.д.с. электродной системы с помощью преобразователя непосред/ ственно в единицах рК.
-
4.2. Принцип действия и схема измерительного преобразователя.
4.2.1. Структурная схема преобразователя
Структурная схема преобразователя приведена на рис.1.
Работа преобразователя основана на преобразовании э.д.с. электродной системы и других источников э.д.с. в пропорциональное по величине напряжение, преобразуемое в дальнейшем в цифровой код и аналоговый выходной сигнал. Структурная схема преобразователя включает в себя слещ'ющие &/нкциональные узлы: усилитель (плата А7), измерительную схему (плата А6), аналого-цифровой преобразователь (АЦ[1-платы А4.АЬ), блок индикации (узел AI),
..... блок цифроаналогового преобразователя (ЦАП-плата АЗ) и блок питания (плата А2).
■Ю-
Таблица А
Наиме но&аиие
О&омчаиение докчмеита
Олектрод етекллнчыО лабораторный ЭСЛ-45-07
Олектрод стеклянный jtaSopamopHb/O ЭСЛ-65~О7
Электрод платиноЗыО ЭЛ8-/
Электрод бспомоготель-ный 26Л' /М5. 1 Термокомпенсатор ТМ-7
2. &Ай. 065
2. &AD. 059
2. 540.055
2. 840. 058
2. 905. 014
Мешалка
3.253.007
IOifO4 элех.пзрали/т)ииеский
5. /64.412
Ключ электролипщуеский
5. /29. ОО/
Штекер
5. 282.004
Столик
6.124. 004
Подсто&ксг
6. 150. Q2&
Держатель



_ |
- А 7~
цифроврьгу табло при напряжении питания , рл;
цифровом^-' табло при напряжении питания 3, рХ
f " V
p)(i - отсчет по I
242 (198)
рХо- отсчет по !
(2204.-4,4)
3 режиме измерения " V " дополнительную погрешность преобразователя от изменения напряжения питания определяют аналогично.
Дополнительная погрешность преобразователя, обусловленная изменением напряжения, не должна превышать 0,5 к значения предела допускаемой основной абсолютной погрешности на конце диапазона измерения преобразователя.. Коэффициент ^^ = 1 для режимов рХ‘*’(рХ ) и =2 для рХ++ (рХ ).
-
9.5.6. Проверку изменений показаний измерительного преобразователя при непрерывной работе производят путем записи показаний цифрового табло преобразователя в коде I-2-4-8 с выхода "фУ" печатающим устройством.
Запись показаний цифрового табло производят после тридцатиминутного предварительного прогрева и далее через каждые 15 глин в течение 8 ч непрерывной работы преобразователя.
Провер^_изменений показаний преобразователя производят в режиме " при - -= 0 (закороченном входе). Необходи№1е
показания преобразоватёДя устанавливают ручкагли и переключателя->ли "Ей" и "рХи".-
Допускается производить запись показаний визуально с п.ифрово-го табло через каждые 30 мин.
Изменение показаний измерительного преобразователя не должно превышать ± 0,01 и рХ за 8 ч непрерывной работы п = I для режимов рХ^ ХрХ-*-) и 'п = 2 для рХ--(рХ+*).
Оформление результатов поверки
9,0.1. Результаты поверки считаются положительными, если прибор удовлетворяет всем требованидал, изложенным в пп. 9.5.1-
9.0.2. Положит.ельнтле результаты поверки o^op^nroTCH путем выдачи свидетельства о государственной или ведомственной поверке по установленной стандартом СССР форме, одновременно на прибор наносится клеймо о поверке по установленной форме.
-
9.6.3. Результаты считаются отрицательными ,. если при проведении поверки установлено несоответствие поверяемого прибора хотя бы одному из требований, изложенных в пп. 5.1 - 5.8.
-
9.6.4. Отрицательные результаты поверки оформляются щ'тем выдачи извещения о непригодности с указанием причины непригодности и гашением клейма о поверке.
При этом запрещается выпуск иономера в обращение и его применив.
непрерывной работы
[ рХ~-(рХ++)/
-4^-
при нулевом сопротивлении в цепи вспомогательного электрода подают на вход преобразователя напряжение^от потенциометра, соответствующее точке Л/ при температуре 20С и отсчитывают после установления показаний по цифровому табло два одинаково часто появляющихся значения:
устанавливают сопротивление в цепи вспомогательного электрода, равное 20 кОм и вновь отсчитывают показания по цифровому табло два одинаково часто появляющихся значения.
Дополнительную погрешность преобразователя, обусловленную изменением сопротивления в цепи вспомогательного тывают по. взят при .
I двум наиболее отличающихся отсчетам
О, а второй при = 20 kOi
электрода рассчи-•ам, ИЗ КОТОрЬК ОДИН кОм ПО форт^уле
- -всп.
где о - дополнительная погрешность, нением сопротивления в цепи электрода, рХ;
рл( - отсчет по цифровому табло при сопротивлении в цепи вспомогательного электрода равном 20 кОм;
рХо - отсчет по цифровом:/ табло при сопротивлении в цепи вспомогательного электр,ода равном нулю.
Дополнительная погрешность преобразователя, обусловленная изменением сопротивления в цепи вспомогательного электрода не должна превышать 0,25 п значения предела допускаемой основной абсолютной погрешности на конце диапазона измеоения преобразователя на каждые W кОм изменения сопротивления. Коэффициент = 1 для режимов рХ+(рХ ) иУ; = 2 для рХ (^++).
9.5.7. Дополнительную погрешность преобразователя, обуслрвлен-ную изменением напряжения питания от номинального значения 220 Б (режимы работы и точки V диапазона указаны в табл.Ю), опреде-
■ ляют следу'ющим образом:
устанавливают на регуляторе напряжения питания (220^,4) В
в режиме рХ"*" подают на вход преобразователя напряжение от потенциометра, соответствующее точке v при температуре раствора 20ОС и и отсчитывают после установления показаний на цифровом табло два одинаково часто появляющихся значения;
устанавливают на регуляторе 242 В, после тридцатимищ/тной выдержки преобразователя при этом напряжении питания, подают на вход напряжение„от потенциометра, соответствующее точке при температуре 20 С и после установления показаний на цифровом табло отсчитывают два одинаково часто появляющихся значения.
Ан^огично поступают при минимальном напряжении питания, р.ав-Дополнитеяьную погрешность преобразователя, обусловленную изменением напряжения питания определяют по двум наиболее отличающимся отсчетам, один из которых взят при напряжении 220 В, а второй при напряжении 242 (19о)В по формуле
(12) обусловленная изме-вспомогательного
где
отсчетам, один из которых взят при напряжении 220 В, --------------------- п л •') f тп е. \ п — XL _. _
8 = рХ, - рКо ' ‘ (13)
- дополнительная погрешность, обусловленная изменением напряжения питания, рХ;
Продолжение то5л. А
Наименобание
Магниглиал Ьертуш/^о
Одознаиение doKi/Hie»ma
6. 395. 002
5.595. ООН

Кабель
. 6. 6А5.055
Кабель
6. 5^5. 055
б^абель
6. 545.057
Блок элекл)роыагни/7)об
в- 650. 002
Крь/и/ка
& 057. ОК 2
Держатель
8. (23. 0^5
TpfoSo
3. 626. ОКБ
ПлаФО перекодиая
Болт
Зилка РП16'52 ШЗР
Предокролс/тель
Зт-1-0.25
5ПТ6~5
Стакан И-2-Ю0ТС
Герма/нгтр 1-65 ТЛ-2 Калии клориса)ь/й „КЧ" Стандарт - титры
ОтЗертка 7610-0302 Н12.К1
6. 760.096
8. 920.009
ГОСТ 75566-32
ГОСТ 2i5-73
ГОСТ Ii26li-TT
ГОСТ &.ii5-Tif
ГОСТ 17199'71
-Q=ani3:
(:il=>-czc:9
Рабхл. X лреоРр.
Отлиис/л) нетко'

^^»а=<=г1Цргт~г~г
Побкл. к
L
Ключи олектролитичеокие &. 164.412, 6429,001 и крышке 6.057,042 иепол1ьэуютоя лдя расширения технически возможное^ ,( тей прибора и могут быть поставлены потребителю при нвобходи~ мости X эа отдельную плату, . -.
Продолжение табл._ 4
Наименование |
! Обозначение доку- 1 мента |
1 ! •Кол.i i 1 |
Примечание |
-01 |
2.840.601-01 |
2 |
Только |
Эа-Зг -01 |
2.840.601-02 |
2 |
для И-130. |
ЭМ-Са-01 |
2.840.601 |
2 | |
ЭЫ- A'Og-OI |
2.840.601-04 |
2 | |
ЭМ-К -01 |
2.840.601-03 ' . |
2 | |
ЭМ- ^H4-0I |
2.840.601-08 |
2 |
I
~/s-
Погрешность температурной компенсации преобразователя в диапазоне температур от минд/с 20 до 150 не должна превышать значений, определяе№!Х следующей формулой
Лрх = 0,002 (t - 20) (рХ - рХи)4«^
где
- температура раствора, °C; рХ - значение измеряемой величины, рХ;
(10)
-
- координата изопотенциальной точки применяемой Электродной системы, рХ;
"редел допускаемой погрептости, термокомпенсации^
-
- основная абсолютная погрешность на конце диапазона измерения преобразователя.
'т п = I для режима рХ (рХ ) и
= 2 для рХ''"*'(рХ ).
9.5.5, Дополнительнд^ю погрешность преобразователя, обусловленную изменением сопротивления в цепи измерительного электрода, определяют (режимы работы и точки л' диапазона указаны в табл.Ю) следующим образом:
при сопротивлении в цепи измерительного электрода, равном нулю, подают на вход преобразователя напряжение от потенциометра соответствующее поверяемой точке и отсчитывают после установления показаний два одинаково часто появляющихся на цифровом табло значения;
устанавливают в цепи измерительного электрода сопротивление, равное I ГОм или 10 ГОм и вновь отсчитывают на цифровом табло после установления показаний два одинаково часто появляющихся на цифровом табло значения.
Дополнительную погрешность преобразователя, обусловленнд'Ю изменением сопротивления в цепи измерительного электрода, рассчитывают по двум наиболее отличающимся отсчетам, одно из которых взято при сопротивлении = (3, а второе при сопротивлении = I Гом (10 ГОм) по форглуле п_ рХ, - рХо
--к----- (II)
где S' - погрешность,обусловленная изменением сопротивления в цепи измерительного электрода, рХ;
рХ<- отсчет по цифровому табло при сопротивлении в цепи измерительного электрода I ГОм (ЮГОм), рХ;
рХо- отсчет по цифровому табло при сопротивлении мерительного электрода, paBHOfA^/ нулю, рХ;
к - коэффициент, равный двум при сопротивлениив рительного электрода Ки = I ГОм (К=20 при R
в цепи из-
цепи изме-Н = 10 ГОм).
Дополнительная погрешность преобразователя, вызванная изменением сопротивления в цепи измерительного электрода, не должна превышать 0,5 к значения предела-допускаемой основной абсолютной погрешности на конце диапазона измерения преобразователя на каждые оОО МОм изменения сопротивления. Коэффициент п = I для режимов рХ'^(рХ“) п = 2 для рХ'*”^(рХ )
9.5.6. Дополнительщ'ю погрешность преобразователя, обусловленную изменением сопротивления в цепи вспомогательного электрода, определяют (режимы работы и точки V диапазона указаны в табл.Ю) следующим образом;
Таблица 10
Значение влил:о:цего фактора
5ли>"одий фактор
номинальное! значение, при ко-значение
■ тором определяется влияние
Режимь’, в которьж производится: поверка
! Точки циапазона, Е которь'х производится поверка
Температуря раствора; а) автоматическая тер-мокомпеИсациг
б) ручная термокомпен-саии>
Сопротивление в цепи измерительного электрода
СопротиЕление в пени вспомогательного электро да
;;апг;}'жение
нитаниг

20
2С
минус 2С °C‘С °C; ЮС °C; IbC °C
242 Ь; tOb
°C,
101’Ом)
В;
рх"
рХ"
рх"
'рН)
(pH)
рХ'^ к pH) рХ- ,рН)
минус
минус
минус
минус
20
20
20
20
20
20
минус 20
20
рХ, рх
рХ; рх
рХ; рХ
рХ; РЛ
рХ;
20 рХ минус 2,000 В;
2,000 Б
рХ;
рХ;
рХ;
рХ;
рХ;
О Б;

Усилитель построен по схеме с модуляцией и демодуляцией входного сигнала (МДМ).
В качестве модулятора используется двухтактный фотоэлектронный модулятор, выполненный на светодиодах и высокоомных фоторезисторах. Управляющий .сигнал на светодиоды вырабатывается формирователем ИМПУЛЬСОВ опорной частоты 12,5 Гц путем деления частоты сигнала.
Усиление промодулированногэ сигнала производится усилителем, выполненным на 2-х интегральных микросхемах, первая из которых имеет высокое входное сопротивление и низкий уровень шумов.
Демодулятор осуществляет фазячувствительное однополупериод-ное выпрямление усиленного сигнала. Уменьшение пульсации выходного сигнала осуществляется интегратором.
Измерительная схема обеспечивает работы преобразователя в режиме рХ и реализует:
установку координат изопотенциальной точки рХ;
подстройку крутизны "5%" применительно к крутизне реальной Электродной системы;
температурную компенсацию э.д.с. электродной системы.
При работе в режиме измерения э.д.с. (" V ") измерительная схема не используется. ■*
Измерительная схема выполнена на трех усилителях, первый из которых является инвертором, во втором осуществляется установка коэффициента передачи в зависимости от валентности и значения крутизны " 5 % реальной электродной системы, а также установка значения Е Третий усилитель реализует установку- координаты рХ и температурную компенсацию.
Преобразование постоянного напряжения с выхода усилителя а цифровой код, для индикации результатов цифровым табло, осуществляется аналого-цифровым преобразователем САДП). Здесь же осуществляется гальваническое разделение сигналов между входными цепями преобразователя и его выходом, что позволяет производить измерения в заземленных растворах при заземленных выходных цепях преобразователя.
Аналого-цифровой преобразователь состоит из преобразователя, измеряемого напряжения в интервалы времени ( Ux лТ), преобразователя инт^валов времени в пропорциональное им количество имцульсов (.лт—^п ), формирователя тактовых импульсов.
Блок индикации служит для подсчета количества импульсов и индикации результата анализа.
Цифро-аналоговый преобразователь осуществляет обратное преобразование цифрового кода в аналоговые выходные сигналы напряжения постоянного тока (заземленный выход).
Питание цепей преобразователя производится вт 2-х стабилизированных источников напряжения + 15 В, стабилизированного источника напряжения + 5 В и нестабилизированного + 12 В.
-
4.2.2. Принципиальная схема преобразователя
Усилитель (приложение 8) построен по автокомпенсационной схеме с модуляцией входного сигнала и сигнала обратной связи.
Модуляция входного сигнала осуществляется фоторезистором д2 в паре со светодиодом HI, мопуляция сигнала отрицательной обратной связи - фотореэистором К4 в паре со светодиодом Н2.
- ч->
устанавливают на имитаторе сопротивление в цепи измерительного электрода 500 МОм;
подают от потенциометра напряжение с тем, чтобы после установления показания цифрового табло одинаково часто повторялись значения 1,0000 и 1,0001 Сили 0,9999), при этом время индикации должно быть 0,1с;
с помощью имитатора, на котором установлено ^напряжение 0 мВ, отключают вход преобразователя от потенциометра постоянного тока;
резко переключают источник входного напряжения, вновь подключая потенциометр, одновременно включив секундомер.
Время установления показания определяется с момента подключения потенциометра до момента, когда показания преобразователя станут не менее 0,99 В.
Аналогично определяется время установления показаний преобразователя при обратной полярности входного напряжения, а также при сопротивлениях в цепи измерительного электрода равных I ГОм и 0 ;только для одной из полярностей входного напряжения).
Время установления показаний измерительного преобразователя в секундах должно быть не более значения, определяемого по формуле;
t,ycT.~ 5(1 + ) (.8)
где I - постоянная, имеющая размерность ГОм;.
tycT. - время установления показаний, с;
?£- значение сопротивления цепи измерительного электрода;
5 - коэффициент, имеющий размерность с/ГОм.
9;,5^ Дополнительную погрешность преобразователя, обусловленную измененйбм температуры измеряемого раствора (погрешность термоком-пенсаиии), определяют следующим образом:
устанавливают переключатель вида термокомпенсации в положение "Авт." «.допускается "Ручн.") и выбирают режимы работы и точки диапазона согласно табл.10;
устанавливают на магазине сопротивление, соответствующее температуре 20/^0 согласно приложения 4 (или устанавливают на переключателе " I раствора С" значение температуры 20 С);
подают на вход преобразователя от потенциометра напояжение, соответствующее проверяемой точке для температуры 20 С, согласно приложения 2;
с помощью ручки "Ей" устанавливают (.в случае необходимости) показания равными У ;
последовательно устанавливают на магазине сопротивления, соответствующие температурам - минус 20; 0; 100 и 150 С кИли устанавливают на переключателе " t раствора %" значения температуры 0; 99,9 и 150 “С) и, подавая на вход преобразователя напряжение от потенциометра, соответствующее /V при заданной температуре, отмечают одно (наиболее отличающееся от номинального) из двух одинаково часто появляющихся на цифровом табло значений.
Погрешность термокомпенсации рассчитывают по формуле:
S' = рХ-{_ “А* (9)
где S'- погрешность термокомпенсации, рХ
pX-t - отмеченное на цифровом табло значение, рХ;
У - значение рХ в поверяемой точке, рХ.
Устанавливают переключатель вида термокомпенсации в положение "ручн." и производят аналогичные операции для температуры 0; 150 С
^.0. 1 проведенне поперки
Зне1чни;’1 осмотр
Зри проведении внешнего осмотра должно быть установлено соотпет-стрие поверяемого иономера след^'ющии требованиям:
представленный на поверку иономер должен быть полностью укомплектован (кроме запасиьк частей и принадлежностей);
преобразователь не должен иметь механических повреждений или неисправностей регулировочных и соединительных '■'лементов, влияющих на их нормальную работу;
-
9.3.2. Определение основной абсолютной погрешности преобразователя при измерении р)ч одновалентных и двухвалснтну-о: ионов производят в режиме измерения одновалентных катионов и двухвалентных анионов и точках V , равных г.1ичус ~0; минус 1,00; 0; 1,00 и 20,00 рХ сяех'юТ'ИМ обоазом:
подавая на Bxoji, преобразователя напряжения с потенциометра постоянного тока, соотнетствую1'1иед;;каэанным аьлпе значениям
при температуре раствора 20 ,отмечают одно (наиболее отлича
ющееся от значения л' ) из двдпс одинаково часто появляющихся значений на цифровом табло.
Основная абсолютная погрешность преобразователя рассчитываемся по формуле:
Д = рХ - л/» (б)
где - основная абсолютная погрешность преобразователя, рХ;
рХ - отмеченное на цифровом табло преобразователя значение р)(;
- значение рХ в поверяемой точке, рХ (см.приложения <2,3).
Поверк:* в режиме измерения э.д.с. производят аналогично поверке при измерении р)-;, при атом на потенциометре устанавливают след:'-ющие значения:
= 0; + 100; + 200 и т.д.....2000 м3
-
V = 1910; 192С^и т.д. до 1990 м3;
-
V = 1991; 1992; и т.д. до 1998 мВ;
Опиопн^'ю
по 1^юр.'<'ле:
абсолютную погрешность преобразователя рассчитывают
Л = Ух -
основная абсолютная погрешность преобразователя, м3;
отмеченное на цифровом табло преобразователя значение м3;
значение, устанавливаемое на потенциометре постоянного тока, м3;
Основная
знс'ать:
абсолютная погрешность преобразователя не должна пре-
I) 3 режиме измерения активности ионов, рХ^ =10,01 npnfxlilO ^0 001 X при 20;
- значение измерений величины измерения з.д.с., м3 Д =11 при М^ЮОО
10,001 X npi ЮОО-^/х/* ;3000, где X - значение измеряемой величины
----- „г— ;г-^премени установления показаний производится не ранее, чем через 30 мин.после включения преобразователя в сеть в режиме измерения "у ", следующим образом:
где X в режиме
9.3.3. Проверка
в режиме измерения
Модуляторы работают в противофазе ,таким образом, на входе усилителя действует разность сигналов - входного и обратной связи. Усиление по переменному току осуществляется усилителями AI и А2. Демодуляция усиленного сигнала осуществляется ключом АЗ, управляемым от формирователя импульсов опорной частоты. Выходной каскад - интегратор А4, обеспечивает сглаживание дешдулированно-го сигнала. Весь усилитель охвачен практически 100 %' отрицательной обратной связью.
Формирователь импульсов опорной частоты включает диодный ограничитель Vl 1/2, собственно формирователь DI.I и 2)1.2, делитель частоты ^2.1, D2.2, а также выходные инверторы 3)1.3,
- DI.6. Регулировка амплитуды опорной частоты производится переменными резисторами Р23 и 524 отдельно для модулятора входного сигнала и сигнала обратной связи.
Измерительная схема приведена в приложении 9,
Инвертор AI используется только при измерении активности катионов. Коммутация осуществляется переключателем рода работ 5 6 в положение рХ+", "рл++". Усилитель А2 - операционный. Изменением величины резисторов, коммутируемых переключателем "5%", включенных в цепь обратной связи последовательно с резисторами 58, 513, 515, обеспечивается настройка коэффициента передачи в соответствии с крутизной реальной электродной системы. Плавная подстройка крутизны осуществляется переменным резистором 555 " 5%" (приложение 7). Изменение коэффициента передачи, в завицимости от валентности ионов, производится коммутацией резисторов 514, 516, галетным переключателем 56 (приложение 7), Установка напряжения, соответствующего координате электродной системы, обеспечивается подачей смещения на вход усилителя через резисторы 56, 57, 59, 512 от делителя напряжения 518 - 527, комментируемого переключателем 51.4. 51.5 "Е^" и от переменного резистора 558 "Е^" (приложение 7).
Питание делителя и переменного резистора ' осуществляется 'от стабилизированного источника + 15 3 блока питания. Делитель 518- 527 является общим для переключателя "Е х 100" и "Е х 10". Выход усилителя А2 через резистор 520 и автоматический термокомпенсатор, или же, через резистор 520, 521 и резисторы 528-554, 560 ручной температурной компенсации "Температура раствора "х10^, "х1", "+I00", коммутируемые переключателями 51.6 - 51.8, включен на вход усилителя АЗ.
Поскольку эти резисторы включены во входной цепи усилителя АЗ, а сопротивление обратной связи 528 постоянно, то KOhiMyTapHH этих резисторов или изменение резистора автоматической термокомпенсации приводит к изменению выходного напряжения усилителя АЗ и компенсации изменения э.д.с. при изменении температуры раствора.
Установка значения величины рХ электродной Системы обеспечивается подачей смещения на вход усилителя АЗ через резисторы 522 - 524, 525, 526 от делителя 510 - 518, коммутируемого переключателем 51.2 и SI.3 "pXj^" "х1", "х 0,1".
Питание делителя осуществляется от того же источника что и делитель "Е ".Для симметрирования нагрузки источника предусмотрен резистор 559.
- /6-
Схема аналого-цифрового преобразователя приведена в приложении 10 и II.
Преобразователь входного напряжения в интервале времени (приложение 10; построен по схеме двойного интегрирования и включает в себе:
первый интегратор, выполненный на 2-х микросхемах АЗ и АЬ, осуществляет преобразование аналогового входного сигнала в двухступенчатый импульс, площадь которого определяется величиной входного сигнала и его полярностью;
второй интегратор, выполненный на микросхемах А4 и А6 обеспечивает формирование прямоугольного импульса с длительностью пропорциональной площади двухступенчатых импульсов, формируемых первым интегратором.
Микросхемы А! и А2 служат для компенсации дрейфа интеграторов.
Схема построена таким образом, что входному сигналу, равному о мВ, соответствует длительность импульсов, равная 20 мс, входному сигналу, равному плюс 2В-35,6 мс, а входному сигналу, равному минус 2 В - 4,4 мс.
Управление первым интегратором осуществляется двумя ключами микросхемы А7. Управляющие сигналы в виде прямоугольного меандра поступают с формирователя тактовых импульсов.
Шходнои импульс используется для управления вторым интегратором через ключ Ау. Оптроны А9 и AI0 используются для формирования сигналов меандра и выходного сигнала схемы, гальванически развязанных относительно всей ранее рассмотренной схемы.
Источник опорного напряжения состоит из прецизионного стабилитрона V I и делителя напряжения R7-I?!?.
Преобразование длительности импульса в пропорциональное ему количество импульсов частоты 1,28 МГц осуществляетсяилогической схемой J)II.2, на которую поступают опорная частота 1,28 МГц от генератора опорной частоты 3)1.1, стабилизированного кварцем. На нее же поступают модулированные по длительности сигналы от компаратора А8 через оптрон А9 (приложение 10) и микросхемы 3 5.1, Л>5.2, л>11.1 (приложение II). Сформированные пачки импульсов поступают на десятичный счетчик^9.выполняющий роль делителя частоты, а с него через микросхему 3)12.2 на счетчики и память блока индикации, а также на счетчики 3)15- 2)19, память 2)20- 3) 22 двоичнодесятичного выхода и на ЦАП. На эту же схему DI0.2 поступают пачки импульсов, не прошедшие дилитель частоты D9, а также сигналы управления, благодаря чему реализуется подсчет импульсов при различном времени индикации (1с/0,1с).
Индикация знака полярности входного напряжения осуществляется на микросхемах D5.2 (положительной полярности) и Р5.3 (отрицательной полярности) путем подачи на вход модулированный по длительности импульсов и частот 25 Гц и 12,5 Гц, полученных путем деления опрнои частоты генератора 3)1.1, делителем частоты Эб, и 3)2. Формирование импульса знака полярности осуществляется статическим триггером DII.o, DII.4,
Формирование импульса, устанавливающего в нуль счетчики блока индикации и выхода в двоично-десятичном коде, а также управ-
12)
13)
14)
15)
-16)
17)
термокомпенсация преобразователя автоматическая (сопротивление, подключаемое вместо термокомпенсатора, соответствует его табличному значению при температуре 20 °C) сопротивление в цепи .измерительного электрода сопротивление в цепи вспомогательного электрода напряжение переменного тока в цепи вспомогательного электрода координаты изопотенциальной точки время индикации (без гашения младшего разряда) режимы измерения: одновалентные катионы (:^_), двухвалентные анионы (рА,) и измерение э.д.с. ("V ").
(1400+0,28) Ом
О
рХи = 7,0; Еи=Ю
I с;
9.4. Подготовка к поверке
Поверку измерительного преобразователя производят на испытательной установке, схема которой приведена в приложении 6.
Перед проведением поверки в каждом из режимов (рХ"^ и рХ ) производят градуировку преобразователя для работы на данном §ежиме на электродную систему с координатами рХ = 7,000, и = о следующим образом:
включают преобразователь в сеть и прогреваюгего в течение 30 мин;
нажимают кнопку "0 АЦП" и при необходимости шлицом переменно-rOogegHCTopa "0 Alfl" устанавливают на цифровом табло показание отжимают кнопку "О АЦП";
подключают к клеммам "Кеавт." магазин сопротивлений; устанавливают на магазине сопротивление 1400.0м устанавливаот переключатель'вида термокомпёнсацйи в положение "Авт.” ("ручн.");
переключатель рода работ устанавливают в положение "рл*'; нажимают кнопку "Инд." и органами настройки "p^„" устанавливают нулевое показание на табло;
отжимают кнопку "Инд." и, подав на вход преобразователя нулевое напряжение, органами настройки "Е ** устанавливают нулевые показания на цифровом табло;
подают на вход т^еобразователя напряжение минус 1163,2 мВ для одновалентных катионов и плюс 581,6 мВ для двухвалентных анионов;
органами настройки крутизны устанавливают на цифровом
табло показания 20,000;
нажимают KHoniw "Инд." и органами настройки рХ^^ устанавливают на'табло 7,00(Г;
отжимают кнопку "Инд." и подают нулевое напряжение; проверяют показания на цифровом табло, которые должны соответствовать значению 7,000.
Таблица 9
Наименование
Технические характеристики
I.
Z.
-
3.
-
4.
5.
Потенциометр постоянного тока P37-I
Магазин сопротивления МСР-бО М
Секундомер
Автот^эан^^орматор лабора-
Устройство печатающее 14.68000К
-
6. Имитатор Электродной системы И-02
-
7, ^^^^ой вольтметр.
Нласс 0,01, диапазон измерения
от о до 2,1 В
Класс 0,02, диапазон измерения сопротивления от 0 до 104
Класс 2,0 -
Мощность 0,5 Вт, диапазон изменения напряжения от 0 до 250 В
Запись цифровой информации ст.сигнала в параллельном двоично-десятичном коде
Погрешность + 5 глВ, диапазон выходных напряжений от 0 до 2011
Класс 0;05/0,02
Примечание: допускается использование других средств измерения, не уступающих по классу указанным в табл.9.
9.3. Условия поверки
При проведении поверки должны соблюдаться следующие условия: температура окружающего воздуха относительная влажность атмосферное давление пределы температурной компенсации :
а) ручной
б) автоматической напряжение питания частота питающего переменного
тока (приборы, предназначенные для питания от сети частотой СО Гц, должны проверяться при той же частоте) форма кривой переменного напряжения питающей сети
-
1)
-
2)
-
3)
-
4)
5)
0)
7)
отсутствие вибрации, тряски, ударов, влияющих на работу преобразователя
отсутствие внешних электрических и магнитных полей (.кроме магнитного поля Земли), влияющих на работу преобразователя
10)время прогрева преобразователя
от от
о до 150
20 до 150 °C
от от до
(220+ 4,4) В
(50 + 0,5) Гц синусоидальная, коэффи1диент гармоник не превьшзает
5 %
30 мин.
ление записью в память этих узлов, осуществляется импульсом синхронизации, формируемым на микросхеме Г? из четырех частот
100, 50, 25 и .12,5 Гц. При этом передний фронт исполь
зуется для формирования сигнала записи в память, а задний фронт для установки в нуль счетчиков. При времени индикации I с импульс синхронизации провоходит через делитель частоты 3 8, благодаря чему время индикации изменяется в 10 раз (кнопка 1с/ 0,1 с).
Управление временем индикации осуществляется через микросхему э12.1.
Графики напряжений АЦП приведены на рис. 2.
Блок индикаторных плат состоит из 5 индикаторных цифровых плат (приложение 12) и одной знаковой (приложение 13).
Цифровая плата включает в себе двоично-десятичный счетчик 3)1, память 3 2, дешифратор 3)3 и светодиодный индикатор HI.
Цифро-аналоговый преобразователь (ПАП, приложение 14) состоит из масштабного делителя на 5 DI и 2/х поразрядных счетчиков •2)2 - 2)3, интегрального цифро-аналогового преобразователя AI и выходного усилителя АЗ, а также микросхемы А2, управления знаком выходного напряжения, при этом знак плюс кодируется "О", а знак минус -
Блок питания (приложение 15) состоит изт двух выпрямительных мостов VI и V2.
двух гибридных стабилизаторов AI, А2, обеспечивающих напряжение + 15 В.
От этих же источников, с помощью параметрических стабилизаторов УЗ, V4, формируется стабилизированное напряжение + 9.1 В для питания измерительной схемы.
Стабилизированный источник + 15 В, питающий ЦАП размещен на его плате и включает в себе диодный мост V 3 и гибридную микросхему А4.
Стабилизатор напряжения + 5 В для питания дискретных элементов схемы (размещен на задней стенке прибора) состоит из диодного моста VI и гибридной интегральной схемы 31 (приложение 7). Там же расположен источник питания индикаторов V 2.
Принципиальная схема и намоточные данные силового трансформатора приведены в приложении 5,
4.3. Конструкция иономера
Иономер состоит из преобразователя и
штатива.
-
4,3.1. Преобразователь измерительный
его конструкции пока-
Общий вид преобразователя и элементы заны на рис. 3.4.
Органы управления и элементы внешних
электрических соедине-
НИЙ имеют соответствующие надписи.
Органы оперативной настройки вынесены на переднюю панель.
Щтфровое табло I преобразователя, закрытого светофильтром имеет пять десятичных разрядов для индикации величин рл или / , знаковый разряд, индицирующий знак ’’-’’ и знак перегрузки "'
Отсутствие светящего сегмента в знаковом разряде соответствует положительному знаку. При перегрузке ( 2 В) про
исходит автоматическое индицирование знака " i—» "7
JP 02mS |
2' 4OfnS |
Jfff |
I |
13
/0 y-^
AS^S^*
J}
22 44 ___
42-Б ■■ '

4-i?’“ 114:6'^'
IkW A2'i6
if-
В -
i--------------- ^■2< |
2' -r .......
i22 5аммат1 /^2 ралом/саут)
jj2- i <-1
-
— tfi
jy.'3 4)
----- i71
J>S-.a
JH-.i
----- 0
Q
.U,V |
-i----------1— |
H " ' 1 ------------------1—fae ZfJ разалгл^угг}} ■>■ “p>"-*”.^ 1 |if | |
t P2 I | |||
up к |
UOfnS | ||
r~ - |
p 1 1 |
1^ | |
up |
при u^ =~ 21^ | ||
> 1 |
1 - 1 |
«f | |
r- L |
1 |
I > ' |
ff |
up |
ppu | ||
1 1 |
1 * 1 | ||
/7/?^ 6<r"z7 ■ | |||
£ | |||
1 1---1 |
■/■ 0 - |
1^ | |
^,U |
/240 >ePc | ||
ППШ)ПППППППППЯ1П1Ш!111 |
llllHllllllfllllllllllliiiiiiiiiinflii‘ | ||
ППППППППППП |
П П n nfn П П П n |
S /Xfrrofi^iJf ^алриже^/ав аоеи^вс^ому
0 eJi/wQe coa/r^Se/ncfrrSe/^w;
J'-/T7a 0rrrh'£70i//^^yfb^0 Meat^y^cfJ;
^2 ~ /Tpcf O-0pc/ c/x-^y -2~^P<J сУх--21'
Рас2 /^yoa£.u л'0гу0лже/^аа Jf^P
- 59-
9. МЕТОДЫ И СРЕДСТВА ПОВЕРКИ
Настоящая методика поверки распространяется на иономер лабораторный И-ГЗО и устанавливает методы и средства его поверки при эксплуатации, хранении и выпуске из ремонта.
Поверка иономера проводится не реже одного раза в год, а также при выпуске из ремонта.
9.1. Операции поверки
При проведении поверки должны выполняться операции, указанные в таблице о.
Таблица 8
Наймёнованиё'ЗпёращцГТТ1омёр Т''Обязат ёльность'’провёдёнйя^
. , оцералий при;_________
i ремонте ! эксплуатации
! пунктов ! методик
3.
4.
5.
6.
7.
8.
-
1.
-
2.
Внешний осмотр
5.1
да
Определение основной абсолютной погрешности преобразователя
5.2.
да
Проверка времени установления показании преобразователя
5.3
да
Определение погрешности температурной компенсации
5.4
да
Определение дополнительной погрешности, вызванной изменением
сопротивления в цепи измерительного элект-' рода
5.5
да
Определение дополнительной погрешности, вызванной изменением
сопротивления в цепи вспомогательного электрода
5.6
да
Определение дополнительной погрешности, вызванной изменением напряжения питания
5.7
да
Определение изменения показаний преобразователя при непрерыв
5.8 .
ной работе
да
да
да
да
нет
да
нет
нет
нет
Примечание. Перед каждым исгытанием проверяют и при необходимости ^останавливают "О АДП"
9.2. Средства поверки
При проведении поверки должны применяться средства поверки, указанные в таблице 9
Ufi - напряжение подаваемое с потенциометра, мВ
t/ft - верхний предел выходного напряжения (2В)
-
8.6.2. Регулировка выходных напряжений преобразователя
Регулировка производится после снятия верхней крышки прибора в следующем порядке:
-
- в режиме " V ” подают на вход нулевое напряжение;
-
- контролируя вькодное напряжение на клеммах 0... 2 В цифровым вольтметром, резистором R9 на плате АЗ добиваются нулевых показаний;
-
- изменяя входное напряжение преобразователя, устанавливают на цифровом табло минус 2,000;
-
- резистором PI на плате АЗ устанавливают напряжение на клеммах о___2 В, равным минус 2,000;
-
- изменяя входное напряжение преобразователя, устанавливают на цифровом табло плюс 2,000;
-
- резистором R2 на плате АЗ устанавливают напряжение на клеммах 0...2 В равным 2,000 В.
-49'
ПРЕОБРАЗОВАТЕЛЬ ИЗМЕРИТЕЛЬНЫЙ

-
1.
-
2.
-
3.
-
4.
-
5.
-
6.
-
7.
-
8.
9.
10.
-
11.
-
12.
-
13.
-
14.
’’Ей”
Цифровое табло со светофильтром Переключатель установки крутизны " Переключатель установки координаты Переключатель устакввки координаты Переключатель ручной термокомпенсации Кнопка включения прибора Переключатель рода рАбот
Шлиц переменного резистора установки крутизны " 5 %"
Шлиц переменного резистора подстройки координаты "рХи” Кнопка .ицдикации координаты "рХи" Ручка подстройки координаты ”Еи" Кнопка полярности координаты ”Еи"
Переключатель вида температурной компенсации Кнопка установки температуры 100°С".
пис. 3
Задняя панель

Оыхояы

1-Шлиц переменного peiucmopa подстройки „ОАцп"
Z. Кнопка устано&ки ^0 РЦР"
3. Кнопка гашении индикатора младшего ра5рида.
Кнопка установки д1ремени индикации.
-
5. Гнездо дли подклнзчении измерительного . электрода
-
6. Гнездо дли подклн)чении бгпомогательного электрода.
-
7. Клеммы дли подключения адтоматического термокомпенсатора. Клеммы дыяода 0...Z8
9. Клеммы дыхода О... ЮОмд,
10- Розетка дли подключении цидзропечатающего устройстба.
-
11. Клемма заземлении.
-
12. Деря^атель предохранители.
Рс/с, л
- 37-
Органы настройки крутизны:
-
- переключатель 2 (пис.З) устанавливают в положение "100 %" , а шлиц о в крайнее левое положение (0);
-
- п^еоючатель рода работ устанавливают в положение
-
- извлекают плату Аб измерительной схемы из разъема и устанавливают её через переходную плату;
-
- нажимают кнопку "Инд.", а затем кнопку "Сеть";
-
- устанавливают органами настройки рХ : переключатели^ о 5oS?"'° ” шлицом 9 - плавно, на цифровом табло
-
- отжимают кнопку "Инд.";
-
- подают на вход преобразователя нулевое напряжение;
-
- органами настройки "Ей": переключателем 4 - грубо и ручкой II- плавно, устанавливают на хтфровом табло показания 0,000;
-
- подают на вход преобразователя напряжение минус
1163,2 мВ (для одновалентных катионов); i о
-
- резистором R8 - ( плата Аб) устанавливают на цифровом табло показание 20,000;
ОТ сети;
разъем; верхней крышкой.
-
- отключают преобразователь
-
- устанавливают плату Аб в
-
- закрывают преобразователь
8.6. Проверка и регулировка выходных напряжений преобразователя.
-
8.6.1. Проверка вькодныхнапряжений преобразователя Проверку выходных напряжений преобразователя и их основной приведенной погрешности производят на испытательной установке, схема которого приведена в приложении б следующим образом:
-
- подключают к клеммам "0...2В" наррузку (4+ 0,1) кОм и параллельно ей цифровой вольтметр (например , Щ1413);
-
- подавая на вход преобразователя напряжение от потенциометра 0; 1000 и 2000 мВ, последовательно измеряют выходные напряжения;
-
- аналогично определяют выходные напряжения при обратной полярности входного напряжения. Подключив к клеммам "0... 100нагрузку ('50+ I) кОм и параллельно ей цифровой вольтметр, определя1от величину выходного напряжения при показаниях на цифровом табло 2,000 Ь .
Основную приведенную погрешность выходных напряжений рассчитывают по формуле:
-100, (5)
где - основная приведенная погрешность выходных напряжений, %; показание цифрового вольтметра (при измерении выходного напряжения на клеммах 0...I00 мВ показания вольтметра следует умножить на 20).
г 36 -
отжимают кнопку "Инд." и подают на вход О мВ (или другое значение, равное Ей);
с помощью органов настройки Ei-i устанавливают показания на цифровом табло, равное 7,000 (или другое значение рХи).
-
8.4. Проверка градуировки преобразователя'
-
8.4.1. Проверка и градуировка преобразователя в режиме рХ ''
Перед проверко'й преобразователь должен быть отградуирован на данную электродную систему.
Проверку производят при автоматической термокоглпенсации (с магазином сотзотивлений} в следующих режимах:
для одновалёнтньк катионов при 20
для двухвалентных анионов при 20 С;
для одновалентных катионов при минус 20, 0, 50, 100 ^0.
Проверку в первьк двух случаях производят через кажд^^ю единицу в точках минус I; 0; I; 2 ... 20 рХ.
Погрешность измерения, равная разности между отмеченным на цифровом табло преобразователя значением рХ и значением рХ в проверяемой точке (см. приложения 2, 3) или значениями,рассчитанными -по формуле (I) п. 2.,4 не должна превышать предела допускаемой основной погрешности.
Проверку в третьем случае производят в точке 20 рХ, при этом погрешность измерения не должна превышать суммы пределов допускаемой основной погрешности и погрешности термокомпенсации.
Если погрешность превышает указанную величину, производят настройку преобразователя.
-
8.4.2. Проверка градз^ировки преобразователя в режиме V " Проверку градуировки преобразователя в режиме " V " производят в точках минус 2000; минус 1900...0: 100; 200 ... 1900 мВ;
1910; 1920 ... 1980; 1990; 1991; I9§2 ... 1999; 2000.
Разность напряжений между показаниягли на цифровом табло и номинальным значением не должна превышать предела допускаемой основной погрешности. Если разность напряжений превышает предел допускаемой погрешности, то производят настройку преобразователя.
-
8.5. Нстройка преобразователя
-
8.5.1. Настройка преобразователя в режиме ". V ".
Настройку производят после снятия верхней крышки прибора в следующем порядке:
-
- нажимают кнопку "0 А1Ш":
-
- шлицом резистора "0 А1ф1", расположенным на задней панели прибора, устанавливают нулевое показаний цифрового табло;
-
- если показания цифрового табло отличны от нуля, то резистором R20 на плате А5 устанавливают нулевые показания;
-
- отжимают кнопку "0 АЦП";
-
- подают на вход преобразователя минус 2000 мВ и резистором RI6 на плате А5 устанавливают показание минус 2,000 В.
-
8.5.2. Настройка преобразователя в режиме рХ.
Настройку в режиме рХ производят после настройки преобразователя в режиме " V "в следующем порядке:
-
- переключатель вида температурной компенсации преобразователя устанавливают в положение "авт.". К клеммам "Rt авт." подключают магазин сопротивлений и устанавливают сопротивление
Переключатель 2 и шлиц переменного резистора установки крутизны " S %" позволяют устанавливать значения крутизны в пределах от 82 % до 109 % с дискретностью 3 % ,и плавно до 5 % соответственно.
Переключатель (3) установки координаты "рХ ", позволяет устанавливать примерное значение координаты "рХ ” на ^цифровом табло с дискретностью 0,1 рХ в пределах от 0 до^^Ю рХ. Плавная регулировка значения рХ осуществляется в пределах +0,3 единицы ^^^ручкой 9.
Переключатель (4) и ручка (II) установки координаты "Е " позволяет аналогично чстанавливать значения "Е " в пределах от О до 1000 мВ.
Выбор полярности координаты "Ей" осуществляется кнопкой 12. Переключатель 5 в режиме ручной термокомпенсации позволяет устанавливать значение температуры контролируемого раствора от О до 99,9 °C с дискретностью 0,1 С.
Кнопка 14 используется при ручнрй„температуркой компенсации от 100 до 150 °C (практически до 199,9 °C) и позволяет ввести начальную термокомпенсацию, соответствующую 100 ос.
Переключателем 13 устанавливается ручная или автоматическая термокомпенсация.
Кнопка "Сеть" (б) служит для включения преобразователя.
Переключателем рода работ (7) устанавливается режим работы преобразователя:
измерение активности одновалентных катионов контролируемого рествора, в том числе, измерение активности ионов водорода (pH) измерение активности двд/хвалентнкх контролируемого раствора измерение активности одновалентных контролируемого раствора измерение активности двухвалентных контролируемого раствора
I)
pX(pl-l) -
2)
-
3)
-
4)
-
5)
рХ^^ рХ~ рХ’" v
измерение окислительно-восстановительных циалов и э.д.с. других источников, в том и ионоселективных электродов.
катионов
анионов
анионов
потен-числе
цифро-
Кнопка "Инд."(10) оО'еспечивает вывод значения рХ^ вое табло.
■и
вспо-
На задней панели преобразователя (рис.4) расположены могательные органы управления, элементы внешних электрических соединений и радиатор стабилизированных источников питания.
Шлиц переменного резистора I и кнопка 2 служат для установки О и вывода значения выходного сигнала аналого-цифрового преобразователя на цифровое табло.
Кнопка 3 служит для гашения, при необходимости, младшего разряда на цифровом табло.
Кнопка 4 производит установку времени индикации I с или 0,1 с.
Гнезда б и 7 используются для подключения к преобразователю измерительного и вспомогательного электродов соответственно.
Клеммы 10 используются при подключении регистрирующих приборов с пределами измерений 0... 100 мВ.
Клеммы .9, с выходным напряжением 0___26, служат для подклю
чения блока автоматического титрования и других устройств. При необходимости вывода результата измерений в двоично-десятичном коде или в виде п о седоват ел ьности счетных импульсов, используется розетка II типа H1I5-32 ГВ®.
Распайка розетки приведена в табл.5. Вилка HII5-32 ШВКд& для распайки поставляется в комплекте прибора.
На задней панели преобразователя также расположены клеммы заземления CI2) и держатель предохранителя (IB).
. 8. ГРАДУИРОВКА, ПРОВЕРКА И НАСТРОЙКА ПРЕОБРАЗОВАТЕЛЛ
-
8.1. Общие указания
Градуировку,провернули настройку преобразователя производят при напряжении питания (220+4,4) В после 30 минутного прогрева, при сопротивлении в цепи измерительного электрода 5„=0, сопротивление в цепи вспомогательного электрода ^^=0, при отсутствии э.д.с. между корпусом преобразователя и землей. Термокомпенсация автоматическая; сопротивление подключаемое вместо термокомпенсатора соответствует его таблично{лу значению при температуре 20 “С - (1400+0,28)_, Ом. Проверен и при необходимости установлен "О АДН". Температура окружающего воздуха должна быть (20+5) “С при влажности от 30 до 80 % и давлении от 86 до 106 кПа. "
-
8.2. Вспомогательные устройства и приборы
Для градуировки,проверки и настройки иономера применяют следующие приборы и устройства:
-
1) имитатор электродной системы, например ,И-02.
-
2) Потенциометр постоянного тока, класса 0,01 диапазон измерения от о до 2,1 В, например P37-I.
-
3) Магазин сопротивлений класса 0,02, диапазон изменений сопротивлений от 0 до 104 Ом, например, МСР-60М.
-
4) Цифровой вольтметр, класса 0,05/0,02,например 1Ц1413;
-
5) Автотрансформатор лабораторный, мощностью не менее
500 В.А., например ЛATP-IM.
Примечание: для подключение имитатора И-02 к преобразователю используют кабель 5М6.645.057 (см.табл.4), при этом к имитато] подключают штеккер, имеющий отличительную метку.
-
8.3. Градуировка преобразователя в режиме рХ
-
8.3.1. Градуировка преобразователя производится путем подачи на вход преобразователя теоретических значений э.д.с. электродных систем. Таблица значения э.д.с. для системы с Ей =Ю, рХи=7 приведены в приложениях 2 и 3.
-
8.3.2. Градуировку преобразователя на данную электродную систему или другую систему, значения э.д.с. для которых рассчитываются по формуле (I) п. 2.4, производят следующим образом:
подключают к клеммам "Kt авт." магазин сопротивлений и устанавливают на нем 1400 Ом (1400 Ом соответствует сопротивлению термокомпенсатора при 20 С, см.приложение 4);
переключатель рода работ устанавливают в положение "рХ'*'"; нажимают кнопку "Инд." и органами настройки рХ устанавливают нулевое показание на табло;
отжимают КНОПКУ "Инд." и, подав на вход преобразователя нулевое напряжение, органами настройки Ей устанавливают нулевое показание на цифровом табло;
1163,2 мВ указанные
подают на вход преобразователя напряжение минус (минус 581,6 для двухвалентных катионов, для анионов значения устанавливают с обратным знаком);
на цифровом
органами настройки крутизны " S%" устанавливают табло показания 20,000;
устанавлива-
нажимают кнопку "Инд." и органами настройки рХи ют на табло 7,000 (или иное значение рХи);
При необходимости фиксировать динамикд/ измеряемого процесса можно использовать время индикации 0,1 с.
Гашение младшего разряда цифрового табло - в соответствии с рекомендациями табл.б.
Высокая чувствительность прибора позволяет измерять относительные изменения величины рХ « дискретностью 0,001, однако абсолютная точность измерения при этом обеспечивается на у^ровне основной абсолютной погрешности..
Нормированные в паспорте точности реализуются при необходимой точности контрольных растворов , а также измерении и компенсации температуры (см.табл.б).
Примечание: При измерениях активности ионов с точностью 0,0< рХ необходимо применять для контооля температуры исследуемого раствора термометр TJI-4 4 А (В) 2...4 ТОСТ 215-73 или аналогичный с точностью нехуже i 0,1 °C.
Таблица 5
Номер i Цепь
контакта j 44 с и о
Примечание
Перегрузка "рХ" V "
"А/К *
1Д1
Сигналу,соответствует логическая
"1" ( oJii— )
"рХ" - соответствует "О", запятая уста- i навливается после 1У разряда;
" V - соответствует "I", запятая устанавливается после У-го разряда (иПг- } Анионам соответствует "1" , катионам "О" Одновалентным ионом соответствует "1" двухвалентным ”0"
5
7 9 |
Сч.имп. | |
^1 ^2 2^ |
мл. | |
10 II |
I разряд | |
12 | ||
13 |
Перепись | |
14 |
Уст."0" | |
17 |
2^' | |
18 | ||
19 |
О |
П разряд |
20 |
2^> | |
21 | ||
22 |
2^ |
Ш разряд |
23 |
2^ | |
24 |
2^^ | |
25 | ||
26 |
2^ О |
1У разряд |
27 | ||
28 |
2^^ Пл |
ст. |
|
у разряд | |
31 |
Знак | |
32 |
+ 5& |
Счетные импульсы (последовательный код)
Сигналу "Перепись" и "Уст.О" соответствует иглпульс JL
Знаку "+" соответствует "О","-" - "I"
Конструктивно измерительный преобразователь включает в себе трансформатор и печатные платы, на которых размещены:
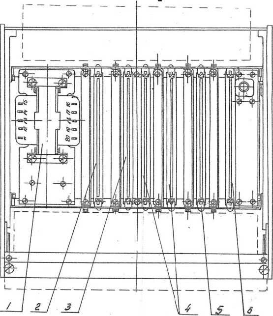
блок питания (плата А2); цифро-аналоговый преобразователь (1Ш1 -плата АЗ); аналого-цифровой преобразователь (А1Д1 - платы А4, ;
измерительная схема (плата Аб);
усилитель (плата А7).
Блок индикации (AI), состоящий из 6-ти индикаторных плат, закрепленных непосредственно на передней панели.
измерительный преобразователь включает в себе
Размешение блоков внутри преобразователя показано на рис.5. Платы Aii,АЗ,А4,А5,Аб и А7 включаются в o6niyto схем^,' посредством разъемов, устанавливаются в направляющие и могут быть легко извлечены после снятия верхней крышки.
-
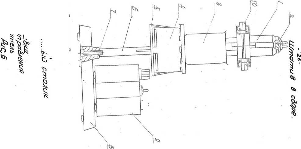
4.3.2. Штатив
Штатив (рис.6) состоит из подставки 8с трубой б, которая закреплена болтом 7.
На верхней части трубы установлен держатель 2 для фиксации проводов от электродов и термокомпенсатора. На трубе закреплены поворотный столик 5 и держатель с гнездами, предназначенными для ^'становки электродов, термокомпенсатора и других принадлежностей. Закрепление принадлежностей осуществляется гайкой.
Штатив поставляемся з разобранном виде
-
4.3.3. Ячейка для микроизмерения
Дл.я проведения измерений в пробах малого объема используется ячейка для микроизмерений (рис.7), представляющая собой стакан 3 с крышкой 2,'в которой имеются отверстия для установки вспомогательного электрода, термометра или термокомпенсатора и электролитического ключа 5.
Электролитический ключ для микроизмерений имеет форму цилиндра со сферическим дном, в нижней части которого имеется небольшое удлинение со впаянной асбестовой нитью, обеспечивающей элект-рическ^^ю связь ключа со вспомогательным электродом. Микродоза и рабочая часть измерительного электрода помещается в полую часть ключа, а вспомогательный электрод погружается в стакан, заполненный насыщенным раствором KCI. Уровень раствора i-OCL должен быть таким, чтобы обеспечивал надежный контакт с асбестовой нитью ключа.
-
4.3.4. Электролитический ключ
Измерения рХ растворов с помощью электродов, чувствительных к ионам калия и хлора, производятся с -помощью электролитического ключа (табл.4), устанавливаемого на вспомогательный электрод.
Конструкция ключа практически исключает проникновение в контрольные и исследуемые растворы хлористого калия, вытекающего из корщ/са вспомогательного электрода. При такого рода измерениях измерительный электрод помещается в стакан с контрольным раствором непосредственно, а вспомогательный электрод - посредством электролитического ключа. Тип раствора, заливаемого при этом, определяется указаниями в паспортах на применяемые электроды.
-
4.3.5. ' Автоматический термокомпенсатор
Для автоматической температурной компенсации изменений показаний преобразователя от изменении температуры раствора в держателе штатива предусмотрена установка автоматического термокомпенсатора.
Термокомпенсатор представляет собой чувствительный элемент в виде медного сопротивления, помещенный в стеклянный корпус и залитый для улучшения теплоотдачи маслом.
■'При работе термокомпенсатора глубина его погружения в контролируемый раствор должна быть не менее 30 мм.
Значение коэф-фициента А для температуры = 16...36 °C £2 приведены в табл.7.
Таблица 7
22 ’’^26
t 1
76
76
80
82 ..
84
86
68
6,0212
5,6539
5,6973
5,5505
5 4126-
5,2828
5 1605
температуры
6,4673 |
6,7160 |
6 2270 |
6 5043 |
6,0902 |
6 3077 |
5 9205 |
6 1247 |
5 7618 |
5 9539 |
5,6130 |
5 7941 |
5,4732 |
5 6443 |
приведенных
6,9646
б 7345
6,5403
6 3434
6,1592
5 9672
5,6263
Если
Г-
приведенной выте формуле (4)
-
- нажимают кнопку/ "Инд." и устанавливают на цифровом табло органами настройки рХи величину рХи, рассчитанной по фор?луле (4);
-
- отжимают кнопку УИнд.". .
Рекомендуется проверить показания прибора в первом растворе (ненагретом) и при необходимости произвести подстйроку органами настроики Ей.
При измерении рХ растворов со значением, близким к рХ контрольного раствора достаточна настройка по одно1лу буферно?^^; раствор:/.
-
7.3.2. Настройка иономера для работы с электрод1Ц.::.;и системами, не имеющими нормированных значений координат изопотенциальной точки Ей и рХи.
Настройк;' в этом случае производят по двум контрольным растворам, имеющим ту же температуру , что и исследуемый раствор. Переключатель вида термокомсенсации находится в положении "Ручн." Следует учесть, что температурная компенсация в рассматриваемом случае не осуществляется, а органы ручной температурной компенсации могут быть использованы как органы дополнительной настройки по крутизне.
Настройку иономера производят в последовательности, изложенной выше в п. 7.3.1.
Настройку по горячим растворам не производят.
-
7.3.3. Измерение рХ
Измерение рХ производят после настройки иономера.
Электроды должны быть тщательно промыты дистиллированной водой от остатков контрольного раствора и тщательно о су щены фильтровальной бумагой. Рекомендуется, при нозможности, перед измерением промыть электроды измеряемым раствором.
Измерение рХ производят в соответствии с указаниями пп. 6.1; 7.1. Рекомендуется работать при времени индикации I с (кнопка " отжата). ''
1Л
отличны от
таблице
7, то истинное значение рХ электродной систеш рассчитывают по
отжимают:кнопку "Инд.";
кнопкой 12 устанавливают полярность,соответствующей полярности координаты Ей применяемой электродной системы;
органами настройки "Ей"; переключателем 4 - грубо и ручкой II-плавно и, ориентируясь по показаниям цифрового табло, устанавливают значение рХ первого контрольного раствора при данной температуре.
Удаляют пробу с первым контрольньлл. раствором, промывают электроды дистиллированной водой, удаляют остатки воды фильтровальной бумагой и погружают во второй контрольный раствор;'
предпочтительно после промывки водой произвести также промывку электродной системы небольшим количеством второго контрольного раствора;
органами настройки крутизны "5%":
переключателем 2 - грубо и шлицем 6 - плавно, устанавливают по цифровому табло значение второго контрольного раствора прр^анной температуре;
рекомендуется после этого вновь произвести проверку настройки по первому контрольному раствору и при несовпадении значения повторить весь процесс настройки.^
При измерениях с постоянной температурой раствора процесс настройки' на этом завершается. При измерениях растворов с изменяю щеися температурой настройку продолжают следующим образом;
-
- нажимают кнопку "Инд.у и ориентируясь по цифровому табло, органами установки "рХи" устанавливают значение рли применяемой электродной системы;
-
- отжимают кнопку "Инд." и органами настройки "Ей" устанавливают значение рХ данного контрольного раствора;
-
- нагревают один иа контрольных растворов (предпочтительно ,со значением рХ, наиболее удаленным от рХи) до температуры 60 %, при этом органами настройки "раствора “С" устанавливают значение температуры , равное 60 оС;
-
- снимают показания прибора в этом контрольном растворе и под
считывают истинное значение рХи^электродной системы по йор-^>^yлe; рХи = рХип + А (pX^^j, - рХ^^ ), (4)
где; рХи - истинное значение координаты электродной системы, рХ; рХип - паспортное значение координаты электродной системы;
на которую бьш настроен преобразователь, рХ;
А - коэффициент, равный
-
4 буф - it буф °C;
- температура раствора до нагрева,
£1 буф ~ температура нагретого раствора,
рХ^^- показания иономера в растворе при температуре
рХ^^ - паспортное значение рХ контрольного раствора при ' 4 > Р^-
°C;
ИЗЖРИШЬНЫЙ «РЁОБРАЗОВАТЕЯЬ

-
1.
-
2.
-
3.
-
4.
-
5.
-
6.
Трансформатор
Блок питания (плата А2)
Цифро-аналоговый преобразователь (Ц1П плата АЗ)
Аналого-цифровой преобразователь(АЦП- платы А4 и А5)
Измерительная схема (плата Аб)
Усилитель (плата А7)
Рис. 5

F
Таблица 6
Условия для обеспечения измерения величины рХ раствора с различной точностью
Допускаемая погрепшгсть
т !
i Влияющие
0,1 рХ |
0,05 рХ J | ||
I. |
Точность контрольного раствора, (рХ) |
0,05 |
0,025 |
2. |
Точность контроля и поддержания температуры, точность термокомпенсации, С |
+ I |
+ 0,05 |
3. |
Возможность использования гашения младшего разряда |
рекомендуется |
допускается |
0,02 рХ
0,005
+ 0,1
не допускается
-60-
Значеиия рИ-буферных растворов приведены в приложении I. Приготовление контрольных растворов для настройки прибора,а также при измерении различных видов ионов производят в соответствии с указаниями в паспортах на соответствующие электроды.
-
7.1. П. Перед погружением в раствор электроды необходимо промыть дисциллированной водой и удалить остатки воды фильтровальной бумагой. При точных измерениях рекомендуется электроды промыть также анализируемым раствором.
Обычно время установления показаний не превышает 3 мин.
Однако при измерениях pH растворов слабой концентрации, а также при измерениях pH сильнокислых и сильнощелоодых растворов при температурах, близких к О^^С время установления показаний может возрасти до 10 мин.
-
7.3. Измерения окислительно-восстановительного потенциала (Eh ), э.д.с. электродных систем и других источников:
устанавливают переключатель рода работ в положение " V " погружают электродную систему в стакан с раствором, при этом предпочтительное, чтобы электрод сравнения был установлен на несколько миллиметров ниже измерительного;
после установления показаний снимают отсчет;
При необходимости перед измерением проверяют нуль АЦП:
нажимают кнопку "0 АЦГ1" (на задней панели);
устанавливают "0.000" по цифровоьи/ табло шлицом переменного резистора "0 Alfl**;
отжимают КНОПКУ' "0 АЦП".
-
7.3. Настройка иономера и измерение рХ.
Перед измерением рХ иономер должен быть настроен на данную электроднд/ю систему по одной из нижеперечисленных методик.
-
7.3.1. Настройка иономера для работы с электродными системами, имеюпшми нормированные значения координат изопотенциальной точки Ей, рХи.
Настройку производят по двум контрольным растворам, значения рХ которых должны лежать в диапазоне измерений применяемой электродной системы. Точность настройки и измерений определяется из условий, приведенных в табл.6.
- |ПастроГ!1ц,' иономера проиавпдяд-а-хдадзтц£й-до.слеловательности: ___
выбирают вид температурной компенсации;
пог^'жают Электродную систему (предпочтительно электрод сравне- -НИЯ ниже измерительного и термометр (при ручной термокомпенсации) , или автоматический термокомпенсатор в один из контрольных растворов (в дальнейшем будем называть его первым).
Определяют температуру раствора и устанавливают при ручной термокомпенсации! значение температуры раствора органами настройки " t раствора
после установления показаний нажимают кнопку " Инд" и ориентируясь по показаниям цифрового табло, органами настройки "рХи", переключателем 3 (здесь и далее см.рис.3) - грубо и шлицем у - плавно, устанавливают значение рХ первого контрольного раствора;
-гч-
ЯЧЕЙКА ДЛЯ МИКРОИЗМЕРЕНИЙ


-
1 - вспомогательный электрод
-
2 - крышка
-
3 - стакан
-
4 - проба
-
5 - ключ электролитический
-
6 - измерительный электрод
Рис. 7
4.3.6. Магнитная машалка.
В сл^'наях использования иономера дая проведения потенциометрического титрования, а также в некоторых других случат', когда необходимо перемешивание раствора, в'комплекте со штативом предусмотрено применение магнитной мешалки (рис.о).
Магнитная мешалка состоит из блока управления, блока .олектро-магкитов (активатор) и магнитной вертушки.
Блок управления вырабатывает сдвинутые по фазе импульсные напряжения,- которые поступают на блок электромагнитов, в котором создается враиаюшееся магнитное поле.
Изменением частоты импульсов осуществляется изменение скорости вращения магнитного поля и соответственно скорости вращения магнитной вертушки и интентенсивности перемешивания.
Вращающееся магнитное поле увлекает за собой магнитную вертушку, представляющую собой стержень из магнитного материала, с покрытием из химически стойкого материала.
В магнитной мешалке прецусмотрена возможность изменения направления вращения (тумблер ^Реверс").
Электрическая принципиальная схема мешалки приведена в приложении 16, намоточные данные силового трансформатора и электромагнитов - в приложении 17..
инеъ°укция по эксплуатации .о. УКАЗАгЛШ МИР БЕЗОПАСНОСТИ
-
15.1. К работе с иономером попускается персонал, изучивший паспорт, действующие правила эксплуатации электроустановок и правила работы с химическими растворами.
-
3.2. Иономер и мешалка в процессе эксплуатации цолжны быть надежно заземлены.
-
5.3. Во время профилактических работ и ремонта прибор должен быть отключен от сети.
6. ПОДГОТОВКА ИОНОМЕРА К РАБОТЕ
-
6.1. Общие указания
Выбор измерительных электродов зависит от вида измеряемого иона, пределов, измерения и температуры раствора. Измерительные электроды подключаются к гнезду "Изм*." преобразователя непосредственно или с помощью переходного штеккера, входящего в комплект ЗИП. В качестве вспомогательного электрода используется хлорсеребряный электрод 3BJi-IM3, который подключается к гнезда "Всп.'^. Автоматический термокомпенсатор подключается к клеммам ”R авт.".
-
6.2. Подготовка к работе
Преобразователь включается в сеть и прогревается в течение 30 мин".
В зависимости от вида измерения выбираются необходимые электроды и принадлежности и используется штатив согласно одному из рисунков.
Перед началом работы с электродами производят их подготовку в соответствии с указаниями, изложенными в паспортах на электроды. Температурная компенсация используется при измерении рХ электродными системами с нормированными значениями координат изопотенци-альной точки Ей, рХи (например, стеклянными электродами .для измерения pH).
В зависимости от вида термокомпенсации на штативе устанавливается термометр или автоматический термокомпенсатор. Переключатель рода термокомпенсации на передней панели прибора устанавливается при этом в соответствующее положение. Ручную термокомпенсацию рекомен,дается использовать при постоянной температуре растворов, автоматическую - при изменяющейся температуре.'При настройке'и в процессе измерения желательно использовать один и тот же вид тесмокомпенсации. .
Переключатель рода"работ*устанавливают в положение, определяемое валентностью иона, его видом (анион или катион) или в положение " V " при измерении окислительно-восстановительного потенциала и э.д.с. других источников.
При работе рекомендуется устанавливать время индикации I с, так как при этом режиме по цифровому табло производится усреднен-! ный отсчет измерения.
> 7. ПОРЯДОК РАБС'ТП
-
7.1. Общие указани.ч
-
7.1.1. При эксплуатации прибора для его калибровки применяют контрольные растворы. При измерении pH в качестве контрольных растворов используют стандартные буферные растворы, приготовляемые из стандарт-титров ГОСТ 8.135-74.