Методика поверки «ВИБРОМЕТР ПРОТОН-Баланс-2» (МП ПБ.500.000.000 )
УТВЕРЖДАЮ
Генеральный директор
ООО «БАЛТЕХ»

М.В. Лисицкий
2016 г.
УТВЕРЖДАЮ Заместитель директора пЯ5ИХапо производственной метрологии ФГУП «ВНИИМС»

1 V
I 2016 г.
НТВПванникова
МЕТОДИКА ПОВЕРКИ
ПБ.500.000.000 МП
2016 г.
ОБЩИЕ СВЕДЕНИЯНастоящая методика по поверке распространяется на виброметр ПРОТОН-Баланс-П (далее прибор), предназначенный для измерения и регистрации параметров вибрации работающих роторных машин и механических конструкций с целью контроля и диагностики их технического состояния и устанавливает методику их первичной поверки, поверки после ремонта и периодической поверки.
Прибор имеет каналы измерения вибрации и частоты вращения ротора. Для решения задач балансировки роторов в собственных подшипниках имеется встроенная программа для вычисления значений корректирующих грузов и углов их установки в балансировочных плоскостях механизмов.
Приборы подлежат обязательной государственной поверке в организации, имеющей на это государственную лицензию, при выпуске из производства, а так же периодической поверке во время работы и после ремонта.
Интервал между поверками - один год.
1. ОПЕРАЦИИ ПОВЕРКИ.-
1.1.При проведении поверки должны быть выполнены операции, указанные в Таблице 1.
Таблица 1
№ п/п |
Наименование операции |
Номер пункта документа по поверке |
Проведение операции при | |
первичной поверке |
периодичес кой поверке | |||
1 |
2 |
4 |
5 | |
1 |
Внешний осмотр |
6.1 |
да |
да |
2 |
Опробование |
6.2 |
да |
да |
3 |
Определение абсолютной погрешности измерения виброскорости |
6.3.1 |
да |
да |
4 |
Определение абсолютной погрешности измерения виброперемещения |
6.3.2 |
да |
да |
5 |
Определение абсолютной погрешности измерения частоты вращения |
6.3.3 |
да |
да |
-
2.1. При проведении поверки должны быть применены образцовые средства и вспомогательное оборудование:
-
1) Поверочная виброустановка 2 разряда в соответствии с ГОСТ Р 8.800-2012
-
2) Установка тахометрическая УТ05-60 (Госреестр СИ № 6840-78);
-
2.2. Допускается применение других средств поверки и вспомогательного оборудования с характеристиками, не уступающими указанным выше.
-
2 .
-
2.3. Все эталонные средства измерений должны быть поверены органами Государственной Метрологической Службы и иметь действующие свидетельства о поверке.
К поверке виброметра ПРОТОН-Баланс-П допускаются лица, изучившие эксплуатационную документацию на средства поверки прибора, вибропреобразователи, преобразователи частоты вращения и имеющие опыт поверки; а также прошедшие инструктаж по технике безопасности в установленном порядке.
4. ТРЕБОВАНИЯ БЕЗОПАСНОСТИ.При проведении поверки должны быть соблюдены следующие требования безопасности:
-
- монтаж электрических соединений должен производится в соответствии с ГОСТ 12.3019 и "Правилами устройства электроустановок;
-
- электрические испытания проводить в соответствии с требованиями ГОСТ 12.3.019;
-
- при проведении поверки должны быть соблюдены требования безопасности в соответствии с "Правилами техники безопасности при эксплуатации электроустановок потребителей", утвержденными "Госэнергонадзором".
-
5.1. При проведении поверки должны быть соблюдены следующие условия:
Температура окружающего воздуха, °C 20+5
Относительная влажность воздуха,% , 65±15
Атмосферное давление, кПа (мм.рт.ст.) от 84 до 106,7 (630-800)
Частота питающей сети, Гц 50+0,5
Напряжение питающей сети переменного тока, В 220±4,4
Величина внешнего магнитного поля частотой 50 Гц до 80 А/м
-
5.2. Условия проведения поверки должны контролироваться в начале и в конце выполнения каждой операции.
-
5.3. Перед началом проведения поверки виброметр должен быть выдержан в условиях проведения поверки не менее 1 часа.
-
6. ПРОВЕДЕНИЕ ПОВЕРКИ.
-
6.1.1 При внешнем осмотре устанавливают:
-
- соответствие комплектности виброметра требованиям эксплуатационной документации;
-
- наличие свидетельства о предыдущей поверке;
- наличие маркировки на измерительном блоке виброметра (наименование прибора; предприятие-изготовитель; заводской номер; дата изготовления; знак утверждения типа)
-
6.1.2 Внешний осмотр измерительного блока
При внешнем осмотре измерительного блока должно быть установлено: -отсутствие нарушения целостности прибора, первичных преобразователей и линий связи;
-
- панель управления, корпус измерительного блока, соединительные кабели, а также контрольная пломба (клеймо) предыдущей поверки не должны иметь механических и других повреждений.
-
6.1.3. Внешний осмотр первичных преобразователей.
Защитная арматура, контактная колодка и выводные проводники не должны иметь видимых повреждений (разрушений). Резьба на клеммах, защитных головках и штуцерах не должна иметь механических повреждений. Преобразователи с загрязненной поверхностью к поверке не допускаются. На преобразователях должны быть укреплены шильдики с обозначением типа и номером преобразователя. Допускается нанесение номера и типа непосредственно на корпус. Заводские номера должны совпадать с паспортными.
-
6.1.4. Внешний осмотр линий связи.
Линии связи, контактные колодки не должны иметь видимых повреждений (разрушений). На каждой линии связи должен быть прикреплен шильдик с обозначением присоединения в соответствии с чертежом ПБ500.000.000.СБ. и паспортным наименованием. Допускается нанесение обозначения линий связи на внешнюю изоляционную оболочку линий связи.
6.2. Опробование.При проведении опробования должно быть установлено изменение показаний виброметра при изменении состояния первичных преобразователей.
-
6.2.1. Подключить вибропреобразователь к измерительному блоку виброметра. Включить виброметр в соответствии с разделом ТО и ИЭ прибора. Выбрать режим «ВИБРОМЕТР». Потрясти вибропреобразователь и убедиться в изменении показаний виброметра.
-
6.2.2. Подключить преобразователь частоты вращения к измерительному блоку виброметра. Включить виброметр в соответствии с разделом ТО и ИЭ прибора. Выбрать режим «ТАХОМЕТР». Помахать перед чувствительным элементом преобразователя контрастным предметом и убедиться в изменении показаний виброметра.
-
6.2.3. Включить виброметр в режим «КОНТРОЛЬ» Для этого выбрать в основном меню пункт «СЕРВИС», а затем режим «КОНТРОЛЬ». Виброметр должен показать контрольные числа, занесенные в паспорт. Контрольные числа не должны отличаться от указанных в паспорте не более чем на 5 %.
-
6.3.1. Определение абсолютной погрешности измерения СКЗ виброскорости
6.3.1.1 Определение абсолютной погрешности измерения СКЗ виброскорости в диапазоне частот 10 -1000 Гц.
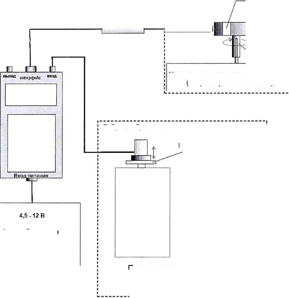
Собрать схему соединения виброметра в соответствии с Рис.1 Приложения 1.
Включить питание виброметра кнопкой “I” на клавиатуре. На экране виброметра появится основное меню.
___ ПРОТОН-БАЛАНС Измерение Балансировка >Сервис
С помощью кнопок курсора «▼» и «А» выбрать пункт «Измерение» и нажать кнопку выбора режима ««-1 »
Выбрать режим работы “ВИБРОМЕТР” и нажать кнопку выбора режима «*-*»
При этом слева на верхней строке индикатора должна высветиться надпись измеряемого параметра “V, мм\сек=”, а справа - время, за которое происходит усреднение показаний измеряемого параметра в секундах. На нижней строке должна высветиться индикаторная шкала с условным значением измеряемого параметра в единицах длины шкалы.
Установить вибропреобразователь на рабочий стол эталонной виброустановки. Задать значение СКЗ виброскорости Уобр. равное 5 мм/с, в диапазоне частот (10-1000) Гц последовательно на частотах третьоктавного ряда - (10; 12,5; 16; 20; 25; 31,5; 40; 50; 63; 80; 100; 125; 160; 200; 250; 315; 400; 500; 630; 800; 1000) Гц.
Зафиксировать показания СКЗ виброскорости Vi виброметра. По результатам измерений вычислить абсолютную погрешность измерений СКЗ виброскорости AVi в диапазоне частот в мм/с по формуле (1):
AVi = Vi -Vo6p (1)
где Vo6p - заданное значение СКЗ виброскорости, мм/с;
Vi - измеренное значение СКЗ виброскорости, мм/с.
Виброметр считается выдержавшим поверку, если наибольшее из вычисленных значений AVi не превышает значения ±0,6 мм/с в диапазоне частот 20 - 800 Гц и от+0,6 до -1,1 мм/с в диапазонах частот от 10 до 20 Гц и 800 -1000 Гц .
-
6.3.1.2 Определение абсолютной погрешности измерения в диапазоне значений СКЗ виброскорости 0.1 - 99.9 мм/с
Задать последовательно значения СКЗ виброскорости, равные (0,1; 0,5; 1,0; 5,0; 10,0; 15,0; 20,0; 50,0; 99,9) мм/с на частоте 80 Гц. Зафиксировать показания СКЗ виброскорости Vi виброметра. По результатам измерений вычислить абсолютную погрешность измерений СКЗ виброскорости AVi в диапазоне амплитуд по формуле (1)
Виброметр считается выдержавшим поверку, если полученные значения абсолютной погрешности, вычисленные в пп. 6.3.1.1 и 6.3.1.2 не превышают значений ±(0.1Vo6p + 0.1)
-
6.3.2 Определение абсолютной погрешности измерения размаха виброперемещения
6.3.2.1 Определение абсолютной погрешности измерения размаха виброперемещения в диапазоне частот 10 - 500 Гц.
Собрать схему соединения прибора в соответствии с Рис.1 Приложения 1. Выполнить пункты 6.5.1.2 и 6.5.1.3. После этого нажать кнопку «V-S» для выбора режима измерения виброперемещения. Задать значение размаха виброперемещения Бобр, равное 50 мкм, последовательно в диапазоне частот 10-500 Гц на частотах третьоктавного ряда (10;12,5;16;20;25;31,5;40;50;63;80;100;125;160;200;250;315;400;500) Гц. Зафиксировать показания размаха виброперемещения Si прибора. По результатам измерений вычислить абсолютную погрешность измерений размаха виброперемещения в диапазоне частот в мкм по формуле (2):
ASi=So6p. - Si (2)
где So6p - заданное значение размаха виброперемещения, мкм;
Si- измеренное значение размаха виброперемещения, мкм.
Виброметр считается выдержавшим поверку, если наибольшее из вычисленных значений ASi не превышает ± 6 мкм в диапазоне частот 20 Гц - 500 Гц и от +6 до -11 мкм в диапазоне частот 10 - 20 Гц
5
-
6.3.2.2 Определение абсолютной погрешности измерения размаха виброперемещения в диапазоне 1-999 мкм..
На образцовой виброустановке последовательно задать значения размаха виброперемещения So6p. равное (1; 5; 10; 50; 100; 500, 999) мкм на частоте 40 Гц..
Зафиксировать показания размаха виброперемещения Si прибора. По результатам измерений вычислить абсолютную погрешность измерения размаха виброперемещения в рабочем диапазоне амплитуд в мкм по формуле (2):
Виброметр считается выдержавшим поверку, если наибольшее из вычисленных значений ASi не превышает ±(0.1So6p +1)
-
6.3.3. Определение абсолютной погрешности измерения частоты вращения.
Собрать схему соединения виброметра в соответствии с Рис. 1 Приложения 1.
Включить питание виброметра кнопкой “I” на клавиатуре. На экране виброметра появится основное меню.
__ ПРОТОН-Баланс-П Измерение Балансировка >Сервис
С помощью кнопок курсора «▼» и «А» выбрать пункт «Измерение» и нажать кнопку выбора режима «<-* »
Нажатием кнопок А или ▼ выбрать режим работы “ТАХОМЕТР. На выходной вал тахометрической установки нанести оптическую метку маркером меток из комплекта поверяемого виброметра в соответствии с требованиями эксплуатационной документации на виброметр.
Примечание
При отсутствии тахометрической установки допускается поверять тахометрический канал от поверенного генератора импульсов (амплитуда импульсов 3.5 - 5 В положительной полярности)
Установить преобразователь частоты вращения на тахометрическую установку в соответствии с требованиями эксплуатационной документации. Задать на тахометрической установке последовательно частоты вращения No6p. 120; 1000; 3000; 10000; 30000; об/мин (или частоту F - 2; 16,66; 50; 166,66; 500 Гц). Наблюдать в течение 10-15 секунд показания Ni поверяемого виброметра на каждом диапазоне. Вычислить абсолютную погрешность виброметра по формуле 3:
ANi=Ni -No6p (AFi = Fi - Fo6p) (3)где
No6p (Fo6p)~ заданное значение частоты вращения Ni (Fi)- измеренное значение частоты вращения
Виброметр считается выдержавшим поверку, если наибольшее из вычисленных значений ANi (AFi) не превышает ±(0.001No6p +1) или ±(0.001Fo6p +1)
7. ОФОРМЛЕНИЕ РЕЗУЛЬТАТОВ ПОВЕРКИ-
7.1. Виброметр ПРОТОН-Баланс-П, прошедший поверку с положительными результатами, подлежит клеймению и допускается к эксплуатации.
-
7.2. При выпуске вибролметра из производства и ремонта, а также при периодической поверке в разделе паспортов на виброметр «сведения о поверке» делают запись о результате поверки и ставят подпись поверителя, проводившего поверку с нанесением оттиска поверительного клейма, либо оформляется свидетельство о поверке по установленной Госстандартом России форме.
-
7.3. При отрицательных результатах поверки виброметра при выпуске из производства и ремонта, а также при периодической поверке производиться гашение клейма в паспорте, либо оформляется извещение о непригодности виброметра с указанием причин.
-
7.4. По согласованию с заказчиком (пользователем) виброметра допускается проведение поверки только по параметру виброскорости, о чем указывается в свидетельстве о поверке.
Начальник отдела 204

А.Е. Рачковский
А.Г. Волченко
ФГУП «ВНИИМС»
Начальник лаборатории 204/3
ФГУП «ВНИИМС»
Испытатель

Ю.С. Дикарева
Установка тахометрическая УТ05-60 (Госреестр СИ № 6840-78);
1
1
I
I
I
1
I
1
1 I
Вращающийся !
\ ротор ;
1
]
1
I
I
1
I
1
Спето возвращаю щая пленка (паз, магнит)
л
* I
I
Преобразователь частоты вращения ДВО-02 (ДВТ-02^ДВМ-01)
1
1
3
---------------------------- з----------------

! Вибропреобразователь
Вибростол
Сетевой адаптер

Поверочная виброустановка
2 разряда в соответствии С ГОСТ Р 8.800-2012
К сети переменого тока
220 В 50 Гц
Рис. 1