Методика поверки «Преобразователи интеллектуальные ПИ РМ» (ОЦСМ 026196-2017 МП)
УТВЕРЖДАЮ

А.В. Бессонов
Зам. директора по метрологии
ФБУ «Омский ЦСМ»
2017 г.
Государственная система обеспечения единства измерений Преобразователи интеллектуальные ПИ РМ
МЕТОДИКА ПОВЕРКИ
ОЦСМ 026196-2017 МП
г. Омск
2017 г.
Настоящая методика поверки распространяется на преобразователи интеллектуальные ПИ РМ (далее по тексту - ПИ РМ), выпускаемые по МКСН.405544.028 ТУ, и устанавливает методику их первичной и периодической поверок.
Интервал между поверками - два года.
1 Операции поверки-
1.1 При проведении поверки выполняют операции, приведенные в таблице 1. Таблица 1 - Операции поверки
Наименование операции
Номер пункта методики поверки
Проведение операции при поверке
первичной
периодической
Внешний осмотр
7.1
+
+
Проверка эклектического сопротивления изоляции
7.2
+
-
Опробование
7.3
+
+
Определение метрологических характеристик
7.4
+
+
-
1.2 По заявлению Заказчика допускается проведение поверки ПИРМ, настроенных для работы с конкретным типом первичного преобразователя. При этом в (паспорте) свидетельстве о поверке приводится информация об объеме проведенной поверки.
-
1.3 Если при проведении той или иной операции поверки получен отрицательный результат, поверку прекращают, ПИ РМ признается непригодным к дальнейшей эксплуатации, выдается извещение о непригодности, с указанием причин непригодности.
-
2.1 При проведении поверки применяют основные и вспомогательные средства поверки, приведенные в таблице 2.
-
2.2 Допускается применение аналогичных средств поверки, обеспечивающих определение метрологических характеристик счетчика с требуемой точностью.
-
3.1 Поверку СИ осуществляют аккредитованные в соответствии с законодательством Российской Федерации об аккредитации в национальной системе аккредитации юридические лица и индивидуальные предприниматели.
-
3.2 К проведению поверки допускаются лица, изучившие настоящую методику поверки, эксплуатационную документацию на ПИРМ, средства их поверки и настоящую методику поверки.
Таблица 2 - Основные и вспомогательные средства поверки
Номер пункта методики поверки |
Наименование и тип основного или вспомогательного средства поверки; обозначение нормативного документа, регламентирующего основные технические требования и (или) метрологические и основные технические характеристики средства поверки |
7.2 |
Мегаомметр ЭСО 210/1: - диапазон измерений от 0 до 1000 МОм; КТ 2,5 |
7.4 |
Калибратор программируемый П320:
где Uk (Ik) - безразмерная величина, численно равная значению калиброванного напряжения в мВ на пределе 100 мВ, в В на пределе 10 В (значению калиброванного тока в мА) |
7.4 |
Магазин сопротивления Р4831: - диапазон показаний от 0,021 до 1111111,1 Ом; КТ 0,02/2 -10'6. |
7.4 |
Термостат нулевой ТН-1М: - номинальная температура термостатируемой среды 0 °C; неравномерность ±0,01 °C |
7.3, 7.4 |
Источник питания постоянного тока: - диапазон воспроизведения выходного напряжения до 30 В; ПГ ± 2 % |
7.3, 7.4 |
Персональный компьютер ПЭВМ: - операционная система - Windows ХР и выше |
7.3, 7.4 |
Переходник USB/PM МКСН.467141.003 |
7.3,7.4 |
Программное обеспечение «МИРС» МКСН.64302566540.00027-01 |
6,7 |
Прибор комбинированный Testo 608-Н1:
|
6,7 |
Барометр-анероид метеорологический БАММ-1: - диапазон измерений от 80 до 106 кПа; ПГ ± 0,2 кПа |
4 Требования безопасности
-
4.1 Корпус ПИ РМ должен быть заземлен с помощью зажима защитного заземления.
-
4.2 При проведении поверки необходимо соблюдать требования «Правил по охране труда при эксплуатации электроустановок».
При проведении поверки должны соблюдаться нормальные условия измерений:
-
- температура окружающего воздуха, °C от 15 до 25;
-
- относительная влажность окружающего воздуха, % от 30 до 80;
-
- атмосферное давление, кПа (мм рт. ст.) от 84,0 до 106,7 (от 630 до 800);
-
- напряжение питания постоянного тока, В (24,00±0,48).
6.1ПИРМ, представляемые на поверку, должны иметь в комплекте руководство по эксплуатации.
-
6.2 Выдержать ПИ РМ в помещении, где проводится поверка в условиях измерений, приведенных в разделе 5 настоящей методики, не менее двух часов.
-
6.3 Подготовить к работе основные и вспомогательные средства поверки в соответствии с требованиями их эксплуатационной документации.
-
6.4 Выходные и входные цепи подключают через кабельные выводы ПИ РМ. Все измерения должны проводиться не ранее, чем через 10 минут после подключения электропитания к ПИ РМ.
-
6.5 Перемычки на разъемах ХР1 и ХР2 ПИРМ должны быть установлены в положение «ON» в соответствии с рисунком 1.
ON
YP9 'О X.
Рисунок 1 - Положение перемычек на разъемах ХР1 и ХР2
-
6.6 Для начала работы с ПИ РМ по радиоканалу необходимо установить на персональный компьютер ПО «МИРС», а также драйвер для работы переходника «USB/РМ».
-
6.7 Питание ПИ РМ осуществляется постоянными напряжением от (24,00±0,48) В через разъем XS1, антенна подключается к ПИРМ через разъем XS2. При этом полярность подключения напряжения значения не имеет.
-
7 Проведение поверки
-
7.1.1 При проведении внешнего осмотра должно быть установлено следующее:
-
- отсутствие видимых механических повреждений и дефектов, в том числе и покрытия, ухудшающих внешний вид ПИ РМ и препятствующих его применению;
-
- соответствие комплектности, внешнего вида и маркировки требованиям эксплуатационной документации;
-
- целостность пломб завода-изготовителя.
-
7.1.2 ПИРМ, не удовлетворяющие вышеперечисленным требованиям, к дальнейшей поверке не допускаются.
-
7.2.1 Проверку электрического сопротивления изоляции ПИРМ проводят мегаомметром напряжением 500 В, подключая выводы мегаомметра к контактам 1 и 2 разъема ХР1 (со снятой перемычкой).
-
7.2.2 Результат проверки считают удовлетворительным, если электрическое сопротивление изоляции не менее 100 МОм.
-
7.3.1 Подключите к свободному USB-порту ПК переходник «USB/РМ». В диспетчере устройств операционной системы определите номер виртуального COM-порта, выделенного переходнику «USB/РМ».
-
7.3.2 Запустите программное обеспечение «МИРС» (далее по тексту - ПО) и в окне «Настройки программы» введите необходимые параметры согласно таблице 3.
Таблица 3 - Параметры настройки ПО «МИРС»
Параметр |
Настройки |
№ СОМ-порта |
Номер СОМ-порта, назначенного операционной системой переходнику «USB/РМ» |
№ радиоканала |
Номер радиочастотного канала (от №16 до №23). Для новых устройств по умолчанию задан радиоканал №16. Если устройство в процессе эксплуатации переводилось на другой канал, введите номер последнего рабочего канала. |
Периодичность опроса |
С интервалом в 1 секунду |
-
7.3.3 В меню «Устройства» выберите пункт «Добавить». В открывшемся окне введите серийный (заводской) номер, указанный на корпусе ПИ РМ, нажмите кнопку «Применить».
-
7.3.4 В меню «Опрос» выберите пункт «Начать». После этого ПО начнет отправку запросов на добавленные в сеть ПИ РМ с заданной периодичностью. Отправка данных по радиоканалу отображается включением зеленого и периодическими вспышками красных светодиодов переходника «USB/РМ».
Предварительно убедившись в соблюдении ограничений по дальности обмена, включите питание ПИ РМ. При успешном обмене индикатор «Статус» соответствующего ПИ РМ в ПО приобретет цветовую окраску.
-
7.3.5 В окне параметров выбранного ПИ РМ откройте вкладку «Сведения об устройстве» и нажмите кнопку «Считать контрольную сумму»
-
7.3.6 Результаты опробования считать положительными, если ПИ РМ обеспечивает передачу измерительной информации по радиоканалу, а идентификационные данные внутреннего программного обеспечения ПИ РМ соответствуют приведенным в таблице 4.
Таблица 4 - Идентификационные данные ПО
Идентификационные данные (признаки) |
Значение | |
Идентификационное наименование ПО |
Внутреннее программное обеспечение | |
ПИ РМ-ТС/ТП |
ПИ РМ-Т/Н | |
Номер версии (идентификационный номер) ПО |
не ниже 17.5 |
не ниже 17.5 |
Цифровой идентификатор ПО |
0хЕВ02 |
0хЗА8С |
Алгоритм вычисления контрольной суммы |
CRC16 |
CRC16 |
-
7.4 Определение метрологических характеристик
-
7.4.1 Проверка основной приведенной погрешности ПИ РМ-ТС/ТП, настроенных для работы с преобразователями термоэлектрическими
-
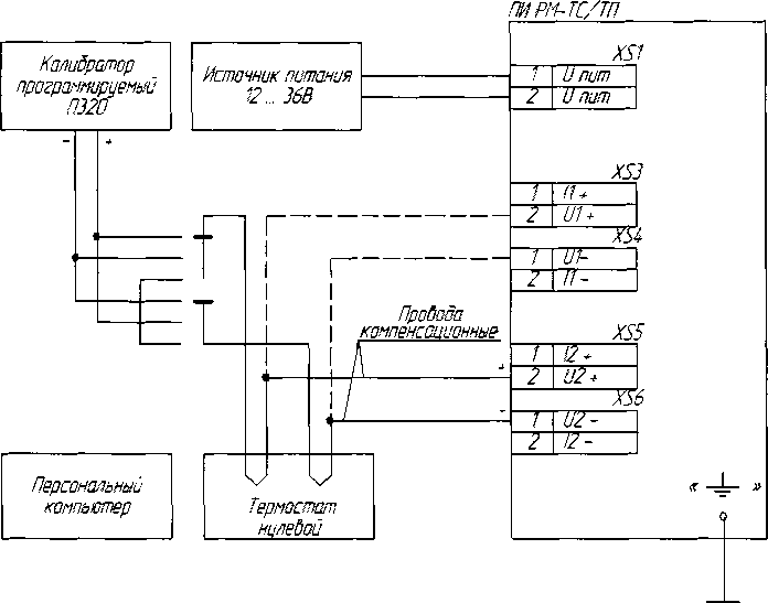
7.4.1.1 Собирают схему подключений в соответствии с рисунком А.1 Приложения А.
-
7.4.1.2 При помощи ПО на ПК настраивают оба канала ПИРМ на работу с преобразователями термоэлектрическими и выбирают необходимый тип ТП.
-
7.4.1.3 На калибраторе программируемом П320 для выбранного типа ТП выставляют входные напряжения, соответствующие ТЭДС для нижней, средней и верхней точек температурного диапазона в соответствии с таблицей В.1 Приложения В.
-
7.4.1.4 Для каждого из двух каналов при указанных входных напряжениях рассчитывают основную приведенную погрешность измерений у, %, по формуле:
Г = —V^'100%, (1)
'макс 'мин
где Тизм - значение температуры, измеренное ПИ РМ, °C;
Твх - температура, соответствующая входному напряжению по НСХ ТП, °C;
Тмакс - верхняя точка диапазона измерений для данного вида ТП, °C;
Тмин - нижняя точка диапазона измерений для данного вида ТП, °C.
7.4.2 Проверка основной приведенной погрешности ПИ РМ-ТС/ТП, настроенных для работы с термопреобразователями сопротивления-
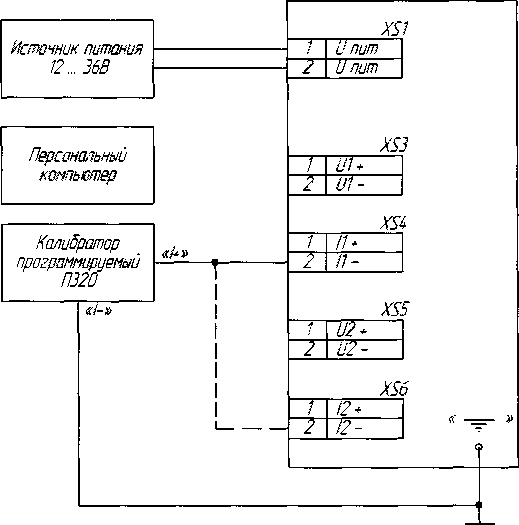
7.4.2.1 Собирают схему подключения в соответствии с рисунком А.2 Приложения А.
-
7.4.2.2 При помощи ПО на ПК настраивают оба канала ПИ РМ на работу с термопреобразователями сопротивления и выбирают необходимый тип ТС.
-
7.4.2.3 Для выбранного типа ТС на магазине сопротивления Р4831 выставляют сопротивление, соответствующие нижней, средней и верхней точке температурного диапазона в соответствии с таблицей В.2 Приложения В.
-
7.4.2.4 Для каждого из двух каналов при указанных входных напряжениях рассчитывают
основную приведенную погрешность измерений у, %, по формуле:
Г = ■ 100 %, (2)
*макс *мин
где Тизм - значение температуры, измеренное ПИ РМ, °C;
Твх - температура, соответствующая входному сопротивлению от ТС, °C;
Тмакс - верхняя точка диапазона измерений для данного вида ТП, °C;
Тмин - нижняя точка диапазона измерений для данного вида ТП, °C.
7.4.3 Проверка основной приведенной погрешности ПИ РМ-Т/Н, настроенных для работы с преобразователями с унифицированным токовым выходным сигналом-
7.4.3.1 При работе с преобразователями с унифицированным выходным сигналом ПИ РМ-Т/Н измеряет входной сигнал X. изменяющийся в диапазоне от минимального значения А^ин до максимального значения Амакс, и рассчитывает выходной сигнал Y (в соответствии с заданным пользователем диапазоном его изменения от минимального
значения Кмин до максимального значения КМакс) по формуле:
V 'мин
(X А*ин)’(Амане Умин) Амане-Амин)
(3)
-
7.4.3.2 Собирают схему подключения в соответствии с рисунком Б.1 Приложения Б.
-
7.4.3.3 При помощи ПО на ПК настраивают оба канала ПИ РМ на измерение токового сигнала (4-20) мА, задают верхнюю и нижнюю границы выходного сигнала КМакс и Кмин.
-
7.4.3.4 Включают калибратор программируемый П320 и выставляют значение входного
сигнала (тока) X, равным 4 мА (Хмт), 12 мА и 20 мА (Амакс)- Для каждого из указанных значений входного сигнала в ПО на ПК фиксируют измеренное значение выходного сигнала Кизм, рассчитывают ожидаемое значение выходного сигнала Y по формуле (3), а также
величину основной приведенной погрешности измерений у, %, по формуле:
^изм А
Амане —Амин
• 100 %.
(4)
-
7.4.4.1 Собирают схему подключения в соответствии с рисунком Б.2 Приложения Б.
-
7.4.4.2 При помощи ПО на ПК настраивают оба канала ПИ РМ на измерение унифицированного сигнала напряжения (0-10) В, задают верхнюю и нижнюю границы выходного сигнала Кмакс и Кмин.
-
7.4.4.3 Включают калибратор программируемый П320 и выставляют значение входного сигнала (напряжения) X, равным О В (Х,ин), 5 В и 10 В (Хмакс). Для каждого из указанных значений входного сигнала в ПО на ПК фиксируют измеренное значение выходного сигнала Уизм, рассчитывают ожидаемое значение выходного сигнала Y по формуле (3), а также величину основной приведенной погрешности измерений у, %, по формуле (4).
-
7.5 ПИ РМ считается соответствующим установленным в описании типа метрологически требованиям и пригодным к применению в сфере государственного регулирования обеспечения единства измерений, если основная приведенная погрешности измерений не превышает:
-
- ± 0,5 % для ПИ РМ-ТС/ТП, настроенных для работы с преобразователями
термоэлектрическими типов ТПЩБ) и ТПР(В);
-
- ± 0,2 % для ПИ РМ, настроенных для работы с остальными типами первичных преобразователей.
-
8.1 Результаты поверки оформляют протоколом поверки произвольной формы.
-
8.2 Положительные результаты первичной поверки оформляют оттиском поверительного клейма в паспорте на ПИ РМ.
-
8.3 Положительные результаты периодической поверки оформляют свидетельством о поверке.
-
8.4 В случае, если поверка ПИ РМ проводилась с учетом конкретного типа первичного преобразователя, в паспорте (свидетельстве о поверке) приводится информация об объеме проведенной поверки.
-
8.5 При отрицательных результатах первичной поверки ПИ РМ считают к применению в сфере государственного регулирования обеспечения единства измерений.
-
8.6 При отрицательных результатах периодической поверки ПИ РМ считают непригодным к применению в сфере государственного регулирования обеспечения единства измерений, свидетельство о поверке аннулируют, оттиск поверительного клейма гасят и выдают извещение о непригодности, с указанием причин непригодности.
Схемы подключений преобразователей интеллектуальных ПИ РМ-ТС/ТП

Провода компенсационные должны быть изготовлены из материала термопары исследуемого типа.
Рисунок А.1 - Схема подключения приборов для проверки параметров ПИ РМ-ТС/ТП при работе с преобразователями термоэлектрическими
ПИРМ-ТС/ТП

Рисунок А.2 - Схема подключения приборов для проверки параметров ПИ РМ-ТС/ТП при работе с термопреобразователями сопротивления
Приложение Б
(обязательное)Схемы подключений преобразователей интеллектуальных ПИ РМ-Т/Н
ПИ РМ-Т/Н

Рисунок Б.1 - Схема подключения приборов для проверки параметров ПИ РМ-Т/Н при работе с первичными преобразователями с унифицированным токовым выходным сигналом
ПИРГ1-Т/Н

Рисунок Б.2 - Схема подключения приборов для проверки параметров ПИ РМ-Т/Н при работе с первичными преобразователями с унифицированным выходным сигналом напряжения
Приложение В (справочное)
Входные сигналы, соответствующие ТЭДС ТП или сопротивлению ТС
для нижней, средней и верхней точек температурного диапазона
Таблица В.1 - ПИ РМ-ТС/ТП при работе с преобразователями термоэлектрическими
Тип ТП |
Нижняя точка диапазона |
Средняя точка диапазона |
Верхняя точка диапазона | |||
Т, °C |
U, мВ |
Т, °C |
U, мВ |
Т, °C |
U, мВ | |
ТХА(К) |
-100 |
-3,554 |
+600 |
+24,905 |
+1300 |
+52,41 |
tock(J) |
-100 |
-4,633 |
+550 |
+30,216 |
+1200 |
+69,553 |
TXK(L) |
-100 |
-5,641 |
+250 |
+18,642 |
+600 |
+49,108 |
Tnn(S) |
0 |
0 |
+875 |
+8,170 |
+1750 |
+18,503 |
ТПР(В) |
+600 |
+1,792 |
+1200 |
+6,786 |
+1800 |
+13,591 |
Таблица В.2 - ПИ РМ-ТС/ТП при работе с термопреобразователями сопротивления
Тип ТП |
Нижняя точка диапазона |
Средняя точка диапазона |
Верхняя точка диапазона | |||
Т, °C |
R, Ом |
Т, °C |
R, Ом |
Т, °C |
R, Ом | |
50П |
-100 |
29,82 |
+325 |
111,41 |
+750 |
182,41 |
100П |
-100 |
59,64 |
+325 |
222,82 |
+750 |
364,82 |
Pt50 |
-100 |
30,13 |
+325 |
110,46 |
+750 |
180,32 |
PtlOO |
-100 |
60,26 |
+325 |
220,92 |
+750 |
360,64 |
50М |
-100 |
28,27 |
+50 |
60,70 |
+200 |
92,80 |
100М |
-100 |
56,54 |
+50 |
121,40 |
+200 |
185,60 |