Методика поверки «ГСОЕИ. ТЕПЛОСЧЕТЧИКИ СТУ-1» (МП 1168-1-2020)
ВСЕРОССИЙСКИЙ НАУЧНО-ИССЛЕДОВАТЕЛЬСКИЙ ИНСТИТУТ РАСХОДОМЕТРИИ -ФИЛИАЛ ФЕДЕРАЛЬНОГО ГОСУДАРСТВЕННОГО УНИТАРНОГО ПРЕДПРИЯТИЯ «ВСЕРОССИЙСКИЙ НАУЧНО-ИССЛЕДОВАТЕЛЬСКИЙ ИНСТИТУТ МЕТРОЛОГИИ им. Д.И.МЕНДЕЛЕЕВА»
ВНИИР - филиал ФГУП «ВНИИМ им. Д.И.Менделеева»
УТВЕРЖДАЮ
Заместитель директора по развитию

Тайбинский
Государственная система обеспечения единства измерений
ТЕПЛОСЧЕТЧИКИ СТУ-1
Методика поверки
МП 1168-1-2020

Р.А. Корнеев
02
. отдела: +7(843) 272-12-г. Казань
2020
Содержание-
5 Метрологические и технические требования к средствам поверки
-
6 Требования (условия) по обеспечению безопасности проведения поверки
-
10 Определение метрологических характеристик средства измерений
-
11 Подтверждение соответствия средства измерений метрологическим
характеристикам
Приложение А Схемы поверки расходомерной части теплосчетчиков
Приложение Б Зависимость скорости распространения УЗС в воде от температуры 47 при атмосферном давлении 0,101325 МПа, м/с
Сокращения и обозначенияАК - акустический канал
АЦП - аналого-цифровой преобразователь
БД - база данных
ВС - водосчетчик
ГВС - горячее водоснабжение
ЖКИ - жидкокристаллический индикатор
ПД - преобразователь давления
НС - нештатная ситуация
ПК - персональный компьютер
ПЭП - пьезоэлектрический преобразователь
ПТС - преобразователь температуры сопротивления
0 - температура
ТР - трубопровод
ТС - теплосчетчик
ТВ 1 - первый тепловой ввод
ТВ2 - второй тепловой ввод
Тр - время наработки теплосчетчиков
0 х - температура холодной воды
УЗС - ультразвуковой сигнал
УПР - ультразвуковой преобразователь расхода
ЭБ - электронный блок
DN - номинальный диаметр
Q - количество тепловой энергии
W - тепловая мощность
М - масса
V - объем
q - объемный расход
цм - массовый расход
Д0 - разность температур
h - энтальпия
р - плотность
Р - давление
Е - относительная погрешность
D - абсолютная погрешность
у - приведенная погрешность
1 Общие положенияНастоящая методика поверки распространяется на теплосчетчики СТУ-1 (в дальнейшем - теплосчетчики) и устанавливает методику и последовательность проведения первичной и периодической поверок беспроливным и проливным методами.
Первичная поверка теплосчетчиков СТУ-1 Модель ЗМ.1 заключается в определении погрешности расходомерной части теплосчетчиков, поставляемых совместно с ультразвуковыми преобразователями расхода (УПР) с номинальными диаметрами (DN) от 15 по 50, в ходе одного этапа на расходомерной установке при использовании проливного метода, определении погрешности каналов измерения температуры и давления.
Первичная поверка теплосчетчиков СТУ-1 Модель ЗМ.2, Модель ЗМ.З, Модель ЗМ.4 заключается в определении:
-
- погрешности расходомерной части теплосчетчиков, поставляемых совместно с ультразвуковыми преобразователями расхода (УПР) с номинальными диаметрами (DN) от 15 по 100 мм, в ходе одного этапа на расходомерной установке при использовании проливного метода, погрешности каналов измерения температуры и давления;
-
- погрешности расходомерной части теплосчетчиков, поставляемых без УПР, в ходе одного этапа беспроливным (имитационным) методом, погрешности каналов измерения температуры и давления;
-
- погрешности расходомерной части теплосчетчиков, поставляемых с УПР для трубопроводов с номинальными диаметрами (DN) от 50 по 300 мм, в ходе двух этапов беспроливным (имитационным) методом, погрешности каналов измерения температуры и давления. На первом этапе определяются погрешности электронного блока, на втором этапе определяются геометрические параметры УПР и осуществляется градуировка на месте эксплуатации.
Средства измерений (СИ), входящие в состав теплосчетчика (СИ температуры и разности температур, СИ давления, внешние водосчетчики и расходомеры) поверяются согласно своим нормативным документам по поверке.
Прослеживаемость теплосчетчика к Государственному первичному специальному эталону единиц массы и объема жидкости в потоке, массового и объемного расходов жидкости ГЭТ 63-2019 обеспечивается в соответствии с Государственной поверочной схемой для средств измерений массы и объема жидкости в потоке, объема жидкости и вместимости при статических измерениях, массового и объемного расходов жидкости (часть 1), утвержденной приказом Госстандарта от 07.02.2018 № 256. В методике поверки реализован следующий метод передачи единиц: непосредственное сличение.
Интервал между поверками - 4 года.
2 Перечень операций поверки средства измеренийПри проведении поверки теплосчетчиков должны быть выполнены операции, указанные в таблице 2.1
При проведении поверки проводят операции, указанные в таблице 2.1. Таблица 2.1- Операции поверки
Наименование операции |
Номер раздела, пункта |
Обязательность проведения операции | |||||
при первичной поверке |
при периодиче-ской поверке | ||||||
этап I |
этап II | ||||||
с УПР |
без УПР |
с УПР |
без УПР |
с УПР |
без УПР | ||
1 |
2 |
3 |
4 |
5 |
6 |
7 |
8 |
1 Внешний осмотр |
7 |
да |
да |
нет |
да |
да |
да |
2 Подготовка к поверке и опробование теплосчетчика |
8 | ||||||
- подготовка к поверке |
8.1 |
да |
да |
нет |
да |
да |
да |
- опробование |
8.2 |
да |
да |
нет |
да |
да |
да |
- проверка сопротивления изоляции электронного блока |
8.3 |
да |
да |
нет |
нет |
да |
да |
Продолжение таблицы 2.1
1 |
2 |
3 |
4 |
5 |
6 |
7 |
8 |
- проверка сведений в Федеральном информационном фонде по обеспечению единства измерений о результатах поверки средств измерений, входящих в состав теплосчетчика |
8.4 |
да |
да |
нет |
нет |
да |
да |
3 Проверка программного обеспечения теплосчетчика |
9 |
да |
да |
да |
да |
да |
да |
4 Определение метрологических характеристик теплосчетчика (электронного блока и теплосчетчика) в режимах: |
10 | ||||||
- измерения времени распространения ультразвуковых импульсов |
10.1.1 |
да |
да |
нет |
нет |
да |
да |
- измерения расхода и объема теплоносителя расходомерной частью теплосчетчиков УР1, УР2, УРЗ, УР4 и входных измерительных каналов ВСЗ, ВС4, ВС5, ВС6 |
10.1.2
|
да |
да |
нет |
нет |
да |
да |
- измерения температуры, разности температуры |
|
да |
да |
нет |
нет |
да |
да |
- проверки сохранения введенных параметров и измеренной информации |
10.1.7 |
да |
да |
нет |
нет |
да |
да |
- преобразования электронным блоком входных данных и индикации тепловой мощности и тепловой энергии |
10.1.8 10.1.9 |
да |
да |
нет |
нет |
да |
да |
- измерения тепловой энергии (количества тепловой энергии) |
10.1.10 |
да |
да |
нет |
нет |
да |
да |
- измерения давления |
10.1.11- 10.1.13 |
да |
да |
нет |
нет |
нет |
нет |
- измерения интервалов времени |
10.1.14 |
да |
да |
нет |
нет |
да |
да |
5 Определение и измерение линейно-угловых параметров |
10.2 | ||||||
Определение и измерение линейно-угловых параметров УПР: |
10.2.1 | ||||||
- внутреннего диаметра корпуса УПР |
10.2.1.1 |
да |
нет |
нет |
да |
да |
нет |
- расстояния между ПЭП в УПР |
10.2.1.2 |
да |
нет |
нет |
да |
да |
нет |
- угла наклона оси акустического канала к оси трубопровода |
10.2.1.3 |
да |
нет |
нет |
да |
нет |
нет |
Окончание таблицы 2.1
1 |
2 |
3 |
4 |
5 |
6 |
7 |
8 |
- смещения оси акустического канала относительно центральной оси трубопровода |
10.2.1.4 |
да |
нет |
нет |
да |
нет |
нет |
Определение и измерение линейно-угловых параметров трубопровода: |
10.2.2 | ||||||
- наружного диаметра трубопровода |
10.2.2.1 |
да |
нет |
нет |
да |
нет |
нет |
- толщины стенки трубопровода |
10.2.2.1 |
да |
нет |
нет |
да |
да |
нет |
- внутреннего диаметра трубопровода |
10.2.2.2 |
да |
нет |
нет |
да |
да |
нет |
- смещения оси акустического канала |
10.2.2.3 |
да |
нет |
нет |
да |
нет |
нет |
- длины активной части акустического канала |
10.2.2.4 |
да |
нет |
нет |
да |
да |
нет |
- угла наклона оси акустического канала |
10.2.2.5 |
да |
нет |
нет |
да |
нет |
нет |
- расстояния между ПЭП в трубопроводе |
10.2.2.6 |
да |
нет |
нет |
да |
да |
нет |
- коэффициента коррекции |
10.2.3 |
да |
нет |
нет |
да |
да |
да |
- гидродинамического коэффициента |
10.2.4 |
да |
нет |
нет |
да |
да |
да |
6 Определение погрешности расходомерной части теплосчетчиков на установке поверочной. |
10.3.1 |
да |
нет |
нет |
нет |
нет |
нет |
Примечания
|
-
3.1 При проведении поверки беспроливным методом должны быть соблюдены следующие условия:
- температура окружающего воздуха, °C:
для теплосчетчиков
от плюс 5 до плюс 40
от 0 до плюс 50
от плюс 5 до плюс 150
от 30 до 80
от 187 до 242
от 49 до 51
для УПР и пьезопреобразователей
-
- температура поверочной жидкости, °C
-
- относительная влажность, %
-
- напряжение питающей сети, В
-
- частота питающего напряжения, Гц
Пр и меч ан ие - Допускается проведение поверки в рабочих условиях эксплуатации теплосчетчиков при соблюдении требований к условиям эксплуатации поверочного оборудования.
-
3.2 Первичную поверку теплосчетчиков, выпускаемых без УПР, на этапе I следует проводить на кювете УТ-12 с технологическими пьезопреобразователями.
Поверочная жидкость - вода.
При проведении этапа II первичной и периодической поверок в качестве поверочной жидкости используется жидкость из действующего трубопровода, где эксплуатируются теплосчетчики.
-
3.3 При определении погрешности расходомерной части теплосчетчиков, выпускаемых с УПР, на установке поверочной проливным методом должны быть соблюдены следующие условия:
-
- температура окружающего воздуха, °C от плюс 15 до плюс 25
-
- относительная влажность, %, не более 80
-
- атмосферное давление, кПа от 84 до 106,7
-
- поверочная жидкость - вода по СанПиН 2.1.4.1074-2001
-
- температура поверочной жидкости, °C от плюс 15 до плюс 25
-
- давление, МПа, не более 2,5
-
3.4 Изменение температуры поверочной жидкости в процессе поверки теплосчетчиков не должно превышать ±2 °C.
-
3.5 Режим движения потока в трубопроводе должен быть установившимся. Нестабильность потока не должна превышать ±1,5 %.
-
3.6 Изменение расхода в процессе поверки по функции измерения объема не должно превышать ±5 % от установившегося значения. Погрешность первоначальной установки расхода не должна превышать ±5 % от заданной.
-
3.7 Поверяемые первичные преобразователи должны присоединяться к измерительному участку поверочной установки через прямолинейные участки труб длиной не менее 15-DN до УПР и 5-DN после него.
-
3.8 Отсутствие внешних электрических, магнитных полей, кроме земного магнитного поля, вибрации, тряски и ударов, влияющих на работу теплосчетчиков.
При проведении поверки теплосчетчиков также соблюдают условия, указанные в методике поверки его составных частей.
4 Требования к специалистам, осуществляющим поверку Поверка теплосчетчиков должна проводиться организацией, аккредитованной в уста- |
новленном порядке.
При проведении поверки специалисты должны соответствовать следующим требова-
ниям: |
5 Метрологические и технические требования к средствам поверки |
-
5.1 Метрологические и технические требования к средствам поверки приведены в таблице 5.1
Таблица 5.1- Метрологические и технические требования к средствам поверки
Наименование средства поверки |
Характеристики точности |
1 |
2 |
Установка поверочная УПСЖ-50, регистрационный номер 29553-05 |
Диапазон расхода от 1,0 до 50 м3/ч, погрешность не более ±0,3 % |
Частотомер универсальный GFC-8131H, регистрационный номер 19818-00 |
Диапазон измеряемых частот от 0,01 Гц до 120 МГц, относительная погрешность по частоте кварцевого генератора ±5 • 10'7 % |
Генератор сигналов низкочастотный ГЗ-112/1, регистрационный номер 6703-02 |
Диапазон частот от 10 Гц до 10 МГц, основная погрешность установки частоты в диапазоне от 10 Гц до 1 МГц ±[2 +(30/f)] %, в диапазоне от 1 до 10 МГц ±3 % |
Секундомер электронный «Интеграл С-01», регистрационный номер 44154-16 |
Пределы измерений от 0,01 до 35999,99 с, основаная абсолютная погрешность ±(9,6-10'6-(измеренный интервал времени в с)+0,01) с |
Термометр ртутный стеклянный лабораторный ТЛ-4, регистрационный номер 303-91 |
Цена деления 0,1 °C, диапазон измерений от 0 доЮО °C, ТУ 25-2021.003-88 |
Вольтметр универсальный цифровой GDM-8245, регистрационный номер 34295-07 |
Пределы измерений 0-500 мА, 0-500 В |
Штангенциркуль ШЦ-1-150-0,05; регистрационный номер 260-05 |
Цена деления 0,05 мм, диапазон измерений от 0 до 150 мм, ГОСТ 166-89 |
Рулетка измерительная металлическая Р, модификация Р20У2К, регистрационный номер 51171-12 |
Диапазон измерений от 0 до 20 м, класс 2 |
Угломер с нониусом 2-2, модель 127, регистрационные номера 957-54, 957-01 |
Диапазон измерений внутренних углов от 40° до 180°, наружных углов - от 0° до 360°, основная погрешность не более 2’, ГОСТ 5378-88 |
Меры электрического сопротивления многозначные постоянного тока Р3026 (регистрационные номера 8478-91, 8478-04) в количестве 2 штук |
Диапазон измерений от 0,01 Ом до 111111,1 Ом, класс точности 0,005/1,5-10’6 |
Примечания
|
-
5.2 При проведении поверки используются комплекты приспособлений:
-
- УТ-12 - кювета;
-
- ПР003 - для измерения расстояния между ПЭП;
-
- ПР005 - для измерения угла наклона оси акустического канала;
-
5.3 При проведении расчетов при поверке допускается использовать автоматизированное программное средство поверки TestBox, размещенное на сайте предпрятия-изготовителя.
-
6.1 К проведению поверки допускаются лица, прошедшие инструктаж по технике безопасности.
-
6.2 При работе с измерительными приборами и вспомогательным оборудованием должны быть соблюдены требования безопасности, оговоренные в соответствующих технических описаниях и инструкции по эксплуатации применяемых приборов.
-
6.3 Работы по п. 10.3 производить при остановленном потоке и опорожненном трубопроводе.
-
6.4 При определении погрешности расходомерной части теплосчетчиков на установке поверочной необходимо проверить наличие заземления первичного преобразователя и исправность разъемных соединений кабелей связи и питания.
-
6.5 При изготовлении, монтаже и ремонте необходимо соблюдать в соответствии с категорией трубопровода Федеральные нормы и правила в области промышленной безопасности «Правила промышленной безопасности опасных производственных объектов, на которых используется оборудование, работающее под избыточным давлением», утвержденные приказом Федеральной службы по экологическому, технологическому и атомному надзору от 25 марта 2014 года № 116, Руководство по безопасности «Рекомендации по устройству и безопасной эксплуатации технологических трубопроводов», утверждённое приказом Ростехнадзора № 784 от 27.12.2012, Федеральные нормы и правила в области промышленной безопасности «Общие правила взрывобезопасности для взрывопожароопасных химических, нефтехимических и нефтеперерабатывающих производств», а также ГОСТ 12.1.001-89 «ССБТ. Ультразвук. Общие требования безопасности».
-
6.6 При проведении поверки соблюдают следующие требования:
-правил эксплуатации электроустановок потребителей в соответствии с приказом Минэнерго России от 13 января 2003 года № 6;
-
- правил техники безопасности, действующих на месте проведения поверки;
-
- правил безопасности при эксплуатации средств поверки и теплосчетчика, приведенных в их эксплуатационных документах.
-
6.7 К средствам поверки и теплосчетчику обеспечивают свободный доступ.
-
6.8 Освещенность должна обеспечивать отчетливую видимость средств поверки и теплосчетчика, а также снятие показаний с них.
-
6.9 При появлении течи измеряемой среды и других ситуаций, нарушающих процесс проведения поверки, поверка должна быть прекращена или приостановлена до устранения неисправностей.
При внешнем осмотре должно быть установлено соответствие внешнего вида, состояния и комплектности теплосчетчиков руководству по эксплуатации ТЕСС 00.030.04 РЭ. Теплосчетчики не должны иметь видимых повреждений и деформаций.
Проверяется наличие пломб на УПР и электронном блоке, по нарушению которых контролируется несанкционированный доступ к теплосчетчикам.
При проверке правильности монтажа необходимо установить соответствие длины прямого участка трубопровода, условий монтажа пьезопреобразователей и теплосчетчиков требованиям, установленным в руководстве по эксплуатации ТЕСС 00.030.04 РЭ. Измерение длины прямого участка выполняется рулеткой или штангенциркулем.
8 Подготовка к поверке и опробование средства измерений-
8.1 Подготовка к поверке
-
8.1.1 Перед проведением всех операций поверки должны быть выполнены следующие подготовительные работы:
-
8.1.2 Проверка наличия паспортов на поверяемые теплосчетчики.
-
8.1.3 Проверка соблюдения условий поверки по разделу 3.
-
8.1.4 Подготовка к работе поверяемых теплосчетчиков и средств измерений в соответствии с их эксплуатационной документацией.
-
8.1.5 Перед этапом II первичной поверки определить:
-
-
- ГОСТ на изготовление и материал трубопровода, продолжительность его эксплуатации, состояние внутренней поверхности и наличие доступа к ее исследованию, возможность останова потока;
-
- наличие реверсивного потока при эксплуатации, диапазоны изменения расхода, температуры, вязкости и давления;
-
- возможность измерения параметров трубопровода и жидкости в условиях эксплуатации с требуемой точностью.
-
8.1.6 Убедиться, что поблизости от места проведения работ по поверке и места установки пьезопреобразователей не ведутся сварочные и другие работы, сопровождающиеся высоким уровнем электромагнитных излучений.
-
8.1.7 Осуществить проверку правильности собранной схемы поверки теплосчетчиков. Варианты схем при проведении поверки беспроливным методом приведены на рисунках 8.1, 8.2, 8.3, 8.4.
-
8.1.8 Перед проведением поверки на установке поверочной должны быть дополнительно произведены следующие работы.
-
8.1.9 Проверка герметичности соединений и узлов поверочной установки пробным давлением.
Систему считают герметичной, если при подаче рабочего давления в течение 5 минут не наблюдается течи или появления капель жидкости, а также отсутствует падение давления поверочной жидкости по контрольному манометру.
-
8.1.10 Выдержка перед поверкой теплосчетчиков в нерабочем состоянии - не менее 30 минут в условиях п. 3.3, а затем во включенном состоянии не менее 30 минут.
-
8.1.11 На первичную поверку проливным способом представляются теплосчетчики, отградуированные по п. 10.1 настоящей методики. Градуировка производится для заданного диапазона изменения расхода.
-
8.1.12 Перед проведением поверки также выполняют подготовительные работы, изложенные в документации на составные части теплосчетчиков.
-
8.1.13 При проверке правильности монтажа необходимо установить соответствие длины прямого участка трубопровода, условий монтажа пьезопреобразователей и теплосчетчиков требованиям, установленным в руководстве по эксплуатации ТЕСС 00.030.04 РЭ. Измерение длины прямого участка выполняется рулеткой или штангенциркулем.
-
8.1.14 Определение погрешности составных частей теплосчетчика и сравнение полученных значений погрешности с пределами допускаемой погрешности, установленными для составных частей теплосчетчика, и установление пригодности теплосчетчика к эксплуатации.
-
8.2 Опробование теплосчетчиков
-
8.2.1 При опробовании теплосчетчиков устанавливается их работоспособность в соответствии с указаниями руководства по эксплуатации ТЕСС 00.030.04 РЭ.
-
Примечания
-
1 На этапе I для опробования используются схемы, приведенные на рисунках 8.1, 8.2, 8.3, 8.4, где вместо кювет УТ-12 могут применяться УПР, входящие в комплект теплосчетчиков.
-
2 На этапе II опробование производится после завершения монтажа теплосчетчиков по схеме, приведенной на рисунках 8.1, 8.2, 8.3, 8.4, где вместо кювет используются УПР, входящие в комплект теплосчетчиков.
-
8.2.2 Необходимо подключить поверяемые теплосчетчики к сети переменного тока 220 В, частотой 50 Гц.
При исправной работе теплосчетчиков на экране ЖКИ должны отображаться текущие дата и время или код нештатной ситуации при ее наличии.
-
8.3 Проверку электрического сопротивления изоляции электронного блока в нормальных условиях проводят с помощью мегомметра, который подключают к контролируемой цепи по п.10.1.1 и прикладывают измерительное напряжение постоянного тока, равное 500 В.
Электронный блок считают годным, если действительное значение электрического сопротивления изоляции не менее 20 МОм.
-
8.4 Проверка сведений в Федеральном информационном фонде по обеспечению единства измерений о результатах поверки средств измерений, входящих в состав теплосчетчика
Проверяются сведения в Федеральном информационном фонде по обеспечению единства измерений о результатах поверки средств измерений, входящих в состав теплосчетчика, а также, при наличии, свидетельства о поверке средств измерений, и (или) паспорта (формуляры) средств измерений с записью о проведенной поверке, заверяемой подписью поверителя и знаком поверки, с указанием даты поверки.
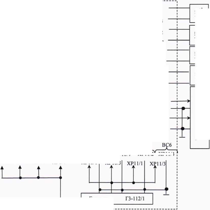
XS1/3
XS1/2
XS1/1 X I XS1/4
4--------у--------'
ypi ПТС2
Теплосчетчики СТУ-1 Модель ЗМ.1В£3 В£4
ГХР9/РГ_>0>9/4
ХР10/3
Z1-------о
ПТС1

”+cf!
XP1/1 -С1:
ХР1/2 —i-
+С2
ХР1/3

ХР1/4
Л— |
d+ ; |
CQ |
ХР4/1 |
<Z) | |
d- ! |
□ | |
ХР4/2 |
1 | |
1 |
ХР9/1
о--
ЧИС1

С1 | |||||||
ПЭП1 |
ПЭП2 | ||||||
Генератор ГЗ-112/1
ПЭП 1, 2, 3, 4 - Пьезоэлектрические преобразователи;
С1, С2 - кювета УТ - 12 или УПР;
А - вольтметр универсальный цифровой GDM-8245;
R - переменный резистор 500 Ом.
XS - разъемы типа DB 9 вилка;
ХР - разъемы типа 15EDGVC-3.81-04P
Рисунок 8.1 - Схема поверки теплосчетчика СТУ-1 Модель ЗМ.1 проливным методом
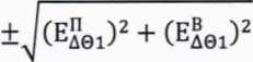
С1 | ||||||
ПЭП1 |
ПЭП2 | |||||
С2 | ||||||
ПЭПЗ |
ПЭП4 | |||||
ХР4/2
ПТС1
XS14/6
XS14/1
XS14/8
XS14/3
ПТС2
ХР5/3
ХРЗ/2
ПТСЗ
-<
ХРЗ/З
ХР2/2
ПТС4
ХР2/3
Модель ЗМ.2
ЧИС1
ЧИС2
ПД2
ПД1
ХР6/2
ХР6/1
ХР10/1
ХР10/3
ХР4/3
н
ХР5/2
УР1
УР2
ХР6/3 ХР6/4
ПДЗ ПД4
XS14/7 XS14/9 XS14/2 XS14/4
Ч_________. ___________J Ч_________.__________J
ХР9/1
ХР9/2
ХР9/3
ХР9/4

Частотомер электронно- МС МС МС МС
счетный GFC-8131H Р3026 Р3026 Р3026 Р3026
Генератор


В£3 Bf4 ВС5
ГХР1^Г5<Р10МАГ5срГ1/2’ ХР11/4

R -( А |
гл |
А |
|~- |
4»--------- |
БП-4 +12В, 0,3 А |
ПЭП 1, 2, 3, 4 - Пьезоэлектрические преобразователи;
С1, С2 - кювета УТ - 12 или У ПР;
А - вольтметр универсальный цифровой GDM-8245;
R - переменный резистор 500 Ом.
XS - разъемы типа DB 9 вилка;
ХР - разъемы типа 15EDGVC-3.81-04P

XS19/2 XS19/4,
'Т
I
< XS14/7 XS14/9> k XS14/2 XS 14/4, v XS19/7 XS19/? v
-------- v
УР1 УР2 УРЗ
1 | |
1 |
чО |
1 |
U гч |
1 1 |
ел |
1 |
О. |
I 1 1 1 | |
1 |
ч© |
и й | |
1 |
ГТ* о СП |
1 1 |
CL. |
1 |
Г ХРЗ/2
ХР2/2
----'v'-------
УР4
XP4/3
Г XP5/2
XP5/3
•ч
XP3/3
ПТС1
ПТС2
птсз
ПТС4
ЧИС1
ЧИС2

ХР9/1
ХР9/2
ХР9/3
ХР9/4
ЧИС4
_
{XP4/2
ХР2/3
1 1 |
мс Р3026 |
1 1 1 1 1 | |
1 1 4 | |
МС РЗО26 | |
1 1 1 | |
■ 1 |
BC6 ЧИСЗ
XP11/2 XP11/4 XP10/2 XP10/4 !
XP10/1
ВС5
ХР10/3
ПД1 ПД2 ПДЗ ПД4
ХР6/1 ХР6/2 ХР6/3 ХР6/4

Генератор ГЗ-112/1
+ 12В, 0,3 А
R |
-О |
ОД |
ПЭП 1, 2, 3, 4, 5, 6, 7, 8 - Пьезоэлектрические преобразователи;
Cl, C2, СЗ, C4 - кювета УТ - 12 или УПР;
А - вольтметр универсальный цифровой GDM-8245;
R - переменный резистор 500 Ом.
XS - разъемы типа DB 9 вилка;
ХР - разъемы типа 15EDGVC-3.81-04P

V XS12/2 XS12/4> v XS14/2 XS14/4, v XS18/2 XS18/4, v XS19/2 XS19/4,
к----' к---— --х ----—--- -----------

I


ПЭП 1, 2, 3, 4, 5, 6, 7, 8 - Пьезоэлектрические преобразователи;
Cl, С2, СЗ, С 4 - кювета УТ - 12 или УПР;
А - вольтметр универсальный цифровой GDM-8245;
R - переменный резистор 500 Ом.
XS - разъемы типа DB 9 вилка;
ХР-разъемы типа 15EDGVC-3.81-04P
9 Проверка программного обеспечения средства измеренийПроверку идентификационных данных программного обеспечения (ПО) можно проводить одним из трех способов:
-
1- й способ. Включить ЭБ, на индикаторе кратковременно индицируется номер версии ПО;
-
2- й способ. При опросе через интерфейс RS232 индицируется номер версии ПО;
-
3- й способ. При выводе на индикатор в разделе меню "СЛУЖЕБНЫЕ ДАН-НЫЕ/Версия" индицируются:
-
- наименование производителя прибора;
-
- идентификационное наименование ПО: STU-3;
-
- номер версии (идентификационный номер) ПО: 4.018;
-
- цифровой идентификатор ПО: 4541;
-
- идентификатор аналоговой части прибора.
Результат подтверждения соответствия программного обеспечения считается положительным, если полученные идентификационные данные программного обеспечения теплосчетчика СТУ-1 (идентификационное наименование ПО, номер версии (идентификационный номер) ПО, цифровой идентификатор ПО) соответствуют идентификационным данным, указанным в разделе «Программное обеспечение» описания типа СИ «Теплосчетчики СТУ-1», или отрицательным, если полученные идентификационные данные программного обеспечения теплосчетчика СТУ-1 (идентификационное наименование ПО, номер версии (идентификационный номер) ПО, цифровой идентификатор ПО) не соответствуют идентификационным данным, указанным в разделе «Программное обеспечение» описания типа СИ «Теплосчетчики СТУ-1». При отрицательном результате выполнение дальнейших операций по поверке прекращают.
-
10 Определение метрологических характеристик теплосчетчика
Беспроливной метод применяется при поверке теплосчетчиков СТУ-1 Модель ЗМ.2, Модель ЗМ.З и Модель ЗМ.4.
ВНИМАНИЕ!
1 Перед поверкой отключить режим аппроксимации, если он включен.
-
10.1.1 Определение относительной погрешности измерительных каналов УР1, УР2 (УРЗ, УР4) расходомерной части электронного блока в режиме измерения времени распространения ультразвуковых импульсов (УЗИ), осуществляется с помощью кюветы УТ-12, подключенной к теплосчетчику по схеме рисунка 8.1 или 8.2.
Перед проведением измерения определяют полусумму длин кабелей Ьк от вычислителя до ПЭП, расстояние 1 между ПЭП, которое измеряется штангенциркулем с погрешностью не более 0,1 мм. По таблице Б.1 (Приложение Б) и измеренному значению температуры воды определяется значение скорости ультразвука С в воде.
Поверка проводится следующим образом:
-
- установите окно меню "СЛУЖЕБН. ДАННЫЕ. Время распр. УЗИ";
-
- нажмите кнопку " J";
-
- зафиксируйте показания ЖКИ, рассчитайте время распространения ультразвукового импульса по потоку Tli в канале УР1 и против потока Т1о:
Ти =tXl -0,5-0,01-1^, мкс
Т1О =^-0,5-0,01-1^ мкс
где:
t ц- показания ЖКИ времени распространения УЗИ по потоку, t io - показания ЖКИ времени распространения УЗИ против потока, Lk-длина кабеля, м.
- аналогично зафиксируйте показания ЖКИ, рассчитайте время распространения ультразвукового импульса по потоку T2i в канале УР2 и против потока Т2о - в канале УР2 и аналогично по каналам УРЗ, УР4.
Должно выполняться условие, мкс:
|ТН-Т|О| <0,2 (1)
-
- рассчитайте среднее время распространения ультразвуковых импульсов, мкс:
tcP1 = (2)
-
- измерьте термометром температуру воды и по таблице Б. 1 (Приложение Б) определите скорость ультразвука С;
-
- вычислите расчетное значение времени распространения ультразвуковых импульсов, мкс:
tpac41=7106 (3)
где:
Li - расстояние между пьезоэлектрическими преобразователями, м,
С - скорость по таблице приложения Б, м/с;
- вычислите погрешность измерения времени распространения ультразвуковых импульсов Et по формуле:
Et = ■ Ю0% (4)
tpacs
Выполните все аналогичные операции для каналов УР2, (УРЗ, УР4).
Электронный блок признается годным, если относительные погрешности распространения ультразвуковых импульсов для измерительных каналов расходомерной части УР1, УР2, (УРЗ, УР4) не превышают ± 0,4 %.
-
10.1.2 Определение относительной погрешности объемного расхода и объема теплоносителя (воды) измерительных каналов УР1, УР2, УРЗ, УР4, ВСЗ, ВС4, ВС5, ВС6 электронного блока
-
10.1.2.1 Определение относительной погрешности электронного блока (ультразвуковые измерительные каналы УР1, УР2 (УРЗ, УР4) при преобразовании входных сигналов и индикации объемного расхода.
-
10.1.2.1.1 Предварительно следует ввести программируемые параметры для измерительных каналов УР1. УР2 (УРЗ, УР4), для этого:
-
-
-
- установите окно меню "ПРОГРАММИРОВАНИЕ УР1, УР2, УРЗ, УР4";
-
- нажмите кнопку "J", должно появиться сообщение "Дог.расх.м3/ч;
-
- нажмите кнопку "J";
-
- манипулируя кнопками "J", "1", " введите значение договорного расхода
для каналов УР1, УР2, УРЗ, УР4: Ч1дог = Ч2дог = ЧЗдог = Ч4дог = 50,0 м3/ч. Переключение с канала на канал производится кнопкой
-
- для ввода следующего параметра нажмите кнопку
-установите диаметры DI, D2, D3, D4 трубопроводов, м: берутся из паспорта ТЕСС 00.030.04 ПС на теплосчетчики (при поверке на кюветах УТ-12 DI = D2 = D3 = D4 = 0,05 м.);
-
- установите расстояния LI, L2, L3, L4 между ПЭП, м: берутся из паспорта ТЕСС 00.030.04 ПС на теплосчетчики или УТ-12;
-
- параметры Zl, Z2, Z3, Z4 - нулевые смещения, мкс - индикаторный режим;
-
- установите длины кабелей 11, 12, 13, 14 от ПЭП до вычислителя, м; берутся из паспорта ТЕСС 00.030.04 ПС на теплосчетчики или УТ-12;
-
- установите коэффициенты коррекции: KI = К2 = КЗ = К4 = 1,0;
-
- установите параметры qn, qi2, qi3, qi4 — минимальный объемный расход, м3/ч: qn= qi2= qi3= qi4 = 0,03 м3/ч;
-
- установите отсечки по расходу, qoi = q02 = q03 = qo4 = 0,01 qpi, м3/ч;
-
- установите постоянные времени интегрирования, сек: С1 = С2= СЗ = С4 = 20;
-
- при появлении сообщения "ВЫХОД", нажмите кнопку "J";
-
- при появлении сообщения "СОХРАНИТЬ?" выберите "ДА", нажав кнопку "J".
На этом программирование измерительных каналов УР1, УР2, УРЗ, УР4 завершается.
-
10.1.2.1.2 Автокоррекция канала УР1 проводится следующим образом:
-
- войдите в окно меню "КАЛИБРОВКА. Автокоррекция УР1";
-
- нажмите кнопку "J";
-
- дождитесь завершения автокоррекции канала УР1;
-
- войдите в окно меню "ИЗМЕРЕНИЕ. Объемный расход";
-
- зафиксируйте по ЖКИ показание расхода G1;
-
- вычислите относительное смещение нуля по формуле:
Е01 = — ‘ 100% (5)
Qsi
где:
qsi - максимальный объемный расход в канале УР1, берется из таблицы 2.2 руководства по эксплуатации, м3/ч;
qi - значение индицируемого расхода после процедуры автокоррекции, м3/ч.
Автокоррекцию канала УР1 проводят до тех пор, пока не будет выполнено условие Sol < ±0,5 %. Если после 5-кратного повторения автокоррекции данное условие не выполняется, дальнейшая поверка прекращается.
Автокоррекция каналов УР2 (УРЗ, УР4) проводится аналогично УР1.
-
10.1.2.1.3 Определение относительной погрешности измерительных каналов УР1, УР2 (УРЗ, УР4) расходомерной части электронного блока в режиме измерения объемного расхода производится в следующей последовательности:
-
- по номинальному диаметру из таблицы 2.2 руководства по эксплуатации выберите 0,1 qp, а из таблицы 10.1.1 - значение разности времени At распространения УЗИ, вводимую в электронный блок для имитации расхода. При поверке на приспособлении УТ-12 (исполнение без УПР) берутся значения диаметра DI = D2 = D3 = D4 = 0,05 м
Таблица 10.1.1
Разность времени At, нс | ||
0,1 qs |
3» | |
500 |
50 |
3,3 |
-
- установите окно меню "ПРОГРАММИРОВАНИЕ УР1, УР2, УРЗ, УР4";
-
- нажмите кнопку " J", должно появиться сообщение "Дог.расх.м3/ч;
-
- нажмите кнопку "J";
-
- нажмите три раза кнопку
-
- считайте значение нулевого смещения Z1;
-
- манипулируя кнопками "|", "|"," введите число Zl + Et с учетом знака Z1;
-
- переключаясь на каналы УР2, УРЗ, УР4 (нажимая кнопку >") и, манипулируя кнопками "|", "|",введите число Z2 + Et, Z3 + Et, Z4 + Et с учетом знака Z.
-
- нажмите шесть раз кнопку
-
- при появлении сообщения "ВЫХОД", нажмите кнопку " J";
-
- при появлении сообщения "СОХРАНИТЬ?" выберите "ДА", нажав кнопку "J";
-
- войдите в окно меню "ИЗМЕРЕНИЕ. Объемный расход";
-
- нажмите кнопку "J";
-
- считайте с ЖКИ и зафиксируйте показания измеренного объемного расхода qi, 42 (цз, q4) по каналам УР1, УР2 (УРЗ, УР4);
-
- вычислите расчетное значение Црасчь м3/ч, по формуле:
Чрас1 = 1413716,6 -£±1-Д1 (6)
1расч1
где:
Li - расстояние между торцами датчиков УТ-12 канала УР1из паспорта на кювету или при УПР - из паспорта ТЕСС 00.030.04 ПС, м;
1расч1 - значение из формулы 3 для канала УР1, мкс;
At - разность времени распространения УЗИ, берется из таблицы 10.1.2 для 0,1 qs, нс;
-
- рассчитайте относительную погрешность измерительного канала УР1 расходомерной части электронного блока в режиме измерения объемного расхода по формуле:
ЕВ _ Ч^Чрасч . 100о/о (7)
Чрасч
Относительные погрешности ЕЧ2В (Ечзв, Ечдв) электронного блока в режиме измерения объемного расхода, рассчитывается аналогично EqiB.
При выборе меню "ИЗМЕРЕНИЕ. Массовый расход" аналогичным образом рассчитывается относительная погрешность в режиме измерения массового расхода.
Результат операции поверки считается положительным, если относительные погрешности EqiB, ЕЧ2В (Ечзв, Eq4B) каналов измерения объемного (массового) расхода УР1, УР2 (УРЗ, УР4), не превышают значения ±0,5 %.
10.1.2.2 Определение относительной погрешности электронного блока (измерительные дискретные каналы ВСЗ, ВС4, ВС5, ВС6) при преобразовании входных сигналов и индикации объемного (массового) расхода теплоносителя (воды).
Определение погрешности проводят для расчетного значения объемного расхода: 0,1 qs, где qs - максимальный измеряемый расход преобразователя, м3/ч. Фактическая цена импульса для каналов ВСЗ, ВС4, ВС5, ВС6 устанавливается равной 0,27 м3/имп.
Определение относительной погрешности измерительного канала ВСЗ объемного расхода производится в следующей последовательности:
-
- подключите к измерительным входам ВСЗ, ВС4, ВС5, ВС6 генератор импульсов согласно рисунку 1 или 2. Установите частоту следования импульсов генератора 10 Гц, соответствующую 0,1 qs;
-
- войдите в окно меню "ИЗМЕРЕНИЕ. ВСЗ, ВС4, ВС5, ВС6";
-
- нажмите кнопку "J", вычислитель должен перейти в режим отображения величины расхода;
-
- зафиксируйте величину расхода q3 по показаниям ЖКИ;
-
- рассчитайте относительную погрешность измерительного канала ВСЗ электронного блока при измерении объемного расхода по формуле:
ЕВ _ Чз~Чрася . 100о/о (g)
Чрасч
где: qPacH - значение величины расхода, приведенное в таблице 10.1.2.
Таблица 10.1.2
Точка измерения |
Значение расхода qpaC4, м3/ч |
Частота, Гц |
0,1 qs |
9720 |
10 |
Рассчитайте относительные погрешности Eq4B, ЕЧ5В, ЕЧ6В измерительных каналов ВС4, ВС5, ВС6 электронного блока при измерении объемного расхода, аналогично расчету по каналу ВСЗ.
Результат операции поверки считается положительным, если относительные погрешности Ечзв, Eq4B, EqsB, Eq6B не превышают значения ±0,5 %.
-
10.1.3 Определение относительной погрешности теплосчетчиков при измерении расхода теплоносителя (измерительные каналы ВСЗ, ВС4, ВС5, ВС6)
Относительную погрешность теплосчетчиков при измерении расхода теплоносителя (измерительный канал ВСЗ) определить по формуле:

(9)
где ЕЧП - пределы относительной погрешности преобразователя расхода, входящего в состав теплосчетчиков, приведенные в эксплуатационной документации на счетчик (расходо-домер) воды, %.
Определить относительную погрешность теплосчетчиков при измерении объемного расхода по каналам ВС4, ВС5 и ВС6 аналогично расчету по каналу ВСЗ.
Результат поверки считается положительным, если относительные погрешности Ечз, Eq4, Eq5, Eq6 находятся в пределах ±2 %.
-
10.1.4 Определение относительной погрешности электронного блока (измерительные каналы УР1, УР2 (УРЗ, УР4), ВСЗ, ВС4, ВС5, ВС6) при преобразовании входных сигналов и индикации объема теплоносителя (воды)
-
10.1.4.1 Относительную погрешность электронного блока (ультразвуковые измерительные каналы УР1, УР2 (УРЗ, УР4) при преобразовании входных сигналов и индикации объема теплоносителя (воды) определяют следующим образом:
-
-
- проведите автокоррекцию для каналов УР1, УР2 (УРЗ, УР4) согласно п. 10.1.2.1.2;
-
- установите объемный расход 0,1 -qs для канала УР1 согласно п. 10.1.2.1.3;
-
- установите окно меню "ИЗМЕРЕНИЕ. Накоп.Объем,м3". Перейдите в режим отображения накопленного объема VI, V2 по каналам УР1, УР2;
-
- в момент смены значения младшего разряда ЖКИ на VI, включите секундомер и зафиксируйте начальное значение объема VHa4;
-
- через время не менее 400 секунд остановите секундомер в момент смены младшего разряда ЖКИ, зафиксируйте конечное значение объема VKOh и время измерения Тс;
-
- относительную погрешность измерительного канала УР1 в режиме измерения объема (массы) рассчитывают по формуле:
Укон Унач Урасч
Урасч
100%
где:
Чрасч'Тс
3600
(10)
(11)
Чрасч - значение расхода по формуле 6, м3/ч;
Тс - время измерения по секундомеру, с;
- переключаясь на измерительные каналы УР2 (УРЗ, УР4), произведите измерение относительной погрешности EV2 (ЕУз, EV4) электронного блока в режиме измерения объема по каналам УР2 (УРЗ, УР4), аналогично измерению по каналу УР1.
Результат операции поверки считается положительным, если относительные погрешности Evi, Ev2 (Ev3, Ev4) находятся в пределах ± 0,6 %.
Примечание - Изменение температуры поверочной жидкости за время измерения погрешности объема не должно превышать ± 1,0 °C.
-
10.1.4.2 Относительную погрешность электронного блока (измерительные каналы ВСЗ, ВС4, ВС5, ВС6) при преобразовании входных сигналов и индикации объема теплоносителя (воды) определяют следующим образом:
-
- подключите к измерительным входам ВСЗ, ВС4, ВС5, ВС6 генератор импульсов согласно рисунка 1 или 2. Установите частоту следования импульсов генератора 10 Гц, соответствующую 0,1 qs;
-
- установите окно меню "ИЗМЕРЕНИЕ. Накоп.Объем". Перейдите в режим отображения накопленного объема V3, V4 по каналам ВСЗ, ВС4;
-
- в момент смены значения младшего разряда ЖКИ включите секундомер и зафиксируйте начальное значение объема VHa4;
-
- через время не менее 400 секунд остановите секундомер в момент смены младшего разряда ЖКИ, зафиксируйте конечное значение объема VKOh и время измерения Тс;
-
- относительная погрешность измерительного канала ВСЗ в режиме измерения объема рассчитайте по формуле:
*расч
где:
где: Тс - время измерения по секундомеру, с.
Определение относительных погрешностей EV4, Evs, EV6 электронного блока в режиме измерения объема по каналам ВС4, ВС5, ВС6, производится аналогично измерению по каналу ВСЗ.
Результаты операции поверки считаются положительными, если относительные погрешности Ev3, Ev4, Ev5, Ev6 не превышают ± 0,6 %.
-
10.1.5 Определение абсолютной погрешности теплосчетчика в режиме измерения температуры и разности температур
10.1.5.1 Абсолютная погрешность электронного блока в режиме измерения температуры определяется следующим образом:
-
- подключите магазины сопротивления (МС) к измерительным каналам температуры ПТС1 и ПТС2 согласно схеме, изображенной на рисунке 8.1 или ПТС1, ПТС2, ПТСЗ, ПТС4 согласно схеме, изображенной на рисунке 8.2, или 8.3, или 8.4;
-
- пользуясь таблицей 10.1.3, установите с помощью курбелей панели управления магазинов значение сопротивления, соответствующее значению поверочной температуры;
а б л и ц а 10.1.3
Расчетное значение температуры, °C |
Мера сопротивления, Ом |
25 |
109,89 |
75 |
129,44 |
150 |
158,23 |
-
- войдите в окно меню "ИЗМЕРЕНИЕ. Температура";
-
- нажмите кнопку "J". Вычислитель должен перейти в режим отображения температуры по каналам ПТС1 и ПТС2;
-
- после стабилизации показаний зафиксируйте величину температуры по ЖКИ;
-
- рассчитайте абсолютную погрешность измерительных каналов температуры вычислителя ПТС1 и ПТС2 по формулам:
для канала ПТС1
Dei = (®мс - 0ф1) 04)
для канала ПТС2
(15)
где:
0мс - значение температуры, заданной мерой сопротивления, °C;
0ф1 и 0ф2 - значение температуры, измеренное вычислителем по каналам ПТС1 и
ПТС2, соответственно, °C.
Рассчитайте абсолютную погрешность D©3B, D©4B измерительных каналов температуры ПТСЗ и ПТС4 аналогично расчету по каналам ПТС1 и ПТС2.
Результаты поверки считаются положительными, если абсолютные погрешности D@iB, D©2B, D©3B, D©4B измерительных каналов температуры ПТС1, ПТС2, ПТСЗ, ПТС4 находятся в пределах ±0,1 °C, и при измерении разности температуры по каналам ПТС1 и ПТС2, а также ПТСЗ и ПТС4 не превышает ±0,03 °C.
-
10.1.5.2 Определение абсолютной погрешности теплосчетчиков при измерении температуры теплоносителя (воды).
Абсолютная погрешность теплосчетчиков (измерительный канал температуры ПТС1) определяется по формуле:


(16)
где:О©1П - абсолютная погрешность преобразователя температуры, определяют по результатам последней поверки преобразователя температуры, %.
Абсолютные погрешности D©2, D©3, D©4 теплосчетчиков при измерении температуры по измерительным каналам ПТС2, ПТСЗ и ПТС4 рассчитываются аналогично расчету по каналу ПТС1.
Результаты поверки считаются положительными, если значения D©i, D©2, D©3, D©4 не более ±(0,6+0,004-0), где 0 - измеренная температура, °C.
-
10.1.6 Определение относительной погрешности теплосчетчиков при измерении разности температур теплоносителя.
Относительную погрешность теплосчетчиков при измерении разности температур между измерительными каналами ПТС1 и ПТС2 вычисляют по формуле:


(17)
где:
Ед©п - относительная погрешность преобразователя разности температур, опреде
ляют по результатам последней поверки преобразователей, %;
Ед©в - относительная погрешность измерения разности температур электронного
блока, %.
Значение Ед@в определяется в % по формуле:

(18)
где:
А0 - расчетное значение разности температур, °C;
0Ф1 и 0Ф2 - значения температур, измеренные электронным блоком по каналам ПТС1 и ПТС2 соответственно по методике, описанной в п. 10.1.5.1 Расчетные значения температур устанавливать, пользуясь таблицей 10.1.5.
Относительную погрешность теплосчетчиков при измерении разности температур по измерительным каналам ПТСЗ и ПТС4 Ед©2 вычисляют аналогично расчету погрешности по каналам ПТС1 и ПТС2.
Результаты операции поверки считаются положительными, если относительная погрешность при измерении разности температур, %, не более ±(0,5 + ЗА0тш/Д0), где Д0 -измеренная разность температур.
-
10.1.7 Проверку сохранения введенных параметров и измеренной информации проводят путем отключения теплосчетчиков от сети на 10 минут.
После включения войдите в окно меню "ПРОГРАММИРОВАНИЕ. УР1, УР2, УРЗ, УР4" и, манипулируя кнопками, просмотрите правильность сохраненных параметров.
Войдите в окно меню "ИЗМЕРЕНИЕ. Накоп.Объем,м3" и, манипулируя кнопками, просмотрите правильность сохраненных значений объема V по каналам УР1, УР2, УРЗ, УР4.
Теплосчетчики считают выдержавшим испытания, если сохраняются все запрограммированные коэффициенты и накопленная информация.
-
10.1.8 Определение относительной погрешности электронного блока (при преобразовании входных сигналов и индикации тепловой мощности).
В зависимости от модели теплосчетчика собирают схему поверки в соответствии с п. 10.1.2, 10.1.4 и 10.1.5 и подают на входы ЭБ значения согласно таблицам 10.1.4 и 10.1.5.
Относительную погрешность электронного блока при преобразовании входных сигналов и индикации тепловой мощности для теплового ввода ТВ1, определяют для каждого из трех расчетных значений расхода теплоносителя и температур, указанных в таблице 10.1.4 следующим образом:
Таблица! 0.1.4
Расход в трубопроводах, м3/ч |
Температура теплоносителя, °C |
Разность темпе-ратур, Д0, °C | |||
в подающем |
в обратном |
в подающем |
в обратном |
в подпиточном | |
qsi |
qS2 |
95 |
92 |
5 |
3 |
0,1 qsi |
0,1 qS2 |
105 |
95 |
5 |
10 |
qii |
_ |
150 |
130 |
5 |
20 |
Т аблица 10.1.5
Температура, °C |
5 |
10 |
50 |
92 |
95 |
105 |
130 |
150 |
Мера сопротивления, Ом |
101,98 |
103,96 |
119,7 |
136,02 |
137,18 |
141,03 |
150,61 |
158,23 |
-
- установите окно меню "ПРОГРАММИРОВАНИЕ. Условия";
-
- нажмите кнопку "J";
-
- нажмите четыре раза кнопку
-
- манипулируя кнопками " установите число 18. Число 18 означает
номер схемы узла учета теплопотребления согласно руководству по эксплуатации ТЕСС 00.030.04 РЭ". Формула для расчета количества тепловой энергии выбранного узла учета для закрытой системы теплоснабжения принята согласно МИ 2573-2000 и имеет вид:
Qi = OMiOh - h2) (19)
Q2 = /т0 [Мз(Ьз “ ^4) (20)
где:
Qi, Q2 - количество тепловой энергии, потребленной первым и вторым тепловыми вводами ТВ1, ТВ2, соответственно, ГДж;
Mi, Мз - масса теплоносителя, прошедшего по подающим трубопроводам первого и второго теплового ввода, соответственно, т;
hi, Ьг, Ьз, Ид - удельная энтальпия теплоносителя, кДж/кг;
тО- момент времени, соответствующий началу времени измерения тепловой энергии;
т1 — момент времени, соответствующий окончанию времени измерения тепловой энергии;
-
- установите окно меню "ПРОГРАММИРОВАНИЕ. Термопреобраз.";
-
- установите температуру холодной воды 0Х = + 5 °C
-
- установите окно меню "ПРОГРАММИРОВАНИЕ. Условия'ТХарактер.ПТС;
-
- выберите 1 ООП;
-
- установите окно меню "ПРОГРАММИРОВАНИЕ. Давление";
-
- установите величину давление в подающем и обратном трубопроводах 0,65 МПа;
-
- установите окно меню "СЛУЖЕБН. ДАННЫЕ. Тепловая мощность";
-
- считайте показания ЖКИ, и зафиксируйте результат измерения тепловой мощности W„, ГДж/ч;
-
- рассчитайте значение тепловой мощности Wp в ГДж/ч в соответствии с выражением:
Wp = qi • Pl ■ (hl - h2) (21)
где:
qi - величина расхода по подающему трубопроводу, м3/ч,
pi, - плотность теплоносителя по подающему трубопроводу, т/м3.
Значения р и h выбирают из таблицы 10.1.6. Данные значения плотности и энтальпии соответствуют табличным данным ГСССД 98-86 при рабочем давлении среды 0,65 МПа.
- определите относительную погрешность вычислителя в режиме измерения тепловой мощности для теплового ввода ТВ1 по формуле:
EB,t = w^Vp 100о/о (22)
Измеренное значение тепловой мощности определяется как среднее арифметическое результатов десяти наблюдений:
™и = Г2“1™ик (23)
а б л и ц а 10.1.6
Температура теплоносителя 0, °C |
Давление теплоносителя, Р, МПа |
Плотность теплоносителя, р, т/м3 |
Энтальпия, h ГДж/т |
5 |
0,65 |
1,00021 |
0,02167 |
10 |
0,65 |
0,99993 |
0,04262 |
20 |
0,65 |
0,99643 |
0,08444 |
92 |
0,65 |
0,96555 |
0,37738 |
95 |
0,65 |
0,96213 |
0,39841 |
105 |
0,65 |
0,95568 |
0,44057 |
130 |
0,65 |
0,93588 |
0,54666 |
150 |
0,65 |
0,91716 |
0,63242 |
Относительную погрешность Ew2B электронного блока при преобразовании входных сигналов и индикации тепловой мощности для теплового ввода ТВ 2 определяют аналогично тепловому вводу ТВ 1.
Максимальное и минимальное значение объемного расхода по измерительным каналам УРЗ и УР4 и температура по измерительным каналам ПТСЗ, ПТС4 берутся из таблицы 10.1.4.
Результаты поверки считаются положительным, если относительные погрешности EwiB и Ew2B находятся в пределах ±(0,5 + Д0ш/л / Д0), где Д07Л/И - минимальное значение разности температур, °C;
Д0 - разность температур измеряемой среды в подающем и обратном трубопроводах, °C;
-
10.1.9 Определение относительной погрешности электронного блока (при преобразовании входных сигналов и индикации количества тепловой энергии):
-
- установите окно меню "ИЗМЕРЕНИЕ. Тепловая энергия";
-
- нажмите кнопку "J". Электронный блок должен перейти в режим отображения количества тепловой энергии 01 и 02 по тепловым вводам ТВ1 и ТВ2, соответственно;
-
- запустите секундомер в момент смены значения младшего разряда ЖКИ, зафиксировав величину количества тепловой энергии 0нач по тепловому вводу ТВ 1;
-
- остановите секундомер в момент смены значения младшего разряда ЖКИ, зафиксировав величину количества тепловой мощности 0кон и время измерения Тс.
Минимальное значение измеренного количества тепловой энергии должно составлять не менее 500 единиц младших разрядов ЖКИ теплосчетчиков.
Относительная погрешность электронного блока при преобразовании входных сигналов и вычислении количества тепловой энергии вычислителя по тепловому вводу ТВ1 определяется по формуле:
Ев = Qkok-Q„»-Qp . 100% (24)
QP
где: Qp = Wp-Tc- 103 (25)
QH34 - начальное значение тепловой энергии по ЖКИ теплосчетчиков, Гдж;
Qkoh - конечное значение тепловой энергии по ЖКИ теплосчетчиков, Гдж;
Wp - расчетное значение тепловой мощности, ГДж/ч;
Тс - время измерения количества тепловой энергии по секундомеру, с.
Рассчитайте относительную погрешность Eq2B измерения количества тепловой энергии по тепловому вводу ТВ2 аналогично расчету по ТВ1.
Результаты поверки считаются положительными, если относительные погрешности Eeiв и Ее2В при соответствующих значениях разности температур не превышают значения:
±(0,5 + Д0ОТ,„ / Д0)
где Д0Ш/и - минимальное значение разности температур, °C;
Д0 - разность температур измеряемой среды в подающем и обратном трубопроводах, °C;
-
10.1.10 Определение относительной погрешности теплосчетчиков при измерении количества тепловой энергии
Относительная погрешность теплосчетчиков при измерении количества тепловой энергии на тепловом вводе ТВ1 Qein вычисляют по формуле:
Eq = ±(Evi + Ед01 + Egi) (26)
где
Evi - относительная погрешность измерительного канала объемного расхода в подающем трубопроводе, определяют по формуле (10), %;
Eqib - относительная погрешность вычислителя по вычислению тепловой энергии, определяют по формуле (24), %;
Ед©1 - относительная погрешность измерения разности температур между измерительными каналами ПТС1 и ПТС2, определяют по формуле (17), %.
Относительная погрешность теплосчетчиков Eq2h при измерении количества тепловой энергии на тепловом вводе ТВ2 вычисляют аналогично расчету по тепловому вводу ТВ 1.
Результаты поверки считаются положительными, если относительные погрешности беш, беги не превышают пределов, приведенных в таблице 10.1.7
а б л и ц а 10.1.7
Разность температур ДО, °C |
Объемный расход, м3/ч |
Пределы допускаемой погрешности, % | |
для класса 1 |
для класса 2 | ||
145 |
O,lqsi |
±2,2 |
±3,3 |
15 |
0,1 qsi |
±2,9 |
±4,0 |
3 |
0,lqsi |
±6,1 |
±7,2 |
-
10.1.11 Определение приведенной погрешности преобразователей избыточного давления
Проверяются сведения в Федеральном информационном фонде по обеспечению единства измерений о результатах поверки преобразователей избыточного давления, входящих в состав теплосчетчика, а также, при наличии, свидетельства о поверке средств измерений, и (или) паспорта (формуляры) средств измерений с записью о проведенной поверке, заверяемой подписью поверителя и знаком поверки, с указанием даты поверки.
Приведенная погрешность преобразователей избыточного давления берется из паспорта (формуляра) преобразователя избыточного давления.
-
10.1.12 Определение приведенной погрешности электронного блока при преобразовании входных сигналов и индикации избыточного давления.
Определение приведенной погрешности электронного блока при преобразовании входных сигналов и индикации избыточного давления по измерительному входу ПД1.
Определение проводят для каждого из трех расчетных значений давления: 0,25 Рв, 0,5 Рв, Рв, где Рв - верхний предел номинального диапазона измерений преобразователя давления, МПа.
Приведенную погрешность по измерительному входу ПД1 определяют следующим образом:
-
- подключите к измерительным входам электронного блока источник постоянного тока, согласно рисунку 8.1 или 8.2. Установите ток источника тока в соответствии с данными таблицы 10.1.8;
-
- войдите в окно меню режимов "ИЗМЕРЕНИЕ. Давление";
-
- нажмите кнопку "J", электронный блок должен перейти в режим отображения величины давления по каналу ПД1;
-
- после стабилизации показаний зафиксировать величину давления по показаниям ЖКИ.
-
- рассчитайте приведенную погрешность измерительного канала давления ПД1 вычислителя по формуле:
ув _ РцРрзеч . 1000/о (27)
1,6
где Ррасч - значение давления, приведенное в таблице 10.1.8
Таблица 10.1.8
Точки измерения |
Значение давления РраСч, МПа |
Ток, мА |
Ртах |
1,6 |
20 |
0,25 ’ Р max |
0,4 |
8 |
Рассчитайте приведенные погрешности ург, урз, УР4 электронного блока для каналов давления ПД2, ПДЗ, ПД4, аналогично расчету по каналу ПД1.
Результат поверки считается положительным, если приведенные погрешности вычислителя ypi, ург, урз, урд находятся в пределах ±0,5 %.
Примечание - При наличии нескольких источников постоянного тока возможно производить измерение одновременно по нескольким каналам.
-
10.1.13 Определение приведенной погрешности теплосчетчиков при измерении избыточного давления
Приведенная погрешность ур теплосчетчиков при измерении избыточного давления по каналу ПД1 определяется по формуле:


(28)
где:
урп - приведенная погрешность преобразователя давления, %; ypiв - приведенная погрешность электронного блока, %.
Приведенные погрешности теплосчетчиков при измерении давления по каналам ПД2, ПДЗ, ПД4 ур2, урз, урд, рассчитываются аналогично расчету по каналу ПД1.
Результат поверки считается положительным, если вычисленные значения ypi, ург, урз, урд находятся в пределах ±2,0 %.
-
10.1.14 Определение относительной погрешности теплосчетчиков при измерении интервалов времени
Определение относительной погрешности теплосчетчиков при измерении интервалов времени проводят путем сравнения выводимых на ЖКИ ЭБ теплосчетчика показаний времени теплосчетчика и секундомера. Относительную погрешность определяют для интервала времени не менее 3600 с. На ЖКИ ЭБ теплосчетчика выводят показания часов. На секундомере запускают режим измерения интервала времени. По окончании измерения фиксируют показания секундомера и теплосчетчика. Измерения проводят не менее трех раз.
Относительную погрешность измерения интервалов времени вычисляют по формуле:

где Твру - интервал времени, измеренный теплосчетчиком, с;
7эу - интервал времени, измеренный секундомером, с;
Результаты определения метрологических характеристик считают положительными, если относительная погрешность при измерении интервалов времени не превышает пределов ±0,01 %.
10.2 Определение и измерение линейно-угловых параметров УПРК линейно-угловым параметрам относятся: внутренний диаметр, расстояние между ПЭП, угол наклона, смещение оси акустического канала (АК).
-
10.2.1 Данные параметры измеряются для УПР на этапе I первичной поверки на предприятии-изготовителе, поэтому методика их измерения определяется имеющимися на предприятии СИ, технологическими процессами и т.д.
-
10.2.1.1 Измерение внутреннего диаметра корпуса УПР
-
Внутренний диаметр корпуса УПР измеряют штангенциркулем по двум взаимоперпендикулярным направлениям I-I и П-П (Di и Dn) (рисунок 10.2.1). Погрешность измерения не более ±0,1 мм
По каждому из направлений корпуса выполняют не менее 11 измерений.
Вычисляют среднеарифметическое значение внутреннего диаметра:
(29)
где:
п - количество измерений диаметров в плоскости II, m - количество измерений диаметров в плоскости I
Вычисленное значение DN заносится в протокол.
До монтажа УПР в реальный трубопровод по такой же методике измеряют внутренний диаметр трубопровода (с учетом отложений) и согласно формуле (29) вычисляют его среднее значение DN.
После проведения измерений проверяют выполнение условия:
|Dn - Dn,| < 0,05Dn
(30)
Если условие (30) не выполняется, то монтаж УПР в данном месте допускается только с установкой прямолинейных участков, отвечающих условию 15-DN до и 5DN после УПР.
-
10.2.1.2 Измерение расстояния между ПЭП в УПР
Измерение расстояния между ПЭП в УПР возможно двумя способами:
а) механическим - с помощью нутромера или штанги и глубиномера. Измерения повторяют не менее 11 раз и вычисляют среднеарифметическое значение L. Погрешность измерения не более 0,05 мм. При этом должно выполняться условие: |L, -L| <0,02 мм. Результат вычисления L заносят в протокол.
б) электронным - с помощью электронного блока, поверенного по п.10.1.3 настоящей инструкции на кювете УТ-12. Для этого заполните дистиллированной водой УПР или участок трубопровода с установленными ПЭП так, чтобы излучающие поверхности ПЭП полностью находились под водой. С помощью термометра с погрешностью не более ±0,1 °C определите температуру воды на уровне установки ПЭП.


Рисунок 10.2.1 - Эскиз к процедуре измерения внутреннего диаметра

После этого измерьте по п. 10.1.3 время прохождения ультразвуковых импульсов и вычислите расстояние L (м) между ПЭП:
(31)
L = Со • tcp • 10‘6
где Со - скорость ультразвука в воде в м/с при измеренной температуре по таблице приложения Б.
Определение L проведите не менее 11 раз и рассчитайте среднеарифметическое зна-
чение Lcp: |
п J,Li lcp=14- (32) |
где п - число определений L.
-
10.2.1.3 Измерение угла наклона оси акустического канала к оси трубопровода
Угол наклона оси акустического канала к оси трубопровода измеряют с помощью штанги и угломера.
Угол измеряют с погрешностью не более ±2’ не менее 11 раз, предварительно установив штангу в отверстия держателя ПЭП (рисунок 10.2.3). При измерении руководствоваться документом «Приспособление для определения угла наклона оси акустического канала к оси трубы ПР 005. Паспорт ТЕСС.440230.003 ПС».
Вычисляют среднеарифметическое значение а.
При этом должно выполняться условие:
|аы - а| < (±30') (33)
где ам = 45°.
Результат вычисления а заносится в протокол.
-
10.2.1.4 Измерение смещения оси акустического канала относительно центральной оси трубопровода
Смещение оси акустического канала относительно центральной оси трубопровода х (рисунок 10.2.2) определяют с помощью двух измерительных штанг равной длины и штангенциркуля. Одну штангу пропускают через отверстия держателей ПЭП, обеспечивая скользящую посадку, а другую размещают на наружной поверхности трубы так, чтобы точка касания являлась центром штанги. Затем, закрепив концы штанг стяжками (входят в комплект поставки приспособления ПР 001), измеряют расстояние А и А1 штангенциркулем. Перемещая внешнюю штангу на другую сторону трубопровода и используя вышеуказанную методику, измеряют размеры В и В1. Смещение х> с погрешностью не более ±1 % DN, определяют по формуле:
(А-АХ)| „ |(B-BX)| u
—;— -Hi- —-— - н 2
где Hi, Н2 - толщина стенки трубопровода в точках соприкосновения со штангой, м.
Толщину стенки Н корпуса УПР измеряют ультразвуковым толщиномером в 2-х точках, определяемых пересечением оси П-П с поверхностью корпуса в плоскости Ш-Ш (рисунок 10.2.3).
В каждой точке выполняют не менее 11 измерений, вычисляют среднеарифметическое значение х-
Проверяют выполнение условия:
0,49Dn/ < х' < 0,5Юп, (35)
где х' = х 4—(36)
Вычисляют среднеарифметическое значение толщины Н.
Результат вычисления х заносят в протокол.
-
10.2.1.5 Ввод данных измерений
Значения DN', Lk, С и L вводят в память.
Параметры L, DN', а, х, заносят в протокол приемки теплосчетчиков.

Н - толщина трубопробоба
Рисунок 10.2.2 - Эскиз к процедуре измерения смещения акустической оси трубопроводе
10.2.2 Измерение линейно-угловых параметров трубопровода
Параметры трубопровода измеряются на этапе II первичной поверки до монтажа ПЭП на реальный трубопровод.
В процессе периодической поверки контролируется состояние внутренней поверхности трубопровода и его внутренний диаметр.
Выбор места установки, подготовка и проведение монтажа ПЭП осуществляется согласно указаниям соответствующих разделов инструкции по монтажу ТЕСС 0.030.04 ИМ.
-
10.2.2.1 Измерение наружного диаметра трубопровода и толщины стенки
-
10.2.2.1.1 Измерение наружного диаметра трубопровода производится в следующей последовательности:
-
- рулеткой в сечении I-I (рисунок 10.2.3) не менее 11 раз измеряется длина окружности трубопровода и вычисляется средняя длина окружности Ьн, м.
-
- вычисляется значение диаметра Dh в сечении I-I по формуле:
1н
3,1416
(37)
- в зоне измерения длины окружности поверхность трубопровода должна быть очищена.
-
10.2.2.1.2 Измерение суммарной толщины стенки трубопровода и отложений Нп (рисунок 10.2.5). При помощи измерительной штанги с фиксатором и штангенциркуля измерить расстояние Н11, повторить измерение не менее И раз и вычислить среднее значение. Определить суммарную толщину стенки трубопровода и отложений Нп по формуле:
Нп = Ннач • Н11 (38)
где:
Ннач - значение "относительной" суммарной толщины стенки трубопровода и отложений, измеренной щупом, входящем в комплект поставок (по заказу) в начальный период эксплуатации теплосчетчиков;
Н11 - текущее значение "относительной" суммарной толщины стенки трубопровода и отложений, измеренных щупом.
Если трубопровод НОВЫЙ, ТО Ннач = Н и, тогда Нп = Н.
Если трубопровод старый, то
Hn = DH - Н11 + Нзаг (39)
где:
Dh - наружный диаметр трубопровода из п. 10.2.2.1;
Нзаг - высота заглушки.
Измерение толщины стенки трубопровода и отложений на ней допускается после вскрытия трубопровода.
При монтажных работах допускается производить измерения Нп на вырезанных об-

10.2.2.2 Среднее значение внутреннего диаметра трубопровода в сечении I - I по результатам измерений п. 10.2.2.1 вычисляют согласно выражению:
DN = DH -2НП
(40)
где Нп- толщина стенки с учетом отложений.
Результат вычисления DN заносят в протокол поверки.
-
10.2.2.3 Определение смещения оси акустического канала
Смещение оси акустического канала относительно центральной оси трубопровода определяют по методике, приведенной в п. 10.2.1.4.
-
10.2.2.4 Определение длины активной части акустического канала
Значение длины оси акустического канала (активной части) вычисляют по формуле:
La = — • 7х' • [(Rj + R2) • х'] а sina v 1 4
(41)
где:
величина радиуса в горизонтальной плоскости
Rj — 0,5 • DH1 — Hn
величина радиуса в вертикальной плоскости
R2 — 0,5 • DH2 — Hn
-
(42)
-
(43)
-
(44)
Dhi - значения наружного диаметра трубопровода в сечении I-I в горизонтальной плоскости трубопровода (п. 10.2.2.1);
Dh2 - значения наружного диаметра трубопровода в сечении I-I в вертикальной плоскости трубопровода(п. 10.2.2.1);
Нп - толщина стенки с отложениями (рисунок 10.2.3);
X - значение из п. 10.2.2.3;
Dn - рассчитывается по методике п. 10.2.2.2.
Результат вычисления La заносят в протокол поверки.
держатель ПЭЛ


5
Рисунок 10.2.4 - Эскиз к процедуре измерения длины активной части акустического канала
-
10.2.2.5 Измерение угла наклона оси акустического канала
Измерение угла проводят с погрешностью не более ± 2' согласно рисунку 10.2.5 не менее 11 раз, с каждой стороны, вычисляют среднее значение ап, где п = 1,2,3,4 и а = (ai + оц)/2.
Присг

Рисунок 10.2.5 - Эскиз к процедуре измерения угла наклона акустической оси При этом должны выполняться условия:
Штанга измерительная
(“hi - «п) S (±30')
(45)
di + а2 = 180° ± 1°
(46)
а3 + а4 = 180° ± 1°
(47)
где од, i =45 °.
Результаты вычисления заносят в протокол поверки.
10.2.2.6 Измерение расстояния между ПЭП в трубопроводе возможно электронным и механическим способами
10.2.2.6.1 Измерение расстояния электронным способом выполняется с помощью электронного блока, поверенного по п. 10.1.1 настоящей инструкции на кювете УТ-12. Для этого заполните водой участок трубопровода с установленными ПЭП так, чтобы излучающие поверхности ПЭП полностью находились под водой. С помощью термометра с погрешностью не более 0,1 °C определите температуру воды на уровне установки ПЭП.
После этого измерьте по п. 10.1.1 время прохождения ультразвуковых импульсов по и против потока, кт. Вычислите расстояние L (м) между ПЭП:
L = Со • tcp • 10"6
(48)
где Со - скорость ультразвука в воде в м/с при измеренной температуре по таблице приложения Б.
Определение L проведите не менее 11 раз и рассчитайте среднеарифметическое значение Lcp:
п

(49)
где п - число определений L.
10.2.2.6.2 Измерение расстояния механическим способом между ПЭП L проводить с
погрешностью не более 1 % от DN в соответствии с рисунком 10.2.6 следующим образом:
-
- заглушить один из держателей заглушкой;
-
- установить штангу измерительную в другой держатель до упора в заглушку;
-
- установить фиксатор на штангу до упора в посадочную поверхность ПЭП;
-
- вынуть штангу с корпусом из держателя и измерить не менее 11 раз расстояние Ln с помощью штангенглубиномера или другого инструмента;
-
- вычислить среднее значение Li. При этом должно выполняться условие |Lh-Li|<0,2 мм.
-
- вынуть заглушку;
-
- установить в один из держателей ПЭП с прокладкой и закрепить его гайкой из комплекта поставки с усилием, достаточным для обеспечения герметичности при эксплуатации трубопровода;
-
- измерить по приведенной выше методике расстояние L2i от излучающей поверхности установленного ПЭП до посадочной поверхности другого ПЭП;
-
- вычислить среднее значение Ьг. При этом должно выполняться условие |L2i-L2|<0,2 мм;
-
- вычислить размер Ьз по формуле:
L3 = Lj — L2 (50)
-
- удалить установленный ПЭП с прокладкой из держателя;
-
- установить в другой держатель второй ПЭП с прокладкой и закрепить его гайкой из комплекта поставки с усилием, достаточным для обеспечения герметичности при эксплуатации трубопровода;
-
- по приведенной выше методике измерить расстояние Ьг’для второго датчика;
-
- вычислить размер L з по формуле:
L/3 = L1-L/2 (51)
-
- вычислить расстояние между торцами ПЭП1 и ПЭП2 по формуле:
L = L, - L3 - L'3 (52)
Вычислить среднее значение L, полученное значение L занести в протокол.
ВНИМАНИЕ!
Перед заменой или повторной установке ПЭП, необходимо нанести риски друг напротив друга на гайке и корпусе держателя ПЭП. После замены ПЭП затянуть гайку,

Рисунок 10.2.6 - Эскиз к процедуре измерения расстояния между ПЭП, смонтированными на трубопроводе
-
10.2.3 Определение коэффициента коррекции
ВНИМАНИЕ!
Программа автоматического расчета Ккорразмещена на сайте предприятия-изготовителя. Вручную коэффициент коррекции Ккор определяется по формуле:
п

К“Р “ (кг) '
=е
(53) | |
■ sina |
(54) |
L 4-х2 | |
fi-TT |
(55) |
где:
Кг - гидродинамический коэффициент определяется в п. 10.2.4;
а - фактически измеренный угол наклона из п. 10.2.2.5;
La - длина активной части из п. 10.2.2.4.
При периодических поверках эквивалентная шероховатость прямых участков трубопровода, прилегающих к УПР и ПЭП, не должна превышать значения 0,15 мм. В противном случае необходимо заново измерить внутренний диаметр трубопровода по п. 10.2.2.4 с учетом накопившихся отложений, пересчитать Ккор и ввести его в теплосчетчик. Для этого приглашается поверитель. В его присутствии программируется новый Ккор для реальных условий и теплосчетчиков водится в эксплуатацию без полной его поверки. Величина отложений определяется с помощью щупа, вставляемого в отверстие трубопровода или УПР. В рабочем режиме отверстие заглушается заглушкой согласно рисунку 10.2.3.
Если визуальный осмотр внутренней поверхности трубопровода невозможен, то из таблицы 10.2.1 выбирается наибольшее значение Кз, зависящее от материала трубопровода и
технологии его изготовления.
Таблица 10.2.1 - Эквивалентная шероховатость трубопроводов1
Материал |
Состояние внутренней поверхности трубопровода |
Кз, мм |
Латунь, медь алюминий, пластмассы стекло, свинец |
Новая, без осадков |
<0,03 |
Сталь |
Новая бесшовная:
Новая сварная С незначительным налетом ржавчины Ржавая битумированная:
Оцинкованная:
|
<0,03 <0,1 <0,1 <0,1 <0,2 <0,05 <0,2 <0,15 0,18 |
Чугун |
Новая Ржавая С накипью Битумированная, новая |
0,25 <1,2 <1,5 <0,05 |
Асбестоцемент |
Облицованная и необлицованная, новая Необлицованная, в обычном состоянии |
<0,03 0,05 |
1) Таблица взята из ГОСТ 8.586.2-2005.
-
10.2.4 Определение гидродинамического коэффициента
Гидродинамический коэффициент представляет собой отношение скорости жидкости, осредненной по акустическому каналу теплосчетчиков, к средней скорости жидкости в поперечном сечении трубопровода.
Он зависит от распределения местных скоростей потока в створе установки ПЭП теплосчетчиков, от числа Рейнольдса Re и шероховатости трубопровода.
Гидродинамический коэффициент Кг определяют по формуле:
Кг
(Крв + Кгн)
2
(56)
где:
Кгв - гидродинамический коэффициент, соответствующий максимальному значению ЯемАх;
Кгн - гидродинамический коэффициент, соответствующий минимальному значению ReMiN •
Числа Рейнольдса Remax, Remin определяют по формуле:
Re =
1ХСтах
4qs
(n-Dn-vmjn)
(57)
Remin = - D4q' . (58)
[тг Dn vmax)
где: qs, qi - максимальный и минимальный расход рабочего диапазона теплосчетчиков, м1 2/с;
DN - диаметр трубопровода, м (из п. 10.2.2.2);
Vmin, vmax - значения коэффициента кинематической вязкости в условиях эксплуатации
данного теплосчетчиков.
Значение v, соответствующее температуре воды в условиях эксплуатации теплосчетчиков, определяется по данным таблицы 10.2.2.
Значение v других жидкостей определяется согласно ГОСТ 8.025 или измеряется по отобранной пробе вискозиметром.
Таблица 10.2.2 - Зависимость значения коэффициента кинематической вязкости
от температуры2
t,°c |
При t,°C | |||||||||
0 |
1 |
2 |
3 |
4 |
5 |
6 |
7 |
8 |
9 | |
0 |
1,793 |
1,732 |
1,675 |
1,621 |
1,569 |
1,520 |
1,474 |
1,429 |
1,387 |
1,347 |
10 |
1,308 |
1,272 |
1,237 |
1,203 |
1,171 |
1,1401 |
1,1107 |
1,0825 |
1,0554 |
1,0294 |
20 |
1,0045 |
1,9805 |
0,9574 |
0,9353 |
0,9139 |
0,8934 |
0,8736 |
0,8545 |
0,8361 |
0,8184 |
30 |
0,8012 |
0,7847 |
0,7687 |
0,7533 |
0,7383 |
0,7239 |
0,7099 |
0,6964 |
0,6833 |
0,6706 |
40 |
0,6583 |
0,6464 |
0,6348 |
0,6236 |
0,6127 |
0,6022 |
0,5919 |
0,5820 |
0,5723 |
0,5629 |
50 |
0,5537 |
0,5449 |
0,5362 |
0,5278 |
0,5196 |
0,5116 |
0,5039 |
0,4963 |
0,4890 |
0,4818 |
60 |
0,4748 |
0,4680 |
0,4613 |
0,4549 |
0,4485 |
0,4424 |
0,4363 |
0,4305 |
0,4247 |
0,4191 |
70 |
0,4137 |
0,4083 |
0,4031 |
0,3980 |
0,3930 |
0,3881 |
0,3833 |
0,3787 |
0,3741 |
0,3691 |
80 |
0,3653 |
0,3610 |
0,3568 |
0,3527 |
0,3487 |
0,3448 |
0,3410 |
0,3372 |
0,3335 |
0,3299 |
90 |
0,3264 |
0,3229 |
0,3195 |
0,3162 |
0,3129 |
0,3097 |
0,3065 |
0,3035 |
0,3004 |
0,2975 |
100 |
0,2245 |
0,2917 |
0,2889 |
0,2861 |
0,2834 |
0,2808 |
0,2782 |
0,2756 |
0,2731 |
0,2706 |
110 |
0,2682 |
0,2658 |
0,2635 |
0,2612 |
0,2589 |
0,2567 |
0,2545 |
0,2524 |
0,2503 |
0,2482 |
120 |
0,2462 |
0,2442 |
0,2422 |
0,2403 |
0,2384 |
0,2365 |
0,2347 |
0,2328 |
0,2311 |
0,2293 |
130 |
0,2276 |
0,2259 |
0,2242 |
0,2225 |
0,2209 |
0,2193 |
0,2177 |
0,2162 |
0,2147 |
0,2132 |
140 150 |
0,2117 0,1981 |
0,2102 |
0,2088 |
0,2074 |
0,2060 |
0,2046 |
0,2033 |
0,2019 |
0,2006 |
0,1993 |
Гидродинамический коэффициент Кгв определяют по формуле:
Кгв = 1,01 + 0,38 • VX (59)
где X - коэффициент гидравлического трения. Значение коэффициента X вычисляют по формуле:
Х =

К3 \
1000 Dn7
0.25
(60)
где Кз - значение эквивалентной шероховатости трубопровода определяется согласно таблице 11.
Коэффициент Кгн определяют по значению коэффициента X и числу Рейнольдса Remin по графику, изображенному на рисунке 10.2.7.
Результат вычислений Кк0р заносится в паспорт ТЕСС 00.030.04 ПС и программируется в теплосчетчике.

Рисунок 10.2.7 - Зависимость Кгн от X и числа Рейнольдса Remin
-
10.2.5 Измерение параметров трубопровода при врезке ПЭП по нижней и верхней хордам
-
10.2.5.1 Измерение параметров трубопровода при врезке ПЭП по хордам выполняется по методикам, описанным в п. 10.2.2 с учетом расположения ПЭП не в диаметральной, а в хордовых плоскостях. Разметка трубопровода при врезке по нижней и верхней хордам производится согласно рисунок 10.2.8.
-
10.2.5.2 Смещения осей акустических каналов относительно центральной оси трубопровода /и (по нижней хорде) и хи1 (по верхней хорде), определяются с помощью измерительной штанги, уровня, отвеса и штангенциркуля согласно рисунку 10.2.9. Штанга пропускается через отверстия держателей ПЭП, обеспечивая скользящую посадку. Приложив уровень к нижней точке «И» трубопровода и, используя отвес, измеряется расстояние xnc от точки «С» до уровня (линия 3) не менее 11 раз. Производятся замеры смещения хш точки Д, так же не менее 11 раз. Находят среднее значение замеров XN:
_ Xnc + Хыд
Xn- 2
(61)
и вычисляется смещение акустической оси нижней хорды по формуле:

(62)
Аналогично вычисляется смещение xn1 верхней хорды по формуле:
1 _ Xnt + Xne
Xn - 2
где:
Dh - наружный диаметр трубопровода;
Нп - толщина стенки трубопровода с учетом отложений.
Аналогично вычисляется смещение акустической оси верхней хорды по формуле:

Рисунок 10.2.8 - Разметка трубопровода при врезке по нижней и верхней хордам


Рисунок 10.2.9 - Разметка трубопровода при врезке по нижней и верхней хордам

Формула критерия годности имеет вид:
(64)
0,245 * DH < /ц < 0,255 • Dj-j
0,245 • DH < 0,255 ■
где: Dh - наружный диаметр трубопровода.
Формула определения длины активной части имеет вид:
La=21. га
(65)
а sina \ D„
DN вычисляется по формуле (40).
-
10.2.5.3 При выполнении измерений расхода и объема теплоносителя при врезке пьезоэлектрических преобразователей по хорде, выполняются операции, включающие измерения и вычисления значений:
-
- гидродинамического коэффициента (Кг);
-
- коэффициента коррекции (Кк);
-
- программирования теплосчетчиков;
-
- длин прямых участков.
-
10.2.5.3.1 Значение коэффициента гидродинамического вычисляется по выражению:
Кг = 1,004 + + EX • 0,15 (66)
где:
EX = xn-0,25DN;
DN - внутренний диаметр трубопровода;
Remin- число Рейнольдса минимальное, вычисляется по формуле (58).
-
10.2.5.3 2 Значение коэффициента коррекции Кк вычисляется по формуле:
где
-
(67)
-
(68)
ВНИМАНИЕ!
Программа автоматического расчета Кк размещена на сайте предприятия-изготовителя.
-
10.2.5.3.3 Программирование теплосчетчиков проводят согласно п. 7.3.1.1 для СТУ-1 Модель ЗМ.1 и рисунку 7.3 для СТУ-1 Модель М3.2, Модель МЗ.З и Модель М3.4 Руководства по эксплуатации ТЕСС 00.030.04 РЭ.
-
10.2.5.3.4 Установку пьезоэлектрических преобразователей (ПЭП) по верхней хорде производить аналогично установке ПЭП по нижней хорде.
-
10.2.5.3.5 Значение коэффициента коррекции вычисляется по формуле (67).
-
10.2.6 При расположении ПЭП по двум хордам на одном трубопроводе, объемный расход и объем жидкости вычисляются как среднеарифметическое значение, измеренное по двум каналам расходомерной части теплосчетчиков. Программирование теплосчетчиков производится в соответствии со схемами теплопотребления № 27 или № 28, представленными в руководстве по эксплуатации ТЕСС 00.030.04 РЭ, таблица 2.6. Усредненное значение расхода ql и q2 выводится на ЖКИ в строке q5. Усредненное значение расхода q3 и q4 выводится на ЖКИ в строке q6.
При обрыве акустической оси (отказ ПЭП или при чрезмерно больших отложениях на поверхности ПЭП) по одной из хорд, теплосчетчики автоматически переходят на расчет значения расхода по другой действующей хорде, фиксируя отказ в журнале событий и в архиве.
-
10.2.7 При расположении ПЭП по двум взаимно перпендикулярным или параллельным акустическим осям в диаметральной или хордовой плоскостях на одном трубопроводе, объемный расход и объем жидкости вычисляются как среднеарифметическое значение, измеренное по двум каналам расходомерной части теплосчетчиков.
-
10.2.8 Периодическая поверка
-
10.2.8.1 Внешний осмотр, опробование, проверку монтажа теплосчетчиков следует проводить в соответствии с разделом 7.
-
10.2.8.2 Контроль значений градуировочных данных проводят используя указания руководства по эксплуатации ТЕСС 00.03.0.04 РЭ, выводя на индикатор теплосчетчиков значения градуировочных данных и проверяют их соответствие значениям, приведенным в паспорте ТЕСС 00.030.04 ПС теплосчетчиков.
-
10.2.8.3 Измерение параметров трубопровода.
В процессе периодической поверки возникает необходимость контроля изменения толщины отложений и, с учетом его, корректируют внутренний диаметр DN.
-
10.2.8.4 Определение погрешности ЭБ теплосчетчиков в режимах измерения расхода и объема воды в соответствии с п. 10.1.2.
-
10.2.8.5 При необходимости периодической поверки теплосчетчиков беспроливным методом поверяется только ЭБ в комплекте с кюветой УТ-12 без демонтажа ПЭП с существующего трубопровода.
-
10.3.1 Перед проведением поверки необходимо осуществить внешний осмотр в соответствии с разделом 7.
-
10.3.2 Опробование теплосчетчиков осуществляется в следующей последовательности:
-собрать схему поверки теплосчетчиков, изображенную на рисунке 10.3.1, для Модели ЗМ.1, или на рисунке 10.3.2-для Модели ЗМ.2, или на рисунке 10.3.3 - для Моделей ЗМ.З и ЗМ4;
-
- проверить заземление УПР и теплосчетчиков;
-
- подключить теплосчетчики сети однофазного переменного тока;
-
- при отсутствии потока теплоносителя по трубопроводу ЖКИ теплосчетчиков должен индицировать нулевое значение расхода;
-
- при подаче потока на ЖКИ должно отображаться значение расхода, а при индикации объема его значение должно увеличиваться во времени.
ВНИМАНИЕ!
При калибровке теплосчетчиков следует выключить режим аппроксимации. При проведении поверки - включить.
-
10.3.3 Опробование поверочной установки выполняется согласно руководству по эксплуатации:
-
- удалить воздух, открывая вентили и пробки до появления однофазной среды;
-
- пропустить в течение 30 мин поток жидкости через измерительный участок и контролировать показания термометров. Температурный режим считать установившимся, если в течение этого времени разность показаний термометров не превышает ±2 °C;
-убедиться, что значение давления жидкости на выходе УПР составляет не менее 0,1 МПа;
-
- произвести 2-3 пробных измерения, при этом контролировать расход по показаниям ЖКИ теплосчетчиков;
-
- еще раз проверить наличие воздуха, открывая воздушные вентили.
I I
I I
I
С1 | ||||||
ПЭП1 |
ПЭП2 | |||||
XS14/6 XS14/8
XS14/7
XS14/9
___/
УР1
ЧИС1

ХР9/1
ХР9/2

ПЭП 1, 2, 3, 4 - Пьезоэлектрические преобразователи; С1, С2 - кювета УТ 12илиУПР;
XS - разъемы типа DB 9 вилка;
ХР - разъемы типа 15EDGVC-3.81-04P
Рисунок 10.3.1 - Схема поверки теплосчетчика СТУ-1 Модель ЗМ.1 проливным методом
С1 | |||||
ПЭП1 |
ПЭП2 | ||||
XS14/6
С2 | ||||||
ПЭПЗ |
ПЭП4 | |||||
XS14/3
Частотомер электронно- Частотомер электронно-
счетный GFC-8131Н счетный GFC-8131Н
XS14/1
XS14/8
XS14/9
XS14/7

XS14/2 XS14/4
__> | |
Г ХР9/Г | |
ЧИС1 -< |
L ХР9/2 |
1 |
- ХР9/3 |
ЧИС2 |
L Х91/4 |
ПЭП 1, 2, 3, 4 - Пьезоэлектрические преобразователи; Cl, С2 - кювета УТ 12 или УПР;
XS - разъемы типа DB 9 вилка;
ХР - разъемы типа 15EDGVC-3.81-04P
Рисунок 10.3.2 - Схема поверки теплосчетчика СТУ-1 Модель ЗМ.2 проливным методом



ПЭП 1,2,3, 4, 5, 6, 7, 8 - Пьезоэлектрические преобразователи;
С1, С2, СЗ, С4 - кювета УТ 12 или УПР
XS - разъемы типа DB 9 вилка;
ХР - разъемы типа 15EDGVC-3.81-04P
Рисунок 10.3.3 - Схема поверки теплосчетчика СТУ-1
Моделей ЗМ.З и ЗМ4 проливным методом
-
10.3.4 Определение погрешности теплосчетчиков производится на установке поверочной, обеспечивающей поверку во всем диапазоне изменения расхода (от qi до qs), путем взаимного сравнения их показаний. Измерения проводят на следующих значениях расхода: qs; qcP= (qs + qi)/2; qi, где qs, qi - заданные значения соответственно максимального и минимального значения расхода.
При отсутствии этих значений qs и qi либо принимается равными договорному значению расхода, либо значению для данного диаметра из таблицы 2.2 Руководства по эксплуатации.
Примечание - Для поверочной установки УПСЖ-50 qs принимается равным 50 м3/ч.
Значения расхода и объема поверочной жидкости, измеренных теплосчетчиком, определяют по показаниям ЖКИ теплосчетчиков и частотомера в режиме счетчика импульсов, подключенного к поверочному выходу.
Внешние сигналы начала и окончания измерения подаются с таймера поверочной установки или вручную.
Минимальный объем воды должен составлять не менее 500 единиц младшего разряда индикатора частотомера, либо должен соответствовать таблице 10.3.1.
Таблица 10.3.1 - Минимальный объем воды, требуемый при проливке теплосчетчиков в зависимости от номинального диаметра У ПР для поверочной установки УПСЖ-50
DN, мм |
Точка |
40 |
50 |
50U |
65 |
80 |
100 |
Расход, м3/ч |
1 |
12 |
12 |
9 |
20 |
28 |
30 |
2 |
1,8 |
4 |
3 |
7 |
12 |
12 | |
3 |
о,з |
0,5 |
0,3 |
0,9 |
0,3 |
2 | |
Объем, м3 |
1 |
100 |
100 |
50 |
200 |
250 |
300 |
2 |
50 |
50 |
25 |
100 |
100 |
150 | |
3 |
5 |
10 |
5 |
20 |
25 |
50 | |
DN, мм |
Точка |
15 |
20 |
25 |
32U |
32 |
40U |
Расход, м3/ч |
1 |
1,75 |
2,4 |
4,5 |
5 |
8 |
6 |
2 |
0,6 |
0,8 |
1,6 |
1,8 |
3 |
3 | |
3 |
0,035 |
0,08 |
0,12 |
0,16 |
0,2 |
0,2 | |
Объем, м3 |
1 |
15 |
30 |
30 |
50 |
50 |
50 |
2 |
5 |
15 |
15 |
25 |
23 |
25 | |
3 |
2 |
3 |
3 |
3 |
5 |
5 |
Значение объема поверочной жидкости, измеренное поверочной установкой, также можно определить в соответствии с инструкцией на данную поверочную установку.
-
10.3.5 В зависимости от типа используемой поверочной установки в процессе каждого измерения осуществляют регистрацию значения следующих параметров:
-
1) Установка с эталонными весами:
-
- время измерения (наполнения бака);
-
- массу воды;
-
- температуру воды;
-
- показания поверяемых теплосчетчиков.
-
2) Установка с эталонным расходомером-счетчиком:
-
- время измерения;
-
- температуру воды;
-
- объем и расход воды (показания образцового расходомера);
-
- показания поверяемых теплосчетчиков.
В показания поверяемых теплосчетчиков входят:
-
- показания индикатора теплосчетчиков по объему, по расходу;
-
- показания частотомера, подключенного к импульсному выходу, по количеству импульсов.
-
10.3.5.1 В зависимости от типа используемой для поверки теплосчетчика установки значение объема воды по поверочной установке вычисляется в следующей последовательности:
-
10.3.5.1.1 Установка с эталонными весами
Объем воды (м3) определяется по формуле:

1,001-тц
Pt
(69)
где:
m - масса воды, определенная путем взвешивания, т;
pt - плотность воды в зависимости от ее температуры (берется из справочных данных по ГОСТ 8.142), т/м3оС;
1,001 - коэффициент, учитывающий поправку при взвешивании на воздухе.
-
10.3.5.1.2 Поверочная установка с эталонным расходомером-счетчиком
Расход воды определяется (если показания эталонного счетчика регистрируются в именованных единицах) м3/ч:
Qij — kpj ■ Aj
(70)
Объем воды определяется (если показания эталонного счетчика регистрируются в именованных единицах) м3:
Vij = kej • Nj (71)
где: kPj, kej - коэффициент преобразования соответственно по расходу и объему эталонного
счетчика для данной точки расхода (из свидетельства о поверке);
Ni - количество импульсов;
Ai - показания расходомера, м3/ч.
-
10.3.5.1.3 Значение расхода воды в определенной точке диапазона, если на поверочной установке отсутствует указатель расхода, определяется выражением, м3/ч:
(72)
где
t - время измерения, с;
VC4 - объем, определенный на поверочной установке;
i, j - индексы порядкового номера измерения и точки расхода, соответственно. Результаты вычислений заносятся в рабочий протокол поверки.
-
10.3.6 Значения погрешности теплосчетчиков в режиме измерения расхода и объема
воды вычисляют по индикатору:
б = Др1гоуч . 10()0/о (73)
Qyij
62ij = ' Ю0% (74)
vyij
где: qy, Vy - расход и объем воды, измеренные поверочной установкой, соответственно м3/ч,
м3;
qp, Vp - расход и объем воды, измеренные теплосчетчиками, соответственно м3/ч, м3;
i, j - индексы порядкового номера измерения и точки расхода, соответственно.
-
10.3.7 Значение расхода и погрешности теплосчетчиков по импульсному выходу определяются по формулам, м3/ч:
2'S'N-tHMn
(75)
1000-tH3M
5=4^.100% (76)
%
где:
6, - погрешность расходомера по импульсному выходу;
S - договорное значение расхода, м3/ч;
N - количество импульсов, подсчитанных частотомером за период измерения 1изм; qi - значение расхода поверяемого теплосчетчика по импульсному выходу, м3/ч; qy- - значение расхода, измеренное поверочной установкой, м3/ч;
tHMn, мс - длительность импульса 5 мс.
-
10.3.8 Теплосчетчики считаются пригодным к эксплуатации при выполнении условий п. 10.3.9.
-
10.3.9 При несоответствии погрешности теплосчетчиков таблице 11.1, допускается повторно провести градуировку и выполнить поверку по п. 10.3.
Результаты поверки теплосчетчика считаются положительными если не превышают значений, указанных в таблице 11.1.
Таблица 11.1
Наименование характеристики |
Значение |
1 |
2 |
Пределы допускаемой относительной погрешности теплосчетчика при измерении разности температур, % |
±(0,5 + З’АОтт / А®) |
Пределы допускаемой абсолютной погрешности теплосчетчиков при измерении температуры теплоносителя, °C |
±(0,6 ± О,ОО4-|0|) |
Пределы допускаемой приведенной погрешности теплосчетчиков при измерении давления, % от диапазона измерений |
±2,0 |
Пределы допускаемой относительной погрешности ЭБ при преобразовании входных сигналов и индикации, %
|
±0,5 ±0,6 ±0,4 |
Пределы допускаемой абсолютной погрешности ЭБ при преобразовании входных сигналов и индикации, °C
|
±0,25 ±0,1 |
Пределы допускаемой относительной погрешности ЭБ при преобразовании входных сигналов и индикации избыточного давления теплоносителя, приведенной к верхнему пределу измерений, % |
±0,5 |
Пределы допускаемой относительной погрешности ЭБ при измерении тепловой мощности и количества тепловой энергии, % |
±(0,5 + A0mm / А0) |
Пределы допускаемой относительной погрешности теплосчетчиков при измерении объема и объемного расхода теплоносителя в водяных системах теплоснабжения, %
qs / 10 < q < qs qt <q < qJ 10 qi<q < qt -для СТУ-1 Модель 3M.1
|
±2 ±1,75 ±1,5 ±0,75 ±1,0 ±1,5 ±(2 + 0,02 qs/ q), но не более ±5 % ±(1+0,01 q5/q\ но не более ±3,5 % ±(2 + 0,02 qs / q), но не более ±5 % |
1 |
2 |
Пределы допускаемой относительной погрешности теплосчетчиков при измерении тепловой энергии в водяных системах теплоснабжения, %
qs/ Ю <q <qs qt <q < qs/ 10 qi<q< qt -дляСТУ-1 Модель 3M.1
|
класс 2: ±(3 + 4-Д0,шй /Д0) класс 2 ±(2,75 + 4-Д0т/л /Д0) класс 2 ±(2,5 ± 4 Д0/л/л /Д0) класс 1: ±(2,75 + 4-Д0/И/Л /Д0) ±(3 + 4-Д0ШШ /Д0) ±(3,5 + 4Д0/шл /Д0) класс 2: ±(3 + 4-Д0/ЛШ /Д0 ± + 0,02-^/ q) класс 1: ±(2 + 4'Д0/П/Л /Д0 + ± 0,01-^/^) класс 2: ±(3 + 4'Д0Ш/Л /Д0 ± + 0,02^/д) |
Пределы допускаемой относительной погрешности теплосчетчиков при измерении интервалов времени, % |
±0,01 |
Сокращения: Д0/И/Л - минимальное значение разности температур, °C; Д0 - разность температур измеряемой среды, °C; qs - значение максимального расхода измеряемой среды. м3/ч; qt - значение переходного расхода измеряемой среды, м3/ч; qt - значение минимального расхода измеряемой среды, м3/ч; q - значение измеренного расхода измеряемой среды, м3/ч. |
-
12.1 Результаты измерений и вычислений заносят в протокол поверки теплосчетчика произвольной формы.
-
12.2 При положительных результатах поверки теплосчетчика оформляют свидетельство о поверке, подтверждающее соответствие теплосчетчика обязательным требованиям к средствам измерений в соответствии с действующим законодательством РФ, к которому прилагают протокол поверки. Знак поверки наносится на свидетельство о поверке и (или) в паспорт, а также на пломбы, установленные на корпусе теплосчетчика и на корпусе УПР в соответствии с описанием типа СИ.
Сведения о результатах поверки теплосчетчика передают в Федеральный информационный фонд по обеспечению единства измерений в соответствии с порядком проведения поверки средств измерений, предусмотренным действующим законодательством РФ.
-
12.3 При отрицательных результатах поверки теплосчетчик к применению не допускают, оформляют извещение о непригодности с указанием причин в соответствии с действующим законодательством РФ.
(справочное)
СХЕМЫ ПОВЕРКИ РАСХОДОМЕРНОЙ ЧАСТИ ТЕПЛОСЧЕТЧИКОВ
1 - резервуар, 2 - вентиль, 3 - насос, 4 - воздухоотводчик, 5 - частотомер,
6 - рабочая емкость, 7 - термометр, 8 - манометр, 9 - расходомер,
10 - переключатель потока, 11 - весы эталонные, 12 - сливной бак, 13 - насос,
14 - частотомер, 15 - секундомер
Рисунок А.1 - Схема поверки теплосчетчика СТУ-1 на поверочной весовой установке



1 - фильтр, 2 - манометр, 3 - струевыпрямитель, 4 - эталонный расходомер,
5 - термометр, 6 - расходомер тестовый, 7 - вентиль,
8 - прибор эталонного расходомера, 9 - счетчик программный реверсный,
10 - частотомер, 11 - секундомер-таймер, 12 - прибор тестового расходомера
Рисунок А.2 - Схема поверки теплосчетчика СТУ-1 с использованием эталонного счетчика
ПРИЛОЖЕНИЕ Б(справочное)
Зависимость скорости распространения УЗС в воде от температуры при атмосферном давлении 0,101325 МПа, м/сТаблица Б.1- Зависимость скорости распространения УЗС в воде от температуры при ат
мосферном давлении 0,101325 МПа, м/с
t, °C |
При t, °C | |||||||||
0 |
0,1 |
0,2 |
0,3 |
0,4 |
0,5 |
0,6 |
0,7 |
0,8 |
0,9 | |
0 |
1402,384 |
1402,888 |
1403,390 |
1403,891 |
1404,391 |
1404,890 |
1405,388 |
1405,885 |
1406,380 |
1406,874 |
1 |
1407,367 |
1407.859 |
1408,350 |
1408,839 |
1409,328 |
1409,815 |
1410,301 |
1410,786 |
1411,270 |
1411,753 |
2 |
1412,234 |
1412,715 |
1413,194 |
1413,672 |
1414,149 |
1414,625 |
1415,100 |
1415,574 |
1416,047 |
1416,518 |
3 |
1416,988 |
1417,458 |
1417,926 |
1418,393 |
1418,859 |
1419,323 |
1419,787 |
1420,250 |
1420,711 |
1421,172 |
4 |
1421,631 |
1422,089 |
1422,546 |
1423,002 |
1423,457 |
1423,911 |
1424,364 |
1424,816 |
1425,266 |
1425,716 |
5 |
1426,165 |
1426,612 |
1427,058 |
1427,504 |
1427,948 |
1428,391 |
1428,833 |
1429,274 |
1429,714 |
1430,153 |
6 |
1430,591 |
1431,028 |
1431,463 |
1431,898 |
1432,332 |
1432,764 |
1433,196 |
1433,627 |
1434,056 |
1434,484 |
7 |
1439,130 |
1439,546 |
1439,961 |
1440,375 |
1440,788 |
1441,200 |
1441,611 |
1442,021 |
1442,431 |
1442,839 |
8 |
1443,246 |
1443,652 |
1444,057 |
1444,461 |
1444,864 |
1444,266 |
1445,667 |
1445,068 |
1446,467 |
1446,865 |
8 |
1447,262 |
1447,658 |
1448,054 |
1448,448 |
1448,841 |
1449,234 |
1449,625 |
1450,015 |
1450,405 |
1450,793 |
10 |
1451,181 |
1451,567 |
1451,953 |
1452,338 |
1452,721 |
1453,104 |
1453,486 |
1453,866 |
1454,246 |
1454,625 |
11 |
1455,003 |
1455,380 |
1455,756 |
1456,131 |
1456,506 |
1456,879 |
1457,251 |
1457,622 |
1457,993 |
1458,362 |
12 |
1458,731 |
1459,099 |
1459,465 |
1459,831 |
1460,196 |
1460,650 |
1460,923 |
1461,285 |
1461,646 |
1462,007 |
13 |
1462,366 |
1462,724 |
1463,083 |
1463,439 |
1463,794 |
1464,149 |
1464,503 |
1464,856 |
1465,208 |
1465,559 |
14 |
1465,910 |
1466,259 |
1466,608 |
1466,955 |
1467,302 |
1467,648 |
1467,993 |
1468,337 |
1468,680 |
1469,022 |
15 |
1469,364 |
1469,704 |
1470,044 |
1470,383 |
1470,721 |
1471,058 |
1471,394 |
1471,729 |
1472,063 |
1472,397 |
16 |
1472,730 |
1473,061 |
1473,392 |
1473,722 |
1474,052 |
1474,380 |
1474,708 |
1475,034 |
1475,360 |
1475,658 |
17 |
1476,009 |
1476,332 |
1476,655 |
1476,976 |
1477,297 |
1477,617 |
1477,936 |
1478,254 |
1478,571 |
1478,887 |
18 |
1479,203 |
1479,518 |
1479,832 |
1480,145 |
1480,457 |
1480,769 |
1481,079 |
1481,389 |
1481,698 |
1482,006 |
19 |
1482,313 |
1482,620 |
1482,925 |
1483,230 |
1483,534 |
1483,837 |
1484,140 |
1484,441 |
1484,742 |
1485,042 |
21 |
1485,341 |
1485,640 |
1485,937 |
1486,234 |
1486,530 |
1486,825 |
1487,1 19 |
1487,413 |
1487,705 |
1487,997 |
22 |
1488,288 |
1488,578 |
1488,868 |
1489,157 |
1489,445 |
1489,732 |
1490,018 |
1490,304 |
1490,588 |
1490,872 |
23 |
1491,155 |
1491,438 |
1491,719 |
1492,000 |
1492,280 |
1492,560 |
1492,838 |
1493,116 |
1493,393 |
1493,669 |
24 |
1493,944 |
1494,219 |
1494,493 |
1494,766 |
1495,038 |
1495,310 |
1495,580 |
1495,850 |
1496,120 |
1496,388 |
25 |
1496,656 |
1496,923 |
1497,189 |
1497,455 |
1497,719 |
1497,983 |
1498,247 |
1498,509 |
1498,771 |
1499,032 |
26 |
1499.292 |
1499,551 |
1499,810 |
1500,068 |
1500,325 |
1500,582 |
1500,837 |
1501,092 |
1501,347 |
1501,600 |
27 |
1501,853 |
1502,105 |
1502,356 |
1502,607 |
1502,857 |
1503,106 |
1503,354 |
1503,602 |
1503,849 |
1504,095 |
28 |
1504.341 |
1504,585 |
1504.830 |
1505,073 |
1505,315 |
1505,557 |
1505,799 |
1506,039 |
1506,279 |
1506,518 |
29 |
1506,756 |
1506,994 |
1507,231 |
1507,467 |
1507,702 |
1507,937 |
1508,171 |
1508,404 |
1508,637 |
1508,869 |
30 |
1509,100 |
1509,331 |
1509,561 |
1509,790 |
1510,018 |
1510,246 |
1510,473 |
1510,699 |
1510,925 |
1511,150 |
31 |
1511,374 |
1511,598 |
1511,821 |
1512,043 |
1512,264 |
1512,485 |
1512,705 |
1512,925 |
1513,144 |
1513,362 |
32 |
1513,579 |
1513,796 |
1514,012 |
1514,227 |
1514,442 |
1514,656 |
1514,869 |
1515,082 |
1515,294 |
1515,505 |
33 |
1515,716 |
1515,926 |
1516,135 |
1516,344 |
1516.552 |
1516,759 |
1516,966 |
1517,172 |
1517,377 |
1517,582 |
34 |
1517,786 |
1517,990 |
1518,192 |
1518,394 |
1518,596 |
1518,796 |
1518,996 |
1519,196 |
1519,395 |
1519,593 |
35 |
1519,790 |
1519,987 |
1520,183 |
1520,379 |
1520,574 |
1520,768 |
1520,961 |
1521,154 |
1521,347 |
1521,538 |
36 |
1521,729 |
1521,920 |
1522,109 |
1522,298 |
1522,487 |
1522,675 |
1522,862 |
1523,048 |
1523,234 |
1523,420 |
37 |
1523,604 |
1523,788 |
1523,972 |
1524,155 |
1524,337 |
1524,518 |
1524,699 |
1524,879 |
1525,059 |
1525,238 |
38 |
1525.416 |
1525,594 |
1525,771 |
1525,948 |
1526,124 |
1526,299 |
1526,474 |
1526,648 |
1526,821 |
1526,994 |
39 |
1527,166 |
1527,338 |
1527,509 |
1527,679 |
1527,849 |
1528,018 |
1528,186 |
1528,354 |
1528,522 |
1528,688 |
40 |
1528,855 |
1529,020 |
1529,185 |
1529,349 |
1529,513 |
1529,679 |
1529,839 |
1530,001 |
1530,162 |
1530,323 |
41 |
1530,483 |
1530,642 |
1530,801 |
1530,959 |
1531,117 |
1531,274 |
1531,431 |
1531,587 |
1531,742 |
1531,897 |
42 |
1532.051 |
1532,205 |
1532,358 |
1532,510 |
1532,662 |
1532,813 |
1532,964 |
1533,114 |
1533,264 |
1533,413 |
43 |
1533,561 |
1533,709 |
1533,856 |
1534,003 |
1534,149 |
1534,294 |
1534,439 |
1534,584 |
1534,727 |
1534,870 |
44 |
1535,013 |
1535,155 |
1535,297 |
1535,438 |
1535,578 |
1535,718 |
1535,857 |
1535,995 |
1536,134 |
1536,271 |
45 |
1536,408 |
1536,544 |
1536,680 |
1536,815 |
1536,950 |
1537,084 |
1537,218 |
1537,351 |
1537,483 |
1537,615 |
46 |
1537,747 |
1537,877 |
1538,008 |
1538,137 |
1538,266 |
1538,395 |
1538,523 |
1538,650 |
1538,777 |
1538,904 |
47 |
1539,030 |
1539,155 |
1539,280 |
1539,404 |
1539,527 |
1539,651 |
1539,773 |
1539,895 |
1540,017 |
1540,137 |
48 |
1540,258 |
1540,378 |
1540,497 |
1540,616 |
1540,734 |
1540,852 |
1540,969 |
1541,085 |
1541,202 |
1541,317 |
49 |
1541,432 |
1541,547 |
1541,661 |
1541,774 |
1541,887 |
1541,999 |
1542,111 |
1542,222 |
1542,333 |
1542,443 |
50 |
1542,553 |
1542,662 |
1542,771 |
1542,879 |
1542,987 |
1543,094 |
1543,200 |
1543,306 |
1543,412 |
1543,517 |
51 |
1543,621 |
1543,725 |
1543,829 |
1543,932 |
1544,034 |
1544,136 |
1544,237 |
1544,338 |
1544,439 |
1544,538 |
52 |
1544,638 |
1544,736 |
1544,835 |
1544,933 |
1545,030 |
1545,127 |
1545,223 |
1545,319 |
1545,414 |
1545,509 |
53 |
1545,603 |
1545,697 |
1545,790 |
1545,882 |
1545,975 |
1546,066 |
1546,158 |
1546,248 |
1546,338 |
1546,428 |
54 |
1546,517 |
1546,606 |
1546,694 |
1546,782 |
1546,869 |
1546,956 |
1547,042 |
1547,128 |
1547,213 |
1547,298 |
55 |
1547,382 |
1547,466 |
1547,549 |
1547,632 |
1547,714 |
1547,769 |
1547,877 |
1547,958 |
1548,038 |
1548,1 18 |
56 |
1548,197 |
1548,276 |
1548,355 |
1548,432 |
1548,510 |
1548,587 |
1548,663 |
1548,739 |
1548,815 |
1548,890 |
57 |
1548,964 |
1549,038 |
1549,112 |
1549,185 |
1549,257 |
1549,329 |
1549,401 |
1549,472 |
1549,543 |
1549,613 |
58 |
1549,688 |
1549,752 |
1549,821 |
1549,889 |
1549,957 |
1550,024 |
1550,091 |
1550,157 |
1550,223 |
1550,289 |
59 |
1550,354 |
1550,418 |
1550,482 |
1550,546 |
1550,609 |
1550,672 |
1550,734 |
1550,796 |
1550,857 |
1550,918 |
60 |
1550,978 |
1551,038 |
1551,098 |
1551,157 |
1551,215 |
1551,273 |
1551,331 |
1551,388 |
1551,444 |
1551,501 |
61 |
1551,556 |
1551,612 |
1551,666 |
1551,721 |
1551,775 |
1551,828 |
1551,881 |
1551,934 |
1551,986 |
1552,038 |
62 |
1552,089 |
1552,139 |
1552,190 |
1552,240 |
1552,289 |
1552,338 |
1552,386 |
1552,434 |
1552,482 |
1552,529 |
63 |
1552,576 |
1552,622 |
1552,668 |
1552,713 |
1552,758 |
1552,808 |
1552,847 |
1552,890 |
1552,934 |
1552,976 |
64 |
1553,019 |
1553,060 |
1553,102 |
1553,143 |
1553,183 |
1553,223 |
1553,263 |
1553,302 |
1553,341 |
1553,379 |
65 |
1553,417 |
1553,455 |
1553,492 |
1553,528 |
1553,564 |
1553,600 |
1553,635 |
1553,670 |
1553,705 |
1553,739 |
66 |
1553,772 |
1553,805 |
1553,838 |
1553,870 |
1553,902 |
1553,934 |
1553,965 |
1553,995 |
1554,025 |
1554,055 |
67 |
1554,084 |
1554,113 |
1554,142 |
1554,170 |
1554,197 |
1554,224 |
1554,251 |
1554,278 |
1554,303 |
1554,329 |
68 |
1554,354 |
1554,379 |
1554,403 |
1554,427 |
1554,450 |
1554,473 |
1554,495 |
1554,518 |
1554,539 |
1554,561 |
69 |
1554,582 |
1554,602 |
1554,662 |
1554,642 |
1554,661 |
1554,680 |
1554,698 |
1554,716 |
1554,734 |
1554,751 |
70 |
1554,768 |
1554,784 |
1554,800 |
1554,815 |
1554,831 |
1554,845 |
1554,860 |
1554,873 |
1554,887 |
1554,900 |
71 |
1554,913 |
1554,925 |
1554,937 |
1554,948 |
1554,959 |
1554,979 |
1554,989 |
1554,990 |
1554,999 |
1555,009 |
72 |
1555,017 |
1555,025 |
1555,033 |
1555,041 |
1555,048 |
1555,054 |
1555,061 |
1555,066 |
1555,072 |
1555,077 |
73 |
1555,082 |
1555,086 |
1555,090 |
1555,093 |
1555,096 |
1555,099 |
1555,101 |
1555,103 |
1555,105 |
1555,106 |
74 |
1555,106 |
1555,107 |
1555,107 |
1555,106 |
1555,105 |
1555,104 |
1555,102 |
1555,100 |
1555,098 |
1555,095 |
75 |
1555,092 |
1555,088 |
1555,084 |
1555,080 |
1555,075 |
1555,070 |
1555,065 |
1555,059 |
1555,053 |
1555.046 |
76 |
1555,039 |
1555,031 |
1555,024 |
1555,015 |
1555,007 |
1555,998 |
1554,989 |
1554,979 |
1554,969 |
1554,958 |
’ll |
1555,947 |
1554,936 |
1554,925 |
1554,913 |
1554,900 |
1554,887 |
1554,874 |
1554,861 |
1554,847 |
1554,833 |
78 |
1555,818 |
1554,808 |
1554,788 |
1554,772 |
1554,756 |
1554,739 |
1554,722 |
1554,705 |
1554,688 |
1554,670 |
79 |
1555,651 |
1554,633 |
1554,613 |
1554,594 |
1554,574 |
1554,543 |
1554,533 |
1554,512 |
1554,491 |
1554,496 |
80 |
1555,447 |
1554,425 |
1554,402 |
1554,379 |
1554,356 |
1554,332 |
1554,307 |
1554,283 |
1554,258 |
1554,233 |
81 |
1555,207 |
1554,181 |
1554,154 |
1554,128 |
1554,100 |
1554,073 |
1554,045 |
1554,017 |
1554,988 |
1554,959 |
82 |
1555,930 |
1553,900 |
1553,870 |
1553,840 |
1553,809 |
1553,778 |
1553,747 |
1553,715 |
1553,683 |
1553,650 |
83 |
1553,617 |
1553,584 |
1553,551 |
1553,517 |
1553,482 |
1553,448 |
1553,413 |
1553,377 |
1553,342 |
1553,306 |
84 |
1553,269 |
1553,232 |
1553,195 |
1553,158 |
1553,120 |
1553,082 |
1553,043 |
1553,004 |
1552,965 |
1552,926 |
85 |
1552,886 |
1552,845 |
1552,805 |
1552,764 |
1552,723 |
1552,681 |
1552,639 |
1552,597 |
1552,554 |
1552,51 1 |
86 |
1552,468 |
1552,424 |
1552,380 |
1552,335 |
1552,291 |
1552,246 |
1552,200 |
1552.154 |
1552,108 |
1552,062 |
87 |
1552,015 |
1551,968 |
1551,920 |
1551,873 |
1551,824 |
1551,776 |
1551,727 |
1551,678 |
1551,628 |
1551,578 |
88 |
1551,528 |
1551,478 |
1551,427 |
1551,376 |
1551,324 |
1551,272 |
1551,220 |
1551.167 |
1551,115 |
1551,061 |
89 |
1551,008 |
1550,954 |
1550,900 |
1550,845 |
1550,790 |
1550,735 |
1550,679 |
1550.624 |
1550,567 |
1550,511 |
90 |
1550,454 |
1550,397 |
1550,339 |
1550,281 |
1550,223 |
1550,164 |
1550,106 |
1550,046 |
1549,987 |
1549,927 |
91 |
1549,867 |
1549,806 |
1549,745 |
1549,684 |
1549,623 |
1549,561 |
1549,499 |
1549,436 |
1549,374 |
1549,310 |
92 |
1549,247 |
1549,183 |
1549,1 19 |
1549,055 |
1548,990 |
1548,925 |
1548,859 |
1548,794 |
1548,728 |
1548,661 |
93 |
1548,595 |
1548,528 |
1548,460 |
1548,393 |
1548,325 |
1548,256 |
1548,188 |
1548,119 |
1548,049 |
1547,980 |
94 |
1547,910 |
1547,840 |
1547,769 |
1547,698 |
1547,627 |
1547,556 |
1547,484 |
1547,412 |
1547,339 |
1547,267 |
95 |
1547,193 |
1547,120 |
1547,046 |
1546,972 |
1546,898 |
1546.823 |
1546,748 |
1546,673 |
1546,597 |
1546,521 |
96 |
1546.445 |
1546.369 |
1546,292 |
1546,215 |
1546,137 |
1546,059 |
1545,981 |
1545,903 |
1545,824 |
1545,743 |
97 |
1545,666 |
1545,586 |
1545,506 |
1545,426 |
1545,345 |
1545,264 |
1545,183 |
1545,101 |
1545,019 |
1544,937 |
98 |
1544,855 |
1544,772 |
1544,689 |
1544,605 |
1544,522 |
1544,438 |
1544,353 |
1544,269 |
1544,184 |
1544,099 |
99 |
1544,013 |
1543,927 |
1543,841 |
1543,755 |
1543,668 |
1543,581 |
1543,493 |
1543,406 |
1543,318 |
1543,229 |
100 |
1543,141 |
1543,052 |
1542,963 |
1542,873 |
1542,783 |
1542,693 |
1542,603 |
1542,512 |
1542,421 |
1543,329 |
ГСССД 190-2000 Вода. Скорость звука при температурах 0... 100 °C и давлениях 0,101325...100 МПа
49
Александров А.А., Трахтенгерц М.С. Теплофизические свойства воды при атмосферном давлении.
М.; Изд-во стандартов, 1977, 100 с. (Государственная служба стандартных справочных данных. Сер.: Монографии).