Номер по Госреестру СИ: 89740-23
89740-23 Резервуары стальные горизонтальные цилиндрические
(ЕП-20-2400-1-А-СО-У1)
Назначение средства измерений:
Резервуары стальные горизонтальные цилиндрические ЕП-20-2400-1-А-СО-У1 (далее -резервуары) предназначены для измерения объема нефти и нефтепродуктов, а также для их приема, хранения и отпуска.

Внешний вид.
Резервуары стальные горизонтальные цилиндрические
Рисунок № 1

Внешний вид.
Резервуары стальные горизонтальные цилиндрические
Рисунок № 2

Внешний вид.
Резервуары стальные горизонтальные цилиндрические
Рисунок № 3

Внешний вид.
Резервуары стальные горизонтальные цилиндрические
Рисунок № 4
Знак утверждения типа
Знак утверждения типананосится на титульный лист паспорта резервуара типографским способом.
Сведения о методиках измерений
Сведения о методиках (методах) измеренийприведены в пункте 8 паспорта на резервуар.
Нормативные и технические документы
Нормативные документы, устанавливающие требования к средству измеренийПриказ Федерального агентства по техническому регулированию и метрологии от 26 сентября 2022 г. № 2356 «Об утверждении Государственной поверочной схемы для средств измерений массы и объема жидкости в потоке, объема жидкости и вместимости при статических измерениях, массового и объемного расходов жидкости».
ПравообладательОбщество с ограниченной ответственностью «Уралспецмаш» (ООО «Уралспецмаш») ИНН 5916022788
Юридический адрес: 614095, Пермский край, г. Пермь, ул. Карпинского, д. 99, оф. 201
Телефон: +7 (342) 258-08-52
Web-сайт: uralrezerv.com
E-mail: mail@uralrezerv.com
Изготовитель
Общество с ограниченной ответственностью «Уралспецмаш» (ООО «Уралспецмаш») ИНН 5916022788Адрес места осуществления деятельности: 617065, Пермский край, г. Краснокамск, ул. Шоссейная, д. 43
Юридический адрес: 614095, Пермский край, г. Пермь, ул. Карпинского, д. 99, оф. 201 Телефон: +7 (342) 258-08-52
Web-сайт: uralrezerv.com
E-mail: mail@uralrezerv.com
Испытательный центр
Общество с ограниченной ответственностью «МетроКонТ» (ООО «МетроКонТ»)Адрес: 420132, Республика Татарстан, г. Казань, ул. Адоратского, д. 39Б, оф. 51 Телефон: +7 9372834420
Факс +7 (843) 515-00-21
E-mail: trifonovua@mail.ru
Правообладатель
Общество с ограниченной ответственностью «Уралспецмаш» (ООО «Уралспецмаш») ИНН 5916022788Юридический адрес: 614095, Пермский край, г. Пермь, ул. Карпинского, д. 99, оф. 201
Телефон: +7 (342) 258-08-52
Web-сайт: uralrezerv.com
E-mail: mail@uralrezerv.com
Тип резервуаров - стальные горизонтальные цилиндрические, номинальной вместимостью 20 м3 подземного расположения.
Принцип действия резервуаров основан на заполнении их нефтью или нефтепродуктом до определенного уровня, соответствующего заданному значению объема.
Резервуары представляют собой горизонтально расположенный цилиндрический стальной сосуд с днищами.
Заполнение и выдача продукта осуществляется через приемно-раздаточные патрубки.
Заводские номера резервуаров в виде цифрового обозначения, состоящие из арабских цифр, нанесены методом гравировки на маркировочную табличку резервуара (рисунок 1).
Резервуары ЕП-20-2400-1-А-СО-У1 с заводскими номерами 158.12.20, 160.12.20, расположены на территории ЛПДС «Оса» по адресу: 618124, Российская Федерация, Пермский край, Осинский городской округ.
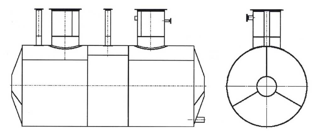
Эскиз общего вида резервуаров приведен на рисунке 2. Фотографии горловин и измерительных люков приведены на рисунках 3 и 4.
Нанесение знака поверки на средство измерений не предусмотрено.
^НОВРОССЖ
tarwotaue енкоспик|реэервуоро1
3950
£
I -еякооть СТ1-.Ф?;.30-М-аНД
г
I
г
-технического контроля............
.ООО <Чралспецмаш>’ >
*
•l
ЗаЬойскш номер..............•.........
Расчетное daE/mie twocrrc 'р£эерС^одо|/
по&агреЬатепь МПа...................
Цэминальмое баЬленое емкие™ (резервузра)/ . 4
noao2prtCTTip/b. rth...........................А —
npcfiwo€^obnewdej?tidfr-u jpeaepftyopa)/ 0L1 / • I
.*. к МПаЛ.. ^. ............... ■ -
и райоч» orn MJHUC 40 до ПЛЮС W J /
------,—стены Д .....»W^-..........5..I ■ ---J Исполнение енкссти (резервуара) '*>»» I f ’ rn ]• i
t no сейввстойкости............... V?.. L_ ' 1
1щлиз моринальРС5Г сейсмичность района y--Ttf cbu, Г1ЛДЛЫ no икпле MSMU .,.........
I » "A ■
Мосса емкости (резерв.|прп) к?.»*...,..
Гой изготовления ..........'.....• I____
"С
ЙО 12 20
I . Off? z
007 / '*ig.
QI /■ • '■- '
Масса емкости ^резервуара). кг
, ГоО изготовления ........."...
г Клейко технического контроля
• /О. __
ООО «Уролспецмаш»
39S0
J 1
2021
ZT
ь ЕП-20-240а-М-С0-У1
Рисунок 1 - Маркировочные таблички резервуаров
Рисунок 2 - Эскиз общего вида резервуаров
Рисунок 3 - Горловины и измерительный люк резервуара ЕП-20-2400-1-А-СО-У1
зав.№ 158.12.20
Рисунок 4 - Горловины и измерительный люк резервуара ЕП-20-2400-1-А-СО-У1 зав.№ 160.12.20
Пломбирование резервуаров ЕП-20-2400-1-А-СО-У1 не предусмотрено.
Лист № 4
Всего листов 5
Таблица 1 - Метрологические характеристики
|
Наименование характеристики |
Значение |
|
Номинальная вместимость, м3 |
20 |
|
Пределы допускаемой относительной погрешности определения вместимости (объемный метод), % |
±0,25 |
Таблица 2 - Основные технические характеристики
|
Наименование характеристики |
Значение |
|
Условия эксплуатации: Температура окружающего воздуха, оС Атмосферное давление, кПа |
от -50 до +50 от 84,0 до 106,7 |
|
Средний срок службы, лет, не менее |
30 |

