Номер по Госреестру СИ: 90126-23
90126-23 Резервуар стальной горизонтальный цилиндрический
(РГС-25)
Назначение средства измерений:
Резервуар стальной горизонтальный цилиндрический РГС-25 (далее - резервуар) предназначен для измерения объема при приеме, хранении и отпуске нефти и нефтепродуктов.

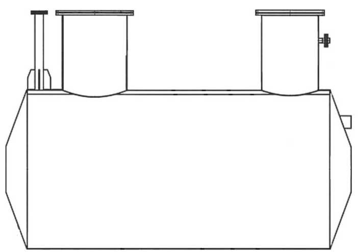
Внешний вид.
Резервуар стальной горизонтальный цилиндрический
Рисунок № 1

Внешний вид.
Резервуар стальной горизонтальный цилиндрический
Рисунок № 2
Знак утверждения типа
Знак утверждения типананосится на титульный лист паспорта типографским способом.
Сведения о методиках измерений
Сведения о методиках (методах) измерений приведены в пункте 7 паспорта.Нормативные и технические документы
Нормативные документы, устанавливающие требования к средству измеренийПриказ Федерального агентства по техническому регулированию и метрологии от 26 сентября 2022 г. № 2356 «Об утверждении Государственной поверочной схемы для средств измерений массы и объема жидкости в потоке, объема жидкости и вместимости при статических измерениях, массового и объемного расходов жидкости».
ПравообладательОбщество с ограниченной ответственностью «НПО Нефтемаш»
(ООО «НПО Нефтемаш»)
ИНН 5834022219
Юридический адрес: 440028, г. Пенза, ул. Кирпичная, д. 28
Испытательный центр
Общество с ограниченной ответственностью «Сибирская интернет компания»(ООО ИК «СИБИНТЕК»)
Юридический адрес: 117152, г. Москва, Загородное ш., д. 1, стр. 1
Адрес места осуществления деятельности: 443096, г. Самара, ул. Мичурина, д. 52
Резервуар представляет собой горизонтальный цилиндрический сварной стальной сосуд, оборудованный приемо-раздаточными патрубками и технологическими люками. Заполнение и опорожнение резервуара осуществляется через приемо-раздаточные патрубки.
Расположение резервуара подземное.
Заводской номер резервуара в виде цифрового обозначения, состоящего из арабских цифр, нанесен типографским способом на горловину резервуара и в паспорт.
Резервуар РГС-25 заводской № 01557 расположен: ПАО «Удмуртнефть» им. В.И. Кудинова, ПСП «Киенгоп» СИКН № 263.
Пломбирование резервуара не предусмотрено.
Нанесение знака поверки на средство измерений не предусмотрено.
Эскиз резервуара и общий вид заливной горловины представлен на рисунке 1-2.
Рисунок 1 - Эскиз резервуара
Рисунок 2 - Общий вид заливной горловины
Таблица 3 -
|
Наименование |
Обозначение |
Количество |
|
Резервуар стальной горизонтальный цилиндрический |
РГС-25 |
1 шт. |
|
Паспорт |
- |
1 экз. |
Таблица 1 - Метрологические характеристики
|
Наименование характеристики |
Значение |
|
Номинальная вместимость, м3 |
25 |
|
Пределы допускаемой относительной погрешности определения вместимости резервуара (объёмный метод), % |
±0,25 |
Таблица 2 - Основные технические характеристики
|
Наименование характеристики |
Значение |
|
Средний срок службы, лет |
30 |
|
Условия эксплуатации:
|
от -50 до +50 от 84,0 до 106,7 |

