Номер по Госреестру СИ: 90238-23
90238-23 Резервуар горизонтальный стальной (подземный)
(РГСп 50-8-2768)
Назначение средства измерений:
Резервуар горизонтальный стальной (подземный) РГСп 50-8-2768 (далее - резервуар) предназначен для измерения объема нефти и нефтепродуктов, а также для их приема, хранения и отпуска.

Внешний вид.
Резервуар горизонтальный стальной (подземный)
Рисунок № 1

Внешний вид.
Резервуар горизонтальный стальной (подземный)
Рисунок № 2

Внешний вид.
Резервуар горизонтальный стальной (подземный)
Рисунок № 3
Знак утверждения типа
Знак утверждения типананосится на титульный лист паспорта резервуара типографским способом.
Сведения о методиках измерений
Сведения о методиках (методах) измерений приведены в пункте 8 паспорта на резервуар.
Нормативные и технические документы
Нормативные документы, устанавливающие требования к средству измеренийПриказ Федерального агентства по техническому регулированию и метрологии от 26 сентября 2022 г. № 2356 «Об утверждении Государственной поверочной схемы для средств измерений массы и объема жидкости в потоке, объема жидкости и вместимости при статических измерениях, массового и объемного расходов жидкости».
ПравообладательОбщество с ограниченной ответственностью «Росттэк» (ООО «Росттэк»)
ИНН 7724350210
Юридический адрес: 115569, г. Москва, вн. тер. г. муниципальный округ Орехово-Борисово Северное, ул. Домодедовская, д. 4, помещ./оф. 19п/10а
Испытательный центр
Общество с ограниченной ответственностью «МетроКонТ» (ООО «МетроКонТ»)Адрес: 420132, Республика Татарстан, г. Казань, ул. Адоратского, д. 39Б, оф. 51 Телефон: +7 9372834420
Факс +7 (843) 515-00-21
E-mail: trifonovua@mail.ru
Тип резервуара - горизонтальный стальной, номинальной вместимостью 50 м3.
Принцип действия резервуара основан на заполнении его нефтью или нефтепродуктом до определенного уровня, соответствующего заданному значению объема.
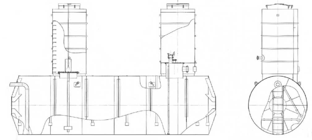
Резервуар представляет собой горизонтально расположенный цилиндрический стальной сосуд с днищами.
Заполнение и выдача продукта осуществляется через приемно-раздаточные патрубки.
Заводской номер резервуара в виде цифрового обозначения, состоящий из арабских цифр, нанесен ударным способом на маркировочную табличку резервуара (рисунок 1).
Резервуар РГСп 50-8-2768 с заводским номером 559, расположен на территории АО «Газпромнефть-Аэро» Филиал «Левашово» по адресу: 194361, г. Санкт-Петербург, п. Левашово, Горское шоссе, д. 100, лит. 3.
Эскиз общего вида резервуара приведен на рисунке 2. Фотография горловины и измерительного люка приведена на рисунке 3.
Нанесение знака поверки на средство измерений не предусмотрено.
Рисунок 1 - Маркировочная табличка резервуара
Рисунок 2 - Эскиз общего вида резервуара
Рисунок 3 - Горловина и измерительный люк резервуара РГСп 50-8-2768 зав.№ 559
Пломбирование резервуара РГСп 50-8-2768 не предусмотрено.
Таблица 3 -
|
Наименование |
Обозначение |
Количество |
|
Резервуар горизонтальный стальной (подземный) |
РГСп 50-8-2768 |
1 шт. |
|
Паспорт |
- |
1 экз. |
|
Градуировочная таблица |
- |
1 экз. |
Таблица 1 - Метрологические характеристики
|
Наименование характеристики |
Значение |
|
Номинальная вместимость, м3 |
50 |
|
Пределы допускаемой относительной погрешности определения вместимости (объемный метод), % |
±0,25 |
Таблица 2 - Основные технические характеристики
|
Наименование характеристики |
Значение |
|
Условия эксплуатации: Температура окружающего воздуха, оС Атмосферное давление, кПа |
от -50 до +50 от 84,0 до 106,7 |
|
Средний срок службы, лет, не менее |
20 |

