Номер по Госреестру СИ: 90353-23
90353-23 Резервуары горизонтальные стальные двустенные
(РГСД-25)
Назначение средства измерений:
Резервуары горизонтальные стальные двустенные РГСД-25 (далее - резервуары) предназначены для измерения объема нефти и нефтепродуктов, а также для их приема, хранения и отпуска.

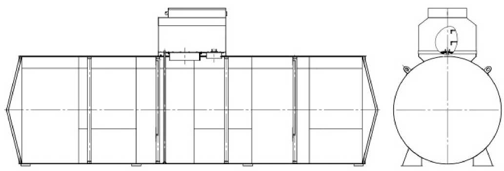
Внешний вид.
Резервуары горизонтальные стальные двустенные
Рисунок № 1

Внешний вид.
Резервуары горизонтальные стальные двустенные
Рисунок № 2

Внешний вид.
Резервуары горизонтальные стальные двустенные
Рисунок № 3

Внешний вид.
Резервуары горизонтальные стальные двустенные
Рисунок № 4

Внешний вид.
Резервуары горизонтальные стальные двустенные
Рисунок № 5
Знак утверждения типа
Знак утверждения типананосится на титульный лист паспорта резервуара типографским способом.
Сведения о методиках измерений
Сведения о методиках (методах) измерений приведены в пункте 8 паспорта на резервуар.
Нормативные и технические документы
Нормативные документы, устанавливающие требования к средству измерений
Приказ Федерального агентства по техническому регулированию и метрологии от 26 сентября 2022 г. № 2356 «Об утверждении Государственной поверочной схемы для средств измерений массы и объема жидкости в потоке, объема жидкости и вместимости при статических измерениях, массового и объемного расходов жидкости».
Правообладатель
Общество с ограниченной ответственностью «Техмонтажспецстрой» (ООО «Техмонтажспецстрой»)
ИНН 2632065302
Юридический адрес: 357500, Ставропольский край, г. Пятигорск, ул. Орджоникидзе, д. 11, к. 2
Изготовитель
Общество с ограниченной ответственностью «Техмонтажспецстрой» (ООО «Техмонтажспецстрой»)
ИНН 2632065302
Адрес: 357500, Ставропольский край, г. Пятигорск, ул. Орджоникидзе, д. 11, к. 2
Испытательный центр
Общество с ограниченной ответственностью «МетроКонТ» (ООО «МетроКонТ»)
Адрес: 420132, Республика Татарстан, г. Казань, ул. Адоратского, д. 39Б, оф. 51 Телефон: +7 9372834420
Факс +7 (843) 515-00-21 E-mail: trifonovua@mail.ru
Правообладатель
Общество с ограниченной ответственностью «Техмонтажспецстрой» (ООО «Техмонтажспецстрой»)
ИНН 2632065302
Юридический адрес: 357500, Ставропольский край, г. Пятигорск, ул. Орджоникидзе, д. 11, к. 2
Тип резервуаров - горизонтальные стальные двустенные, номинальной вместимостью 25 м3 подземного расположения.
Принцип действия резервуаров основан на заполнении их нефтью или нефтепродуктом до определенного уровня, соответствующего заданному значению объема.
Резервуары представляют собой горизонтально расположенный цилиндрический стальной двустенный сосуд с днищами.
Заполнение и выдача продукта осуществляется через приемно-раздаточные патрубки.
Заводские номера резервуаров в виде цифрового обозначения, состоящие из арабских цифр, нанесены типографским способом на табличку резервуара. Табличка крепится к люку резервуара.
Резервуары РГСД-25 с заводскими номерами 455, 456, 457, 458, 459, 460, 461, 462 расположены по адресу: Республика Южная Осетия, нп Дисеу.
Эскиз общего вида резервуаров приведен на рисунке 1. Фотографии горловин и измерительных люков приведены на рисунках 2, 3, 4, 5.
Нанесение знака поверки на средство измерений не предусмотрено.
Рисунок 1 - Эскиз общего вида резервуаров
Рисунок 2 - Горловины и измерительные люки резервуаров РГСД-25 зав.№№ 455, 456
Рисунок 3 - Горловины и измерительные люки резервуаров РГСД-25 зав.№№ 457, 458
Рисунок 4 - Горловины и измерительные люки резервуаров РГСД-25 зав.№№ 459, 460
Рисунок 5 - Горловины и измерительные люки резервуаров РГСД-25 зав.№№ 461, 462 Пломбирование резервуаров РГСД-25 не предусмотрено.
Таблица 3 -
|
Наименование |
Обозначение |
Количество |
|
Резервуар горизонтальный стальной двустенный |
РГСД-25 |
1 шт. |
|
Паспорт |
- |
1 экз. |
|
Градуировочная таблица |
- |
1 экз. |
Таблица 1 - Метрологические характеристики
|
Наименование характеристики |
Значение |
|
Номинальная вместимость, м3 |
25 |
|
Пределы допускаемой относительной погрешности определения вместимости (объемный метод), % |
±0,25 |
Таблица 2 - Основные технические характеристики
|
Наименование характеристики |
Значение |
|
Условия эксплуатации: Температура окружающего воздуха, оС Атмосферное давление, кПа |
от -50 до +50 от 84,0 до 106,7 |
|
Средний срок службы, лет, не менее |
20 |

