Номер по Госреестру СИ: 91494-24
91494-24 Резервуар стальной горизонтальный цилиндрический
(ЕП-16-2000-1300)
Назначение средства измерений:
Резервуар стальной горизонтальный цилиндрический ЕП-16-2000-1300 (далее -резервуар) предназначен для измерений объема нефти и нефтепродуктов, а также для их приема, хранения и отпуска.

Внешний вид.
Резервуар стальной горизонтальный цилиндрический
Рисунок № 1

Внешний вид.
Резервуар стальной горизонтальный цилиндрический
Рисунок № 2

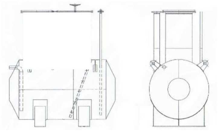
Внешний вид.
Резервуар стальной горизонтальный цилиндрический
Рисунок № 3
Знак утверждения типа
Знак утверждения типананосится на титульный лист паспорта резервуара типографским способом.
Сведения о методиках измерений
Сведения о методиках (методах) измерений приведены в разделе 8 «Порядок работы» паспорта.Нормативные и технические документы
Нормативные документы, устанавливающие требования к средству измеренийПриказ Федерального агентства по техническому регулированию и метрологии от 26 сентября 2022 г. № 2356 «Об утверждении Государственной поверочной схемы для средств измерений массы и объема жидкости в потоке, объема жидкости и вместимости при статических измерениях, массового и объемного расходов жидкости».
ПравообладательОбщество с ограниченной ответственностью «Производственная компания
«Тюменские металлоконструкции» (ООО ПК «ТМК»)
ИНН 7203275532
Юридический адрес: 625014, Тюменская обл., г. Тюмень, ул. Чекистов, д. 42, помещ. 24
Испытательный центр
Всероссийский научно-исследовательский институт расходометрии - филиал Федерального государственного унитарного предприятия «Всероссийский научноисследовательский институт метрологии имени Д.И.Менделеева» (ВНИИР - филиал ФГУП «ВНИИМ им. Д.И.Менделеева»)Адрес места осуществления деятельности: 420088, Республика Татарстан, г. Казань, ул. 2-я Азинская, д. 7 «а»
Юридический адрес: 190005, г. Санкт-Петербург, Московский пр-кт, д. 19
Телефон/ факс: +7 (843) 272-70-62/(843) 272-00-32
Web-сайт: vniir.org
E-mail: office@vniir.org
Тип резервуара - стальной горизонтальный цилиндрический, номинальной вместимостью 16 м3 подземного расположения.
Принцип действия резервуара основан на заполнении его нефтью или нефтепродуктом до произвольных уровней, соответствующих определенным объемам (вместимостям), приведенных в градуировочной таблице резервуара.
Резервуар представляет собой горизонтально установленный стальной односекционный сосуд цилиндрической формы с днищами.
Заполнение и выдача продукта осуществляется через приемно-раздаточные устройства.
Заводской номер резервуара в виде цифрового обозначения, состоящий из арабских цифр, нанесен ударным способом на маркировочную табличку резервуара (рисунок 1).
Резервуар ЕП-16-2000-1300 с заводским номером 607 расположен на площадке Среднеботуобинского нефтегазоконденсатного месторождения, АО «РНГ» по адресу: Республика Саха (Якутия), Мирнинский район.
Эскиз общего вида резервуара приведен на рисунке 3. Фотография горловин и измерительного люка приведена на рисунке 2.
Нанесение знака поверки на средство измерений не предусмотрено.
|ГС ООО ПроизЬоЗстбенная компам Тюменские метоппоконструкцо
Зав.№
ТЧ 3615-.001-09524816-2Ш4
Тег раб.мин.. “С -с ■ > _____Тег раб. макс . !С + Масса, кг <> , ,
«м»«МПа
^.МПа ________
Дата выпуска____20 г. Сделано в России J
: Л
Рисунок 1 - Маркировочная табличка
Рисунок 2 - Горловины и измерительный люк резервуара ЕП-16-2000-1300 зав.№ 607
Рисунок 3 - Эскиз общего вида резервуара ЕП-16-2000-1300 Пломбирование резервуара ЕП-16-2000-1300 не предусмотрено.
Таблица 3-
|
Наименование |
Обозначение |
Количество |
|
Резервуар стальной горизонтальный цилиндрический |
ЕП-16-2000-1300 |
1 шт. |
|
Паспорт |
- |
1 шт. |
|
Градуировочная таблица |
- |
1 шт. |
Таблица 1 - Метрологические характеристики
|
Наименование характеристики |
Значение |
|
Номинальная вместимость, м3 |
16 |
|
Пределы допускаемой относительной погрешности вместимости, % |
±0,25 |
Таблица 2 - Основные технические характеристики
|
Наименование характеристики |
Значение |
|
Условия эксплуатации: Температура окружающего воздуха, оС Атмосферное давление, кПа |
от -50 до +50 от 84,0 до 106,7 |
|
Средний срок службы, лет, не менее |
20 |

