Номер по Госреестру СИ: 92408-24
92408-24 Резервуары горизонтальные
(ГЭЭ)
Назначение средства измерений:
Резервуары горизонтальные ГЭЭ (далее - резервуары) предназначены для измерений объема, а также для приема, хранения и отпуска нефти, нефтепродуктов (в том числе дизельного топлива) и других агрессивных и неагрессивных сред.

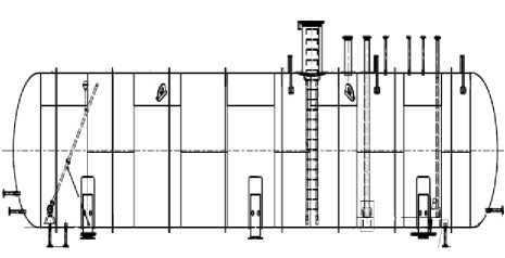
Внешний вид.
Резервуары горизонтальные
Рисунок № 1

Внешний вид.
Резервуары горизонтальные
Рисунок № 2
Знак утверждения типа
Знак утверждения типананосится на табличку методом сублимационной печати и на титульные листы паспорта и руководства по эксплуатации типографским способом.
Сведения о методиках измерений
Сведения о методиках (методах) измеренийприведены в разделе 1 «Описание и работа резервуара» руководства по эксплуатации ГЭЭ-00.000.00.00.000 РЭ.
Нормативные и технические документы
Нормативные документы, устанавливающие требования к средству измеренийПриказ Росстандарта от 26 сентября 2022 г. № 2356 «Об утверждении Государственной поверочной схемы для средств измерений массы и объема жидкости в потоке, объема жидкости и вместимости при статических измерениях, массового и объемного расходов жидкости»;
ТУ 3615-006-69478442-2014 «Резервуары горизонтальные ГЭЭ. Технические условия».
ПравообладательОбщество с ограниченной ответственностью «Саратовский резервуарный завод»
(ООО «САРРЗ»)
ИНН 6451451695
Юридический адрес: 410036, Саратовская обл., г. Саратов, ул. Огородная, д. 162
Испытательный центр
Общество с ограниченной ответственностью «ПРОММАШ ТЕСТ» (ООО «ПРОММАШ ТЕСТ»)Юридический адрес: 119415, г. Москва, пр-кт Вернадского, д. 41, стр. 1, эт. 4, помещ. I, ком. 28
Адрес места осуществления деятельности: 142300, Московская обл., Чеховский р-н, г. Чехов, Симферопольское ш., д. 2
Принцип действия резервуаров основан на заполнении их рабочей средой до определенного уровня, соответствующего заданному значению объема, согласно градуировочным таблицам.
Резервуары предназначены для надземной и подземной установки.
Конструктивно резервуары представляют собой горизонтально расположенные одностенные сосуды, корпус которых состоит из цилиндрической обечайки с эллиптическими днищами, люками обслуживания и приемо-раздаточными патрубками для приема и отпуска среды.
При необходимости резервуары оборудуются горловинами для обслуживания, дыхательным и/или предохранительными клапаном, замерным устройством, фланцем для установки уровнемера. Резервуары подземного расположения могут быть оборудованы технологическими колодцами, резервуары надземного расположения могут быть оборудованы внешней теплоизоляцией и системой электрообогрева.
Структура обозначения резервуаров: ГЭЭ-ХХ, где ХХ - номинальный объем, м3.
Заводской номер в виде арабских цифр, разделенных символом «-», наносится ударным способом на табличку, расположенную на горловине, корпусе или опоре резервуара.
Пломбирование резервуаров не предусмотрено.
Нанесение знака поверки на резервуары не предусмотрено.
® Изготоблечо ООО «САРРЗ»
М П” П” Россия, г, Соротоб ул. Огоробноя. 162
сАРАтоеский РЕЗЕРВУАРНЫЙ ЗАВОД (8452J 25-02-88. WWW socrz ru
НаименованиеМесто нанесения знака утверждения типа
Заказ №
ЗаЬобской №
Расч. йайление, МПа Раб. Забление, МПа Проб, бабление, МПа Обьём, м’
Масса, кг
Марка стали
Рабочая температура, "с
Расчётноя температура стенки, “С
Мин. бопуст. температура поб росчёт, баблением, С Гоб изготобления
Место нанесения заводского номера
Клеймо ОТК
Рисунок 1 - Общий вид (схема) таблички
Рисунок 2 - Общий вид (схема) резервуаров
подземной установки
Таблица 1 -
|
Наименование характеристики |
Значение |
|
Номинальная вместимость, м3 1) |
5, 10, 15, 20, 25, 30, 35, 40, 45, 50, 55, 60, 65, 70, 75, 80, 85, 90, 95, 100, 105, 110, 115, 120, 125, 130, 135, 140, 145, 150 |
|
Пределы допускаемой относительной погрешности определения вместимости, % 1) |
±0,20; ±0,25 |
|
1) Фактическое значение указывается в паспорте резервуара. | |
Таблица 2 - Основные технические
|
Наименование характеристики |
Значение |
|
Рабочее давление, МПа, не более |
1,6 |
|
Условия эксплуатации: | |
|
- температура окружающего воздуха, °С1) |
от -70 до +50 |
|
- атмосферное давление, кПа |
от 84,0 до 106,7 |
|
Расчетный срок службы, лет, не более1) |
40 |
|
Габаритные размеры, мм, не более1): | |
|
- наружный диаметр |
4000 |
|
- длина |
25000 |
|
- высота |
10000 |
|
Масса, кг, не более |
35000 |
|
1) Фактические значения указываются в паспорте резервуара. | |

