Номер по Госреестру СИ: 93729-24
93729-24 Анализаторы сточных вод
(АСВ)
Назначение средства измерений:
Анализаторы сточных вод АСВ (далее - анализаторы) предназначены для измерений следующих характеристик состава и свойств природных, питьевых, технологических, промышленных, сточных вод: рН, массовой концентрации взвешенных веществ, химического потребления кислорода (ХПК).

Внешний вид.
Анализаторы сточных вод
Рисунок № 1

Внешний вид.
Анализаторы сточных вод
Рисунок № 2

Внешний вид.
Анализаторы сточных вод
Рисунок № 3

Внешний вид.
Анализаторы сточных вод
Рисунок № 4

Внешний вид.
Анализаторы сточных вод
Рисунок № 5

Внешний вид.
Анализаторы сточных вод
Рисунок № 6

Внешний вид.
Анализаторы сточных вод
Рисунок № 7

Внешний вид.
Анализаторы сточных вод
Рисунок № 8

Внешний вид.
Анализаторы сточных вод
Рисунок № 9

Внешний вид.
Анализаторы сточных вод
Рисунок № 10
Знак утверждения типа
Знак утверждения типананосится на маркировочную этикетку анализатора и на титульные листы эксплуатационной документации типографским способом либо наклейкой.
Сведения о методиках измерений
Сведения о методиках (методах) измеренийприведены в разделе «Использование по назначению» Руководства по эксплуатации.
Нормативные и технические документы
Нормативные и технические документы, устанавливающие требования к средству измеренийПриказ Росстандарта от 19 февраля 2021 г. № 148 «Об утверждении Государственной поверочной схемы для средств измерений содержания неорганических компонентов в жидких и твердых веществах и материалах»;
Приказ Росстандарта от 9 февраля 2022 г. № 324 «Об утверждении Государственной поверочной схемы для средств измерений показателя рН активности ионов водорода в водных растворах».
ПравообладательАкционерное общество «СИНТЭП» (АО «СИНТЭП»)
ИНН 5410104274
Юридический адрес: 630129, г. Новосибирск, ул. Тайгинская, д. 11, эт. 3
Испытательный центр
ОБЩЕСТВО С ОГРАНИЧЕННОЙ ОТВЕТСТВЕННОСТЬЮ «ЦЕНТР МЕТРОЛОГИИ СЕРТИФИКАЦИИ КАРТЕСТ» (ООО «ЦМС КАРТЕСТ») Адрес: 129323, г. Москва, ул. Сельскохозяйственная, д. 43, стр. 1, помещ. 22 - 25
Принцип работы анализаторов основан на регистрации изменений электрических сигналов, поступающих от измерительных датчиков и зависящих от величины измеряемых показателей, с последующим расчетом значений, характеризующих состав или свойства контролируемой водной среды, с помощью встроенного программного обеспечения.
Измерения рН осуществляются комбинированным электродом с термокомпенсацией, ХПК - фотометрическим методом, при котором фактически определяется коэффициент пропускания исследуемой жидкости в УФ области спектра (на длине волны 254 нм) и интенсивность потока света, рассеянного взвешенными частицами при измерении массовой концентрации взвешенных веществ. Исполнение датчиков -погружные.
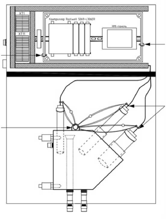
Конструктивно анализаторы состоят из унифицированного блока регистрации и управления (контроллера), измерительных датчиков и накопительной емкости (опционально).
Анализаторы изготавливаются в двух исполнениях:
-
- АСВ - 01 - накопительная емкость с измерительными датчиками размещается в едином корпусе анализатора;
-
- АСВ - 02 - измерительные датчики устанавливаются вне корпуса
(в существующие проточные камеры, трубопроводы, накопительные емкости и т.д.).
Блок регистрации и управления анализаторов исполнений АСВ - 01 и АСВ - 02 имеет два сенсорных табло:
-
- табло на передней панели - дверце содержит световую индикацию подключения к электрической сети, а также отображает текущие результаты измерений;
-
- табло на пульте управления, расположенное внутри, предназначено для градуировки и программирования работы анализатора и задания параметров индикации (норм, границ норм и аварийного выхода).
К блоку регистрации и управления анализатора могут быть подключены другие средства измерений, а также системы коммуникации с внешними системами диспетчеризации и автоматизации. Анализатор может применяться в составе систем автоматического контроля сбросов в водные объекты в части непрерывного автоматического измерения и учета показателей.
В анализаторе предусмотрена возможность передачи накопленной информации на внешний удаленный компьютер (сервер).
На левой боковой панели корпуса анализатора предусмотрены:
-
- вывод от информационного разъёма, выполненного в виде колодки выходных сигналов (цифровой выход Ethernet, цифровой выход RS-485, аналоговый выход «токовая петля» от 4 до 20 мА, реле);
-
- датчик уровня воды (опционально);
-
- входы с внешних устройств (опционально).
Анализаторы выпускаются в настенном исполнении.
Маркировочная этикетка наносится на переднюю панель блока регистрации и управления анализатора методом наклейки. Маркировочная этикетка содержит информацию о наименовании и исполнении анализатора, производителе и заводском номере анализатора. Общий вид маркировочной этикетки представлен на рисунке 1.
Заводской номер анализатора состоит из 4 цифр. Каждый измерительный датчик из состава анализатора также имеет собственный заводской номер, имеющий цифровой или буквенно-цифровой формат. Заводской номер датчика отображен в виде оттиска на бирке, закрепленной на соединительном кабеле, или методом наклейки на корпус датчика, а также приведен в паспорте анализатора.
Общий вид анализатора исполнений АСВ - 01 и АСВ - 02, а также измерительных датчиков представлен на рисунках 2, 3, 4.
Нанесение знака поверки на средство измерений не предусмотрено.
Предусмотрено пломбирование блока регистрации и управления анализатора с помощью проволочной пломбы. Пломбы устанавливаются на корпус блока регистрации и управления анализатора, при необходимости на датчики, для этого на них предусмотрены кольца. Схема пломбировки исполнения в едином корпусе (исполнение АСВ - 01) приведена на рисунке 5. Схема пломбировки исполнения АСВ - 02 приведена на рисунках 6 и 7.
ер», 630192, г. Ноаосмбиро, ул. Тайпажхм,11, *7 (ЗвЗ) 36^43-50, www.slntep.ru Р|411Т0П
КОМПЛЕКСНАЯ АВТОМАТИЗАЦИЯ ЬПП lull
АНАЛИЗАТОР СТОЧНЫХ ВОД АСВ - 01Масса 150 кг. IP 54 Рном. = 200 Вт.
[R[
1809001:2015
Зав. № 0001 Март, 2024 г.
ТУ 26.51.53-013-16565804-2024
СИНТ 425200.0.8.02
Рисунок 1 - Общий вид маркировочной этикетки анализатора



б)
в)
Рисунок 2 - Общий вид датчиков рН (а), взвешенных веществ (б), ХПК (в)
б)
а)
Рисунок 3 - Общий вид анализатора исполнения АСВ - 01 - лицевая панель с закрытой дверцей с маркировочной этикеткой (а), с открытой дверцей (б)
а)
б)
Рисунок 4 - Общий вид анализатора исполнения АСВ - 02 - лицевая панель с закрытой дверцей с маркировочной этикеткой (а), с открытой дверцей (б)
Кольцо на баке для установки пломбы
Место установки пломбы на пластиковый бокс
Кольцо на датчике для установки пломбы
Место установки пломбы на пластиковый бокс
Рисунок 5 - Схема пломбировки анализатора исполнения АСВ - 01
Место установки пломбы на пластиковый бокс
Место установки пломбы на пластиковый бокс
Рисунок 6 - Схема пломбировки анализатора исполнения АСВ - 02
Кольцо на датчике для установки пломбы
Рисунок 7 - С
!
Кольцо на трубопроводе
МагнстральныЙ трубопровод


программным обеспечением (далее - ПО).
Основные функции метрологически значимой части ПО - прием и преобразование первичной измерительной информации, хранение градуировочных характеристик, обработка и отображение текущих результатов измерений, формирование архива по измеряемым и рассчитываемым параметрам, просмотр архива, передача по запросу результатов измерений на внешний удаленный компьютер (сервер), отображение предаварийных и аварийных состояний. Метрологически незначимая часть хранит следующие установки пользователя: форматы отображения результатов, взаимосвязь с другими компонентами системы и др.
Идентификационные данные метрологически значимой части ПО приведены в таблице 1. Уровень защиты ПО от непреднамеренных и преднамеренных изменений соответствует уровню «средний» по Р 50.2.077-2014. Влияние ПО на метрологические характеристики учтено при их нормировании.
Таблица 1 - Идентификационные данные программного обеспечения (ПО)________
Значение
Идентификационные данные
|
Идентификационное наименование ПО |
АСВ |
|
Номер версии ПО |
АСВ-01.ХХХ |
|
Цифровой идентификатор ПО |
- |
|
Примечание - В номере версии неизменяемая часть АСВ-01 отвечает за метрологически значимую часть ПО, метрологически незначимая часть обозначена символами ХХХ и представляет собой цифровые значения от 001 до 999 | |
Таблица 4 - Комплектность
|
Наименование |
Обозначение |
К-во |
|
Анализатор сточных вод |
АСВ |
1 шт. |
|
Сменные части (по дополнительному заказу) |
- |
1 шт. |
|
Монтажный комплект |
- |
1 шт. |
|
Комплект для коммуникации |
- |
1 шт. |
|
Руководство по эксплуатации |
СИНТ 425200.00.8.02-РЭ |
1 экз. |
|
Методика поверки |
- |
1 экз. |
|
Паспорт |
СИНТ 425200.00.8.02-ПС |
1 экз. |
|
Емкость с кронштейном для проведения калибровки и поверки анализатора |
- |
1 шт. |
Таблица 2 - Метрологические характеристики
|
Наименование характеристики |
Значение |
|
Диапазон измерений рН |
от 4,0 до 14,0 |
|
Пределы допускаемой абсолютной погрешности измерений pH |
±0,5 |
|
Диапазон измерений массовой концентрации взвешенных веществ, мг/дм3 |
от 3 до 100 |
|
Пределы допускаемой погрешности измерений массовой концентрации взвешенных веществ, приведенной к верхнему пределу диапазона измерений массовой концентрации взвешенных веществ, % |
±10 |
|
Диапазон измерений ХПК, мг/дм3 |
от 3 до 100 |
|
Пределы допускаемой погрешности измерений ХПК, приведенной к верхнему пределу диапазона измерений ХПК, % |
±10 |
Таблица 3 - Основные технические характеристики
|
Наименование характеристики |
Значение |
|
Габаритные размеры, мм, не более: | |
|
- длина |
600 |
|
- высота |
800 |
|
- ширина |
300 |
|
Масса, кг, не более |
150 |
|
Параметры электрического питания: | |
|
- напряжение постоянного тока, В |
24±1 |
|
Потребляемая мощность, В^А, не более |
200 |
|
Условия эксплуатации: | |
|
- температура окружающей среды, °С |
от +5 до +40 |
|
- относительная влажность, %, не более |
80 |
|
Температура анализируемой пробы, °С |
от +2 до +50 |
|
Степень защиты от внешних воздействий по ГОСТ 14254-2015 |
IP54 |

