Номер по Госреестру СИ: 93953-24
93953-24 Резервуар стальной горизонтальный цилиндрический
(ЕП-12,5-1990-1300)
Назначение средства измерений:
ЕП-12,5-1990-1300
и нефтепродуктов,
Резервуар стальной горизонтальный цилиндрический (далее - резервуар) предназначен для измерений объема нефти а также для их приема, хранения и отпуска.

Внешний вид.
Резервуар стальной горизонтальный цилиндрический
Рисунок № 1

Внешний вид.
Резервуар стальной горизонтальный цилиндрический
Рисунок № 2

Внешний вид.
Резервуар стальной горизонтальный цилиндрический
Рисунок № 3
Знак утверждения типа
Знак утверждения типананосится на титульный лист паспорта резервуара типографским способом.
Сведения о методиках измерений
Сведения о методиках (методах) измерений приведены в пункте 8 паспорта на резервуар.Нормативные и технические документы
Нормативные документы, устанавливающие требования к средству измеренийПриказ Росстандарта от 26 сентября 2022 г. № 2356 «Об утверждении Государственной поверочной схемы для средств измерений массы и объема жидкости в потоке, объема жидкости и вместимости при статических измерениях, массового и объемного расходов жидкости».
ПравообладательОбщество с ограниченной ответственностью «Промет» (ООО «Промет»)
ИНН 9721134818
Юридический адрес: 141420, Московская обл., г.о. Химки, д. Подолино,
Изготовитель
Общество с ограниченной ответственностью «Промет» (ООО «Промет»)ИНН 9721134818
Адрес места осуществления деятельности: Удмуртская Республика, г. Ижевск, ул. Пойма, д. 73
Юридический адрес: 141420, Московская обл., г.о. Химки, д. Подолино, ул. Заречная, д. 36, помещ. 2
Испытательный центр
Общество с ограниченной ответственностью «МетроКонТ» (ООО «МетроКонТ») Адрес места осуществления деятельности: 420036, Республика Татарстан, г. Казань, ул. Тэцевская, д. 4б, помещ. 1011Юридический адрес: 420132, Республика Татарстан, г. Казань, ул. Адоратского, д. 39Б, оф. 51
Телефон: +7 9196969693
E-mail: trifonovua@mail.ru
Правообладатель
Общество с ограниченной ответственностью «Промет» (ООО «Промет»)ИНН 9721134818
Юридический адрес: 141420, Московская обл., г.о. Химки, д. Подолино,
ул. Заречная, д. 36, помещ. 2
Тип резервуара - стальной горизонтальный цилиндрический, номинальной вместимостью 12,5 м3 подземного расположения.
Принцип действия резервуара основан на заполнении его нефтью или нефтепродуктом до определенного уровня, соответствующего заданному значению объема.
Резервуар представляет собой горизонтально расположенный цилиндрический стальной сосуд с днищами.
Заполнение и выдача продукта осуществляется через приемно-раздаточные патрубки.
Заводской номер резервуара в виде цифрового обозначения, состоящий из арабских цифр, нанесен методом сублимации на маркировочную табличку резервуара. Маркировочная табличка крепится к горловине резервуара (рисунок 1).
Резервуар ЕП-12,5-1990-1300 с заводским номером 161 расположен на территории ПСП «Малая Пурга» по адресу: Удмуртская Республика, муниципальный округ Малопургинский район, территория Малопургинская, в 700 м на юго-запад от д. Малая Бодья.
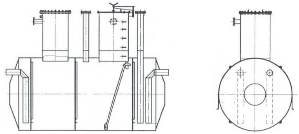
Эскиз общего вида резервуара приведен на рисунке 2. Горловины резервуара ЕП-12,5-1990-1300 приведены на рисунке 3.
Нанесение знака поверки на средство измерений не предусмотрено.
I
''•'ч)ДсЛЬ
■ '«nnj СОСУД! ПО р SJ63e-MU
Рисунок 1 - Маркировочная табличка резервуара
Рисунок 2 - Эскиз общего вида резервуара
Рисунок 3 - Горловины резервуара ЕП-12,5-1990-1300 зав.№ 161
Пломбирование резервуара ЕП-12,5-1990-1300 не предусмотрено.
Таблица 4 - Комплектность
|
Наименование |
Обозначение |
Количество |
|
Резервуар стальной горизонтальный цилиндрический |
ЕП-12,5-1990-1300 |
1 шт. |
|
Паспорт |
- |
1 экз. |
|
Градуировочная таблица |
- |
1 экз. |
Таблица 1 -
|
Наименование характеристики |
Значение |
|
Номинальная вместимость, м3 |
12,5 |
|
Пределы допускаемой относительной погрешности определения вместимости (объемный метод), % |
±0,25 |
Таблица 2 - Технические
|
Наименование характеристики |
Значение |
|
Условия эксплуатации: Температура окружающего воздуха, оС Атмосферное давление, кПа |
от -50 до +50 от 84,0 до 106,7 |
Таблица 3 - Показатели надежности
|
Наименование характеристики |
Значение |
|
Средний срок службы, лет, не менее |
20 |

