Номер по Госреестру СИ: 31924-11
31924-11 Сумматоры электронные многофункциональные для учета электроэнергии
(СЭМ-2)
Назначение средства измерений:
Сумматор электронный многофункциональный для учета электроэнергии СЭМ-2 (в дальнейшем - сумматор) предназначен для измерений, коммерческого и технического учета электроэнергии и мощности непосредственно у потребителей, а также в составе автоматизированных систем централизованного учета и контроля энергоресурсов.

Внешний вид.
Сумматоры электронные многофункциональные для учета электроэнергии
Рисунок № 1

Внешний вид.
Сумматоры электронные многофункциональные для учета электроэнергии
Рисунок № 2
Программное обеспечение
Программное обеспечение сумматора представляет собой программный продукт, реализующий алгоритм работы сумматора в соответствии с его функциональными возможностями.
Сумматор выполняет следующие функции:
- подсчет импульсов, поступающих на 16 входов сумматора ;
- прием информации со счетчиков о потреблении энергии по цифровым интерфейсам;
- вычисление канальных и групповых параметров энергии и мощности;
- накопление и хранение информации;
- передачу информации на верхний уровень системы учета;
- постоянный отсчет времени;
- ведение журнала событий.
Влияние программного обеспечения на результаты вычислений незначительное. Оно обусловлено четырехбайтовым представлением числа в плавающем виде (байт - порядок и 3 байта мантисса) и дискретностью данных, поступающих от счетчиков.
Идентификационные данные программного обеспечения, установленного в сумматоре, приведены в таблице 3.
Таблица 3
|
Наименование программного обеспечения |
Наименование файла |
Номер версии программного обеспечения |
Цифровой идентификатор программного обеспечения (контрольная сумма исполняемого кода) |
Алгоритм вычисления цифрового идентификатора программного обеспечения |
|
Управляющая программа |
b18a_up2_64.bin |
V2.18 |
e024c4e5606adf7779c7f14a 9ea2a882 |
MD5 |
Защита программного обеспечения от непреднамеренных изменений соответствует
уровню C по МИ 3286-2010.
Знак утверждения типа
Знак утверждения типаЗнак утверждения типа наносится типографским способом на переднюю панель сумматора и титульный лист руководства по эксплуатации.
Сведения о методиках измерений
Сведения о методиках (методах) измеренийМетодика измерений на сумматоры электронные многофункциональные для учета электроэнергии СЭМ-2 приведена в руководстве по эксплуатации.
Нормативные и технические документы
Нормативные и технические документы, устанавливающие требования к сумматору
-
- ГОСТ 22261-94 «Средства измерений электрических и магнитных величин. Общие технические условия»;
-
- ГОСТ 18145-81 «Цепи «СТЫК С2» аппаратуры передачи данных с оконечным оборудованием при последовательном вводе-выводе данных. Номенклатура и технические требования».
-
- ТУ РБ 390142973.001-2003 «Сумматор электронный многофункциональный для учета электроэнергии СЭМ-2. Технические условия».
Поверка
Поверкаосуществляется по документу «Сумматор электронный многофункциональный для учета электроэнергии СЭМ-2. Методика поверки МП.ВТ.076-2003», утвержденному РУП «Витебский ЦСМС» в 2003 году.
Перечень основного оборудования, необходимого для поверки:
-
- генератор сигналов низкочастотный Г3-118 EX3.265.029 ТУ;
-
- радиоприемник, принимающий сигналы точного времени.
Изготовитель
УПП «Микрон», г. Витебск,Республика Беларусь, 210015, г. Витебск, проспект Фрунзе, 81.
8 (0212) 37-23-03 - директор
8 (0212) 37-14-98 - сбыт, факс.
Экспертиза проведена ФГУП «ВНИИМС», г. Москва
119361, г. Москва, ул. Озерная, 46.
Тел. 781-86-03; e-mail: dept208@vniims.ru;
Заместитель
Руководителя Федерального агентства по техническому регулированию и метрологии Е.Р. Петросян
Сумматор выпускается в двух исполнениях:
-
- сумматор электронный многофункциональный для учета электроэнергии СЭМ-2 (в дальнейшем - сумматор СЭМ-2) с максимальным количеством каналов учета 16;
-
- сумматор электронный многофункциональный для учета электроэнергии СЭМ-2-01 (в дальнейшем - сумматор СЭМ-2.01) с максимальным количеством каналов учета 64.
Сумматор СЭМ-2 может работать в двух режимах: обычном и сетевом. Режим работы задается внутренним джампером. Сумматор СЭМ-2.01 может работать только в обычном режиме.
Сумматор в обычном режиме используется совместно с первичными преобразователями с импульсными выходами или счетчиками с цифровым интерфейсом RS485, представленными в таблице 1.
В обоих исполнениях из общего количества каналов учета импульсными могут быть максимум 16 каналов.
Первичными преобразователями с импульсными выходами могут быть электронные счетчики с импульсным выходом, индукционные счетчики со встроенными устройствами формирования импульсов или другие суммирующие приборы, вырабатывающие импульсы, соответствующие определенному расходу энергии.
Допускается использовать любые первичные преобразователи, имеющие следующие характеристики:
-
- длительность импульсов, не менее 12 мс;
-
- входной ток в момент импульса, не менее 10 мА;
-
- допустимый ток паузы, не более 1 мА;
- максимальная частота импульсов, не более 10 Гц. Таблица 1
|
№ |
Название средства измерения |
№ Госреестра |
Производитель |
|
1 |
Меркурий-233 |
34196-07 |
ООО «НПК «Инкотекс», г. Москва |
|
2 |
Меркурий-230 |
23345-07 |
ООО «НПК «Инкотекс», г. Москва |
|
3 |
Меркурий-200 |
24410-07 |
ООО «НПК «Инкотекс», г. Москва |
|
4 |
СЭТ4-ТМ.02 СЭТ4-ТМ.03 |
36697-08 |
ФГУП «Нижегородский завод им. Фрунзе», г. Нижний Новгород |
|
5 |
СЭБ-2А.08 |
33137-06 |
ФГУП «Нижегородский завод им. Фрунзе», г. Нижний Новгород |
Сумматор СЭМ-2 в сетевом режиме предназначен для суммирования мощности и энергии, полученной от нескольких сумматоров СЭМ-2 нижнего уровня, работающих в обычном режиме, по коммутируемым телефонным или выделенным линиям связи. Он применяется для получения совмещенного графика мощности и энергии для систем и объектов с удаленными сумматорами СЭМ-2 (более 3 км).
Сумматор рассчитан на круглосуточную работу без технического обслуживания.
Лист № 2 всего листов 6 Сумматор обеспечивает алгебраическое сложение информации, полученной от различных каналов учета, образуя группы учета. Это позволяет производить расчет суммарной активной и реактивной электроэнергии, потребляемой предприятием в обоих направлениях. Набор каналов в группе произвольный, при этом каналы в разных группах могут повторяться.
Максимальное количество групп учета для сумматора СЭМ-2 - 6, для сумматора СЭМ-2.01 - 32.
Сумматор СЭМ-2 обеспечивает выдачу по двум выходным каналам телеметрической информации первой и второй групп учета, что позволяет создавать системы учета с количеством импульсных каналов более 16-ти.
Сумматор обеспечивает двунаправленный обмен информации с ПЭВМ по последовательному интерфейсу типов «СТЫК C2» по ГОСТ 18145 и ИРПС «токовая петля». Опрос сумматора в составе АСКУЭ может производиться с помощью программного пакета «EN-ERGY for WINDOWS» или «EnergyControlCenter», поставляемого по специальному заказу.
Сумматор в обычном режиме обеспечивает выдачу сигналов о достижении заданного получасового лимита потребляемой мощности и сигнализацию наступления пиковой зоны, что позволяет создавать системы учета с автоматическим регулированием мощности в пиковых зонах.
Сумматор обеспечивает сохранение результатов измерений при кратковременном или длительном пропадании питающего напряжения и отсчет времени как при включенном, так и выключенном внешнем питании.
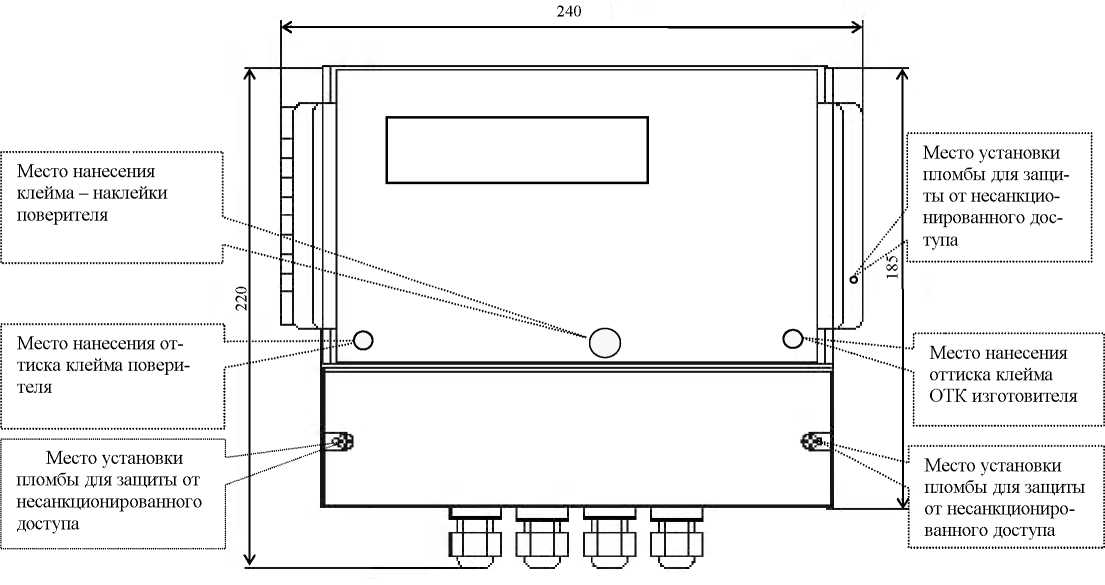
Сумматор обеспечивает защиту от несанкционированного доступа. Схема пломбировки для защиты сумматора и места для нанесения оттисков клейм приведены на рисунке 1.
Рисунок 1 - Схема пломбировки сумматора от несанкционированного доступа и места для нанесения оттисков клейм
Сумматор обеспечивает вычисление параметров по каждой группе учета и вывод на индикацию любого параметра в соответствии с таблицей 2. Индикация возможна только при включенном питании.
Таблица 2
|
Обозначение параметра |
Наименование параметра |
Время обновления |
|
Р1* |
Текущее время Параметры мощности |
1 с |
|
Р20 |
3-минутная (текущая) средняя мощность |
3 мин |
|
Р21 |
Получасовая предыдущая средняя мощность |
30 мин |
|
Р22 |
Получасовая текущая средняя мощность Максимальная получасовая мощность |
3 мин |
|
Р23* |
За предыдущие сутки |
сутки |
|
Р24* |
За предыдущие сутки в утреннем пике |
сутки |
|
Р25* |
За предыдущие сутки в вечернем пике |
сутки |
|
Р26 |
За текущие сутки |
30 мин |
|
Р27 |
За текущие сутки в утреннем пике |
30 мин |
|
Р28 |
За текущие сутки в вечернем пике |
30 мин |
|
Р29* |
За предыдущий месяц |
месяц |
|
Р30* |
За предыдущий месяц в утреннем пике |
месяц |
|
Р31* |
За предыдущий месяц в вечернем пике |
месяц |
|
Р32* |
За текущий месяц |
30 мин** |
|
Р33* |
За текущий месяц в утреннем пике |
30 мин** |
|
Р34* |
За текущий месяц в вечернем пике Параметры энергии |
30 мин** |
|
Р50* |
За предыдущие сутки |
сутки |
|
Р51* |
За предыдущие сутки в пиковых зонах |
сутки |
|
Р52* |
За предыдущие сутки в полупиковой зоне |
сутки |
|
Р53* |
За предыдущие сутки в зоне ночного провала |
сутки |
|
Р54 |
За текущие сутки |
3 мин |
|
Р55 |
За текущие сутки в пиковых зонах |
30 мин |
|
Р56 |
За текущие сутки в полупиковой зоне |
30 мин |
|
Р57 |
За текущие сутки в зоне ночного провала |
30 мин |
|
Р58* |
За предыдущий месяц |
месяц |
|
Р59* |
За предыдущий месяц в пиковых зонах |
месяц |
|
Р60* |
За предыдущий месяц в полупиковой зоне |
месяц |
|
Р61* |
За предыдущий месяц в зоне ночного провала |
месяц |
|
Р62* |
За текущий месяц |
3 мин** |
|
Р63* |
За текущий месяц в пиковых зонах |
30 мин** |
|
Р64* |
За текущий месяц в полупиковой зоне |
30 мин** |
|
Р65* |
За текущий месяц в зоне ночного провала Энергия за предыдущие месяцы |
30 мин** |
|
Р80* |
Целиком |
месяц |
|
Р81* |
В пиковых зонах |
месяц |
|
Р82* |
В полупиковой зоне |
месяц |
|
Р83* |
В зоне ночного провала |
месяц |
* Параметры , доступные для сетевого режима.
** При работе в сетевом режиме время обновления - сутки.
Фотография общего вида сумматора приведена ниже.
- Сумматор электронный многофункциональный для учета электроэнергии СЭМ -2 или сумматор электронный многофункциональный для учета электроэнергии СЭМ-2.01
ВРИБ.411129.001....................................................................................... -1 шт;
-
- комплект ЗИП согласно ВРИБ.411129.001 ЗИ...........................................-1 шт;
-
- методика поверки МП.ВТ.076-2003*...................................................... - 1 шт;
-
- пульт дистанционного управления (ПДУ) ВРИБ.468311.001............................- 1 шт;
-
- упаковка согласно ВРИБ .4111915.001 СБ....................................................-
1 шт.
-
- руководство по эксплуатации ВРИБ.411129.001-01 РЭ....................................- 1 шт
Основные технические характеристики сумматора приведены в таблице 4. Таблица 4
|
Техническая характеристика |
Исполнение сумматора | |
|
сумматор СЭМ-2 |
сумматор СЭМ-2.01 | |
|
Количество входных каналов учета |
16 |
64 |
|
Количество групп учета |
6 |
32 |
|
Количество выходных телеметрических каналов |
2 |
- |
|
Напряжение питания |
от 85 до 250 В, 50 Гц |
от 85 до 250 В, 50 Гц |
|
Максимальная потребляемая мощность |
10 ВА |
10 ВА |
|
Допустимый диапазон температур |
от минус 20 до +55°С |
от минус 20 до +55°С |
|
Средняя наработка на отказ |
не менее 35000 ч |
не менее 35000 ч |
|
Срок службы |
не менее 10 лет |
не менее 10 лет |
|
Масса |
1,5 кг |
1,5 кг |
|
Г абаритные размеры |
(240; 220; 115) мм |
(240; 220; 115) мм |
Пределы допускаемой относительной погрешности при измерении энергии за сутки по каналам сумматора, подключенным к цифровым выходам счетчиков, не более, ± 0,1%.
Пределы допускаемой относительной погрешности преобразования входных цифровых сигналов в именованные единицы ±0,01 %.
Пределы допускаемой относительной погрешности при измерении энергии за сутки по каналам сумматора, подключенным к импульсным выходам счетчиков, включая преобразования входных импульсных сигналов в именованные единицы ± 0,1%.
Пределы допускаемой относительной погрешности при измерении мощности, усредненной на 30-ти минутном интервале для любого измерительного канала сумматора, рассчитываются по следующей формуле:
' KKe • 100%
где
dp - пределы допускаемой относительной погрешности при измерении средней получасовой мощности, в процентах;
dp - пределы допускаемой относительной погрешности сумматора при измерении электроэнергии, в процентах;
К - масштабный коэффициент, равный общему коэффициенту трансформации трансформаторов тока и напряжения;
Ке - внутренняя константа счетчика (величина эквивалентная 1 импульсу, выраженному в Вт^ч);
Тср - интервал усреднения мощности, выраженный в часах;
R - величина измеренной средней мощности на данном интервале усреднения, выраженная в кВт.
Пределы допускаемой относительной погрешности преобразования приращения энергии в выходной импульсный сигнал ±0,1 %.
Примечание - Данная погрешность определяется только для сумматора СЭМ-2.
Абсолютная основная погрешность текущего времени, измеряемого сумматором, не более, ± 1 с в сутки.
Пределы допускаемой погрешности при измерении текущего времени сумматором при воздействии на него рабочей температуры окружающей среды ± 0,3 с/°С в сутки.

