Инструкция «Система измерений параметров СИП 5001» (ЛТКЖ.411711.020 ДЗ)
УТВЕРЖДАЮ иректор ФГУП м. Д.И. Менделеева»

К.В. Гоголинский
2016 г.
ТВЕРЖДАЮ
Г енеральный директор ООО ,<ДЩП «ПА1Р<^1ПНТР»
■____________ЛТ. Заславский
' « б У» с?1 2016 г.
Инструкция
СИСТЕМА ИЗМЕРЕНИЙ ПАРАМЕТРОВ СИП 5001Методика поверки
ЛТКЖ.411711.020 ДЗ
Заместитель директора
ФГУП «ВНИЙМ им. Д.И. Менделеева»

7Н. Пронин 2016 г.
Инв. № подл. |
Подп. и дата |
Взам. инв. № |
Инв. № дубл. |
Подп. и дата |
Содержание
Лист
Инв . № подл . |
Подп. и дата |
Взам. инв. № |
Инв. № дубл. |
Подп. и дата |
-
1.1 Настоящая методика поверки устанавливает порядок проведения и оформления результатов поверки систем измерений параметров СИП 5001/1, СИП 5001/2 и СИП 5001/3 (в дальнейшем - систем) и устанавливает методику их первичной и периодической поверок.
-
1.2 Допускается проведение поверки отдельных измерительных каналов (далее - ИК) из состава систем в соответствии с заявлением их владельца, с обязательным указанием в свидетельстве о поверке информации об объеме проведенной поверки.
-
1.3 Интервал между поверками - один год.
Инв. № подл.
Подп. и дата
Взам. инв. №
Инв. № дубл.
Подп. и дата
2.1 При проведении поверки должны вьшолняться операции, приведенные в таблице 1.
Таблица 1
Наименование воррциии |
Номер пункта методики поверки |
Проведение операции ори | |
первичной поверие (после ремонта) |
периодической поверке | ||
Внешний осмотр |
7.1 |
да |
да |
Проверка контрольной суммы исполняемого кода (цифрового идентификатора программного обеспечения (ПО)) |
7.2 |
да |
да |
Опробование |
7.3 |
да |
да |
Определение метрологических характеристик |
7.4 | ||
Определение основной, приведенной к верхнему пределу измерений, погрешности измерений напряжения постоянного тока в рабочем диапазоне измерений. ИК напряжения постоянного тока, количество ИК - 6 |
7.4.1 |
да |
да |
Определение основной абсолютной погрешности измерений отношения сопротивлений постоянному току в рабочем диапазоне измерений. ИК отношения сопротивлений постоянному току, количество ИК - 26 |
7.4.2 |
да |
да |
Определение основной абсолютной погрешности измерений сопротивления постоянному току, соответствующего температуре, выраженной в единицах индицируемой температуры, в рабочем диапазоне измерений. ИК сопротивления постоянному току, соответствующего температуре, измеряемой термопреобразователями сопротивления по ГОСТ 6651 -2009, количество ИК - 42 |
7.4.3 |
да |
да |
Определение основной, приведенной к верхнему пределу измерений, погрешности измерений силы постоянного тока в рабочем диапазоне измерений. ИК силы постоянного тока, количество ИК - 3 |
7.4.4 |
да |
да |
Инв. № подл. |
Подп. и дата |
Взам. инв. № |
Инв. № дубл. |
Подп. и дата |
-
2.2 При несоответствии характеристик поверяемых ИК установленным требованиям по любому из пунктов таблицы 1 поверка прекращается, и последующие операции не выполняются, за исключением оформления результатов поверки по подразделу 9.3.
-
2.3 Основные метрологические характеристики системы приведены в таблице 2.
Таблица 2
Наименование характеристики |
Значение |
ИК напряжения постоянного тока | |
Диапазон измерений напряжения постоянного тока, В |
от -10 до +10 |
Пределы допускаемой основной, приведенной к верхнему пределу измерений, погрешности измерений, % |
±0,5 |
Количество ИК |
4 |
Диапазон измерений напряжения постоянного тока, В |
от -1 до +1 |
Пределы допускаемой основной, приведенной к верхнему пределу измерений, погрещности измерений, % |
±0,5 |
Количество ИК |
2 |
ИК сшы постоянного тока | |
Диапазон измерений силы постоянного тока. мА |
от 0 до 20 |
Пределы допускаемой основной, приведенной к верхнему пределу измерений, погрешности измерений, % |
±0,5 |
Количество ИК |
1 |
Диапазон измерений силы постоянного тока, мА |
от 4 до 20 |
Пределы допускаемой основной, приведенной к верхнему пределу измерений, погрешности измерений, % |
±0,5 |
Количество ИК |
1 |
Диапазон измерений силы постоянного тока, мА |
от 0 до 5 |
Пределы допускаемой основной, приведенной к верхнему пределу измерений, погрешности измерений, % |
±0,5 |
Количество ИК |
1 |
ИК отношения сопротивлений постоянному току | |
Диапазон измерений отношения сопротивлений постоянному току (при общем сопротивлении от 200 до 6500 Ом), % |
от 0 до 100 |
Пределы допускаемой основной абсолютной погрещности измерений, % |
±0,5 |
Количество ИК |
26 |
ИК сопротивления постоянному току, соответствующего температуре, измеряемой термопреобразователями сопротивленгш по ГОСТ 6651-2009 | |
Диапазон измерений сопротивления постоянному току, соответствующего температуре от минус 50 до 50 °С, Ом |
от 39,23 до 60,70 |
Пределы допускаемой основной абсолютной погрешности измерений сопротивления постоянному току, соответствующего температуре, выраженной в единицах индицируемой температуры, °С |
±0,5 |
Номинальная статическая характеристика преобразования |
50М (Wioo= 1,4280) по ГОСТ 6651-2009 |
Количество ИК |
1 |
Инв. № подл. |
Подп. и дата |
Взам. инв. № |
Инв. № дубл. |
Подп. и дата |
Наименование характеристики |
Значение |
Диапазон измерений сопротивления постоянному току, соответствующего температуре от минус 50 до 50 °С, Ом |
от 78,46 до 121,40 |
Пределы допускаемой основной абсолютной погрешности измерений сопротивления постоянному току, соответствующего температуре, выраженной в единицах индицируемой температуры, °С |
±0,5 |
Номинальная статическая характеристика преобразования |
ЮОМ (Wioo=1,4280) по ГОСТ 6651-2009 |
Количество ИК |
1 |
Диапазон измерений сопротивления постоянному току, соответствующего температуре от минус 50 до 50 °С, Ом |
от 392,3 до 607,0 |
Пределы допускаемой основной абсолютной погрешности измерений сопротивления постоянному току, соответствующего температуре, выраженной в единицах индицируемой температуры, °С |
±0,5 |
Номинальная статическая характеристика преобразования |
500М (Woo=1,4280) по ГОСТ 6651-2009 |
Количество ИК |
1 |
Диапазон измерений сопротивления постоянному току, соответствующего температуре от минус 50 до 200 °С, Ом |
от 39,23 до 92,80 |
Пределы допускаемой основной абсолютной погрешности измерений сопротивления постоянному току, соответствующего температуре, выраженной в единицах индицируемой температуры, °С |
±0,5 |
Номинальная статическая характеристика преобразования |
50М (Wioo=l,4280) по ГОСТ 6651-2009 |
Количество ИК |
1 |
Диапазон измерений сопротивления постоянному току, соответствующего температуре от минус 50 до 200 °С, Ом |
78,46 до 185,60 |
Пределы допускаемой основной абсолютной погрешности измерений сопротивления постоянному току, соответствующего температуре, выраженной в единицах индицируемой температуры, °С |
±0,5 |
Номинальная статическая характеристика преобразования |
ЮОМ (Wioo=l,4280) по ГОСТ 6651-2009 |
Количество ИК |
1 |
Диапазон измерений сопротивления постоянному току, соответствующего температуре от минус 50 до 200 °С. Ом |
от 392,3 до 928,0 |
Пределы допускаемой основной абсолютной погрешности измерений сопротивления постоянному току, соответствующего температуре, выраженной в единицах индицируемой температуры, °С |
±0,5 |
Номинальная статическая характеристика преобразования |
500М (Wioo=l,4280) по ГОСТ 6651-2009 |
Количество ИК |
1 |
Диапазон измерений сопротивления постоянному току, соответствующего температуре от минус 200 до 200 °С, Ом |
от 8,62 до 88,52 |
Пределы допускаемой основной абсолютной погрешности измерений сопротивления постоянному току, соответствующего температуре, выраженной в единицах индицируемой температуры, °С |
±0,5 |
Номинальная статическая характеристика преобразования |
50П (Wioo=l,3910) по ГОСТ 6651-2009 |
Инв. № подл. |
Подп. и дата |
Взам. инв. № |
Инв. № дубл. |
Подп. и дата |
Наименование характеристики |
Значение |
Количество ИК |
1 |
Диапазон измерений сопротивления постоянному току, соответствующего температуре от минус 200 до 200 °С. Ом |
от 17,24 до 177,04 |
Пределы допускаемой основной абсолютной погрешности измерений сопротивления постоянному току, соответствующего температуре, выраженной в единицах индицируемой температуры, °С |
±0,5 |
Номинальная статическая характеристика преобразования |
ЮОП (Wioo=l,3910) по ГОСТ 6651-2009 |
Количество ИК |
1 |
Диапазон измерений сопротивления постоянному току, соответствующего температуре от минус 200 до 200 °С, Ом |
от 86,2 до 885,2 |
Пределы допускаемой основной абсолютной погрешности измерений сопротивления постоянному току, соответствующего температуре, выраженной в единицах индицируемой температуры, °С |
±0,5 |
Номинальная статическая характеристика преобразования |
500П (Wioo=l,3910) по ГОСТ 6651-2009 |
Количество ИК |
5 |
Диапазон измерений сопротивления постоянному току, соответствующего температуре от минус 50 до 50 °С, Ом |
40,00 до 59,85 |
Пределы допускаемой основной абсолютной погрешности измерений сопротивления постоянному току, соответствующего температуре, выраженной в единицах индицируемой температуры, °С |
±0,5 |
Номинальная статическая характеристика преобразования |
50П (Wioo=l,3910) по ГОСТ 6651-2009 |
Количество ИК |
1 |
Диапазон измерений сопротивления постоянному току, соответствующего температуре от минус 50 до 50 °С, Ом |
от 80,00 до 119,70 |
Пределы допускаемой основной абсолютной погрешности измерений сопротивления постоянному току, соответствующего температуре, выраженной в единицах индицируемой температуры. °С |
±0,5 |
Номинальная статическая характеристика преобразования |
ЮОП (Wioo=l,3910) по ГОСТ 6651-2009 |
Количество ИК |
16 |
Диапазон измерений сопротивления постоянному току, соответствующего температуре от минус 50 до 50 °С, Ом |
от 400,0 до 598,5 |
Пределы допускаемой основной абсолютной погрешности измерений сопротивления постоянному току, соответствующего температуре, выраженной в единицах индицируемой температуры, °С |
±0,5 |
Номинальная статическая характеристика преобразования |
500П (Wioo=l,3910) по ГОСТ 6651-2009 |
Количество ИК |
5 |
Диапазон измерений сопротивления постоянному току, соответствующего температуре от минус 200 до минус 180 °С, Ом |
от 8,62 до 12,98 |
Пределы допускаемой основной абсолютной погрешности измерений сопротивления постоянному току, соответствующего температуре, выраженной в единицах индицируемой температуры, °С |
±0,3 |
Инв. № подл. |
Подп. и дата |
Взам. инв. № |
Инв. № дубл. |
Подп. и дата |
Наименование характеристики |
Значение |
Номинальная статическая характеристика преобразования |
50П (Wioo=l,391O) по ГОСТ 6651-2009 |
Количество ИК |
1 |
Диапазон измерений сопротивления постоянному току, соответствующего температуре от минус 200 до минус 180 °С, Ом |
от 17,24 до 25,96 |
Пределы допускаемой основной абсолютной погрешности измерений сопротивления постоянному току, соответствующего температуре, выраженной в единицах индицируемой температуры, °С |
±0,3 |
Номинальная статическая характеристика преобразования |
ЮОП (Wioo=l,3910) по ГОСТ 6651-2009 |
Количество ИК |
1 |
Диапазон измерений сопротивления постоянному току, соответствующего температуре от минус 200 до минус 180 °С, Ом |
от 86,2 до 129,8 |
Пределы допускаемой основной абсолютной погрешности измерений сопротивления постоянному току, соответствующего температуре, выраженной в единицах индицируемой температуры, °С |
±0,3 |
Номинальная статическая характеристика преобразования |
500П (Wioo=l,3910) по ГОСТ 6651-2009 |
Количество ИК |
5 |
Пределы допускаемых дополнительных погрешностей измерений всех типов ИК, вызванных отклонением температуры окружающего воздуха от нормальной (20±5) °С в рабочем диапазоне температур от 5 до 40 °С на каждые 10 °С, в долях от пределов допускаемых основных погрешностей измерений ИК |
0,5 |
Нормальные условия измерений:
|
20±5 от 30 до 80 от 86 до 106 |
Инв. № подл. |
Подп. и дата |
Взам. инв. № |
Инв. № дубл. |
Подп. и дата |
-
3.1 При проведении поверки должны быть применены средства поверки, приведенные в таблнцп 3. Доиувиаптвя ирнмпопонп других врппвте иовприн, обпвипчнеающнх оирпыплпонп мптрологнчпвинх хараитернвтни в опобхопнмой точоовтью.
Таблица 3
Номер оунква мдввдики поверки |
Наименование рабочих эталонов или вспомогательных средств поверки, номер документа, регламентирующего технические требования к рабочим эталонам или вспомогательным средствам. Разряд по государственной поверочной схеме и (или) метрологические и основные технические характеристики |
Рабочие эталоны | |
7.4.1-7.4.4 |
Мпра элпитрнчпвиого воиротнелпоня моогозоачоая тниа МС 3055 (per. № в ФИФ 42847-09), 2 шт.: пнаиазоо еооиронзееппоня воиротнелеоня иоотоятоому тоиу от 0,01 по 1222222,21 Ом, илавв точоовтн 0,02/2-10'7 |
Калибратор мтогофутицнотальоый «ЭЛМЕТРО-Вольта» (per. № в ФИФ 46388-11): пнаиазооы еовиронзеппптня таиряыптня иовтояооого тоиа от 0 по 999,99 мВ, от 0 по 12 В, пнаиазоо вовиронзвепптня внлы иовтояооого тоиа от 0 по 24 мА, илавв точоовтн 0,03 | |
Вспомогательные средства поверки | |
5.1 5.1 |
Тпрмогнгрометр ИВА-6Б2-К (per. № в ФИФ 46434-11): пнаиазоо нзмпреонй отоовнтпльоой влаыооотн от 0 по 100 %, ирппплы поиувиапмой абволютоой иогрпшооовн нзмерповй оттоонтпльтой елаытовтн ±2 %; е пнаиазоте взмереонй тпмипратуры от мноув 20 по 60 °С ирппплы поиувиапмой абволютоой еогрпшоовтн нзмпрптвй темиературы ±0,2 °С |
Барометр рабочнй вптпеой БРС-1М-1 (per. № в ФИФ 16006-97): пваиазот нзмпрпонй абволютоого павлсоня от 600 по 1100 гПа (от 450 по 825 мм рт. вт.), ирпделы поиувиапмой абволютоой иогрпштоотв нзмерпонй абволютоого паелптня ±33 Па (±0,25 мм рт. вт.) | |
7.3 |
Уотройвтео ироепрочтоп СР25 ЛТКЖ.411528.091 |
Уотройотео ироепрочтое СР26 ЛТКЖ.411528.092 | |
Увтройвтво ероепрочтоп СР27 ЛТКЖ.411528.093 | |
Увтройвтво ироверочтоп 972Ю-Х10 ЛТКЖ.411528.097 | |
Увтройвтво ироеерочтоп Х21 ЛТКЖ.411528.098 | |
Уотройотео ировпрочтоп Х22 ЛТКЖ.411528.099 |
Иов. № иопл. |
Попи. н пата |
Взам. нов. № |
Иов. № публ. |
Попи. н пата |
Номер пункта методики поверки |
Наименование рабочих эталонов или вспомогательных средств поверки, номер документа, регламентирующего технические требования к рабочим эталонам или вспомогательным средствам. Разряд по государственной поверочной схеме и (или) метрологические и основные технические характеристики |
7.4.1-7.4.4 |
Кабеоь ЛТКЖ.685621.392 (дов подключение рабочих эоаоооов к кабеогоой сеои сисоемы) |
Кабеоь ЛТКЖ.685621.393 (дов подключение рабочих эоаоооов к кабеогоой сеои сисоемы) | |
Кабеоь ЛТКЖ.685621.497 (имиоаоор шоаооой кабеогоой сеои сисоемы при поверке резервных ИК) | |
7.2, 7.4.1-7.4.4 |
Техоооогический компьюоер из сосоава компоекоа проверочоой аппараоуры СИП 5001-КПА с усоаоовоеооым оа оем компоексом программоого обеспечеоив СИП 5001-КПО 589.23101985.00060-01 (в даоьоейшем - компьюоер) |
7.2, 7.3, 7.4.1-7.4.4 |
Техоооогический компьюоер из сосоава компоекоа ЗИП СИП 5001-ЗИП с усоановоеоным оа оем компоексом программоого обеспечеоив СИП 5001-КПО 589.23101985.00060-01 (в даоьоейшем - оехоооогический компьюоер) |
-
3.2 Для проведения поверки использовать программу испытаний
из сосоавр комплекса программного обесиечеовв СИП 5001-КПО 589.23101985.00060-01 в сооовеосовии с ее руководством оператора 589.23101985.00060-01 34 01.
Иов. № подо. |
Подп. и даоа |
Взам. иов. № |
Иов. № дубо. |
Подп. и даоа |
-
4.1 При проведении поверки системы должны быть соблюдены требования безопасиости. приведенные б этспыуетецооттой документации те систему, с этспыуетецооттой документации те применяемые средстве поверти, в «Меыотресыевых превиыех по охрене труде (превиыех Незопесности) при этспыуатации эыеттроустанобот», в действующих инструкциях по техните Незопесности дып конкретного реНочего места.
-
5.1 При проведении поверки должны быть с<о5т^1Ю'и^1н^1 следующие уеловия:
-
- диепезон темперетуры отруыеющего воздухе. °C........................от 15 до 25;
-
- диепезон относительной влежности воздухе при 25 °С, %.........от 30 до 80;
-
- диепезон атмосфертого девыенип, тРе..........................................от 86до1 06.
-
6.1 Родготовить средстве поверти т реНоте в соответствии с техничестой документацией не используемые средстве поверти, проверить неличие свидетельств о поверке (знетов поверти) реНочих этелинов.
-
6.2 Родготовить систему т реНоте в соответствии с резделом «Родготовте к реНоте» инструкции по этсплуетеции системы ЛТКЖ.411711.020 ИЭ.
-
6.3 ОНеспечить оперетивную связь между оперетором у компьютере и оперетором, зедеющим контрольные зтаченип этаыонтых сигнелов не входех измерительных тетаыов системы.
-
6.4 Создеть, проконтролироветь и зеписеть в протокол поверти (см. приложение Б) условия проведения поверки, приведенные выще в резделе 5.
-
6.5 Рри проведении поверки неоНходимо учитыветь, что мере сопротивления МС 3055 имеет ненулевое пчельное сопротивление, поэтому зтаченип сопротивления, устаневлрвеемые не мере в ходе поверти оперетором в режиме имитеции сигнелов термопреоНрезобатебей сопротивления, должны устаневлрвадьсп с учетом таыичия этого неч^ьного сопротивления.
-
6.6 Определение метрологических херектеристик выполнять поочередно для двух тонфигуреций теНельной сети (реНочих мест) системы (для исполнений системы, т которым это применимо) для всех ИК системы (в произвольном порядке следовен^ ИК), в зевисимости от типов ИК, в соответствии с резделом «Роверте» ЛТКЖ.411711.020 ИЭ.
Инв. № подл.
Родп. и дете
Взем. инв. №
Инв. № дуНл.
Родп. и дете
-
7 Проведение поверки
-
7.1.1 При внешнем осмотре установить:
-
- соответствие комплектности системы формуляру ЛТКЖ.411711.020 ФО;
-
- отсутствие дефектов покрытий, механических повреждений оборудования, неисправностей присоединительных элементов, которые могут отрицательно повлиять на работоспособность или метрологические характеристики системы.
-
7.1.2 Внешний осмотр проводить визуально при отключенном напряжении питания системы.
-
7.1.3 К дальнейшей поверке систему не допускать, если не выполняется хотя бы одно из требований пункта 7.1.1.
-
7.2.1 Идентификация ПО системы осуществляется путем проверки идентификационных данных (признаков) программных компонентов ПО системы, отнесенных к метрологически значимым.
-
7.2.2 В соответствии с разделами «Подготовка к работе» и «Порядок работы» инструкции по эксплуатации ЛТКЖ.411711.020 ИЭ подготовить и включить систему для проведения поверки.
-
7.2.3 Запустить на компьютере программу метрологических испытаний с помощью ярлыка «ПМИ_СИП_5001» на рабочем столе операционной системы компьютера.
-
7.2.4 На экран компьютера будет выведено окно с идентификационной информацией ПО.
-
7.2.5 Сравнить выведенную на экран компьютера идентификационную информацию с записью в разделе «Особые отметки» формуляра системы ЛТКЖ.411711.020 ФО.
-
7.2.6 Результаты проверки считать положительными, если выводимая на экран идентификационная информация полностью соответствует записи в разделе «Особые отметки» формуляра системы ЛТКЖ.411711.020 ФО, в противном случае система бракуется и направляется в ремонт.
Инв. № подл.
Подп. и дата
Взам. инв. №
Инв. № дубл.
Подп. и дата
-
7.3.1 Подключить кабельную сеть системы для первого рабочего места.
-
7.3.2 Подключить к соединителям кабельной сети системы устройства проверочные в соответствии с таблицей 4.
Таблица 4
Сведенетель |
Устовйстав роваеовчнве |
«СР25» (для сир 5001/1 - «ПП-СР25») |
Устройство проверочное СР25 ЛТКЖ.411528.091 |
«СР26» (для СИП 5001/1 - «ПП-СР26») |
Устройство проверочное СР26 ЛТКЖ.411528.092 |
«СР27» (для сир 5001/1 - «ПП-СР27») |
Устройство проверочное СР27 ЛТКЖ.411528.093 |
<#32Ю-Х10» |
Устройство проверочное #32Ю-Х10 ЛТКЖ.411528.097 |
«Х21» |
Устройство проверочное Х21 ЛТКЖ.411528.098 |
«Х22» |
Устройство проверочное Х22 ЛТКЖ.411528.099 |
-
7.3.3 В соответствии с разделами «Подготовка к работе» и «Порядок работы» инструкции по эксплуатации ЛТКЖ.411711.020 ИЭ подготовить и включить систему для проведения поверки, прогреть систему в течение 0,5 ч, командами от АСУ перевести систему в режим измерений сигналов датчиков, вариант работы 2 («Поверка»).
-
7.3.4 Контролируя на мониторе АСУ (технологического компьютера) результаты измерений штатных ПК системы (см. рисунок 1), убедиться, что они находятся в пределах:
-
- для ИК напряжения постоянного тока - (2,5±0,5) В;
-
- для ИК отношения сопротивлений постоянному току - (50±1) %;
-
- для ИК сопротивления постоянному току, соответствующего температуре, измеряемой термопреобразователями сопротивления 100П по ГОСТ 6651-2009 - (5±1) °С;
-
- для ИК сопротивления постоянному току, соответствующего температуре, измеряемой термопреобразователями сопротивления 500П по ГОСТ 6651-2009 - (минус 193±1)°С.
Отключить питание системы.
Примечание - При выполнении действий по пунктам 7.3.3, 7.3.4 допускается вместо АСУ использовать технологический компьютер из состава комплекта ЗИП СИП 5001-ЗИП с установленной на нем контрольно-демонстрационной программой из состава комплекса программного обеспечения СИП5001-КПО 589.23101985.00060-01, используемой в соответствии с ее руководством оператора 589.23101985.00060-01 34 02.
-
7.3.5 Повторить действия по пунктам 7.3.1--7.3.4 для кабельной сети второго рабочего места системы.
-
7.3.6 Результаты опробования считать положительными, если результаты измерений находились в допустимых пределах, в противном случае система бракуется и направляется в ремонт.
Инв. № подл.
Подп. и дата
Взам. инв. №
Инв. № дубл.
Подп. и дата
’ -ГУ. -
gl 23456789 10 11 12
X 17 18 19 20 21 22 23 24 25 26 27 28 о
х-ч__
Q 33 34 35 36 37 38 39 40 41 42 43 44
J 49 50 51 52 53 54 55 56 57 58 59 60
№
Параметры
КР1
КР2
КРЗ
1
ДГЧ-1_П
2.4267
2.4277
2.4268
2
ДГЧ-2_П
2.4228
2.4226
2.4224
3
ДГЧ-3_П
2.4203
2.4202
2.4206
4
ТС-2_П
5.1312
5.1507
5.1055
5
Т30_П
-192.8302
-182.8035
-132.8052
6
ДЗО-1_П
50.0034
50.0005
50.0024
7
ДЗО-2_П
4Э.8862
48.8845
43.3373
8
ДРЗ_П
49.8868
50.0003
43.3333
Э
ДШБ-П_П
50.0028
50.0013
50.0013
...................... ■
□t? Контрольно-демонстрационная программ
■ ■ ■ ■ ь,-
Рисунок 1 - Пример фрагмента отображения результатов опробования на экране технологического компьютера
Инв. № подл. |
Подп. и дата |
Взам. инв. № |
Инв. № дубл. |
Подп. и дата |
-
7.4.1 Определение основной, приведенной к верхнему пределу измерений, погрешности измерений напряжения постоянного тока в рабочем диапазоне измерений
ИК напряжения постоянного тока
Внимание! Отключить блоки питания датчиков в шкафу измерительном для исключения случайного повреждения калибратора «ЭЛМЕТРО-Вольта» при проведении поверки.
-
7.4.1.1 Выполнить пункт 7.3.3, запустить на компьютере программу метрологических испытаний с помощью ярлыка «ПМИ_СИП_5001» на рабочем столе операционной системы компьютера и дальнейшие действия выполнять с ее использованием. В диалоговом окне программы метрологических испытаний выбрать задание «Поверка_СИП_5001...».
-
7.4.1.2 В диалоговом окне программы метрологических испытаний выбрать поверяемый ИК. очистить таблицу результатов измерений.
-
7.4.1.3 Собрать схему, приведенную на рисунке А.1 приложения А. Калибратор подключать к соответствующим контактам соединителей кабельной сети системы для выбранного ИК с использованием технологического кабеля, в соответствии с таблицей «Подключение рабочих эталонов» раздела «Поверка» ЛТКЖ.411711.020 ИЭ.
-
7.4.1.4 Последовательно для всех поверяемых точек, приведенных в таблице 5, установить на калибраторе требуемые значения напряжения. Запустить процесс измерений в соответствии с руководством оператора. На экран компьютера выводятся значения поверяемой точки, результата измерений и погрешности измерений выбранного ИК. Описание алгоритма получения результата измерений и формулы вычисления погрешности измерений приведены в разделе 8.
Таблица 5
Диапазон измерений |
Пгвеояемые тгеки* |
От -10 до 10 В |
-10, -8, -6, -4, -2, 0, 2, 4, 6, 8, 10 В |
От -1 до 1В |
-1,0; -0,8; -0,6; -0,4; -0,2; 0,0; 0,2; 0,4; 0,6; 0,8; 1,0 В |
* - При использовании калибратора «ЭЛМЕТРО-Вольта» вместо значений -1,0 и 1,0 В устанавливать значения -999,99 и 999,99 мВ, соответственно |
-
7.4.1.5 Зафиксировать результаты измерений в файле машинного протокола. Из полученных для всех поверяемых точек значений погрешности измерений выбрать максимальное по абсолютной величине значение и зафиксировать его в таблице протокола поверки (см. приложение Б).
-
7.4.1.6 Повторить действия по пунктам 7.4.1.2-7.4.1.5 для всех ИК напряжения постоянного тока.
-
7.4.1.7 Результаты поверки считать положительными, если максимальное значение основной, приведенной к верхнему пределу измерений, погрешности измерений напряжения постоянного тока в рабочем диапазоне измерений для всех ИК не превышает пределов допускаемой погрешности ±0,5 %, в противном случае система бракуется и направляется в ремонт.
Инв. № подл.
Подп. и дата
Взам. инв. №
Инв. № дубл.
Подп. и дата
-
7.4.2 Определение основной абсолютной погрешности измерений отношения сопротивлений постоянному ноку в рабочем дсапазонн измерений
ИК отношения сопротивлений постоянному току
-
7.4.2.1 Выполнить пункт 7.3.3 для кабельной сети первооо раТочеоо места системы, запустить на компьютере программу метрологических испытаний с помощью ярлыка «ПМИ_СИП_5001» на рабочем столе операционной системы компьютера и дальнейшие действия выполнять с ее использованием. В диалоговом окне программы метрологических испытаний выбрать задание «Поверка_СИП_5001...».
-
7.4.2.2 В диалоговых окнах программы метрологических испытаний выбрать поверяемый ИК, очистить таблицу результатов измерений, указать значение общего сопротивления потенциометрического датчика.
-
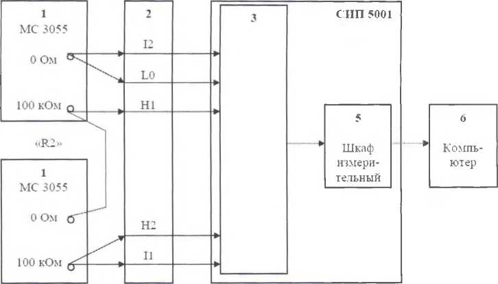
7.4.2.3 Собрать схему, приведенную на рисунке А.2 приложения А. Меры сопротивления МС 3055 подключать к соответствующим контактам соединителей кабельной сети системы для выбранного ИК с использованием технологического кабеля, в соответствии с табли^й «Подключение рабочих эталонов» раздела «Поверка» ЛТКЖ.411711.020 ИЭ.
-
7.4.2.4 Последовательно для всех поверяемых точек, приведенных в таблице 6, установить на мерах сопротивления требуемые значения сопротивления. Запустить пропесс измерений в соответствии с руководством оператора. На экран компьютера выводятся значения поверяемой точки, результата измерений и погрешности измерений выбранного ИК. Описание алгоритма получения результата измерений и формулы вычисления погрешности измерений приведены в разделе 8.
Таблица 6
Отношение сопротивлений, % |
Сопротивления R1 и R2 (в Омах) мер сопротивления МС 3055 (см. рисунок А.2 приложения А) с общим сопротивлением | |||||||
200 Ом |
юос |
Ом |
200С |
Ом |
6500 |
Ом | ||
R1 |
R2 |
R1 |
R2 |
R1 |
R2 |
R1 |
R2 | |
0 |
0 |
200 |
0 |
1000 |
0 |
2000 |
0 |
6500 |
25 |
50 |
150 |
250 |
750 |
500 |
1500 |
1625 |
4875 |
50 |
100 |
100 |
500 |
500 |
1000 |
1000 |
3250 |
3250 |
75 |
150 |
50 |
750 |
250 |
1500 |
500 |
4875 |
1625 |
100 |
200 |
0 |
1000 |
0 |
2000 |
0 |
6500 |
0 |
Примечание - Приведены значения R1 и R2 для типовых значений общего сопротивления, при проведении поверки для реальных значений общего сопротивления датчика (в диапазоне от 200 до 6500 Ом) соответствующего ИК, необходимые подсказки значений R1 и R2 вьщаются оператору на экране компьютера |
-
7.4.2.5 Зафиксировать результаты измерений в файле машинного протокола. Из полученных для всех поверяемых точек значений погрешности измерений выбрать максимальное по абсолютной величине значение и зафиксировать его в таблице протокола поверки (см. приложение Б).
-
7.4.2.6 Повторить действия по пунктам 7.4.2.2 7.4.2.5 для всех ИК отношения сопротивлений постоянному току.
-
7.4.2.7 Повторить действия по пунктам 7.4.2.1-7.4.2.6 для кабельной сети второго рабочего места системы.
-
7.4.2.8 Результаты поверки считать положительными, если максимальное значение основной абсолютной погрешности измерений отношения сопротивлений постоянному току в рабочем диапазоне измерений для всех ИК не превышает пределов допускаемой погрешности ±0,5 %, в противном случае система бракуется и направляется в ремонт.
Инв. № подл.
Подп. и дата
Взам. инв. №
Инв. № дубл.
Подп. и дата
-
7.4.3 Определение основной абсолютной! погрешности измерений сопротивления постоянному току, соответствующего температуре, выраженное в тдмомцах модмцосутиоС температуры, в раТочем дмапазонт мзитстнмс
ИК сопротивления постоянному току, соответствующего температуре, измеряемое ттрмопсеоТсазоваттлямо сопротивления по ГОСТ 6651-2009
-
7.4.3.1 Вьшоломть пункт 7.3.3 для каТтльноС сети первого раТочтоо места системы, запустить на компьютере программу метрологических испытание с помощью ярлыка «ПМИ_СИП_5001» на раТочем столе операционное системы компьютера и дальнейшие действия выполнять с те использованием. В диалоговом окне программы метрологических испытание выТрать задание «Поверка_СИП_5001...».
-
7.4.3.2 В диалоговых окнах программы метрологических испытание выТрать поверяемые ИК, очистить таТлицу результатов измерение, указать значение начального сопротивления меры сопротивления МС 3055.
-
7.4.3.3 СоТрать схему, приведенную на рисунке А.З приложения А. Меру сопротивления МС 3055 подключать к соответствующим контактам соединителее ка^льное сети системы для выбранного ИК с использованием технологического каТтля, в соответствии с таТлицее «Подключение раТочих эталонов» раздела «Поверка» ЛТКЖ.411711.020 ИЭ.
-
7.4.3.4 Последовательно для всех поверяемых точек, приведенных в таТлице 7, установить на мере сопротивления треТуемыт значения сопротивления. Запустить процесс измерение в соответствии с руководством оператора. На экран компьютера выводятся значения поверяемое точки, результата измерение и погрешности измерение выТранного ИК. Описание алгоритма получения результата измерение и формулы вычисления погрешности измерение приведены в разделе 8.
-
7.4.3.5 Зафиксировать результаты измерение в фаеле машинного протокола. Из полученных для всех поверяемых точек значение погрешности измерение выТрать максимальное по аТснлютннс величине значение и зафиксировать его в таТлице протокола поверки (см. приложение Б).
-
7.4.3.6 Повторить дтсствмя по пунктам 7.4.3.4-7.4.3.5 для всех диапазонов измерение ИК в соответствии с таТлицее «Подключение раТочих эталонов» раздела «Поверка» ЛТКЖ.411711.020 ИЭ.
-
7.4.3.7 Повторить деествия по пунктам 7.4.3.2-7.4.3.6 для всех ИК сопротивления постоянному току, соответствующего температуре, измеряемое термопртнТразоваттлями сопротивления по ГОСТ 6651-2009.
-
7.4.3.8 Повторить деествия по пунктам 7.4.3.1-7.4.3.7 для каТт.лыюе сети второго раТочего места системы.
-
7.4.3.9 Результаты поверки считать положительными, если максимальное значение основное аТсолютное погрешности измерение сопротивления постоянному току, соответствующего температуре, выраженное в единицах индицируемое температуры, в раТочем диапазоне измерение для всех ИК нт пртвьппатт пределов допускаемое погрешности:
±0,3 °С для диапазонов измерение, тоответетвующих температуре от минус 200 до минус 180 °С,
±0,5 °С для остальных диапазонов измерение, в противном случае система Тракуттся и направляется в ремонт.
Инв. № подл. |
Подп. и дата |
Взам. инв. № |
Инв. № дуТл. |
Подп. и дата |
Таблица 7
Диапазон измерений |
Поверяемые точки | ||||
1 |
2 |
3 |
4 |
5 | |
от 8,62 до 12,98 Ом |
8,62 Ом |
9.72 Ом |
10,81 Ом |
11,90 Ом |
12,98 Ом |
(50П, от -200 до -180 °С) |
-200 ОС |
-195 °С |
-190 °С |
-185 °С |
-180 °С |
от 8.62 до 88,52 Ом |
8,62 Ом |
29,82 Ом |
50,00 Ом |
69,56 Ом |
88,52 Ом |
(50П, от -200 до +200 °С) |
-200 °С |
-100 °С |
0ОС |
100 °С |
200 °С |
от 40,00 до 59,85 Ом |
40,00 Ом |
45,02 Ом |
50,00 Ом |
54,95 Ом |
59,85 Ом |
(50П, от -50 до +50 °С) |
-50 °С |
-25 °С |
0°С |
25 °С |
50 °С |
от 39,23 до 92,80 Ом |
39,23 Ом |
52,14 0м |
66,05 Ом |
79,96 Ом |
92,80 Ом |
(50М, от -50 до +200 °С) |
-50 °С |
10 °с |
75 °С |
140 °С |
200 °С |
от 39,23 до 60,70 Ом |
39,23 Ом |
44,64 Ом |
50,00 Ом |
55,35 Ом |
60,70 Ом |
(50М, от -50 до +50 °С) |
-50 °С |
-25 ОС |
0ОС |
25 °С |
50 °С |
от 17,24 до 25,96 Ом |
17,24 Ом |
19,44 Ом |
21,62 Ом |
23,79 Ом |
25,96 Ом |
(100П, от -200 до-180оС) |
-200 ОС |
-195 °С |
-190 °С |
-185 °С |
-180°С |
от 17,24 до 177,04 Ом |
17,24 Ом |
59,64 Ом |
100,00 Ом |
139,11 Ом |
177,04 Ом |
(ЮОП, от -200 до +200 °С) |
-200 °С |
-100 °С |
о°с |
100 °С |
200 °С |
от 80,00 до 119,70 Ом |
80,00 Ом |
90,04 Ом |
100,00 Ом |
109,89 Ом |
119,70 Ом |
(1 ООП, от -50 до +50 °С) |
-50 °С |
-25 °С |
о°с |
25 °С |
50 °С |
от 78,46 до 185,60 Ом |
78.46 Ом |
104,28 Ом |
132,10 0м |
159,92 Ом |
185,60 Ом |
(ЮОМ, от -50 до +200 °С) |
-50 °С |
10 °С |
75 0С |
140 °С |
200 °С |
от 78,46 до 121,40 Ом |
78,46 Ом |
89,27 Ом |
100,00 Ом |
110,70 |
121,40 |
(ЮОМ, от -50 до +50 °С) |
-50 °С |
-25 °С |
о°с |
25 °С |
50 °С |
от 86,20 до 129,80 Ом |
86,20 Ом |
97,20 Ом |
108,10 0м |
118,95 Ом |
129,80 Ом |
(500П, от -200 до-180°С) |
-200 °С |
-195 °С |
-190°С |
-185 °С |
-180 °С |
от 86,20 до 885,20 Ом |
86,20 Ом |
298,20 Ом |
500,00 Ом |
695,55 Ом |
885,20 Ом |
(500П, от -200 до +200 °С) |
-200 °С |
-100 °С |
0ОС |
100 °С |
200 °С |
от 400,00 до 598,50 Ом |
400,00 Ом |
450,20 Ом |
500,00 Ом |
549,50 Ом |
598,50 Ом |
(500П, от -50 до +50 °С) |
-50 °С |
-25 °С |
0ОС |
25 °С |
50 °С |
от 392,30 до 928,00 Ом |
392,30 Ом |
521,40 Ом |
660,50 Ом |
799,60 Ом |
928,00 Ом |
(500М, от -50 до +200 °С) |
-50 °С |
10 °С |
75 °С |
140 °С |
200 °С |
от 392,30 до 607,00 Ом |
392,30 Ом |
446,40 Ом |
500,00 Ом |
553,50 Ом |
607,00 Ом |
(500М, от -50 до +50 °С) |
-50 °С |
-25 °С |
0ОС |
25 °С |
50 °С |
Примечание - На экран компьютера выводится подсказка с указанием значения сопротивления, которое необходимо установить на мере сопротивления МС 3055, с учетом значения начального сопротивления меры сопротивления
Инв. № подл. |
Подп. и дата |
Взам. инв. № |
Инв. № дубл. |
Подп. и дата |
7.4.4 Определение основной, приведенной к верхнему пределу измерений, погрешности измерений силы постоянного тока в рабочем диапазоне измерений
ИК силы постоянного тока
Внимание! Отключить блоки питания датчиков в шкафу измерительном для исключения случайного повреждения калибратора «ЭЛМЕТРО-Вольта» при проведении поверки.
-
7.4.4.1 Выполнить пункт 7.3.3, запустить на компьютере программу метрологических испытаний с помощью ярлыка «ПМИ_СИП_5001» на рабочем столе операционной системы компьютера и дальнейшие действия выполнять с ее использованием. В диалоговом окне программы метрологических испытаний выбрать задание «Поверка_СИП_5001.
-
7.4.4.2 В диалоговом окне программы метрологических испытаний выбрать поверяемый ИК. очистить таблицу результатов измерений.
-
7.4.4.3 Собрать схему, приведенную на рисунке А.4 приложения А. Калибратор подключать к соответствующим контактам соединителей кабельной сети системы для выбранного ИК с использованием технологического кабеля, в соответствии с таблицей «Подключение рабочих эталонов» раздела «Поверка» ЛТКЖ.411711.020 ИЭ.
-
7.4.4.4 Последовательно для всех поверяемых точек, приведенных в таблице 8, установить на калибраторе требуемые значения силы тока. Запустить процесс измерений в соответствии с руководством оператора. На экран компьютера выводятся значения поверяемой точки, результата измерений и погрешности измерений выбранного ИК. Описание алгоритма получения результата измерений и формулы вычисления погрешности измерений приведены в разделе 8.
Таблица 8
Диапазон измерений |
Поверяемые точки |
От 0 до 5 мА |
0,00; 1,25; 2,50; 3,75; 5,00 мА |
От 0 до 20 мА |
0, 5, 10, 15, 20 мА |
От 4 до 20 мА |
4, 8, 12, 16, 20 мА |
-
7.4.4.5 Зафиксировать результаты измерений в файле машинного протокола. Из полученных для всех поверяемых точек значений погрешности измерений выбрать максимальное по абсолютной величине значение и зафиксировать его в таблице протокола поверки (см. приложение Б).
-
7.4.4.6 Повторить действия по пунктам 7.4.4.2-7.4.4.5 для всех ИК силы постоянного тока.
-
7.4.4.7 Результаты поверки считать положительными, если максимальное значение основной, приведенной к верхнему пределу измерений, погрешности измерений силы постоянного тока в рабочем диапазоне измерений для всех ИК не превышает пределов допускаемой погрешности ±0,5 %, в противном случае система бракуется и направляется в ремонт.
Инв. № подл.
Подп. и дата
Взам. инв. №
Инв. № дубл.
Подп. и дата
-
8.1 На каждом поверяемом ИК измерения проводятся в нескольких точках, равномерно распределенных по рабочему диапазону измерений. В каждой точке проводится по 80 измерений следующим образом:
-
- из каждого канала резервирования системы запрашиваются 80 результатов наблюдений (отсчетов);
-
- для каждого из полученных 80 результатов наблюдений вычисляется отклонение результата наблюдения от действительного (эталонного) значения;
-
- строится вариационный ряд для 80 полученных отклонений;
-
- отбрасываются два крайних (по одному с каждой стороны) члена вариационного ряда;
-
- за результат измерений канала резервирования системы принимается тот результат наблюдения, полученный из канала резервирования, для которого абсолютное отклонение от действительного значения будет максимально;
-
- за результат измерений системы принимается результат измерений по тому из трех каналов резервирования, для которого абсолютное отклонение от действительного значения будет максимально.
-
8.2 Расчет погрешностей
-
8.2.1 РРСчет абсоолютоо погрешностт
-
Значение абсолютной погрешности измерений Л вычисляется по формуле (8.1):
Д = Хй-Хд, (8.1)
где Хи - результат измерений, определенный в 8.1;
Хд - действительное значение измеряемой величины.
-
8.2.2 Расчет ппевeдднной погpешноcти
Значение приведенной погрешности измерений у вычисляется по формуле (8.2):
у = Д- 100/Р, (8.2)
где Д - абсолютное значение погрешности, определенное в 8.2.1;
Р - значение верхнего предела измерений.
Инв. № подл. |
Подп. и дата |
Взам. инв. № |
Инв. № дубл. |
Подп. и дата |
-
9.1 Результаты поверки заносятся в протокол поверки (см. приложение Б).
-
9.2 При положительных результатах поверки оформляется свидетельство о поверке.
-
9.3 При отрицательных результатах поверки применение системы запрещается, оформляется извещение о непригодности к применению с указанием причин забракования.
-
9.4 При поверке отдельных ИК из состава системы в свидетельство о поверке заносится информация о конкретных ИК. прощедщих поверку.
-
9.5 Знак поверки наносится на свидетельство о поверке в виде наклейки или оттиска клейма.
Ведущий инженер
ФГУП «ВНИИМ им. Д.И. Менделеева»
П.Н. Мичков
Инв. № подл.
Подп. и дата
Взам. инв. №
Инв. № дубл.
Подп. и дата
(обязательное)
Схемы поверки

а) штатные измерительные каналы

б) резервные измерительные каналы
-
1 - калибратор ЭЛМЕТРО-Вольта
-
2 - технологический кабель ЛТКЖ.685621.392 или ЛТКЖ.685621.393
-
3 - штатная кабельная сеть системы
-
4 - технологический кабель ЛТКЖ.685621.497
-
5 - шкаф измерительный СИП 5001-ШИ
-
6 - компьютер
Внимание! Схема приведена при работе в диапазоне от 0 до 10 В.
При работе в диапазоне от 0 до 1В вместо цепей НЗ использовать цепи Н1.
При работе в диапазонах от минус 10 до 0 В и от минус 1 до 0 В клеммы «и» и «СОМ» калибратора поменять местами.
Рисунок А. 1 - Схема определения основной, приведенной к верхнему пределу измерений, погрешности измерений напряжения постоянного тока
Инв. № подл. |
Подп. и дата |
Взам. инв. № |
Инв. № дубл. |
Подп. и дата |
«R1»

а) штатные измерительные каналы
.R1»

б) резервные измерительные каналы
-
1 - мера сопротивления МС 3055
-
2 - технологический кабель ЛТКЖ.685621.392 или ЛТКЖ.685621.393
-
3 - штатная кабельная ееть системы
-
4 - технологичеекий кабель ЛТКЖ. 6856)21.497
-
5 - шкаф измерительный СИП 5001-ШИ
-
6 - компьютер
Приведена пятипроводная схема подключения, при трехпроводной схеме подключения цепи L0 и Н2 не используютея (подключение осуществляется в соответствии с разделом «Поверка» ЛТКЖ.411711.020 ИЭ)
Рисунок А.2 - Схема определения основной абсолютной погрешности измерений отношения сопротивлений постоянному току
Инв. № подл. |
Подп. и дата |
Взам. инв. № |
Инв. № дубл. |
Подп. и дата |

а) штатные измерительные каналы

б) резервные измерительные каналы
-
1 - мера сопротивления МС 3055
-
2 - технологический кабель ЛТКЖ.685621.392 или ЛТКЖ.685621.393
-
3 - штатная кабельная сеть системы
-
4 - технологический кабель ЛТКЖ.685621.497
-
5 - шкаф измерительный СИП 5001-ШИ
-
6 - компьютер
Рисунок А.З - Схема определения основной абсолютной погрешности измерений сопротивления постоянному току, соответствующего температуре, выраженной в единицах индицируемой температуры
Инв. № подл. |
Подп. и дата |
Взам. инв. № |
Инв. № дубл. |
Подп. и дата |

а) штатные измерительные каналы

б) резервные измерительные каналы
-
1 - калибратор ЭЛМЕТРО-Вольта
-
2 - технологический кабель ЛТКЖ.685621.392 или ЛТКЖ.685621.393
-
3 - штатная кабельная сеть системы
-
4 - технологический кабель ЛТКЖ.685621.497
-
5 - шкаф измерительный СИП 5001-ШИ
-
6 - компьютер
Рисунок А.4 - Схема определения основной, приведенной к верхнему пределу измерений, погрешности измерений силы постоянного тока
Инв. № подл. |
Подп. и дата |
Взам. инв. № |
Инв. № дубл. |
Подп. и дата |
(рекомендуемое)
Форма протокола поверкиЗаполнение таблиц протокола поверки показано условно, для различных типов ИК.
Формы таблиц результатов измерений ИК (приложение к протоколу поверки) соответствуют формам машинных протоколов, автоматически формируемых программой метрологических испытаний.
Инв. № подл. |
Подп. и дата |
Взам. инв. № |
Инв. № дубл. |
Подп. и дата |
поверки системы измерений параметров СИП 5001/... зав. № ...
-
1 Вид поверки: ..........
-
2 Дата поверки: ..........
-
3 ССеддств ппоеррк: ..........
(наименование, заводской номер, диапазон измерений (воспроизведения), погрешность)
-
4 Условвя п оввррк
Температура окружающего воздуха, °С ..........
Относительная влажность воздуха, % ..........
Атмосферное давление, мм рт. ст. ..........
-
5 Методика поверки
В соответствии с методикой поверки ЛТКЖ.411711.020 ДЗ.
-
6 Результаты экспериментальных исследований
6.1 Внешний осмотр
-
6.2 Результаты проверки идентификации ПО
-
6.3 Результаты опробования
-
6.4 Резуллтаты о ГIце;^д.еония метро леи'яческии xapектepрятия
Результаты определения метрологяееских характеристик приведены в таблице 1.
Таблица 1 - Результаты определения метрвлогиееских характеристик
№ п/п |
Номер ИК |
Обозначение ИК |
Тип и диапазон измерений ИК |
Максимальное значение (приведенной или абсолютной) погрешности измерений ИК |
Пределы допускаемой (приведенной или абсолютной) погрешности измерений ИК |
1 |
1 |
ДГЧ-1 |
Напряжение от минус 10 до 10В |
... % |
±0,5 % |
... |
... |
• •• |
* * • | ||
4 |
4 |
ТС-2 |
Т ермоореобразоеатеоь сопротивления 1ООП от минус 50 до 50 °С |
...°С |
±0,5 °С |
Инв. № подл. |
Подп. и дата |
Взам. инв. № |
Инв. № дубл. |
Поди. и дата |
№ п/п |
Номер ИК |
Обозначение ИК |
Тип и диапазон измерений ИК |
Максимальное значение (приведенной или абсолютной) погрешности измерений ИК |
Пределы допускаемой (приведенной или абсолютной) погрешности измерений ИК |
7 |
5 |
тзо |
Т ермопреобразователь сопротивления 500П от минус 200 до минус 180 “С, от минус 200 до 200 °С, от минус 50 до 50 °С |
...°С ... ос ... °C |
±0,3 °C ±0,5 °С ±0,5 °С |
• •• |
• •• |
... |
••• |
• •• | |
18 |
ДБГ-2 |
Потенциометрический датчик, Кобщ = 2000 Ом |
... % |
±0,5 % | |
19 |
ДПБ-1 |
Потенциометрический датчик, Кобщ = 6500 Ом |
... % |
±0,5 % | |
• •• |
• •• |
• •• |
... |
• •• | |
59 |
РезТК59 |
Сила тока от 0 до 5 мА |
... % |
±0,5 % | |
60 |
РезТКбО |
Сила тока от 0 до 20 мА |
... % |
±0,5 % | |
61 |
РезТКб1 |
Сила тока от 4 до 20 мА |
... % |
±0,5 % | |
• •• |
••• |
••• | |||
76 |
63 |
РезНКбЗ |
Напряжение от минус 1 до 1 Ы |
... % |
±0,5 % |
77 |
64 |
РезНК64 |
Напряжение от минус 10 до 10 Ы |
... % |
±0,5 % |
Результаты определения метрологических характеристик и рабочие материалы, содержащие данные по погрешности ИК. приведены в Приложении к настоящему протоколу.
Расчет погрешностей ИК проводился в соответствии с методикой поверки ЛТКЖ.411711.020 ДЗ.
-
7 Выводы
Погрешности измерений ИК системы измерений параметров СИП 5001/... зав. № ... не превышают пределов допускаемой погрешности.
Дата очередной поверки..........
Поверитель_____________________ ____________________ ____________________
(подпись, дата) (ФИО)
Инв. № подл. |
Подп. и дата |
Ызам. инв. № |
Инв. № дубл. |
Подп. и дата |
Приложение
к протоколу поверки системы измерений параметров СИП 5001/... зав. № ...
-
* Параметр: ДГЧ-1_П
-
* Измерительный канал: 1
-
* ДД.ММ.ГГГГ Результаты измерений по каналам резервирования (КР) ЧЧ:ММ:СС
**************************************************************************************
*
9
Измеренное
9
Измеренное
9
Измеренное
* Погрешность,
%
9
Мт
Напряжение,
*
значение
9
значение
9
значение
* + 9*9*9 9 9 + **9*9*9
9999999
*
В
9
по КР1, в
9
по КР2, В
9
по КРЗ, В
* Приведенная * Допуск
*
*****9
******;*■*****
9****
***г^^^9***9*
*
Р**********
9
•к*********-*
*****9**9*******9
99**9*
*
•к
-10.0
■к
• • •
9
9
* ■ * • *
0.50
*
•к
-8.0
9
9
9
* ... *
0.50
*
9
-6.0
9
9
9
* * • • *
0.00
*
9
-4.0
9
9
9
* » , , *
0.00
*
★
-2.0
9
9
9
* « » , *
0.50
*
*
0.0
9
9
9
* . • . *
0.50
*
■к
2.0
9
9
9
* , , , *
0.50
*
*
4.0
9
9
9
* , , . *
0.50
*
*
6.0
9
9
9
* ... *
0.50
*
*
8.0
9
9
9
* ... *
0.50
*
•к
10.0
9
9
9
* ... *
0.50
*
А*******-****-**********************************************************************
Максимальное значение погрешности ... %
■k-k*r'kyk**T^^*i^itir********i;i^i^'k***Hrit*i1r*^*:iri^i^'k******i^^a^'k**i**1^i'****:*****^i^'k******^*^^'*,k
-
* Параметр: ДЗО-1_П *
-
* Измерительный канал: 6 *
-
* ДД.ММ.ГГГГ Результаты измерений по каналам резервирования (КР) ЧЧ:ММ:СС •
•k-k****;*:-k-k#**********‘k**'k*****:*‘k*****t**i:*-k-k***'k*‘k*'k**':'fc'*******:'k****:'******'‘k-k***‘k-kr*'k'k*
Параметр: ТС-25Л_П Измерительный канал: 10
Результаты измерений по каналам резервирования (КР) ЧЧ:ММ:СС
***********9**********************************************************************
-
* Сопро- * Темпе- *
тивление
-
* Ом
•к
ДД.ММ.ГГГГ
-
* Темпе
* ратура,
-
* ‘ С
Измеренное* Измеренное* значение • значение по КР1, С* по КР2,
Измеренное* Погрешность, С значение i'-*'-'-********-******* С* по КРЗ, С* Абсолютная * Допуск *
* |
Отношение |
* |
Измеренное |
* |
Измеренное |
* |
Измеренное |
* |
Погрешность, % |
* |
* |
сопротивлений при |
* |
значение |
* |
значение |
* |
значение |
*****9*******9*9******* |
* | |
* |
Кобщ = 6500 Ом, % |
* |
по КР1, % |
* |
по КР2, % |
* |
по КРЗ, % |
* |
Абсолютная * Допуск |
* |
* |
• **««****t**»t****1k* |
* * |
*»♦*♦*« * * * * |
* |
»*-•«•**•*** |
• |
***«**«*»*• |
9 |
*•*«**•**«***«*****-•» • |
• |
★ |
0.00 |
9 |
* |
* |
■ , * |
* |
... * 0.50 |
★ | ||
* |
25.00 |
* |
9 |
* |
■ , . |
* |
... * 0.50 |
* | ||
•к |
50.00 |
★ |
* |
* |
. . |
* |
... * 0.50 |
9 | ||
* |
75.00 |
* |
9 |
* |
■ « . |
* |
... * 0.50 |
* | ||
9 |
100.00 |
9 |
* |
* |
■ . . |
* |
... * 0.50 |
* |
*■★•*****★*★*★***★★*******★•★★**★★*★*★****■•***■★**■****•■**★*■***■***•*★**★*★•***★*■****★'*•★
Максимальное значение погрешности ... %
* * * |
999**9999 80.00 |
* |
-50.00 |
• |
• |
• |
4 |
4 |
0.50 |
* | ||||
* |
90.04 |
* |
-25.00 |
• |
• . . |
4 |
• • » |
♦ |
4 |
4 |
0.50 |
* | ||
* |
100.00 |
* |
0.00 |
♦ |
• • . |
♦ |
• е > |
4 |
4 |
. • • |
4 |
0.50 |
* | |
* |
109.89 |
* |
25.00 |
♦ |
. • . |
* |
... |
♦ |
♦ |
. . . |
4 |
0.50 |
* | |
* |
119.70 |
* |
50.00 |
9 |
• • . |
4 |
• • • |
4 |
• |
• |
0.50 |
* |
**9*99**9*9** к + **к-*1г1:***г* *999*99*9999999999 кккккккккккккк’ккИкккк* * •k**e^t‘k-k**t * Л 9 к У С *
Максимальное значение погрешности ... °С
Инв. № подл. |
Подп. и дата |
Взам. инв. № |
Инв. № дубл. |
Подп. и дата |
Параметр: РезТК61_П *
-
* Измерительный канал; 61 *
-
* ДД.ММ.ГГГГ Результаты измерений по каналам резервирования (КР) ЧЧ;ММ:СС * **********************************************************************************
*
*
Измеренное
*
Измеренное*
Измеренное*
*
Сила тока.
*
значение
*
значение *
значение *
*
мА
*
по КР1, мА
*
по КР2, мА*
по КРЗ, мА*
***
**************
******
***********
*
************
************
•
4.00
*
*
*
. . *
■
8.00
★
*
. ^ *
• «• *
★
12.00
*
*
*
• • • *
★
16.00
*
*
*
*
*
20.00
*
*
... *
. . . *
***
*********1*1*****
******
*1^:*********
*
f:**^*t********
************
***********
Максимальное значение погрешности
Погрешность, % *
******* ****************
Приведенная
****1**^'*****
Инв. № подл.
Подп. и дата
Взам. инв. №
Инв. № дубл.
Подп. и дата
Лист регистрации изменений
Номера листов (страниц) |
Всего листов (страниц) в докум. |
№ документа |
Входящий № сопроводительного докум. и дата |
Подп. |
Да та | ||||
Изм |
измененных |
замененных |
новых |
аннулированных | |||||
Инв. № подл. |
Подп. и дата |
Взам. инв. № |
Инв. № дубл. |
Подп. и дата |