Методика поверки «Установки поверочные "ВЗЛЕТ ПУ"» (В46.00-00.00И1)
УТВЕРЖДАЮ
Руководитель ГЦИ СИ -
И.О. дирек юра Ф1.....УП «ВНИИР»
В.Г. Соловьев
МП.
___2011 г.
УСТАНОВКИ ПОВЕРОЧНЫЕ «ВЗЛЕТ ПУ» Методика поверкиВ46.00-00.00И1
г. Казань
2011
Содержание
Приложение А. Схема подключения блока синхронизации и контрольно-
измерительных приборов к рабочему столу
Приложение Б. Поверка каналов температуры измерительного аппаратно- 15 программного комплекса. Схема электрическая соединений.
Приложение С. Определение погрешности измерения времени измерительно- 16 го аппаратно-программного комплекса. Схема электрическая соединений.
Настоящая инструкция распространяется на установки поверочные «ВЗЛЕТ ПУ» (далее - установки).
Межповерочный интервал установки поверочной - 1 год. Межповерочный интервал эталонных средств измерения - 1 год.
1. ОПЕРАЦИИ ПОВЕРКИПри проведении поверки выполняют операции, указанные в габл.1.
Таблица 1
|
№ п/п |
Наименование операции |
Номер пункта методики поверки |
|
1 |
Внешний осмотр |
6.1 |
|
2 |
Опробование |
6.2 |
|
3 |
Определение метрологических характеристик эталонных преобразователей расхода |
6.3. |
|
4 |
Определение метрологических характеристик весовых устройств и мер вместимости |
6.4 |
|
5 |
Определение нестабильности установленного расхода воды. |
6.5. |
|
6 |
Определение погрешности измерительного аппаратно-программного комплекса. |
6.6. |
|
Определение погрешности, вносимой переключателем потока. Определение значения погрешности установки |
6.7. 6.8 |
Примечание - При отсутствии в поверочной установке каких-либо эталонных
средств измерения, определение их метрологических характеристик не производится.
2. СРЕДСТВА ПОВЕРКИ-
2.1. При проведении поверки применяют следующие средства измерений и контроля:
-
- эталонные средства поверки в соответствии с ГОСТ 8.142-75, ГОСТ 8.145-75, ГОСТ 8.470-82 (в том числе установки поверочные с пределами допускаемой относительной погрешности не более 1/3 пределов допускаемой относительной погрешности измерения поверяемых расходомеров);
-
- гири класса точности Ml по ГОСТ 7328-2001;
-
- эталонные меры вместимости по ГОСТ 8.400-80;
-
- частотомер электронно-счетный вычислительный 43-63, диапазон измеряемых частот синусоидального сигнала от 0,1 Гц до 1000 МГц, погрешность измерения частоты не более 5 х КГ - I ед. сч. (за 12 мес);
-
- магазин сопротивлений Р4831, 2.704.0001 ТУ, диапазон показаний от 0,002 до 110000 Ом, класс точности 0,02/2 х 10 °:
-
- вольтметр В7-46 И22.710.004 ТУ, диапазон измерения напряжения: от 100 нВ до 1000 В, предел допускаемой основной погрешности ± | 0,025 + 0,0025 Uk/U | %, где Г к. U -предел измерения и измеряемое значения напряжения
-
2.2. Вспомогательные приборы и устройства:
-
- термометр по ГОСТ 27544. диапазон измерения отО до 100 °C, цена деления 0,2
°C
-
- барометр МД-49-А. погрешность не более ± 0,8 мм.рт.ст., диапазон измерения
480-790 мм.рт.ст., ГОСТ 23696;
-
- персональный компьютер;
-
- психрометр МВ-34, влажность до 100 %, ТУ 25.1607.054.;
-
- осциллограф С1-96, 2.044.011 ТУ;
-
- генератор импульсов Г5-60, 3.269.080;
-
- блок синхронизации В46.00-50.00;
-
- кабель для поверки токовых входов БИУ В46.00-70.00;
-
- кабель для поверки каналов измерения температуры В46.00-24.00;
-
- кабель подключения стола испытательного к блоку синхронизации В46.00-
20.00 и В46.00-20.00-01;
-
- кабель БСК-блок синхронизации В46.00-21.00;
-
- источник питания Б5-70.
Примечания.
-
1. Средства измерений должны иметь отметку о действующем сроке поверки.
-
2. Допускается использование других средств измерения и контроля, вспомогательных приборов и устройств, с характеристиками, обеспечивающими требования методики поверки.
-
3.1. К проведению поверки допускаются лица, прошедшие инструктаж по технике безопасности и изучившие руководство по эксплуатации на установку.
-
3.2. При работе с измерительными приборами и вспомогательным оборудованием должны быть соблюдены требования безопасности, оговоренные в соответствующих технических описаниях и инструкциях по эксплуатации применяемых средств измерений и требования ГОСТ12.3.032-84.
-
3.3. При обнаружении во время работы неисправностей, выражающихся в нарушении электропитания или наличии запаха гари, установку следует немедленно отключить от сети питания. Повторное включение установки должно производиться после устранения причин, вызвавших аварию, и восстановления работоспособности в установленном порядке. К ремонту установок допускается специально подготовленный персонал, ознакомленный с правилами выполнения работ на установках, прошедший проверку знаний по технике безопасности и имеющий форму допуска к работе с напряжением до 1000 В.
-
3.4. При монтаже-демонтаже приборов на рабочем столе установок необходимо принимать меры по снятию давления в рабочем трубопроводе в зоне его расстыковки.
-
3.5. При работе с установками, приборами и оборудованием следует руководствоваться требованиями безопасности по ГОСТ 12.2.007.10 и ГОСТ 12.2.007.14.
При проведении поверки установки должны соблюдаться следующие условия:
-
- температура воды, °C 15-40
-
- температура окружающего воздуха, °C 20 ± 5
-
- относительная влажность окружающего воздуха, % от 30 до 80
-
- атмосферное давление, кПа от 84 до 106.7
-
- напряжения питания переменного тока (измерительная система
установки), В 187-242
-
- частота напряжения питания переменного тока, Гц 50 ± 0,5
-
- отсутствие вибрации, тряски, ударов, влияющих на работу установки
При подготовке к поверке должны быть выполнены следующие работы:
-
- проверить выполнение условий п.2 — 4 настоящего документа;
-
- подготовить к работе поверочную установку согласно соответствующей эксплуатационной документации.
-
6.1. Внешний осмотр.
При внешнем осмотре устанавливается соответствие поверяемой установки следующим требованиям:
-
- комплектность и маркировка должны соответствовать технической документации:
-
- на установке не должно быть внешних механических повреждений, влияющих на ее работоспособность.
-
6.2. Опробование.
-
6.2.1. При опробовании определяют работоспособность поверочной установки в соответствии с руководством по эксплуатации и функционирование ее составных частей в соответствии с их эксплуатационной документацией. Определяют рабочие диапазоны расходов установки.
-
6.2.2. Проверка правильности информационного обмена измерительного аппаратно-программного комплекса (ИАПК).
-
Проверка правильности информационного обмена ИАПК при работе по последовательным интерфейсам RS232/485 выполняется следующим образом.
После запуска ИАПК, необходимо инициализировать канал связи с поверяемым прибором.
По каналу информационного обмена посылается набор установочных параметров подключенного к каналу прибора. После этого осуществляется чтение установочных параметров в соответствии со сформированным набором. Ответные сообщения выводятся на экран монитора ПК.
Результаты поверки считаются положительными, если для каждого прибора значения введенных установочных параметров совпадают со значениями прочитанных.
-
6.3. Определение метрологических характеристик эталонных расходомеров (преобразователей расхода).
При поверке эталонных расходомеров должны быть выдержаны длины прямых участков - не менее 5 IX до расходомера и не менее 3 11. после него.
Поверяемые расходомеры должны иметь частотно-импульсный выход, к которому подключают вход измерительной системы.
Поверку рекомендуется проводить на самой поверочной установке с помощью весоизмерительных устройств (мер вместимости) без демонтажа приборов. Допускается, при отсутствии весоизмерительных устройств (мер вместимости) в составе поверочной установки, использование таких устройств в виде подключаемого модуля (модулей). В процессе эксплуатации допускается проводить периодический контроль метрологических характеристик эталонных расходомеров (преобразователей расхода).
Определение погрешности расходомеров выполняется методом однократных измерений. Погрешность определяется не менее чем при трех значениях расхода, начиная с наименьшего расхода QHaHM, и равномерно распределенных в рабочем диапазоне измерений эталонного расходомера. Расход устанавливается с допуском +10 % в первой поверочной точке и ±10 % в остальных. Допускается в 3-й поверочной точке выполнять измерения при расходе составляющем не менее 0,5 QHan6, при котором длительность испытания (время набора воды в бак) составляет не менее 40 сек.
ПРИМЕЧАНИЕ. Значение наименьшего QHai1M и наибольшего QHan6 расходов - в соответствии с руководством по эксплуатации или паспортом на расходомер.
Испытания выполняются в штатном режиме работы поверочной установки. Результаты поверки заносятся в протокол произвольной формы. Максимальное значение погрешностей принимается за относительную погрешность расходомеров при измерении объема воды по импульсному выходу.
Расходомеры признаются годными, если максимальное значение погрешности не превышает + 0,15...0,3 % (в зависимости от применяемых в составе установки эталонных расходомеров).
При положительных результатах поверки делается отметка о соответствии в протоколе.
-
6.4. Определение метрологических характеристик весовых устройств .
-
6.4.1. Поверку весовых устройств, входящих в состав поверочной установки, допускается проводить при помощи гирь класса точности Mi или на эталонных установках, аттестованных с погрешностью не более 0,01%.
-
При поверке с помощью гирь для их установки на весовое устройство может использоваться специальная платформа, устанавливаемая на весовой бак. Гири могут устанавливаться непосредственно в бак.
-
6.4.2. Метрологические характеристики весовых устройств ВУ-1.5Т, ВУ-5Т и ВУ-0.015Т определяются при нагружении нагрузками, равными пяти-семи значениям массы, равномерно распределенными во всем диапазоне взвешивания. Считывание показаний выполняется в следующей последовательности:
-
- считайте исходное состояние весового устройства;
-
- нагрузите весовое устройство равномерно располагая гири на платформе или в баке.
Увеличивать нагружаемую массу свыше 20% верхнего значения рабочего диапазона взвешивания допускается способом последовательных замещений. Весовое устройство нагружают гирями до нагрузки не менее 20% верхнего значения рабочего диапазона взвешивания. Затем гири снимают, весы обнуляют, а в бак, в качестве балласта, наливают такое же количество воды. Массу воды определяют по показаниям весового устройства. Замещение гирь балластом проводят необходимое число раз вплоть до верхнего значения рабочего диапазона взвешивания. При этом каждый цикл нагружения балластом начинают с полностью разгруженного и обнуленного состояния весов. За истинное значение нагрузки, создаваемой балластом, принимают показание весов за вычетом абсолютной погрешности, вычисленной в данной точке при предыдущем цикле нагружения гирями.
Для более точного определения нагрузки, когда дискретность весов превышает 0.01% нижнего значения рабочего диапазона взвешивания, весы нагружают до момента переключения показаний индикатора. Для мою. после установки основных гирь и. или в процессе набора воды в качестве балласта, гири добавляют таким образом, чтобы в пределах значения дискретности отсчета переключение показаний цифр индикатора происходило при добавлении гири массой не более половины дискретности отсчета весового устройства.
- показания записывайте в таблицу 3, при нагружении гирями, или в таблицу 4, при способе последовательных замещений.
Таблица 3
|
Нагрузка на платформе, кг |
Показания весового устройства, кг |
Относительная погрешность, % |
|
Мисх. |
— | |
|
МО | ||
|
М1 + пн | ||
|
М2+ ш2 | ||
|
МЗ+ ш3 | ||
|
М4+ т4 | ||
|
М5+ т5 | ||
|
М6+ тб |
Примечание. В таблице символом Hli обозначена общая масса добавленных гирь при i-o.M нагружении, МО...Мб - масса основных гирь.
Таблица 4 .
|
Нагрузка на платформе |
Показания весового устройства, кг |
Абсолютная погрешность, кг |
Относительная погрешность, % | ||
|
Эталонная нагрузка, кг |
Нагрузка балласта, кг |
Нагрузка на весах, кг | |||
|
0 |
0 |
мвисх. | |||
|
Mri |
- |
МГ1 |
Мв1 |
Д1 |
81 |
|
Мб1 |
Mei - Д| | ||||
|
М.Г2 |
Мб1 |
Мб1 - Д] + Мг2 |
Мв2 |
д2 |
62 |
|
Мг3 |
Mgi |
Mgi - Д] + М|-з |
мв3 |
Аз |
8з |
|
Мб2 |
Мб2 - Дз | ||||
|
Мг4 |
Мб2 |
Мб2 - Дз + М|-4 |
МВ4 |
Д4 |
84 |
|
мг5 |
Мб2 |
Мб2 - Дз + М| 5 |
Мв5 |
zAs |
8.5 |
|
Моз |
Мбз- Дз | ||||
|
мг6 |
Мез |
Мез - Д5+ Мг6 |
Мвб |
Дб |
86 |
|
МГ7 |
Мбз |
Мез - As + М| - |
Мв7 |
д? |
87 |
Примечание. В таблице 4 символами Mri обозначены массы гирь при Пом нагружении, М,1к -массы балластов при к-ом замещении, Д, - абсолютная погрешность при i-ом нагружении, равная разности As = MBi - (М,1к - Ак + Мп).
Результаты поверки считаются положительными, если относительная погрешность, определенная по формуле:
Иву
б = ±(—-......1)400 %,
где: тв >. показания индикатора весового устройства, кг;
то г.- нагрузка весов, кг,
не превышает значений 0,04% при всех значениях нагрузки.
Примечание. При включении в состав установки весового устройства другого типа, поверка выполняется в соответствии с изложенной выше методикой. Полученные при этом погрешности не должны превышать указанных выше значений.
-
6.5. Определение нестабильности установленного расхода воды.
Нестабильность расхода проверяется при значениях расхода:
Qmax , Qmax 2. Qmin ,
где Qmax - наибольшее значение расхода поверяемой установки, измеряемое с помощью эталонного расходомера;
Qmin - наименьшее значение расхода поверяемой установки, измеряемое с помощью эталонного расходомера.
Заданный расход устанавливается с допуском ±10% согласно руководству по эксплуатации поверочной установки. Испытания проводятся последовательно в следующем порядке:
-
- в испытательные участки столов установить имитаторы расходомеров, соответствующие диаметру подводящего трубопровода испытательного стола;
-
- включить в испытательный контур эталонный расходомер, соответствующий устанавливаемому расходу.
-
- установить заданный расход;
-
- вычислить усредненные за 1 мин. значения расхода Qi по измеренным значениям одного из эталонных расходомеров, определить минимальное Qmin, максимальное Qmax и среднее Qcp значения расхода за исследуемый интервал времени;
-
- нестабильность расхода Нк определяется по измеренным данным в течение 20 мин испытаний при каждом расходе и вычисляется по формуле:
Qmax - Qmin
Нк =----------------------100,%,
2xQcpгде Нк - нестабильность расхода при к-ом расходе.
Установка допускается к применению, если нестабильность расхода не превышает ±2% для всех значений расхода.
-
6.6. Определение погрешности измерительного аппаратно-программного комплекса.
-
6.6.1. Определение погрешности измерительного аппаратно-программного комплекса (ИАПК) при получении результатов измерений в виде частотно-импульсных сигналов производят при помощи блока синхронизации (БС), входящего в комплект поставки поверочной установки. Подключают блок синхронизации и контрольноизмерительные приборы к рабочему столу в соответствии со схемой, приведённой в приложении А. Испытания проводят при подаче на вход блока синхронизации импульсных сигналов амплитудой 10-15 В с тремя значениями частоты:
-
-
• 25 Гц ± 1,5 Гц в течение не менее 700 с;
-
• 350 Гц ± 35 Гц в течение не менее 100 с;
-
• 1500 Гц ± 150 Гц в течение не менее 30 с.
Погрешность ИАПК определяют для каждого рабочего стола поочерёдно в следующем порядке:
-
- установить вес импульса по всем поверяемым каналам равным 1 имп/литр;
-
- включить генератор и установить требуемое значение частоты и амплитуды импульсов. Частотомер установить в режим счета импульсов. Ручкой «уровень» частотомер установить в режим «ожидания», при котором не должно происходить счета из-за возможных помех на входе;
-
- перевести ИАПК в режим счета импульсов, начнется отсчет времени. Кратковременным нажатием кнопки «Пуск» на блоке синхронизации перевести БС в режим подачи импульсов от ЗГ одновременно на вход эталонного частотомера и на подключенные импульсные входы ИАПК. При этом синхронно в открытых окнах начнётся отображение фактических результатов измерения количества импульсов.
-
- до истечения установленного времени кратковременным нажатием кнопки «Стоп» на БС остановить подачу импульсов;
Испытания проводят не менее трех раз для каждого значения частоты. После каждого измерения необходимо обнулять эталонный частотомер.
Определяют максимальное значение абсолютной погрешности, полученное при каждом испытании, по формуле:
Safic.i = N„ci. - Noi.Результаты поверки считают положительными, если абсолютная погрешность бабез не превышает значения ± 1имп.
-
6.6.2. Для определения погрешности измерительного аппаратно-программного комплекса установки при получении результатов измерений в виде токовых сигналов к соответствующим токовым входам ИАПК подключается источник тока и эталонный миллиамперметр (калибратор тока). Для удобства проведения поверки допускается токовые входы соединять последовательно.
Поверка выполняется при токах 1,25мА, 2,5мА, 5мА. 10мА, 20мА в следующей последовательности:
-
- включить источник питания БП и приборы, прогреть их в течение не менее 30 минут при токе 20мА;
-
- установить заданное значение тока (по вольтметру - с помощью регулируемого блока питания при сопротивлении магазина в пределах 100 - 1000 Ом);
-
- запустить счет, при этом синхронно начнётся отображение фактических результатов измерения:
Относительная погрешность для каждого канала определяется по формуле:
I„C
б, = +(----------1)100%,
Ioгде: IHC ~ показания ИАПК, мА;
I,, - показание эталонного миллиамперметра, мА;
Измерения по эталонным приборам и ИАПК выполнить при всех заданных токах, устанавливая новые значения тока с помощью БП.
Примечание - При использовании в качестве эталонных приборов вольтметра и магазина сопротивлений, по измеренным значениям напряжения и сопротивления рассчитать величину тока в цепи, которое принимается за эталонное значение
Результаты поверки считаются положительными, если относительная погрешность не превышает значений:
-
- ± 0,3 % при токе 1.25мА:
-
- ± 0,2 % при токе 2.5м А;
-
- ± 0,1 % при токах 5мА, Юм А. 20м А.
-
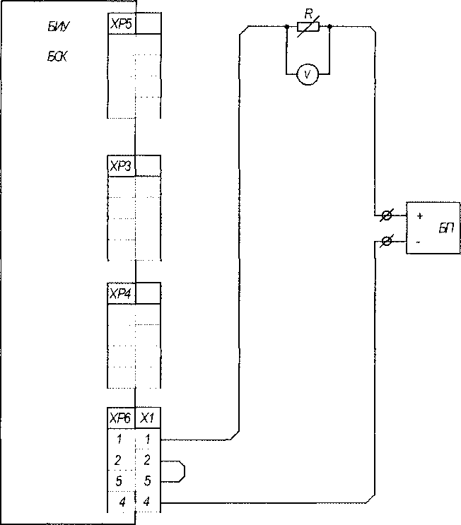
6.6.3. Для определения погрешности, вносимой ИАПК при измерениях температуры воды находящейся в гидросистеме установки, к разъему Х6 блока системного контроллера (БСК) БИУ подключается кабель В46.00-70.00 и собирается схема, приведенная в приложении В. Схема позволяет проводить поверку одновременно двух каналов ИАПК. Допускается проводить поверку только одного канала, который используется при работе.
Поверка выполняется при токах 4мА. 10мА. 15мА. 20мА в следующей последовательности:
-
- включить источник питания БП и приборы, прогреть их в течение не менее 30 минут при токе 20мЛ;
-
- установить заданное значение тока (по вольтметру - с помощью регулируемого блока питания при сопротивлении магазина Р4831 в пределах 100 - 1000 Ом);
Погрешность поверяемых каналов по току рассчитывается по формуле:
1цс
5] — ±(—-......1)400%,
1огде: 1ис - показания ИАПК, мА;
10 - показание эталонного миллиамперметра, мА;
Измерения по эталонным приборам и ИАПК выполнить при всех заданных токах. устанавливая новые значения тока с помощью БП.
Примечание - при использовании в качестве эталонных приборов вольтметра и магазина сопротивлений (см. приложение В) по измеренным значениям напряжения и сопротивления необходимо рассчитать величину тока в цепи, которое принимается за эталонное значение.
Результаты поверки считаются положительными, если относительная погрешность не превышает значений ±0,1 % при всех значениях тока.
-
6.6.4. Определение значения погрешности ИАПК при измерении времени.
Для определения погрешности ИАПК при измерении промежутков времени к разъему Х4 блока системного контроллера БИУ подключается частотомер в соответст-вин со схемой, приведенная в приложении С. Частотомер настраивается в режим измерения промежутков времени.
Поверка выполняется в следующей последовательности:
-
- установить время основного интервала (время измерения) 1200 сек.
-
- запустить измерение.
-
- по окончании измерения сравнить показания частотомера и времени измерения ИАПК.
Значение погрешности ИАПК при измерении времени, St , %, вычислить по формуле:
tH — tj
St =-...........100%,
t-sгде tM - значение времени измерения ИАПК, с.
I, - показания частотомера, с.
Результаты поверки считаются положительными, если относительная погрешность не превышает значений ± 0,01 %..
-
6.7. Определение значения погрешности, вносимой переключателем потока.
Измерения выполняются последовательно на стендах малых и больших диаметров (либо только на одном, при отсутствии другого) при значениях расхода Qmin и Qmax ,
где Qmax - наибольшее значение расхода стенда поверяемой установки, измеряемое с помощью соответствующего эталонного расходомера;
Qmin - наименьшее значение расхода стенда поверяемой установки, измеряемое с помощью соответствующего эталонного расходомера.
Заданный расход устанавливается с допуском ±10% согласно руководству по эксплуатации поверочной установки.
Управление переключателем потока и определение времени срабатывания переключателя потока выполняется при помощи ИАПК. Испытания проводятся в следующем порядке:
-
- переключатель потока установить в исходное положение, при котором поток направляется в пролетную камеру;
-
- установить расход, равный Qmin;
-
- произвести переключения переключателя потока;
-
- измеренные значения времени срабатывания переключателя потока «вперед» и «назад» занести в протокол испытаний. Вычислить разность времени срабатывания переключателя потока АТ вперед и назад ;
-
- повторить испытания пять раз;
-
- установить расход, равный Qmax, и определить АТ при пяти срабатываниях переключателя потока, как описано выше.
Значение погрешности, вносимой переключателем потока, 8Ш|, %, вычислить по формуле:
АТтах
5„„ = —.........100 %,где АТтах - наибольшее значение разности времен переключения, полученное при испытаниях, с.
t„ - время измерения.
Время t„ определяется по формуле, с:
V бщах
t„ = —.........100 %,
Qmaxгде Vgmax - вместимость весового бака, м3,
Qmax - наибольшее значение расхода стенда поверяемой установки, м3/с.
Стенд поверочной установки допускается к применению, если полученное значение погрешности 8ПГ1 , вносимой переключателем потока, не превышает 0,01%
-
6.8. Определение значения погрешности установки
-
6.8.1. Определение значения погрешности установки при измерении объема с применением весов.
-
Относительную погрешность установки при измерении объема с применением весов вычисляют по формуле:
dvy Мд/+ />;, + 8^п
где Зимп - максимальная погрешность, рассчитанная по результатам измерений по п. 6.6.1.,%;
8Ш) - погрешность по п 6.7.,%;
8V - погрешность измерения объема, (%).
Погрешность измерения объема <\ вычисляют по формуле:
Др Sv = — + 8m ,
Ptгде 8m - максимальное значение погрешности измерения массы, (п.п.6.4), %; р, - плотность воды по ГСССД МР 147—2008 при температуре Т°, (кг/м3); Др - абсолютная погрешность определения плотности, (кг/м3).
Значение Др определяется по формуле:
Л/? = ±к • ДГ '
где ДТ - максимальная абсолютная погрешность преобразователя температуры для условий поверки, (°C);
к - коэффициент, учитывающий изменение плотности воды при изменении температуры на 1 °C при температуре Г" , кг/м3/*’С .
Наибольшие значения погрешностей не должны превышать пределов, указанных в формуляре на установку.
-
6.8.2. Определение значения погрешности установки при измерении объема с применением эталонных расходомеров.
Относительную погрешность установки при измерении объема с применением эталонных расходомеров вычисляют по формуле:
где Sgpv - погрешности эталонных расходомеров при измерениях объема, полученные на данной установке, %;
диАПк - погрешности ИАПК (определенные по п.6.6.1 или 6.6.2 — в зависимости от применяемых измерительных каналов),%.
Примечание. При вычислениях берут наибольшие значения погрешностей эталонных расходомеров и Зиш. 3/.
Наибольшие значения погрешностей не должны превышать пределов, указанных в формуляре на установку.
7. ОФОРМЛЕНИЕ РЕЗУЛЬТАТОВ ПОВЕРКИ-
7.1. Положительные результаты поверки оформляются в соответствии с требованиями ПР50.2.006 и установка допускается к эксплуатации с нормированными погрешностями.
-
7.2. В случае отрицательных результатов первичной поверки принимаются меры по устранению выявленных недостатков, после чего установка подлежит повторной поверке.
-
7.3. При отрицательных результатах периодической поверки установка к применению не допускается, в ее формуляре выполняется запись о непригодности установки к эксплуатации, а поверительное клеймо гасится. После проведения мероприятий по устранению причин отрицательного результата поверки, установка подлежит повторной поверке.
ГРИП(Ж~ИЕА
(Уема подклкления блока синхронизации и контрольно- измеритвльньк приборов к рабочему снопу.



mmwEB
Поверка каналов измерения ггеглтерат/ры ИАГК. &ема электрсмеская соединений.


R- магазин сопротивлений Р4831
V - вольтметр В7- 46
БП- блок пития регулируемой (0..30 В) Б0<. - блок системного контроллера БИУ Х1 - разъем кабеля В46.00-24.00.
ГРИПСНШЕС
ГЬверка погреинооти измерения времени MVK Скел® электрическая соединений.


Ч.сч. - частотомер
БСК - блок системюго контроллера БИ/
