Методика поверки «Танки стальные прямоугольные нефтеналивной баржи H-900» (ОЦСМ 140196-2021 МП)
I
Федеральное бюджетное учреждение «Государственный региональный центр стандартизации, метрологии и испытаний в Омской области» (ФБУ «Омский ЦСМ»)
СОГЛАСОВАНО:
И.о. директора ФБУ «Омский ЦСМ»

A.B. Бессонов
г. Омск 2021 г.
1 Общие положения-
1.1 Настоящая методика поверки распространяется на танки стальные прямоугольные нефтеналивной баржи Н-90() (далее по тексту - танки) проекта 81219Н, предназначенные для измерений объема нефти и нефтепродуктов, а также для их приема, отпуска и транспортировки.
-
1.2 Настоящая методика поверки разработана в соответствии с положениями МИ 2874-2004. В настоящей методике поверки применяют термины с соответствующими определениями, указанными в разделе 3 МИ 2874-2004.
-
1.3 Поверку танков проводят геометрическим методом. Вместимость танков определяют по результатам измерений длины, щирины и высоты поясов, образованных по продольным и поперечным переборкам (рисунок А.1). При этом по поперечным переборкам измеряют только щирину поясов.
-
1.4 При проведении поверки по настоящей методике обеспечивается прослеживаемость стендов к государственному первичному эталону ГЭТ 2-2021.
-
1.5 Интервал между поверками - 5 лет.
При проведении поверки должны быть вьшолнены операции, приведенные в таблице 1.
Таблица 1
Наименование операции |
Номер пункта методики поверки |
Проведение операции при | |
первичной поверке |
периодической поверке | ||
Внешний осмотр средства измерений |
7 |
Да |
Да |
Подготовка к поверке и опробование средства измерений |
8 |
Да |
Да |
Определение метрологических характеристик средства измерений Измерение длины поясов |
9 9.1 |
Да |
Да |
Измерение высоты поясов |
9.2 |
Да |
Да |
Измерение ширины поясов |
9.3 |
Да |
Да |
Измерение координаты точки измерений базовой высоты и уровня жидкости |
9.4 |
Да |
Да |
Измерение высоты превышения точки касания дна измерительной трубы грузом рулетки |
9.5 |
Да |
Да |
Определение объемов внутренних деталей |
9.6 |
Да |
Да |
Измерения базовой высоты танка |
9.7 |
Да |
Да |
Обработка результатов измерений и составление градуировочной таблицы |
9.8 |
Да |
Да |
Подтверждение соответствия средства измерений метрологическим требованиям |
10 |
Да |
Да |
-
3.1 При поверке соблюдают следующие условия:
-
3.1.1 Измерения параметров танка проводят изнутри его.
-
3.1.2 Для проведения измерений параметров танка его освобождают от остатков нефти и нефтепродуктов, зачищают, пропаривают (при необходимости ), промывают и вентилируют.
-
3.1.3 Температура окружающего воздуха и воздуха внутри танка. °C от 5 до 35.
-
3.1.4 Состояние погоды - без осадков.
-
К проведению поверки допускаются специалисты, допущенные к поверке, работающие в организации, аккредитованной на право поверки данного вида средств измерений, и ознакомившихся с настоящей методикой поверки и эксплуатационной документацией на танки и средства их поверки и прошедшие инструктаж по технике безопасности в соответствии с ГОСТ 12.0.004-2015.
5 Метрологические и технические требования к средствам поверки-
5.1 При проведении поверки применяют основные средства поверки, приведенные в таблице 2.
Таблица 2
Номер пункта методики поверки |
Наименование и тип основного или вспомогательного средства поверки; обозначение нормативного документа, регламентирующего основные технические требования и (или) метрологические и основные технические характеристики средства поверки |
8,9 |
Рулетка измерительная металлическая 2-го класса точности с верхними пределами измерений 10, 20 и 30 м ГОСТ 7502-98 |
8,9 |
Рулетка измерительная металлическая с грузом 2-го класса точности с верхними пределами измерений 5,10м ГОСТ 7502-98 |
8,9 |
Штангенциркуль ШЦ-1-150 по ГОСТ 166-89 |
8,9 |
Линейка измерительная металлическая с диапазоном измерений от 0 до 1000 мм ГОСТ 427-75 |
8,9 |
Термометр с ценой деления 1 °C и диапазоном измерений от 0 до 50 °C ГОСТ 28498-90 |
8,9 |
Динамометр с диапазоном измерений от 0 до 100 Н ГОСТ 13837-79 |
8,9 |
Газоанализатор АНКАТ-64МЗ-01 (per. № 73186-18): - от 0 до 50 % НКПР: Д: ± 50 % НКПР |
Примечание - В таблице приняты следующие обозначения: Д - пределы допускаемой абсолютной погрешности измерений, единица величины; НКПР - нижний концентрационный предел распространения пламени. |
-
5.2 При проведении поверки применяют вспомогательные средства поверки: чертилка, мел, графитовый стержень, щетки (металлические), лестницы переносные, микрокалькулятор и т.п.
-
5.3 Эталоны единиц величин, используемые при поверке, должны быть утверждены в установленном порядке. Средства измерений, используемые при поверке, должны быть утвержденного типа поверены в установленном порядке.
-
5.4 Допускается применения средств поверки с метрологическими и техническими характеристиками, обеспечивающими требуемую точность передачи единиц величин поверяемому средству измерений.
-
6.1 Содержание вредных паров и газов в воздухе вблизи и внутри танка на высоте до 2000 мм не должно превышать санитарных норм, установленных ГОСТ 12.1.005-88.
-
6.2 Измерения параметров танка во время грозы категорически запрещены.
-
6.3 Для освещения в темное время суток или при необходимости в дневное время суток при проведении измерений изнутри танка применяют светильники во взрывозащищенном исполнении.
-
6.4 Перед началом поверки танка проверяют исправность: лестниц с поручнями и подножками; помостов с ограждениями.
-
6.5 В процессе измерений параметров танка обеспечивают двух или трех кратный обмен воздуха внутри танка. При этом анализ воздуха на содержание вредных паров и газов проводят через каждый час.
-
6.6 Продолжительность работы внутри танка не более 4-х часов, после каждой четырехчасовой работы - перерыв на один час.
-
6.7 Измерения параметров при поверке танка проводят группой лиц. включающей не менее двух поверителей.
-
7.1 При внепшем осмотре танка проверяют:
-
- соответствие конструкции и внутренних деталей танка технической документации (паспорту) на него;
-
- наличие необходимой арматуры и оборудования;
-
- исправность лестниц (трапов) и помостов;
-
- чистоту внутренней поверхности танка;
-
- отсутствие прогибов и хлопунов днища;
-
- отсутствие деформаций стенок поясов, препятствующих проведению измерений линейных размеров (параметров) танка.
-
7.2 По результатам внещнего осмотра устанавливают возможность применения геометрического метода поверки танка.
-
8.1 При подготовке к поверке проводят следующие работы:
-
8.1.1 Изучают техническую документацию на танк, наливное судно и средства поверки.
-
8.1.2 Подготавливают средства поверки к работе согласно технической документации на них. утвержденной в установленном порядке.
-
-
8.2 Подготавливают танки к проведению необходимых измерений:
-
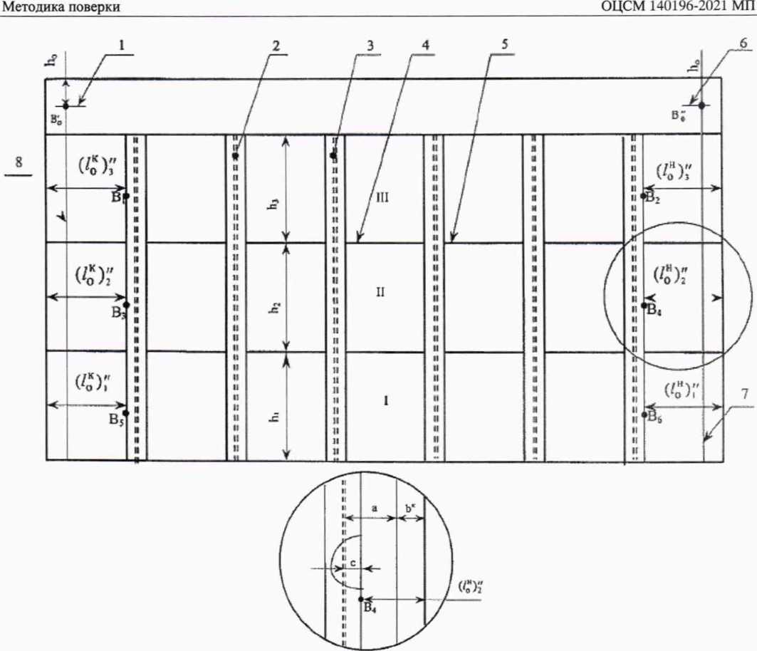
8.2.1 Подготавливают продольные боковые переборки (без скощенной части) и продольные переборки в диаметральной плоскости (без рамных шпангоутов) к проведению измерений в следующей последовательности (рисунок А.2):
-
а) на стенках переборок (бортовой и в диаметральной плоскости) мелом отмечают точки Л о, Bq с координатами, отсчитываемыми от поперечной переборки (находящейся, например, ближе к кормовой части судна) и от места стыка переборок с палубой судна Kq, равными 500 мм;
б) через точки Лд и Bq чертилкой наносят горизонтальные отметки 1 и 7 длиной 50 мм;
в) к горизонтальным отметкам 1 и 7 прикладывают измерительную рулетку с грузом и проводят чертилкой вертикальные линии 10 и 11;
г) по вертикальным линиям 10 и 11 на Уд высоты первого пояса и середине высоты второго и третьего поясов отмечают точки Л1, Л3, Л5 на боковой переборке и В^, В^, В^ на переборке в диаметральной плоскости;
д) через точки Л1, Л3, Л5 и В3, В^ чертилкой или графитовым стержнем наносят горизонтальные отметки 2 и 8 (через точки Л1 и В^). Отметки, нанесенные через точки Л3, Л5 и В^, В^, на рисунке А.2 не обозначены.
-
8.2.2 Выполняя аналогичные операции, приведенные в перечислениях а) - д), отмечают точки Лд, Bq с координатами, отсчитываемыми от поперечной переборки (находящейся ближе к носовой части судна) Iq и /Iq, проводят вертикальные линии и через точки Лг, Л4, Л^ и В2, В^, В^ наносят горизонтальные отметки.
Примечание - Обозначения «к» и «н» соответствуют терминам: «корма» и «нос».
-
8.2.3 На стенке продольной переборки в диаметральной плоскости с рамными шпангоутами (рисунок А.З):
а) отмечают точки Bq, Bq с координатами, отсчитываемыми от поперечных переборок на расстоянии соответственно на и и от мест стыка переборки с палубой судна Kq, равными 500 мм;
б) через точки Bq и Bq чертилкой наносят горизонтальные отметки 1 и 6 длиной 50 мм:
в) к горизонтальным отметкам 1 и 6 прикладывают измерительную рулетку с грузом и проводят чертилкой вертикальные линии 7 и 8;
г) по вертикальным линиям 7 и 8 и по кромкам полок рамных шпангоутов на Уд высоты
первого пояса и середине высот второго и третьего поясов отмечают точки: на вертикальных линиях кромках рамных шпангоутов В^-В^.
-
8.2.4 На стенке поперечной переборки наносят отметки и проводят линии в следующей последовательности (рисунок А.4);
а) на стенке поперечной переборки (находящейся, например, ближе к носовой части судна) мелом отмечают точки Л о, ЛдС координатами , отсчитываемыми от продольных переборок (левого борта и в диаметральной плоскости) и от места стыка переборки с палубой судна /iq, равными 500 мм;
б) вьшолняя аналогичные операции, указанные в 8.2.1 (перечислениях б, в), проводят вертикальные линии 11 и 12;
в) по вертикальным линиям 11 и 12 на Уд высоты первого пояса и середине высоты второго и третьего поясов отмечают точки А-^ - Лб;
г) через точки - Л^, как и в 8.2.1 (перечисление д), наносят горизонтальные отметки 2 и 3. Отметки, нанесенные через точки Л3, Л4, Л5, Л^, на рисунке не обозначены.
-
8.2.5 Вьшолняя аналогичные операции, приведенные в перечислениях а) - г), на стенке поперечной переборке (находящейся ближе к кормовой части судна и от левого борта) отмечают точки Со, Cq с координатами, отсчитываемыми от продольных переборок bj и от места стыка переборок с палубой судна Ziq, равными 500 мм, проводят вертикальные линии и через точки -
наносят горизонтальные отметки.
-
9 Определение метрологических характеристик средства измерений, подтверждение соответствия средства измерений метрологическим требованиям
-
9.1.1 Длину первого пояса Lj, мм, (рисунок А.2) определяют на высоте, равной Уд высоты
первого пояса, по результатам измерений расстояний: if (отсчитываемое от точки Л5 до точки Л^), 1^ (отсчитываемое от точки до точки и ^о-
-
9.1.2 Расстояния if и (левого танка, не имеющего рамные шпангоуты) измеряют измерительной рулеткой в следующей последовательности:
а) по нанесенным (по 9.2.1.1 и 9.2.1.3) через точки Л5 и Л^ (В5 и В^) горизонтальным отметкам прикладывают рулетку. При этом рулетку укладывают нижней кромкой по горизонтальным отметкам и лента ее должна быть натянута;
б) начальную отметку шкалы рулетки совмещают с вертикальной линией 11 (10) и после создания усилия натяжения ленты рулетки динамометром (100±10) Н отсчитывают показания шкалы рулетки по вертикальной линии 6 (9);
в) расстояние Zf (правого танка, имеющего рамные шпангоуты) (рисунок А.З) измеряют измерительной рулеткой, совмещая нулевую отметку рулетки с точкой В^ на левой кромке полки рамного шпангоута и отсчитывая (после натяжения ленты рулетки) показания рулетки в точке В^ на правой кромке полки рамного шпангоута;
г) измерения величин Zf и Zf проводят не менее двух раз. Расхождение между результатами двух измерений должно быть не более 3 мм.
-
9.1.3 Расстояния (Zo)i, (Zo)i (по бортовой переборке) и (Zo)i', (.Iq)” (по переборке в диаметральной плоскости левого танка) измеряют штангенциркулем. Измерения каждой величины проводят не менее двух раз. Расхождение между результатами двух измерений должно быть не более 0,4 мм.
-
9.1.4 Расстояния (ZJ)'/, (Zo)i (по переборке в диаметральной плоскости правого танка) (рисунок А.З), определяют по результатам измерений величин af, bf, af, bf, af, c. Измерения указанных величин проводят при помощи штангенциркуля. Измерения каждой величины проводят не менее двух раз. Расхождение между результатами двух измерений должно быть не более 0,4 мм.
Величины (Zq)7’ (Zo)i-ММ. вычисляют по формулам: (/S)!' = (а? + Ь?) - с, (ZS)i' = (aj + Ь?) - с.
(1)
(2)
-
9.1.5 Результаты измерений величин if, Zf, (/q)!’ (^o)i’ Go)i, Uo)i вносят в протокол, форма которого приведена в приложении Б.
Примечание - Значения величин {1^", (lo)i переборки правого танка предварительно определяют по формулам (1) и (2).
-
9.1.6 Длину /-го вьппестоящего пояса Lj, мм, (рисунки А.2 и А.З) определяют на средней высоте /-ГО пояса по результатам измерений расстояний if, if, (/о)ь (^о)ь
-
9.1.7 Величины, указанные в 9.1.6, измеряют по методике, изложенной в 9.1.2, 9.1.3 и 9.1.4.
-
9.1.8 Результаты измерений величин if, if, (/о)Ь (^о)Ь вносят в протокол,
форма которого приведена в приложении Б.
9.2 Измерение высоты поясов-
9.2.1 Высоту /-ГО пояса hi, мм, измеряют по боковой переборке изнутри танка при помощи рулетки с грузом.
-
9.2.2 Измерения высоты поясов (рисунки А.2 и А.З) проводят, опуская рулетку с грузом от отметки 1 боковой переборки до верхнего края сварочного шва пояса и считьшая разницу в показаниях рулетки относительно отметки 1.
-
9.2.3 Результаты измерений вносят в протокол, форма которого приведена в приложении Б.
-
9.3.1 Ширину первого пояса В^, мм, (рисунок А.4) определяют на высоте % высоты первого пояса по результатам измерений расстояний: bj (отсчитываемое от точки Л5 до точки А^), bf (отсчитываемое от точки С5 до точки Cg), Ьд, bj.
-
9.3.2 Расстояния bf, Ь^ измеряют измерительной рулеткой в следующей последовательности:
а) по нанесенным (по 8.2.4, перечисления а - г) через точки Л5 и (С5 и С^) горизонтальным отметкам прикладывают рулетку. При этом рулетку укладывают нижней кромкой по горизонтальным отметкам и лента ее должна быть натянута;
б) начальную отметку шкалы рулетки совмещают с вертикальной линией 12 (10) и после создания усилия натяжения ленты рулетки по 9.1.2 (перечисление б) отсчитывают показания шкалы рулетки по вертикальной линии 11 (9);
в) измерения величин bj, bj проводят не менее двух раз. Расхождение между результатами двух измерений должно быть не более 3 мм.
-
9.3.3 Расстояния (bj)!, (bo)l' (по поперечной переборке от носа судна) и (bo)i, (Ь^)^ (по поперечной переборке от кормы судна) измеряют штангенциркулем. Измерения каждой величины проводят не менее двух раз. Расхождения между результатами двух измерений должно быть не более 0,4 мм.
-
9.3.4 Результаты измерений величин Ь”, bj, (bo)i, (bo)i, CbJ)!, (bo)i вносят в протокол, форма которого приведена в приложении Б.
-
9.4.1 Координату точки измерений базовой высоты и уровня жидкости (расстояния от торца танка, находящегося ближе к носу судна до центра измерительной трубы) /3, мм, (рисунок А.1), измеряют по палубе судна измерительной рулеткой не менее двух раз. Расхождение между результатами двух измерений должно быть: не более 5 мм.
-
9.4.2 Результаты измерений /3 вносят в протокол, форма которого приведена в приложении Б.
-
9.5.1 Высоту превышения (рисунок А.5) точки касания дна измерительной трубы грузом рулетки Д, мм. измеряют штангенциркулем не менее двух раз. Расхождение между результатами двух измерений должно быть не более 0,4 мм.
-
9.5.2 Результаты измерений вносят в протокол, форма которого приведена в приложении Б.
-
9.6.1 К внутренним деталям (рисунок А.6) относят элементы поперечного и продольного силового набора таврового и уголкового профилей. К элементам силового набора таврового профиля относят: кильсон, флор, карлингс, рамный шпангоут.
-
9.6.2 Линейными размерами элемента силового набора, подлежащими определениям, являются:
а) таврового профиля (рисунок А.7): длина /?□ и толщина 5^ полки, высота Кт, толщина стенки tf., гпз (число кильсонов), тп^ (число флор), гпд (число рамных шпангоутов), (число карлингсов);
б) уголкового профиля (рисунок А.8): длина 1^, высота толщина профиля S^., (число профилей, расположенных на днище танка) и тпз (число профилей, расположенных на переборках).
-
9.6.3 Толщину стенки таврового профиля определяют по результатам измерений (рисунок А.7) расстояний от торцов полки до стенки профиля .
-
9.6.4 Толщину стенки уголкового профиля Sc определяют по результатам измерений расстояния от торца полки до стенки профиля
-
9.6.5 Линейные размеры профилей, указанные в 9.6.2, 9.6.3, 9.6.4 измеряют одного из них по каждому виду профиля (кильсона, флора, рамного шпангоута и т.д.) и определяют их количества. При наличии прикрепленных горизонтально на продольных или поперечных переборках танка элементов силового набора таврового сечения дополнительно указывают их нижние и верхние границы относительно контура днища танка.
-
9.6.6 Высоту таврового профиля /ц. (рисунок А.7) измеряют измерительной линейкой.
-
9.6.7 Величины указанные в 9.6.2, 9.6.3, 9.6.4, измеряют
штангенциркулем.
-
9.6.8 Нижние и верхние границы расположения силовых элементов таврового профиля Л», /1в по 9.6.5 измеряют измерительной рулеткой с грузом.
-
9.6.9 Результаты измерений величин /ц, Ь„, Ь'^^, Ь'^!, 1^, 1с, h^i, и числа профилей тп^ -
7Пб вносят в протокол, форма которого приведена в приложении Б.
9.7 Измерения базовой высоты танка-
9.7.1 Базовую высоту Н^, мм, измеряют рулеткой с грузом не менее двух раз. Расхождение между результатами двух измерений не должно превьппать 2 мм.
-
9.7.2 Значение базовой высоты наносят на табличку, прикрепленной к измерительной трубе.
-
9.7.3 Результаты измерений вносят в протокол, форма которого приведена в приложении Б.
-
9.7.4 Базовую высоту измеряют ежегодно. При изменении базовой высоты по сравнению с ее значением, установленном при поверке танка, более чем на 0,1 % проводят внеочередную поверку танка.
-
9.7.5 Результаты ежегодных измерений базовой высоты оформляют актом, форма которого приведена в приложении Г.
9.8 Обработка результатов измерений и составление градуировочной таблицы
-
9.8.1 Обработку результатов измерений и составление градуировочной таблицы вьшолняют в соответствии с приложениями В и Г МИ 2874-2004 с помощью программы расчета градуировочной таблицы на ПЭВМ, утвержденной ФГУП ВНИИР-ГНМЦ.
-
9.8.2 Градуировочную таблицу составляют, начиная от точки касания дна измерительной трубы грузом рулетки до предельного уровня //„р, вычисляя посантиметровую вместимость танка.
-
9.8.3 Предельный уровень Ярр, см, до которого составляют градуировочную таблицу, вычисляют по формуле:
(3)
-
Н„р = /11 + /12 + Лз - /л.
где /11, /12, - высоты поясов, см;
f„ - высота превьппения точки касания дна измерительной трубы грузом рулетки, см.
-
9.8.4 В пределах предельного уровня Ядр вычисляют коэффициент вместимости, равный вместимости, приходящейся на 1 мм высоты наполнения.
-
9.8.5 При составлении градуировочной таблицы значения вместимости танка округляют до 1 дм^.
-
9.8.6 Значения посантиметровой вместимости танка, указанные в градуировочной таблице, соответствуют температуре 20 °C.
10.1 Согласно положениям раздела 5 МИ 2874-2004, при соблюдении пределов допускаемой погрешности измерений параметров танка, указанных в таблице 3, погрешность определения вместимости танка будет находиться в пределах ± 0,25 %.
Таблица 3
Наименование параметра |
Пределы допускаемой погрешности измерений параметров танка |
Длина переборки, мм |
±6,0 |
Ширина переборки, мм |
±6,0 |
Высота переборки, мм |
±6,0 |
Объем внутренних деталей, м^ |
± 0,020 |
10,2 Значение погрешности измерения вместимости танка приводят на титульном листе градуировочной таблицы.
11 Оформление результатов поверки-
11.1 Результаты измерений оформляют протоколом поверки танка, форма которого приведена в приложении Б.
-
11.2 Сведения о результатах поверки передаются в Федеральный информационный фонд по обеспечению единства измерений в установленном порядке.
-
11.3 По заявлению владельца танка или лица, представившего его на поверку, на танки выдается:
-
- в случае положительных результатов поверки - свидетельство о поверке установленного образца:
-
- в случае отрицательных результатов поверки - извещение о непригодности к применению установленного образца с указанием причин непригодности.
-
11.4 В случае положительных результатов поверки на танк оформляют следующие документы:
-
- градуировочная таблица;
-
- протокол поверки.
Протокол поверки, титульный лист и последнюю страницу градуировочной таблицы подписывают поверители. Подписи поверителей заверяются оттисками поверительного клейма.
-
11.5 Форма титульного листа градуировочной таблицы и форма градуировочной таблицы приведены в приложении В.
-
11.6 Форма акта ежегодных измерений базовой высоты приведена в приложении Г.
(обязательное)
Схемы оборудования и измерений параметров танка а) - танк левого борта (левый танк); б) - танк правого борта (правый танк);






1 - шпации; 2 - рамные шпангоуты: 3,4- измерительные трубы; - высота танка по левому борту; Яп.Б “ высота танка по правому борту; Яд п - высота танка по диаметральной плоскости: L - длина танка; В - ширина танка.
Рисунок А. 1 - Схема танка




а) - продольная переборка от левого борта судна; б) - продольная переборка в диаметральной плоскости;
1, 2, 7, 8 - горизонтальные отметки; 3 - измерительная рулетка с грузом; 4, 5 - сварные швы танка; 6, 9,10, 11 - вертикальные линии; - точки измерений;
Iq — расстояние между поперечной переборкой от носа судна и линией 6 или линией 9;
Iq - расстояние между поперечной переборкой от кормы судна и линией 10 или линией 11; Kq — расстояние между отметками 1 и 7 и местом стыка переборки с палубой судна;
/11, /i2, /13 ” высоты поясов; I, II, III - номера поясов
Рисунок А.2 - Схема измерений параметров танка по продольной переборке

1,6- горизонтальные отметки; 2, 3 - рамные стойки (шпангоуты); 4, 5 - сварочные швы;
7, 8 - вертикальные линии; “ точки измерений; Iq - расстояние между поперечной
переборкой от носа судна и точкой Bi (правой кромкой полки рамной стойки); - расстояние между поперечной переборкой от кормы судна и точкой Bi (левой кромкой полки рамной стойки); Ь - расстояние между поперечной переборкой и вертикальной линией 7; а- расстояние между вертикальной линией 7 до стенки рамной стойки; с - расстояние между правой кромкой полки рамной стойки до ее стенки.
Величину Iq вычисляют по формуле: /о = (а + Ь) - с.
Рисунок А.З - Схема измерений параметров танка по продольной переборке в диаметральной плоскости судна при наличии рамных стоек



а) - поперечная переборка от носа судна; б) - поперечная переборка от кормы судна:
1, 2, 3, 4, 5, 6, 7, 8 — горизонтальные отметки: - А^, — точки измерений;
ho - расстояние между отметками 1, 4, 5, 8 и палубой судна; 9,10, И, 12 - вертикальные линии: (Ьд)’ - расстояние между продольной переборкой от левого борта судна и линией 12 в точках измерений Л^, Л3, Лд, (bj)' - расстояние между продольной переборкой в диаметральной плоскости судна и линией 11 в точках измерений Л2, Л4, Л^.
Рисунок А.4 — Схема измерений ширины поясов по поперечной переборке танка

1,6- боковые переборки; 2, 4 - палуба судна; 3,5- измерительные трубы; 7, 8 - днища танков; Д - высота точки касания дна измерительной трубы грузом рулетки;
АВ - диаметральная плоскость судна

1 - кница; 2, 11,12 - элементы продольного силового набора уголкового профиля; 3 - карлингс;
4 - настил палубы; 5 - стенка танка по диаметральной плоскости судна; 6 - рамный шпангоут;
7 - клинкет; 8 - кильсон; 9, К) - флоры
Рисунок A.6 - Схема силового набора танка

<■
л |
Ь' | |
tr. | ||
■>
Ь"

1 - полка профиля; 2 - стенка профиля; 3 - присоединенный поясок обшивки: Ьп, <5п - длина и толщина полки; tc - высота и толщина стенки профиля;
~ расстояние от торцов полки до стенки профиля
Рисунок А.7 — Сечение таврового профиля

1 - полка профиля; 2 - стенка профиля; 3 - присоединенный поясок обшивки; 1„ - длина полки; /{. - высота профиля; - толщина профиля; 5п “ толщина полки профиля
Рисунок А.8 - Сечение уголкового профиля
геи. Танки стальные прямоугольные нефтеналивной баржи Н-900 Методика поверки_______
Стр. 15 из 18
ОЦеМ 140196-2021 МП
(рекомендуемое)
Фор.ма протокола поверки танка
ПРОТОКОЛ
поверки танка нефтеналивной баржи Н-900 геометрическим методом
Таблица Б.1 - Общие данные
Код документа |
Регистрационный номер |
Дата |
Основание для проведения поверки |
таблицы Б. 1
Место проведения поверки |
Средства измерений |
Окончание таблицы Б. 1
Танк | ||
Номер |
Назначение |
Погрешность определения вместимости, % |
Таблица Б.2 - Условия
Температура воздуха, °C |
Загазованность, мг/м^ |
Таблица Б.З - Длина поясов
В
Номер пояса |
Номер изме-рения |
Расстояние между точками измерений |
Расстояние между поперечной переборкой и вертикальной линией | ||||||
1^ |
1^ |
(iS)" | |||||||
1 |
2 |
3 |
4 |
5 |
6 |
7 |
8 |
9 |
10 |
I |
1 | ||||||||
2 | |||||||||
II |
1 | ||||||||
2 | |||||||||
III |
1 | ||||||||
2 |
Примечание - Графы 5 и 6 заполняют только при наличии скошенной части танка
Таблица Б.4 - Высота поясов
В
Высота пояса | ||
л, |
/l2 | |
геи. Танки стальные прямоугольные нефтеналивной баржи Н-900 Методика поверки
Стр. 16 из 18
ОЦеМ 140196-2021 МП
Таблица Б,5 - Ширина поясов
В
Номер пояса |
Номер измерения |
Расстояние межу точками измерений |
Расстояние между продольной переборкой и вертикальной линией | ||||
6» |
(Ьп»)' | ||||||
1 |
2 |
3 |
4 |
5 |
6 |
7 |
8 |
I |
1 | ||||||
2 | |||||||
II |
1 | ||||||
2 | |||||||
III |
1 | ||||||
2 |
Таблица Б.6 -
танка
Измеряемый параметр |
Номер измерения |
Показания рулетки, штангенциркуля, мм |
Координата точки измерений базовой высоты и уровня жидкости /з |
1 | |
2 | ||
Высота превышения точки касания дна измерительной трубы грузом рулетки |
1 | |
2 | ||
Базовая высота танка Hq |
1 | |
2 |
Таблица Б.7 - Тавровый профиль
В
Наименование профиля |
Число |
Размеры профиля |
Размеры полки профиля | ||||||
длина |
высота |
положение |
длина |
толщина |
расстояние | ||||
нижнее |
верхнее | ||||||||
т |
Ln |
hr |
h„ |
hn |
Ьп |
Ъ'п |
Ь'п' | ||
1 |
2 |
3 |
4 |
5 |
6 |
2 |
8 |
9 |
10 |
Кильсон | |||||||||
Флор | |||||||||
Примечания:
-
1 За значение длины кильсона (графа 3) принимают длину танка.
-
2 За значение длины флора (графа 3) принимают ширину танка.
-
3 За значение высоты рамного шпангоута или рамной стойки (графа 3) принимают высоту танка.
-
4 Графы 5, 6 заполняют при расположении продольного профиля по высоте танка.
Таблица Б.8 - Уголковый профиль
В
Местоположение профиля |
Число профиля |
Высота профиля |
Ширина полки |
Расстояние |
Толщина полки |
т |
1с |
In |
1'п | ||
1 |
2 |
3 |
4 |
5 |
6 |
геи. Танки стальные прямоугольные нефтеналивной баржи Н-900 Методика поверки
Стр. 17 из 18
ОЦеМ 140196-2021 МП
(рекомендуемое)
Форма титульного листа градуировочной таблицы и форма градуировочной таблицы
в. 1 Форма титульного листа градуировочной таблицы
ГРАДУИРОВОЧНАЯ ТАБЛИЦА на стальной прямоугольный танк
зав. №_____________
нефтеналивной баржи
Организация_______________________________
Погрешность определения вместимости: ± 0,25 %.
Программа расчета градуировочной таблицы на ПЭВМ утверждена ФГУП ВНИИР-ГНМЦ в соответствии с МИ 2874-2004Срок очередной поверки:
Поверители
подпись
должность, инициалы, фамилия
подпись
должность, инициалы, фамилия
В.2 Форма градуировочной таблицы танка
Таблица В.1 -
вместимость танка
Уровень заполнения, см |
Вместимость, м’ |
Вместимость на 1 мм’ |
Уровень заполнения, см |
Вместимость, м^ |
Вместимость на 1 мм^ |
Уровень заполнения, см |
Вместимость, м’ |
Вместимость на 1 MM-’ |
0 | ||||||||
1 | ||||||||
2 | ||||||||
... |
(справочное)
Форма титульного листа градуировочной таблицы и форма градуировочной таблицы СОГЛАСОВАНОРуководитель органа Государственной метрологической службы
АКТ измерений базовой высоты танка от« » 20 г.Составлен в том, что комиссия, назначенная приказом по
наименование предприятия-
-владельца танкера
провела контрольные измерения базовой высоты танка
И членов:
инициалы, фамилии
наименование нефтеналивной баржи
номинальной вместимостью__________м-’ при температуре окружающего воздуха
Результаты измерения представлены в таблице 1.
°C.
Таблица 1
В
Базовая высота танка | |
Среднее арифметическое значение результатов двух измерений (Яб)к |
Значение базовой высоты, установленное при поверке танка (//б)п |
1 |
2 |
Председатель комиссии:
подпись
инициа.ты. фамилия
Члены:
подпись
инициалы, фамилия
подпись
инициалы, фамилия
подпись
инициалы, фамилия
ФБУ «Омский ЦеМ»