Номер по Госреестру СИ: 81262-21
81262-21 Резервуары стальные горизонтальные цилиндрические
(РГС-50)
Назначение средства измерений:
Резервуары стальные горизонтальные цилиндрические РГС-50 предназначены для измерения объема нефти и нефтепродуктов, а также для их приема, хранения и отпуска.

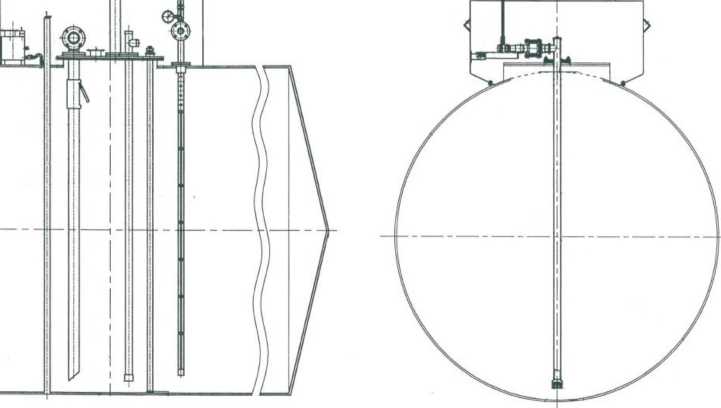
Внешний вид.
Резервуары стальные горизонтальные цилиндрические
Рисунок № 1
Тип резервуаров - стальные горизонтальные цилиндрические, номинальной вместимостью 50 м3 подземного расположения.
Принцип действия резервуаров стальных горизонтальных цилиндрических РГС-50 основан на заполнении их нефтью и нефтепродуктом до определенного уровня, соответствующего заданному значению объема.
Резервуары стальные горизонтальные цилиндрические РГС-50 представляют собой горизонтально расположенный цилиндрический стальной сосуд с коническими днищами.
Заполнение и выдача продукта осуществляется через приемно-раздаточные патрубки.
Заводские номера наносятся типографским способом в паспорт резервуара и ударным способом на металлический шильдик резервуара.
Резервуары стальные горизонтальные цилиндрические РГС-50 с заводскими номерами 38/50, 39/50 расположены по адресу: Мурманская область, г. Кировск, промплощадка Кировского рудника, КФ АО «Апатит».
Эскиз общего вида резервуаров стальных горизонтальных цилиндрических РГС-50 представлен на рисунке 1.
Нанесение знака поверки на средство измерений не предусмотрено.
Рисунок 1 - Эскиз общего вида резервуаров РГС-50
Пломбирование резервуаров стальных горизонтальных цилиндрических РГС-50 не предусмотрено.
Программное обеспечение отсутствует
Таблица 3 -
|
Наименование |
Обозначение |
Количество |
|
Резервуар стальной горизонтальный цилиндрический |
РГС-50 |
1 шт. |
|
Паспорт |
- |
1 шт. |
|
Градуировочная таблица |
- |
1 шт. |
Таблица 1 - Метрологические характеристики
|
Наименование характеристики |
Значение |
|
Номинальная вместимость, м3: |
50 |
|
Пределы допускаемой относительной погрешности определения вместимости, % |
±0,25 |
Таблица 2 - Основные технические характеристики
|
Наименование характеристики |
Значение |
|
Условия эксплуатации: | |
|
Температура окружающего воздуха, оС |
от -50 до +50 |
|
Атмосферное давление, кПа |
от 84,0 до 106,7 |
|
Средний срок службы, лет, не менее |
30 |

