Номер по Госреестру СИ: 85476-22
85476-22 Резервуар стальной горизонтальный цилиндрический
(РГС-50)
Назначение средства измерений:
Резервуар стальной горизонтальный цилиндрический РГС-50 (далее - резервуар) предназначен для измерения объема при приеме, хранении и отпуске нефти и нефтепродуктов.

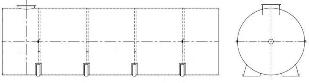
Внешний вид.
Резервуар стальной горизонтальный цилиндрический
Рисунок № 1
Программное обеспечение
отсутствует.Лист № 2
Всего листов 3
Знак утверждения типа
Знак утверждения типананосится на титульный лист паспорта типографским способом.
Сведения о методиках измерений
Сведения о методиках (методах) измеренийприведены в пункте 7 паспорта.
Нормативные и технические документы
Нормативные документы, устанавливающие требования к резервуару стальному горизонтальному цилиндрическому РГС-50Приказ Федерального агентства по техническому регулированию и метрологии (Рос-стандарт) от 07.02.2018 г. № 256 «Об утверждении Государственной поверочной схемы для средств измерений массы и объема жидкости в потоке, объема жидкости и вместимости при статических измерениях, массового и объемного расходов жидкости»
Изготовитель
Открытое акционерное общество «Резметкон» (ОАО «Резметкон»)ИНН 6141004383
Адрес: 346882, Ростовская обл., г. Батайск, ул. Энгельса, д. 347
Телефон: +7 (86354) 7-08-83
Факс: +7 (86354) 7-08-83
E-mail: info@tdbrz.ru
Лист № 3 Всего листов 3
Испытательный центр
Общество с ограниченной ответственностью «Сибирская интернет компания» (ООО ИК «СИБИНТЕК»)Адрес: 117152, г. Москва, Загородное шоссе, д. 1, стр. 1
Телефон: +7 (495) 755-52-73
Факс: +7 (495) 785-09-71
E-mail: info@sibintek.ru
Резервуар представляет собой горизонтальный цилиндрический сварной стальной сосуд, оборудованный приемо-раздаточными патрубками и технологическими люками.
Расположение резервуара подземное.
Заполнение и опорожнение резервуара осуществляется через приемо-раздаточные патрубки.
Заводской номер резервуара нанесен аэрографическим способом на горловину резервуара и типографским способом в паспорт.
Резервуар РГС-50 заводской № 73/№20 расположен: г. Ростов-на-Дону, ул. Доватора, д. 158/8, АО «РН-Ростовнефтепродукт», Ростовская нефтебаза.
Общий вид (Эскиз) резервуара представлен на рисунке 1.
Рисунок 1 - Общий вид (Эскиз) резервуара
Пломбирование резервуаров не предусмотрено.
Знак поверки наносится на свидетельство о поверке и градуировочную таблицу.
Программное обеспечение отсутствует.
Лист № 2
Всего листов 3
Таблица 1 - Метрологические характеристики
|
Наименование характеристики |
Значение |
|
Номинальная вместимость, м3 |
50 |
|
Пределы допускаемой относительной погрешности определения вместимости резервуара, % |
±0,25 |
Таблица 2 - Основные технические характеристики
|
Наименование характеристики |
Значение |
|
Средний срок службы, лет |
30 |
|
Условия эксплуатации:
|
от -50 до +50 от 84,0 до 106,7 |

