Номер по Госреестру СИ: 87486-22
87486-22 Резервуары стальные горизонтальные цилиндрические
(РГ-40)
Назначение средства измерений:
Резервуары стальные горизонтальные цилиндрические РГ-40 (далее - резервуары) предназначены для измерения объема нефтепродуктов, а также для их приема, хранения и отпуска.

Внешний вид.
Резервуары стальные горизонтальные цилиндрические
Рисунок № 1

Внешний вид.
Резервуары стальные горизонтальные цилиндрические
Рисунок № 2

Внешний вид.
Резервуары стальные горизонтальные цилиндрические
Рисунок № 3

Внешний вид.
Резервуары стальные горизонтальные цилиндрические
Рисунок № 4

Внешний вид.
Резервуары стальные горизонтальные цилиндрические
Рисунок № 5

Внешний вид.
Резервуары стальные горизонтальные цилиндрические
Рисунок № 6

Внешний вид.
Резервуары стальные горизонтальные цилиндрические
Рисунок № 7
Знак утверждения типа
Знак утверждения типананосится на титульный лист паспорта резервуара типографским способом.
Сведения о методиках измерений
Сведения о методиках (методах) измерений приведены в пункте 8 паспорта на резервуар.Нормативные и технические документы
Нормативные документы, устанавливающие требования к средству измеренийПриказ Федерального агентства по техническому регулированию и метрологии от 26 сентября 2022 г. № 2356 «Об утверждении Государственной поверочной схемы для средств измерений массы и объема жидкости в потоке, объема жидкости и вместимости при статических измерениях, массового и объемного расходов жидкости».
ПравообладательЗакрытое акционерное общество «ТК 122 ЭМЗ» (ЗАО «ТК 122 ЭМЗ»)
ИНН 7805204056
Юридический адрес: 198216, г. Санкт-Петербург, Ленинский пр-кт, д. 131 литер а, пом. 6-н
Телефон: +7 (812) 326-88-00
Web-сайт: rezervuar.su
E-mail: zakaz@rezervuar.su
Изготовитель
Закрытое акционерное общество «ТК 122 ЭМЗ» (ЗАО «ТК 122 ЭМЗ»)ИНН 7805204056
Юридический адрес: 198216, г. Санкт-Петербург, Ленинский пр-кт, д. 131 литер а, пом. 6-н
Адрес места осуществления деятельности: 195027, г. Санкт-Петербург, ул. Магнитогорская д. 51 лит. Ж
Телефон: +7 (812) 326-88-00
Web-сайт: rezervuar.su
E-mail: zakaz@rezervuar.su
Испытательный центр
Общество с ограниченной ответственностью «МетроКонТ» (ООО «МетроКонТ»)Адрес: 420132, г. Казань, ул. Адоратского, д. 39Б, офис 51
Телефон: +7 9372834420
Факс +7 (843) 515-00-21
E-mail: trifonovua@mail.ru
Правообладатель
Закрытое акционерное общество «ТК 122 ЭМЗ» (ЗАО «ТК 122 ЭМЗ»)ИНН 7805204056
Юридический адрес: 198216, г. Санкт-Петербург, Ленинский пр-кт, д. 131 литер а, пом. 6-н
Телефон: +7 (812) 326-88-00
Web-сайт: rezervuar.su
E-mail: zakaz@rezervuar.su
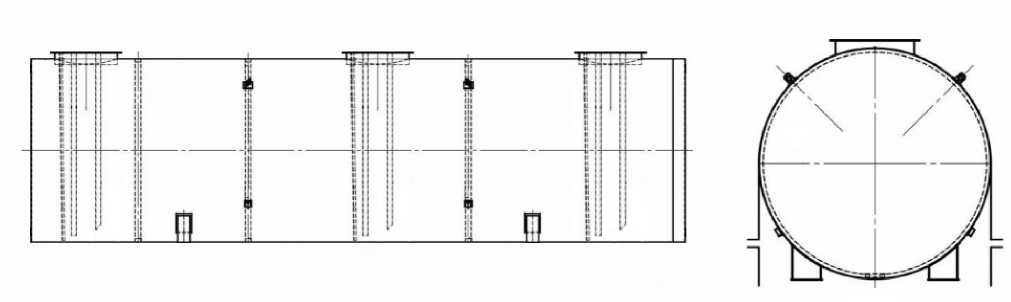
Принцип действия резервуаров основан на заполнении их нефтепродуктом до определенного уровня, соответствующего заданному значению объема.
Резервуары представляют собой горизонтально расположенный цилиндрический стальной сосуд с днищами, состоящий из трех секций.
Заполнение и выдача продукта осуществляется через приемно-раздаточные патрубки.
Заводские номера резервуаров и номера секций в виде цифрового обозначения, состоящие из арабских цифр, нанесены в виде наклейки на крышку люка резервуара.
Резервуары РГ-40 с заводскими номерами 4017, 4017-1 расположены по адресу: г. Курган, ул. Трактовая, д. 1 пункт заправки КПИ.
Общий вид резервуаров РГ-40 представлен на рисунках 1, 2, 3, 4, 5, 6, 7.
Нанесение знака поверки на средство измерений не предусмотрено.
Рисунок 1 - Общий вид резервуара РГ-40 №4017 секция 1 с указанием места нанесения заводского номера
Рисунок 2 - Общий вид резервуара РГ-40 №4017 секция 2 с указанием места нанесения заводского номера
Рисунок 3 - Общий вид резервуара РГ-40 №4017 секция 3 с указанием места нанесения заводского номера
Рисунок 4 - Общий вид резервуара РГ-40 №4017-1 секция 1 с указанием места нанесения заводского номера
Рисунок 5 - Общий вид резервуара РГ-40 №4017-1 секция 2 с указанием места нанесения заводского номера

Рисунок 6 - Общий вид резервуара РГ-40 №4017-1 секция 3 с указанием места нанесения заводского номера

Рисунок 7 - Общий вид резервуаров РГ-40
Пломбирование резервуаров РГ-40 не предусмотрено.
Лист № 8
Всего листов 9
Таблица 3 -
|
Наименование |
Обозначение |
Количество |
|
Резервуар стальной горизонтальный цилиндрический |
РГ-40 |
1 шт. |
|
Паспорт |
- |
1 экз. |
|
Градуировочная таблица |
- |
3 экз. |
Таблица 1 - Метрологические характеристики
|
Наименование характеристики |
Значение | |
|
Заводские номера | ||
|
4017 |
4017-1 | |
|
Номинальная вместимость, м3 |
40 |
40 |
|
Номинальная вместимость секции №1, м3 |
10 |
13 |
|
Номинальная вместимость секции №2, м3 |
10 |
14 |
|
Номинальная вместимость секции №3, м3 |
20 |
13 |
|
Пределы допускаемой относительной погрешности определения вместимости (объемный метод), % |
±0,25 | |
Таблица 2 - Основные технические характеристики
|
Наименование характеристики |
Значение |
|
Условия эксплуатации: | |
|
Температура окружающего воздуха, оС |
от -50 до +50 |
|
Атмосферное давление, кПа |
от 84,0 до 106,7 |
|
Средний срок службы, лет, не менее |
20 |

