Номер по Госреестру СИ: 90573-23
90573-23 Резервуар горизонтальный стальной цилиндрический
(РГ20(10/10))
Назначение средства измерений:
Резервуар горизонтальный стальной цилиндрический РГ20(10/10) (далее - резервуар) предназначен для измерения объема нефти и нефтепродуктов, а также для их приема, хранения и отпуска.

Внешний вид.
Резервуар горизонтальный стальной цилиндрический
Рисунок № 1

Внешний вид.
Резервуар горизонтальный стальной цилиндрический
Рисунок № 2

Внешний вид.
Резервуар горизонтальный стальной цилиндрический
Рисунок № 3
Испытательный центр
Общество с ограниченной ответственностью «МетроКонТ» (ООО «МетроКонТ»)Адрес: 420132, Республика Татарстан, г. Казань, ул. Адоратского, д. 39Б, оф. 51 Телефон: +7 9372834420
Факс +7 (843) 515-00-21 E-mail: trifonovua@mail.ru
Правообладатель
Закрытое акционерное общество «ТК 122 ЭМЗ» (ЗАО «ТК 122 ЭМЗ»)ИНН 7805204056
Юридический адрес: 198216, г. Санкт-Петербург, Ленинский пр-кт, д. 131, лит. А, помещ. 6-н
Изготовитель Закрытое акционерное общество «ТК 122 ЭМЗ» (ЗАО «ТК 122 ЭМЗ»)
ИНН 7805204056
Адрес места осуществления деятельности: 195027, г. Санкт-Петербург,
ул. Магнитогорская, д. 51, лит. Ж
Юридический адрес: 198216, г. Санкт-Петербург, Ленинский пр-кт, д. 131, лит. А, помещ. 6-н
Принцип действия резервуара основан на заполнении его нефтью или нефтепродуктом до определенного уровня, соответствующего заданному значению объема.
Резервуар представляет собой горизонтально расположенный цилиндрический стальной двустенный сосуд с днищами, состоящий из двух секций. Секции разделены между собой перегородкой.
Заполнение и выдача продукта осуществляется через приемно-раздаточные патрубки.
Установка резервуара РГ20(10/10) - подземная.
Заводской номер резервуара в виде цифрового обозначения, состоящий из арабских цифр, нанесен методом сублимации на маркировочную табличку резервуара (рисунок 1). Маркировочная табличка крепится к технологической шахте резервуара.
Резервуар РГ20(10/10) с заводским номером 3076 расположен на территории №2 ФГКУ «Санаторий «Анапа» по адресу: 353456, Краснодарский край, г. Анапа, Пионерский проспект, 72.
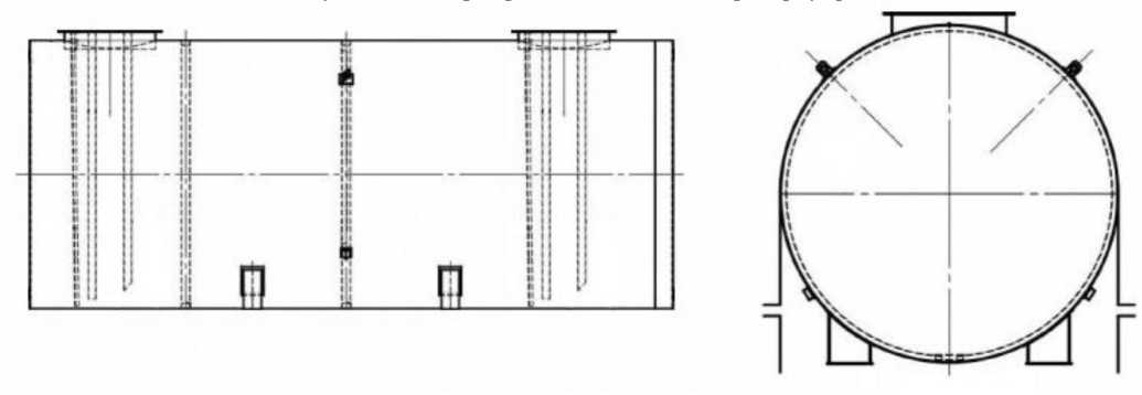
Эскиз общего вида резервуара приведен на рисунке 2. Фотография горловин и измерительных люков приведена на рисунке 3.
Нанесение знака поверки на средство измерений не предусмотрено.
Рисунок 1 - Маркировочная табличка резервуара
Рисунок 2 - Эскиз общего вида резервуара
Рисунок 3 - Горловины и измерительные люки резервуара РГ20(10/10) зав.№ 3076 Пломбирование резервуара РГ20(10/10) не предусмотрено.
Таблица 3 -
|
Наименование |
Обозначение |
Количество |
|
Резервуар горизонтальный стальной цилиндрический |
РГ20(10/10) |
1 шт. |
|
Паспорт |
- |
1 экз. |
|
Градуировочная таблица |
- |
2 экз. |
Таблица 1 - Метрологические характеристики
|
Наименование характеристики |
Значение |
|
Номинальная вместимость, м3 |
20 |
|
Номинальная вместимость секции №1, м3 |
10 |
|
Номинальная вместимость секции №2, м3 |
10 |
|
Пределы допускаемой относительной погрешности определения вместимости (объемный метод), % |
±0,25 |
Таблица 2 - Основные технические характеристики
|
Наименование характеристики |
Значение |
|
Условия эксплуатации: Температура окружающего воздуха, оС Атмосферное давление, кПа |
от -50 до +50 от 84,0 до 106,7 |
|
Средний срок службы, лет, не менее |
20 |

