Номер по Госреестру СИ: 88388-23
88388-23 Резервуар стальной вертикальный цилиндрический
(РВСП-5000)
Назначение средства измерений:
Резервуар стальной вертикальный цилиндрический РВСП-5000 (далее - резервуар) предназначен для измерения объёма нефти при приёме, хранении и отпуске.

Внешний вид.
Резервуар стальной вертикальный цилиндрический
Рисунок № 1

Внешний вид.
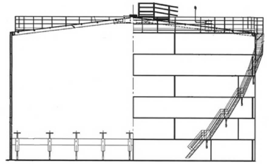
Резервуар стальной вертикальный цилиндрический
Рисунок № 2
Знак утверждения типа
Знак утверждения типананосится на титульный лист паспорта типографским способом.
Сведения о методиках измерений
Сведения о методиках (методах) измеренийФР.1.29.2021.40082 «Государственная система обеспечения единства измерений. Масса нефти. Методика измерений косвенным методом статических измерений в вертикальных резервуарах».
Нормативные и технические документы
Нормативные документы, устанавливающие требования к средству измеренийПриказ Федерального агентства по техническому регулированию и метрологии от 26 сентября 2022 г. № 2356 «Об утверждении Государственной поверочной схемы для средств измерений массы и объема жидкости в потоке, объема жидкости и вместимости при статических измерениях, массового и объемного расходов жидкости».
ПравообладательАкционерное общество «Транснефть - Приволга» (АО «Транснефть - Приволга»)
ИНН 6317024749
Адрес: 443020, г. Самара, ул. Ленинская, д. 100
Тел.: (846) 310-83-11,
Факс: (846)999-84-46
Испытательный центр
Акционерное общество «Транснефть - Метрология» (АО «Транснефть - Метрология»)ИНН 7723107453
Адрес: 123112, г. Москва, Пресненская наб., д. 4, стр. 2
Телефон: +7 (495) 950-87-00
E-mail: cmo@cmo.transneft.ru
Принцип действия резервуара основан на заполнении его нефтью до определённого уровня, соответствующего объёму согласно градуировочной таблицы.
Резервуар представляет собой стальную вертикальную конструкцию цилиндрической формы с понтоном, номинальной вместимостью 5000 м3.
Резервуар с заводским номером № 6 расположен на территории
АО «Транснефть-Приволга» Бугурусланского РНУ, НПС «Муханово» по адресу: Самарская область, Кинель-Черкасский район, промзона-3 г. Отрадный НПС «Муханово».
Заводской номер нанесен на резервуар методом аэрографии в виде цифрового кода.
Пломбирование резервуара не предусмотрено.
Нанесение знака поверки на средство измерений не предусмотрено.
Фотография резервуара и эскиз резервуара представлены на рисунках 1-2.
Рисунок 1 - Фотография резервуара
Рисунок 2 - Эскиз резервуара
Таблица 1 - Метрологические характеристики
|
Наименование характеристики |
Значение |
|
Номинальная вместимость, м3 |
5000 |
|
Пределы допускаемой относительной погрешности определения вместимости резервуара (геометрический метод), % |
±0,1 |
Таблица 2 - Основные технические характеристики
|
Наименование характеристики |
Значение |
|
Условия эксплуатации: | |
|
- температура окружающего воздуха, °С |
от -50 до +50 |
|
- атмосферное давление, кПа |
от 84,0 до 106,7 |
|
Габаритные размеры: | |
|
- диаметр, мм |
22800 |
|
- высота, мм |
11940 |
|
Средний срок службы, лет, не менее |
30 |

