Номер по Госреестру СИ: 88441-23
88441-23 Резервуар стальной горизонтальный цилиндрический
(РГС-3)
Назначение средства измерений:
Резервуар стальной горизонтальный цилиндрический РГС-3 (далее - резервуар) предназначен для измерения объема нефти и нефтепродуктов, а также для их приема, хранения и отпуска.

Внешний вид.
Резервуар стальной горизонтальный цилиндрический
Рисунок № 1

Внешний вид.
Резервуар стальной горизонтальный цилиндрический
Рисунок № 2
Общие сведения
Дата публикации - 09.03.2023
Срок свидетельства -
Номер записи - 190469
ID в реестре СИ - 1406236
Тип производства - единичное
Описание типа
Поверка
Интервал между поверками по ОТ - 5 лет
Наличие периодической поверки - Да
Методика поверки
Модификации СИ
Нет модификации,
Производитель
Изготовитель - Акционерное общество "Белкамнефть" имени А.А. Волкова (АО "Белкамнефть" им. А.А. Волкова)
Страна - РОССИЯ
Населенный пункт - Удмуртская Республика, г. Ижевск
Уведомление о начале осуществления предпринимательской деятельности - Да
Отчет позволяет оценить частоту использования эталонов в РФ.
Период исследований: 01.01.2020 - н.в.
Анализ проводится по ГЭТ, аттестованным эталонам или СИ, применяемым в качестве эталонов.
Отчет будет особенно полезен при осуществлении надзорной деятельности.
Входными фильтрами являются: минимальное количество поверок в год, год исследования (с функцией множественного выбора) и вид эталона(с функцией множественного выбора).
В отчете присутствуют перекрестные ссылки на иные отчеты.
Статистика
Кол-во поверок - 3
Выдано извещений - 0
Кол-во периодических поверок - 0
Кол-во средств измерений - 1
Кол-во владельцев - 2
Усредненный год выпуска СИ - 0
МПИ по поверкам - 1826 дн.
Приказы РСТ, где упоминается данный тип СИ
№485 от 2023.03.09 ПРИКАЗ_Об утверждении типов средств измерений (24)
Наличие аналогов СИ: Резервуар стальной горизонтальный цилиндрический (РГС-3)
| ИМПОРТНОЕ СИ № в реестре, наименование СИ, обозначение, изголовитель |
ОТЕЧЕСТВЕННЫЙ АНАЛОГ № в реестре, наименование СИ, обозначение, изголовитель |
|---|
Все средства измерений Акционерное общество "Белкамнефть" имени А.А. Волкова (АО "Белкамнефть" им. А.А. Волкова)
|
№ в реестре cрок св-ва |
Наименование СИ, обозначение, изголовитель | ОТ, МП | МПИ |
|---|---|---|---|
|
82671-21 |
Система автоматизированная информационно-измерительная коммерческого учета электроэнергии (АИИС КУЭ) АО "Белкамнефть" им. А.А. Волкова (УР в сечении ООО "РН-Энерго"), 1, 8, 3, 9, 0, 8 Акционерное общество "Белкамнефть" имени А.А. Волкова (АО "Белкамнефть" им. А.А. Волкова) (РОССИЯ Удмуртская Республика, г. Ижевск) |
ОТ МП |
4 года |
|
87646-22 |
Резервуар стальной горизонтальный цилиндрический, ЕП-3-1400-1400 Акционерное общество "Белкамнефть" имени А.А. Волкова (АО "Белкамнефть" им. А.А. Волкова) (РОССИЯ Удмуртская Республика, г. Ижевск) |
ОТ МП |
5 лет |
|
87647-22 |
Резервуар стальной горизонтальный цилиндрический, РГС-10 Акционерное общество "Белкамнефть" имени А.А. Волкова (АО "Белкамнефть" им. А.А. Волкова) (РОССИЯ Удмуртская Республика, г. Ижевск) |
ОТ МП |
5 лет |
|
87663-22 |
Резервуар стальной горизонтальный цилиндрический, РГС-6 Акционерное общество "Белкамнефть" имени А.А. Волкова (АО "Белкамнефть" им. А.А. Волкова) (РОССИЯ Удмуртская Республика, г. Ижевск) |
ОТ МП |
5 лет |
|
87664-22 |
Резервуары стальные горизонтальные цилиндрические, ЕП8-2000-1300-2 Акционерное общество "Белкамнефть" имени А.А. Волкова (АО "Белкамнефть" им. А.А. Волкова) (РОССИЯ Удмуртская Республика, г. Ижевск) |
ОТ МП |
5 лет |
|
87732-22 |
Резервуары стальные вертикальные цилиндрические, РВС-2000 Акционерное общество "Белкамнефть" имени А.А. Волкова (АО "Белкамнефть" им. А.А. Волкова) (РОССИЯ Удмуртская Республика, г. Ижевск) |
ОТ МП |
5 лет |
|
87733-22 |
Резервуары стальные вертикальные цилиндрические, РВС-2000 Акционерное общество "Белкамнефть" имени А.А. Волкова (АО "Белкамнефть" им. А.А. Волкова) (РОССИЯ Удмуртская Республика, г. Ижевск) |
ОТ МП |
5 лет |
|
87734-22 |
Резервуары стальные вертикальные цилиндрические, РВС-4000 Акционерное общество "Белкамнефть" имени А.А. Волкова (АО "Белкамнефть" им. А.А. Волкова) (РОССИЯ Удмуртская Республика, г. Ижевск) |
ОТ МП |
5 лет |
|
87735-22 |
Резервуар стальной вертикальный цилиндрический, РВС-2000 Акционерное общество "Белкамнефть" имени А.А. Волкова (АО "Белкамнефть" им. А.А. Волкова) (РОССИЯ Удмуртская Республика, г. Ижевск) |
ОТ МП |
5 лет |
|
87736-22 |
Резервуар стальной вертикальный цилиндрический, РВС-3000 Акционерное общество "Белкамнефть" имени А.А. Волкова (АО "Белкамнефть" им. А.А. Волкова) (РОССИЯ Удмуртская Республика, г. Ижевск) |
ОТ МП |
5 лет |
|
88437-23 |
Резервуары стальные горизонтальные цилиндрические, РГС-100 Акционерное общество "Белкамнефть" имени А.А. Волкова (АО "Белкамнефть" им. А.А. Волкова) (РОССИЯ Удмуртская Республика, г. Ижевск) |
ОТ МП |
5 лет |
|
88438-23 |
Резервуар стальной вертикальный цилиндрический теплоизолированный, РВС-400 Акционерное общество "Белкамнефть" имени А.А. Волкова (АО "Белкамнефть" им. А.А. Волкова) (РОССИЯ Удмуртская Республика, г. Ижевск) |
ОТ МП |
5 лет |
|
88441-23 |
Резервуар стальной горизонтальный цилиндрический, РГС-3 Акционерное общество "Белкамнефть" имени А.А. Волкова (АО "Белкамнефть" им. А.А. Волкова) (РОССИЯ Удмуртская Республика, г. Ижевск) |
ОТ МП |
5 лет |
|
88442-23 |
Резервуар стальной горизонтальный цилиндрический, РГС-40 Акционерное общество "Белкамнефть" имени А.А. Волкова (АО "Белкамнефть" им. А.А. Волкова) (РОССИЯ Удмуртская Республика, г. Ижевск) |
ОТ МП |
5 лет |
|
88443-23 |
Резервуар стальной горизонтальный цилиндрический, РГС-50 Акционерное общество "Белкамнефть" имени А.А. Волкова (АО "Белкамнефть" им. А.А. Волкова) (РОССИЯ Удмуртская Республика, г. Ижевск) |
ОТ МП |
5 лет |
|
88444-23 |
Резервуар стальной горизонтальный цилиндрический, РГС-5 Акционерное общество "Белкамнефть" имени А.А. Волкова (АО "Белкамнефть" им. А.А. Волкова) (РОССИЯ Удмуртская Республика, г. Ижевск) |
ОТ МП |
5 лет |
|
88451-23 |
Резервуары стальные горизонтальные цилиндрические, РГС-100 Акционерное общество "Белкамнефть" имени А.А. Волкова (АО "Белкамнефть" им. А.А. Волкова) (РОССИЯ Удмуртская Республика, г. Ижевск) |
ОТ МП |
5 лет |
|
88452-23 |
Резервуар стальной горизонтальный цилиндрический, РГС-50 Акционерное общество "Белкамнефть" имени А.А. Волкова (АО "Белкамнефть" им. А.А. Волкова) (РОССИЯ Удмуртская Республика, г. Ижевск) |
ОТ МП |
5 лет |
|
88523-23 |
Резервуары стальные горизонтальные цилиндрические, РГС-100 Акционерное общество "Белкамнефть" имени А.А. Волкова (АО "Белкамнефть" им. А.А. Волкова) (РОССИЯ Удмуртская Республика, г. Ижевск) |
ОТ МП |
5 лет |
|
88554-23 |
Резервуар стальной горизонтальный цилиндрический, РГС-75 Акционерное общество "Белкамнефть" имени А.А. Волкова (АО "Белкамнефть" им. А.А. Волкова) (РОССИЯ Удмуртская Республика, г. Ижевск) |
ОТ МП |
5 лет |
|
88555-23 |
Резервуар стальной горизонтальный цилиндрический, РГС-200 Акционерное общество "Белкамнефть" имени А.А. Волкова (АО "Белкамнефть" им. А.А. Волкова) (РОССИЯ Удмуртская Республика, г. Ижевск) |
ОТ МП |
5 лет |
|
88556-23 |
Резервуар стальной горизонтальный цилиндрический, РГС-13 Акционерное общество "Белкамнефть" имени А.А. Волкова (АО "Белкамнефть" им. А.А. Волкова) (РОССИЯ Удмуртская Республика, г. Ижевск) |
ОТ МП |
5 лет |
|
88557-23 |
Резервуары стальные горизонтальные цилиндрические, РГС-200 Акционерное общество "Белкамнефть" имени А.А. Волкова (АО "Белкамнефть" им. А.А. Волкова) (РОССИЯ Удмуртская Республика, г. Ижевск) |
ОТ МП |
5 лет |
|
88575-23 |
Резервуары стальные вертикальные цилиндрические, РВС-5000 Акционерное общество "Белкамнефть" имени А.А. Волкова (АО "Белкамнефть" им. А.А. Волкова) (РОССИЯ Удмуртская Республика, г. Ижевск) |
ОТ МП |
5 лет |
|
88576-23 |
Резервуары стальные вертикальные цилиндрические, РВС-2000 Акционерное общество "Белкамнефть" имени А.А. Волкова (АО "Белкамнефть" им. А.А. Волкова) (РОССИЯ Удмуртская Республика, г. Ижевск) |
ОТ МП |
5 лет |
|
88577-23 |
Резервуар стальной вертикальный цилиндрический, РВС-700 Акционерное общество "Белкамнефть" имени А.А. Волкова (АО "Белкамнефть" им. А.А. Волкова) (РОССИЯ Удмуртская Республика, г. Ижевск) |
ОТ МП |
5 лет |
|
90237-23 |
Резервуары стальные горизонтальные цилиндрические, РГС Акционерное общество "Белкамнефть" имени А.А. Волкова (АО "Белкамнефть" им. А.А. Волкова) (РОССИЯ Удмуртская Республика, г. Ижевск) |
ОТ МП |
5 лет |
|
90574-23 |
Резервуар стальной вертикальный цилиндрический теплоизолированный, РВС-400 Акционерное общество "Белкамнефть" имени А.А. Волкова (АО "Белкамнефть" им. А.А. Волкова) (РОССИЯ Удмуртская Республика, г. Ижевск) |
ОТ МП |
5 лет |
|
90575-23 |
Резервуар стальной вертикальный цилиндрический, РВС-2000 Акционерное общество "Белкамнефть" имени А.А. Волкова (АО "Белкамнефть" им. А.А. Волкова) (РОССИЯ Удмуртская Республика, г. Ижевск) |
ОТ МП |
5 лет |
|
95012-25 |
Резервуар горизонтальный стальной цилиндрический, РГС-75 Акционерное общество "Белкамнефть" имени А.А. Волкова (АО "Белкамнефть" им. А.А. Волкова) (РОССИЯ Удмуртская Республика, г. Ижевск) |
ОТ МП |
5 лет |
|
95013-25 |
Резервуар горизонтальный стальной цилиндрический, РГС-180 Акционерное общество "Белкамнефть" имени А.А. Волкова (АО "Белкамнефть" им. А.А. Волкова) (РОССИЯ Удмуртская Республика, г. Ижевск) |
ОТ МП |
5 лет |
|
95014-25 |
Резервуар горизонтальный стальной цилиндрический, РГС-180 Акционерное общество "Белкамнефть" имени А.А. Волкова (АО "Белкамнефть" им. А.А. Волкова) (РОССИЯ Удмуртская Республика, г. Ижевск) |
ОТ МП |
5 лет |
Отчет содержит данные по количеству типов средств измерений в ФГИС АРШИН и позволяет осуществлять выборки записей по дружественным и недружественным странам и группам СИ (более 850 групп). Список дружественных и недружественных стран сформирован в соответствии с Распоряжением Правительства РФ от 05.03.2022 N 430-р <Об утверждении перечня иностранных государств и территорий, совершающих недружественные действия в отношении Российской Федерации, российских юридических и физических лиц>.
Кроме того, в отчете строится "Гистограмма по дружественным странам", которая наглядно показывает частоту распределение процентного соотношения между дружественными и недружественными странами. По оси OX откладывается в % кол-во типов СИ дружественных стран от 0 до 100%, а по оси OY кол-во групп СИ. Таким образом, в первую колонку попадут только те группы СИ, у которых кол-во типов СИ дружественных стран не превышает 10%. Гистограмма имеет возможность масштабирования и экспорта данных в Exel.
Бесплатный
Кто поверяет Резервуар стальной горизонтальный цилиндрический (РГС-3)
| Наименование организации | Cтатус | Поверенные модификации | Кол-во поверок | Поверок в 2025 году | Первичных поверок | Периодических поверок | Извещений | Для юриков | Для юриков первичные | Для юриков периодические |
|---|---|---|---|---|---|---|---|---|---|---|
| ООО "МЕТРОКОНТ" (RA.RU.311686) | 3 | 3 | 0 | 0 | 3 | 3 | 0 |
Стоимость поверки Резервуар стальной горизонтальный цилиндрический (РГС-3)
| Организация, регион | Стоимость, руб | Средняя стоимость |
|---|
Знак утверждения типа
Знак утверждения типананосится на титульный лист паспорта резервуара типографским способом.
Сведения о методиках измерений
Сведения о методиках (методах) измеренийприведены в пункте 8 паспорта на резервуар.
Нормативные и технические документы
Нормативные документы, устанавливающие требования к средству измеренийПриказ Федерального агентства по техническому регулированию и метрологии от 26 сентября 2022 г. № 2356 «Об утверждении Государственной поверочной схемы для средств измерений массы и объема жидкости в потоке, объема жидкости и вместимости при статических измерениях, массового и объемного расходов жидкости».
ПравообладательАкционерное общество «Белкамнефть» имени А.А.Волкова (АО «Белкамнефть» им. А.А.Волкова)
ИНН 0264015786
Адрес: 426004, Удмуртская Республика, г. Ижевск, ул. Пастухова, д. 100
Телефон/ факс: +7(3412) 911-730/ (3412) 911-611
E-mail: belkamneft@belkam.com
Изготовитель
Акционерное общество «Белкамнефть» имени А.А.Волкова (АО «Белкамнефть» им. А.А.Волкова)ИНН 0264015786
Адрес: 426004, Удмуртская Республика, г. Ижевск, ул. Пастухова, д. 100
Телефон/ факс: +7(3412) 911-730/ (3412) 911-611
E-mail: belkamneft@belkam.com
Испытательный центр
Общество с ограниченной ответственностью «МетроКонТ» (ООО «МетроКонТ») Адрес: 420132, Республика Татарстан, г. Казань, ул. Адоратского, д. 39Б, оф. 51 Телефон: +7 9372834420Факс +7 (843) 515-00-21
E-mail: trifonovua@mail.ru
Правообладатель
Акционерное общество «Белкамнефть» имени А.А.Волкова (АО «Белкамнефть» им. А.А.Волкова)ИНН 0264015786
Адрес: 426004, Удмуртская Республика, г. Ижевск, ул. Пастухова, д. 100
Телефон/ факс: +7(3412) 911-730/ (3412) 911-611
E-mail: belkamneft@belkam.com
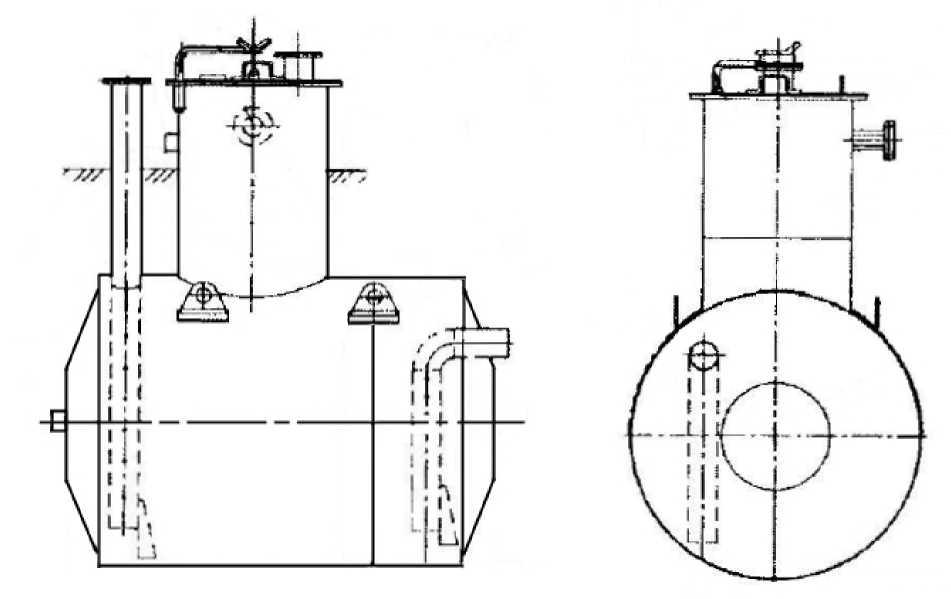
Тип резервуара - стальной горизонтальный цилиндрический, номинальной вместимостью 3 м3 подземного расположения.
Принцип действия резервуара основан на заполнении его нефтью или нефтепродуктом до определенного уровня, соответствующего заданному значению объема.
Резервуар представляет собой горизонтально расположенный цилиндрический стальной сосуд с днищами.
Заполнение и выдача продукта осуществляется через приемно-раздаточные патрубки.
Заводской номер в виде цифрового обозначения, состоящий из арабских цифр и обеспечивающий идентификацию резервуара, нанесен на информационную табличку резервуара.
Резервуар РГС-3 с заводским номером 11, расположен на территории ППСН Черновского месторождения нефти по адресу: Удмуртская Республика, Воткинский район.
Эскиз общего вида резервуара приведен на рисунке 1. Фотография горловины и измерительного люка приведена на рисунке 2.
Нанесение знака поверки на средство измерений не предусмотрено.
Рисунок 1 - Эскиз общего вида резервуара
Рисунок 2 - Горловина и измерительный люк резервуара
Пломбирование резервуара РГС-3 не предусмотрено.
Лист № 3
Всего листов 4
Таблица 1 - Метрологические характеристики
|
Наименование характеристики |
Значение |
|
Номинальная вместимость, м3 |
3 |
|
Пределы допускаемой относительной погрешности определения вместимости (объемный метод), % |
±0,25 |
Таблица 2 - Основные технические характеристики
|
Наименование характеристики |
Значение |
|
Условия эксплуатации: | |
|
Температура окружающего воздуха, оС |
от -50 до +50 |
|
Атмосферное давление, кПа |
от 84,0 до 106,7 |
|
Средний срок службы, лет, не менее |
20 |

