Номер по Госреестру СИ: 89319-23
89319-23 Преобразователи термоэлектрические
(ТПП 2101)
Назначение средства измерений:
Преобразователи термоэлектрические ТПП 2101 (далее по тексту -термопреобразователи или ТП) предназначены для измерений температуры газообразных сред, в т.ч. агрессивных, в специализированных реакторных установках.

Внешний вид.
Преобразователи термоэлектрические
Рисунок № 1

Внешний вид.
Преобразователи термоэлектрические
Рисунок № 2

Внешний вид.
Преобразователи термоэлектрические
Рисунок № 3

Внешний вид.
Преобразователи термоэлектрические
Рисунок № 4
Знак утверждения типа
Знак утверждения типананосится на титульный лист паспорта и Руководства по эксплуатации типографским способом.
Сведения о методиках измерений
Сведения о методиках (методах) измерений
приведены в разделе 1.6 «Устройство и работа» документа МКСН.405124.009 РЭ «Преобразователь термоэлектрический ТПП 2101. Руководство по эксплуатации».
Нормативные и технические документы
Нормативные документы, устанавливающие требования к средствам измерений
ГОСТ Р 8.585-2001 ГСИ. Термопары. Номинальные статические характеристики преобразования;
ГОСТ 6616-94 Преобразователи термоэлектрические. Общие технические условия;
Приказ Федерального агентства по техническому регулированию и метрологии от 23 декабря 2022 г. № 3253 «Об утверждении Государственной поверочной схемы для средств измерений температуры»;
МКСН.405124.009 ТУ Преобразователь термоэлектрический ТПП 2101. Технические условия.
Правообладатель
Акционерное общество «Научно-производственное предприятие «ЭТАЛОН»
(АО «НПП «ЭТАЛОН»)
ИНН 5504087401
Юридический адрес: 644009, г. Омск, ул. Лермонтова, д. 175
Телефоны: +7 (3812) 36-84-00, +7 (3812) 36-94-53, +7 (3812) 36-79-18
E-mail: fgup@omsketalon.ru
Web-сайт: http://www.omsketalon.ru/
Изготовитель
Акционерное общество «Научно-производственное предприятие «ЭТАЛОН»
(АО «НПП «ЭТАЛОН»)
ИНН 5504087401
Адрес: 644009, г. Омск, ул. Лермонтова, д. 175
Телефоны: +7 (3812) 36-84-00, +7 (3812) 36-94-53, +7 (3812) 36-79-18
E-mail: fgup@omsketalon.ru
Web-сайт: http://www.omsketalon.ru/
Испытательный центр
Федеральное государственное бюджетное учреждение «Всероссийский научно-исследовательский институт метрологической службы» (ФГБУ «ВНИИМС») Адрес: 119361, г. Москва, вн. тер. г. муниципальный округ Очаково-Матвеевское, ул. Озерная, д. 46Телефон/факс: +7 (495) 437-55-77 / (495) 437-56-66
E-mail: office@vniims.ru
Web-сайт: www.vniims.ru
Правообладатель
Акционерное общество «Научно-производственное предприятие «ЭТАЛОН»
(АО «НПП «ЭТАЛОН»)
ИНН 5504087401
Юридический адрес: 644009, г. Омск, ул. Лермонтова, д. 175
Телефоны: +7 (3812) 36-84-00, +7 (3812) 36-94-53, +7 (3812) 36-79-18
E-mail: fgup@omsketalon.ru
Web-сайт: http://www.omsketalon.ru/
Принцип работы термопреобразователей основан на термоэлектрическом эффекте -генерировании термоэлектродвижущей силы, возникающей из-за разности температур между двумя соединениями различных металлов или сплавов, образующих часть одной и той же цепи.
ТП представляет собой чувствительный элемент (ЧЭ), помещенный в защитную арматуру. Термоэлектроды чувствительного элемента изготовлены из платиновой и платинородиевой проволоки и установлены в корундовый двухканальный изолятор, который помещен в сапфировый чехол. Защитная арматура состоит из коммутационной (или соединительной) головки, монтажного элемента (присоединительного фланца) и погружаемой части. Металлическая часть монтажной части защитной арматуры выполнена из материала 10Х17Н13М2Т. Фланец и соединительная головка выполнены из нержавеющей стали марки 12Х18Н10Т. Материалом погружаемой части ТП является вакуумплотная керамика.
При необходимости, в т.ч. для проведения работ по поверке или калибровки, сапфировый чехол с ЧЭ (измерительная вставка ТП) может быть извлечен из защитной арматуры ТП, и после завершения работ смонтирован обратно.
По способу контакта с измеряемой средой ТП относится к погружаемым средствам измерения.
ТП по уровню взрывозащиты относится к особовзрывобезопасному оборудованию.
ТП является стационарным, невосстанавливаемым, неремонтируемым,
однофункцинальным, одноканальным изделием.
Заводской номер в виде числового обозначения наносится на маркировочную табличку, прикрепленную к кабельному выводу соединительной головки термопреобразователя. Конструкция средства измерений не предусматривает нанесение знака поверки на корпус ТП.
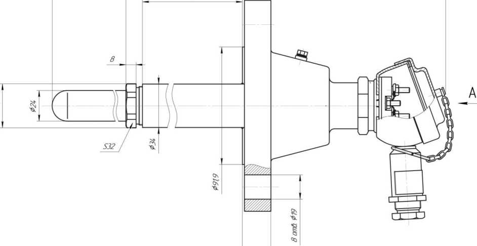
Фотография общего вида ТП с указанием места нанесения заводского номера приведена на рисунке 1. Габаритный чертеж ТП приведен на рисунке 2.
а)
Место нанесения заводского номера
б)
Рисунок 1 - Общий вид преобразователя термоэлектрического ТПП 2101 (а) с указанием места нанесения заводского номера (б)
580 , 160
H8
135.5
#3L,5
22.3
Рисунок 2 - Габаритный чертеж ТП
Пломбировка ТП осуществляется при помощи специальной наклейки, закрывающей крепежные элементы измерительной вставки. Схема пломбировки ТП приведена на рисунке 3.
Место пломбировки
Рисунок 3 - Схема пломбировки ТПП 2101
Программное обеспечение отсутствует.
|
Таблица 3 - Комплектность средств измерений | ||
|
Наименование |
Обозначение |
Количество |
|
Преобразователь термоэлектрический |
ТПП 2101 |
1 шт. |
|
Паспорт |
МКСН.405124.009 ПС |
1 экз. |
|
Руководство по эксплуатации |
МКСН.405124.009 РЭ |
1 экз. |
|
Комплект монтажных частей |
- |
1 комплект(1) |
|
Копия сертификата соответствия |
- |
1 экз. |
|
Примечание: (1) - по отдельному заказу. | ||
Метрологические и основные технические характеристики ТП приведены в таблицах 1-2.
Таблица 1 - Метрологические характеристики
|
Наименование характеристики |
Значение |
|
Диапазон измерений температуры, °С |
от 0 до +1450 |
|
Номинальная температура применения ТП, °С |
+1300 |
|
Условное обозначение типа НСХ ЧЭ ТП по ГОСТ Р 8.585-2001 |
S |
|
Класс допуска по ГОСТ 6616-94 (ГОСТ Р 8.585-2001) |
2 |
|
Пределы допускаемых отклонений ТЭДС ТП от НСХ (Д), °С
|
±1,5 ±0,0025Ч(1) |
|
Нестабильность ТП, °C, не более |
0,5-Д (2) |
|
Примечания:
| |
Таблица 2 - Основные технические характеристики
|
Наименование характеристики |
Значение |
|
Электрическое сопротивление изоляции, МОм, не менее: - при температуре от +15 °С до +35 °С и относительной влажности от 30 % до 80 % |
100 |
|
Испытательное напряжение при проверке электрической прочности изоляции ТП без пробоя и перекрытия в течение 1 мин, В |
250 |
|
Показатель тепловой инерции, с, не более |
1000 |
|
Длина монтажной части ТП, мм, не более |
580 |
|
Длина погружаемой части ТП, мм, не более |
430 |
|
Диаметр погружаемой части ТП, мм, не более |
24 |
|
Длина погружаемой части измерительной вставки ТП, мм, не более |
550 |
|
Диаметр погружаемой части измерительной вставки ТП, мм, не более |
7 |
|
Масса, кг, не более |
6,5 |
|
Рабочие условия эксплуатации:
|
от -50 до +85 |
|
+40 ОС), % |
до 100 |
|
Маркировка взрывозащиты по ГОСТ 31610.0-2019 |
0Ех ia IIC T5 Ga X |
|
Степень защиты от воздействия пыли и воды по ГОСТ 14254-2015 |
IP66 |
|
Средняя наработка до отказа, ч, не менее: - при температуре верхнего предела рабочего диапазона температур |
100 |
|
- при температуре применения не выше номинального значения |
8000 |
|
Средний срок службы, лет, не менее |
1 |

