Номер по Госреестру СИ: 91310-24
91310-24 Резервуар стальной горизонтальный цилиндрический
(РГС-5)
Назначение средства измерений:
Резервуар стальной горизонтальный цилиндрический РГС-5 (далее - резервуар) предназначен для измерения объема нефти и нефтепродуктов при приёме, хранении и отпуске.

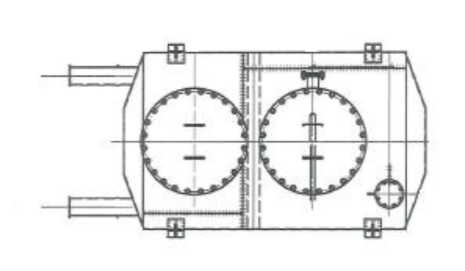
Внешний вид.
Резервуар стальной горизонтальный цилиндрический
Рисунок № 1

Внешний вид.
Резервуар стальной горизонтальный цилиндрический
Рисунок № 2

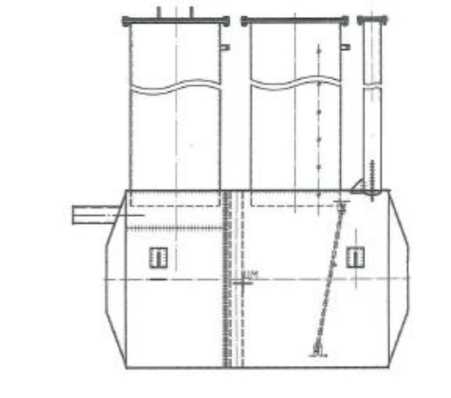
Внешний вид.
Резервуар стальной горизонтальный цилиндрический
Рисунок № 3

Внешний вид.
Резервуар стальной горизонтальный цилиндрический
Рисунок № 4
Знак утверждения типа
Знак утверждения типананосится на титульный лист паспорта типографским способом.
Сведения о методиках измерений
Сведения о методиках (методах) измерений приведены в п.7.5 паспорта.
Нормативные и технические документы
Нормативные и технические документы, устанавливающие требования к средству измерений
Приказ Федерального агентства по техническому регулированию и метрологии от 26 сентября 2022 г. № 2356 «Об утверждении Государственной поверочной схемы для средств измерений массы и объема жидкости в потоке, объема жидкости и вместимости при статических измерениях, массового и объемного расходов жидкости».
Правообладатель
Акционерное общество «Транснефть - Урал» (АО «Транснефть - Урал»)
ИНН 0278039018
Юридический адрес: 450008, Республика Башкортостан, г. Уфа, ул. Крупской, д. 10
Изготовитель
Акционерное общество «Транснефть - Урал» (АО «Транснефть - Урал»)
ИНН 0278039018
Адрес: 450008, Республика Башкортостан, г. Уфа, ул. Крупской, д. 10
Испытательный центр
Акционерное общество «Транснефть - Метрология» (АО «Транснефть - Метрология») Адрес: 123112, г. Москва, Пресненская наб., д. 4, стр. 2
Телефон: +7 (495) 950-87-00, факс: +7 (495) 950-85-97
Web-сайт: https://metrology.transneft.ru/
E-mail: cmo@cmo.transneft.ru
Правообладатель
Акционерное общество «Транснефть - Урал» (АО «Транснефть - Урал»)
ИНН 0278039018
Юридический адрес: 450008, Республика Башкортостан, г. Уфа, ул. Крупской, д. 10
Принцип действия резервуара основан на заполнении его продуктом до определенного уровня, соответствующего объему согласно градуировочной таблице резервуара.
Резервуар представляет собой стальную горизонтальную конструкцию цилиндрической формы с усеченно-коническими днищами.
Тип установки резервуара - подземный.
Резервуар с заводским № 6803 расположен на территории ЛПДС «Салават».
Заводской номер нанесен на маркировочную табличку типографским способом в виде цифрового кода.
Пломбирование резервуара не предусмотрено.
Нанесение знака поверки на резервуар не предусмотрено.
Эскиз общего вида резервуара представлен на рисунке 1.
Фотография маркировочной таблички, горловины и крышки замерного люка
резервуара представлена на рисунке 2.

Рисунок 1 - Эскиз общего вида резервуара


Рисунок 2 - Фотография маркировочной таблички, горловины и крышки замерного люка резервуара
Таблица 3 -
|
Наименование |
Обозначение |
Количество, шт./ экз. |
|
Резервуар стальной горизонтальный цилиндрический |
РГС-5 |
1 |
|
Паспорт |
- |
1 |
|
Градуировочная таблица |
- |
1 |
Таблица 1 - Метрологические характеристики
|
Наименование характеристики |
Значение |
|
Номинальная вместимость, м3 |
5 |
|
Пределы допускаемой относительной погрешности определения вместимости резервуара (объемный метод), % |
±0,25 |
Таблица 2 - Основные технические характеристики
|
Наименование характеристики |
Значение |
|
Условия эксплуатации:
|
от -40 до +50 от 84 до 106,7 |
|
Средний срок службы, лет, не менее |
50 |

