Номер по Госреестру СИ: 96152-25
96152-25 Резервуар горизонтальный стальной цилиндрический
(РГП 25-1-1-О-У)
Назначение средства измерений:
Резервуар горизонтальный стальной цилиндрический РГП 25-1-1-О-У
(далее - резервуар) предназначен для измерений объема нефти и нефтепродуктов, а также для их приема, хранения и отпуска.

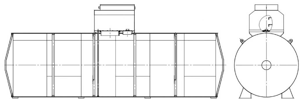
Внешний вид.
Резервуар горизонтальный стальной цилиндрический
Рисунок № 1

Внешний вид.
Резервуар горизонтальный стальной цилиндрический
Рисунок № 2
Знак утверждения типа
Знак утверждения типананосится на титульный лист паспорта резервуара типографским способом.
Сведения о методиках измерений
Сведения о методиках (методах) измерений
приведены в пункте 8 паспорта на резервуар.
Нормативные и технические документы
Нормативные документы, устанавливающие требования к средству измерений Приказ Росстандарта от 26 сентября 2022 г. № 2356 «Об утверждении Государственной поверочной схемы для средств измерений массы и объема жидкости в потоке, объема жидкости и вместимости при статических измерениях, массового и объемного расходов жидкости».
Правообладатель
Общество с ограниченной ответственностью «Углерод»
(ООО «Углерод»)
ИНН 6147021593
Юридический адрес: 347830, Ростовская обл., Каменский р-н, хутор Старая Станица, ул. Железнодорожная, д.1
Испытательный центр
Общество с ограниченной ответственностью «МетроКонТ» (ООО «МетроКонТ»)Адрес места осуществления деятельности: 420036, Республика Татарстан, г. Казань, ул. Тэцевская, д. 4б, помещ. 1011
Юридический адрес: 420132, Республика Татарстан, г. Казань, ул. Адоратского, д. 39Б, офис 51
Телефон: +7 9196969693
E-mail: trifonovua@mail.ru
Правообладатель
Общество с ограниченной ответственностью «Углерод»
(ООО «Углерод»)
ИНН 6147021593
Юридический адрес: 347830, Ростовская обл., Каменский р-н, хутор Старая Станица, ул. Железнодорожная, д.1
Тип резервуара - горизонтальный стальной цилиндрический, номинальной вместимостью 25 м3 подземного расположения.
Принцип действия резервуара основан на заполнении его нефтью или нефтепродуктом до определенного уровня, соответствующего заданному значению объема.
Резервуар представляет собой горизонтально расположенный цилиндрический стальной сосуд с днищами.
Заполнение и выдача продукта осуществляется через приемно-раздаточные патрубки.
Заводской номер резервуара в виде цифрового обозначения, состоящий из арабских цифр, нанесен ударным способом на маркировочную табличку резервуара. Маркировочная табличка крепится к корпусу резервуара.
Резервуар РГП 25-1-1-О-У с заводским номером 0220 расположен по адресу: Республика Южная Осетия, нп Орчосан.
Эскиз общего вида резервуара приведен на рисунке 1. Фотография горловины и измерительного люка приведена на рисунке 2.
Нанесение знака поверки на средство измерений не предусмотрено.
Рисунок 1 - Эскиз общего вида резервуара
Место нанесения заводского номера
Рисунок 2 - Горловина и измерительный люк резервуара
РГП 25-1-1-О-У зав.№ 0220
Пломбирование резервуара РГП 25-1-1-О-У не предусмотрено.
Таблица 1 - Метрологические характеристики
|
Наименование характеристики |
Значение |
|
Номинальная вместимость, м3 |
25 |
|
Пределы допускаемой относительной погрешности определения вместимости (объемный метод), % |
±0,25 |
Таблица 2 - Технические характеристики
|
Наименование характеристики |
Значение |
|
Условия эксплуатации: Температура окружающего воздуха, оС Атмосферное давление, кПа |
от -50 до +50 от 84,0 до 106,7 |
Таблица 3 - Показатели надежности
|
Наименование характеристики |
Значение |
|
Средний срок службы, лет, не менее |
10 |

