Номер по Госреестру СИ: 71026-18
71026-18 Теплосчетчики
("Счетприбор ТСС")
Назначение средства измерений:
Теплосчётчики «Счётприбор» ТСС (далее - теплосчётчики) предназначены для измерения тепловой энергии, энергии охлаждения, объёма и температуры теплоносителя в водяных системах теплоснабжения, а также хранения, отображения и передачи результатов измерений.

Внешний вид.
Теплосчетчики
Рисунок № 1

Внешний вид.
Теплосчетчики
Рисунок № 2

Внешний вид.
Теплосчетчики
Рисунок № 3
Программное обеспечение
Теплосчётчики имеют встроенное программное обеспечение (ПО), которое устанавливается (прошивается) в памяти вычислителя при изготовлении, в процессе эксплуатации данное ПО не может быть изменено, т.к. пользователь не имеет к нему доступа.
ПО предназначено для: сбора, преобразования, обработки, отображения на индикаторном устройстве вычислителя и передачи во внешние измерительные системы результатов измерений и диагностической информации. Нормирование метрологических характеристик теплосчётчиков проведено с учетом влияния ПО.
Конструкция теплосчётчиков исключает возможность несанкционированного влияния на ПО СИ и измерительную информацию. Уровень защиты ПО и измерительной информации от преднамеренных и непреднамеренных изменений «высокий» в соответствии с Р 50.2.077-2014.
Идентификационные данные ПО приведены в таблице 1.
Таблица 1 - Идентификационные данные ПО
|
Идентификационные данные ПО |
Значение |
|
Идентификационное наименование ПО |
СПЭФ.407291.001 ПО |
|
Номер версии ПО, не ниже |
0.1 |
|
Цифровой идентификатор ПО (контрольная сумма исполняемого кода) |
-* |
|
Алгоритм вычисления цифрового идентификатора ПО |
-* |
|
* Данные недоступны, так как данное ПО не может быть модифицировано, загружено | |
|
или прочитано через какой-либо интерфейс после опломбирования. | |
Знак утверждения типа
Знак утверждения типананосится на лицевую панель теплосчётчика любым технологическим способом, обеспечивающим четкое изображение этого знака, его стойкость к внешним воздействующим факторам, а также сохраняемость, и на титульном листе руководства по эксплуатации типографским способом.
Сведения о методиках измерений
Сведения о методиках (методах) измерений приведены в эксплуатационном документе.
Нормативные и технические документы
Нормативные и технические документы, устанавливающие требования к теплосчётчикам «Счётприбор» ТСС
Приказ Минстроя России от 17.03.2014 № 99/пр Об утверждении Методики осуществления коммерческого учета тепловой энергии, теплоносителя
Приказ Росстандарта от 07.02.2018 г. № 256 Об утверждении Государственной поверочной схемы для средств измерений массы и объема жидкости в потоке, объема жидкости и вместимости при статических измерениях, массового и объемного расходом жидкости
ГОСТ 8.558-2009 ГСИ. Государственная поверочная схема для средств измерений температуры
ГОСТ Р ЕН 1434-1-2011 Теплосчетчики. Часть 1. Общие требования
ГОСТ Р 51649-2014 Теплосчетчики для водяных систем теплоснабжения. Общие технические условия».
СПЭФ.407291.001-2017 ТУ Теплосчётчики «Счётприбор» ТСС. Технические условия
Поверка
Поверкаосуществляется по документу СПЭФ.407291.001 МП «Теплосчётчики «Счётприбор» ТСС. Методика поверки», утвержденному ЗАО КИП «МЦЭ» 27.12.2017 г.
Основные средства поверки:
-
- рабочий эталон 2-го разряда по приказу Росстандарта от 07.02.2018 г. № 256 (установка поверочная с диапазоном воспроизведения объемного расхода от 0,012 до 5 м3/ч и пределами допускаемой погрешности измерений не более ± 0,5 %);
-
- термостаты переливные прецизионные Т11П-1, рег. № 33744-07;
-
- рабочий эталон 3-го разряда по ГОСТ 8.558-2009 (термометр сопротивления платиновый вибропрочный ТСПВ-1, рег. № 50256-12);
- измеритель температуры многоканальный прецизионный МИТ 8-15, рег. № 19736-11.
Допускается применение аналогичных средств поверки, обеспечивающих определение метрологических характеристик поверяемых СИ с требуемой точностью.
Знак поверки наносится на пломбу теплосчётчика в соответствии с рисунками 2 или 3 и в руководство по эксплуатации и/или на бланк свидетельства о поверке теплосчётчика.
Изготовитель
Закрытое акционерное общество «Счетприбор» (ЗАО «Счетприбор»)
ИНН 5753039951
Адрес: 302005, г. Орел, ул. Спивака, 74 А
Телефон (факс): +7 (4862) 72-44-81
W eb-сайт: http :/www.schetpribor.ru
E-mail: schetpribor@yandex. ru
Испытательный центр
Закрытое акционерное общество Консалтинго-инжиниринговое предприятие «Метрологический центр энергоресурсов» (ЗАО КИП «МЦЭ»)
Адрес: 125424, г. Москва, Волоколамское шоссе, д. 88, стр.8
Телефон (факс): +7 (495) 491-78-12
E-mail: sittek@mail.ru
Принцип действия теплосчётчиков состоит в измерении текущего значения объёмного расхода и текущего значения температуры теплоносителя в подающем и обратном трубопроводах, с последующим вычислением, в соответствии с заложенными алгоритмами, текущего значения разности температур теплоносителя, суммарного с нарастающим итогом значения объёма теплоносителя, протекающего по трубопроводам, и суммарного с нарастающим итогом значения потребленного количества тепловой энергии.
Теплосчётчики представляют собой единый теплосчётчик, соответствующий классу точности 2 по ГОСТ Р ЕН 1434-1-2011 и состоящий из:
-
- первичного измерительного преобразователя объёмного расхода теплоносителя;
-
- двух термопреобразователей сопротивления Pt1000 с номинальной статической характеристикой по ГОСТ 6651-2009;
-
- вычислителя.
Теплосчётчики измеряют, вычисляют и отображают на ЖКИ следующие параметры:
-
- количество потребленной тепловой энергии или энергии охлаждения, Гкал;
-
- мгновенную тепловую мощность, кВт;
-
- объем теплоносителя, м3;
-
- температуру теплоносителя в подающем и обратном трубопроводах, °С;
-
- разность температур в подающем и обратном тр3убопроводах, °С;
-
- мгновенный объемный расход теплоносителя, м3/ч;
-
- время функционирования теплосчётчика в рабочем режиме, ч.
Теплосчётчики имеют энергонезависимую память, в которой хранятся и накапливаются:
-
- потребленное (отпущенное) количество тепловой энергии за каждый месяц,
-
- объем воды, протекшей через счетчик, за каждый месяц.
Ёмкость суточного и месячного архива теплосчётчиков не менее 18 месяцев.
При отключении электропитания данные в энергонезависимой памяти теплосчётчика сохраняются не менее 1 года.
Теплосчётчики выпускаются в следующих модификациях:
Теплосчётчик «Счётприбор» ТСС
Х1
Х2
Х3
Х1 - в зависимости от диаметра условного прохода преобразователя и верхнего значения измеряемого объемного расхода теплоносителя выпускаются следующие типоразмеры теплосчётчика: (15/1,2) - диаметр условного прохода 15 мм с верхним значением объемного расхода теплоносителя 1,2 м3/ч; (15/3) - диаметр условного прохода 15 мм с верхним значением объемного расхода теплоносителя 3 м3/ч; (20/5) - диаметр условного прохода 20 мм с верхним значением объемного расхода теплоносителя 5 м3/ч;
Х2 - в зависимости от типа первичного измерительного преобразователя объёмного расхода теплоносителя: (К) - тахометрического крыльчатого типа; (У) - ультразвукового типа;
Х3 - для передачи результатов измерений и информации во внешние измерительные системы, связи с теплосчётчиком в процессе эксплуатации, используются вспомогательные цепи теплосчётчика, на базе которых могут быть реализованы совместно или по отдельности: (Р) -цифровой беспроводной радиоканал в сети LPWAN «Стриж» или LoRaWAN; (Ц) - цифровой проводной интерфейс связи типа M-Bus, RS-485, RS-232C; (И) - импульсное выходное устройство.
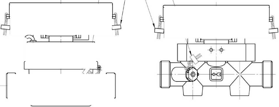
Общий вид теплосчётчиков представлен на рисунке 1.
Схема пломбировки от несанкционированного доступа, обозначение места нанесения знака поверки представлены на рисунках 2 - 3.
Модификация (К)
Рисунок 1 - Общий вид теплосчётчиков
Модификация (У)
Пломба изготовителя и пломба со знаком поберки
Пломба изготовителя или /
организации, установившей теплосчетчик / /
Пломба изготовителя и
\ пломба со знаком поверки
■ Пломба изготовителя или
организации, устанойибшЕй теплосчетчик
Рисунок 2 - Схема пломбировки от несанкционированного доступа для теплосчётчиков с модификацией (К)
|
-- / 1 | |
|
о С |
------------------4------- Ml--г~------ |
|
\ > > < |
>44- |
|
/ i | |
|
г |
|
к |
—1 | |||
|
—. | ||||
|
Г г | ||||
Рисунок 3 - Схема пломбировки от несанкционированного доступа для теплосчётчиков с модификацией (У)
Таблица 4 - Комплектность теплосчётчика
|
Наименование |
Обозначение |
Количество |
|
- * Теплосчётчик |
ТСС |
1 шт. |
|
Руководство по эксплуатации |
СПЭФ.407291.001 РЭ |
1 экз. |
|
Методика поверки |
СПЭФ.407291.001 МП |
1 экз. на партию |
|
Комплект монтажных частей и принадлежностей* |
- |
- |
|
*Модификация теплосчётчика, наличие и состав комплекта монтажных частей и принадлежностей определяется договором на поставку. | ||
Таблица 2 - Метрологические характеристики
|
Наименование характеристики |
Значение | ||
|
Модификация теплосчётчика |
ТСС-15/1,2 |
ТСС-15/3 |
ТСС-20/5 |
|
Диаметр условного прохода, Ду, мм |
15 |
20 | |
|
Верхнее значение расхода, qs, м3/ч |
1,2 |
3 |
5 |
|
Постоянное значение расхода, qp, м3/ч |
0,6 |
1,5 |
2,5 |
|
Нижнее значение расхода, qi, м3/ч:
|
0,012 0,012 |
0,030 0,015 |
0,050 0,025 |
|
Диапазон измерения температуры, t, °С |
от +4 до +95 | ||
|
Диапазон измерения разности температур, At, °С |
от 3 до 90 | ||
|
Пределы допускаемой относительной погрешности измерений объемного расхода (объема) теплоносителя, % |
±(2+0,02-qp/q), но не более ±5 | ||
|
Пределы допускаемой относительной погрешности измерения разности температур теплоносителя, % |
±(0,5+3 -Atmin/ At) | ||
|
Пределы допускаемой абсолютной погрешности измерений температуры теплоносителя, °С |
±(0,6+0,004-t) | ||
|
Пределы допускаемой относительной погрешности измерений количества тепловой энергии, % |
±(3+4-Atmin/ At+0,02-qp/q) | ||
|
Максимальное допустимое рабочее давление (MAP), МПа |
1,6 | ||
|
Максимальная потеря давления теплоносителя при постоянном значении расхода, qp, МПа, не более |
0,025 | ||
|
* Верхнее значение расхода qs - максимальное значение расхода, при котором теплосчётчик функционирует в течение коротких промежутков времени (не более 1 ч в день и не более 200 ч в год) без превышения максимально допускаемой погрешности. Обозначения в таблице: q - измеренное значение объемного расхода теплоносителя, м3/ч; At - измеренное значение разности температур прямого и обратного потоков теплоносителя, °С; t - измеренное значение температуры прямого или обратного потоков теплоносителя, °С. | |||
Таблица 3 - Основные технические характеристики
|
Наименование характеристики |
Значение | |
|
Модификация теплосчётчика |
ТСС-15/1,2 ТСС-15/3 |
ТСС-20/5 |
|
Номинальное напряжение питания встроенного элемента постоянного тока, В |
3,6 | |
|
Срок службы элемента питания, лет, не менее |
6 | |
|
Габаритные размеры, мм, не более: - длина х ширина х высота |
110х110х110 |
130х110х110 |
|
Масса, кг, не более |
0,9 |
1,0 |
|
Присоединительная резьба на корпусе расходомера по ГОСТ 6357-81 |
3/4 |
1 |
|
Рабочие условия применения по классу исполнения А:
|
от +5 до +55 93 от 84 до 106,7 | |
|
Степень защиты по ГОСТ 14254-2015, не ниже:
|
IP 54 IP 44 | |
|
Средний срок службы*, лет, не менее: |
12 | |
|
Средняя наработка на отказ*, ч, не менее |
110000 | |
|
* В процессе эксплуатации допускается замена элемента питания в связи с окончанием срока службы | ||

