Номер по Госреестру СИ: 86573-22
86573-22 Резервуар стальной горизонтальный цилиндрический
(СР 50П)
Назначение средства измерений:
Резервуар стальной горизонтальный цилиндрический СР 50П (далее - резервуар) предназначен для измерения объема нефтепродуктов, а также для их приема, хранения и отпуска.

Внешний вид.
Резервуар стальной горизонтальный цилиндрический
Рисунок № 1

Внешний вид.
Резервуар стальной горизонтальный цилиндрический
Рисунок № 2

Внешний вид.
Резервуар стальной горизонтальный цилиндрический
Рисунок № 3
Знак утверждения типа
Знак утверждения типананосится на титульный лист паспорта резервуара типографским способом.
Сведения о методиках измерений
Сведения о методиках (методах) измерений приведены в пункте 8 паспорта на резервуар.Нормативные и технические документы
Нормативные документы, устанавливающие требования к средству измеренийПриказ Росстандарта от 7 февраля 2018 г. № 256 «Об утверждении Государственной поверочной схемы для средств измерений массы и объема жидкости в потоке, объема жидкости и вместимости при статических измерениях, массового и объемного расходов жидкости».
ПравообладательОбщество с ограниченной ответственностью «Кингисеппский завод металлоконструкций ПромМонтажСтрой» (ООО «КЗМК ПМС»)
ИНН 4707026755
Адрес: 188490, Ленинградская область, м. р-н Кингисеппский, г.п. Ивангородское, г. Ивангород, ул. Механическая, д. 3
Телефон/факс: +7 (81375) 45-935, (81375) 45-910
E-mail: kzmk1_pms@mail.ru
Изготовитель
Общество с ограниченной ответственностью «Кингисеппский завод металлоконструкций ПромМонтажСтрой» (ООО «КЗМК ПМС»)ИНН 4707026755
Адрес: 188490, Ленинградская область, м. р-н Кингисеппский, г.п. Ивангородское, г. Ивангород, ул. Механическая, д. 3
Телефон/факс: +7 (81375) 45-935, (81375) 45-910
E-mail: kzmk1_pms@mail.ru
Испытательный центр
Общество с ограниченной ответственностью «МетроКонТ» (ООО «МетроКонТ») Адрес: 420132, Республика Татарстан, г. Казань, ул. Адоратского, д. 39Б, офис 51 Телефон: +7 9372834420Факс +7 (843) 515-00-21
E-mail: trifonovua@mail.ru
Правообладатель
Общество с ограниченной ответственностью «Кингисеппский завод металлоконструкций ПромМонтажСтрой» (ООО «КЗМК ПМС»)ИНН 4707026755
Адрес: 188490, Ленинградская область, м. р-н Кингисеппский, г.п. Ивангородское, г. Ивангород, ул. Механическая, д. 3
Телефон/факс: +7 (81375) 45-935, (81375) 45-910
E-mail: kzmk1_pms@mail.ru
Принцип действия резервуара основан на заполнении его нефтепродуктом до определенного уровня, соответствующего заданному значению объема.
Резервуар представляет собой горизонтально расположенный цилиндрический стальной двухстенный двухсекционный сосуд с усеченно-коническими днищами.
Заполнение и выдача продукта осуществляется через приемно-раздаточные патрубки.
Заводской номер резервуара в виде цифрового обозначения, состоящий из арабских цифр, нанесен ударным способом на маркировочную табличку резервуара (рисунок 2).
Знак поверки наносится в свидетельство о поверке резервуара.
Резервуар СР 50П с заводским номером 1163, расположены по адресу: Ленинградская область, Гатчинский муниципальный район, Новосветское сельское поселение, Промзона «Торфяное-1», уч. 3, АЗС №47002 «Гатчина».
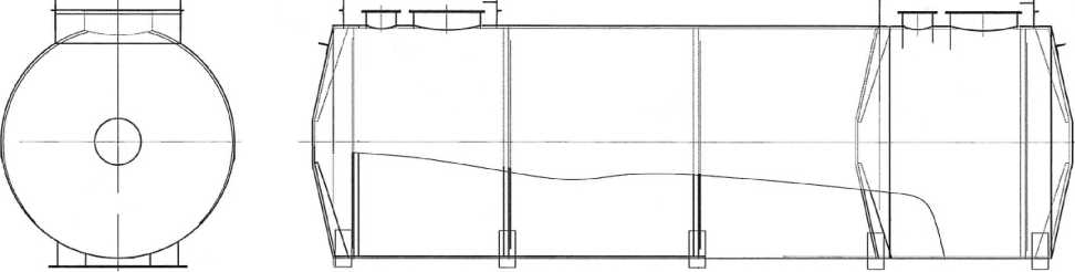
Общий вид резервуара СР 50П представлен на рисунках 1, 3.
Нанесение знака поверки на средство измерений не предусмотрено.
Рисунок 1 - Общий вид резервуара СР 50П
Место нанесения заводского номера
Рисунок 2 -Место нанесения заводского номера
Рисунок 3 - Общий вид резервуара СР 50П Пломбирование резервуара СР 50П не предусмотрено.
Таблица 3-
|
Наименование |
Обозначение |
Количество |
|
Резервуар стальной горизонтальный цилиндрический |
СР 50П |
1 шт. |
|
Паспорт |
- |
1 экз. |
|
Градуировочная таблица |
- |
2 экз. |
Таблица 1 - Метрологические характеристики
|
Наименование характеристики |
Значение | |
|
Номера секций | ||
|
1 |
2 | |
|
Номинальная вместимость, м3 |
40 |
10 |
|
Пределы допускаемой относительной погрешности определения вместимости (объемный метод), % |
±0,25 | |
Таблица 2 - Основные технические характеристики
|
Наименование характеристики |
Значение |
|
Условия эксплуатации: | |
|
Температура окружающего воздуха, оС |
от -50 до +50 |
|
Атмосферное давление, кПа |
от 84,0 до 106,7 |
|
Средний срок службы, лет, не менее |
20 |

