Руководство по эксплуатации «Комплекс для измерения количества газа СГ-ТГ» (ЛГТИ.407321.020 РЭ)

Газэлектроника
ООО «ЭЛЬСТЕР Газэлектроника»
КОМПЛЕКС
ДЛЯ ИЗМЕРЕНИЯ КОЛИЧЕСТВА ГАЗА СГ-ТК
Руководство по эксплуатации
ЛГТИ.407321.020 РЭ


ГБ06
СОДЕРЖАНИЕ
-
9 МОНТАЖ КОМПЛЕКСА СГ- ТК ПРИ РАЗМЕЩЕНИИ МЕСТ ОТБОРА ТЕМПЕРАТУРЫ НА ТРУБОПРОВОДЕ
-
10 ВВОД КОМПЛЕКСА СГ-ТК В ЭКСПЛУАТАЦИЮ И ЕГО ТЕХНИЧЕСКОЕ ОБСЛУЖИВАНИЕ
ПРИЛОЖЕНИЯ
ПРИЛОЖЕНИЕ А Габаритно-присоединительные размеры комплексов СГ-ТК-Т1 со счетчиками СГ ПРИЛОЖЕНИЕ Б Габаритно-присоединительные размеры комплексов СГ-ТК-Т2 со счетчиками TRZ ПРИЛОЖЕНИЕ В Габаритно-присоединительные размеры комплексов СГ-ТК-Р со счетчиками RVG ПРИЛОЖЕНИЕ Г Габаритно-присоединительные размеры комплексов СГ-ТК-Д со счетчиками ВК ПРИЛОЖЕНИЕ Д Монтаж комплекса СГ-ТК с местом измерения температуры на трубопроводе ПРИЛОЖЕНИЕ Комплекс для измерения количества газа СГ-ТК. Методика поверки
РЕД.11.2008
ВВЕДЕНИЕНастоящее руководство по эксплуатации предназначено для изучения принципа действия, устройства, функциональных возможностей, а также ознакомления с правилами подготовки и монтажа, эксплуатации и обслуживания комплекса для измерения количества газа СГ-ТК (в дальнейшем - комплекс СГ-ТК).
Примечание. Ввиду совершенствования составных частей комплекса возможны некоторые непринципиальные расхождения между поставляемыми изделиями и текстом настоящего руководства по эксплуатации.
1 НАЗНАЧЕНИЕ И ОБЛАСТЬ ПРИМЕНЕНИЯ-
1.1 Комплекс для измерения количества газа СГ-ТК предназначен для измерения объема природного газа по ГОСТ 5542 в единицах приведенного к стандартным условиям объема (количества) посредством автоматической электронной коррекции показаний турбинных счетчиков газа типа СГ, TRZ, ротационного счетчика типа RVG, диафрагменного счетчика газа типа ВК по температуре и фиксированных значений давления и коэффициента сжимаемости газа.
-
1.2 Комплекс СГ-ТК может применяться для измерения объема также и других неагрессивных, сухих и очищенных газов (воздух, азот, аргон и т.п., за исключением кислорода).
Область применения комплекса СГ-ТК — коммерческий учет объема и контроль расхода газа в трубопроводах газораспределительных пунктов и станций (ГРП, ГРС), теплоэнергетических установок, объектах нефтеперерабатывающей, нефтехимической промышленности и других технологических объектов в различных отраслях промышленности.
-
1.3 Комплекс СГ-ТК1 имеет взрывозащищенное исполнение с корректором ТС210.
Комплекс может применяться во взрывоопасных зонах помещений и наружных установок согласно требований гл.7.3 ПУЭ, ГОСТ Р51330.0, ГОСТ Р51330.10, ГОСТ 12.2.007.0 и имеет маркировку взрывозащиты «1Ех1ЬПВТ4».
-
1.4 Для обеспечения работоспособности на газе, содержащем механические примеси, перед комплексом должны устанавливаться газовые фильтры
ПРИМЕНЕНИЕ КОМПЛЕКСОВ СГ-ТК ДЛЯ ИЗМЕРЕНИЯ ОБЪЕМА ГАЗА, СОДЕРЖАЩЕГО МЕХАНИЧЕСКИЕ ВКЛЮЧЕНИЯ, БЕЗ УСТАНОВКИ ГАЗОВЫХ ФИЛЬТРОВ ПЕРЕД НИМИ НЕДОПУСТИМО.
-
1.5 Комплекс СГ-ТК обеспечивает выполнение следующих функций:
-
- измерение объема газа и приведение его к стандартным условиям;
-
- периодический опрос и расчет рабочего объема, приведенного к стандартным условиям объема и температуры;
-
- отображение и дистанционная передача информации о текущих значениях измеренных и рассчитанных параметров;
-
- представление отчетов о нештатных ситуациях, авариях и несанкционированных вмешательствах;
-
- посуточное архивирование и анализ параметров по измеренным и рассчитанным параметрам;
-
- отображение среднесуточных измеренных параметров с указанием времени и даты.
-
2.1 Комплекс состоит из следующих составных частей (блоков):
а) корректор объема газа ТС210 (СГ-ТК1) или ТС215 ( СГ-ТК2).
б) счетчик газа в зависимости от конструктивного исполнения, максимального допустимого рабочего давления и наибольшего расхода:
- счетчик газа турбинный СГ (СГ-ТКп-Т1), TRZ (СГ-ТКп-Т2)*;
-
- счетчик газа ротационный RVG - ( СГ-ТКп-Р);
-
- счетчик газа диафрагменный BK - ( СГ-ТКп-Д).
* - n - исполнение комплекса 1 или 2, в зависимости от корректора объема газа ТС210 или ТС215 соответственно.
-
2.2. Комплект поставки комплекса СГ-ТК соответствует указанному в табл.1.
Таблица 1
Наименование и условное обозначение |
Обозначение документа |
Кол. (шт.) |
Условия, оговариваемые при заказе |
1 |
2 |
3 |
4 |
1 Счетчик газа 1.1 Турбинный счетчик газа СГ16М-100 - СГ16М-2500 СГ16МТ-100 - СГ16МТ-2500 |
ЛГФИ.407221.001 |
1 |
Диапазон измерения (Qmin/Qmax): 1:10; 1:20 Диапазон объемного (при рабочих условиях) расхода (м3/ч) 10 - 2500 |
1.2 Турбинный счетчик газа TRZ G65 - TRZ G4000 |
ЛГТИ.407221.007 |
Диапазон измерения (Qmin/Qmax): 1:20; 1:30 Диапазон объемного (при рабочих условиях) расхода (м3/ч) 5 - 6500 | |
1.3 Ротационный счетчик RVG RVG-G 16 - G400 |
ЛГТИ.407273.001 |
Диапазон измерения (Qmin/Qmax): 1:20; 1:50; 1:100, 1:160 Диапазон объемного (при рабочих условиях) расхода (м3/ч) 0,8 - 650 | |
1.4 Диафрагменный счетчик ВК G 1,6 - G100 |
Диапазон объемного (при рабочих условиях) расхода (м3/ч) 0,016-2,5 0,16-25,0 0,025-4,0 0,25-40,0 0,04-6,0 0,4-65,0 0,06-10,0 0,65-100 0,1-16,0 1,0-160 | ||
2 Корректор объема газа ТС210 или ТС215 (в комплекте с ДТ) |
ЛГТИ.407228.010 ЛГТИ.407229.015 |
1 | |
3 Датчик импульсов низкочастотный Датчик импульсов IN-S10, IN-S11, IN-S12, IN-Z61... IN-Z64, IN-Z61 |
ЛГФИ.301568.017 ЛГТИ.407112.001 |
1 | |
4. Блок питания АСК 9/2 |
1 |
По дополнительному заказу |
1 |
2 |
3 |
4 |
(для корректора ТС215) | |||
5. Программа передачи и обработки данных СОДЕК |
1 |
По дополнительному заказу | |
6. Кабель-адаптер КА/О для считывания данных через ИК порт |
1 |
По дополнительному заказу | |
7. Кабель-адаптер КА/О-USB для считывания данных через ИК порт |
1 |
По дополнительному заказу | |
8. Руководство по эксплуатации |
ЛГТИ.407321.020 РЭ |
1 | |
9. Паспорт |
ЛГТИ.407321.020 ПС |
1 | |
10. Комплект монтажных частей |
1 |
При монтаже ДТ на трубопроводе |
2.3 Сопроводительная документация к каждой из составных частей входит в объем поставки комплекса СГ-ТК.
2.4 Условия, оговариваемые при заказе, относятся ко всем составным частям комплекса СГ- ТК.
-
2.5 При заказе необходимо указать направление потока газа по отношению к оператору. Оператор располагается лицом к счетному механизму счетчика газа и дисплею корректора, при этом направление потока газа может быть: справа налево, слева направо.
-
2.6 В случае установки корректора на стену при заказе согласуются длины кабеля датчика температуры (не более 0,9 м) и кабеля датчика импульсов.
-
2.7 В случае размещения места гильзы преобразователя температуры на трубопроводе по согласованию с Заказчиком поставляется комплект монтажных частей ЛГТИ.407321.020 Д1.
-
2.8 По согласованию с Заказчиком возможна поставка газового фильтра, который устанавливаются перед комплексами СГ-ТК.
-
2.9 Дополнительные приборы п.п. 4-7 поставляются по специальному заказу.
3.УСТРОЙСТВО И ПРИНЦИП ДЕЙСТВИЯ
3.1. Принцип действия.-
3.1.1. Принцип действия комплекса СГ-ТК основан на одновременном измерении двумя самостоятельными датчиками параметров потока газа (объемного расхода и температуры) при рабочих условиях и с помощью корректора, по полученной от указанных датчиков информации, дальнейшем вычислении приведенного к стандартным условиям (Р с = 760 мм рт.ст., Т с = 20 0С) объемного расхода Qc и объема Vc прошедшего газа с учетом коэффициента сжимаемости по формулам:
а) для стандартного объема

где Рс , Тс - давление и температура при стандартных условиях ; Vp , Тр, Рр - объем , температура и давление при рабочих условиях; К - коэффициент сжимаемости газа;
б) для стандартного объемного расхода

где Л Т , - промежуток времени измерения стандартного объема,
Л (Ус) - объем прошедшего газа
Принцип действия и устройство составных частей подробно изложены в соответствующей документации на эти изделия.
-
3.2. Счетчики газа
В турбинном счетчике газа СГ при воздействии потока газа на турбину последняя вращается со скоростью, пропорциональной скорости течения (объемному расходу) газа.
Вращение турбины с помощью механического редуктора передается на счетную головку, показывающую (по нарастающей) суммарный объем газа при рабочих условиях, прошедший через прибор. На последнем цифровом колесе счетного механизма закреплен постоянный магнит, а вблизи колеса - герконы, частота замыкания контактов счетных герконов пропорциональна скорости вращения турбинки, т. е. скорости (объемному расходу) газа.
При появлении мощного внешнего магнитного поля контакты одного из герконов замыкаются, что используется для сигнализации о несанкционированном вмешательстве.
Частотный сигнал от первого геркона поступает в корректор (канал измерения объема при рабочих условиях).
Одновременно датчик температуры ДТ (термометр сопротивления), установленный в потоке газа вблизи турбинки, вырабатывает сигнал, пропорциональный текущему значению температуры газа Тр,
Сигналы обрабатываются корректором и отображаются на дисплее
Турбинный счетчик газа СГ конструктивно представляет собой отрезок трубы с фланцами, в проточной части которого последовательно по потоку расположен входной струевыпрямитель, узел турбинки с валом и шарикоподшипниковыми опорами вращения и задняя опора.
3.2.2 Счетчики газа турбинные TRZГлавной отличительной особенностью конструкции турбинного счётчика газа TRZ является то, что он состоит из двух основных элементов - прочного герметичного корпуса и установленного в нём измерительного преобразователя. При этом метрологические характеристики счётчика газа TRZ зависят лишь от качества изготовления измерительного преобразователя и не зависят от индивидуальных особенностей корпуса счётчика газа и механических нагрузок, действующих на него в процессе эксплуатации.
Конструкция счетчиков позволяет заменять используемый в нем измерительный преобразователь на аналогичный измерительный преобразователь, поверенный при выпуске на заводе-изготовителе, при этом метрологические характеристики счетчика сохраняются.
3.2.3 Счетчики газа ротационные RVGРотационный счетчик газа работает по принципу вытеснения строго определенного объема газа вращающимися роторами. В корпусе с входом и выходом находятся два вращающихся в противоположных направлениях ротора, которые в поперечном сечении имеют вид подобный восьмерке. Оба ротора соединены друг с другом посредством колес синхронизатора.
При прохождении газа сквозь счетчик роторы вращаются без механического соприкосновения друг с другом и доставляют определенное количество газа в выходной канал при помощи объемной измерительной камеры, образованной пространством между роторами и корпусом счетчика.
Таким образом, один поворот системы роторов соответствует передаче определенного объема газа. Вращательное движение роторов через редуктор и магнитную муфту передается на счетный механизм.
Счетчик RVG состоит из следующих составных частей:
• измерительная камера, образованная корпусом с двумя основаниями;
• два ротора, вращающихся в противоположных относительно друг друга направлениях за счет зубчатых колес синхронизатора;
• многоступенчатый редуктор;
• магнитная муфта;
• 8- ми разрядный роликовый счетный механизм.
На корпусе счетчика имеется резьбовой штуцер, в который крепятся гильза датчика ДТ.
3.2.4 Счетчики газа диафрагменные ВКСчетчик газа ВК состоит из измерительного механизма, счетного устройства и корпуса. Измерительный механизм состоит из двух камер со встроенными диафрагмами. Кривошипно-шатунный механизм преобразует поступательное движение диафрагм во вращательное, которое через муфту передается счетному устройству.
Принцип работы счётчика основан на перемещении подвижных перегородок (диафрагм) камер при поступлении газа в счётчик. Впуск и выпуск газа, объем которого необходимо измерить, вызывает переменное перемещение диафрагм и через систему рычагов, и редуктор приводит в действие счётный механизм.
3.2.5 Корректор объема газаКорректор объема газа представляет собой самостоятельное микропроцессорное устройство с автономным питанием (от литиевой батареи), предназначенное для преобразования по определенному алгоритму сигналов, поступающих со счетчика газа, датчика температуры, вычисления стандартного объема газа и регистрации этих параметров.
На передней (лицевой) панели корректора расположены: дисплей, клавиатура и оптический интерфейс. Интерфейс передачи данных организован посредством оптического (инфракрасного) интерфейса в соответствии с ГОСТ Р МЭК61107. Интерфейс обеспечивает доступ к данным корректора в соответствии с используемым уровнем доступа.
Корректор объема газа ТС215 дополнительно имеет интерфейс передачи данных RS232, а также возможность подключения внешнего источника питания.
Встроенный архив вмещает около 600 записей показаний счетчиков на момент архивирования, и средние значения температуры, коэффициента коррекции за период архивации и статусную информацию. Данные в архив помещаются по завершении интервала архивирования (час, сутки, месяц) или по возникновению нештатной ситуации в работе корректора.
Более подробно конструкция и функциональные возможности корректора отражены в технической документации на корректор.
3.2.6 Преобразователь температурыПреобразователь температуры представляет собой термометр сопротивления, установленный в защитной гильзе, заполненной теплопроводящей пастой, размещенный в корпусе счетчика газа.
Допускается размещение преобразователя температуры в гильзе: для исполнений СГ-ТКп-Т1, СГ-ТКп-Т2, СГ-ТКп-Р на расстоянии до 5 D на участке трубопровода после счетчика газа (где D - внутренний диаметр трубопровода); для исполнения СГ-ТКп-Д до или после счетчика.
3.2.7 Датчик импульсовДатчики импульсов низкочастотные Е1 типов IN-S**, IN-Z61. ..IN-Z64, IN-Z61 ЛГТИ.407112.001, датчик импульсов низкочастотный ЛГФИ.301568.017 предназначены для считывания импульсов механических счетчиков газа.
Датчик импульсов представляет собой пластмассовый корпус, в котором на плате размещены три электрически не связанные цепочки, каждая из которых состоит из последовательно соединенных геркона и резистора сопротивлением 100 Ом. В датчиках импульсов IN-Z61.IN-Z64, IN-Z61 ЛГТИ.407112.001 размещены два геркона. Датчик импульсов фиксируется на крышке счетного механизма таким образом, что при вращении цифровых колес счетного механизма контакты герконов замыкаются каждый раз при прохождении мимо них постоянного магнита, установленного на последнем колесе счетного механизма. Скачкообразное изменение сопротивления на контактах датчика импульсов используется в подключенном к нему корректоре для формирования сигнала, частота которого пропорциональна расходу, формирует импульсы, количество которых пропорционально объёму газа, прошедшему через счётчик. Данные импульсы могут быть использованы при работе с электронными корректорами или другими регистрирующими электронными устройствами.
При появлении внешнего магнитного поля контакты одного из герконов замыкаются, что может быть использовано для сигнализации о несанкционированном вмешательстве.
4 ТЕХНИЧЕСКИЕ ДАННЫЕ-
4.1. Основные технические характеристики
Комплексы СГ-ТК в зависимости от типа счетчиков и различных вариантов исполнения имеют различные технические характеристики.
-
4.2 Исполнения комплексов, диапазоны измеряемых расходов, диаметры условного прохода и максимальные рабочие давления соответствуют данным табл.2-5.
В таблице 2 указаны технические характеристики комплексов с турбинными счетчиками газа СГ исполнения Т1
Таблица 2
Исполнение комплекса |
Диаметр условного прохода Dу |
Диапазон измерения объемного расхода при Рраб | ||
Qmаx |
Qmin | |||
Диапазон измерения | ||||
1:10 |
1:20 | |||
мм |
3/ м / ч |
3 м / ч |
3/ м / ч | |
СГ-ТКп-Т1-100 |
50 |
100 |
10 |
- |
СГ-ТКп-Т1-250 |
80 |
250 |
25 |
13 |
СГ-ТКп-Т 1-400 |
100 |
400 |
40 |
20 |
СГ-ТКп-Т1-650 |
100 |
650 |
65 |
32,5 |
СГ-ТКп-Т 1-800 |
150 |
800 |
80 |
40 |
СГ-ТКп-Т1-1000 |
150 |
1000 |
100 |
50 |
СГ-ТКп-Т1-1600 |
200 |
1600 |
160 |
80 |
СГ-ТКп-Т1-2500 |
200 |
2500 |
250 |
125 |
В таблице 3 указаны технические характеристики комплексов c турбинными счетчиками TRZ исполнения Т2
Таблица 3
Исполнение комплекса |
Диаметр условного прохода Ду |
Типоразмер счетчика |
Диапазон измерения объемного расхода при Рраб | ||
Qmаx |
Qmin | ||||
Диапазон измерения | |||||
1:20 |
1:30 | ||||
мм |
3/ м / ч |
3/ м / ч |
3/ м / ч | ||
СГ-ТКп-Т2-100 |
50 |
G65 |
100 |
5 |
- |
СГ-ТКп-Т2-250 |
80 |
G160 |
250 |
13 |
- |
СГ-ТКп-Т2-400 |
80 |
G250 |
400 |
20 |
13 |
СГ-ТКп-Т2-400 |
100 |
G250 |
400 |
20 |
- |
СГ-ТКп-Т2-650 |
100 |
G400 |
650 |
32 |
20 |
СГ-ТКп-Т2-650 |
150 |
G400 |
650 |
32 |
- |
СГ-ТКп-Т2-1000 |
150 |
G650 |
1000 |
50 |
32 |
СГ-ТКп-Т2-1600 |
150 |
G1000 |
1600 |
80 |
50 |
СГ-ТКп-Т2-1600 |
200 |
G1000 |
1600 |
80 |
- |
СГ-ТКп-Т2-2500 |
200 |
G1600 |
2500 |
130 |
80 |
СГ-ТКп-Т2-2500 |
250 |
G1600 |
2500 |
125 |
- |
СГ-ТКп-Т2-4000 |
250 |
G2500 |
4000 |
200 |
130 |
СГ-ТКп-Т2-4000 |
300 |
G2500 |
4000 |
200 |
- |
СГ-ТКп-Т2-6500 |
300 |
G4000 |
6500 |
320 |
200 |
В таблице 4 указаны технические характеристики комплексов с ротационными счетчиками газа RVG.
Таблица 4
Исполнение комплекса |
Диаметр условного прохода Ду |
Типоразмер счетчика |
Диапазон измерения объемного расхода при Рраб | ||||
Qmаx |
Qmin | ||||||
Д |
иапазон измерения | ||||||
1:20 |
1:50 |
1:100 |
1:160 | ||||
мм |
3/ м / ч |
м3/ ч |
м3/ ч |
м3/ ч |
м3/ ч | ||
СГ-ТКп-Р-25 |
50 |
G16 |
25 |
1,3 |
- |
- | |
СГ-ТКп-Р-40 |
50 |
G25 |
40 |
2,0 |
0,8 |
- | |
СГ-ТКп-Р-65 |
50 |
G40 |
65 |
3,0 |
1,3 |
- | |
СГ-ТКп-Р-100 |
50 |
G65 |
100 |
5,0 |
2,0 |
1,0 | |
СГ-ТКп-Р-160 |
80 |
G100 |
160 |
8,0 |
3,0 |
1,6 | |
СГ-ТКп-Р-250 |
80 |
G160 |
250 |
13,0 |
5,0 |
2,5 | |
СГ-ТКп-Р-400 |
100 |
G250 |
400 |
20,0 |
8,0 |
4,0 | |
СГ-ТКп-Р-650 |
100 |
G400 |
650 |
32,5 |
13,0 |
6,4 |
4,0 |
СГ-ТКп-Р-650 |
150 |
G400 |
650 |
32,5 |
13,0 |
6,5 |
4,0 |
В таблице 5 указаны технические характеристики комплексов с диафрагменными счетчиками газа ВК.
Таблица 5
Исполнение комплекса |
Типоразмер счетчика |
Диапазон измерения объемного расхода при Рраб | ||
Qmаx |
Qном |
Qmm | ||
3/ м / ч |
3/ м / ч |
3/ м / ч | ||
СГ-ТКп-Д- 2,5 |
G1,6 |
2,5 |
1,6 |
0,016 |
СГ-ТКп-Д- 4,0 |
G2,5 |
4,0 |
2,5 |
0,025 |
СГ-ТКп-Д- 6,0 |
G4,0 |
6,0 |
4,0 |
0,04 |
СГ-ТКп-Д- 10,0 |
G6,0 |
10,0 |
6,0 |
0,06 |
СГ-ТКп-Д- 16,0 |
G10 |
16,0 |
10,0 |
0,1 |
СГ-ТКп-Д- 25,0 |
G16 |
25,0 |
16,0 |
0,16 |
СГ-ТКп-Д- 40,0 |
G25 |
40,0 |
25,0 |
0,25 |
СГ-ТКп-Д- 65,0 |
G40 |
65,0 |
40,0 |
0,4 |
СГ-ТКп-Д- 100,0 |
G65 |
100,0 |
65,0 |
0,65 |
СГ-ТКп-Д- 160,0 |
G100 |
160,0 |
100,0 |
1,0 |
Габаритно - присоединительные размеры комплекса СГ-ТК приведены в Приложениях А... Г настоящего руководства по эксплуатации
-
4.3 Пример расшифровки условных обозначений комплекса:
- с турбинными счетчиками газа
СГ-ТКп-ТХ-1600
максимальный измеряемый объемный расход при рабочих условиях (м 3 /ч ) ;
счетчик газа турбинный ТХ:
-
- Т1 - счетчики типа СГ
-
- Т2 - счетчики типа TRZ
исполнение с корректором объема газа n:
-
- 1 - корректор объема газа ТС210
-
- 2 - корректор объема газа ТС215
- с ротационными счетчиками
СГ-ТКп -P -160
максимальный измеряемый объемный расход при рабочих условиях (м 3 /ч ) ; счетчик газа ротационный (RVG)
исполнение с корректором объема газа n:
-
- 1 - корректор объема газа ТС210
-
- 2 - корректор объема газа ТС215
- с диафрагменными счетчиками ВК
СГ-ТКп -Д -4,0
максимальный измеряемый объемный расход при рабочих условиях (м 3 /ч ) ;
счетчик газа диафрагменный (ВК)
исполнение с корректором объема газа n:
-
- 1 - корректор объема газа ТС210
-
- 2 - корректор объема газа ТС215
-
4.4 Основная относительная погрешность комплекса СГ-ТК при измерении приведенного
к стандартным условиям объема газа Vc определяется расчетным путем по формуле,
5 ус = ±^ 5 с 2 + 5 к 2 ,
где 5 С - паспортизованная погрешность счетчика газа при рабочих условиях;
-
5 К - паспортизованная погрешность корректора совместно с преобразователем температуры;
-
4.5 Пределы допускаемой основной относительной погрешности измерения объема комплекса СГ-ТК, %: на базе счетчика ВК:
- диапазон расходов от 0,1 Qном до Qмах;
-
- диапазон расходов от Qмин. до 0,1 Qном
на базе счетчика СГ:
-
- диапазон расходов от 0,2 Qмах до Qмах;
-
- диапазон расходов от Qмин до О^мах;
на базе счетчика TRZ
-
- диапазон расходов от 0,1 Qмах до Qмах;
-
- диапазон расходов от Qмин до 0,^мг|Х;
для TRZ G65
-
- диапазон расходов от 0,2 Qмах до Qмах;
-
- диапазон расходов от Qмин до 0^мах;
на базе счетчика RVG
-
- диапазон расходов от 0,1 Qмах. до Qмах;
- диапазон расходов от Qмин. до 0,1 Qмах.
-
4.6 Диапазон измерения объемного расхода, м3/ч
на базе счетчика ВК на базе счетчика СГ на базе счетчика TRZ на базе счетчика RVG
-
4.7 Максимальное рабочее (избыточное) давление, МПа
на базе счетчика ВК на базе счетчика СГ на базе счетчика TRZ на базе счетчика RVG
-
4.8 Максимально допустимое давление, при котором не происходит разгерметизация комплекса МПа
на базе счетчика ВК на базе счетчика СГ на базе счетчика TRZ на базе счетчика RVG
-
4.9 Диапазон измерения температуры рабочей среды, °С
на базе счетчика ВК(О1,6^4) на базе счетчика ВК(й6^100) на базе счетчика СГ на базе счетчика TRZ на базе счетчика RVG
-
4.10 Комплекс СГ-ТК устойчив к воздействию температуры окружающей среды:
на базе счетчика ВК^1,6^4) на базе счетчика ВК(й6^100)
±1,7 ± 3,2
± 1,2
± 2,2
± 1,2
± 2,2
± 1,2
± 2,2
± 1,2
± 2,2
0,016 - 160
10 - 2500
13 - 6500 0,8 - 650
0,05
0,1
0,1
0,1
0,1
1,6
1,6
1,6
минус 30 - плюс 50 минус 25 - плюс 40 минус 20 - плюс 50 минус 20 - плюс 60 минус 30 - плюс 60
минус 30 - плюс 50
минус 30 - плюс 55
на базе счетчика СГ на базе счетчика TRZ на базе счетчика RVG
минус 30 - плюс 50
минус 30 - плюс 60
минус 30 - плюс 60
-
4.11 Протокол обмена
ГОСТ Р МЭК61107
-
4.12 Интерфейс ГОСТ Р МЭК61107 (СГ-ТК1 и
СГ-ТК2);
RS 232 (СГ-ТК2)
-
4.13 Измеряемая рабочая среда — природный газ по ГОСТ 5542 и другие газы с плотностью при стандартных условиях не менее 0,668 кг/м3.
Комплекс СГ-ТК может размещаться в помещениях, газораспределительных пунктах и пр., где соблюдаются требования к режимам эксплуатации изделия.
-
4.14 Электрическое питание комплекса СГ-ТК1 осуществляется от встроенной в корпус корректора литиевой батареи. Питание комплекса СГ-ТК2 может осуществляться как от встроенной в корпус корректора литиевой батареи, так и от внешнего источника питания.
-
4.15 Комплекс СГ-ТК1 с корректором объема газа ТС210 имеет взрывобезопасное исполнение, соответствует требованиям ГОСТ Р51330.0 и ГОСТ Р51330.10 и имеет маркировку взрывозащиты «1ExibIIBT4».
-
4.16 Комплекс СГ-ТК относится к восстанавливаемым, не ремонтируемым в условиях эксплуатации изделиям.
-
4.17 Коэффициент передачи низкочастотного датчика 0,01; 0,1; 1,0; 10,0; 100 в зависимости от типоразмера счетчика газа.
-
4.18 Габаритные и присоединительные размеры и масса комплекса СГ-ТК в зависимости от типоразмера счетчика газа, его исполнения и рабочего давления приведены в приложениях настоящего руководства по эксплуатации.
-
4.19 Комплекс относится к электротехническим изделиям, класс которого по способу защиты от напряжения III, электробезопасные характеристики должны удовлетворять ГОСТ 12.2.007.0
-
4.20 Среднее время восстановления работоспособности комплекса СГ-ТК путем замены составных частей или соединительных элементов между ними составляет не более 60 мин.
-
4.21 Средний срок службы до списания комплекса СГ-ТК составляет 12 лет, с учетом замены комплектующих, имеющих естественный ограниченный срок службы.
-
4.22 Межповерочный интервал комплекса СГ-ТК - 5 лет.
5 ДОПОЛНИТЕЛЬНЫЕ ПРИБОРЫ
5.1 Блок питания АСК 9/2-
5.1.1 Назначение
Блок питания АСК 9/2 служит для расширения функций корректора объема.
-
5.1.2 Технические характеристики: Напряжение
230 В~ +10% / -15%
1,5 Вт макс.
9 В ± 2%
300 мА
Потребление мощности
Выходное постоянное напряжение
Ток нагрузки,
5.2 Программный комплекс СОДЭКПрограммный комплекс предназначен для считывания и обработки текущих данных (рабочего и стандартного объемов, расходов, давления, температуры, коэффициента сжимаемости газа, коэффициента коррекции ) с электронного корректора.
Основные характеристики программного комплекса СОДЭК:
• удаленное и локальное считывание и обработка данных корректоров объема газа ЕК87, ЕК88, ЕК260, ТС90, ТС210; ТС215.
• удобное отображение считанных данных в виде различных отчётов, таких как месячный, дневной, интервальный или в форме таблиц со значениями интервала, с отметкой предельных значений, особых событий (ошибки) и в форме графиков;
• формирование отчетов для вывода на бумажный носитель;
• экспорт данных в текстовые файлы и файлы формата Microsoft Excel;
• автоматизация процесса считывания и обработки по установленному графику с использованием планировщика заданий операционной системы.
6 ОБЕСПЕЧЕНИЕ ВЗРЫВОЗАЩИЩЕННОСТИ-
6.1 Комплекс СГ-ТК1 с корректором объема газа ТС210 является взрывозащищенным, соответствует требованиям ГОСТ Р51330.0 и ГОСТ Р51330.10, ПЭУ, ГОСТ 12.2.007.0 и имеет маркировку взрывозащиты «1ExibIIBT4».
-
6.2 Взрывозащищенность комплекса СГ-ТК1 достигается за счет применения корректора ТС210, имеющего и обеспечивающего искробезопасность электрических цепей.
Питание корректора осуществляется от внутреннего источника (литиевая батарея).
Замена источника питания осуществляется согласно руководства по эксплуатации на ТС210.
6.3. Допускается подключение сертифицированного искробезопасного оборудования с максимальными значениями параметров:
Ui = 6,6 B;
Ii = 100 мА;
Pi = 500 мВт
6.4 Электрическая цепь, предназначенная для подключения счетчика к корректору и состоящая из последовательно соединенных резистора и геркона либо только геркона (датчик импульсов), не содержит собственного источника тока, индуктивности и емкости, а изоляция выходного кабеля (жгута) рассчитана на напряжение не менее 500 В, что в соответствии с п. 7.3.72 ПУЭ обеспечивает взрывозащищенность при подключении корректоров.
7 УКАЗАНИЕ МЕР БЕЗОПАСНОСТИ-
7.1 Требования и меры безопасности к комплексу СГ-ТК, связанные с электропитанием и электрическими цепями, определяются параметрами составных частей корректора и счетчика и отражены в соответствующих инструкциях на эти изделия.
-
7.2 Все работы по монтажу и демонтажу составных частей комплекса проводятся при отключенном напряжении внешнего источника питания и отсутствии газа в измерительном трубопроводе.
-
7.3 При эксплуатации и обслуживании комплекса необходимо соблюдать общие требования безопасности в соответствии со следующими документами:
ГОСТ 12.1.004. Пожарная безопасность. Общие требования.
ГОСТ 12.3.002. Процессы производственные. Общие требования безопасности.
ГОСТ 12.3.019. Испытания и измерения электрические.
Правила устройства электроустановок ПУЭ.
Правила устройства и безопасной эксплуатации сосудов, работающих под давлением.
Правила эксплуатации и безопасности обслуживания средств автоматизации, телемеханизации и вычислительной техники в газовой промышленности, утвержденные 03.03.83 г.
ГОСТ 12.2.007.0 Изделия электротехнические. Общие требования безопасности
ГОСТ Р 51330.0 Электрооборудование взрывозащищенное. Общие технические
требования.
ГОСТ Р 51330.10 Электрооборудование взрывозащищенное. Искробезопасная электрическая цепь.
ПБ 12-529-03 Правила безопасности систем газораспределения и газопотребления
ПБ 03-585-03 Правила устройства и безопасной эксплуатации технологических трубопроводов
-
7.4 При подключении к корректору внешних устройств, монтаж производить экранированным кабелем. Экран с обоих концов должен быть соединен с корпусами разъемов, чтобы предотвратить помехи, обусловленные высокочастотными электромагнитными полями. Экран должен быть подсоединен со всех сторон, полностью и равномерно. Для этой цели корректор снабжен кабельными вводами EMC. Внешние устройства также должны быть заземлены.
-
8.1. Приборы комплекса СГ-ТК могут размещаться в помещениях (и под навесом), в которых соблюдается температурный режим, указанный в п.4.10.
-
8.2 Присоединительные штуцера для датчика температуры предусматривают его установку на корпусе счетчика газа на заводе-изготовителе при сборке комплекса СГ-ТК.
Если преобразователь температуры не установлен в присоединительном штуцере или если его установка производится на трубопроводе, то монтаж преобразователя температуры производится на объекте с последующей пломбировкой места установки.
На месте эксплуатации собранный комплекс монтируется на трубопроводе с соблюдением условий, необходимых для счетчика газа и указанных в в технической документации на него. Стрелка на корпусе счетчика должна совпадать с направлением потока газа.
-
8.3 В случае использования комплекса СГ-ТК при более низких температурах окружающей среды менее, указанных в п.4.10, существует возможность раздельного монтажа счетчика газа и корректора.
При заказе необходимо дополнительно согласовать длины кабеля преобразователя температуры (не более 0,9 м) и кабеля датчика импульсов. Корректор устанавливается на кронштейн. Места установки преобразователя температуры и импульсного кабеля пломбируются.
-
8.4 При монтаже комплекса на трубопровод необходимо выполнять все требования по монтажу, указанные в тех. документации на счетчик газа и корректор, входящие в комплекс.
-
8.5 Участок трубопровода перед комплексом должен быть снабжен фильтром для очистки газа от механических примесей. Фильтр не входит в комплект поставки комплекса и необходим при несоответствии измеряемого газа требованиям ГОСТ 5542.
-
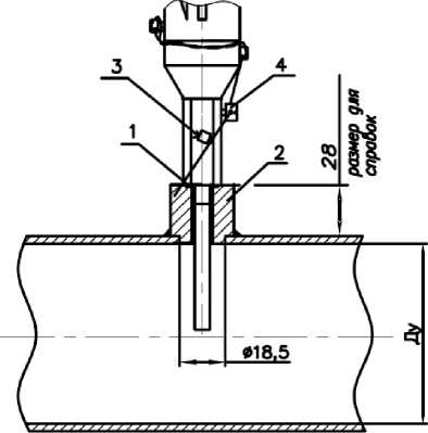
8.6 В случае размещения места измерения температуры на трубопроводе производится монтаж втулки и гильзы на трубопровод, с последующей пломбировкой поверителем. Комплект монтажных частей для установки преобразователя температуры входит в состав изделия.
-
8.7 При монтаже комплексов СГ-ТКп-Т 1-100 на базе счетчика газа СГ16-100 и СГ-ТКп-Т2-100 на базе счетчика газа TRZ-G65 место измерения температуры газа располагается на трубопроводе согласно раздела 9 настоящего руководства.
-
8.8. По окончанию монтажных работ измерительный участок трубопровода подлежит опрессовке.
-
8.9. Питание корректора осуществляется от внутреннего источника или внешнего источника питания. Длина линий связи между блоком питания и корректором не более 50 м.
-
8.10. Неиспользуемые разъемы корректора в комплексе СГ-ТК должны быть заглушены, все разъемы опломбированы.
-
8.11. Выполнение измерения объема газа комплексом СГ-ТК модификации СГ-ТК-Д производится по методике, описанной в инструкции «Методика выполнение измерений объема природного газа комплексом СГ-ТК и диафрагменными счетчиками ВК с корректорами серии ТС», внесенная в Госреестр под номером ФР.1.29.2007.03880.
-
9.1 Для комплексов СГ-ТК-Р, СГ-ТК-Т1, СГ-ТК-Т2 при монтаже ДТ на трубопроводе необходимо руководствоваться эксплуатационной документации на счетчики газа, применяемые в этих комплексах.
Рекомендуемая схема монтажа ДТ на трубопроводе для комплекса СГ-ТК-Т1-100 и СГ-ТКп-Т2-100 приведена и Приложении Д.
-
9.1.1 Место измерения температуры располагается на участке трубопровода после счетчика на расстоянии не более 5 D.
-
9.1.2 Температурная гильза устанавливается в трубопроводе. Температурная гильза должна располагаться радиально относительно трубопровода в верхней части трубопровода.
При установке датчика температуры в гильзе должен быть обеспечен надежный тепловой контакт. Для этого гильзу заполняют, например, жидким маслом МВП ТУ, ГОСТ1805, пастой теплопроводной КТП-8 ГОСТ19783.
-
9.1.3 Установка преобразователя температуры.
В трубопроводе просверливается отверстие и приваривается втулка. Температурная гильза ввинчивается во втулку, гильзу заполняют, например, жидким маслом МВП ТУ ГОСТ1805, пастой теплопроводной КТП-8 ГОСТ19783, устанавливают температурный преобразователь, закрепляя винтом.
-
9.2 Для комплексов СГ-ТК-Д с вариантом измерения температуры газа на трубопроводе место измерения температуры до или после счетчика оговаривается при заказе.
-
9.3 Место установки преобразователя температуры комплекса СГ-ТК пломбируется.
-
10.1. Подготовка к вводу комплекса СГ-ТК в эксплуатацию подразумевает проверку правильности настройки параметров корректора, монтажа составных частей, обеспечения мер безопасности, а также подготовки персонала к обслуживанию и эксплуатации составных частей комплекса.
-
10.2. Перед пуском комплекса СГ-ТК необходимо:
-
1) изучить руководства по эксплуатации на СГ-ТК, счетчик газа, корректор;
-
2) проверить правильность монтажа составных частей;
-
3) установить, настраиваемые потребителем и поставщиком газа, параметры в соответствии с указаниями руководства по эксплуатации на корректор и руководства по эксплуатации комплекса СГ-ТК.
-
10.3. Пуск комплекса СГ-ТК осуществляется в последовательности в соответствии с руководствами на счетчики газа:
-
1) плавно заполнить трубопровод газом, поднимая давление до рабочего значения (с помощью задвижек, вентилей), не открывая при этом задвижку, расположенную после счетчика газа;
-
2) плавно открывая задвижку, расположенную после счетчика газа, обеспечивать постепенное увеличение расхода газа до рабочего значения (не допускать резких скачков расхода и пневмоударов!);
-
3) проверить работоспособность комплекса СГ-ТК, контролируя изменение показаний текущих значений объема, давления и температуры.
Более детальное описание пуска и остановки комплекса СГ-ТК - в соответствии с технической документации на счетчик газа.
-
10.4. Техническое обслуживание составных частей комплекса СГ-ТК подробно изложено в соответствующих руководствах по эксплуатации на корректор и счетчик газа.
-
10.5. В процессе эксплуатации комплекс СГ-ТК должен осматриваться квалифицированным персоналом. При этом необходимо обращать внимание на целостность поверхностей, наличие пломб, крепежных элементов, предупредительных надписей и др.
-
10.6. Особое внимание следует обратить на состояние и своевременность замены батарей питания и смазку подшипников счетчиков газа.
-
10.7. К эксплуатации комплекса СГ-ТК допускаются лица, изучившие руководства по эксплуатации комплекса и составных его частей и прошедшие соответствующий инструктаж.
-
10.8. Ремонт комплекса СГ-ТК должен производиться только в специализированных организациях в соответствии с гл.Э3.2 ПТЭ и ПТВ.
-
11.1 Простые неисправности составных частей, устранение которых возможно пользователем, отражены в соответствующих разделах эксплуатационных документов на счетчик газа и корректор.
-
11.2 В случае возникновения серьезных неисправностей необходимо обращаться на предприятие-изготовитель или в специализированную организацию, уполномоченную предприятием-изготовителем на проведение ремонтных работ и сервисного обслуживания.
-
12.1 Маркировка комплекса СГ-ТК должна соответствовать конструкторской документации и иметь следующее содержание:
-
- наименование и условное обозначение изделия;
-
- серийный номер прибора;
-
- знак утверждения типа СИ;
-
- название страны изготовителя;
-
- наименование и товарный знак предприятия-изготовителя;
-
- год изготовления;
-
- обозначение ТУ;
-
- маркировка взрывозащиты (для СГ-ТК1).
Способ и место нанесения маркировки на комплексе должны соответствовать конструкторской документации.
-
12.2 Маркировка транспортной тары комплекса СГ-ТК соответствует ГОСТ 14192 и чертежам предприятия-изготовителя.
-
12.3 Составные части комплекса СГ-ТК пломбируются на предприятии-изготовителе. Пломбировке подлежат места подключения датчика температуры и датчика импульсов.
В случае монтажа составных частей на объекте, пломбировка осуществляется при вводе комплекса в эксплуатацию.
13 ТАРА И УПАКОВКА-
13.1 Упаковка и консервация комплекса СГ-ТК соответствует требованиям ГОСТ 9.014.
-
13.2 Комплекс СГ-ТК упаковывается в индивидуальную деревянную тару по ГОСТ 2991 или по ГОСТ9142 в тару из гофрокартона. Не допускается при транспортировании перемещение изделия внутри транспортной тары.
-
13.3 Вместе с комплексом СГ-ТК укладываются (в полиэтиленовом пакете) паспорт, руководство по эксплуатации, а также сопроводительные документы на каждую из составных частей и комплект ЗИП.
-
14.1 Общие требования к транспортированию изделий должны соответствовать ГОСТ 12997.
-
14.2 Упакованные изделия должны транспортироваться в крытых транспортных средствах всеми видами транспорта в соответствии с правилами перевозки грузов, действующими на каждом виде транспорта. Вид отправления - мелкий.
-
14.3 Условия транспортирования комплекса СГ-ТК в упаковке должны соответствовать условиям Д3 по ГОСТ 12997 (температура окружающего воздуха от минус 30 до плюс 50ОС, относительная влажность не более 95% при температуре плюс 35ОС).
-
14.4 Упакованные изделия должны храниться в складских условиях, обеспечивающих их сохранность от механических воздействий, загрязнений и действия агрессивных сред.
-
14.5 Условия хранения упакованных комплексов должны соответствовать группе В3 по ГОСТ 12997 (температура окружающего воздуха от плюс 5 до плюс 40ОС, относительная влажность не более 95% при температуре плюс 30ОС).
-
14.6 Транспортирование и хранение изделий, отправляемых в районы Крайнего Севера и труднодоступные районы, должны производиться по ГОСТ 15846.
-
14.7 Хранение изделий в транспортной таре допускается не более 6 месяцев, в противном случае они должны быть освобождены от транспортной тары
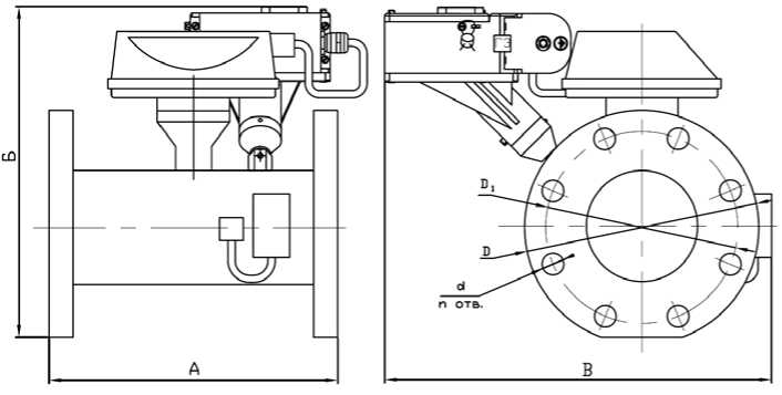
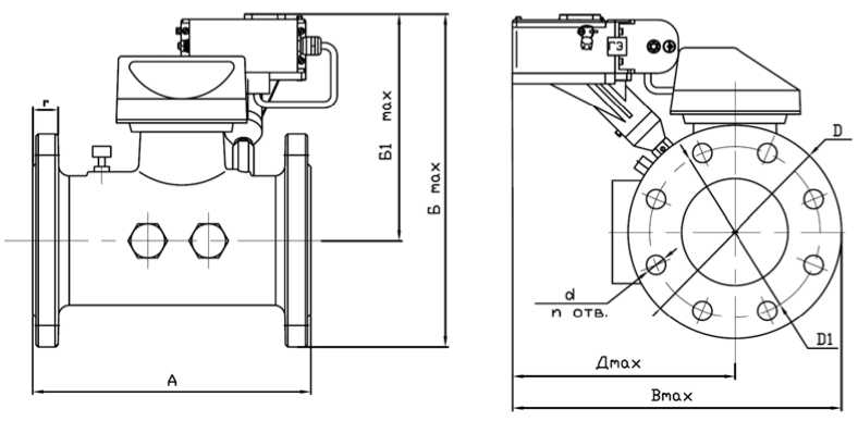
ПРИЛОЖЕНИЕ А Габаритно-присоединительные размеры комплексов СГ-ТК-Т1 со счетчиками СГ I. Со счетчиками газа СГ-250...2500 (фланцевое исполнение)

Рис.1 Направление потока газа - слева направо

Рис.2 Направление потока газа - справа налево
Исполнение |
Номер рисунко |
Т ип счетчика газа |
Ду. мм |
D, мм |
Di, мм |
d, мм |
П, ШТ. |
А, мм |
Б, мм |
В, мм |
Масса, кг |
СГ-ТК-Т1-250 |
1 |
СГ16МТ-250 |
80 |
195 |
160 |
18 |
8 |
240 |
300 |
410 |
14 |
СГ-ТК-Т1-400, СГ-ТК-Т1-650 |
1 |
СГ16МТ-400, СГ16МТ-650 |
100 |
215 |
180 |
18 |
8 |
300 |
310 |
460 |
18 |
СГ-ТК-Т1-800, СГ-ТК-Т1-1000 |
1 |
СГ16МТ-800, СГ16МТ-1000 |
150 |
280 |
240 |
22 |
8 |
450 |
360 |
470 |
33 |
СГ-ТК-Т1-1600, СГ-ТК-Т1-2500 |
1 |
СГ16МТ-1600, СГ16МТ-2500 |
200 |
335 |
295 |
22 |
12 |
450 |
410 |
530 |
47 |
СГ-ТК-Т1-250 |
2 |
СГ16МТ-250 |
80 |
195 |
160 |
18 |
8 |
240 |
306 |
370 |
14 |
СГ-ТК-Т1-400, СГ-ТК—Т1-650 |
2 |
СГ16МТ—400, СГ16МТ-650 |
100 |
215 |
180 |
18 |
8 |
300 |
323 |
410 |
18 |
СГ-ТК-Т1-800, СГ-ТК-Т1-1000 |
2 |
СГ16МТ—800, СГ16МТ-1000 |
150 |
280 |
240 |
22 |
8 |
450 |
375 |
450 |
33 |
СГ-ТК-Т1-1600, СГ-ТК-Т1-2500 |
2 |
СГ16МТ-1600, СГ16МТ-2500 |
200 |
335 |
295 |
22 |
12 |
450 |
420 |
490 |
47 |
II. Со счетчиком газа СГ-100 (бесфланцевое исполнение)
гго

150
147

150
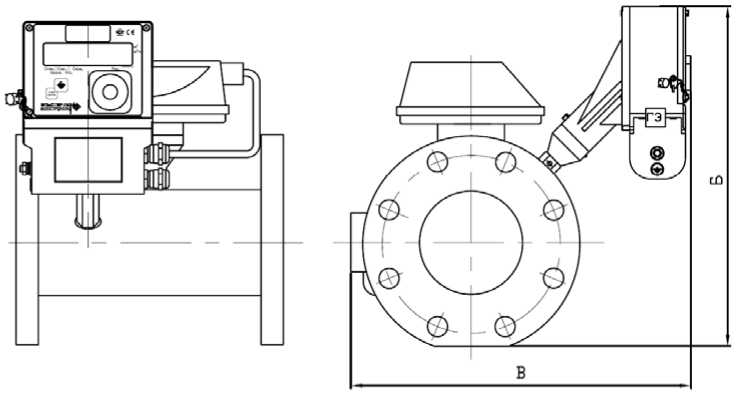
Габаритно-присоединительные размеры комплексов СГ-ТК-Т2 со счетчиками TRZ

Дтах
Влах
Рис. 1 Направление потока газа - слева направо

Рис. 2 Направление потока газа - справа налево
Исполнение |
Рис. |
Типоразмер сметчика газа TRZ |
Ду мм |
А, мм |
Б, мм |
Вм ММ |
В, мм |
Г, мм |
ZL мм |
D, мм |
Di, мм |
d, мм |
п |
Масса. кг |
СГ-ТК-Т2-250 СГ-ТК-Т2-400 |
1 |
G160 G250 |
80 |
240 |
306 |
206 |
370 |
26 |
230 |
200 |
160 |
18 |
8 |
22 |
СГ-ТК-Т2-400 СГ-ТК-Т2-650 |
1 |
G250 G400 |
100 |
300 |
325 |
215 |
390 |
26 |
236 |
220 |
180 |
18 |
8 |
29 |
СГ-ТК-Т2-650 СГ-ТК-Т2-1000 СГ-ТК-Т2-1600 |
1 |
G400 G650 G1000 |
150 |
450 |
365 |
222.5 |
415 |
30 |
250.5 |
285 |
240 |
22 |
8 |
56 |
СГ-ТК-Т2-1000 СГ-ТК-Т2-1600 |
1 |
G1000 G1600 |
200 |
600 |
500 |
335 |
675 |
30 |
405 |
335 |
295 |
22 |
12 |
101 |
СГ-ТК-Т2-250 СГ-ТК-Т2-400 |
2 |
G160 G250 |
80 |
240 |
325 |
225 |
350 |
26 |
217 |
200 |
160 |
18 |
8 |
22 |
СГ-ТК-Т2-400 СГ-ТК-Т2-650 |
2 |
G250 G400 |
100 |
300 |
340 |
230 |
370 |
26 |
225 |
220 |
180 |
18 |
8 |
29 |
СГ-ТК-Т2-650 СГ-ТК-Т2-1000 СГ-ТК-Т2-1600 |
2 |
G400 G650 G1000 |
150 |
450 |
382 |
239.5 |
410 |
30 |
236 |
285 |
240 |
22 |
8 |
56 |
СГ-ТК-Т2-1000 СГ-ТК-Т2-1600 |
2 |
G1000 G1600 |
200 |
600 |
488 |
320 |
460 |
30 |
290 |
335 |
295 |
22 |
12 |
101 |
ПРИЛОЖЕНИЕ В Габаритно-присоединительные размеры комплексов СГ-ТК-Р со счетчиками RVG

Рис.1 Направление потока газа - слева направо

Рис.2 Направление потока газа - справа налево
Исполнение |
Номер рисунка |
Типоразмер сметчика газа RVG |
Да мм |
D, мм |
А, мм |
В, мм |
с, мм |
F, мм |
к, мм |
сС мм |
п |
Масса, кг |
СГ-ТК-Р-25...100 |
1 |
G16...G65 |
50 |
125 |
335 |
370 |
200 |
171 |
275 |
М16 |
4 |
16 |
СГ-ТК-Р-160 |
1 |
G100 |
80 |
160 |
435 |
370 |
200 |
171 |
275 |
М16 |
8 |
21 |
СГ-ТК-Р-250 |
1 |
G160 |
80 |
160 |
469 |
410 |
270 |
241 |
295 |
М16 |
8 |
36 |
СГ-ТК-Р-400 |
1 |
G250 |
100 |
180 |
529 |
410 |
270 |
241 |
295 |
М16 |
8 |
41 |
СГ-ТК-Р-650 |
1 |
G400 |
100 |
180 |
660 |
450 |
265 |
260 |
308 |
М16 |
8 |
51 |
СГ-ТК-Р-650 |
1 |
G400 |
150 |
240 |
660 |
450 |
265 |
260 |
308 |
М20 |
8 |
57,5 |
СГ-ТК-Р-25...100 |
2 |
G16...G65 |
50 |
125 |
310 |
370 |
230 |
171 |
275 |
М16 |
4 |
16 |
СГ-ТК-Р-160 |
2 |
G100 |
80 |
160 |
410 |
370 |
230 |
171 |
275 |
М16 |
8 |
21 |
СГ-ТК-Р-250 |
2 |
G160 |
80 |
160 |
450 |
410 |
300 |
241 |
295 |
М16 |
8 |
36 |
СГ-ТК-Р-400 |
2 |
G250 |
100 |
180 |
510 |
410 |
300 |
241 |
295 |
М16 |
8 |
41 |
СГ-ТК-Р-650 |
2 |
G400 |
100 |
180 |
660 |
450 |
275 |
260 |
308 |
М16 |
8 |
51 |
СГ-ТК-Р-650 |
2 |
G400 |
150 |
240 |
660 |
450 |
275 |
260 |
308 |
М20 |
8 |
57,5 |
ПРИЛОЖЕНИЕ Г Габаритно-присоединительные размеры комплексов СГ-ТК-Д со счетчиками ВК
Вариант 1
НАПРАВЛЕНИЕ ПОТОКА ГАЗА
Исполнение |
Типоразмер счетчика газа ВК |
А. мм |
Б, мм |
в, мм |
Г, мм |
>к; мм |
Д |
Масса, кг |
СГ-ТК-Д-16 |
G10 |
280 |
405 |
350 |
260 |
108 |
G2-A |
6,7 |
СГ-ТК-Д-25 |
G16 |
280 |
405 |
350 |
260 |
108 |
G2-A |
6,7 |
СГ-ТК-Д-40 |
G25 |
335 |
465 |
398 |
315 |
138 |
G2 1/2-А |
11 |
Вариант 2

Обозначение |
Типоразмер счетчика газа ВК |
А, мм |
Б, мм |
в, мм |
Г мм |
Ж мм |
Д |
Масса, кг |
СГ-ТК-Д-2.5...6 |
G1.6-G4 |
110 |
197 |
280 |
163 |
71 |
G1 1/4-А |
3,9 |
СГ-ТК-Д-10 |
G6 |
250 |
327 |
305 |
163 |
71 |
G1 1/4-А |
5,5 |
СГ-ТК-Д-16 |
G10 |
280 |
405 |
400 |
234 |
108 |
G2-A |
7,8 |
СГ-ТК-Д-25 |
G16 |
280 |
405 |
400 |
234 |
108 |
G2-A |
7,8 |
СГ-ТК-Д-40 |
G25 |
355 |
465 |
460 |
289 |
138 |
G2 1/2-А |
12 |
Место измерения температуры до или после счетчика оговаривается при заказе.
Вариант 3

Обозначение |
Типоразмер счетчика газа ВК |
А, мм |
Б, мм |
в, мм |
Г мм |
Ж мм |
д |
Масса, кг |
СГ-ТК-Д-16 |
G10 |
280 |
405 |
400 |
260 |
108 |
G2-A |
7,8 |
СГ-ТК-Д-25 |
G16 |
280 |
405 |
400 |
260 |
108 |
G2-A |
7,8 |
СГ-ТК-Д-40 |
G25 |
335 |
465 |
460 |
315 |
138 |
G2 1/2-А |
12 |
Место измерения температуры до или после счетчика оговаривается при заказе.
Вариант 4

Обозначение |
Тип стика газа ВК |
мм |
А, мм |
В, мм |
С, мм |
D, мм |
В, мм |
F1, мм |
F, мм |
Мааса, кг |
D, мм |
о2. мм |
п, шт |
d, мм |
ОГ-ТК-П-65 |
BK-G70 |
80 |
570 |
327 |
161 |
567 |
392 |
630 |
703 |
29 |
200 |
160 |
8 |
18 |
СГ-ТК-П-100 |
BK-G65 |
80 |
680 |
327 |
161 |
567 |
392 |
630 |
703 |
30 |
200 |
160 |
8 |
18 |
СГ-ТК-П-160 |
BK-G100 |
100 |
800 |
577 |
273 |
800 |
571 |
760 |
533 |
96 |




Поз. |
Обозначение |
Наименование |
Кол. |
1 |
ГОСТ 23358-37 |
Прокладка 14АДО |
1 |
2 |
Л ГТИ.713361.014-01 |
Втулка |
1 |
3 |
Л ГТИ.73014014 |
Г ильза |
1 |
4 |
ОСТ131526-80 |
Винт 4-8 |
1 |
5 |
ГОСТ 18143-72 |
Проволока 0,5 |
0.2м |
6 |
ОСТ 110067-71 |
Пломба |
1 |

Настоящая методика поверки распространяется на комплексы для измерения количества газа СГ-ТК: модификаций СГ-ТК-Т, СГ-ТК-Р, СГ-ТК-Д (далее комплекс) с автоматической коррекцией измеренного объема природного газа по температуре и коэффициенту сжимаемости измеряемой среды с учетом вводимых вручную значений относительной плотности газа, содержания в газе азота и углекислого газа.
Методика поверки устанавливает порядок первичной, периодической поверки из эксплуатации и после ремонта.
Комплексы СГ-ТК состоят из счетчиков газа (ВК, СГ, TRZ, RVG) и корректоров объема газа (ТС210 и ТС215) поверка которых проводится в соответствии с методиками поверки на них, кроме счетчиков ВК по ГОСТ Р 50818 и счетчиков RVG по ГОСТ 8.324.
Межповерочный интервал комплекса 5 лет.
1. ОПЕРАЦИИ ПОВЕРКИ
Наименование операции |
Номер п. НД по поверке |
Проведение операции при | |
первичной поверке |
периодической поверке | ||
Внешний осмотр |
+ |
+ | |
Опробование |
+ |
+ | |
Определение метрологических характеристик: - определение основной относительной погрешности |
+ |
+ |
-
2.1. При проведении поверки применяются следующие средства поверки, указанные в табл.1.
Таблица 1
Номер пункта настоящей методике по поверке |
Наименование и тип основного или вспомогательного средства поверки; обозначение нормативного документа, регламентирующего технические требования и (или) метрологические и основные технические характеристики средства поверки |
7.3.1.1 |
Установка для поверки счетчиков газа УПСГ 3200 диапазон измерений от 0,01 до 3200 м3/ч, погрешность < 0,3 % |
7.3.1.2 |
Термостат ТПП-1.1 Воспроизведения температур в диапазоне от - 30 до 90°С |
-
2.2. Допускается применение других средств измерений с аналогичными или лучшими характеристиками, имеющими действующие свидетельства о поверке или поверочные клейма.
К проведению поверки допускаются лица, аттестованные в установленном порядке на право проведения поверки, изучившие руководство по эксплуатации комплекса и эксплуатационную документацию используемых средств измерений.
4. ТРЕБОВАНИЯ БЕЗОПАСНОСТИ-
4.1. При проведении поверки соблюдают требования безопасности в соответствии со следующими документами:
Правила технической эксплуатации электроустановок ПТЭ;
Правила устройства электроустановок ПУЭ;
Правила безопасности труда, действующие на объекте и УУН.
-
4.2. Надписи и условные знаки, выполненные для обеспечения безопасной эксплуатации комплексов должны быть четкими.
-
4.3. Доступ к средствам измерений и обслуживаемому при поверке комплексов оборудованию должен быть свободным.
При проведении поверки соблюдают следующие условия:
- температура окружающего воздуха, °С 20 ± 5
- относительная влажность воздуха , % 30 - 80
- атмосферное давление, кПа 84,0 - 106,7
6. ПОДГОТОВКА К ПОВЕРКЕ-
6.1. Перед проведением поверки должны быть выполнены следующие подготовительные работы:
- Перед проведением поверки комплекс выдерживают в помещении при температуре (20 ± 5)°С не менее двух часов.
- Комплекс подлежит разборке на счетчик газа и корректор, с нарушением пломб ФГУ «Нижегородский ЦСМ» согласно приложению 2, если поверочная установка не позволяет произвести поверку комплекса в целом.
- Поверочную установку подготавливают к работе в соответствии с руководством по эксплуатации..
7. ПРОВЕДЕНИЕ ПОВЕРКИ-
7.1. ВНЕШНИЙ ОСМОТР
При проведении внешнего осмотра комплекса должно быть установлено:
- отсутствие видимых механических повреждений и дефектов, в том числе и покрытия, ухудшающего внешний вид комплекса и препятствующего его применению;
- надписи и обозначения должны быть четкими и хорошо читаемы;
- соответствие комплектности требованиям технической документации на данный комплекс;
- правильность оформления паспорта и соответствие номера, указанного в паспорте номеру на шильдике комплекса.
-
7.2. ОПРОБОВАНИЕ
7.2.1 ПРОВЕРКА РАБОТОСПОСОБНОСТИ
Проверку работоспособности комплекса СГ-ТК производить на испытательной установке в следующей последовательности:
-
1) установить объемный расход газа в диапазоне 0,2 - 0,8 Qmax для соответствующей модификации комплекса;
-
2) в момент срабатывания младшего разряда механического отсчетного устройства на счетчике газа зафиксировать показания отсчетного устройства (Vic) и некорректированного объема газа на дисплее корректора (V1K);
-
3) пропустить через счетчик газа объем, достаточный для не менее чем 5 полных оборотов последнего колеса счетного механизма;
-
4) в момент срабатывания механического отсчетного устройства на счетчике газа, зафиксировать новые показания механического отсчетного устройства (V2c) и некорректированного объема газа на дисплее корректора (V2K).
Результаты испытаний считаются положительными, если объем газа, прошедший через счетчик, равен некорректированному объему газа на дисплее корректора.
V -V = V -V
*2 К ' 1К *2С r1C
-
7.3. Определение метрологических характеристик
-
7.3.i Определение основной относительной погрешности комплекса состоит из двух частей:
-
-
- определение допускаемой относительной погрешности счетчика
-
- определение допускаемой относительной погрешности корректора.
-
7.3.1.1 определение пределов изменения относительной погрешности счетчиков проводят согласно соответствующим методикам поверки на счетчики (СГ, TRZ), счетчик ВК -согласно ГОСТ Р 50818 счетчик RVG - согласно ГОСТ 8.324.
-
7.3.1.2 Определение относительной погрешности корректоров (ТС210, ТС215) проводят согласно методикам поверки на корректора.
-
7.3.2. Определение основной относительной погрешности комплекса СГ-тк по измерению приведенного объема производится для каждого из измеряемых диапазонов (10 - 20 и 20 - 100 % QMAKC) объемных расходов расчетным путем по формуле:
§v = ± 'V 5с2 + 5к2 ,
где 5с —погрешность счетчика газа по измерению объема газа при рабочих условиях; 5к —погрешность корректора
результаты поверки считаются положительными, если пределы основной относительной погрешности измерения комплексом объема газа в зависимости от типа счетчика соответствуют:
-
• для комплекса СГ-тк-т1 на базе счетчика СГ :
5V.< ± 1.2 % в диапазоне расходов от 20 % до 100 % Ом1кс.
5V.< ± 2.2 % в диапазоне расходов от Q^ до 20 % рмакс.
-
• для комплекса СГ- тк- т 2 на базе счетчика TRZ
5V.< ± 1.2 % в диапазоне расходов от 10 % до 100 % Ом1кс.
5V.< ± 2.2 % в диапазоне расходов от QMkk до 10 % Ом1кс.
-
• для комплекса СГ-тк-р на базе счетчика RVG :
5V.< ± 1.2 % в диапазоне расходов от 10 % до 100 % Ом1кс.
5V.< ± 2.2 % в диапазоне расходов от Омин до 10 % Ом1кс.
-
• для комплекса СГ-тк-Д на базе счетчика Вк:
5V.< ± 1.7 % в диапазоне расходов от 10 % Qlk,M до 100 % Ом1кс.
5V.< ± 3.2 % в диапазоне расходов от QMkk до 10 % Рном.
Полученные значения погрешностей заносятся в протокол испытаний.
8. ОФОРМЛЕНИЕ РЕЗУЛЬТАТОВ ПОВЕРКИ8.1 Результаты поверки оформляются в виде протокола, форма которого приведена в приложении 1.
-
8.2 При положительных результатах поверки комплекс признают годным к применению, наносят клеймо поверителя в соответствии с ПР50.2.007.
-
8.3 При отрицательных результатах поверки комплекс считают непригодным к эксплуатации, клеймо поверителя гасят и оформляют извещение о непригодности комплекса с указанием причин в соответствии с ПР 50.2.006.
ПРИЛОЖЕНИЕ 1
(обязательное)
Протокол № _________ от «_____» «____________» 200 г.
первичной поверки измерительного комплекса СГ-ТК
V1C |
V2C |
V2C - V1C |
V^ |
V2I< |
V2К - ^К |
где: Vic - первоначальное показание счетчика газа V1K- первоначальное показание корректора объема газа
Заводской номер комплекса СГ-ТК Заводской номер счетчика ___________________ Заводской номер корректора __________________ |
Температура окруж. Среды 0С Атмосферное давление _______ Кпа Относительная влажность _____ % | |||
№ пункта |
Содержание испытаний |
Указания по методике проведения испытаний и рассмотрения технической документации |
Соотв. требованиям ТТ | |
1 |
Проверка соответствия конструкторской документации |
Проверку соответствия конструкторской документации, комплектности, маркировки и упаковки проводить сличением СГ-ТК с соответствующей документацией. |
ТД представлен а полностью | |
2 |
Проверка наличия свидетельств о поверке на корректор объема газа и счетчик газа. |
Проверку наличия свидетельств о поверке проводить сличением заводских номеров в свидетельствах о поверке корректора объема газа и счетчика газа с данными на шильдиках приборов. |
КД соответствуе т ТТ | |
3 |
Проверка работоспособности СГ-ТК |
Проверка работоспособности комплекса СГ-ТК: рабочий объем по показаниям механического счетчика совпадает с показаниями рабочего объема корректора. |
1. Проверка работоспособности комплекса СГ-ТК
V2C - показание счетчика газа после продувки V2K- показания корректора объема газа после продувки
Результаты испытаний считаются положительными если:
V2I<- ^К= V2C - V1C
2. Определение основной относительной погрешности измерения объема газа
Диапазон расхода |
8с. |
8k. |
8v =±^I8C2 +8K 2 |
диапазон расходов 1 | |||
диапазон расходов 2 |
Где: 8С. - относительная погрешность счетчика газа
8K. - относительная погрешность корректора объема газа
8V. - основная относительная погрешность.
Допустимое 8V.< ± 1.2 % в диапазоне расходов 1:
диапазон расходов от 20 % Q^. до 100 % для счётчиков типа СГ;
диапазон расходов от 10 % Q^. до 100 % Q^. для счётчиков типа RVG, TRZ
Допустимое 8V.< ± 2.2 % в диапазоне расходов 2:
в диапазоне расходов от Q^. до 20 % Q^. для счётчиков типа СГ;
в диапазоне расходов от Q^. до 10 % Q^. для счётчиков типа RVG и TRZ.
Допустимое 8V.< ± 1.7 % в диапазоне расходов 1:
диапазон расходов от 10 % Q^. до 100 % Q^. для счётчиков типа ВК. Допустимое 8V.< ± 3.2 % в диапазоне расходов 2:
в диапазоне расходов от Q^. до 10 % Q^. для счётчиков типа ВК.
Коэффициент срабатывания геркона: ___________________
Поверено и на основании результатов первичной (периодической) поверки признано ___годным к применению Подпись поверителя _____________________

2KI7T
СЕРТИФИКАТ
ой утверждении типа средств измерений
РАТ ГЕН N АР РROVAI СЕKT1FR АТЕ ОЕ MEASI RING INSTRUMENTS
Настоят n'i сертификат удис.......рчег. . ...........т ложительных
.. »MfV1t№» цпЯ НЗМЦЙНМЯ ВД1ЙМ4СТН МЛ
jie/iy.i г-,тит<|Н иг и ьгта ни и утнСрНгДСИ ТКП .............................Г............................
сгл к- мцрыфнктИМ £ г тк л, сг .тн- р, СТ-ЛСД
............................. iiiiuinLjji-li p±itib uiu'rtin ■1 Tjrjij Ольстер I ±з-з лактрони ка'г.Арзамас Нинэгэродскои сьп.
пчь IiII-iiiii пр ■■ .ni-ia:-: ::: г-чи ■■ ч
Занести тел ь
РуКОиОДи rp.i 11
Заместитель
Руководителя
RU.C.29.011-A
Действителен .то
01. чарта 2С12
и ГЬруднртттлеипсм реестре средств измерен ин и ид
.№
33S74-O7 ■' Д<| II If 1.1-1 I
к II:: п.а ин 1-iljlIU и РогсингКоВ Феда рз i_HII.
Отшей кие типа с<■ |i 'I и i: I и h. пт
гре л с тва из нс р с н i: й J J ц пи-дени и i у н.ч и;). с ■ ■ 1 11 ■ к и; i с 1 < r.i i11 е чу
Ь". 11 К|| 1' III h'.llf
...^. 20U.A-
Пр.здтфЙ до
.... 200 г
ФЕДЕРАЛЬНОЕ ДГЕ1 ТСТВО
ПО ТЕХНИЧЕСКОМУ РЕГУЛИРОВАНИЮ И МЕТРОЛОГИИ

СЕРТИФИКАТ СООТВЕТСТВИЯ
Срок действия с 03.04.2007
код ОК 005 (ОКП):
42 1324
СООТВЕТСТВУЕТ ТРЕБОВАНИЯМ НОРМАТИВНЫХ ДОКУМЕНТОВ
код TH ВЭД России:
ГОСТ Р 51330.0, ГОСТ Р 51330.10
Ю.Н.Теряев
ИЗГОТОВИТЕЛЬ
ООО «ЭЛЬСТЕР Газэлектроника»
607224, Россия, Нижегородская обл., г. Арзамас, ул. 50 лет ВЛКСМ, д. 8
СЕРТИФИКАТ ВЫДАН
ООО «ЭЛЬСТЕР Газэлектроника»
607224, Россия, Нижегородская обл., г. Арзамас, ул. 50 лет ВЛКСМ, д. 8 ИНН - 5243013811, телефон: (83147) 3-38-26; факс (83147) 3-54-41
НА ОСНОВАНИИ
-
1. Протокол испытаний №07.341 от 29.03.2007 г.
ИЛ ВСИ «ВНИИФТРИ»(РОСС Ии.0001.21ИП09)
-
2. Сертификат соответствия СМК № РОСС Ии.ИК01.К00038 до 27.06.2009 г.
СИСТЕМА СЕРТИФИКАЦИИ ГОСТ Р ГОССТАНДАРТ РОССИИ
№ РОСС RUTb06.B00296
инициалы, фамилия
— Н.Ю.Мирошникова
по 03.04.2010
7178593
ДОПОЛНИ££Ы£ЦЯ ИНФОРМАЦИЯ
ОРГАН ПО СЕРТИФИКАЦИИ РОСС RU.0001.11ГБ06
ОРГАН ПО СЕРТИФИКАЦИИ ВЗРЫВОЗАЩИЩЕННЫХ СРЕДСТВ ИЗМЕРЕНИЙ КОНТРОЛЯ И ЭЛЕМЕНТОВ АВТОМАТИКИ ФГУП «ВНИИФТРИ» ОС ВСИ «ВНИИФТРИ» Россия, 141570, Московская обл., Солнечногорский р-он, п/о Менделеево,
ФГУП «ВНИИФТРИ», тел./факс (495) 535-0871
ПРОДУКЦИЯ КОМПЛЕКС ДЛЯ ИЗМЕРЕНИЯ КОЛИЧЕСТВА ГАЗА СГ-ТК
ТУ 4213-031 -48318941 -2006 (ЛГТИ.407321.020 ТУ) маркировка взрывозащиты - 1 ExibIIBT4 серийный выпуск см. Ех-приложение
Хс|;
гиой«дитель органа
чьйЪ» • ЭМйНерт -------—,----------- -
ш подпил» инициалы, фамилия
Сертификат-имеет юридическую силу на всей территории Российской Федерации

№ РРС 00-25917
На применение
Основание выдачи разрешения: Техническая документация; заключение экспертизы промышленной безопасности АНО сертификации продукции "АКАДЕММАШ" № 0240/06-2007 от 25.06.2007 г.; сертификат соответствия ОС ФГУП "ВНИИФТРИ" № РОСС RU.TE06.B00296 от 03.04.2007 г.
оводителя .. Красных
АВ 025556
ФЕДЕРАЛЬНАЯ СЛУЖБА ПО ЭКОЛОГИЧЕСКОМУ, ТЕХНОЛОГИЧЕСКОМУ И АТОМНОМУ НАДЗОРУ
Изготовитель (поставщик): ООО "ЭЛЬСТЕР Газэлектроника" (607220, Нижегородская обл., г. Арзамас, ул. 50 лет ВЛКСМ, 8).
Оборудование (техническое устройство, материал) Комплексы для измерения количества газа СГ-ТК по ТУ 4213-031 -48318941 -2006.
Условия применения:
-
1. Выполнение требований законодательства Российской Федерации в области промышленной безопасности.
-
2. Соблюдение требований технических условий и стандартов
на изготовление технических устройств.
-
3. Техническое обслуживание и эксплуатация в соответствии с требованиями норм и правил промышленной безопасности.
-
4. Технические устройства при установке во взрывоопасных зонах должны иметь сертификаты (свидетельства) о взрывозащищенности.
Срок действия разрешения до 22.08.2010
________ООО «ЭЛЬСТЕР Газэлектроника»________ул. 50 лет ВЛКСМ, 8а, Арзамас, Нижегородская обл., 607224, Россия
__________Тел.:(831-47) 2-10-70; 2-10-71 Факс: (831-47) 3-54-41__________
E-mail: info@gaselectro.nnov.ru http://www.gaselectro.ru
37