Номер по Госреестру СИ: 85125-22
85125-22 Резервуары стальные горизонтальные цилиндрические
(РГС-25)
Назначение средства измерений:
Резервуары стальные горизонтальные цилиндрические РГС-25 (далее - резервуары) предназначены для измерения объема нефтепродуктов, а также для их приема, хранения и отпуска.

Внешний вид.
Резервуары стальные горизонтальные цилиндрические
Рисунок № 1

Внешний вид.
Резервуары стальные горизонтальные цилиндрические
Рисунок № 2

Внешний вид.
Резервуары стальные горизонтальные цилиндрические
Рисунок № 3
Общие сведения
Дата публикации - 12.04.2022
Срок свидетельства -
Номер записи - 187149
ID в реестре СИ - 1398645
Тип производства - единичное
Описание типа
Поверка
Интервал между поверками по ОТ - 5 лет
Наличие периодической поверки - Да
Методика поверки
Модификации СИ
Нет модификации,
Производитель
Изготовитель - Общество с ограниченной ответственностью "ТАИФ-НК АЗС" (ООО "ТАИФ-НК АЗС")
Страна - РОССИЯ
Населенный пункт - г. Казань
Уведомление о начале осуществления предпринимательской деятельности -
Статистика
Кол-во поверок - 5
Выдано извещений - 0
Кол-во периодических поверок - 0
Кол-во средств измерений - 5
Кол-во владельцев - 1
Усредненный год выпуска СИ - 0
МПИ по поверкам - 1825 дн.
Приказы РСТ, где упоминается данный тип СИ
№855 от 2022.04.05 ПРИКАЗ_Об утверждении типов средств измерений (16)
Наличие аналогов СИ: Резервуары стальные горизонтальные цилиндрические (РГС-25)
| ИМПОРТНОЕ СИ № в реестре, наименование СИ, обозначение, изголовитель |
ОТЕЧЕСТВЕННЫЙ АНАЛОГ № в реестре, наименование СИ, обозначение, изголовитель |
|---|
Все средства измерений Общество с ограниченной ответственностью "ТАИФ-НК АЗС" (ООО "ТАИФ-НК АЗС")
|
№ в реестре cрок св-ва |
Наименование СИ, обозначение, изголовитель | ОТ, МП | МПИ |
|---|---|---|---|
|
85115-22 |
Резервуары стальные горизонтальные цилиндрические, РГС-60 Общество с ограниченной ответственностью "ТАИФ-НК АЗС" (ООО "ТАИФ-НК АЗС") (РОССИЯ г. Казань) |
ОТ МП |
5 лет |
|
85116-22 |
Резервуары стальные горизонтальные цилиндрические, РГС-60 Общество с ограниченной ответственностью "ТАИФ-НК АЗС" (ООО "ТАИФ-НК АЗС") (РОССИЯ г. Казань) |
ОТ МП |
5 лет |
|
85117-22 |
Резервуары стальные горизонтальные цилиндрические, РГС-25 Общество с ограниченной ответственностью "ТАИФ-НК АЗС" (ООО "ТАИФ-НК АЗС") (РОССИЯ г. Казань) |
ОТ МП |
5 лет |
|
85118-22 |
Резервуары стальные горизонтальные цилиндрические, РГС-25 Общество с ограниченной ответственностью "ТАИФ-НК АЗС" (ООО "ТАИФ-НК АЗС") (РОССИЯ г. Казань) |
ОТ МП |
5 лет |
|
85119-22 |
Резервуары стальные горизонтальные цилиндрические, РГС-50 Общество с ограниченной ответственностью "ТАИФ-НК АЗС" (ООО "ТАИФ-НК АЗС") (РОССИЯ г. Казань) |
ОТ МП |
5 лет |
|
85120-22 |
Резервуары стальные горизонтальные цилиндрические, РГС-25 Общество с ограниченной ответственностью "ТАИФ-НК АЗС" (ООО "ТАИФ-НК АЗС") (РОССИЯ г. Казань) |
ОТ МП |
5 лет |
|
85121-22 |
Резервуары стальные горизонтальные цилиндрические, РГС-25 Общество с ограниченной ответственностью "ТАИФ-НК АЗС" (ООО "ТАИФ-НК АЗС") (РОССИЯ г. Казань) |
ОТ МП |
5 лет |
|
85122-22 |
Резервуары стальные горизонтальные цилиндрические, РГС-25 Общество с ограниченной ответственностью "ТАИФ-НК АЗС" (ООО "ТАИФ-НК АЗС") (РОССИЯ г. Казань) |
ОТ МП |
5 лет |
|
85123-22 |
Резервуары стальные горизонтальные цилиндрические, РГС-30 Общество с ограниченной ответственностью "ТАИФ-НК АЗС" (ООО "ТАИФ-НК АЗС") (РОССИЯ г. Казань) |
ОТ МП |
5 лет |
|
85124-22 |
Резервуары стальные горизонтальные цилиндрические, РГС-50 Общество с ограниченной ответственностью "ТАИФ-НК АЗС" (ООО "ТАИФ-НК АЗС") (РОССИЯ г. Казань) |
ОТ МП |
5 лет |
|
85125-22 |
Резервуары стальные горизонтальные цилиндрические, РГС-25 Общество с ограниченной ответственностью "ТАИФ-НК АЗС" (ООО "ТАИФ-НК АЗС") (РОССИЯ г. Казань) |
ОТ МП |
5 лет |
|
85126-22 |
Резервуары стальные горизонтальные цилиндрические, РГС-60 Общество с ограниченной ответственностью "ТАИФ-НК АЗС" (ООО "ТАИФ-НК АЗС") (РОССИЯ г. Казань) |
ОТ МП |
5 лет |
|
85127-22 |
Резервуар стальной горизонтальный цилиндрический, РГС-50 Общество с ограниченной ответственностью "ТАИФ-НК АЗС" (ООО "ТАИФ-НК АЗС") (РОССИЯ г. Казань) |
ОТ МП |
5 лет |
|
85158-22 |
Резервуары стальные горизонтальные цилиндрические, РГС-50 Общество с ограниченной ответственностью "ТАИФ-НК АЗС" (ООО "ТАИФ-НК АЗС") (РОССИЯ г. Казань) |
ОТ МП |
5 лет |
|
85429-22 |
Резервуары стальные горизонтальные цилиндрические, РГС-25 Общество с ограниченной ответственностью "ТАИФ-НК АЗС" (ООО "ТАИФ-НК АЗС") (РОССИЯ г. Казань) |
ОТ МП |
5 лет |
|
85431-22 |
Резервуары стальные горизонтальные цилиндрические, РГС-50 Общество с ограниченной ответственностью "ТАИФ-НК АЗС" (ООО "ТАИФ-НК АЗС") (РОССИЯ г. Казань) |
ОТ МП |
5 |
|
85432-22 |
Резервуар стальной горизонтальный цилиндрический, РГС-25 Общество с ограниченной ответственностью "ТАИФ-НК АЗС" (ООО "ТАИФ-НК АЗС") (РОССИЯ г. Казань) |
ОТ МП |
5 лет |
|
85433-22 |
Резервуар стальной горизонтальный цилиндрический, РГС-40 Общество с ограниченной ответственностью "ТАИФ-НК АЗС" (ООО "ТАИФ-НК АЗС") (РОССИЯ г. Казань) |
ОТ МП |
5 лет |
|
85434-22 |
Резервуар стальной горизонтальный цилиндрический, РГС-25 Общество с ограниченной ответственностью "ТАИФ-НК АЗС" (ООО "ТАИФ-НК АЗС") (РОССИЯ г. Казань) |
ОТ МП |
5 лет |
|
85435-22 |
Резервуар стальной горизонтальный цилиндрический, РГС-30 Общество с ограниченной ответственностью "ТАИФ-НК АЗС" (ООО "ТАИФ-НК АЗС") (РОССИЯ г. Казань) |
ОТ МП |
5 лет |
|
85436-22 |
Резервуары стальные горизонтальные цилиндрические, РГС-25 Общество с ограниченной ответственностью "ТАИФ-НК АЗС" (ООО "ТАИФ-НК АЗС") (РОССИЯ г. Казань) |
ОТ МП |
5 лет |
|
85437-22 |
Резервуары стальные горизонтальные цилиндрические, РГС-25 Общество с ограниченной ответственностью "ТАИФ-НК АЗС" (ООО "ТАИФ-НК АЗС") (РОССИЯ г. Казань) |
ОТ МП |
5 лет |
|
85443-22 |
Резервуары стальные горизонтальные цилиндрические, РГС-25 Общество с ограниченной ответственностью "ТАИФ-НК АЗС" (ООО "ТАИФ-НК АЗС") (РОССИЯ г. Казань) |
ОТ МП |
5 лет |
|
85444-22 |
Резервуары стальные горизонтальные цилиндрические, РГС-25 Общество с ограниченной ответственностью "ТАИФ-НК АЗС" (ООО "ТАИФ-НК АЗС") (РОССИЯ г. Казань) |
ОТ МП |
5 лет |
|
85445-22 |
Резервуары стальные горизонтальные цилиндрические, РГС-25 Общество с ограниченной ответственностью "ТАИФ-НК АЗС" (ООО "ТАИФ-НК АЗС") (РОССИЯ г. Казань) |
ОТ МП |
5 лет |
|
85446-22 |
Резервуар стальной горизонтальный цилиндрический, РГС-25 Общество с ограниченной ответственностью "ТАИФ-НК АЗС" (ООО "ТАИФ-НК АЗС") (РОССИЯ г. Казань) |
ОТ МП |
5 лет |
|
85447-22 |
Резервуары стальные горизонтальные цилиндрические, РГС-50 Общество с ограниченной ответственностью "ТАИФ-НК АЗС" (ООО "ТАИФ-НК АЗС") (РОССИЯ г. Казань) |
ОТ МП |
5 лет |
|
85791-22 |
Резервуар стальной горизонтальный цилиндрический, РГС-10 Общество с ограниченной ответственностью "ТАИФ-НК АЗС" (ООО "ТАИФ-НК АЗС") (РОССИЯ г. Казань) |
ОТ МП |
5 лет |
|
85823-22 |
Резервуар стальной горизонтальный цилиндрический, РГС-25 Общество с ограниченной ответственностью "ТАИФ-НК АЗС" (ООО "ТАИФ-НК АЗС") (РОССИЯ г. Казань) |
ОТ МП |
5 лет |
|
85824-22 |
Резервуар стальной горизонтальный цилиндрический, РГС-70 Общество с ограниченной ответственностью "ТАИФ-НК АЗС" (ООО "ТАИФ-НК АЗС") (РОССИЯ г. Казань) |
ОТ МП |
5 лет |
|
85842-22 |
Резервуары стальные горизонтальные цилиндрические, РГС-60 Общество с ограниченной ответственностью "ТАИФ-НК АЗС" (ООО "ТАИФ-НК АЗС") (РОССИЯ г. Казань) |
ОТ МП |
5 лет |
|
85843-22 |
Резервуары стальные горизонтальные цилиндрические, РГС-50 Общество с ограниченной ответственностью "ТАИФ-НК АЗС" (ООО "ТАИФ-НК АЗС") (РОССИЯ г. Казань) |
ОТ МП |
5 лет |
|
85844-22 |
Резервуары стальные горизонтальные цилиндрические, РГС-25 Общество с ограниченной ответственностью "ТАИФ-НК АЗС" (ООО "ТАИФ-НК АЗС") (РОССИЯ г. Казань) |
ОТ МП |
5 лет |
|
85845-22 |
Резервуары стальные горизонтальные цилиндрические, РГС-25 Общество с ограниченной ответственностью "ТАИФ-НК АЗС" (ООО "ТАИФ-НК АЗС") (РОССИЯ г. Казань) |
ОТ МП |
5 лет |
|
86371-22 |
Резервуары стальные горизонтальные цилиндрические, РГС-60 Общество с ограниченной ответственностью "ТАИФ-НК АЗС" (ООО "ТАИФ-НК АЗС") (РОССИЯ г. Казань) |
ОТ МП |
5 лет |
|
86372-22 |
Резервуар стальной горизонтальный цилиндрический, РГС-15 Общество с ограниченной ответственностью "ТАИФ-НК АЗС" (ООО "ТАИФ-НК АЗС") (РОССИЯ г. Казань) |
ОТ МП |
5 лет |
|
86838-22 |
Резервуар стальной горизонтальный цилиндрический, РГС-50 Общество с ограниченной ответственностью "ТАИФ-НК АЗС" (ООО "ТАИФ-НК АЗС") (РОССИЯ г. Казань) |
ОТ МП |
5 лет |
|
86912-22 |
Резервуары стальные горизонтальные цилиндрические, РГС-25 Общество с ограниченной ответственностью "ТАИФ-НК АЗС" (ООО "ТАИФ-НК АЗС") (РОССИЯ г. Казань) |
ОТ МП |
5 лет |
|
86913-22 |
Резервуары стальные горизонтальные цилиндрические, РГС-60 Общество с ограниченной ответственностью "ТАИФ-НК АЗС" (ООО "ТАИФ-НК АЗС") (РОССИЯ г. Казань) |
ОТ МП |
5 лет |
|
86914-22 |
Резервуары стальные горизонтальные цилиндрические, РГС-25 Общество с ограниченной ответственностью "ТАИФ-НК АЗС" (ООО "ТАИФ-НК АЗС") (РОССИЯ г. Казань) |
ОТ МП |
5 лет |
|
86915-22 |
Резервуары стальные горизонтальные цилиндрические, РГС-25 Общество с ограниченной ответственностью "ТАИФ-НК АЗС" (ООО "ТАИФ-НК АЗС") (РОССИЯ г. Казань) |
ОТ МП |
5 лет |
|
89130-23 |
Резервуар стальной горизонтальный цилиндрический, РГС-50 (25+25) Общество с ограниченной ответственностью "ТАИФ-НК АЗС" (ООО "ТАИФ-НК АЗС") (РОССИЯ г. Казань) |
ОТ МП |
5 лет |
|
89131-23 |
Резервуары стальные горизонтальные цилиндрические, РГС-50 Общество с ограниченной ответственностью "ТАИФ-НК АЗС" (ООО "ТАИФ-НК АЗС") (РОССИЯ г. Казань) |
ОТ МП |
5 лет |
|
89133-23 |
Резервуары стальные горизонтальные цилиндрические, РГС Общество с ограниченной ответственностью "ТАИФ-НК АЗС" (ООО "ТАИФ-НК АЗС") (РОССИЯ г. Казань) |
ОТ МП |
5 лет |
|
89134-23 |
Резервуары стальные горизонтальные цилиндрические, РГС-25 Общество с ограниченной ответственностью "ТАИФ-НК АЗС" (ООО "ТАИФ-НК АЗС") (РОССИЯ г. Казань) |
ОТ МП |
5 лет |
|
89135-23 |
Резервуары стальные горизонтальные цилиндрические, РГС-25 Общество с ограниченной ответственностью "ТАИФ-НК АЗС" (ООО "ТАИФ-НК АЗС") (РОССИЯ г. Казань) |
ОТ МП |
5 лет |
|
89296-23 |
Резервуары стальные горизонтальные цилиндрические, РГС-60 Общество с ограниченной ответственностью "ТАИФ-НК АЗС" (ООО "ТАИФ-НК АЗС") (РОССИЯ г. Казань) |
ОТ МП |
5 лет |
|
89297-23 |
Резервуары стальные горизонтальные цилиндрические, РГС Общество с ограниченной ответственностью "ТАИФ-НК АЗС" (ООО "ТАИФ-НК АЗС") (РОССИЯ г. Казань) |
ОТ МП |
5 лет |
|
89281-23 |
Резервуары стальные горизонтальные цилиндрические, РГС-25 Общество с ограниченной ответственностью "ТАИФ-НК АЗС" (ООО "ТАИФ-НК АЗС") (РОССИЯ г. Казань) |
ОТ МП |
5 лет |
|
89282-23 |
Резервуары стальные горизонтальные цилиндрические, РГС Общество с ограниченной ответственностью "ТАИФ-НК АЗС" (ООО "ТАИФ-НК АЗС") (РОССИЯ г. Казань) |
ОТ МП |
5 лет |
|
89338-23 |
Резервуар стальной горизонтальный цилиндрический, РГС-25 Общество с ограниченной ответственностью "ТАИФ-НК АЗС" (ООО "ТАИФ-НК АЗС") (РОССИЯ г. Казань) |
ОТ МП |
5 лет |
|
89365-23 |
Резервуары стальные горизонтальные цилиндрические, РГС-20 Общество с ограниченной ответственностью "ТАИФ-НК АЗС" (ООО "ТАИФ-НК АЗС") (РОССИЯ г. Казань) |
ОТ МП |
5 лет |
|
89366-23 |
Резервуары стальные горизонтальные цилиндрические, РГС-60 Общество с ограниченной ответственностью "ТАИФ-НК АЗС" (ООО "ТАИФ-НК АЗС") (РОССИЯ г. Казань) |
ОТ МП |
5 лет |
|
89367-23 |
Резервуары стальные горизонтальные цилиндрические, РГС-25 Общество с ограниченной ответственностью "ТАИФ-НК АЗС" (ООО "ТАИФ-НК АЗС") (РОССИЯ г. Казань) |
ОТ МП |
5 лет |
|
89368-23 |
Резервуар стальной горизонтальный цилиндрический, РГС-25 Общество с ограниченной ответственностью "ТАИФ-НК АЗС" (ООО "ТАИФ-НК АЗС") (РОССИЯ г. Казань) |
ОТ МП |
5 лет |
|
89382-23 |
Резервуары стальные горизонтальные цилиндрические, РГС-17 Общество с ограниченной ответственностью "ТАИФ-НК АЗС" (ООО "ТАИФ-НК АЗС") (РОССИЯ г. Казань) |
ОТ МП |
5 лет |
|
89383-23 |
Резервуары стальные горизонтальные цилиндрические, РГС Общество с ограниченной ответственностью "ТАИФ-НК АЗС" (ООО "ТАИФ-НК АЗС") (РОССИЯ г. Казань) |
ОТ МП |
5 лет |
|
89385-23 |
Резервуары стальные горизонтальные цилиндрические, РГС-60 Общество с ограниченной ответственностью "ТАИФ-НК АЗС" (ООО "ТАИФ-НК АЗС") (РОССИЯ г. Казань) |
ОТ МП |
5 лет |
|
89386-23 |
Резервуары стальные горизонтальные цилиндрические, РГС-50 (25+25) Общество с ограниченной ответственностью "ТАИФ-НК АЗС" (ООО "ТАИФ-НК АЗС") (РОССИЯ г. Казань) |
ОТ МП |
5 лет |
|
89387-23 |
Резервуары стальные горизонтальные цилиндрические, РГС Общество с ограниченной ответственностью "ТАИФ-НК АЗС" (ООО "ТАИФ-НК АЗС") (РОССИЯ г. Казань) |
ОТ МП |
5 лет |
|
89388-23 |
Резервуары стальные горизонтальные цилиндрические, РГС-25 Общество с ограниченной ответственностью "ТАИФ-НК АЗС" (ООО "ТАИФ-НК АЗС") (РОССИЯ г. Казань) |
ОТ МП |
5 лет |
|
89389-23 |
Резервуары стальные горизонтальные цилиндрические, РГС Общество с ограниченной ответственностью "ТАИФ-НК АЗС" (ООО "ТАИФ-НК АЗС") (РОССИЯ г. Казань) |
ОТ МП |
5 лет |
|
89390-23 |
Резервуар стальной горизонтальный цилиндрический, РГС-75 Общество с ограниченной ответственностью "ТАИФ-НК АЗС" (ООО "ТАИФ-НК АЗС") (РОССИЯ г. Казань) |
ОТ МП |
5 лет |
|
89391-23 |
Резервуар стальной горизонтальный цилиндрический, РГС-20 Общество с ограниченной ответственностью "ТАИФ-НК АЗС" (ООО "ТАИФ-НК АЗС") (РОССИЯ г. Казань) |
ОТ МП |
5 лет |
|
89392-23 |
Резервуар стальной горизонтальный цилиндрический, РГС-20 Общество с ограниченной ответственностью "ТАИФ-НК АЗС" (ООО "ТАИФ-НК АЗС") (РОССИЯ г. Казань) |
ОТ МП |
5 лет |
|
89424-23 |
Резервуары стальные горизонтальные цилиндрические, РГС Общество с ограниченной ответственностью "ТАИФ-НК АЗС" (ООО "ТАИФ-НК АЗС") (РОССИЯ г. Казань) |
ОТ МП |
5 лет |
|
89425-23 |
Резервуары стальные горизонтальные цилиндрические, РГС Общество с ограниченной ответственностью "ТАИФ-НК АЗС" (ООО "ТАИФ-НК АЗС") (РОССИЯ г. Казань) |
ОТ МП |
5 лет |
|
89426-23 |
Резервуары стальные горизонтальные цилиндрические, РГС Общество с ограниченной ответственностью "ТАИФ-НК АЗС" (ООО "ТАИФ-НК АЗС") (РОССИЯ г. Казань) |
ОТ МП |
5 лет |
|
89427-23 |
Резервуары стальные горизонтальные цилиндрические, РГС-25 Общество с ограниченной ответственностью "ТАИФ-НК АЗС" (ООО "ТАИФ-НК АЗС") (РОССИЯ г. Казань) |
ОТ МП |
5 лет |
|
89428-23 |
Резервуары стальные горизонтальные цилиндрические, РГС Общество с ограниченной ответственностью "ТАИФ-НК АЗС" (ООО "ТАИФ-НК АЗС") (РОССИЯ г. Казань) |
ОТ МП |
5 лет |
|
89445-23 |
Резервуары стальные горизонтальные цилиндрические, РГД 50 (25+25) Общество с ограниченной ответственностью "ТАИФ-НК АЗС" (ООО "ТАИФ-НК АЗС") (РОССИЯ г. Казань) |
ОТ МП |
5 лет |
|
89446-23 |
Резервуары стальные горизонтальные цилиндрические, РГС Общество с ограниченной ответственностью "ТАИФ-НК АЗС" (ООО "ТАИФ-НК АЗС") (РОССИЯ г. Казань) |
ОТ МП |
5 лет |
|
89447-23 |
Резервуары стальные горизонтальные цилиндрические, РГС-25 Общество с ограниченной ответственностью "ТАИФ-НК АЗС" (ООО "ТАИФ-НК АЗС") (РОССИЯ г. Казань) |
ОТ МП |
5 лет |
|
89448-23 |
Резервуары стальные горизонтальные цилиндрические, РГС-25 Общество с ограниченной ответственностью "ТАИФ-НК АЗС" (ООО "ТАИФ-НК АЗС") (РОССИЯ г. Казань) |
ОТ МП |
5 лет |
|
89449-23 |
Резервуары стальные горизонтальные цилиндрические, РГС Общество с ограниченной ответственностью "ТАИФ-НК АЗС" (ООО "ТАИФ-НК АЗС") (РОССИЯ г. Казань) |
ОТ МП |
5 лет |
|
89458-23 |
Резервуары стальные горизонтальные цилиндрические, РГД 50 (25+25) Общество с ограниченной ответственностью "ТАИФ-НК АЗС" (ООО "ТАИФ-НК АЗС") (РОССИЯ г. Казань) |
ОТ МП |
5 лет |
|
89459-23 |
Резервуары стальные горизонтальные цилиндрические, РГС-50 Общество с ограниченной ответственностью "ТАИФ-НК АЗС" (ООО "ТАИФ-НК АЗС") (РОССИЯ г. Казань) |
ОТ МП |
5 лет |
|
89460-23 |
Резервуары стальные горизонтальные цилиндрические, РГС-25 Общество с ограниченной ответственностью "ТАИФ-НК АЗС" (ООО "ТАИФ-НК АЗС") (РОССИЯ г. Казань) |
ОТ МП |
5 лет |
|
89461-23 |
Резервуары стальные горизонтальные цилиндрические, РГС-25 Общество с ограниченной ответственностью "ТАИФ-НК АЗС" (ООО "ТАИФ-НК АЗС") (РОССИЯ г. Казань) |
ОТ МП |
5 лет |
|
89475-23 |
Резервуары стальные горизонтальные цилиндрические, РГС-25 Общество с ограниченной ответственностью "ТАИФ-НК АЗС" (ООО "ТАИФ-НК АЗС") (РОССИЯ г. Казань) |
ОТ МП |
5 лет |
|
89506-23 |
Резервуары стальные горизонтальные цилиндрические, РГС Общество с ограниченной ответственностью "ТАИФ-НК АЗС" (ООО "ТАИФ-НК АЗС") (РОССИЯ г. Казань) |
ОТ МП |
5 лет |
|
89507-23 |
Резервуары стальные горизонтальные цилиндрические, РГС Общество с ограниченной ответственностью "ТАИФ-НК АЗС" (ООО "ТАИФ-НК АЗС") (РОССИЯ г. Казань) |
ОТ МП |
5 лет |
|
89508-23 |
Резервуары стальные горизонтальные цилиндрические, РГС Общество с ограниченной ответственностью "ТАИФ-НК АЗС" (ООО "ТАИФ-НК АЗС") (РОССИЯ г. Казань) |
ОТ МП |
5 лет |
|
89509-23 |
Резервуары стальные горизонтальные цилиндрические, РГД 50 Общество с ограниченной ответственностью "ТАИФ-НК АЗС" (ООО "ТАИФ-НК АЗС") (РОССИЯ г. Казань) |
ОТ МП |
5 лет |
|
90564-23 |
Резервуары стальные горизонтальные цилиндрические, РГС-25 Общество с ограниченной ответственностью "ТАИФ-НК АЗС" (ООО "ТАИФ-НК АЗС") (РОССИЯ г. Казань) |
ОТ МП |
5 лет |
|
90565-23 |
Резервуары стальные горизонтальные цилиндрические, РГС-25 Общество с ограниченной ответственностью "ТАИФ-НК АЗС" (ООО "ТАИФ-НК АЗС") (РОССИЯ г. Казань) |
ОТ МП |
5 лет |
|
90580-23 |
Резервуары стальные горизонтальные цилиндрические, РГС Общество с ограниченной ответственностью "ТАИФ-НК АЗС" (ООО "ТАИФ-НК АЗС") (РОССИЯ г. Казань) |
ОТ МП |
5 лет |
|
90581-23 |
Резервуары стальные горизонтальные цилиндрические, РГС-25 Общество с ограниченной ответственностью "ТАИФ-НК АЗС" (ООО "ТАИФ-НК АЗС") (РОССИЯ г. Казань) |
ОТ МП |
5 лет |
|
90582-23 |
Резервуары стальные горизонтальные цилиндрические, РГС-25 Общество с ограниченной ответственностью "ТАИФ-НК АЗС" (ООО "ТАИФ-НК АЗС") (РОССИЯ г. Казань) |
ОТ МП |
5 лет |
|
92536-24 |
Резервуары стальные горизонтальные цилиндрические, РГС Общество с ограниченной ответственностью "ТАИФ-НК АЗС" (ООО "ТАИФ-НК АЗС") (РОССИЯ г. Казань) |
ОТ МП |
5 лет |
|
92537-24 |
Резервуары стальные горизонтальные цилиндрические, РГС-55 Общество с ограниченной ответственностью "ТАИФ-НК АЗС" (ООО "ТАИФ-НК АЗС") (РОССИЯ г. Казань) |
ОТ МП |
5 лет |
|
92538-24 |
Резервуары стальные горизонтальные цилиндрические, РГС Общество с ограниченной ответственностью "ТАИФ-НК АЗС" (ООО "ТАИФ-НК АЗС") (РОССИЯ г. Казань) |
ОТ МП |
5 лет |
|
92539-24 |
Резервуары стальные горизонтальные цилиндрические, РГС-25 Общество с ограниченной ответственностью "ТАИФ-НК АЗС" (ООО "ТАИФ-НК АЗС") (РОССИЯ г. Казань) |
ОТ МП |
5 лет |
|
92564-24 |
Резервуары стальные горизонтальные цилиндрические, РГС Общество с ограниченной ответственностью "ТАИФ-НК АЗС" (ООО "ТАИФ-НК АЗС") (РОССИЯ г. Казань) |
ОТ МП |
5 лет |
|
92580-24 |
Резервуары стальные горизонтальные цилиндрические, РГС-60 Общество с ограниченной ответственностью "ТАИФ-НК АЗС" (ООО "ТАИФ-НК АЗС") (РОССИЯ г. Казань) |
ОТ МП |
5 лет |
|
92581-24 |
Резервуары стальные горизонтальные цилиндрические, РГС-63 Общество с ограниченной ответственностью "ТАИФ-НК АЗС" (ООО "ТАИФ-НК АЗС") (РОССИЯ г. Казань) |
ОТ МП |
5 лет |
|
92582-24 |
Резервуары стальные горизонтальные цилиндрические, РГС-25 Общество с ограниченной ответственностью "ТАИФ-НК АЗС" (ООО "ТАИФ-НК АЗС") (РОССИЯ г. Казань) |
ОТ МП |
5 лет |
|
92583-24 |
Резервуары стальные горизонтальные цилиндрические, РГС-28 Общество с ограниченной ответственностью "ТАИФ-НК АЗС" (ООО "ТАИФ-НК АЗС") (РОССИЯ г. Казань) |
ОТ МП |
5 лет |
|
92584-24 |
Резервуары стальные горизонтальные цилиндрические, РГС Общество с ограниченной ответственностью "ТАИФ-НК АЗС" (ООО "ТАИФ-НК АЗС") (РОССИЯ г. Казань) |
ОТ МП |
5 лет |
|
92585-24 |
Резервуары стальные горизонтальные цилиндрические, РГС-25 Общество с ограниченной ответственностью "ТАИФ-НК АЗС" (ООО "ТАИФ-НК АЗС") (РОССИЯ г. Казань) |
ОТ МП |
5 лет |
|
92586-24 |
Резервуары стальные горизонтальные цилиндрические, РГС-25 Общество с ограниченной ответственностью "ТАИФ-НК АЗС" (ООО "ТАИФ-НК АЗС") (РОССИЯ г. Казань) |
ОТ МП |
5 лет |
|
92587-24 |
Резервуары стальные горизонтальные цилиндрические, РГС-50 Общество с ограниченной ответственностью "ТАИФ-НК АЗС" (ООО "ТАИФ-НК АЗС") (РОССИЯ г. Казань) |
ОТ МП |
5 лет |
|
92596-24 |
Резервуары стальные горизонтальные цилиндрические, РГС-25 Общество с ограниченной ответственностью "ТАИФ-НК АЗС" (ООО "ТАИФ-НК АЗС") (РОССИЯ г. Казань) |
ОТ МП |
5 лет |
|
92597-24 |
Резервуары стальные горизонтальные цилиндрические, РГС-25 Общество с ограниченной ответственностью "ТАИФ-НК АЗС" (ООО "ТАИФ-НК АЗС") (РОССИЯ г. Казань) |
ОТ МП |
5 лет |
|
92598-24 |
Резервуары стальные горизонтальные цилиндрические, РГС Общество с ограниченной ответственностью "ТАИФ-НК АЗС" (ООО "ТАИФ-НК АЗС") (РОССИЯ г. Казань) |
ОТ МП |
5 лет |
|
92599-24 |
Резервуары стальные горизонтальные цилиндрические, РГС-25 Общество с ограниченной ответственностью "ТАИФ-НК АЗС" (ООО "ТАИФ-НК АЗС") (РОССИЯ г. Казань) |
ОТ МП |
5 лет |
|
92615-24 |
Резервуары стальные горизонтальные цилиндрические, РГС-63 Общество с ограниченной ответственностью "ТАИФ-НК АЗС" (ООО "ТАИФ-НК АЗС") (РОССИЯ г. Казань) |
ОТ МП |
5 лет |
|
92616-24 |
Резервуары стальные горизонтальные цилиндрические, РГС-63 Общество с ограниченной ответственностью "ТАИФ-НК АЗС" (ООО "ТАИФ-НК АЗС") (РОССИЯ г. Казань) |
ОТ МП |
5 лет |
|
92651-24 |
Резервуары стальные горизонтальные цилиндрические, РГС-25 Общество с ограниченной ответственностью "ТАИФ-НК АЗС" (ООО "ТАИФ-НК АЗС") (РОССИЯ г. Казань) |
ОТ МП |
5 лет |
|
92652-24 |
Резервуары стальные горизонтальные цилиндрические, РГС-40 Общество с ограниченной ответственностью "ТАИФ-НК АЗС" (ООО "ТАИФ-НК АЗС") (РОССИЯ г. Казань) |
ОТ МП |
5 лет |
|
92653-24 |
Резервуары стальные горизонтальные цилиндрические, РГС-25 Общество с ограниченной ответственностью "ТАИФ-НК АЗС" (ООО "ТАИФ-НК АЗС") (РОССИЯ г. Казань) |
ОТ МП |
5 лет |
|
92654-24 |
Резервуары стальные горизонтальные цилиндрические, РГС Общество с ограниченной ответственностью "ТАИФ-НК АЗС" (ООО "ТАИФ-НК АЗС") (РОССИЯ г. Казань) |
ОТ МП |
5 лет |
|
92695-24 |
Резервуары стальные горизонтальные цилиндрические, РГС Общество с ограниченной ответственностью "ТАИФ-НК АЗС" (ООО "ТАИФ-НК АЗС") (РОССИЯ г. Казань) |
ОТ МП |
5 лет |
|
92696-24 |
Резервуары стальные горизонтальные цилиндрические, РГС Общество с ограниченной ответственностью "ТАИФ-НК АЗС" (ООО "ТАИФ-НК АЗС") (РОССИЯ г. Казань) |
ОТ МП |
5 лет |
|
92697-24 |
Резервуары стальные горизонтальные цилиндрические, РГС-30 Общество с ограниченной ответственностью "ТАИФ-НК АЗС" (ООО "ТАИФ-НК АЗС") (РОССИЯ г. Казань) |
ОТ МП |
5 лет |
|
92700-24 |
Резервуары стальные горизонтальные цилиндрические, РГС-25 Общество с ограниченной ответственностью "ТАИФ-НК АЗС" (ООО "ТАИФ-НК АЗС") (РОССИЯ г. Казань) |
ОТ МП |
5 лет |
|
92745-24 |
Резервуары стальные горизонтальные цилиндрические, РГС-25 Общество с ограниченной ответственностью "ТАИФ-НК АЗС" (ООО "ТАИФ-НК АЗС") (РОССИЯ г. Казань) |
ОТ МП |
5 лет |
|
92746-24 |
Резервуары стальные горизонтальные цилиндрические, РГС Общество с ограниченной ответственностью "ТАИФ-НК АЗС" (ООО "ТАИФ-НК АЗС") (РОССИЯ г. Казань) |
ОТ МП |
5 лет |
|
92747-24 |
Резервуары стальные горизонтальные цилиндрические, РГС Общество с ограниченной ответственностью "ТАИФ-НК АЗС" (ООО "ТАИФ-НК АЗС") (РОССИЯ г. Казань) |
ОТ МП |
5 лет |
|
92763-24 |
Резервуары стальные горизонтальные цилиндрические, РГС-20 Общество с ограниченной ответственностью "ТАИФ-НК АЗС" (ООО "ТАИФ-НК АЗС") (РОССИЯ г. Казань) |
ОТ МП |
5 лет |
|
92774-24 |
Резервуары стальные горизонтальные цилиндрические, РГС-25 Общество с ограниченной ответственностью "ТАИФ-НК АЗС" (ООО "ТАИФ-НК АЗС") (РОССИЯ г. Казань) |
ОТ МП |
5 лет |
|
92775-24 |
Резервуары стальные горизонтальные цилиндрические, РГС-25 Общество с ограниченной ответственностью "ТАИФ-НК АЗС" (ООО "ТАИФ-НК АЗС") (РОССИЯ г. Казань) |
ОТ МП |
5 лет |
|
92940-24 |
Резервуары стальные горизонтальные цилиндрические, РГС Общество с ограниченной ответственностью "ТАИФ-НК АЗС" (ООО "ТАИФ-НК АЗС") (РОССИЯ г. Казань) |
ОТ МП |
5 лет |
|
92952-24 |
Резервуары стальные горизонтальные цилиндрические, РГС-25 Общество с ограниченной ответственностью "ТАИФ-НК АЗС" (ООО "ТАИФ-НК АЗС") (РОССИЯ г. Казань) |
ОТ МП |
5 лет |
|
92940-24 |
Резервуары стальные горизонтальные цилиндрические, РГС Общество с ограниченной ответственностью "ТАИФ-НК АЗС" (ООО "ТАИФ-НК АЗС") (РОССИЯ г. Казань) |
ОТ МП |
5 лет |
|
92952-24 |
Резервуары стальные горизонтальные цилиндрические, РГС-25 Общество с ограниченной ответственностью "ТАИФ-НК АЗС" (ООО "ТАИФ-НК АЗС") (РОССИЯ г. Казань) |
ОТ МП |
5 лет |
|
93126-24 |
Резервуары стальные горизонтальные цилиндрические, РГС-25 Общество с ограниченной ответственностью "ТАИФ-НК АЗС" (ООО "ТАИФ-НК АЗС") (РОССИЯ г. Казань) |
ОТ МП |
5 лет |
|
93144-24 |
Резервуары стальные горизонтальные цилиндрические, РГС-53 Общество с ограниченной ответственностью "ТАИФ-НК АЗС" (ООО "ТАИФ-НК АЗС") (РОССИЯ г. Казань) |
ОТ МП |
5 лет |
|
93145-24 |
Резервуары стальные горизонтальные цилиндрические, РГС-25 Общество с ограниченной ответственностью "ТАИФ-НК АЗС" (ООО "ТАИФ-НК АЗС") (РОССИЯ г. Казань) |
ОТ МП |
5 лет |
|
93146-24 |
Резервуары стальные горизонтальные цилиндрические, РГС Общество с ограниченной ответственностью "ТАИФ-НК АЗС" (ООО "ТАИФ-НК АЗС") (РОССИЯ г. Казань) |
ОТ МП |
5 лет |
|
94492-25 |
Резервуары стальные горизонтальные цилиндрические, РГС Общество с ограниченной ответственностью "ТАИФ-НК АЗС" (ООО "ТАИФ-НК АЗС") (РОССИЯ г. Казань) |
ОТ МП |
5 лет |
|
94512-25 |
Резервуары стальные горизонтальные цилиндрические, РГС Общество с ограниченной ответственностью "ТАИФ-НК АЗС" (ООО "ТАИФ-НК АЗС") (РОССИЯ г. Казань) |
ОТ МП |
5 лет |
|
94587-25 |
Резервуары стальные горизонтальные цилиндрические, РГС Общество с ограниченной ответственностью "ТАИФ-НК АЗС" (ООО "ТАИФ-НК АЗС") (РОССИЯ г. Казань) |
ОТ МП |
5 лет |
|
94588-25 |
Резервуары стальные горизонтальные цилиндрические, РГС-50 Общество с ограниченной ответственностью "ТАИФ-НК АЗС" (ООО "ТАИФ-НК АЗС") (РОССИЯ г. Казань) |
ОТ МП |
5 лет |
|
94589-25 |
Резервуары стальные горизонтальные цилиндрические, РГС-25 Общество с ограниченной ответственностью "ТАИФ-НК АЗС" (ООО "ТАИФ-НК АЗС") (РОССИЯ г. Казань) |
ОТ МП |
5 лет |
|
94590-25 |
Резервуары стальные горизонтальные цилиндрические, РГС Общество с ограниченной ответственностью "ТАИФ-НК АЗС" (ООО "ТАИФ-НК АЗС") (РОССИЯ г. Казань) |
ОТ МП |
5 лет |
|
94591-25 |
Резервуары стальные горизонтальные цилиндрические, РГС Общество с ограниченной ответственностью "ТАИФ-НК АЗС" (ООО "ТАИФ-НК АЗС") (РОССИЯ г. Казань) |
ОТ МП |
5 лет |
|
94592-25 |
Резервуары стальные горизонтальные цилиндрические, РГС-50 Общество с ограниченной ответственностью "ТАИФ-НК АЗС" (ООО "ТАИФ-НК АЗС") (РОССИЯ г. Казань) |
ОТ МП |
5 лет |
|
94593-25 |
Резервуары стальные горизонтальные цилиндрические, РГС Общество с ограниченной ответственностью "ТАИФ-НК АЗС" (ООО "ТАИФ-НК АЗС") (РОССИЯ г. Казань) |
ОТ МП |
5 лет |
|
94564-25 |
Резервуары стальные горизонтальные цилиндрические, РГС-20 Общество с ограниченной ответственностью "ТАИФ-НК АЗС" (ООО "ТАИФ-НК АЗС") (РОССИЯ г. Казань) |
ОТ МП |
5 лет |
|
94565-25 |
Резервуары стальные горизонтальные цилиндрические, РГС-30 Общество с ограниченной ответственностью "ТАИФ-НК АЗС" (ООО "ТАИФ-НК АЗС") (РОССИЯ г. Казань) |
ОТ МП |
5 лет |
|
94566-25 |
Резервуары стальные горизонтальные цилиндрические, РГС-25 Общество с ограниченной ответственностью "ТАИФ-НК АЗС" (ООО "ТАИФ-НК АЗС") (РОССИЯ г. Казань) |
ОТ МП |
5 лет |
|
94605-25 |
Резервуары стальные горизонтальные цилиндрические, РГС-25 Общество с ограниченной ответственностью "ТАИФ-НК АЗС" (ООО "ТАИФ-НК АЗС") (РОССИЯ г. Казань) |
ОТ МП |
5 лет |
|
94606-25 |
Резервуары стальные горизонтальные цилиндрические, РГС-25 Общество с ограниченной ответственностью "ТАИФ-НК АЗС" (ООО "ТАИФ-НК АЗС") (РОССИЯ г. Казань) |
ОТ МП |
5 лет |
|
94607-25 |
Резервуары стальные горизонтальные цилиндрические, РГС Общество с ограниченной ответственностью "ТАИФ-НК АЗС" (ООО "ТАИФ-НК АЗС") (РОССИЯ г. Казань) |
ОТ МП |
5 лет |
|
94608-25 |
Резервуары стальные горизонтальные цилиндрические, РГС-50 Общество с ограниченной ответственностью "ТАИФ-НК АЗС" (ООО "ТАИФ-НК АЗС") (РОССИЯ г. Казань) |
ОТ МП |
5 лет |
|
94609-25 |
Резервуары стальные горизонтальные цилиндрические, РГС Общество с ограниченной ответственностью "ТАИФ-НК АЗС" (ООО "ТАИФ-НК АЗС") (РОССИЯ г. Казань) |
ОТ МП |
5 лет |
|
94610-25 |
Резервуары стальные горизонтальные цилиндрические, РГС Общество с ограниченной ответственностью "ТАИФ-НК АЗС" (ООО "ТАИФ-НК АЗС") (РОССИЯ г. Казань) |
ОТ МП |
5 лет |
|
94835-25 |
Резервуары стальные горизонтальные цилиндрические, РГС-25 Общество с ограниченной ответственностью "ТАИФ-НК АЗС" (ООО "ТАИФ-НК АЗС") (РОССИЯ г. Казань) |
ОТ МП |
5 лет |
|
94836-25 |
Резервуары стальные горизонтальные цилиндрические, РГС Общество с ограниченной ответственностью "ТАИФ-НК АЗС" (ООО "ТАИФ-НК АЗС") (РОССИЯ г. Казань) |
ОТ МП |
5 лет |
|
94854-25 |
Резервуары стальные горизонтальные цилиндрические, РГС-25 Общество с ограниченной ответственностью "ТАИФ-НК АЗС" (ООО "ТАИФ-НК АЗС") (РОССИЯ г. Казань) |
ОТ МП |
5 лет |
|
94855-25 |
Резервуары стальные горизонтальные цилиндрические, РГС-25 Общество с ограниченной ответственностью "ТАИФ-НК АЗС" (ООО "ТАИФ-НК АЗС") (РОССИЯ г. Казань) |
ОТ МП |
5 лет |
|
94856-25 |
Резервуары стальные горизонтальные цилиндрические, РГС Общество с ограниченной ответственностью "ТАИФ-НК АЗС" (ООО "ТАИФ-НК АЗС") (РОССИЯ г. Казань) |
ОТ МП |
5 лет |
|
94857-25 |
Резервуары стальные горизонтальные цилиндрические, РГС Общество с ограниченной ответственностью "ТАИФ-НК АЗС" (ООО "ТАИФ-НК АЗС") (РОССИЯ г. Казань) |
ОТ МП |
5 лет |
|
94871-25 |
Резервуары стальные горизонтальные цилиндрические, РГС-25 Общество с ограниченной ответственностью "ТАИФ-НК АЗС" (ООО "ТАИФ-НК АЗС") (РОССИЯ г. Казань) |
ОТ МП |
5 лет |
|
94872-25 |
Резервуары стальные горизонтальные цилиндрические, РГС-25 Общество с ограниченной ответственностью "ТАИФ-НК АЗС" (ООО "ТАИФ-НК АЗС") (РОССИЯ г. Казань) |
ОТ МП |
5 лет |
|
94873-25 |
Резервуары стальные горизонтальные цилиндрические, РГС-25 Общество с ограниченной ответственностью "ТАИФ-НК АЗС" (ООО "ТАИФ-НК АЗС") (РОССИЯ г. Казань) |
ОТ МП |
5 лет |
|
94888-25 |
Резервуары стальные горизонтальные цилиндрические, РГС-15 Общество с ограниченной ответственностью "ТАИФ-НК АЗС" (ООО "ТАИФ-НК АЗС") (РОССИЯ г. Казань) |
ОТ МП |
5 лет |
|
94889-25 |
Резервуары стальные горизонтальные цилиндрические, РГС-25 Общество с ограниченной ответственностью "ТАИФ-НК АЗС" (ООО "ТАИФ-НК АЗС") (РОССИЯ г. Казань) |
ОТ МП |
5 лет |
|
94890-25 |
Резервуары стальные горизонтальные цилиндрические, РГС-25 Общество с ограниченной ответственностью "ТАИФ-НК АЗС" (ООО "ТАИФ-НК АЗС") (РОССИЯ г. Казань) |
ОТ МП |
5 лет |
|
94909-25 |
Резервуары стальные горизонтальные цилиндрические, РГС-50 Общество с ограниченной ответственностью "ТАИФ-НК АЗС" (ООО "ТАИФ-НК АЗС") (РОССИЯ г. Казань) |
ОТ МП |
5 лет |
|
94947-25 |
Резервуары стальные горизонтальные цилиндрические, РГС-20 Общество с ограниченной ответственностью "ТАИФ-НК АЗС" (ООО "ТАИФ-НК АЗС") (РОССИЯ г. Казань) |
ОТ МП |
5 лет |
|
94972-25 |
Резервуары стальные горизонтальные цилиндрические, РГС Общество с ограниченной ответственностью "ТАИФ-НК АЗС" (ООО "ТАИФ-НК АЗС") (РОССИЯ г. Казань) |
ОТ МП |
5 лет |
|
95093-25 |
Резервуары стальные горизонтальные цилиндрические, РГС-25 Общество с ограниченной ответственностью "ТАИФ-НК АЗС" (ООО "ТАИФ-НК АЗС") (РОССИЯ г. Казань) |
ОТ МП |
5 лет |
|
95094-25 |
Резервуары стальные горизонтальные цилиндрические, РГС Общество с ограниченной ответственностью "ТАИФ-НК АЗС" (ООО "ТАИФ-НК АЗС") (РОССИЯ г. Казань) |
ОТ МП |
5 лет |
|
95095-25 |
Резервуары стальные горизонтальные цилиндрические, РГС-50 Общество с ограниченной ответственностью "ТАИФ-НК АЗС" (ООО "ТАИФ-НК АЗС") (РОССИЯ г. Казань) |
ОТ МП |
5 лет |
|
95096-25 |
Резервуары стальные горизонтальные цилиндрические, РГС-60 Общество с ограниченной ответственностью "ТАИФ-НК АЗС" (ООО "ТАИФ-НК АЗС") (РОССИЯ г. Казань) |
ОТ МП |
5 лет |
|
95097-25 |
Резервуары стальные горизонтальные цилиндрические, РГС-25 Общество с ограниченной ответственностью "ТАИФ-НК АЗС" (ООО "ТАИФ-НК АЗС") (РОССИЯ г. Казань) |
ОТ МП |
5 лет |
Ростов-на-Дону - административный центр Ростовской области и Южного федерального округа России. Город расположен на юго-востоке Восточно-Европейской равнины, на берегах реки Дон, в 46 км от ее впадения в Азовское море. Площадь города составляет 348,5 кв. км, расстояние до Москвы - 1076 км.
Площадь города 348,5 кв. км, население 1 137,7 тыс. человек. Географически город включает 8 районов (Ворошиловский, Железнодорожный, Кировский, Ленинский, Октябрьский, Первомайский, Пролетарский и Советский).
Позиционирование как столицы Юга России и локализация в городе промышленных предприятий и структур южнороссийского масштаба (штаб Северо-Кавказского военного округа, управление Северо-Кавказской железной дороги и т.д.) вызывает дополнительную концентрацию рабочих мест в Ростове-на-Дону, обеспечивает повышенный уровень экономической активности и инвестиционной привлекательности.
В городе насчитывается более 92 тысяч хозяйствующих субъектов. Промышленность представлена такими крупными предприятиями, как: ПАО "Роствертол", ООО "Комбайновый завод "Ростсельмаш", ФГУП "Ростовский-на-Дону научно-исследовательский институт радиосвязи", ООО "ГРУППА АГРОКОМ", Ростовский-на-Дону электровозоремонтный завод - филиал ОАО "Желдорреммаш", ЗАО "Эмпилс" и др.
Отчет "Анализ рынка поверки в Ростове-на-Дону" предоставляет исчерпывающую информацию по деятельности организаций, аккредитованных в Национальной системе аккредитации на право поверки средств измерений в городе Ростов-на-Дону.
При проведении исследований были введены следующие ограничения:
- в отчете присутствуют организации с первичными или периодическими поверками от 100 шт. с 2017 года и действующими аттестатами аккредитации на текущий год;
- на первом и втором этапах фильтром отсекаются типы СИ с менее чем 10 поверками в год на организацию;
- на первом и втором этапах фильтром отсекаются типы СИ с менее чем 10 поверками в год на организацию;
- место регистрации или осуществления деятельности организаций должно совпадать с выбранным городом;
- топ типов СИ ограничен 500 позициями по каждой организации (сортировка по убыванию количества поверок);
- топ типов СИ ограничен 100 позициями по каждой организации при поиске по видам измерений (сортировка по убыванию количества поверок).
Содержание отчета:
- Список организаций-поверителей, осуществляющих поверку в городе Москва по данным ФСА и ФГИС АРШИН.
- Объемы первичных и периодических поверок за период с 2017г. по н.в.
- Информация о местах осуществления деятельности организаций-поверителей.
- Доля рынка поверок в % среди всех организаций, исследуемого города (предоставление информации в графическом и табличном видах).
- Детальный анализ по каждой из организации, работающей в выбранном городе.
- Анализ деятельности в разрезе первичных, периодических поверок и видов измерений.
- Количество поверок по типам СИ в динамике по годам.
- Индикация импортных аналогов средств поверки (в соответствии с ПЕРЕЧЕНЕМ СИ ОТЕЧЕСТВЕННОГО ПРОИЗВОДСТВА, АНАЛОГИЧНЫХ СРЕДСТВАМ ИЗМЕРЕНИЙ ИМПОРТНОГО ПРОИЗВОДСТВА от 09.2022г)
- Индикация типов СИ по ПП РФ №250 от 20.04.2010 г.
- Быстрый анализ контрагентов организаций-поверителей.
- Анализ цен на поверку СИ по Фед. округу.
Кто поверяет Резервуары стальные горизонтальные цилиндрические (РГС-25)
| Наименование организации | Cтатус | Поверенные модификации | Кол-во поверок | Поверок в 2025 году | Первичных поверок | Периодических поверок | Извещений | Для юриков | Для юриков первичные | Для юриков периодические |
|---|---|---|---|---|---|---|---|---|---|---|
| ООО "МЕТРОКОНТ" (RA.RU.311686) | 5 | 5 | 0 | 0 | 0 | 0 | 0 |
Стоимость поверки Резервуары стальные горизонтальные цилиндрические (РГС-25)
| Организация, регион | Стоимость, руб | Средняя стоимость |
|---|
Программное обеспечение
отсутствует
Знак утверждения типа
Знак утверждения типананосится на титульный лист паспорта резервуара типографским способом.
Сведения о методиках измерений
Сведения о методиках (методах) измерений приведены в пункте 8 паспорта на резервуар.Нормативные и технические документы
Нормативные документы, устанавливающие требования к резервуарам стальным горизонтальным цилиндрическим РГС-25Приказ Росстандарта № 256 от 7 февраля 2018 г. «Об утверждении Государственной поверочной схемы для средств измерений массы и объема жидкости в потоке, объема жидкости и вместимости при статических измерениях, массового и объемного расходов жидкости»
Изготовитель
Общество с ограниченной ответственностью «ТАИФ-НК АЗС»(ООО «ТАИФ-НК АЗС»)
ИНН 1639028805
Адрес: 420111, г. Казань, ул. Астрономическая, д. 5/19, кабинет 56
Телефон: +7 (843) 237-63-26
Web-сайт: taifazs.ru
E-mail: office@taif-azs.ru
Испытательный центр
Общество с ограниченной ответственностью «МетроКонТ» (ООО «МетроКонТ»)Адрес: 420132, г. Казань, ул. Адоратского, д. 39Б, офис 51 Телефон: +7 9372834420
Факс +7 (843) 515-00-21 E-mail: trifonovua@mail.ru
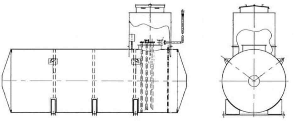
Тип резервуаров - стальные горизонтальные цилиндрические, номинальной вместимостью 25 м3 подземного расположения.
Принцип действия резервуаров основан на заполнении их нефтепродуктом до определенного уровня, соответствующего заданному значению объема.
Резервуары представляют собой горизонтально расположенный цилиндрический стальной сосуд с днищами.
Заполнение и выдача продукта осуществляется через приемно-раздаточные патрубки.
Заводские номера резервуаров наносятся на крышку люка резервуара.
Резервуары РГС-25 с заводскими номерами 1, 2, 3, 5, 6 расположены по адресу: 422060, Республика Татарстан, Сабинский район, п.г.т. Богатые Сабы, ул. Объездная, 2 А, АЗС №711 ООО «ТАИФ-НК АЗС».
Общий вид резервуаров РГС-25 представлен на рисунках 1, 2, 3.
Нанесение знака поверки на средство измерений не предусмотрено.
Рисунок 1 - Общий вид резервуаров РГС-25
Рисунок 2 - Общий вид резервуаров РГС-25
Рисунок 3 - Общий вид резервуаров РГС-25
Пломбирование резервуаров РГС-25 не предусмотрено.
Программное обеспечение отсутствует
Таблица 3 -
|
Наименование |
Обозначение |
Количество |
|
Резервуар стальной горизонтальный цилиндрический |
РГС-25 |
1 шт. |
|
Паспорт |
- |
1 экз. |
|
Градуировочная таблица |
- |
1 экз. |
Таблица 1 - Метрологические характеристики
|
Наименование характеристики |
Значение |
|
Номинальная вместимость, м3 |
25 |
|
Пределы допускаемой относительной погрешности определения вместимости, % |
±0,25 |
Таблица 2 - Основные технические характеристики
|
Наименование характеристики |
Значение |
|
Условия эксплуатации: | |
|
Температура окружающего воздуха, оС |
от -50 до +50 |
|
Атмосферное давление, кПа |
от 84,0 до 106,7 |
|
Средний срок службы, лет, не менее |
20 |

