Номер по Госреестру СИ: 85447-22
85447-22 Резервуары стальные горизонтальные цилиндрические
(РГС-50)
Назначение средства измерений:
Резервуары стальные горизонтальные цилиндрические РГС-50 (далее - резервуары) предназначены для измерения объема нефтепродуктов, а также для их приема, хранения и отпуска.

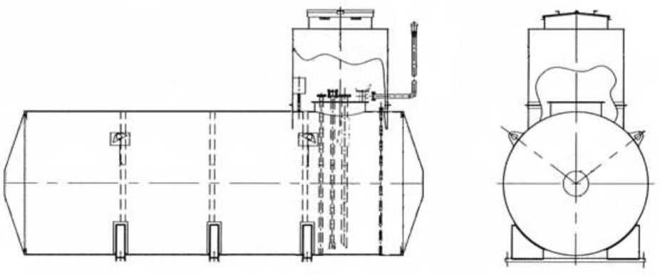
Внешний вид.
Резервуары стальные горизонтальные цилиндрические
Рисунок № 1

Внешний вид.
Резервуары стальные горизонтальные цилиндрические
Рисунок № 2

Внешний вид.
Резервуары стальные горизонтальные цилиндрические
Рисунок № 3
Общие сведения
Дата публикации - 16.05.2022
Срок свидетельства -
Номер записи - 187471
ID в реестре СИ - 1399408
Тип производства - единичное
Описание типа
Поверка
Интервал между поверками по ОТ - 5 лет
Наличие периодической поверки - Да
Методика поверки
Модификации СИ
Нет модификации,
Производитель
Изготовитель - Общество с ограниченной ответственностью "ТАИФ-НК АЗС" (ООО "ТАИФ-НК АЗС")
Страна - РОССИЯ
Населенный пункт - г. Казань
Уведомление о начале осуществления предпринимательской деятельности -
Пенза - город в центре европейской части России, административный центр Пензенской области. является городом областного значения, образует муниципальное образование городской округ город Пенза. Население - 501 109 человек.
Пенза расположена в центре европейской части России на Приволжской возвышенности, в 629 км к юго-востоку от Москвы. Город расположен на берегах реки Сура в южной части Пензенской области, в 26 км к востоку от ее географического центра. Площадь города составляет 310,4 кв. км.
Средняя высота над уровнем моря - 174 м. Самая высокая точка находится на холме Боевой горы, вытянутой с SW на NE как хребет. Максимальная высота - 134 м.
Основными видами промышленной продукции, выпускаемой предприятиями города, являются: стальные трубы, промышленная трубопроводная арматура, воздушные и газовые приводные компрессоры, машины для коммунального хозяйства, медицинское оборудование, приборы и средства автоматизации, химическое оборудование, вычислительная техника. ОАО "ППО ЭВТ им. В.А. Ревунова" - производство бытовой техники. НПП "МедИнж" - производство сердечных клапанов. На долю "Маяка" приходится 60% отечественного рынка бумаги-основы, используемой в дизайне, производстве мебели, обоев, декоративных пластиков. НПП "Эра" - производство летных тренажеров для пилотов гражданской авиации, механизмов для химической и нефтехимической промышленности. Пензенская кондитерская фабрика - более 130 наименований кондитерских изделий и др.
Отчет "Анализ рынка поверки в Пензе" предоставляет исчерпывающую информацию по деятельности организаций, аккредитованных в Национальной системе аккредитации на право поверки средств измерений в городе Пенза.
При проведении исследований были введены следующие ограничения:
- в отчете присутствуют организации с первичными или периодическими поверками от 100 шт. с 2017 года и действующими аттестатами аккредитации на текущий год;
- на первом и втором этапах фильтром отсекаются типы СИ с менее чем 10 поверками в год на организацию;
- на первом и втором этапах фильтром отсекаются типы СИ с менее чем 10 поверками в год на организацию;
- место регистрации или осуществления деятельности организаций должно совпадать с выбранным городом;
- топ типов СИ ограничен 500 позициями по каждой организации (сортировка по убыванию количества поверок);
- топ типов СИ ограничен 100 позициями по каждой организации при поиске по видам измерений (сортировка по убыванию количества поверок).
Содержание отчета:
- Список организаций-поверителей, осуществляющих поверку в городе Москва по данным ФСА и ФГИС АРШИН.
- Объемы первичных и периодических поверок за период с 2017г. по н.в.
- Информация о местах осуществления деятельности организаций-поверителей.
- Доля рынка поверок в % среди всех организаций, исследуемого города (предоставление информации в графическом и табличном видах).
- Детальный анализ по каждой из организации, работающей в выбранном городе.
- Анализ деятельности в разрезе первичных, периодических поверок и видов измерений.
- Количество поверок по типам СИ в динамике по годам.
- Индикация импортных аналогов средств поверки (в соответствии с ПЕРЕЧЕНЕМ СИ ОТЕЧЕСТВЕННОГО ПРОИЗВОДСТВА, АНАЛОГИЧНЫХ СРЕДСТВАМ ИЗМЕРЕНИЙ ИМПОРТНОГО ПРОИЗВОДСТВА от 09.2022г)
- Индикация типов СИ по ПП РФ №250 от 20.04.2010 г.
- Быстрый анализ контрагентов организаций-поверителей.
- Анализ цен на поверку СИ по Фед. округу.
Статистика
Кол-во поверок - 8
Выдано извещений - 0
Кол-во периодических поверок - 4
Кол-во средств измерений - 4
Кол-во владельцев - 2
Усредненный год выпуска СИ - 0
МПИ по поверкам - 1825 дн.
Приказы РСТ, где упоминается данный тип СИ
№1115 от 2022.05.04 ПРИКАЗ_Об утверждении типов средств измерений (15)
Наличие аналогов СИ: Резервуары стальные горизонтальные цилиндрические (РГС-50)
| ИМПОРТНОЕ СИ № в реестре, наименование СИ, обозначение, изголовитель |
ОТЕЧЕСТВЕННЫЙ АНАЛОГ № в реестре, наименование СИ, обозначение, изголовитель |
|---|
Все средства измерений Общество с ограниченной ответственностью "ТАИФ-НК АЗС" (ООО "ТАИФ-НК АЗС")
|
№ в реестре cрок св-ва |
Наименование СИ, обозначение, изголовитель | ОТ, МП | МПИ |
|---|---|---|---|
|
85115-22 |
Резервуары стальные горизонтальные цилиндрические, РГС-60 Общество с ограниченной ответственностью "ТАИФ-НК АЗС" (ООО "ТАИФ-НК АЗС") (РОССИЯ г. Казань) |
ОТ МП |
5 лет |
|
85116-22 |
Резервуары стальные горизонтальные цилиндрические, РГС-60 Общество с ограниченной ответственностью "ТАИФ-НК АЗС" (ООО "ТАИФ-НК АЗС") (РОССИЯ г. Казань) |
ОТ МП |
5 лет |
|
85117-22 |
Резервуары стальные горизонтальные цилиндрические, РГС-25 Общество с ограниченной ответственностью "ТАИФ-НК АЗС" (ООО "ТАИФ-НК АЗС") (РОССИЯ г. Казань) |
ОТ МП |
5 лет |
|
85118-22 |
Резервуары стальные горизонтальные цилиндрические, РГС-25 Общество с ограниченной ответственностью "ТАИФ-НК АЗС" (ООО "ТАИФ-НК АЗС") (РОССИЯ г. Казань) |
ОТ МП |
5 лет |
|
85119-22 |
Резервуары стальные горизонтальные цилиндрические, РГС-50 Общество с ограниченной ответственностью "ТАИФ-НК АЗС" (ООО "ТАИФ-НК АЗС") (РОССИЯ г. Казань) |
ОТ МП |
5 лет |
|
85120-22 |
Резервуары стальные горизонтальные цилиндрические, РГС-25 Общество с ограниченной ответственностью "ТАИФ-НК АЗС" (ООО "ТАИФ-НК АЗС") (РОССИЯ г. Казань) |
ОТ МП |
5 лет |
|
85121-22 |
Резервуары стальные горизонтальные цилиндрические, РГС-25 Общество с ограниченной ответственностью "ТАИФ-НК АЗС" (ООО "ТАИФ-НК АЗС") (РОССИЯ г. Казань) |
ОТ МП |
5 лет |
|
85122-22 |
Резервуары стальные горизонтальные цилиндрические, РГС-25 Общество с ограниченной ответственностью "ТАИФ-НК АЗС" (ООО "ТАИФ-НК АЗС") (РОССИЯ г. Казань) |
ОТ МП |
5 лет |
|
85123-22 |
Резервуары стальные горизонтальные цилиндрические, РГС-30 Общество с ограниченной ответственностью "ТАИФ-НК АЗС" (ООО "ТАИФ-НК АЗС") (РОССИЯ г. Казань) |
ОТ МП |
5 лет |
|
85124-22 |
Резервуары стальные горизонтальные цилиндрические, РГС-50 Общество с ограниченной ответственностью "ТАИФ-НК АЗС" (ООО "ТАИФ-НК АЗС") (РОССИЯ г. Казань) |
ОТ МП |
5 лет |
|
85125-22 |
Резервуары стальные горизонтальные цилиндрические, РГС-25 Общество с ограниченной ответственностью "ТАИФ-НК АЗС" (ООО "ТАИФ-НК АЗС") (РОССИЯ г. Казань) |
ОТ МП |
5 лет |
|
85126-22 |
Резервуары стальные горизонтальные цилиндрические, РГС-60 Общество с ограниченной ответственностью "ТАИФ-НК АЗС" (ООО "ТАИФ-НК АЗС") (РОССИЯ г. Казань) |
ОТ МП |
5 лет |
|
85127-22 |
Резервуар стальной горизонтальный цилиндрический, РГС-50 Общество с ограниченной ответственностью "ТАИФ-НК АЗС" (ООО "ТАИФ-НК АЗС") (РОССИЯ г. Казань) |
ОТ МП |
5 лет |
|
85158-22 |
Резервуары стальные горизонтальные цилиндрические, РГС-50 Общество с ограниченной ответственностью "ТАИФ-НК АЗС" (ООО "ТАИФ-НК АЗС") (РОССИЯ г. Казань) |
ОТ МП |
5 лет |
|
85429-22 |
Резервуары стальные горизонтальные цилиндрические, РГС-25 Общество с ограниченной ответственностью "ТАИФ-НК АЗС" (ООО "ТАИФ-НК АЗС") (РОССИЯ г. Казань) |
ОТ МП |
5 лет |
|
85431-22 |
Резервуары стальные горизонтальные цилиндрические, РГС-50 Общество с ограниченной ответственностью "ТАИФ-НК АЗС" (ООО "ТАИФ-НК АЗС") (РОССИЯ г. Казань) |
ОТ МП |
5 |
|
85432-22 |
Резервуар стальной горизонтальный цилиндрический, РГС-25 Общество с ограниченной ответственностью "ТАИФ-НК АЗС" (ООО "ТАИФ-НК АЗС") (РОССИЯ г. Казань) |
ОТ МП |
5 лет |
|
85433-22 |
Резервуар стальной горизонтальный цилиндрический, РГС-40 Общество с ограниченной ответственностью "ТАИФ-НК АЗС" (ООО "ТАИФ-НК АЗС") (РОССИЯ г. Казань) |
ОТ МП |
5 лет |
|
85434-22 |
Резервуар стальной горизонтальный цилиндрический, РГС-25 Общество с ограниченной ответственностью "ТАИФ-НК АЗС" (ООО "ТАИФ-НК АЗС") (РОССИЯ г. Казань) |
ОТ МП |
5 лет |
|
85435-22 |
Резервуар стальной горизонтальный цилиндрический, РГС-30 Общество с ограниченной ответственностью "ТАИФ-НК АЗС" (ООО "ТАИФ-НК АЗС") (РОССИЯ г. Казань) |
ОТ МП |
5 лет |
|
85436-22 |
Резервуары стальные горизонтальные цилиндрические, РГС-25 Общество с ограниченной ответственностью "ТАИФ-НК АЗС" (ООО "ТАИФ-НК АЗС") (РОССИЯ г. Казань) |
ОТ МП |
5 лет |
|
85437-22 |
Резервуары стальные горизонтальные цилиндрические, РГС-25 Общество с ограниченной ответственностью "ТАИФ-НК АЗС" (ООО "ТАИФ-НК АЗС") (РОССИЯ г. Казань) |
ОТ МП |
5 лет |
|
85443-22 |
Резервуары стальные горизонтальные цилиндрические, РГС-25 Общество с ограниченной ответственностью "ТАИФ-НК АЗС" (ООО "ТАИФ-НК АЗС") (РОССИЯ г. Казань) |
ОТ МП |
5 лет |
|
85444-22 |
Резервуары стальные горизонтальные цилиндрические, РГС-25 Общество с ограниченной ответственностью "ТАИФ-НК АЗС" (ООО "ТАИФ-НК АЗС") (РОССИЯ г. Казань) |
ОТ МП |
5 лет |
|
85445-22 |
Резервуары стальные горизонтальные цилиндрические, РГС-25 Общество с ограниченной ответственностью "ТАИФ-НК АЗС" (ООО "ТАИФ-НК АЗС") (РОССИЯ г. Казань) |
ОТ МП |
5 лет |
|
85446-22 |
Резервуар стальной горизонтальный цилиндрический, РГС-25 Общество с ограниченной ответственностью "ТАИФ-НК АЗС" (ООО "ТАИФ-НК АЗС") (РОССИЯ г. Казань) |
ОТ МП |
5 лет |
|
85447-22 |
Резервуары стальные горизонтальные цилиндрические, РГС-50 Общество с ограниченной ответственностью "ТАИФ-НК АЗС" (ООО "ТАИФ-НК АЗС") (РОССИЯ г. Казань) |
ОТ МП |
5 лет |
|
85791-22 |
Резервуар стальной горизонтальный цилиндрический, РГС-10 Общество с ограниченной ответственностью "ТАИФ-НК АЗС" (ООО "ТАИФ-НК АЗС") (РОССИЯ г. Казань) |
ОТ МП |
5 лет |
|
85823-22 |
Резервуар стальной горизонтальный цилиндрический, РГС-25 Общество с ограниченной ответственностью "ТАИФ-НК АЗС" (ООО "ТАИФ-НК АЗС") (РОССИЯ г. Казань) |
ОТ МП |
5 лет |
|
85824-22 |
Резервуар стальной горизонтальный цилиндрический, РГС-70 Общество с ограниченной ответственностью "ТАИФ-НК АЗС" (ООО "ТАИФ-НК АЗС") (РОССИЯ г. Казань) |
ОТ МП |
5 лет |
|
85842-22 |
Резервуары стальные горизонтальные цилиндрические, РГС-60 Общество с ограниченной ответственностью "ТАИФ-НК АЗС" (ООО "ТАИФ-НК АЗС") (РОССИЯ г. Казань) |
ОТ МП |
5 лет |
|
85843-22 |
Резервуары стальные горизонтальные цилиндрические, РГС-50 Общество с ограниченной ответственностью "ТАИФ-НК АЗС" (ООО "ТАИФ-НК АЗС") (РОССИЯ г. Казань) |
ОТ МП |
5 лет |
|
85844-22 |
Резервуары стальные горизонтальные цилиндрические, РГС-25 Общество с ограниченной ответственностью "ТАИФ-НК АЗС" (ООО "ТАИФ-НК АЗС") (РОССИЯ г. Казань) |
ОТ МП |
5 лет |
|
85845-22 |
Резервуары стальные горизонтальные цилиндрические, РГС-25 Общество с ограниченной ответственностью "ТАИФ-НК АЗС" (ООО "ТАИФ-НК АЗС") (РОССИЯ г. Казань) |
ОТ МП |
5 лет |
|
86371-22 |
Резервуары стальные горизонтальные цилиндрические, РГС-60 Общество с ограниченной ответственностью "ТАИФ-НК АЗС" (ООО "ТАИФ-НК АЗС") (РОССИЯ г. Казань) |
ОТ МП |
5 лет |
|
86372-22 |
Резервуар стальной горизонтальный цилиндрический, РГС-15 Общество с ограниченной ответственностью "ТАИФ-НК АЗС" (ООО "ТАИФ-НК АЗС") (РОССИЯ г. Казань) |
ОТ МП |
5 лет |
|
86838-22 |
Резервуар стальной горизонтальный цилиндрический, РГС-50 Общество с ограниченной ответственностью "ТАИФ-НК АЗС" (ООО "ТАИФ-НК АЗС") (РОССИЯ г. Казань) |
ОТ МП |
5 лет |
|
86912-22 |
Резервуары стальные горизонтальные цилиндрические, РГС-25 Общество с ограниченной ответственностью "ТАИФ-НК АЗС" (ООО "ТАИФ-НК АЗС") (РОССИЯ г. Казань) |
ОТ МП |
5 лет |
|
86913-22 |
Резервуары стальные горизонтальные цилиндрические, РГС-60 Общество с ограниченной ответственностью "ТАИФ-НК АЗС" (ООО "ТАИФ-НК АЗС") (РОССИЯ г. Казань) |
ОТ МП |
5 лет |
|
86914-22 |
Резервуары стальные горизонтальные цилиндрические, РГС-25 Общество с ограниченной ответственностью "ТАИФ-НК АЗС" (ООО "ТАИФ-НК АЗС") (РОССИЯ г. Казань) |
ОТ МП |
5 лет |
|
86915-22 |
Резервуары стальные горизонтальные цилиндрические, РГС-25 Общество с ограниченной ответственностью "ТАИФ-НК АЗС" (ООО "ТАИФ-НК АЗС") (РОССИЯ г. Казань) |
ОТ МП |
5 лет |
|
89130-23 |
Резервуар стальной горизонтальный цилиндрический, РГС-50 (25+25) Общество с ограниченной ответственностью "ТАИФ-НК АЗС" (ООО "ТАИФ-НК АЗС") (РОССИЯ г. Казань) |
ОТ МП |
5 лет |
|
89131-23 |
Резервуары стальные горизонтальные цилиндрические, РГС-50 Общество с ограниченной ответственностью "ТАИФ-НК АЗС" (ООО "ТАИФ-НК АЗС") (РОССИЯ г. Казань) |
ОТ МП |
5 лет |
|
89133-23 |
Резервуары стальные горизонтальные цилиндрические, РГС Общество с ограниченной ответственностью "ТАИФ-НК АЗС" (ООО "ТАИФ-НК АЗС") (РОССИЯ г. Казань) |
ОТ МП |
5 лет |
|
89134-23 |
Резервуары стальные горизонтальные цилиндрические, РГС-25 Общество с ограниченной ответственностью "ТАИФ-НК АЗС" (ООО "ТАИФ-НК АЗС") (РОССИЯ г. Казань) |
ОТ МП |
5 лет |
|
89135-23 |
Резервуары стальные горизонтальные цилиндрические, РГС-25 Общество с ограниченной ответственностью "ТАИФ-НК АЗС" (ООО "ТАИФ-НК АЗС") (РОССИЯ г. Казань) |
ОТ МП |
5 лет |
|
89296-23 |
Резервуары стальные горизонтальные цилиндрические, РГС-60 Общество с ограниченной ответственностью "ТАИФ-НК АЗС" (ООО "ТАИФ-НК АЗС") (РОССИЯ г. Казань) |
ОТ МП |
5 лет |
|
89297-23 |
Резервуары стальные горизонтальные цилиндрические, РГС Общество с ограниченной ответственностью "ТАИФ-НК АЗС" (ООО "ТАИФ-НК АЗС") (РОССИЯ г. Казань) |
ОТ МП |
5 лет |
|
89281-23 |
Резервуары стальные горизонтальные цилиндрические, РГС-25 Общество с ограниченной ответственностью "ТАИФ-НК АЗС" (ООО "ТАИФ-НК АЗС") (РОССИЯ г. Казань) |
ОТ МП |
5 лет |
|
89282-23 |
Резервуары стальные горизонтальные цилиндрические, РГС Общество с ограниченной ответственностью "ТАИФ-НК АЗС" (ООО "ТАИФ-НК АЗС") (РОССИЯ г. Казань) |
ОТ МП |
5 лет |
|
89338-23 |
Резервуар стальной горизонтальный цилиндрический, РГС-25 Общество с ограниченной ответственностью "ТАИФ-НК АЗС" (ООО "ТАИФ-НК АЗС") (РОССИЯ г. Казань) |
ОТ МП |
5 лет |
|
89365-23 |
Резервуары стальные горизонтальные цилиндрические, РГС-20 Общество с ограниченной ответственностью "ТАИФ-НК АЗС" (ООО "ТАИФ-НК АЗС") (РОССИЯ г. Казань) |
ОТ МП |
5 лет |
|
89366-23 |
Резервуары стальные горизонтальные цилиндрические, РГС-60 Общество с ограниченной ответственностью "ТАИФ-НК АЗС" (ООО "ТАИФ-НК АЗС") (РОССИЯ г. Казань) |
ОТ МП |
5 лет |
|
89367-23 |
Резервуары стальные горизонтальные цилиндрические, РГС-25 Общество с ограниченной ответственностью "ТАИФ-НК АЗС" (ООО "ТАИФ-НК АЗС") (РОССИЯ г. Казань) |
ОТ МП |
5 лет |
|
89368-23 |
Резервуар стальной горизонтальный цилиндрический, РГС-25 Общество с ограниченной ответственностью "ТАИФ-НК АЗС" (ООО "ТАИФ-НК АЗС") (РОССИЯ г. Казань) |
ОТ МП |
5 лет |
|
89382-23 |
Резервуары стальные горизонтальные цилиндрические, РГС-17 Общество с ограниченной ответственностью "ТАИФ-НК АЗС" (ООО "ТАИФ-НК АЗС") (РОССИЯ г. Казань) |
ОТ МП |
5 лет |
|
89383-23 |
Резервуары стальные горизонтальные цилиндрические, РГС Общество с ограниченной ответственностью "ТАИФ-НК АЗС" (ООО "ТАИФ-НК АЗС") (РОССИЯ г. Казань) |
ОТ МП |
5 лет |
|
89385-23 |
Резервуары стальные горизонтальные цилиндрические, РГС-60 Общество с ограниченной ответственностью "ТАИФ-НК АЗС" (ООО "ТАИФ-НК АЗС") (РОССИЯ г. Казань) |
ОТ МП |
5 лет |
|
89386-23 |
Резервуары стальные горизонтальные цилиндрические, РГС-50 (25+25) Общество с ограниченной ответственностью "ТАИФ-НК АЗС" (ООО "ТАИФ-НК АЗС") (РОССИЯ г. Казань) |
ОТ МП |
5 лет |
|
89387-23 |
Резервуары стальные горизонтальные цилиндрические, РГС Общество с ограниченной ответственностью "ТАИФ-НК АЗС" (ООО "ТАИФ-НК АЗС") (РОССИЯ г. Казань) |
ОТ МП |
5 лет |
|
89388-23 |
Резервуары стальные горизонтальные цилиндрические, РГС-25 Общество с ограниченной ответственностью "ТАИФ-НК АЗС" (ООО "ТАИФ-НК АЗС") (РОССИЯ г. Казань) |
ОТ МП |
5 лет |
|
89389-23 |
Резервуары стальные горизонтальные цилиндрические, РГС Общество с ограниченной ответственностью "ТАИФ-НК АЗС" (ООО "ТАИФ-НК АЗС") (РОССИЯ г. Казань) |
ОТ МП |
5 лет |
|
89390-23 |
Резервуар стальной горизонтальный цилиндрический, РГС-75 Общество с ограниченной ответственностью "ТАИФ-НК АЗС" (ООО "ТАИФ-НК АЗС") (РОССИЯ г. Казань) |
ОТ МП |
5 лет |
|
89391-23 |
Резервуар стальной горизонтальный цилиндрический, РГС-20 Общество с ограниченной ответственностью "ТАИФ-НК АЗС" (ООО "ТАИФ-НК АЗС") (РОССИЯ г. Казань) |
ОТ МП |
5 лет |
|
89392-23 |
Резервуар стальной горизонтальный цилиндрический, РГС-20 Общество с ограниченной ответственностью "ТАИФ-НК АЗС" (ООО "ТАИФ-НК АЗС") (РОССИЯ г. Казань) |
ОТ МП |
5 лет |
|
89424-23 |
Резервуары стальные горизонтальные цилиндрические, РГС Общество с ограниченной ответственностью "ТАИФ-НК АЗС" (ООО "ТАИФ-НК АЗС") (РОССИЯ г. Казань) |
ОТ МП |
5 лет |
|
89425-23 |
Резервуары стальные горизонтальные цилиндрические, РГС Общество с ограниченной ответственностью "ТАИФ-НК АЗС" (ООО "ТАИФ-НК АЗС") (РОССИЯ г. Казань) |
ОТ МП |
5 лет |
|
89426-23 |
Резервуары стальные горизонтальные цилиндрические, РГС Общество с ограниченной ответственностью "ТАИФ-НК АЗС" (ООО "ТАИФ-НК АЗС") (РОССИЯ г. Казань) |
ОТ МП |
5 лет |
|
89427-23 |
Резервуары стальные горизонтальные цилиндрические, РГС-25 Общество с ограниченной ответственностью "ТАИФ-НК АЗС" (ООО "ТАИФ-НК АЗС") (РОССИЯ г. Казань) |
ОТ МП |
5 лет |
|
89428-23 |
Резервуары стальные горизонтальные цилиндрические, РГС Общество с ограниченной ответственностью "ТАИФ-НК АЗС" (ООО "ТАИФ-НК АЗС") (РОССИЯ г. Казань) |
ОТ МП |
5 лет |
|
89445-23 |
Резервуары стальные горизонтальные цилиндрические, РГД 50 (25+25) Общество с ограниченной ответственностью "ТАИФ-НК АЗС" (ООО "ТАИФ-НК АЗС") (РОССИЯ г. Казань) |
ОТ МП |
5 лет |
|
89446-23 |
Резервуары стальные горизонтальные цилиндрические, РГС Общество с ограниченной ответственностью "ТАИФ-НК АЗС" (ООО "ТАИФ-НК АЗС") (РОССИЯ г. Казань) |
ОТ МП |
5 лет |
|
89447-23 |
Резервуары стальные горизонтальные цилиндрические, РГС-25 Общество с ограниченной ответственностью "ТАИФ-НК АЗС" (ООО "ТАИФ-НК АЗС") (РОССИЯ г. Казань) |
ОТ МП |
5 лет |
|
89448-23 |
Резервуары стальные горизонтальные цилиндрические, РГС-25 Общество с ограниченной ответственностью "ТАИФ-НК АЗС" (ООО "ТАИФ-НК АЗС") (РОССИЯ г. Казань) |
ОТ МП |
5 лет |
|
89449-23 |
Резервуары стальные горизонтальные цилиндрические, РГС Общество с ограниченной ответственностью "ТАИФ-НК АЗС" (ООО "ТАИФ-НК АЗС") (РОССИЯ г. Казань) |
ОТ МП |
5 лет |
|
89458-23 |
Резервуары стальные горизонтальные цилиндрические, РГД 50 (25+25) Общество с ограниченной ответственностью "ТАИФ-НК АЗС" (ООО "ТАИФ-НК АЗС") (РОССИЯ г. Казань) |
ОТ МП |
5 лет |
|
89459-23 |
Резервуары стальные горизонтальные цилиндрические, РГС-50 Общество с ограниченной ответственностью "ТАИФ-НК АЗС" (ООО "ТАИФ-НК АЗС") (РОССИЯ г. Казань) |
ОТ МП |
5 лет |
|
89460-23 |
Резервуары стальные горизонтальные цилиндрические, РГС-25 Общество с ограниченной ответственностью "ТАИФ-НК АЗС" (ООО "ТАИФ-НК АЗС") (РОССИЯ г. Казань) |
ОТ МП |
5 лет |
|
89461-23 |
Резервуары стальные горизонтальные цилиндрические, РГС-25 Общество с ограниченной ответственностью "ТАИФ-НК АЗС" (ООО "ТАИФ-НК АЗС") (РОССИЯ г. Казань) |
ОТ МП |
5 лет |
|
89475-23 |
Резервуары стальные горизонтальные цилиндрические, РГС-25 Общество с ограниченной ответственностью "ТАИФ-НК АЗС" (ООО "ТАИФ-НК АЗС") (РОССИЯ г. Казань) |
ОТ МП |
5 лет |
|
89506-23 |
Резервуары стальные горизонтальные цилиндрические, РГС Общество с ограниченной ответственностью "ТАИФ-НК АЗС" (ООО "ТАИФ-НК АЗС") (РОССИЯ г. Казань) |
ОТ МП |
5 лет |
|
89507-23 |
Резервуары стальные горизонтальные цилиндрические, РГС Общество с ограниченной ответственностью "ТАИФ-НК АЗС" (ООО "ТАИФ-НК АЗС") (РОССИЯ г. Казань) |
ОТ МП |
5 лет |
|
89508-23 |
Резервуары стальные горизонтальные цилиндрические, РГС Общество с ограниченной ответственностью "ТАИФ-НК АЗС" (ООО "ТАИФ-НК АЗС") (РОССИЯ г. Казань) |
ОТ МП |
5 лет |
|
89509-23 |
Резервуары стальные горизонтальные цилиндрические, РГД 50 Общество с ограниченной ответственностью "ТАИФ-НК АЗС" (ООО "ТАИФ-НК АЗС") (РОССИЯ г. Казань) |
ОТ МП |
5 лет |
|
90564-23 |
Резервуары стальные горизонтальные цилиндрические, РГС-25 Общество с ограниченной ответственностью "ТАИФ-НК АЗС" (ООО "ТАИФ-НК АЗС") (РОССИЯ г. Казань) |
ОТ МП |
5 лет |
|
90565-23 |
Резервуары стальные горизонтальные цилиндрические, РГС-25 Общество с ограниченной ответственностью "ТАИФ-НК АЗС" (ООО "ТАИФ-НК АЗС") (РОССИЯ г. Казань) |
ОТ МП |
5 лет |
|
90580-23 |
Резервуары стальные горизонтальные цилиндрические, РГС Общество с ограниченной ответственностью "ТАИФ-НК АЗС" (ООО "ТАИФ-НК АЗС") (РОССИЯ г. Казань) |
ОТ МП |
5 лет |
|
90581-23 |
Резервуары стальные горизонтальные цилиндрические, РГС-25 Общество с ограниченной ответственностью "ТАИФ-НК АЗС" (ООО "ТАИФ-НК АЗС") (РОССИЯ г. Казань) |
ОТ МП |
5 лет |
|
90582-23 |
Резервуары стальные горизонтальные цилиндрические, РГС-25 Общество с ограниченной ответственностью "ТАИФ-НК АЗС" (ООО "ТАИФ-НК АЗС") (РОССИЯ г. Казань) |
ОТ МП |
5 лет |
|
92536-24 |
Резервуары стальные горизонтальные цилиндрические, РГС Общество с ограниченной ответственностью "ТАИФ-НК АЗС" (ООО "ТАИФ-НК АЗС") (РОССИЯ г. Казань) |
ОТ МП |
5 лет |
|
92537-24 |
Резервуары стальные горизонтальные цилиндрические, РГС-55 Общество с ограниченной ответственностью "ТАИФ-НК АЗС" (ООО "ТАИФ-НК АЗС") (РОССИЯ г. Казань) |
ОТ МП |
5 лет |
|
92538-24 |
Резервуары стальные горизонтальные цилиндрические, РГС Общество с ограниченной ответственностью "ТАИФ-НК АЗС" (ООО "ТАИФ-НК АЗС") (РОССИЯ г. Казань) |
ОТ МП |
5 лет |
|
92539-24 |
Резервуары стальные горизонтальные цилиндрические, РГС-25 Общество с ограниченной ответственностью "ТАИФ-НК АЗС" (ООО "ТАИФ-НК АЗС") (РОССИЯ г. Казань) |
ОТ МП |
5 лет |
|
92564-24 |
Резервуары стальные горизонтальные цилиндрические, РГС Общество с ограниченной ответственностью "ТАИФ-НК АЗС" (ООО "ТАИФ-НК АЗС") (РОССИЯ г. Казань) |
ОТ МП |
5 лет |
|
92580-24 |
Резервуары стальные горизонтальные цилиндрические, РГС-60 Общество с ограниченной ответственностью "ТАИФ-НК АЗС" (ООО "ТАИФ-НК АЗС") (РОССИЯ г. Казань) |
ОТ МП |
5 лет |
|
92581-24 |
Резервуары стальные горизонтальные цилиндрические, РГС-63 Общество с ограниченной ответственностью "ТАИФ-НК АЗС" (ООО "ТАИФ-НК АЗС") (РОССИЯ г. Казань) |
ОТ МП |
5 лет |
|
92582-24 |
Резервуары стальные горизонтальные цилиндрические, РГС-25 Общество с ограниченной ответственностью "ТАИФ-НК АЗС" (ООО "ТАИФ-НК АЗС") (РОССИЯ г. Казань) |
ОТ МП |
5 лет |
|
92583-24 |
Резервуары стальные горизонтальные цилиндрические, РГС-28 Общество с ограниченной ответственностью "ТАИФ-НК АЗС" (ООО "ТАИФ-НК АЗС") (РОССИЯ г. Казань) |
ОТ МП |
5 лет |
|
92584-24 |
Резервуары стальные горизонтальные цилиндрические, РГС Общество с ограниченной ответственностью "ТАИФ-НК АЗС" (ООО "ТАИФ-НК АЗС") (РОССИЯ г. Казань) |
ОТ МП |
5 лет |
|
92585-24 |
Резервуары стальные горизонтальные цилиндрические, РГС-25 Общество с ограниченной ответственностью "ТАИФ-НК АЗС" (ООО "ТАИФ-НК АЗС") (РОССИЯ г. Казань) |
ОТ МП |
5 лет |
|
92586-24 |
Резервуары стальные горизонтальные цилиндрические, РГС-25 Общество с ограниченной ответственностью "ТАИФ-НК АЗС" (ООО "ТАИФ-НК АЗС") (РОССИЯ г. Казань) |
ОТ МП |
5 лет |
|
92587-24 |
Резервуары стальные горизонтальные цилиндрические, РГС-50 Общество с ограниченной ответственностью "ТАИФ-НК АЗС" (ООО "ТАИФ-НК АЗС") (РОССИЯ г. Казань) |
ОТ МП |
5 лет |
|
92596-24 |
Резервуары стальные горизонтальные цилиндрические, РГС-25 Общество с ограниченной ответственностью "ТАИФ-НК АЗС" (ООО "ТАИФ-НК АЗС") (РОССИЯ г. Казань) |
ОТ МП |
5 лет |
|
92597-24 |
Резервуары стальные горизонтальные цилиндрические, РГС-25 Общество с ограниченной ответственностью "ТАИФ-НК АЗС" (ООО "ТАИФ-НК АЗС") (РОССИЯ г. Казань) |
ОТ МП |
5 лет |
|
92598-24 |
Резервуары стальные горизонтальные цилиндрические, РГС Общество с ограниченной ответственностью "ТАИФ-НК АЗС" (ООО "ТАИФ-НК АЗС") (РОССИЯ г. Казань) |
ОТ МП |
5 лет |
|
92599-24 |
Резервуары стальные горизонтальные цилиндрические, РГС-25 Общество с ограниченной ответственностью "ТАИФ-НК АЗС" (ООО "ТАИФ-НК АЗС") (РОССИЯ г. Казань) |
ОТ МП |
5 лет |
|
92615-24 |
Резервуары стальные горизонтальные цилиндрические, РГС-63 Общество с ограниченной ответственностью "ТАИФ-НК АЗС" (ООО "ТАИФ-НК АЗС") (РОССИЯ г. Казань) |
ОТ МП |
5 лет |
|
92616-24 |
Резервуары стальные горизонтальные цилиндрические, РГС-63 Общество с ограниченной ответственностью "ТАИФ-НК АЗС" (ООО "ТАИФ-НК АЗС") (РОССИЯ г. Казань) |
ОТ МП |
5 лет |
|
92651-24 |
Резервуары стальные горизонтальные цилиндрические, РГС-25 Общество с ограниченной ответственностью "ТАИФ-НК АЗС" (ООО "ТАИФ-НК АЗС") (РОССИЯ г. Казань) |
ОТ МП |
5 лет |
|
92652-24 |
Резервуары стальные горизонтальные цилиндрические, РГС-40 Общество с ограниченной ответственностью "ТАИФ-НК АЗС" (ООО "ТАИФ-НК АЗС") (РОССИЯ г. Казань) |
ОТ МП |
5 лет |
|
92653-24 |
Резервуары стальные горизонтальные цилиндрические, РГС-25 Общество с ограниченной ответственностью "ТАИФ-НК АЗС" (ООО "ТАИФ-НК АЗС") (РОССИЯ г. Казань) |
ОТ МП |
5 лет |
|
92654-24 |
Резервуары стальные горизонтальные цилиндрические, РГС Общество с ограниченной ответственностью "ТАИФ-НК АЗС" (ООО "ТАИФ-НК АЗС") (РОССИЯ г. Казань) |
ОТ МП |
5 лет |
|
92695-24 |
Резервуары стальные горизонтальные цилиндрические, РГС Общество с ограниченной ответственностью "ТАИФ-НК АЗС" (ООО "ТАИФ-НК АЗС") (РОССИЯ г. Казань) |
ОТ МП |
5 лет |
|
92696-24 |
Резервуары стальные горизонтальные цилиндрические, РГС Общество с ограниченной ответственностью "ТАИФ-НК АЗС" (ООО "ТАИФ-НК АЗС") (РОССИЯ г. Казань) |
ОТ МП |
5 лет |
|
92697-24 |
Резервуары стальные горизонтальные цилиндрические, РГС-30 Общество с ограниченной ответственностью "ТАИФ-НК АЗС" (ООО "ТАИФ-НК АЗС") (РОССИЯ г. Казань) |
ОТ МП |
5 лет |
|
92700-24 |
Резервуары стальные горизонтальные цилиндрические, РГС-25 Общество с ограниченной ответственностью "ТАИФ-НК АЗС" (ООО "ТАИФ-НК АЗС") (РОССИЯ г. Казань) |
ОТ МП |
5 лет |
|
92745-24 |
Резервуары стальные горизонтальные цилиндрические, РГС-25 Общество с ограниченной ответственностью "ТАИФ-НК АЗС" (ООО "ТАИФ-НК АЗС") (РОССИЯ г. Казань) |
ОТ МП |
5 лет |
|
92746-24 |
Резервуары стальные горизонтальные цилиндрические, РГС Общество с ограниченной ответственностью "ТАИФ-НК АЗС" (ООО "ТАИФ-НК АЗС") (РОССИЯ г. Казань) |
ОТ МП |
5 лет |
|
92747-24 |
Резервуары стальные горизонтальные цилиндрические, РГС Общество с ограниченной ответственностью "ТАИФ-НК АЗС" (ООО "ТАИФ-НК АЗС") (РОССИЯ г. Казань) |
ОТ МП |
5 лет |
|
92763-24 |
Резервуары стальные горизонтальные цилиндрические, РГС-20 Общество с ограниченной ответственностью "ТАИФ-НК АЗС" (ООО "ТАИФ-НК АЗС") (РОССИЯ г. Казань) |
ОТ МП |
5 лет |
|
92774-24 |
Резервуары стальные горизонтальные цилиндрические, РГС-25 Общество с ограниченной ответственностью "ТАИФ-НК АЗС" (ООО "ТАИФ-НК АЗС") (РОССИЯ г. Казань) |
ОТ МП |
5 лет |
|
92775-24 |
Резервуары стальные горизонтальные цилиндрические, РГС-25 Общество с ограниченной ответственностью "ТАИФ-НК АЗС" (ООО "ТАИФ-НК АЗС") (РОССИЯ г. Казань) |
ОТ МП |
5 лет |
|
92940-24 |
Резервуары стальные горизонтальные цилиндрические, РГС Общество с ограниченной ответственностью "ТАИФ-НК АЗС" (ООО "ТАИФ-НК АЗС") (РОССИЯ г. Казань) |
ОТ МП |
5 лет |
|
92952-24 |
Резервуары стальные горизонтальные цилиндрические, РГС-25 Общество с ограниченной ответственностью "ТАИФ-НК АЗС" (ООО "ТАИФ-НК АЗС") (РОССИЯ г. Казань) |
ОТ МП |
5 лет |
|
92940-24 |
Резервуары стальные горизонтальные цилиндрические, РГС Общество с ограниченной ответственностью "ТАИФ-НК АЗС" (ООО "ТАИФ-НК АЗС") (РОССИЯ г. Казань) |
ОТ МП |
5 лет |
|
92952-24 |
Резервуары стальные горизонтальные цилиндрические, РГС-25 Общество с ограниченной ответственностью "ТАИФ-НК АЗС" (ООО "ТАИФ-НК АЗС") (РОССИЯ г. Казань) |
ОТ МП |
5 лет |
|
93126-24 |
Резервуары стальные горизонтальные цилиндрические, РГС-25 Общество с ограниченной ответственностью "ТАИФ-НК АЗС" (ООО "ТАИФ-НК АЗС") (РОССИЯ г. Казань) |
ОТ МП |
5 лет |
|
93144-24 |
Резервуары стальные горизонтальные цилиндрические, РГС-53 Общество с ограниченной ответственностью "ТАИФ-НК АЗС" (ООО "ТАИФ-НК АЗС") (РОССИЯ г. Казань) |
ОТ МП |
5 лет |
|
93145-24 |
Резервуары стальные горизонтальные цилиндрические, РГС-25 Общество с ограниченной ответственностью "ТАИФ-НК АЗС" (ООО "ТАИФ-НК АЗС") (РОССИЯ г. Казань) |
ОТ МП |
5 лет |
|
93146-24 |
Резервуары стальные горизонтальные цилиндрические, РГС Общество с ограниченной ответственностью "ТАИФ-НК АЗС" (ООО "ТАИФ-НК АЗС") (РОССИЯ г. Казань) |
ОТ МП |
5 лет |
|
94492-25 |
Резервуары стальные горизонтальные цилиндрические, РГС Общество с ограниченной ответственностью "ТАИФ-НК АЗС" (ООО "ТАИФ-НК АЗС") (РОССИЯ г. Казань) |
ОТ МП |
5 лет |
|
94512-25 |
Резервуары стальные горизонтальные цилиндрические, РГС Общество с ограниченной ответственностью "ТАИФ-НК АЗС" (ООО "ТАИФ-НК АЗС") (РОССИЯ г. Казань) |
ОТ МП |
5 лет |
|
94587-25 |
Резервуары стальные горизонтальные цилиндрические, РГС Общество с ограниченной ответственностью "ТАИФ-НК АЗС" (ООО "ТАИФ-НК АЗС") (РОССИЯ г. Казань) |
ОТ МП |
5 лет |
|
94588-25 |
Резервуары стальные горизонтальные цилиндрические, РГС-50 Общество с ограниченной ответственностью "ТАИФ-НК АЗС" (ООО "ТАИФ-НК АЗС") (РОССИЯ г. Казань) |
ОТ МП |
5 лет |
|
94589-25 |
Резервуары стальные горизонтальные цилиндрические, РГС-25 Общество с ограниченной ответственностью "ТАИФ-НК АЗС" (ООО "ТАИФ-НК АЗС") (РОССИЯ г. Казань) |
ОТ МП |
5 лет |
|
94590-25 |
Резервуары стальные горизонтальные цилиндрические, РГС Общество с ограниченной ответственностью "ТАИФ-НК АЗС" (ООО "ТАИФ-НК АЗС") (РОССИЯ г. Казань) |
ОТ МП |
5 лет |
|
94591-25 |
Резервуары стальные горизонтальные цилиндрические, РГС Общество с ограниченной ответственностью "ТАИФ-НК АЗС" (ООО "ТАИФ-НК АЗС") (РОССИЯ г. Казань) |
ОТ МП |
5 лет |
|
94592-25 |
Резервуары стальные горизонтальные цилиндрические, РГС-50 Общество с ограниченной ответственностью "ТАИФ-НК АЗС" (ООО "ТАИФ-НК АЗС") (РОССИЯ г. Казань) |
ОТ МП |
5 лет |
|
94593-25 |
Резервуары стальные горизонтальные цилиндрические, РГС Общество с ограниченной ответственностью "ТАИФ-НК АЗС" (ООО "ТАИФ-НК АЗС") (РОССИЯ г. Казань) |
ОТ МП |
5 лет |
|
94564-25 |
Резервуары стальные горизонтальные цилиндрические, РГС-20 Общество с ограниченной ответственностью "ТАИФ-НК АЗС" (ООО "ТАИФ-НК АЗС") (РОССИЯ г. Казань) |
ОТ МП |
5 лет |
|
94565-25 |
Резервуары стальные горизонтальные цилиндрические, РГС-30 Общество с ограниченной ответственностью "ТАИФ-НК АЗС" (ООО "ТАИФ-НК АЗС") (РОССИЯ г. Казань) |
ОТ МП |
5 лет |
|
94566-25 |
Резервуары стальные горизонтальные цилиндрические, РГС-25 Общество с ограниченной ответственностью "ТАИФ-НК АЗС" (ООО "ТАИФ-НК АЗС") (РОССИЯ г. Казань) |
ОТ МП |
5 лет |
|
94605-25 |
Резервуары стальные горизонтальные цилиндрические, РГС-25 Общество с ограниченной ответственностью "ТАИФ-НК АЗС" (ООО "ТАИФ-НК АЗС") (РОССИЯ г. Казань) |
ОТ МП |
5 лет |
|
94606-25 |
Резервуары стальные горизонтальные цилиндрические, РГС-25 Общество с ограниченной ответственностью "ТАИФ-НК АЗС" (ООО "ТАИФ-НК АЗС") (РОССИЯ г. Казань) |
ОТ МП |
5 лет |
|
94607-25 |
Резервуары стальные горизонтальные цилиндрические, РГС Общество с ограниченной ответственностью "ТАИФ-НК АЗС" (ООО "ТАИФ-НК АЗС") (РОССИЯ г. Казань) |
ОТ МП |
5 лет |
|
94608-25 |
Резервуары стальные горизонтальные цилиндрические, РГС-50 Общество с ограниченной ответственностью "ТАИФ-НК АЗС" (ООО "ТАИФ-НК АЗС") (РОССИЯ г. Казань) |
ОТ МП |
5 лет |
|
94609-25 |
Резервуары стальные горизонтальные цилиндрические, РГС Общество с ограниченной ответственностью "ТАИФ-НК АЗС" (ООО "ТАИФ-НК АЗС") (РОССИЯ г. Казань) |
ОТ МП |
5 лет |
|
94610-25 |
Резервуары стальные горизонтальные цилиндрические, РГС Общество с ограниченной ответственностью "ТАИФ-НК АЗС" (ООО "ТАИФ-НК АЗС") (РОССИЯ г. Казань) |
ОТ МП |
5 лет |
|
94835-25 |
Резервуары стальные горизонтальные цилиндрические, РГС-25 Общество с ограниченной ответственностью "ТАИФ-НК АЗС" (ООО "ТАИФ-НК АЗС") (РОССИЯ г. Казань) |
ОТ МП |
5 лет |
|
94836-25 |
Резервуары стальные горизонтальные цилиндрические, РГС Общество с ограниченной ответственностью "ТАИФ-НК АЗС" (ООО "ТАИФ-НК АЗС") (РОССИЯ г. Казань) |
ОТ МП |
5 лет |
|
94854-25 |
Резервуары стальные горизонтальные цилиндрические, РГС-25 Общество с ограниченной ответственностью "ТАИФ-НК АЗС" (ООО "ТАИФ-НК АЗС") (РОССИЯ г. Казань) |
ОТ МП |
5 лет |
|
94855-25 |
Резервуары стальные горизонтальные цилиндрические, РГС-25 Общество с ограниченной ответственностью "ТАИФ-НК АЗС" (ООО "ТАИФ-НК АЗС") (РОССИЯ г. Казань) |
ОТ МП |
5 лет |
|
94856-25 |
Резервуары стальные горизонтальные цилиндрические, РГС Общество с ограниченной ответственностью "ТАИФ-НК АЗС" (ООО "ТАИФ-НК АЗС") (РОССИЯ г. Казань) |
ОТ МП |
5 лет |
|
94857-25 |
Резервуары стальные горизонтальные цилиндрические, РГС Общество с ограниченной ответственностью "ТАИФ-НК АЗС" (ООО "ТАИФ-НК АЗС") (РОССИЯ г. Казань) |
ОТ МП |
5 лет |
|
94871-25 |
Резервуары стальные горизонтальные цилиндрические, РГС-25 Общество с ограниченной ответственностью "ТАИФ-НК АЗС" (ООО "ТАИФ-НК АЗС") (РОССИЯ г. Казань) |
ОТ МП |
5 лет |
|
94872-25 |
Резервуары стальные горизонтальные цилиндрические, РГС-25 Общество с ограниченной ответственностью "ТАИФ-НК АЗС" (ООО "ТАИФ-НК АЗС") (РОССИЯ г. Казань) |
ОТ МП |
5 лет |
|
94873-25 |
Резервуары стальные горизонтальные цилиндрические, РГС-25 Общество с ограниченной ответственностью "ТАИФ-НК АЗС" (ООО "ТАИФ-НК АЗС") (РОССИЯ г. Казань) |
ОТ МП |
5 лет |
|
94888-25 |
Резервуары стальные горизонтальные цилиндрические, РГС-15 Общество с ограниченной ответственностью "ТАИФ-НК АЗС" (ООО "ТАИФ-НК АЗС") (РОССИЯ г. Казань) |
ОТ МП |
5 лет |
|
94889-25 |
Резервуары стальные горизонтальные цилиндрические, РГС-25 Общество с ограниченной ответственностью "ТАИФ-НК АЗС" (ООО "ТАИФ-НК АЗС") (РОССИЯ г. Казань) |
ОТ МП |
5 лет |
|
94890-25 |
Резервуары стальные горизонтальные цилиндрические, РГС-25 Общество с ограниченной ответственностью "ТАИФ-НК АЗС" (ООО "ТАИФ-НК АЗС") (РОССИЯ г. Казань) |
ОТ МП |
5 лет |
|
94909-25 |
Резервуары стальные горизонтальные цилиндрические, РГС-50 Общество с ограниченной ответственностью "ТАИФ-НК АЗС" (ООО "ТАИФ-НК АЗС") (РОССИЯ г. Казань) |
ОТ МП |
5 лет |
|
94947-25 |
Резервуары стальные горизонтальные цилиндрические, РГС-20 Общество с ограниченной ответственностью "ТАИФ-НК АЗС" (ООО "ТАИФ-НК АЗС") (РОССИЯ г. Казань) |
ОТ МП |
5 лет |
|
94972-25 |
Резервуары стальные горизонтальные цилиндрические, РГС Общество с ограниченной ответственностью "ТАИФ-НК АЗС" (ООО "ТАИФ-НК АЗС") (РОССИЯ г. Казань) |
ОТ МП |
5 лет |
|
95093-25 |
Резервуары стальные горизонтальные цилиндрические, РГС-25 Общество с ограниченной ответственностью "ТАИФ-НК АЗС" (ООО "ТАИФ-НК АЗС") (РОССИЯ г. Казань) |
ОТ МП |
5 лет |
|
95094-25 |
Резервуары стальные горизонтальные цилиндрические, РГС Общество с ограниченной ответственностью "ТАИФ-НК АЗС" (ООО "ТАИФ-НК АЗС") (РОССИЯ г. Казань) |
ОТ МП |
5 лет |
|
95095-25 |
Резервуары стальные горизонтальные цилиндрические, РГС-50 Общество с ограниченной ответственностью "ТАИФ-НК АЗС" (ООО "ТАИФ-НК АЗС") (РОССИЯ г. Казань) |
ОТ МП |
5 лет |
|
95096-25 |
Резервуары стальные горизонтальные цилиндрические, РГС-60 Общество с ограниченной ответственностью "ТАИФ-НК АЗС" (ООО "ТАИФ-НК АЗС") (РОССИЯ г. Казань) |
ОТ МП |
5 лет |
|
95097-25 |
Резервуары стальные горизонтальные цилиндрические, РГС-25 Общество с ограниченной ответственностью "ТАИФ-НК АЗС" (ООО "ТАИФ-НК АЗС") (РОССИЯ г. Казань) |
ОТ МП |
5 лет |
Справочник является модернизированной копией реестра "Утверждённые типы средств измерений" (https://fgis.gost.ru/fundmetrology/registry/4) и содержит сведения о типах СИ, применяемых в сфере обеспечения единства измерений.
В отличии от официального Реестра справочник имеет систему предварительных фильтров:
- по типу производства (серийное или единичное);
- по группам стран (отечественные, импортные или все типы СИ);
- по наличию поверок в ФГИС АРШИН;
- по областям измерений.
Данные выводятся одной таблицей без необходимости "проваливаться" в каждую из записей для уточнения сведений. При наличии ОТ и МП приводится ссылка на ФГИС АРШИН. В таблице реализована система поиска и сортировки по любому из полей.
Справочник содержит более 100 тыс. записей и актуализируется не реже 1 раза в месяц.
Бесплатный
Кто поверяет Резервуары стальные горизонтальные цилиндрические (РГС-50)
| Наименование организации | Cтатус | Поверенные модификации | Кол-во поверок | Поверок в 2026 году | Первичных поверок | Периодических поверок | Извещений | Для юриков | Для юриков первичные | Для юриков периодические |
|---|---|---|---|---|---|---|---|---|---|---|
| ООО "МЕТРОКОНТ" (RA.RU.311686) | 8 | 4 | 4 | 0 | 4 | 0 | 4 |
Стоимость поверки Резервуары стальные горизонтальные цилиндрические (РГС-50)
| Организация, регион | Стоимость, руб | Средняя стоимость |
|---|
Знак утверждения типа
Знак утверждения типа наносится на титульный лист паспорта резервуара типографским способом.Сведения о методиках измерений
Сведения о методиках (методах) измерений приведены в пункте 8 паспорта на резервуар.Нормативные и технические документы
Нормативные документы, устанавливающие требования к резервуарам стальным горизонтальным цилиндрическим РГС-50Приказ Росстандарта № 256 от 7 февраля 2018 г. «Об утверждении Государственной поверочной схемы для средств измерений массы и объема жидкости в потоке, объема жидкости и вместимости при статических измерениях, массового и объемного расходов жидкости»
Изготовитель
Общество с ограниченной ответственностью «ТАИФ-НК АЗС»(ООО «ТАИФ-НК АЗС»)
ИНН 1639028805
Адрес: 420111, г. Казань, ул. Астрономическая, д. 5/19, кабинет 56
Телефон: +7 (843) 237-63-26
Web-сайт: taifazs.ru
E-mail: office@taif-azs.ru
Испытательный центр
Общество с ограниченной ответственностью «МетроКонТ» (ООО «МетроКонТ»)Адрес: 420132, г. Казань, ул. Адоратского, д. 39Б, офис 51
Телефон: +7 9372834420
Факс +7 (843) 515-00-21 E-mail: trifonovua@mail.ru
Тип резервуаров - стальные горизонтальные цилиндрические, номинальной вместимостью 50 м3 подземного расположения.
Принцип действия резервуаров основан на заполнении их нефтепродуктом до определенного уровня, соответствующего заданному значению объема.
Резервуары представляют собой горизонтально расположенный цилиндрический стальной сосуд с днищами.
Заполнение и выдача продукта осуществляется через приемно-раздаточные патрубки.
Заводские номера резервуаров наносятся на крышку люка резервуара.
Резервуары РГС-50 с заводскими номерами 3, 4, 5, 6 расположены по адресу: Республика Татарстан, Спасский район, г. Болгар, ул. Лихачева, АЗС №409 ООО «ТАИФ-НК АЗС».
Общий вид резервуаров РГС-50 представлен на рисунках 1, 2, 3.
Нанесение знака поверки на средство измерений не предусмотрено.
Рисунок 1 - Общий вид резервуаров РГС-50
Рисунок 2 - Общий вид резервуаров РГС-50
Рисунок 3 - Общий вид резервуаров РГС-50
Пломбирование резервуаров РГС-50 не предусмотрено.
Таблица 3 -
|
Наименование |
Обозначение |
Количество |
|
Резервуар стальной горизонтальный цилиндрический |
РГС-50 |
1 шт. |
|
Паспорт |
- |
1 экз. |
|
Градуировочная таблица |
- |
1 экз. |
Таблица 1 - Метрологические характеристики
|
Наименование характеристики |
Значение |
|
Номинальная вместимость, м3 |
50 |
|
Пределы допускаемой относительной погрешности определения вместимости, % |
±0,25 |
Таблица 2 - Основные технические характеристики
|
Наименование характеристики |
Значение |
|
Условия эксплуатации: | |
|
Температура окружающего воздуха, оС |
от -50 до +50 |
|
Атмосферное давление, кПа |
от 84,0 до 106,7 |
|
Средний срок службы, лет, не менее |
20 |

