Номер по Госреестру СИ: 85429-22
85429-22 Резервуары стальные горизонтальные цилиндрические
(РГС-25)
Назначение средства измерений:
Резервуары стальные горизонтальные цилиндрические РГС-25 (далее - резервуары) предназначены для измерения объема нефтепродуктов, а также для их приема, хранения и отпуска.

Внешний вид.
Резервуары стальные горизонтальные цилиндрические
Рисунок № 1

Внешний вид.
Резервуары стальные горизонтальные цилиндрические
Рисунок № 2

Внешний вид.
Резервуары стальные горизонтальные цилиндрические
Рисунок № 3
Общие сведения
Дата публикации - 14.09.2022
Срок свидетельства -
Номер записи - 187452
ID в реестре СИ - 1399224
Тип производства - единичное
Описание типа
Поверка
Интервал между поверками по ОТ - 5 лет
Наличие периодической поверки - Да
Методика поверки
Модификации СИ
Нет модификации,
Производитель
Изготовитель - Общество с ограниченной ответственностью "ТАИФ-НК АЗС" (ООО "ТАИФ-НК АЗС")
Страна - РОССИЯ
Населенный пункт - г. Казань
Уведомление о начале осуществления предпринимательской деятельности -
В отчете "V_15" представлена аналитика распределения поверок по странам производства, как за все время существования БД ФГИС АРШИН, так и за последние несколько лет.
Отчет содержит три графика и таблицу. Графики являются интерактивными с возможностью масштабирования и экспорта в сторонние программы. Таблица обладает функциями поиска и сортировки по любой из колонок.
В разделе "Общая статистика" отчета представлены усредненные данные по странам производства:
- число стран, чьи СИ занесены в ФГИС АРШИН
- общее количество производителей по всем странам
- суммарное количество поверок по всем производителям
- количество типов СИ, зарегистрированных в ФГИС АРШИН
В конце отчета приводится сводная таблица с данными для возможности самостоятельной обработки информации. В таблице имеются следующие поля:
- наименование производителя
- страна производства
- кол-во поверок СИ указанного производителя
Бесплатный
Статистика
Кол-во поверок - 5
Выдано извещений - 0
Кол-во периодических поверок - 0
Кол-во средств измерений - 5
Кол-во владельцев - 1
Усредненный год выпуска СИ - 0
МПИ по поверкам - 1825 дн.
Приказы РСТ, где упоминается данный тип СИ
№1062 от 2022.04.25 ПРИКАЗ_Об утверждении типов средств измерений (16)
Наличие аналогов СИ: Резервуары стальные горизонтальные цилиндрические (РГС-25)
| ИМПОРТНОЕ СИ № в реестре, наименование СИ, обозначение, изголовитель |
ОТЕЧЕСТВЕННЫЙ АНАЛОГ № в реестре, наименование СИ, обозначение, изголовитель |
|---|
Все средства измерений Общество с ограниченной ответственностью "ТАИФ-НК АЗС" (ООО "ТАИФ-НК АЗС")
|
№ в реестре cрок св-ва |
Наименование СИ, обозначение, изголовитель | ОТ, МП | МПИ |
|---|---|---|---|
|
85115-22 |
Резервуары стальные горизонтальные цилиндрические, РГС-60 Общество с ограниченной ответственностью "ТАИФ-НК АЗС" (ООО "ТАИФ-НК АЗС") (РОССИЯ г. Казань) |
ОТ МП |
5 лет |
|
85116-22 |
Резервуары стальные горизонтальные цилиндрические, РГС-60 Общество с ограниченной ответственностью "ТАИФ-НК АЗС" (ООО "ТАИФ-НК АЗС") (РОССИЯ г. Казань) |
ОТ МП |
5 лет |
|
85117-22 |
Резервуары стальные горизонтальные цилиндрические, РГС-25 Общество с ограниченной ответственностью "ТАИФ-НК АЗС" (ООО "ТАИФ-НК АЗС") (РОССИЯ г. Казань) |
ОТ МП |
5 лет |
|
85118-22 |
Резервуары стальные горизонтальные цилиндрические, РГС-25 Общество с ограниченной ответственностью "ТАИФ-НК АЗС" (ООО "ТАИФ-НК АЗС") (РОССИЯ г. Казань) |
ОТ МП |
5 лет |
|
85119-22 |
Резервуары стальные горизонтальные цилиндрические, РГС-50 Общество с ограниченной ответственностью "ТАИФ-НК АЗС" (ООО "ТАИФ-НК АЗС") (РОССИЯ г. Казань) |
ОТ МП |
5 лет |
|
85120-22 |
Резервуары стальные горизонтальные цилиндрические, РГС-25 Общество с ограниченной ответственностью "ТАИФ-НК АЗС" (ООО "ТАИФ-НК АЗС") (РОССИЯ г. Казань) |
ОТ МП |
5 лет |
|
85121-22 |
Резервуары стальные горизонтальные цилиндрические, РГС-25 Общество с ограниченной ответственностью "ТАИФ-НК АЗС" (ООО "ТАИФ-НК АЗС") (РОССИЯ г. Казань) |
ОТ МП |
5 лет |
|
85122-22 |
Резервуары стальные горизонтальные цилиндрические, РГС-25 Общество с ограниченной ответственностью "ТАИФ-НК АЗС" (ООО "ТАИФ-НК АЗС") (РОССИЯ г. Казань) |
ОТ МП |
5 лет |
|
85123-22 |
Резервуары стальные горизонтальные цилиндрические, РГС-30 Общество с ограниченной ответственностью "ТАИФ-НК АЗС" (ООО "ТАИФ-НК АЗС") (РОССИЯ г. Казань) |
ОТ МП |
5 лет |
|
85124-22 |
Резервуары стальные горизонтальные цилиндрические, РГС-50 Общество с ограниченной ответственностью "ТАИФ-НК АЗС" (ООО "ТАИФ-НК АЗС") (РОССИЯ г. Казань) |
ОТ МП |
5 лет |
|
85125-22 |
Резервуары стальные горизонтальные цилиндрические, РГС-25 Общество с ограниченной ответственностью "ТАИФ-НК АЗС" (ООО "ТАИФ-НК АЗС") (РОССИЯ г. Казань) |
ОТ МП |
5 лет |
|
85126-22 |
Резервуары стальные горизонтальные цилиндрические, РГС-60 Общество с ограниченной ответственностью "ТАИФ-НК АЗС" (ООО "ТАИФ-НК АЗС") (РОССИЯ г. Казань) |
ОТ МП |
5 лет |
|
85127-22 |
Резервуар стальной горизонтальный цилиндрический, РГС-50 Общество с ограниченной ответственностью "ТАИФ-НК АЗС" (ООО "ТАИФ-НК АЗС") (РОССИЯ г. Казань) |
ОТ МП |
5 лет |
|
85158-22 |
Резервуары стальные горизонтальные цилиндрические, РГС-50 Общество с ограниченной ответственностью "ТАИФ-НК АЗС" (ООО "ТАИФ-НК АЗС") (РОССИЯ г. Казань) |
ОТ МП |
5 лет |
|
85429-22 |
Резервуары стальные горизонтальные цилиндрические, РГС-25 Общество с ограниченной ответственностью "ТАИФ-НК АЗС" (ООО "ТАИФ-НК АЗС") (РОССИЯ г. Казань) |
ОТ МП |
5 лет |
|
85431-22 |
Резервуары стальные горизонтальные цилиндрические, РГС-50 Общество с ограниченной ответственностью "ТАИФ-НК АЗС" (ООО "ТАИФ-НК АЗС") (РОССИЯ г. Казань) |
ОТ МП |
5 |
|
85432-22 |
Резервуар стальной горизонтальный цилиндрический, РГС-25 Общество с ограниченной ответственностью "ТАИФ-НК АЗС" (ООО "ТАИФ-НК АЗС") (РОССИЯ г. Казань) |
ОТ МП |
5 лет |
|
85433-22 |
Резервуар стальной горизонтальный цилиндрический, РГС-40 Общество с ограниченной ответственностью "ТАИФ-НК АЗС" (ООО "ТАИФ-НК АЗС") (РОССИЯ г. Казань) |
ОТ МП |
5 лет |
|
85434-22 |
Резервуар стальной горизонтальный цилиндрический, РГС-25 Общество с ограниченной ответственностью "ТАИФ-НК АЗС" (ООО "ТАИФ-НК АЗС") (РОССИЯ г. Казань) |
ОТ МП |
5 лет |
|
85435-22 |
Резервуар стальной горизонтальный цилиндрический, РГС-30 Общество с ограниченной ответственностью "ТАИФ-НК АЗС" (ООО "ТАИФ-НК АЗС") (РОССИЯ г. Казань) |
ОТ МП |
5 лет |
|
85436-22 |
Резервуары стальные горизонтальные цилиндрические, РГС-25 Общество с ограниченной ответственностью "ТАИФ-НК АЗС" (ООО "ТАИФ-НК АЗС") (РОССИЯ г. Казань) |
ОТ МП |
5 лет |
|
85437-22 |
Резервуары стальные горизонтальные цилиндрические, РГС-25 Общество с ограниченной ответственностью "ТАИФ-НК АЗС" (ООО "ТАИФ-НК АЗС") (РОССИЯ г. Казань) |
ОТ МП |
5 лет |
|
85443-22 |
Резервуары стальные горизонтальные цилиндрические, РГС-25 Общество с ограниченной ответственностью "ТАИФ-НК АЗС" (ООО "ТАИФ-НК АЗС") (РОССИЯ г. Казань) |
ОТ МП |
5 лет |
|
85444-22 |
Резервуары стальные горизонтальные цилиндрические, РГС-25 Общество с ограниченной ответственностью "ТАИФ-НК АЗС" (ООО "ТАИФ-НК АЗС") (РОССИЯ г. Казань) |
ОТ МП |
5 лет |
|
85445-22 |
Резервуары стальные горизонтальные цилиндрические, РГС-25 Общество с ограниченной ответственностью "ТАИФ-НК АЗС" (ООО "ТАИФ-НК АЗС") (РОССИЯ г. Казань) |
ОТ МП |
5 лет |
|
85446-22 |
Резервуар стальной горизонтальный цилиндрический, РГС-25 Общество с ограниченной ответственностью "ТАИФ-НК АЗС" (ООО "ТАИФ-НК АЗС") (РОССИЯ г. Казань) |
ОТ МП |
5 лет |
|
85447-22 |
Резервуары стальные горизонтальные цилиндрические, РГС-50 Общество с ограниченной ответственностью "ТАИФ-НК АЗС" (ООО "ТАИФ-НК АЗС") (РОССИЯ г. Казань) |
ОТ МП |
5 лет |
|
85791-22 |
Резервуар стальной горизонтальный цилиндрический, РГС-10 Общество с ограниченной ответственностью "ТАИФ-НК АЗС" (ООО "ТАИФ-НК АЗС") (РОССИЯ г. Казань) |
ОТ МП |
5 лет |
|
85823-22 |
Резервуар стальной горизонтальный цилиндрический, РГС-25 Общество с ограниченной ответственностью "ТАИФ-НК АЗС" (ООО "ТАИФ-НК АЗС") (РОССИЯ г. Казань) |
ОТ МП |
5 лет |
|
85824-22 |
Резервуар стальной горизонтальный цилиндрический, РГС-70 Общество с ограниченной ответственностью "ТАИФ-НК АЗС" (ООО "ТАИФ-НК АЗС") (РОССИЯ г. Казань) |
ОТ МП |
5 лет |
|
85842-22 |
Резервуары стальные горизонтальные цилиндрические, РГС-60 Общество с ограниченной ответственностью "ТАИФ-НК АЗС" (ООО "ТАИФ-НК АЗС") (РОССИЯ г. Казань) |
ОТ МП |
5 лет |
|
85843-22 |
Резервуары стальные горизонтальные цилиндрические, РГС-50 Общество с ограниченной ответственностью "ТАИФ-НК АЗС" (ООО "ТАИФ-НК АЗС") (РОССИЯ г. Казань) |
ОТ МП |
5 лет |
|
85844-22 |
Резервуары стальные горизонтальные цилиндрические, РГС-25 Общество с ограниченной ответственностью "ТАИФ-НК АЗС" (ООО "ТАИФ-НК АЗС") (РОССИЯ г. Казань) |
ОТ МП |
5 лет |
|
85845-22 |
Резервуары стальные горизонтальные цилиндрические, РГС-25 Общество с ограниченной ответственностью "ТАИФ-НК АЗС" (ООО "ТАИФ-НК АЗС") (РОССИЯ г. Казань) |
ОТ МП |
5 лет |
|
86371-22 |
Резервуары стальные горизонтальные цилиндрические, РГС-60 Общество с ограниченной ответственностью "ТАИФ-НК АЗС" (ООО "ТАИФ-НК АЗС") (РОССИЯ г. Казань) |
ОТ МП |
5 лет |
|
86372-22 |
Резервуар стальной горизонтальный цилиндрический, РГС-15 Общество с ограниченной ответственностью "ТАИФ-НК АЗС" (ООО "ТАИФ-НК АЗС") (РОССИЯ г. Казань) |
ОТ МП |
5 лет |
|
86838-22 |
Резервуар стальной горизонтальный цилиндрический, РГС-50 Общество с ограниченной ответственностью "ТАИФ-НК АЗС" (ООО "ТАИФ-НК АЗС") (РОССИЯ г. Казань) |
ОТ МП |
5 лет |
|
86912-22 |
Резервуары стальные горизонтальные цилиндрические, РГС-25 Общество с ограниченной ответственностью "ТАИФ-НК АЗС" (ООО "ТАИФ-НК АЗС") (РОССИЯ г. Казань) |
ОТ МП |
5 лет |
|
86913-22 |
Резервуары стальные горизонтальные цилиндрические, РГС-60 Общество с ограниченной ответственностью "ТАИФ-НК АЗС" (ООО "ТАИФ-НК АЗС") (РОССИЯ г. Казань) |
ОТ МП |
5 лет |
|
86914-22 |
Резервуары стальные горизонтальные цилиндрические, РГС-25 Общество с ограниченной ответственностью "ТАИФ-НК АЗС" (ООО "ТАИФ-НК АЗС") (РОССИЯ г. Казань) |
ОТ МП |
5 лет |
|
86915-22 |
Резервуары стальные горизонтальные цилиндрические, РГС-25 Общество с ограниченной ответственностью "ТАИФ-НК АЗС" (ООО "ТАИФ-НК АЗС") (РОССИЯ г. Казань) |
ОТ МП |
5 лет |
|
89130-23 |
Резервуар стальной горизонтальный цилиндрический, РГС-50 (25+25) Общество с ограниченной ответственностью "ТАИФ-НК АЗС" (ООО "ТАИФ-НК АЗС") (РОССИЯ г. Казань) |
ОТ МП |
5 лет |
|
89131-23 |
Резервуары стальные горизонтальные цилиндрические, РГС-50 Общество с ограниченной ответственностью "ТАИФ-НК АЗС" (ООО "ТАИФ-НК АЗС") (РОССИЯ г. Казань) |
ОТ МП |
5 лет |
|
89133-23 |
Резервуары стальные горизонтальные цилиндрические, РГС Общество с ограниченной ответственностью "ТАИФ-НК АЗС" (ООО "ТАИФ-НК АЗС") (РОССИЯ г. Казань) |
ОТ МП |
5 лет |
|
89134-23 |
Резервуары стальные горизонтальные цилиндрические, РГС-25 Общество с ограниченной ответственностью "ТАИФ-НК АЗС" (ООО "ТАИФ-НК АЗС") (РОССИЯ г. Казань) |
ОТ МП |
5 лет |
|
89135-23 |
Резервуары стальные горизонтальные цилиндрические, РГС-25 Общество с ограниченной ответственностью "ТАИФ-НК АЗС" (ООО "ТАИФ-НК АЗС") (РОССИЯ г. Казань) |
ОТ МП |
5 лет |
|
89296-23 |
Резервуары стальные горизонтальные цилиндрические, РГС-60 Общество с ограниченной ответственностью "ТАИФ-НК АЗС" (ООО "ТАИФ-НК АЗС") (РОССИЯ г. Казань) |
ОТ МП |
5 лет |
|
89297-23 |
Резервуары стальные горизонтальные цилиндрические, РГС Общество с ограниченной ответственностью "ТАИФ-НК АЗС" (ООО "ТАИФ-НК АЗС") (РОССИЯ г. Казань) |
ОТ МП |
5 лет |
|
89281-23 |
Резервуары стальные горизонтальные цилиндрические, РГС-25 Общество с ограниченной ответственностью "ТАИФ-НК АЗС" (ООО "ТАИФ-НК АЗС") (РОССИЯ г. Казань) |
ОТ МП |
5 лет |
|
89282-23 |
Резервуары стальные горизонтальные цилиндрические, РГС Общество с ограниченной ответственностью "ТАИФ-НК АЗС" (ООО "ТАИФ-НК АЗС") (РОССИЯ г. Казань) |
ОТ МП |
5 лет |
|
89338-23 |
Резервуар стальной горизонтальный цилиндрический, РГС-25 Общество с ограниченной ответственностью "ТАИФ-НК АЗС" (ООО "ТАИФ-НК АЗС") (РОССИЯ г. Казань) |
ОТ МП |
5 лет |
|
89365-23 |
Резервуары стальные горизонтальные цилиндрические, РГС-20 Общество с ограниченной ответственностью "ТАИФ-НК АЗС" (ООО "ТАИФ-НК АЗС") (РОССИЯ г. Казань) |
ОТ МП |
5 лет |
|
89366-23 |
Резервуары стальные горизонтальные цилиндрические, РГС-60 Общество с ограниченной ответственностью "ТАИФ-НК АЗС" (ООО "ТАИФ-НК АЗС") (РОССИЯ г. Казань) |
ОТ МП |
5 лет |
|
89367-23 |
Резервуары стальные горизонтальные цилиндрические, РГС-25 Общество с ограниченной ответственностью "ТАИФ-НК АЗС" (ООО "ТАИФ-НК АЗС") (РОССИЯ г. Казань) |
ОТ МП |
5 лет |
|
89368-23 |
Резервуар стальной горизонтальный цилиндрический, РГС-25 Общество с ограниченной ответственностью "ТАИФ-НК АЗС" (ООО "ТАИФ-НК АЗС") (РОССИЯ г. Казань) |
ОТ МП |
5 лет |
|
89382-23 |
Резервуары стальные горизонтальные цилиндрические, РГС-17 Общество с ограниченной ответственностью "ТАИФ-НК АЗС" (ООО "ТАИФ-НК АЗС") (РОССИЯ г. Казань) |
ОТ МП |
5 лет |
|
89383-23 |
Резервуары стальные горизонтальные цилиндрические, РГС Общество с ограниченной ответственностью "ТАИФ-НК АЗС" (ООО "ТАИФ-НК АЗС") (РОССИЯ г. Казань) |
ОТ МП |
5 лет |
|
89385-23 |
Резервуары стальные горизонтальные цилиндрические, РГС-60 Общество с ограниченной ответственностью "ТАИФ-НК АЗС" (ООО "ТАИФ-НК АЗС") (РОССИЯ г. Казань) |
ОТ МП |
5 лет |
|
89386-23 |
Резервуары стальные горизонтальные цилиндрические, РГС-50 (25+25) Общество с ограниченной ответственностью "ТАИФ-НК АЗС" (ООО "ТАИФ-НК АЗС") (РОССИЯ г. Казань) |
ОТ МП |
5 лет |
|
89387-23 |
Резервуары стальные горизонтальные цилиндрические, РГС Общество с ограниченной ответственностью "ТАИФ-НК АЗС" (ООО "ТАИФ-НК АЗС") (РОССИЯ г. Казань) |
ОТ МП |
5 лет |
|
89388-23 |
Резервуары стальные горизонтальные цилиндрические, РГС-25 Общество с ограниченной ответственностью "ТАИФ-НК АЗС" (ООО "ТАИФ-НК АЗС") (РОССИЯ г. Казань) |
ОТ МП |
5 лет |
|
89389-23 |
Резервуары стальные горизонтальные цилиндрические, РГС Общество с ограниченной ответственностью "ТАИФ-НК АЗС" (ООО "ТАИФ-НК АЗС") (РОССИЯ г. Казань) |
ОТ МП |
5 лет |
|
89390-23 |
Резервуар стальной горизонтальный цилиндрический, РГС-75 Общество с ограниченной ответственностью "ТАИФ-НК АЗС" (ООО "ТАИФ-НК АЗС") (РОССИЯ г. Казань) |
ОТ МП |
5 лет |
|
89391-23 |
Резервуар стальной горизонтальный цилиндрический, РГС-20 Общество с ограниченной ответственностью "ТАИФ-НК АЗС" (ООО "ТАИФ-НК АЗС") (РОССИЯ г. Казань) |
ОТ МП |
5 лет |
|
89392-23 |
Резервуар стальной горизонтальный цилиндрический, РГС-20 Общество с ограниченной ответственностью "ТАИФ-НК АЗС" (ООО "ТАИФ-НК АЗС") (РОССИЯ г. Казань) |
ОТ МП |
5 лет |
|
89424-23 |
Резервуары стальные горизонтальные цилиндрические, РГС Общество с ограниченной ответственностью "ТАИФ-НК АЗС" (ООО "ТАИФ-НК АЗС") (РОССИЯ г. Казань) |
ОТ МП |
5 лет |
|
89425-23 |
Резервуары стальные горизонтальные цилиндрические, РГС Общество с ограниченной ответственностью "ТАИФ-НК АЗС" (ООО "ТАИФ-НК АЗС") (РОССИЯ г. Казань) |
ОТ МП |
5 лет |
|
89426-23 |
Резервуары стальные горизонтальные цилиндрические, РГС Общество с ограниченной ответственностью "ТАИФ-НК АЗС" (ООО "ТАИФ-НК АЗС") (РОССИЯ г. Казань) |
ОТ МП |
5 лет |
|
89427-23 |
Резервуары стальные горизонтальные цилиндрические, РГС-25 Общество с ограниченной ответственностью "ТАИФ-НК АЗС" (ООО "ТАИФ-НК АЗС") (РОССИЯ г. Казань) |
ОТ МП |
5 лет |
|
89428-23 |
Резервуары стальные горизонтальные цилиндрические, РГС Общество с ограниченной ответственностью "ТАИФ-НК АЗС" (ООО "ТАИФ-НК АЗС") (РОССИЯ г. Казань) |
ОТ МП |
5 лет |
|
89445-23 |
Резервуары стальные горизонтальные цилиндрические, РГД 50 (25+25) Общество с ограниченной ответственностью "ТАИФ-НК АЗС" (ООО "ТАИФ-НК АЗС") (РОССИЯ г. Казань) |
ОТ МП |
5 лет |
|
89446-23 |
Резервуары стальные горизонтальные цилиндрические, РГС Общество с ограниченной ответственностью "ТАИФ-НК АЗС" (ООО "ТАИФ-НК АЗС") (РОССИЯ г. Казань) |
ОТ МП |
5 лет |
|
89447-23 |
Резервуары стальные горизонтальные цилиндрические, РГС-25 Общество с ограниченной ответственностью "ТАИФ-НК АЗС" (ООО "ТАИФ-НК АЗС") (РОССИЯ г. Казань) |
ОТ МП |
5 лет |
|
89448-23 |
Резервуары стальные горизонтальные цилиндрические, РГС-25 Общество с ограниченной ответственностью "ТАИФ-НК АЗС" (ООО "ТАИФ-НК АЗС") (РОССИЯ г. Казань) |
ОТ МП |
5 лет |
|
89449-23 |
Резервуары стальные горизонтальные цилиндрические, РГС Общество с ограниченной ответственностью "ТАИФ-НК АЗС" (ООО "ТАИФ-НК АЗС") (РОССИЯ г. Казань) |
ОТ МП |
5 лет |
|
89458-23 |
Резервуары стальные горизонтальные цилиндрические, РГД 50 (25+25) Общество с ограниченной ответственностью "ТАИФ-НК АЗС" (ООО "ТАИФ-НК АЗС") (РОССИЯ г. Казань) |
ОТ МП |
5 лет |
|
89459-23 |
Резервуары стальные горизонтальные цилиндрические, РГС-50 Общество с ограниченной ответственностью "ТАИФ-НК АЗС" (ООО "ТАИФ-НК АЗС") (РОССИЯ г. Казань) |
ОТ МП |
5 лет |
|
89460-23 |
Резервуары стальные горизонтальные цилиндрические, РГС-25 Общество с ограниченной ответственностью "ТАИФ-НК АЗС" (ООО "ТАИФ-НК АЗС") (РОССИЯ г. Казань) |
ОТ МП |
5 лет |
|
89461-23 |
Резервуары стальные горизонтальные цилиндрические, РГС-25 Общество с ограниченной ответственностью "ТАИФ-НК АЗС" (ООО "ТАИФ-НК АЗС") (РОССИЯ г. Казань) |
ОТ МП |
5 лет |
|
89475-23 |
Резервуары стальные горизонтальные цилиндрические, РГС-25 Общество с ограниченной ответственностью "ТАИФ-НК АЗС" (ООО "ТАИФ-НК АЗС") (РОССИЯ г. Казань) |
ОТ МП |
5 лет |
|
89506-23 |
Резервуары стальные горизонтальные цилиндрические, РГС Общество с ограниченной ответственностью "ТАИФ-НК АЗС" (ООО "ТАИФ-НК АЗС") (РОССИЯ г. Казань) |
ОТ МП |
5 лет |
|
89507-23 |
Резервуары стальные горизонтальные цилиндрические, РГС Общество с ограниченной ответственностью "ТАИФ-НК АЗС" (ООО "ТАИФ-НК АЗС") (РОССИЯ г. Казань) |
ОТ МП |
5 лет |
|
89508-23 |
Резервуары стальные горизонтальные цилиндрические, РГС Общество с ограниченной ответственностью "ТАИФ-НК АЗС" (ООО "ТАИФ-НК АЗС") (РОССИЯ г. Казань) |
ОТ МП |
5 лет |
|
89509-23 |
Резервуары стальные горизонтальные цилиндрические, РГД 50 Общество с ограниченной ответственностью "ТАИФ-НК АЗС" (ООО "ТАИФ-НК АЗС") (РОССИЯ г. Казань) |
ОТ МП |
5 лет |
|
90564-23 |
Резервуары стальные горизонтальные цилиндрические, РГС-25 Общество с ограниченной ответственностью "ТАИФ-НК АЗС" (ООО "ТАИФ-НК АЗС") (РОССИЯ г. Казань) |
ОТ МП |
5 лет |
|
90565-23 |
Резервуары стальные горизонтальные цилиндрические, РГС-25 Общество с ограниченной ответственностью "ТАИФ-НК АЗС" (ООО "ТАИФ-НК АЗС") (РОССИЯ г. Казань) |
ОТ МП |
5 лет |
|
90580-23 |
Резервуары стальные горизонтальные цилиндрические, РГС Общество с ограниченной ответственностью "ТАИФ-НК АЗС" (ООО "ТАИФ-НК АЗС") (РОССИЯ г. Казань) |
ОТ МП |
5 лет |
|
90581-23 |
Резервуары стальные горизонтальные цилиндрические, РГС-25 Общество с ограниченной ответственностью "ТАИФ-НК АЗС" (ООО "ТАИФ-НК АЗС") (РОССИЯ г. Казань) |
ОТ МП |
5 лет |
|
90582-23 |
Резервуары стальные горизонтальные цилиндрические, РГС-25 Общество с ограниченной ответственностью "ТАИФ-НК АЗС" (ООО "ТАИФ-НК АЗС") (РОССИЯ г. Казань) |
ОТ МП |
5 лет |
|
92536-24 |
Резервуары стальные горизонтальные цилиндрические, РГС Общество с ограниченной ответственностью "ТАИФ-НК АЗС" (ООО "ТАИФ-НК АЗС") (РОССИЯ г. Казань) |
ОТ МП |
5 лет |
|
92537-24 |
Резервуары стальные горизонтальные цилиндрические, РГС-55 Общество с ограниченной ответственностью "ТАИФ-НК АЗС" (ООО "ТАИФ-НК АЗС") (РОССИЯ г. Казань) |
ОТ МП |
5 лет |
|
92538-24 |
Резервуары стальные горизонтальные цилиндрические, РГС Общество с ограниченной ответственностью "ТАИФ-НК АЗС" (ООО "ТАИФ-НК АЗС") (РОССИЯ г. Казань) |
ОТ МП |
5 лет |
|
92539-24 |
Резервуары стальные горизонтальные цилиндрические, РГС-25 Общество с ограниченной ответственностью "ТАИФ-НК АЗС" (ООО "ТАИФ-НК АЗС") (РОССИЯ г. Казань) |
ОТ МП |
5 лет |
|
92564-24 |
Резервуары стальные горизонтальные цилиндрические, РГС Общество с ограниченной ответственностью "ТАИФ-НК АЗС" (ООО "ТАИФ-НК АЗС") (РОССИЯ г. Казань) |
ОТ МП |
5 лет |
|
92580-24 |
Резервуары стальные горизонтальные цилиндрические, РГС-60 Общество с ограниченной ответственностью "ТАИФ-НК АЗС" (ООО "ТАИФ-НК АЗС") (РОССИЯ г. Казань) |
ОТ МП |
5 лет |
|
92581-24 |
Резервуары стальные горизонтальные цилиндрические, РГС-63 Общество с ограниченной ответственностью "ТАИФ-НК АЗС" (ООО "ТАИФ-НК АЗС") (РОССИЯ г. Казань) |
ОТ МП |
5 лет |
|
92582-24 |
Резервуары стальные горизонтальные цилиндрические, РГС-25 Общество с ограниченной ответственностью "ТАИФ-НК АЗС" (ООО "ТАИФ-НК АЗС") (РОССИЯ г. Казань) |
ОТ МП |
5 лет |
|
92583-24 |
Резервуары стальные горизонтальные цилиндрические, РГС-28 Общество с ограниченной ответственностью "ТАИФ-НК АЗС" (ООО "ТАИФ-НК АЗС") (РОССИЯ г. Казань) |
ОТ МП |
5 лет |
|
92584-24 |
Резервуары стальные горизонтальные цилиндрические, РГС Общество с ограниченной ответственностью "ТАИФ-НК АЗС" (ООО "ТАИФ-НК АЗС") (РОССИЯ г. Казань) |
ОТ МП |
5 лет |
|
92585-24 |
Резервуары стальные горизонтальные цилиндрические, РГС-25 Общество с ограниченной ответственностью "ТАИФ-НК АЗС" (ООО "ТАИФ-НК АЗС") (РОССИЯ г. Казань) |
ОТ МП |
5 лет |
|
92586-24 |
Резервуары стальные горизонтальные цилиндрические, РГС-25 Общество с ограниченной ответственностью "ТАИФ-НК АЗС" (ООО "ТАИФ-НК АЗС") (РОССИЯ г. Казань) |
ОТ МП |
5 лет |
|
92587-24 |
Резервуары стальные горизонтальные цилиндрические, РГС-50 Общество с ограниченной ответственностью "ТАИФ-НК АЗС" (ООО "ТАИФ-НК АЗС") (РОССИЯ г. Казань) |
ОТ МП |
5 лет |
|
92596-24 |
Резервуары стальные горизонтальные цилиндрические, РГС-25 Общество с ограниченной ответственностью "ТАИФ-НК АЗС" (ООО "ТАИФ-НК АЗС") (РОССИЯ г. Казань) |
ОТ МП |
5 лет |
|
92597-24 |
Резервуары стальные горизонтальные цилиндрические, РГС-25 Общество с ограниченной ответственностью "ТАИФ-НК АЗС" (ООО "ТАИФ-НК АЗС") (РОССИЯ г. Казань) |
ОТ МП |
5 лет |
|
92598-24 |
Резервуары стальные горизонтальные цилиндрические, РГС Общество с ограниченной ответственностью "ТАИФ-НК АЗС" (ООО "ТАИФ-НК АЗС") (РОССИЯ г. Казань) |
ОТ МП |
5 лет |
|
92599-24 |
Резервуары стальные горизонтальные цилиндрические, РГС-25 Общество с ограниченной ответственностью "ТАИФ-НК АЗС" (ООО "ТАИФ-НК АЗС") (РОССИЯ г. Казань) |
ОТ МП |
5 лет |
|
92615-24 |
Резервуары стальные горизонтальные цилиндрические, РГС-63 Общество с ограниченной ответственностью "ТАИФ-НК АЗС" (ООО "ТАИФ-НК АЗС") (РОССИЯ г. Казань) |
ОТ МП |
5 лет |
|
92616-24 |
Резервуары стальные горизонтальные цилиндрические, РГС-63 Общество с ограниченной ответственностью "ТАИФ-НК АЗС" (ООО "ТАИФ-НК АЗС") (РОССИЯ г. Казань) |
ОТ МП |
5 лет |
|
92651-24 |
Резервуары стальные горизонтальные цилиндрические, РГС-25 Общество с ограниченной ответственностью "ТАИФ-НК АЗС" (ООО "ТАИФ-НК АЗС") (РОССИЯ г. Казань) |
ОТ МП |
5 лет |
|
92652-24 |
Резервуары стальные горизонтальные цилиндрические, РГС-40 Общество с ограниченной ответственностью "ТАИФ-НК АЗС" (ООО "ТАИФ-НК АЗС") (РОССИЯ г. Казань) |
ОТ МП |
5 лет |
|
92653-24 |
Резервуары стальные горизонтальные цилиндрические, РГС-25 Общество с ограниченной ответственностью "ТАИФ-НК АЗС" (ООО "ТАИФ-НК АЗС") (РОССИЯ г. Казань) |
ОТ МП |
5 лет |
|
92654-24 |
Резервуары стальные горизонтальные цилиндрические, РГС Общество с ограниченной ответственностью "ТАИФ-НК АЗС" (ООО "ТАИФ-НК АЗС") (РОССИЯ г. Казань) |
ОТ МП |
5 лет |
|
92695-24 |
Резервуары стальные горизонтальные цилиндрические, РГС Общество с ограниченной ответственностью "ТАИФ-НК АЗС" (ООО "ТАИФ-НК АЗС") (РОССИЯ г. Казань) |
ОТ МП |
5 лет |
|
92696-24 |
Резервуары стальные горизонтальные цилиндрические, РГС Общество с ограниченной ответственностью "ТАИФ-НК АЗС" (ООО "ТАИФ-НК АЗС") (РОССИЯ г. Казань) |
ОТ МП |
5 лет |
|
92697-24 |
Резервуары стальные горизонтальные цилиндрические, РГС-30 Общество с ограниченной ответственностью "ТАИФ-НК АЗС" (ООО "ТАИФ-НК АЗС") (РОССИЯ г. Казань) |
ОТ МП |
5 лет |
|
92700-24 |
Резервуары стальные горизонтальные цилиндрические, РГС-25 Общество с ограниченной ответственностью "ТАИФ-НК АЗС" (ООО "ТАИФ-НК АЗС") (РОССИЯ г. Казань) |
ОТ МП |
5 лет |
|
92745-24 |
Резервуары стальные горизонтальные цилиндрические, РГС-25 Общество с ограниченной ответственностью "ТАИФ-НК АЗС" (ООО "ТАИФ-НК АЗС") (РОССИЯ г. Казань) |
ОТ МП |
5 лет |
|
92746-24 |
Резервуары стальные горизонтальные цилиндрические, РГС Общество с ограниченной ответственностью "ТАИФ-НК АЗС" (ООО "ТАИФ-НК АЗС") (РОССИЯ г. Казань) |
ОТ МП |
5 лет |
|
92747-24 |
Резервуары стальные горизонтальные цилиндрические, РГС Общество с ограниченной ответственностью "ТАИФ-НК АЗС" (ООО "ТАИФ-НК АЗС") (РОССИЯ г. Казань) |
ОТ МП |
5 лет |
|
92763-24 |
Резервуары стальные горизонтальные цилиндрические, РГС-20 Общество с ограниченной ответственностью "ТАИФ-НК АЗС" (ООО "ТАИФ-НК АЗС") (РОССИЯ г. Казань) |
ОТ МП |
5 лет |
|
92774-24 |
Резервуары стальные горизонтальные цилиндрические, РГС-25 Общество с ограниченной ответственностью "ТАИФ-НК АЗС" (ООО "ТАИФ-НК АЗС") (РОССИЯ г. Казань) |
ОТ МП |
5 лет |
|
92775-24 |
Резервуары стальные горизонтальные цилиндрические, РГС-25 Общество с ограниченной ответственностью "ТАИФ-НК АЗС" (ООО "ТАИФ-НК АЗС") (РОССИЯ г. Казань) |
ОТ МП |
5 лет |
|
92940-24 |
Резервуары стальные горизонтальные цилиндрические, РГС Общество с ограниченной ответственностью "ТАИФ-НК АЗС" (ООО "ТАИФ-НК АЗС") (РОССИЯ г. Казань) |
ОТ МП |
5 лет |
|
92952-24 |
Резервуары стальные горизонтальные цилиндрические, РГС-25 Общество с ограниченной ответственностью "ТАИФ-НК АЗС" (ООО "ТАИФ-НК АЗС") (РОССИЯ г. Казань) |
ОТ МП |
5 лет |
|
92940-24 |
Резервуары стальные горизонтальные цилиндрические, РГС Общество с ограниченной ответственностью "ТАИФ-НК АЗС" (ООО "ТАИФ-НК АЗС") (РОССИЯ г. Казань) |
ОТ МП |
5 лет |
|
92952-24 |
Резервуары стальные горизонтальные цилиндрические, РГС-25 Общество с ограниченной ответственностью "ТАИФ-НК АЗС" (ООО "ТАИФ-НК АЗС") (РОССИЯ г. Казань) |
ОТ МП |
5 лет |
|
93126-24 |
Резервуары стальные горизонтальные цилиндрические, РГС-25 Общество с ограниченной ответственностью "ТАИФ-НК АЗС" (ООО "ТАИФ-НК АЗС") (РОССИЯ г. Казань) |
ОТ МП |
5 лет |
|
93144-24 |
Резервуары стальные горизонтальные цилиндрические, РГС-53 Общество с ограниченной ответственностью "ТАИФ-НК АЗС" (ООО "ТАИФ-НК АЗС") (РОССИЯ г. Казань) |
ОТ МП |
5 лет |
|
93145-24 |
Резервуары стальные горизонтальные цилиндрические, РГС-25 Общество с ограниченной ответственностью "ТАИФ-НК АЗС" (ООО "ТАИФ-НК АЗС") (РОССИЯ г. Казань) |
ОТ МП |
5 лет |
|
93146-24 |
Резервуары стальные горизонтальные цилиндрические, РГС Общество с ограниченной ответственностью "ТАИФ-НК АЗС" (ООО "ТАИФ-НК АЗС") (РОССИЯ г. Казань) |
ОТ МП |
5 лет |
|
94492-25 |
Резервуары стальные горизонтальные цилиндрические, РГС Общество с ограниченной ответственностью "ТАИФ-НК АЗС" (ООО "ТАИФ-НК АЗС") (РОССИЯ г. Казань) |
ОТ МП |
5 лет |
|
94512-25 |
Резервуары стальные горизонтальные цилиндрические, РГС Общество с ограниченной ответственностью "ТАИФ-НК АЗС" (ООО "ТАИФ-НК АЗС") (РОССИЯ г. Казань) |
ОТ МП |
5 лет |
|
94587-25 |
Резервуары стальные горизонтальные цилиндрические, РГС Общество с ограниченной ответственностью "ТАИФ-НК АЗС" (ООО "ТАИФ-НК АЗС") (РОССИЯ г. Казань) |
ОТ МП |
5 лет |
|
94588-25 |
Резервуары стальные горизонтальные цилиндрические, РГС-50 Общество с ограниченной ответственностью "ТАИФ-НК АЗС" (ООО "ТАИФ-НК АЗС") (РОССИЯ г. Казань) |
ОТ МП |
5 лет |
|
94589-25 |
Резервуары стальные горизонтальные цилиндрические, РГС-25 Общество с ограниченной ответственностью "ТАИФ-НК АЗС" (ООО "ТАИФ-НК АЗС") (РОССИЯ г. Казань) |
ОТ МП |
5 лет |
|
94590-25 |
Резервуары стальные горизонтальные цилиндрические, РГС Общество с ограниченной ответственностью "ТАИФ-НК АЗС" (ООО "ТАИФ-НК АЗС") (РОССИЯ г. Казань) |
ОТ МП |
5 лет |
|
94591-25 |
Резервуары стальные горизонтальные цилиндрические, РГС Общество с ограниченной ответственностью "ТАИФ-НК АЗС" (ООО "ТАИФ-НК АЗС") (РОССИЯ г. Казань) |
ОТ МП |
5 лет |
|
94592-25 |
Резервуары стальные горизонтальные цилиндрические, РГС-50 Общество с ограниченной ответственностью "ТАИФ-НК АЗС" (ООО "ТАИФ-НК АЗС") (РОССИЯ г. Казань) |
ОТ МП |
5 лет |
|
94593-25 |
Резервуары стальные горизонтальные цилиндрические, РГС Общество с ограниченной ответственностью "ТАИФ-НК АЗС" (ООО "ТАИФ-НК АЗС") (РОССИЯ г. Казань) |
ОТ МП |
5 лет |
|
94564-25 |
Резервуары стальные горизонтальные цилиндрические, РГС-20 Общество с ограниченной ответственностью "ТАИФ-НК АЗС" (ООО "ТАИФ-НК АЗС") (РОССИЯ г. Казань) |
ОТ МП |
5 лет |
|
94565-25 |
Резервуары стальные горизонтальные цилиндрические, РГС-30 Общество с ограниченной ответственностью "ТАИФ-НК АЗС" (ООО "ТАИФ-НК АЗС") (РОССИЯ г. Казань) |
ОТ МП |
5 лет |
|
94566-25 |
Резервуары стальные горизонтальные цилиндрические, РГС-25 Общество с ограниченной ответственностью "ТАИФ-НК АЗС" (ООО "ТАИФ-НК АЗС") (РОССИЯ г. Казань) |
ОТ МП |
5 лет |
|
94605-25 |
Резервуары стальные горизонтальные цилиндрические, РГС-25 Общество с ограниченной ответственностью "ТАИФ-НК АЗС" (ООО "ТАИФ-НК АЗС") (РОССИЯ г. Казань) |
ОТ МП |
5 лет |
|
94606-25 |
Резервуары стальные горизонтальные цилиндрические, РГС-25 Общество с ограниченной ответственностью "ТАИФ-НК АЗС" (ООО "ТАИФ-НК АЗС") (РОССИЯ г. Казань) |
ОТ МП |
5 лет |
|
94607-25 |
Резервуары стальные горизонтальные цилиндрические, РГС Общество с ограниченной ответственностью "ТАИФ-НК АЗС" (ООО "ТАИФ-НК АЗС") (РОССИЯ г. Казань) |
ОТ МП |
5 лет |
|
94608-25 |
Резервуары стальные горизонтальные цилиндрические, РГС-50 Общество с ограниченной ответственностью "ТАИФ-НК АЗС" (ООО "ТАИФ-НК АЗС") (РОССИЯ г. Казань) |
ОТ МП |
5 лет |
|
94609-25 |
Резервуары стальные горизонтальные цилиндрические, РГС Общество с ограниченной ответственностью "ТАИФ-НК АЗС" (ООО "ТАИФ-НК АЗС") (РОССИЯ г. Казань) |
ОТ МП |
5 лет |
|
94610-25 |
Резервуары стальные горизонтальные цилиндрические, РГС Общество с ограниченной ответственностью "ТАИФ-НК АЗС" (ООО "ТАИФ-НК АЗС") (РОССИЯ г. Казань) |
ОТ МП |
5 лет |
|
94835-25 |
Резервуары стальные горизонтальные цилиндрические, РГС-25 Общество с ограниченной ответственностью "ТАИФ-НК АЗС" (ООО "ТАИФ-НК АЗС") (РОССИЯ г. Казань) |
ОТ МП |
5 лет |
|
94836-25 |
Резервуары стальные горизонтальные цилиндрические, РГС Общество с ограниченной ответственностью "ТАИФ-НК АЗС" (ООО "ТАИФ-НК АЗС") (РОССИЯ г. Казань) |
ОТ МП |
5 лет |
|
94854-25 |
Резервуары стальные горизонтальные цилиндрические, РГС-25 Общество с ограниченной ответственностью "ТАИФ-НК АЗС" (ООО "ТАИФ-НК АЗС") (РОССИЯ г. Казань) |
ОТ МП |
5 лет |
|
94855-25 |
Резервуары стальные горизонтальные цилиндрические, РГС-25 Общество с ограниченной ответственностью "ТАИФ-НК АЗС" (ООО "ТАИФ-НК АЗС") (РОССИЯ г. Казань) |
ОТ МП |
5 лет |
|
94856-25 |
Резервуары стальные горизонтальные цилиндрические, РГС Общество с ограниченной ответственностью "ТАИФ-НК АЗС" (ООО "ТАИФ-НК АЗС") (РОССИЯ г. Казань) |
ОТ МП |
5 лет |
|
94857-25 |
Резервуары стальные горизонтальные цилиндрические, РГС Общество с ограниченной ответственностью "ТАИФ-НК АЗС" (ООО "ТАИФ-НК АЗС") (РОССИЯ г. Казань) |
ОТ МП |
5 лет |
|
94871-25 |
Резервуары стальные горизонтальные цилиндрические, РГС-25 Общество с ограниченной ответственностью "ТАИФ-НК АЗС" (ООО "ТАИФ-НК АЗС") (РОССИЯ г. Казань) |
ОТ МП |
5 лет |
|
94872-25 |
Резервуары стальные горизонтальные цилиндрические, РГС-25 Общество с ограниченной ответственностью "ТАИФ-НК АЗС" (ООО "ТАИФ-НК АЗС") (РОССИЯ г. Казань) |
ОТ МП |
5 лет |
|
94873-25 |
Резервуары стальные горизонтальные цилиндрические, РГС-25 Общество с ограниченной ответственностью "ТАИФ-НК АЗС" (ООО "ТАИФ-НК АЗС") (РОССИЯ г. Казань) |
ОТ МП |
5 лет |
|
94888-25 |
Резервуары стальные горизонтальные цилиндрические, РГС-15 Общество с ограниченной ответственностью "ТАИФ-НК АЗС" (ООО "ТАИФ-НК АЗС") (РОССИЯ г. Казань) |
ОТ МП |
5 лет |
|
94889-25 |
Резервуары стальные горизонтальные цилиндрические, РГС-25 Общество с ограниченной ответственностью "ТАИФ-НК АЗС" (ООО "ТАИФ-НК АЗС") (РОССИЯ г. Казань) |
ОТ МП |
5 лет |
|
94890-25 |
Резервуары стальные горизонтальные цилиндрические, РГС-25 Общество с ограниченной ответственностью "ТАИФ-НК АЗС" (ООО "ТАИФ-НК АЗС") (РОССИЯ г. Казань) |
ОТ МП |
5 лет |
|
94909-25 |
Резервуары стальные горизонтальные цилиндрические, РГС-50 Общество с ограниченной ответственностью "ТАИФ-НК АЗС" (ООО "ТАИФ-НК АЗС") (РОССИЯ г. Казань) |
ОТ МП |
5 лет |
|
94947-25 |
Резервуары стальные горизонтальные цилиндрические, РГС-20 Общество с ограниченной ответственностью "ТАИФ-НК АЗС" (ООО "ТАИФ-НК АЗС") (РОССИЯ г. Казань) |
ОТ МП |
5 лет |
|
94972-25 |
Резервуары стальные горизонтальные цилиндрические, РГС Общество с ограниченной ответственностью "ТАИФ-НК АЗС" (ООО "ТАИФ-НК АЗС") (РОССИЯ г. Казань) |
ОТ МП |
5 лет |
|
95093-25 |
Резервуары стальные горизонтальные цилиндрические, РГС-25 Общество с ограниченной ответственностью "ТАИФ-НК АЗС" (ООО "ТАИФ-НК АЗС") (РОССИЯ г. Казань) |
ОТ МП |
5 лет |
|
95094-25 |
Резервуары стальные горизонтальные цилиндрические, РГС Общество с ограниченной ответственностью "ТАИФ-НК АЗС" (ООО "ТАИФ-НК АЗС") (РОССИЯ г. Казань) |
ОТ МП |
5 лет |
|
95095-25 |
Резервуары стальные горизонтальные цилиндрические, РГС-50 Общество с ограниченной ответственностью "ТАИФ-НК АЗС" (ООО "ТАИФ-НК АЗС") (РОССИЯ г. Казань) |
ОТ МП |
5 лет |
|
95096-25 |
Резервуары стальные горизонтальные цилиндрические, РГС-60 Общество с ограниченной ответственностью "ТАИФ-НК АЗС" (ООО "ТАИФ-НК АЗС") (РОССИЯ г. Казань) |
ОТ МП |
5 лет |
|
95097-25 |
Резервуары стальные горизонтальные цилиндрические, РГС-25 Общество с ограниченной ответственностью "ТАИФ-НК АЗС" (ООО "ТАИФ-НК АЗС") (РОССИЯ г. Казань) |
ОТ МП |
5 лет |
В отчете предоставлена информация по географии распределения эталонов единиц величин по территории РФ и видам измерений.
Предусмотрено выделение 11 видов измерений:
- Акустические величины
- Давление, вакуум
- Оптические и оптико-физические
- Теплофизика, температура
- Время, частота
- Ионизирующие излучения и ядерные константы
- Поток, расход, уровень, объем веществ
- Электрические и магнитные величины, радиоэлектроника
- Геометрические величины
- Механические величины
- Состав и свойства веществ
Географическая привязка эталонов осуществляется к конкретному городу, региону или федеральному округу РФ. Количественные данные об эталонах представлены как штуках, так и в процентном соотношении.
В качестве источника данных были использованы два реестра ФГИС АРШИН: реестр эталонов единиц величин - https://fgis.gost.ru/fundmetrology/registry/11 и реестр средств измерений, применяемых в качестве эталонов - https://fgis.gost.ru/fundmetrology/cm/etalons/296436.
Отчет состоит из 12 графиков и 2 таблиц, разнесённых по информационным блокам. Графики являются интерактивными с возможностью масштабирования и экспорта в сторонние программы. Первый блок содержит сводную статистическую информацию об эталонах. Отдельно для аттестованных эталонов и отдельно для средств измерений, применяемых в качестве эталонов. Далее, следуют два информационных блока с привязкой к региону РФ или Федеральному округу.
В завершении отчета приведена сводная таблица, данные из которой можно использовать для самостоятельной обработки данных.
Кто поверяет Резервуары стальные горизонтальные цилиндрические (РГС-25)
| Наименование организации | Cтатус | Поверенные модификации | Кол-во поверок | Поверок в 2026 году | Первичных поверок | Периодических поверок | Извещений | Для юриков | Для юриков первичные | Для юриков периодические |
|---|---|---|---|---|---|---|---|---|---|---|
| ООО "МЕТРОКОНТ" (RA.RU.311686) | 5 | 5 | 0 | 0 | 0 | 0 | 0 |
Стоимость поверки Резервуары стальные горизонтальные цилиндрические (РГС-25)
| Организация, регион | Стоимость, руб | Средняя стоимость |
|---|
Знак утверждения типа
Знак утверждения типа наносится на титульный лист паспорта резервуара типографским способом.Сведения о методиках измерений
Сведения о методиках (методах) измерений приведены в пункте 8 паспорта на резервуар.Нормативные и технические документы
Нормативные документы, устанавливающие требования к резервуарам стальным горизонтальным цилиндрическим РГС-25Приказ Росстандарта № 256 от 7 февраля 2018 г. «Об утверждении Государственной поверочной схемы для средств измерений массы и объема жидкости в потоке, объема жидкости и вместимости при статических измерениях, массового и объемного расходов жидкости»
Изготовитель
Общество с ограниченной ответственностью «ТАИФ-НК АЗС»(ООО «ТАИФ-НК АЗС»)
ИНН 1639028805
Адрес: 420111, г. Казань, ул. Астрономическая, д. 5/19, кабинет 56
Телефон: +7 (843) 237-63-26
Web-сайт: taifazs.ru
E-mail: office@taif-azs.ru
Испытательный центр
Общество с ограниченной ответственностью «МетроКонТ» (ООО «МетроКонТ»)Адрес: 420132, г. Казань, ул. Адоратского, д. 39Б, офис 51
Телефон: +7 9372834420
Факс +7 (843) 515-00-21 E-mail: trifonovua@mail.ru
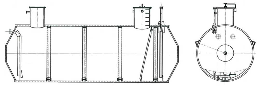
Тип резервуаров - стальные горизонтальные цилиндрические, номинальной вместимостью 25 м3 подземного расположения.
Принцип действия резервуаров основан на заполнении их нефтепродуктом до определенного уровня, соответствующего заданному значению объема.
Резервуары представляют собой горизонтально расположенный цилиндрический стальной сосуд с днищами.
Заполнение и выдача продукта осуществляется через приемно-раздаточные патрубки.
Заводские номера резервуаров наносятся на крышку люка резервуара.
Резервуары РГС-25 с заводскими номерами 1, 2, 3, 4, 5 расположены по адресу: Менделеевский район, Р320, 21 км, слева, а/д Елабуга - Ижевск 15 км +500 м, АЗС №244 ООО «ТАИФ-НК АЗС».
Общий вид резервуаров РГС-25 представлен на рисунках 1, 2, 3.
Нанесение знака поверки на средство измерений не предусмотрено.
Рисунок 1 - Общий вид резервуаров РГС-25
Рисунок 2 - Общий вид резервуаров РГС-25
Рисунок 3 - Общий вид резервуаров РГС-25
Пломбирование резервуаров РГС-25 не предусмотрено.
Таблица 3 -
|
Наименование |
Обозначение |
Количество |
|
Резервуар стальной горизонтальный цилиндрический |
РГС-25 |
1 шт. |
|
Паспорт |
- |
1 экз. |
|
Градуировочная таблица |
- |
1 экз. |
Таблица 1 - Метрологические характеристики
|
Наименование характеристики |
Значение |
|
Номинальная вместимость, м3 |
25 |
|
Пределы допускаемой относительной погрешности определения вместимости, % |
±0,25 |
Таблица 2 - Основные технические характеристики
|
Наименование характеристики |
Значение |
|
Условия эксплуатации: | |
|
Температура окружающего воздуха, оС |
от -50 до +50 |
|
Атмосферное давление, кПа |
от 84,0 до 106,7 |
|
Средний срок службы, лет, не менее |
20 |

