Номер по Госреестру СИ: 85436-22
85436-22 Резервуары стальные горизонтальные цилиндрические
(РГС-25)
Назначение средства измерений:
Резервуары стальные горизонтальные цилиндрические РГС-25 (далее - резервуары) предназначены для измерения объема нефтепродуктов, а также для их приема, хранения и отпуска.

Внешний вид.
Резервуары стальные горизонтальные цилиндрические
Рисунок № 1

Внешний вид.
Резервуары стальные горизонтальные цилиндрические
Рисунок № 2
Общие сведения
Дата публикации - 11.05.2022
Срок свидетельства -
Номер записи - 187460
ID в реестре СИ - 1399331
Тип производства - единичное
Описание типа
Поверка
Интервал между поверками по ОТ - 5 лет
Наличие периодической поверки - Да
Методика поверки
Модификации СИ
Нет модификации,
Производитель
Изготовитель - Общество с ограниченной ответственностью "ТАИФ-НК АЗС" (ООО "ТАИФ-НК АЗС")
Страна - РОССИЯ
Населенный пункт - г. Казань
Уведомление о начале осуществления предпринимательской деятельности -
Иркутск - город в России, административный центр Иркутской области, образует отдельное муниципальное образование Иркутск со статусом городского округа как единственный населенный пункт в его составе.
Население города составляет 617 264 человек, шестой по величине город в Сибири, двадцать пятый по величине город в России.
Расположен в Восточной Сибири, на берегах реки Ангары, при впадении в нее реки Иркут. Климат резко континентальный со значительными перепадами температур. Из-за близости к сейсмически активному Байкальскому разлому слабые землетрясения происходят регулярно.
Крупный научно-образовательный центр с более чем ста тысячами студентов. Промышленность включает авиастроение, гидроэнергетику и производство продуктов питания. Транспортный узел на Транссибирской магистрали и федеральных трассах "Байкал" и "Сибирь".
В Иркутске расположены офисы Восточно-Сибирской железной дороги, Иркутскэнерго, Востсибуголь, Иркутской нефтяной компании; главный офис Байкальского банка Сбербанка России. Научно-исследовательский центр "Иргиредмет" оказывает поддержку в добыче и переработке металлических руд и алмазов.
Отчет "Анализ рынка поверки в Иркутске" предоставляет исчерпывающую информацию по деятельности организаций, аккредитованных в Национальной системе аккредитации на право поверки средств измерений в городе Иркутск.
При проведении исследований были введены следующие ограничения:
- в отчете присутствуют организации с первичными или периодическими поверками от 100 шт. с 2017 года и действующими аттестатами аккредитации на текущий год;
- на первом и втором этапах фильтром отсекаются типы СИ с менее чем 10 поверками в год на организацию;
- на первом и втором этапах фильтром отсекаются типы СИ с менее чем 10 поверками в год на организацию;
- место регистрации или осуществления деятельности организаций должно совпадать с выбранным городом;
- топ типов СИ ограничен 500 позициями по каждой организации (сортировка по убыванию количества поверок);
- топ типов СИ ограничен 100 позициями по каждой организации при поиске по видам измерений (сортировка по убыванию количества поверок).
Содержание отчета:
- Список организаций-поверителей, осуществляющих поверку в городе Москва по данным ФСА и ФГИС АРШИН.
- Объемы первичных и периодических поверок за период с 2017г. по н.в.
- Информация о местах осуществления деятельности организаций-поверителей.
- Доля рынка поверок в % среди всех организаций, исследуемого города (предоставление информации в графическом и табличном видах).
- Детальный анализ по каждой из организации, работающей в выбранном городе.
- Анализ деятельности в разрезе первичных, периодических поверок и видов измерений.
- Количество поверок по типам СИ в динамике по годам.
- Индикация импортных аналогов средств поверки (в соответствии с ПЕРЕЧЕНЕМ СИ ОТЕЧЕСТВЕННОГО ПРОИЗВОДСТВА, АНАЛОГИЧНЫХ СРЕДСТВАМ ИЗМЕРЕНИЙ ИМПОРТНОГО ПРОИЗВОДСТВА от 09.2022г)
- Индикация типов СИ по ПП РФ №250 от 20.04.2010 г.
- Быстрый анализ контрагентов организаций-поверителей.
- Анализ цен на поверку СИ по Фед. округу.
Статистика
Кол-во поверок - 2
Выдано извещений - 0
Кол-во периодических поверок - 0
Кол-во средств измерений - 2
Кол-во владельцев - 1
Усредненный год выпуска СИ - 0
МПИ по поверкам - 1825 дн.
Приказы РСТ, где упоминается данный тип СИ
№1081 от 2022.04.27 ПРИКАЗ_Об утверждении типов средств измерений (16)
Наличие аналогов СИ: Резервуары стальные горизонтальные цилиндрические (РГС-25)
| ИМПОРТНОЕ СИ № в реестре, наименование СИ, обозначение, изголовитель |
ОТЕЧЕСТВЕННЫЙ АНАЛОГ № в реестре, наименование СИ, обозначение, изголовитель |
|---|
Все средства измерений Общество с ограниченной ответственностью "ТАИФ-НК АЗС" (ООО "ТАИФ-НК АЗС")
|
№ в реестре cрок св-ва |
Наименование СИ, обозначение, изголовитель | ОТ, МП | МПИ |
|---|---|---|---|
|
85115-22 |
Резервуары стальные горизонтальные цилиндрические, РГС-60 Общество с ограниченной ответственностью "ТАИФ-НК АЗС" (ООО "ТАИФ-НК АЗС") (РОССИЯ г. Казань) |
ОТ МП |
5 лет |
|
85116-22 |
Резервуары стальные горизонтальные цилиндрические, РГС-60 Общество с ограниченной ответственностью "ТАИФ-НК АЗС" (ООО "ТАИФ-НК АЗС") (РОССИЯ г. Казань) |
ОТ МП |
5 лет |
|
85117-22 |
Резервуары стальные горизонтальные цилиндрические, РГС-25 Общество с ограниченной ответственностью "ТАИФ-НК АЗС" (ООО "ТАИФ-НК АЗС") (РОССИЯ г. Казань) |
ОТ МП |
5 лет |
|
85118-22 |
Резервуары стальные горизонтальные цилиндрические, РГС-25 Общество с ограниченной ответственностью "ТАИФ-НК АЗС" (ООО "ТАИФ-НК АЗС") (РОССИЯ г. Казань) |
ОТ МП |
5 лет |
|
85119-22 |
Резервуары стальные горизонтальные цилиндрические, РГС-50 Общество с ограниченной ответственностью "ТАИФ-НК АЗС" (ООО "ТАИФ-НК АЗС") (РОССИЯ г. Казань) |
ОТ МП |
5 лет |
|
85120-22 |
Резервуары стальные горизонтальные цилиндрические, РГС-25 Общество с ограниченной ответственностью "ТАИФ-НК АЗС" (ООО "ТАИФ-НК АЗС") (РОССИЯ г. Казань) |
ОТ МП |
5 лет |
|
85121-22 |
Резервуары стальные горизонтальные цилиндрические, РГС-25 Общество с ограниченной ответственностью "ТАИФ-НК АЗС" (ООО "ТАИФ-НК АЗС") (РОССИЯ г. Казань) |
ОТ МП |
5 лет |
|
85122-22 |
Резервуары стальные горизонтальные цилиндрические, РГС-25 Общество с ограниченной ответственностью "ТАИФ-НК АЗС" (ООО "ТАИФ-НК АЗС") (РОССИЯ г. Казань) |
ОТ МП |
5 лет |
|
85123-22 |
Резервуары стальные горизонтальные цилиндрические, РГС-30 Общество с ограниченной ответственностью "ТАИФ-НК АЗС" (ООО "ТАИФ-НК АЗС") (РОССИЯ г. Казань) |
ОТ МП |
5 лет |
|
85124-22 |
Резервуары стальные горизонтальные цилиндрические, РГС-50 Общество с ограниченной ответственностью "ТАИФ-НК АЗС" (ООО "ТАИФ-НК АЗС") (РОССИЯ г. Казань) |
ОТ МП |
5 лет |
|
85125-22 |
Резервуары стальные горизонтальные цилиндрические, РГС-25 Общество с ограниченной ответственностью "ТАИФ-НК АЗС" (ООО "ТАИФ-НК АЗС") (РОССИЯ г. Казань) |
ОТ МП |
5 лет |
|
85126-22 |
Резервуары стальные горизонтальные цилиндрические, РГС-60 Общество с ограниченной ответственностью "ТАИФ-НК АЗС" (ООО "ТАИФ-НК АЗС") (РОССИЯ г. Казань) |
ОТ МП |
5 лет |
|
85127-22 |
Резервуар стальной горизонтальный цилиндрический, РГС-50 Общество с ограниченной ответственностью "ТАИФ-НК АЗС" (ООО "ТАИФ-НК АЗС") (РОССИЯ г. Казань) |
ОТ МП |
5 лет |
|
85158-22 |
Резервуары стальные горизонтальные цилиндрические, РГС-50 Общество с ограниченной ответственностью "ТАИФ-НК АЗС" (ООО "ТАИФ-НК АЗС") (РОССИЯ г. Казань) |
ОТ МП |
5 лет |
|
85429-22 |
Резервуары стальные горизонтальные цилиндрические, РГС-25 Общество с ограниченной ответственностью "ТАИФ-НК АЗС" (ООО "ТАИФ-НК АЗС") (РОССИЯ г. Казань) |
ОТ МП |
5 лет |
|
85431-22 |
Резервуары стальные горизонтальные цилиндрические, РГС-50 Общество с ограниченной ответственностью "ТАИФ-НК АЗС" (ООО "ТАИФ-НК АЗС") (РОССИЯ г. Казань) |
ОТ МП |
5 |
|
85432-22 |
Резервуар стальной горизонтальный цилиндрический, РГС-25 Общество с ограниченной ответственностью "ТАИФ-НК АЗС" (ООО "ТАИФ-НК АЗС") (РОССИЯ г. Казань) |
ОТ МП |
5 лет |
|
85433-22 |
Резервуар стальной горизонтальный цилиндрический, РГС-40 Общество с ограниченной ответственностью "ТАИФ-НК АЗС" (ООО "ТАИФ-НК АЗС") (РОССИЯ г. Казань) |
ОТ МП |
5 лет |
|
85434-22 |
Резервуар стальной горизонтальный цилиндрический, РГС-25 Общество с ограниченной ответственностью "ТАИФ-НК АЗС" (ООО "ТАИФ-НК АЗС") (РОССИЯ г. Казань) |
ОТ МП |
5 лет |
|
85435-22 |
Резервуар стальной горизонтальный цилиндрический, РГС-30 Общество с ограниченной ответственностью "ТАИФ-НК АЗС" (ООО "ТАИФ-НК АЗС") (РОССИЯ г. Казань) |
ОТ МП |
5 лет |
|
85436-22 |
Резервуары стальные горизонтальные цилиндрические, РГС-25 Общество с ограниченной ответственностью "ТАИФ-НК АЗС" (ООО "ТАИФ-НК АЗС") (РОССИЯ г. Казань) |
ОТ МП |
5 лет |
|
85437-22 |
Резервуары стальные горизонтальные цилиндрические, РГС-25 Общество с ограниченной ответственностью "ТАИФ-НК АЗС" (ООО "ТАИФ-НК АЗС") (РОССИЯ г. Казань) |
ОТ МП |
5 лет |
|
85443-22 |
Резервуары стальные горизонтальные цилиндрические, РГС-25 Общество с ограниченной ответственностью "ТАИФ-НК АЗС" (ООО "ТАИФ-НК АЗС") (РОССИЯ г. Казань) |
ОТ МП |
5 лет |
|
85444-22 |
Резервуары стальные горизонтальные цилиндрические, РГС-25 Общество с ограниченной ответственностью "ТАИФ-НК АЗС" (ООО "ТАИФ-НК АЗС") (РОССИЯ г. Казань) |
ОТ МП |
5 лет |
|
85445-22 |
Резервуары стальные горизонтальные цилиндрические, РГС-25 Общество с ограниченной ответственностью "ТАИФ-НК АЗС" (ООО "ТАИФ-НК АЗС") (РОССИЯ г. Казань) |
ОТ МП |
5 лет |
|
85446-22 |
Резервуар стальной горизонтальный цилиндрический, РГС-25 Общество с ограниченной ответственностью "ТАИФ-НК АЗС" (ООО "ТАИФ-НК АЗС") (РОССИЯ г. Казань) |
ОТ МП |
5 лет |
|
85447-22 |
Резервуары стальные горизонтальные цилиндрические, РГС-50 Общество с ограниченной ответственностью "ТАИФ-НК АЗС" (ООО "ТАИФ-НК АЗС") (РОССИЯ г. Казань) |
ОТ МП |
5 лет |
|
85791-22 |
Резервуар стальной горизонтальный цилиндрический, РГС-10 Общество с ограниченной ответственностью "ТАИФ-НК АЗС" (ООО "ТАИФ-НК АЗС") (РОССИЯ г. Казань) |
ОТ МП |
5 лет |
|
85823-22 |
Резервуар стальной горизонтальный цилиндрический, РГС-25 Общество с ограниченной ответственностью "ТАИФ-НК АЗС" (ООО "ТАИФ-НК АЗС") (РОССИЯ г. Казань) |
ОТ МП |
5 лет |
|
85824-22 |
Резервуар стальной горизонтальный цилиндрический, РГС-70 Общество с ограниченной ответственностью "ТАИФ-НК АЗС" (ООО "ТАИФ-НК АЗС") (РОССИЯ г. Казань) |
ОТ МП |
5 лет |
|
85842-22 |
Резервуары стальные горизонтальные цилиндрические, РГС-60 Общество с ограниченной ответственностью "ТАИФ-НК АЗС" (ООО "ТАИФ-НК АЗС") (РОССИЯ г. Казань) |
ОТ МП |
5 лет |
|
85843-22 |
Резервуары стальные горизонтальные цилиндрические, РГС-50 Общество с ограниченной ответственностью "ТАИФ-НК АЗС" (ООО "ТАИФ-НК АЗС") (РОССИЯ г. Казань) |
ОТ МП |
5 лет |
|
85844-22 |
Резервуары стальные горизонтальные цилиндрические, РГС-25 Общество с ограниченной ответственностью "ТАИФ-НК АЗС" (ООО "ТАИФ-НК АЗС") (РОССИЯ г. Казань) |
ОТ МП |
5 лет |
|
85845-22 |
Резервуары стальные горизонтальные цилиндрические, РГС-25 Общество с ограниченной ответственностью "ТАИФ-НК АЗС" (ООО "ТАИФ-НК АЗС") (РОССИЯ г. Казань) |
ОТ МП |
5 лет |
|
86371-22 |
Резервуары стальные горизонтальные цилиндрические, РГС-60 Общество с ограниченной ответственностью "ТАИФ-НК АЗС" (ООО "ТАИФ-НК АЗС") (РОССИЯ г. Казань) |
ОТ МП |
5 лет |
|
86372-22 |
Резервуар стальной горизонтальный цилиндрический, РГС-15 Общество с ограниченной ответственностью "ТАИФ-НК АЗС" (ООО "ТАИФ-НК АЗС") (РОССИЯ г. Казань) |
ОТ МП |
5 лет |
|
86838-22 |
Резервуар стальной горизонтальный цилиндрический, РГС-50 Общество с ограниченной ответственностью "ТАИФ-НК АЗС" (ООО "ТАИФ-НК АЗС") (РОССИЯ г. Казань) |
ОТ МП |
5 лет |
|
86912-22 |
Резервуары стальные горизонтальные цилиндрические, РГС-25 Общество с ограниченной ответственностью "ТАИФ-НК АЗС" (ООО "ТАИФ-НК АЗС") (РОССИЯ г. Казань) |
ОТ МП |
5 лет |
|
86913-22 |
Резервуары стальные горизонтальные цилиндрические, РГС-60 Общество с ограниченной ответственностью "ТАИФ-НК АЗС" (ООО "ТАИФ-НК АЗС") (РОССИЯ г. Казань) |
ОТ МП |
5 лет |
|
86914-22 |
Резервуары стальные горизонтальные цилиндрические, РГС-25 Общество с ограниченной ответственностью "ТАИФ-НК АЗС" (ООО "ТАИФ-НК АЗС") (РОССИЯ г. Казань) |
ОТ МП |
5 лет |
|
86915-22 |
Резервуары стальные горизонтальные цилиндрические, РГС-25 Общество с ограниченной ответственностью "ТАИФ-НК АЗС" (ООО "ТАИФ-НК АЗС") (РОССИЯ г. Казань) |
ОТ МП |
5 лет |
|
89130-23 |
Резервуар стальной горизонтальный цилиндрический, РГС-50 (25+25) Общество с ограниченной ответственностью "ТАИФ-НК АЗС" (ООО "ТАИФ-НК АЗС") (РОССИЯ г. Казань) |
ОТ МП |
5 лет |
|
89131-23 |
Резервуары стальные горизонтальные цилиндрические, РГС-50 Общество с ограниченной ответственностью "ТАИФ-НК АЗС" (ООО "ТАИФ-НК АЗС") (РОССИЯ г. Казань) |
ОТ МП |
5 лет |
|
89133-23 |
Резервуары стальные горизонтальные цилиндрические, РГС Общество с ограниченной ответственностью "ТАИФ-НК АЗС" (ООО "ТАИФ-НК АЗС") (РОССИЯ г. Казань) |
ОТ МП |
5 лет |
|
89134-23 |
Резервуары стальные горизонтальные цилиндрические, РГС-25 Общество с ограниченной ответственностью "ТАИФ-НК АЗС" (ООО "ТАИФ-НК АЗС") (РОССИЯ г. Казань) |
ОТ МП |
5 лет |
|
89135-23 |
Резервуары стальные горизонтальные цилиндрические, РГС-25 Общество с ограниченной ответственностью "ТАИФ-НК АЗС" (ООО "ТАИФ-НК АЗС") (РОССИЯ г. Казань) |
ОТ МП |
5 лет |
|
89296-23 |
Резервуары стальные горизонтальные цилиндрические, РГС-60 Общество с ограниченной ответственностью "ТАИФ-НК АЗС" (ООО "ТАИФ-НК АЗС") (РОССИЯ г. Казань) |
ОТ МП |
5 лет |
|
89297-23 |
Резервуары стальные горизонтальные цилиндрические, РГС Общество с ограниченной ответственностью "ТАИФ-НК АЗС" (ООО "ТАИФ-НК АЗС") (РОССИЯ г. Казань) |
ОТ МП |
5 лет |
|
89281-23 |
Резервуары стальные горизонтальные цилиндрические, РГС-25 Общество с ограниченной ответственностью "ТАИФ-НК АЗС" (ООО "ТАИФ-НК АЗС") (РОССИЯ г. Казань) |
ОТ МП |
5 лет |
|
89282-23 |
Резервуары стальные горизонтальные цилиндрические, РГС Общество с ограниченной ответственностью "ТАИФ-НК АЗС" (ООО "ТАИФ-НК АЗС") (РОССИЯ г. Казань) |
ОТ МП |
5 лет |
|
89338-23 |
Резервуар стальной горизонтальный цилиндрический, РГС-25 Общество с ограниченной ответственностью "ТАИФ-НК АЗС" (ООО "ТАИФ-НК АЗС") (РОССИЯ г. Казань) |
ОТ МП |
5 лет |
|
89365-23 |
Резервуары стальные горизонтальные цилиндрические, РГС-20 Общество с ограниченной ответственностью "ТАИФ-НК АЗС" (ООО "ТАИФ-НК АЗС") (РОССИЯ г. Казань) |
ОТ МП |
5 лет |
|
89366-23 |
Резервуары стальные горизонтальные цилиндрические, РГС-60 Общество с ограниченной ответственностью "ТАИФ-НК АЗС" (ООО "ТАИФ-НК АЗС") (РОССИЯ г. Казань) |
ОТ МП |
5 лет |
|
89367-23 |
Резервуары стальные горизонтальные цилиндрические, РГС-25 Общество с ограниченной ответственностью "ТАИФ-НК АЗС" (ООО "ТАИФ-НК АЗС") (РОССИЯ г. Казань) |
ОТ МП |
5 лет |
|
89368-23 |
Резервуар стальной горизонтальный цилиндрический, РГС-25 Общество с ограниченной ответственностью "ТАИФ-НК АЗС" (ООО "ТАИФ-НК АЗС") (РОССИЯ г. Казань) |
ОТ МП |
5 лет |
|
89382-23 |
Резервуары стальные горизонтальные цилиндрические, РГС-17 Общество с ограниченной ответственностью "ТАИФ-НК АЗС" (ООО "ТАИФ-НК АЗС") (РОССИЯ г. Казань) |
ОТ МП |
5 лет |
|
89383-23 |
Резервуары стальные горизонтальные цилиндрические, РГС Общество с ограниченной ответственностью "ТАИФ-НК АЗС" (ООО "ТАИФ-НК АЗС") (РОССИЯ г. Казань) |
ОТ МП |
5 лет |
|
89385-23 |
Резервуары стальные горизонтальные цилиндрические, РГС-60 Общество с ограниченной ответственностью "ТАИФ-НК АЗС" (ООО "ТАИФ-НК АЗС") (РОССИЯ г. Казань) |
ОТ МП |
5 лет |
|
89386-23 |
Резервуары стальные горизонтальные цилиндрические, РГС-50 (25+25) Общество с ограниченной ответственностью "ТАИФ-НК АЗС" (ООО "ТАИФ-НК АЗС") (РОССИЯ г. Казань) |
ОТ МП |
5 лет |
|
89387-23 |
Резервуары стальные горизонтальные цилиндрические, РГС Общество с ограниченной ответственностью "ТАИФ-НК АЗС" (ООО "ТАИФ-НК АЗС") (РОССИЯ г. Казань) |
ОТ МП |
5 лет |
|
89388-23 |
Резервуары стальные горизонтальные цилиндрические, РГС-25 Общество с ограниченной ответственностью "ТАИФ-НК АЗС" (ООО "ТАИФ-НК АЗС") (РОССИЯ г. Казань) |
ОТ МП |
5 лет |
|
89389-23 |
Резервуары стальные горизонтальные цилиндрические, РГС Общество с ограниченной ответственностью "ТАИФ-НК АЗС" (ООО "ТАИФ-НК АЗС") (РОССИЯ г. Казань) |
ОТ МП |
5 лет |
|
89390-23 |
Резервуар стальной горизонтальный цилиндрический, РГС-75 Общество с ограниченной ответственностью "ТАИФ-НК АЗС" (ООО "ТАИФ-НК АЗС") (РОССИЯ г. Казань) |
ОТ МП |
5 лет |
|
89391-23 |
Резервуар стальной горизонтальный цилиндрический, РГС-20 Общество с ограниченной ответственностью "ТАИФ-НК АЗС" (ООО "ТАИФ-НК АЗС") (РОССИЯ г. Казань) |
ОТ МП |
5 лет |
|
89392-23 |
Резервуар стальной горизонтальный цилиндрический, РГС-20 Общество с ограниченной ответственностью "ТАИФ-НК АЗС" (ООО "ТАИФ-НК АЗС") (РОССИЯ г. Казань) |
ОТ МП |
5 лет |
|
89424-23 |
Резервуары стальные горизонтальные цилиндрические, РГС Общество с ограниченной ответственностью "ТАИФ-НК АЗС" (ООО "ТАИФ-НК АЗС") (РОССИЯ г. Казань) |
ОТ МП |
5 лет |
|
89425-23 |
Резервуары стальные горизонтальные цилиндрические, РГС Общество с ограниченной ответственностью "ТАИФ-НК АЗС" (ООО "ТАИФ-НК АЗС") (РОССИЯ г. Казань) |
ОТ МП |
5 лет |
|
89426-23 |
Резервуары стальные горизонтальные цилиндрические, РГС Общество с ограниченной ответственностью "ТАИФ-НК АЗС" (ООО "ТАИФ-НК АЗС") (РОССИЯ г. Казань) |
ОТ МП |
5 лет |
|
89427-23 |
Резервуары стальные горизонтальные цилиндрические, РГС-25 Общество с ограниченной ответственностью "ТАИФ-НК АЗС" (ООО "ТАИФ-НК АЗС") (РОССИЯ г. Казань) |
ОТ МП |
5 лет |
|
89428-23 |
Резервуары стальные горизонтальные цилиндрические, РГС Общество с ограниченной ответственностью "ТАИФ-НК АЗС" (ООО "ТАИФ-НК АЗС") (РОССИЯ г. Казань) |
ОТ МП |
5 лет |
|
89445-23 |
Резервуары стальные горизонтальные цилиндрические, РГД 50 (25+25) Общество с ограниченной ответственностью "ТАИФ-НК АЗС" (ООО "ТАИФ-НК АЗС") (РОССИЯ г. Казань) |
ОТ МП |
5 лет |
|
89446-23 |
Резервуары стальные горизонтальные цилиндрические, РГС Общество с ограниченной ответственностью "ТАИФ-НК АЗС" (ООО "ТАИФ-НК АЗС") (РОССИЯ г. Казань) |
ОТ МП |
5 лет |
|
89447-23 |
Резервуары стальные горизонтальные цилиндрические, РГС-25 Общество с ограниченной ответственностью "ТАИФ-НК АЗС" (ООО "ТАИФ-НК АЗС") (РОССИЯ г. Казань) |
ОТ МП |
5 лет |
|
89448-23 |
Резервуары стальные горизонтальные цилиндрические, РГС-25 Общество с ограниченной ответственностью "ТАИФ-НК АЗС" (ООО "ТАИФ-НК АЗС") (РОССИЯ г. Казань) |
ОТ МП |
5 лет |
|
89449-23 |
Резервуары стальные горизонтальные цилиндрические, РГС Общество с ограниченной ответственностью "ТАИФ-НК АЗС" (ООО "ТАИФ-НК АЗС") (РОССИЯ г. Казань) |
ОТ МП |
5 лет |
|
89458-23 |
Резервуары стальные горизонтальные цилиндрические, РГД 50 (25+25) Общество с ограниченной ответственностью "ТАИФ-НК АЗС" (ООО "ТАИФ-НК АЗС") (РОССИЯ г. Казань) |
ОТ МП |
5 лет |
|
89459-23 |
Резервуары стальные горизонтальные цилиндрические, РГС-50 Общество с ограниченной ответственностью "ТАИФ-НК АЗС" (ООО "ТАИФ-НК АЗС") (РОССИЯ г. Казань) |
ОТ МП |
5 лет |
|
89460-23 |
Резервуары стальные горизонтальные цилиндрические, РГС-25 Общество с ограниченной ответственностью "ТАИФ-НК АЗС" (ООО "ТАИФ-НК АЗС") (РОССИЯ г. Казань) |
ОТ МП |
5 лет |
|
89461-23 |
Резервуары стальные горизонтальные цилиндрические, РГС-25 Общество с ограниченной ответственностью "ТАИФ-НК АЗС" (ООО "ТАИФ-НК АЗС") (РОССИЯ г. Казань) |
ОТ МП |
5 лет |
|
89475-23 |
Резервуары стальные горизонтальные цилиндрические, РГС-25 Общество с ограниченной ответственностью "ТАИФ-НК АЗС" (ООО "ТАИФ-НК АЗС") (РОССИЯ г. Казань) |
ОТ МП |
5 лет |
|
89506-23 |
Резервуары стальные горизонтальные цилиндрические, РГС Общество с ограниченной ответственностью "ТАИФ-НК АЗС" (ООО "ТАИФ-НК АЗС") (РОССИЯ г. Казань) |
ОТ МП |
5 лет |
|
89507-23 |
Резервуары стальные горизонтальные цилиндрические, РГС Общество с ограниченной ответственностью "ТАИФ-НК АЗС" (ООО "ТАИФ-НК АЗС") (РОССИЯ г. Казань) |
ОТ МП |
5 лет |
|
89508-23 |
Резервуары стальные горизонтальные цилиндрические, РГС Общество с ограниченной ответственностью "ТАИФ-НК АЗС" (ООО "ТАИФ-НК АЗС") (РОССИЯ г. Казань) |
ОТ МП |
5 лет |
|
89509-23 |
Резервуары стальные горизонтальные цилиндрические, РГД 50 Общество с ограниченной ответственностью "ТАИФ-НК АЗС" (ООО "ТАИФ-НК АЗС") (РОССИЯ г. Казань) |
ОТ МП |
5 лет |
|
90564-23 |
Резервуары стальные горизонтальные цилиндрические, РГС-25 Общество с ограниченной ответственностью "ТАИФ-НК АЗС" (ООО "ТАИФ-НК АЗС") (РОССИЯ г. Казань) |
ОТ МП |
5 лет |
|
90565-23 |
Резервуары стальные горизонтальные цилиндрические, РГС-25 Общество с ограниченной ответственностью "ТАИФ-НК АЗС" (ООО "ТАИФ-НК АЗС") (РОССИЯ г. Казань) |
ОТ МП |
5 лет |
|
90580-23 |
Резервуары стальные горизонтальные цилиндрические, РГС Общество с ограниченной ответственностью "ТАИФ-НК АЗС" (ООО "ТАИФ-НК АЗС") (РОССИЯ г. Казань) |
ОТ МП |
5 лет |
|
90581-23 |
Резервуары стальные горизонтальные цилиндрические, РГС-25 Общество с ограниченной ответственностью "ТАИФ-НК АЗС" (ООО "ТАИФ-НК АЗС") (РОССИЯ г. Казань) |
ОТ МП |
5 лет |
|
90582-23 |
Резервуары стальные горизонтальные цилиндрические, РГС-25 Общество с ограниченной ответственностью "ТАИФ-НК АЗС" (ООО "ТАИФ-НК АЗС") (РОССИЯ г. Казань) |
ОТ МП |
5 лет |
|
92536-24 |
Резервуары стальные горизонтальные цилиндрические, РГС Общество с ограниченной ответственностью "ТАИФ-НК АЗС" (ООО "ТАИФ-НК АЗС") (РОССИЯ г. Казань) |
ОТ МП |
5 лет |
|
92537-24 |
Резервуары стальные горизонтальные цилиндрические, РГС-55 Общество с ограниченной ответственностью "ТАИФ-НК АЗС" (ООО "ТАИФ-НК АЗС") (РОССИЯ г. Казань) |
ОТ МП |
5 лет |
|
92538-24 |
Резервуары стальные горизонтальные цилиндрические, РГС Общество с ограниченной ответственностью "ТАИФ-НК АЗС" (ООО "ТАИФ-НК АЗС") (РОССИЯ г. Казань) |
ОТ МП |
5 лет |
|
92539-24 |
Резервуары стальные горизонтальные цилиндрические, РГС-25 Общество с ограниченной ответственностью "ТАИФ-НК АЗС" (ООО "ТАИФ-НК АЗС") (РОССИЯ г. Казань) |
ОТ МП |
5 лет |
|
92564-24 |
Резервуары стальные горизонтальные цилиндрические, РГС Общество с ограниченной ответственностью "ТАИФ-НК АЗС" (ООО "ТАИФ-НК АЗС") (РОССИЯ г. Казань) |
ОТ МП |
5 лет |
|
92580-24 |
Резервуары стальные горизонтальные цилиндрические, РГС-60 Общество с ограниченной ответственностью "ТАИФ-НК АЗС" (ООО "ТАИФ-НК АЗС") (РОССИЯ г. Казань) |
ОТ МП |
5 лет |
|
92581-24 |
Резервуары стальные горизонтальные цилиндрические, РГС-63 Общество с ограниченной ответственностью "ТАИФ-НК АЗС" (ООО "ТАИФ-НК АЗС") (РОССИЯ г. Казань) |
ОТ МП |
5 лет |
|
92582-24 |
Резервуары стальные горизонтальные цилиндрические, РГС-25 Общество с ограниченной ответственностью "ТАИФ-НК АЗС" (ООО "ТАИФ-НК АЗС") (РОССИЯ г. Казань) |
ОТ МП |
5 лет |
|
92583-24 |
Резервуары стальные горизонтальные цилиндрические, РГС-28 Общество с ограниченной ответственностью "ТАИФ-НК АЗС" (ООО "ТАИФ-НК АЗС") (РОССИЯ г. Казань) |
ОТ МП |
5 лет |
|
92584-24 |
Резервуары стальные горизонтальные цилиндрические, РГС Общество с ограниченной ответственностью "ТАИФ-НК АЗС" (ООО "ТАИФ-НК АЗС") (РОССИЯ г. Казань) |
ОТ МП |
5 лет |
|
92585-24 |
Резервуары стальные горизонтальные цилиндрические, РГС-25 Общество с ограниченной ответственностью "ТАИФ-НК АЗС" (ООО "ТАИФ-НК АЗС") (РОССИЯ г. Казань) |
ОТ МП |
5 лет |
|
92586-24 |
Резервуары стальные горизонтальные цилиндрические, РГС-25 Общество с ограниченной ответственностью "ТАИФ-НК АЗС" (ООО "ТАИФ-НК АЗС") (РОССИЯ г. Казань) |
ОТ МП |
5 лет |
|
92587-24 |
Резервуары стальные горизонтальные цилиндрические, РГС-50 Общество с ограниченной ответственностью "ТАИФ-НК АЗС" (ООО "ТАИФ-НК АЗС") (РОССИЯ г. Казань) |
ОТ МП |
5 лет |
|
92596-24 |
Резервуары стальные горизонтальные цилиндрические, РГС-25 Общество с ограниченной ответственностью "ТАИФ-НК АЗС" (ООО "ТАИФ-НК АЗС") (РОССИЯ г. Казань) |
ОТ МП |
5 лет |
|
92597-24 |
Резервуары стальные горизонтальные цилиндрические, РГС-25 Общество с ограниченной ответственностью "ТАИФ-НК АЗС" (ООО "ТАИФ-НК АЗС") (РОССИЯ г. Казань) |
ОТ МП |
5 лет |
|
92598-24 |
Резервуары стальные горизонтальные цилиндрические, РГС Общество с ограниченной ответственностью "ТАИФ-НК АЗС" (ООО "ТАИФ-НК АЗС") (РОССИЯ г. Казань) |
ОТ МП |
5 лет |
|
92599-24 |
Резервуары стальные горизонтальные цилиндрические, РГС-25 Общество с ограниченной ответственностью "ТАИФ-НК АЗС" (ООО "ТАИФ-НК АЗС") (РОССИЯ г. Казань) |
ОТ МП |
5 лет |
|
92615-24 |
Резервуары стальные горизонтальные цилиндрические, РГС-63 Общество с ограниченной ответственностью "ТАИФ-НК АЗС" (ООО "ТАИФ-НК АЗС") (РОССИЯ г. Казань) |
ОТ МП |
5 лет |
|
92616-24 |
Резервуары стальные горизонтальные цилиндрические, РГС-63 Общество с ограниченной ответственностью "ТАИФ-НК АЗС" (ООО "ТАИФ-НК АЗС") (РОССИЯ г. Казань) |
ОТ МП |
5 лет |
|
92651-24 |
Резервуары стальные горизонтальные цилиндрические, РГС-25 Общество с ограниченной ответственностью "ТАИФ-НК АЗС" (ООО "ТАИФ-НК АЗС") (РОССИЯ г. Казань) |
ОТ МП |
5 лет |
|
92652-24 |
Резервуары стальные горизонтальные цилиндрические, РГС-40 Общество с ограниченной ответственностью "ТАИФ-НК АЗС" (ООО "ТАИФ-НК АЗС") (РОССИЯ г. Казань) |
ОТ МП |
5 лет |
|
92653-24 |
Резервуары стальные горизонтальные цилиндрические, РГС-25 Общество с ограниченной ответственностью "ТАИФ-НК АЗС" (ООО "ТАИФ-НК АЗС") (РОССИЯ г. Казань) |
ОТ МП |
5 лет |
|
92654-24 |
Резервуары стальные горизонтальные цилиндрические, РГС Общество с ограниченной ответственностью "ТАИФ-НК АЗС" (ООО "ТАИФ-НК АЗС") (РОССИЯ г. Казань) |
ОТ МП |
5 лет |
|
92695-24 |
Резервуары стальные горизонтальные цилиндрические, РГС Общество с ограниченной ответственностью "ТАИФ-НК АЗС" (ООО "ТАИФ-НК АЗС") (РОССИЯ г. Казань) |
ОТ МП |
5 лет |
|
92696-24 |
Резервуары стальные горизонтальные цилиндрические, РГС Общество с ограниченной ответственностью "ТАИФ-НК АЗС" (ООО "ТАИФ-НК АЗС") (РОССИЯ г. Казань) |
ОТ МП |
5 лет |
|
92697-24 |
Резервуары стальные горизонтальные цилиндрические, РГС-30 Общество с ограниченной ответственностью "ТАИФ-НК АЗС" (ООО "ТАИФ-НК АЗС") (РОССИЯ г. Казань) |
ОТ МП |
5 лет |
|
92700-24 |
Резервуары стальные горизонтальные цилиндрические, РГС-25 Общество с ограниченной ответственностью "ТАИФ-НК АЗС" (ООО "ТАИФ-НК АЗС") (РОССИЯ г. Казань) |
ОТ МП |
5 лет |
|
92745-24 |
Резервуары стальные горизонтальные цилиндрические, РГС-25 Общество с ограниченной ответственностью "ТАИФ-НК АЗС" (ООО "ТАИФ-НК АЗС") (РОССИЯ г. Казань) |
ОТ МП |
5 лет |
|
92746-24 |
Резервуары стальные горизонтальные цилиндрические, РГС Общество с ограниченной ответственностью "ТАИФ-НК АЗС" (ООО "ТАИФ-НК АЗС") (РОССИЯ г. Казань) |
ОТ МП |
5 лет |
|
92747-24 |
Резервуары стальные горизонтальные цилиндрические, РГС Общество с ограниченной ответственностью "ТАИФ-НК АЗС" (ООО "ТАИФ-НК АЗС") (РОССИЯ г. Казань) |
ОТ МП |
5 лет |
|
92763-24 |
Резервуары стальные горизонтальные цилиндрические, РГС-20 Общество с ограниченной ответственностью "ТАИФ-НК АЗС" (ООО "ТАИФ-НК АЗС") (РОССИЯ г. Казань) |
ОТ МП |
5 лет |
|
92774-24 |
Резервуары стальные горизонтальные цилиндрические, РГС-25 Общество с ограниченной ответственностью "ТАИФ-НК АЗС" (ООО "ТАИФ-НК АЗС") (РОССИЯ г. Казань) |
ОТ МП |
5 лет |
|
92775-24 |
Резервуары стальные горизонтальные цилиндрические, РГС-25 Общество с ограниченной ответственностью "ТАИФ-НК АЗС" (ООО "ТАИФ-НК АЗС") (РОССИЯ г. Казань) |
ОТ МП |
5 лет |
|
92940-24 |
Резервуары стальные горизонтальные цилиндрические, РГС Общество с ограниченной ответственностью "ТАИФ-НК АЗС" (ООО "ТАИФ-НК АЗС") (РОССИЯ г. Казань) |
ОТ МП |
5 лет |
|
92952-24 |
Резервуары стальные горизонтальные цилиндрические, РГС-25 Общество с ограниченной ответственностью "ТАИФ-НК АЗС" (ООО "ТАИФ-НК АЗС") (РОССИЯ г. Казань) |
ОТ МП |
5 лет |
|
92940-24 |
Резервуары стальные горизонтальные цилиндрические, РГС Общество с ограниченной ответственностью "ТАИФ-НК АЗС" (ООО "ТАИФ-НК АЗС") (РОССИЯ г. Казань) |
ОТ МП |
5 лет |
|
92952-24 |
Резервуары стальные горизонтальные цилиндрические, РГС-25 Общество с ограниченной ответственностью "ТАИФ-НК АЗС" (ООО "ТАИФ-НК АЗС") (РОССИЯ г. Казань) |
ОТ МП |
5 лет |
|
93126-24 |
Резервуары стальные горизонтальные цилиндрические, РГС-25 Общество с ограниченной ответственностью "ТАИФ-НК АЗС" (ООО "ТАИФ-НК АЗС") (РОССИЯ г. Казань) |
ОТ МП |
5 лет |
|
93144-24 |
Резервуары стальные горизонтальные цилиндрические, РГС-53 Общество с ограниченной ответственностью "ТАИФ-НК АЗС" (ООО "ТАИФ-НК АЗС") (РОССИЯ г. Казань) |
ОТ МП |
5 лет |
|
93145-24 |
Резервуары стальные горизонтальные цилиндрические, РГС-25 Общество с ограниченной ответственностью "ТАИФ-НК АЗС" (ООО "ТАИФ-НК АЗС") (РОССИЯ г. Казань) |
ОТ МП |
5 лет |
|
93146-24 |
Резервуары стальные горизонтальные цилиндрические, РГС Общество с ограниченной ответственностью "ТАИФ-НК АЗС" (ООО "ТАИФ-НК АЗС") (РОССИЯ г. Казань) |
ОТ МП |
5 лет |
|
94492-25 |
Резервуары стальные горизонтальные цилиндрические, РГС Общество с ограниченной ответственностью "ТАИФ-НК АЗС" (ООО "ТАИФ-НК АЗС") (РОССИЯ г. Казань) |
ОТ МП |
5 лет |
|
94512-25 |
Резервуары стальные горизонтальные цилиндрические, РГС Общество с ограниченной ответственностью "ТАИФ-НК АЗС" (ООО "ТАИФ-НК АЗС") (РОССИЯ г. Казань) |
ОТ МП |
5 лет |
|
94587-25 |
Резервуары стальные горизонтальные цилиндрические, РГС Общество с ограниченной ответственностью "ТАИФ-НК АЗС" (ООО "ТАИФ-НК АЗС") (РОССИЯ г. Казань) |
ОТ МП |
5 лет |
|
94588-25 |
Резервуары стальные горизонтальные цилиндрические, РГС-50 Общество с ограниченной ответственностью "ТАИФ-НК АЗС" (ООО "ТАИФ-НК АЗС") (РОССИЯ г. Казань) |
ОТ МП |
5 лет |
|
94589-25 |
Резервуары стальные горизонтальные цилиндрические, РГС-25 Общество с ограниченной ответственностью "ТАИФ-НК АЗС" (ООО "ТАИФ-НК АЗС") (РОССИЯ г. Казань) |
ОТ МП |
5 лет |
|
94590-25 |
Резервуары стальные горизонтальные цилиндрические, РГС Общество с ограниченной ответственностью "ТАИФ-НК АЗС" (ООО "ТАИФ-НК АЗС") (РОССИЯ г. Казань) |
ОТ МП |
5 лет |
|
94591-25 |
Резервуары стальные горизонтальные цилиндрические, РГС Общество с ограниченной ответственностью "ТАИФ-НК АЗС" (ООО "ТАИФ-НК АЗС") (РОССИЯ г. Казань) |
ОТ МП |
5 лет |
|
94592-25 |
Резервуары стальные горизонтальные цилиндрические, РГС-50 Общество с ограниченной ответственностью "ТАИФ-НК АЗС" (ООО "ТАИФ-НК АЗС") (РОССИЯ г. Казань) |
ОТ МП |
5 лет |
|
94593-25 |
Резервуары стальные горизонтальные цилиндрические, РГС Общество с ограниченной ответственностью "ТАИФ-НК АЗС" (ООО "ТАИФ-НК АЗС") (РОССИЯ г. Казань) |
ОТ МП |
5 лет |
|
94564-25 |
Резервуары стальные горизонтальные цилиндрические, РГС-20 Общество с ограниченной ответственностью "ТАИФ-НК АЗС" (ООО "ТАИФ-НК АЗС") (РОССИЯ г. Казань) |
ОТ МП |
5 лет |
|
94565-25 |
Резервуары стальные горизонтальные цилиндрические, РГС-30 Общество с ограниченной ответственностью "ТАИФ-НК АЗС" (ООО "ТАИФ-НК АЗС") (РОССИЯ г. Казань) |
ОТ МП |
5 лет |
|
94566-25 |
Резервуары стальные горизонтальные цилиндрические, РГС-25 Общество с ограниченной ответственностью "ТАИФ-НК АЗС" (ООО "ТАИФ-НК АЗС") (РОССИЯ г. Казань) |
ОТ МП |
5 лет |
|
94605-25 |
Резервуары стальные горизонтальные цилиндрические, РГС-25 Общество с ограниченной ответственностью "ТАИФ-НК АЗС" (ООО "ТАИФ-НК АЗС") (РОССИЯ г. Казань) |
ОТ МП |
5 лет |
|
94606-25 |
Резервуары стальные горизонтальные цилиндрические, РГС-25 Общество с ограниченной ответственностью "ТАИФ-НК АЗС" (ООО "ТАИФ-НК АЗС") (РОССИЯ г. Казань) |
ОТ МП |
5 лет |
|
94607-25 |
Резервуары стальные горизонтальные цилиндрические, РГС Общество с ограниченной ответственностью "ТАИФ-НК АЗС" (ООО "ТАИФ-НК АЗС") (РОССИЯ г. Казань) |
ОТ МП |
5 лет |
|
94608-25 |
Резервуары стальные горизонтальные цилиндрические, РГС-50 Общество с ограниченной ответственностью "ТАИФ-НК АЗС" (ООО "ТАИФ-НК АЗС") (РОССИЯ г. Казань) |
ОТ МП |
5 лет |
|
94609-25 |
Резервуары стальные горизонтальные цилиндрические, РГС Общество с ограниченной ответственностью "ТАИФ-НК АЗС" (ООО "ТАИФ-НК АЗС") (РОССИЯ г. Казань) |
ОТ МП |
5 лет |
|
94610-25 |
Резервуары стальные горизонтальные цилиндрические, РГС Общество с ограниченной ответственностью "ТАИФ-НК АЗС" (ООО "ТАИФ-НК АЗС") (РОССИЯ г. Казань) |
ОТ МП |
5 лет |
|
94835-25 |
Резервуары стальные горизонтальные цилиндрические, РГС-25 Общество с ограниченной ответственностью "ТАИФ-НК АЗС" (ООО "ТАИФ-НК АЗС") (РОССИЯ г. Казань) |
ОТ МП |
5 лет |
|
94836-25 |
Резервуары стальные горизонтальные цилиндрические, РГС Общество с ограниченной ответственностью "ТАИФ-НК АЗС" (ООО "ТАИФ-НК АЗС") (РОССИЯ г. Казань) |
ОТ МП |
5 лет |
|
94854-25 |
Резервуары стальные горизонтальные цилиндрические, РГС-25 Общество с ограниченной ответственностью "ТАИФ-НК АЗС" (ООО "ТАИФ-НК АЗС") (РОССИЯ г. Казань) |
ОТ МП |
5 лет |
|
94855-25 |
Резервуары стальные горизонтальные цилиндрические, РГС-25 Общество с ограниченной ответственностью "ТАИФ-НК АЗС" (ООО "ТАИФ-НК АЗС") (РОССИЯ г. Казань) |
ОТ МП |
5 лет |
|
94856-25 |
Резервуары стальные горизонтальные цилиндрические, РГС Общество с ограниченной ответственностью "ТАИФ-НК АЗС" (ООО "ТАИФ-НК АЗС") (РОССИЯ г. Казань) |
ОТ МП |
5 лет |
|
94857-25 |
Резервуары стальные горизонтальные цилиндрические, РГС Общество с ограниченной ответственностью "ТАИФ-НК АЗС" (ООО "ТАИФ-НК АЗС") (РОССИЯ г. Казань) |
ОТ МП |
5 лет |
|
94871-25 |
Резервуары стальные горизонтальные цилиндрические, РГС-25 Общество с ограниченной ответственностью "ТАИФ-НК АЗС" (ООО "ТАИФ-НК АЗС") (РОССИЯ г. Казань) |
ОТ МП |
5 лет |
|
94872-25 |
Резервуары стальные горизонтальные цилиндрические, РГС-25 Общество с ограниченной ответственностью "ТАИФ-НК АЗС" (ООО "ТАИФ-НК АЗС") (РОССИЯ г. Казань) |
ОТ МП |
5 лет |
|
94873-25 |
Резервуары стальные горизонтальные цилиндрические, РГС-25 Общество с ограниченной ответственностью "ТАИФ-НК АЗС" (ООО "ТАИФ-НК АЗС") (РОССИЯ г. Казань) |
ОТ МП |
5 лет |
|
94888-25 |
Резервуары стальные горизонтальные цилиндрические, РГС-15 Общество с ограниченной ответственностью "ТАИФ-НК АЗС" (ООО "ТАИФ-НК АЗС") (РОССИЯ г. Казань) |
ОТ МП |
5 лет |
|
94889-25 |
Резервуары стальные горизонтальные цилиндрические, РГС-25 Общество с ограниченной ответственностью "ТАИФ-НК АЗС" (ООО "ТАИФ-НК АЗС") (РОССИЯ г. Казань) |
ОТ МП |
5 лет |
|
94890-25 |
Резервуары стальные горизонтальные цилиндрические, РГС-25 Общество с ограниченной ответственностью "ТАИФ-НК АЗС" (ООО "ТАИФ-НК АЗС") (РОССИЯ г. Казань) |
ОТ МП |
5 лет |
|
94909-25 |
Резервуары стальные горизонтальные цилиндрические, РГС-50 Общество с ограниченной ответственностью "ТАИФ-НК АЗС" (ООО "ТАИФ-НК АЗС") (РОССИЯ г. Казань) |
ОТ МП |
5 лет |
|
94947-25 |
Резервуары стальные горизонтальные цилиндрические, РГС-20 Общество с ограниченной ответственностью "ТАИФ-НК АЗС" (ООО "ТАИФ-НК АЗС") (РОССИЯ г. Казань) |
ОТ МП |
5 лет |
|
94972-25 |
Резервуары стальные горизонтальные цилиндрические, РГС Общество с ограниченной ответственностью "ТАИФ-НК АЗС" (ООО "ТАИФ-НК АЗС") (РОССИЯ г. Казань) |
ОТ МП |
5 лет |
|
95093-25 |
Резервуары стальные горизонтальные цилиндрические, РГС-25 Общество с ограниченной ответственностью "ТАИФ-НК АЗС" (ООО "ТАИФ-НК АЗС") (РОССИЯ г. Казань) |
ОТ МП |
5 лет |
|
95094-25 |
Резервуары стальные горизонтальные цилиндрические, РГС Общество с ограниченной ответственностью "ТАИФ-НК АЗС" (ООО "ТАИФ-НК АЗС") (РОССИЯ г. Казань) |
ОТ МП |
5 лет |
|
95095-25 |
Резервуары стальные горизонтальные цилиндрические, РГС-50 Общество с ограниченной ответственностью "ТАИФ-НК АЗС" (ООО "ТАИФ-НК АЗС") (РОССИЯ г. Казань) |
ОТ МП |
5 лет |
|
95096-25 |
Резервуары стальные горизонтальные цилиндрические, РГС-60 Общество с ограниченной ответственностью "ТАИФ-НК АЗС" (ООО "ТАИФ-НК АЗС") (РОССИЯ г. Казань) |
ОТ МП |
5 лет |
|
95097-25 |
Резервуары стальные горизонтальные цилиндрические, РГС-25 Общество с ограниченной ответственностью "ТАИФ-НК АЗС" (ООО "ТАИФ-НК АЗС") (РОССИЯ г. Казань) |
ОТ МП |
5 лет |
Отчет позволяет получить информацию по модификациям СИ утвержденных типов:
- наименования модификаций в зависимости от типа СИ;
- количество СИ каждой из модификаций;
- долю СИ, приходящихся на конкретную модификацию от общего количества СИ данного типа.
Кто поверяет Резервуары стальные горизонтальные цилиндрические (РГС-25)
| Наименование организации | Cтатус | Поверенные модификации | Кол-во поверок | Поверок в 2025 году | Первичных поверок | Периодических поверок | Извещений | Для юриков | Для юриков первичные | Для юриков периодические |
|---|---|---|---|---|---|---|---|---|---|---|
| ООО "МЕТРОКОНТ" (RA.RU.311686) | 2 | 2 | 0 | 0 | 0 | 0 | 0 |
Стоимость поверки Резервуары стальные горизонтальные цилиндрические (РГС-25)
| Организация, регион | Стоимость, руб | Средняя стоимость |
|---|
Знак утверждения типа
Знак утверждения типананосится на титульный лист паспорта резервуара типографским способом.
Сведения о методиках измерений
Сведения о методиках (методах) измерений приведены в пункте 8 паспорта на резервуар.Лист № 3 Всего листов 3
Нормативные и технические документы
Нормативные документы, устанавливающие требования к резервуарам стальным горизонтальным цилиндрическим РГС-25
Приказ Росстандарта № 256 от 7 февраля 2018 г. «Об утверждении Государственной поверочной схемы для средств измерений массы и объема жидкости в потоке, объема жидкости и вместимости при статических измерениях, массового и объемного расходов жидкости»
Изготовитель
Общество с ограниченной ответственностью «ТАИФ-НК АЗС» (ООО «ТАИФ-НК АЗС»)ИНН 1639028805
Адрес: 420111, г. Казань, ул. Астрономическая, д. 5/19, кабинет 56 Телефон: +7 (843) 237-63-26
Web-сайт: taifazs.ru
E-mail: office@taif-azs.ru
Испытательный центр
Общество с ограниченной ответственностью «МетроКонТ» (ООО «МетроКонТ») Адрес: 420132, г. Казань, ул. Адоратского, д. 39Б, офис 51Телефон: +7 9372834420
Факс +7 (843) 515-00-21 E-mail: trifonovua@mail.ru
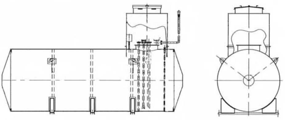
Тип резервуаров - стальные горизонтальные цилиндрические, номинальной вместимостью 25 м3 подземного расположения.
Принцип действия резервуаров основан на заполнении их нефтепродуктом до определенного уровня, соответствующего заданному значению объема.
Резервуары представляют собой горизонтально расположенный цилиндрический стальной сосуд с днищами.
Заполнение и выдача продукта осуществляется через приемно-раздаточные патрубки.
Заводские номера резервуаров наносятся на крышку люка резервуара.
Резервуары РГС-25 с заводскими номерами 1, 2 расположены по адресу: Республика Татарстан, Спасский район, г. Болгар, ул. Лихачева, АЗС №409 ООО «ТАИФ-НК АЗС».
Общий вид резервуаров РГС-25 представлен на рисунках 1, 2.
Нанесение знака поверки на средство измерений не предусмотрено.
Рисунок 1 - Общий вид резервуаров РГС-25
Лист № 2
Всего листов 3
Рисунок 2 - Общий вид резервуаров РГС-25
Пломбирование резервуаров РГС-25 не предусмотрено.
Таблица 3 -
|
Наименование |
Обозначение |
Количество |
|
Резервуар стальной горизонтальный цилиндрический |
РГС-25 |
1 шт. |
|
Паспорт |
- |
1 экз. |
|
Градуировочная таблица |
- |
1 экз. |
Таблица 1 - Метрологические характеристики
|
Наименование характеристики |
Значение |
|
Номинальная вместимость, м3 |
25 |
|
Пределы допускаемой относительной погрешности определения вместимости, % |
±0,25 |
Таблица 2 - Основные технические характеристики
|
Наименование характеристики |
Значение |
|
Условия эксплуатации: | |
|
Температура окружающего воздуха, оС |
от -50 до +50 |
|
Атмосферное давление, кПа |
от 84,0 до 106,7 |
|
Средний срок службы, лет, не менее |
20 |

