Номер по Госреестру СИ: 85431-22
85431-22 Резервуары стальные горизонтальные цилиндрические
(РГС-50)
Назначение средства измерений:
Резервуары стальные горизонтальные цилиндрические РГС-50 (далее - резервуары) предназначены для измерения объема нефтепродуктов, а также для их приема, хранения и отпуска.

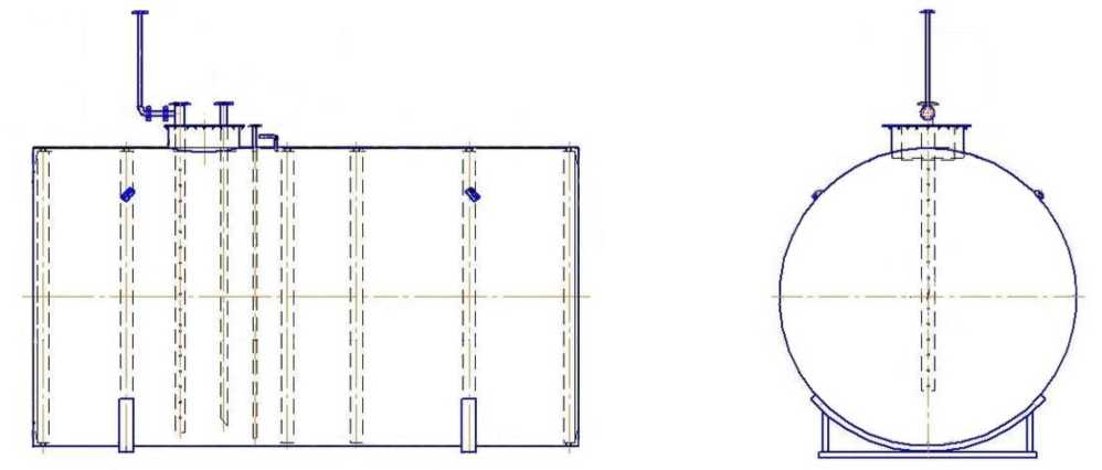
Внешний вид.
Резервуары стальные горизонтальные цилиндрические
Рисунок № 1

Внешний вид.
Резервуары стальные горизонтальные цилиндрические
Рисунок № 2
Общие сведения
Дата публикации - 11.05.2022
Срок свидетельства -
Номер записи - 187455
ID в реестре СИ - 1399326
Тип производства - единичное
Описание типа
Поверка
Интервал между поверками по ОТ - 5
Наличие периодической поверки - Да
Методика поверки
Модификации СИ
Нет модификации,
Производитель
Изготовитель - Общество с ограниченной ответственностью "ТАИФ-НК АЗС" (ООО "ТАИФ-НК АЗС")
Страна - РОССИЯ
Населенный пункт - г. Казань
Уведомление о начале осуществления предпринимательской деятельности -
CR_4. СИ неразрушающего контроля — ООО «Константа»
Аналитический отчет по данным ФГИС «Аршин»: динамика поверок, доли рынка, сравнение с конкурентами и своды по типам СИ.
Комплексный срез рынка поверок средств неразрушающего контроля с фокусом на ООО «Константа». Отчет включает графики, таблицы и сводные показатели, а также Excel-выгрузки для самостоятельного анализа.
Содержание отчета
Общие сведения
- Количество типов СИ, закрепленных за ООО «Константа».
- Динамика работы компании на рынке поверок по годам (2021–2025).
Данные по поверкам
- Разбивка по годам: 2021–2025.
- Первичные и периодические поверки.
- Распределение по юридическим и физическим лицам.
- Сравнительный анализ с другими организациями (например, «АКС» и «Кропус»).
Группы средств измерений
Сводные таблицы по ключевым видам СИ:
- Ультразвуковые, вихретоковые, магнитные методы.
- Твердомеры, микротвердомеры, приборы для измерения блеска.
- Толщиномеры покрытий и др. группы по классификатору ФГИС «Аршин».
Статистика
- Количество выполненных поверок и извещений о непригодности.
- Число владельцев СИ по каждому типу.
- Перечень организаций-поверителей по типам СИ.
Доли организаций в динамике
- Позиции ООО «Константа» относительно конкурентов.
- Доли рынка по годам и тренды изменений.
Визуализация
- Графики динамики поверок по годам и типам СИ.
- Таблицы для отслеживания тенденций развития компании.
Кому полезен отчет
- Руководителям и аналитикам — оценка доли «Константы» и динамики бизнеса.
- Экспертам-метрологам — структура парка СИ и тренды поверок.
- Партнерам/конкурентам — бенчмаркинг по группам СИ и организациям-поверителям.
- Инвесторам/заказчикам — подтвержденная активность и сравнительные показатели.
Статистика
Кол-во поверок - 4
Выдано извещений - 0
Кол-во периодических поверок - 2
Кол-во средств измерений - 2
Кол-во владельцев - 2
Усредненный год выпуска СИ - 0
МПИ по поверкам - 1825 дн.
Приказы РСТ, где упоминается данный тип СИ
№1081 от 2022.04.27 ПРИКАЗ_Об утверждении типов средств измерений (16)
Наличие аналогов СИ: Резервуары стальные горизонтальные цилиндрические (РГС-50)
| ИМПОРТНОЕ СИ № в реестре, наименование СИ, обозначение, изголовитель |
ОТЕЧЕСТВЕННЫЙ АНАЛОГ № в реестре, наименование СИ, обозначение, изголовитель |
|---|
Все средства измерений Общество с ограниченной ответственностью "ТАИФ-НК АЗС" (ООО "ТАИФ-НК АЗС")
|
№ в реестре cрок св-ва |
Наименование СИ, обозначение, изголовитель | ОТ, МП | МПИ |
|---|---|---|---|
|
85115-22 |
Резервуары стальные горизонтальные цилиндрические, РГС-60 Общество с ограниченной ответственностью "ТАИФ-НК АЗС" (ООО "ТАИФ-НК АЗС") (РОССИЯ г. Казань) |
ОТ МП |
5 лет |
|
85116-22 |
Резервуары стальные горизонтальные цилиндрические, РГС-60 Общество с ограниченной ответственностью "ТАИФ-НК АЗС" (ООО "ТАИФ-НК АЗС") (РОССИЯ г. Казань) |
ОТ МП |
5 лет |
|
85117-22 |
Резервуары стальные горизонтальные цилиндрические, РГС-25 Общество с ограниченной ответственностью "ТАИФ-НК АЗС" (ООО "ТАИФ-НК АЗС") (РОССИЯ г. Казань) |
ОТ МП |
5 лет |
|
85118-22 |
Резервуары стальные горизонтальные цилиндрические, РГС-25 Общество с ограниченной ответственностью "ТАИФ-НК АЗС" (ООО "ТАИФ-НК АЗС") (РОССИЯ г. Казань) |
ОТ МП |
5 лет |
|
85119-22 |
Резервуары стальные горизонтальные цилиндрические, РГС-50 Общество с ограниченной ответственностью "ТАИФ-НК АЗС" (ООО "ТАИФ-НК АЗС") (РОССИЯ г. Казань) |
ОТ МП |
5 лет |
|
85120-22 |
Резервуары стальные горизонтальные цилиндрические, РГС-25 Общество с ограниченной ответственностью "ТАИФ-НК АЗС" (ООО "ТАИФ-НК АЗС") (РОССИЯ г. Казань) |
ОТ МП |
5 лет |
|
85121-22 |
Резервуары стальные горизонтальные цилиндрические, РГС-25 Общество с ограниченной ответственностью "ТАИФ-НК АЗС" (ООО "ТАИФ-НК АЗС") (РОССИЯ г. Казань) |
ОТ МП |
5 лет |
|
85122-22 |
Резервуары стальные горизонтальные цилиндрические, РГС-25 Общество с ограниченной ответственностью "ТАИФ-НК АЗС" (ООО "ТАИФ-НК АЗС") (РОССИЯ г. Казань) |
ОТ МП |
5 лет |
|
85123-22 |
Резервуары стальные горизонтальные цилиндрические, РГС-30 Общество с ограниченной ответственностью "ТАИФ-НК АЗС" (ООО "ТАИФ-НК АЗС") (РОССИЯ г. Казань) |
ОТ МП |
5 лет |
|
85124-22 |
Резервуары стальные горизонтальные цилиндрические, РГС-50 Общество с ограниченной ответственностью "ТАИФ-НК АЗС" (ООО "ТАИФ-НК АЗС") (РОССИЯ г. Казань) |
ОТ МП |
5 лет |
|
85125-22 |
Резервуары стальные горизонтальные цилиндрические, РГС-25 Общество с ограниченной ответственностью "ТАИФ-НК АЗС" (ООО "ТАИФ-НК АЗС") (РОССИЯ г. Казань) |
ОТ МП |
5 лет |
|
85126-22 |
Резервуары стальные горизонтальные цилиндрические, РГС-60 Общество с ограниченной ответственностью "ТАИФ-НК АЗС" (ООО "ТАИФ-НК АЗС") (РОССИЯ г. Казань) |
ОТ МП |
5 лет |
|
85127-22 |
Резервуар стальной горизонтальный цилиндрический, РГС-50 Общество с ограниченной ответственностью "ТАИФ-НК АЗС" (ООО "ТАИФ-НК АЗС") (РОССИЯ г. Казань) |
ОТ МП |
5 лет |
|
85158-22 |
Резервуары стальные горизонтальные цилиндрические, РГС-50 Общество с ограниченной ответственностью "ТАИФ-НК АЗС" (ООО "ТАИФ-НК АЗС") (РОССИЯ г. Казань) |
ОТ МП |
5 лет |
|
85429-22 |
Резервуары стальные горизонтальные цилиндрические, РГС-25 Общество с ограниченной ответственностью "ТАИФ-НК АЗС" (ООО "ТАИФ-НК АЗС") (РОССИЯ г. Казань) |
ОТ МП |
5 лет |
|
85431-22 |
Резервуары стальные горизонтальные цилиндрические, РГС-50 Общество с ограниченной ответственностью "ТАИФ-НК АЗС" (ООО "ТАИФ-НК АЗС") (РОССИЯ г. Казань) |
ОТ МП |
5 |
|
85432-22 |
Резервуар стальной горизонтальный цилиндрический, РГС-25 Общество с ограниченной ответственностью "ТАИФ-НК АЗС" (ООО "ТАИФ-НК АЗС") (РОССИЯ г. Казань) |
ОТ МП |
5 лет |
|
85433-22 |
Резервуар стальной горизонтальный цилиндрический, РГС-40 Общество с ограниченной ответственностью "ТАИФ-НК АЗС" (ООО "ТАИФ-НК АЗС") (РОССИЯ г. Казань) |
ОТ МП |
5 лет |
|
85434-22 |
Резервуар стальной горизонтальный цилиндрический, РГС-25 Общество с ограниченной ответственностью "ТАИФ-НК АЗС" (ООО "ТАИФ-НК АЗС") (РОССИЯ г. Казань) |
ОТ МП |
5 лет |
|
85435-22 |
Резервуар стальной горизонтальный цилиндрический, РГС-30 Общество с ограниченной ответственностью "ТАИФ-НК АЗС" (ООО "ТАИФ-НК АЗС") (РОССИЯ г. Казань) |
ОТ МП |
5 лет |
|
85436-22 |
Резервуары стальные горизонтальные цилиндрические, РГС-25 Общество с ограниченной ответственностью "ТАИФ-НК АЗС" (ООО "ТАИФ-НК АЗС") (РОССИЯ г. Казань) |
ОТ МП |
5 лет |
|
85437-22 |
Резервуары стальные горизонтальные цилиндрические, РГС-25 Общество с ограниченной ответственностью "ТАИФ-НК АЗС" (ООО "ТАИФ-НК АЗС") (РОССИЯ г. Казань) |
ОТ МП |
5 лет |
|
85443-22 |
Резервуары стальные горизонтальные цилиндрические, РГС-25 Общество с ограниченной ответственностью "ТАИФ-НК АЗС" (ООО "ТАИФ-НК АЗС") (РОССИЯ г. Казань) |
ОТ МП |
5 лет |
|
85444-22 |
Резервуары стальные горизонтальные цилиндрические, РГС-25 Общество с ограниченной ответственностью "ТАИФ-НК АЗС" (ООО "ТАИФ-НК АЗС") (РОССИЯ г. Казань) |
ОТ МП |
5 лет |
|
85445-22 |
Резервуары стальные горизонтальные цилиндрические, РГС-25 Общество с ограниченной ответственностью "ТАИФ-НК АЗС" (ООО "ТАИФ-НК АЗС") (РОССИЯ г. Казань) |
ОТ МП |
5 лет |
|
85446-22 |
Резервуар стальной горизонтальный цилиндрический, РГС-25 Общество с ограниченной ответственностью "ТАИФ-НК АЗС" (ООО "ТАИФ-НК АЗС") (РОССИЯ г. Казань) |
ОТ МП |
5 лет |
|
85447-22 |
Резервуары стальные горизонтальные цилиндрические, РГС-50 Общество с ограниченной ответственностью "ТАИФ-НК АЗС" (ООО "ТАИФ-НК АЗС") (РОССИЯ г. Казань) |
ОТ МП |
5 лет |
|
85791-22 |
Резервуар стальной горизонтальный цилиндрический, РГС-10 Общество с ограниченной ответственностью "ТАИФ-НК АЗС" (ООО "ТАИФ-НК АЗС") (РОССИЯ г. Казань) |
ОТ МП |
5 лет |
|
85823-22 |
Резервуар стальной горизонтальный цилиндрический, РГС-25 Общество с ограниченной ответственностью "ТАИФ-НК АЗС" (ООО "ТАИФ-НК АЗС") (РОССИЯ г. Казань) |
ОТ МП |
5 лет |
|
85824-22 |
Резервуар стальной горизонтальный цилиндрический, РГС-70 Общество с ограниченной ответственностью "ТАИФ-НК АЗС" (ООО "ТАИФ-НК АЗС") (РОССИЯ г. Казань) |
ОТ МП |
5 лет |
|
85842-22 |
Резервуары стальные горизонтальные цилиндрические, РГС-60 Общество с ограниченной ответственностью "ТАИФ-НК АЗС" (ООО "ТАИФ-НК АЗС") (РОССИЯ г. Казань) |
ОТ МП |
5 лет |
|
85843-22 |
Резервуары стальные горизонтальные цилиндрические, РГС-50 Общество с ограниченной ответственностью "ТАИФ-НК АЗС" (ООО "ТАИФ-НК АЗС") (РОССИЯ г. Казань) |
ОТ МП |
5 лет |
|
85844-22 |
Резервуары стальные горизонтальные цилиндрические, РГС-25 Общество с ограниченной ответственностью "ТАИФ-НК АЗС" (ООО "ТАИФ-НК АЗС") (РОССИЯ г. Казань) |
ОТ МП |
5 лет |
|
85845-22 |
Резервуары стальные горизонтальные цилиндрические, РГС-25 Общество с ограниченной ответственностью "ТАИФ-НК АЗС" (ООО "ТАИФ-НК АЗС") (РОССИЯ г. Казань) |
ОТ МП |
5 лет |
|
86371-22 |
Резервуары стальные горизонтальные цилиндрические, РГС-60 Общество с ограниченной ответственностью "ТАИФ-НК АЗС" (ООО "ТАИФ-НК АЗС") (РОССИЯ г. Казань) |
ОТ МП |
5 лет |
|
86372-22 |
Резервуар стальной горизонтальный цилиндрический, РГС-15 Общество с ограниченной ответственностью "ТАИФ-НК АЗС" (ООО "ТАИФ-НК АЗС") (РОССИЯ г. Казань) |
ОТ МП |
5 лет |
|
86838-22 |
Резервуар стальной горизонтальный цилиндрический, РГС-50 Общество с ограниченной ответственностью "ТАИФ-НК АЗС" (ООО "ТАИФ-НК АЗС") (РОССИЯ г. Казань) |
ОТ МП |
5 лет |
|
86912-22 |
Резервуары стальные горизонтальные цилиндрические, РГС-25 Общество с ограниченной ответственностью "ТАИФ-НК АЗС" (ООО "ТАИФ-НК АЗС") (РОССИЯ г. Казань) |
ОТ МП |
5 лет |
|
86913-22 |
Резервуары стальные горизонтальные цилиндрические, РГС-60 Общество с ограниченной ответственностью "ТАИФ-НК АЗС" (ООО "ТАИФ-НК АЗС") (РОССИЯ г. Казань) |
ОТ МП |
5 лет |
|
86914-22 |
Резервуары стальные горизонтальные цилиндрические, РГС-25 Общество с ограниченной ответственностью "ТАИФ-НК АЗС" (ООО "ТАИФ-НК АЗС") (РОССИЯ г. Казань) |
ОТ МП |
5 лет |
|
86915-22 |
Резервуары стальные горизонтальные цилиндрические, РГС-25 Общество с ограниченной ответственностью "ТАИФ-НК АЗС" (ООО "ТАИФ-НК АЗС") (РОССИЯ г. Казань) |
ОТ МП |
5 лет |
|
89130-23 |
Резервуар стальной горизонтальный цилиндрический, РГС-50 (25+25) Общество с ограниченной ответственностью "ТАИФ-НК АЗС" (ООО "ТАИФ-НК АЗС") (РОССИЯ г. Казань) |
ОТ МП |
5 лет |
|
89131-23 |
Резервуары стальные горизонтальные цилиндрические, РГС-50 Общество с ограниченной ответственностью "ТАИФ-НК АЗС" (ООО "ТАИФ-НК АЗС") (РОССИЯ г. Казань) |
ОТ МП |
5 лет |
|
89133-23 |
Резервуары стальные горизонтальные цилиндрические, РГС Общество с ограниченной ответственностью "ТАИФ-НК АЗС" (ООО "ТАИФ-НК АЗС") (РОССИЯ г. Казань) |
ОТ МП |
5 лет |
|
89134-23 |
Резервуары стальные горизонтальные цилиндрические, РГС-25 Общество с ограниченной ответственностью "ТАИФ-НК АЗС" (ООО "ТАИФ-НК АЗС") (РОССИЯ г. Казань) |
ОТ МП |
5 лет |
|
89135-23 |
Резервуары стальные горизонтальные цилиндрические, РГС-25 Общество с ограниченной ответственностью "ТАИФ-НК АЗС" (ООО "ТАИФ-НК АЗС") (РОССИЯ г. Казань) |
ОТ МП |
5 лет |
|
89296-23 |
Резервуары стальные горизонтальные цилиндрические, РГС-60 Общество с ограниченной ответственностью "ТАИФ-НК АЗС" (ООО "ТАИФ-НК АЗС") (РОССИЯ г. Казань) |
ОТ МП |
5 лет |
|
89297-23 |
Резервуары стальные горизонтальные цилиндрические, РГС Общество с ограниченной ответственностью "ТАИФ-НК АЗС" (ООО "ТАИФ-НК АЗС") (РОССИЯ г. Казань) |
ОТ МП |
5 лет |
|
89281-23 |
Резервуары стальные горизонтальные цилиндрические, РГС-25 Общество с ограниченной ответственностью "ТАИФ-НК АЗС" (ООО "ТАИФ-НК АЗС") (РОССИЯ г. Казань) |
ОТ МП |
5 лет |
|
89282-23 |
Резервуары стальные горизонтальные цилиндрические, РГС Общество с ограниченной ответственностью "ТАИФ-НК АЗС" (ООО "ТАИФ-НК АЗС") (РОССИЯ г. Казань) |
ОТ МП |
5 лет |
|
89338-23 |
Резервуар стальной горизонтальный цилиндрический, РГС-25 Общество с ограниченной ответственностью "ТАИФ-НК АЗС" (ООО "ТАИФ-НК АЗС") (РОССИЯ г. Казань) |
ОТ МП |
5 лет |
|
89365-23 |
Резервуары стальные горизонтальные цилиндрические, РГС-20 Общество с ограниченной ответственностью "ТАИФ-НК АЗС" (ООО "ТАИФ-НК АЗС") (РОССИЯ г. Казань) |
ОТ МП |
5 лет |
|
89366-23 |
Резервуары стальные горизонтальные цилиндрические, РГС-60 Общество с ограниченной ответственностью "ТАИФ-НК АЗС" (ООО "ТАИФ-НК АЗС") (РОССИЯ г. Казань) |
ОТ МП |
5 лет |
|
89367-23 |
Резервуары стальные горизонтальные цилиндрические, РГС-25 Общество с ограниченной ответственностью "ТАИФ-НК АЗС" (ООО "ТАИФ-НК АЗС") (РОССИЯ г. Казань) |
ОТ МП |
5 лет |
|
89368-23 |
Резервуар стальной горизонтальный цилиндрический, РГС-25 Общество с ограниченной ответственностью "ТАИФ-НК АЗС" (ООО "ТАИФ-НК АЗС") (РОССИЯ г. Казань) |
ОТ МП |
5 лет |
|
89382-23 |
Резервуары стальные горизонтальные цилиндрические, РГС-17 Общество с ограниченной ответственностью "ТАИФ-НК АЗС" (ООО "ТАИФ-НК АЗС") (РОССИЯ г. Казань) |
ОТ МП |
5 лет |
|
89383-23 |
Резервуары стальные горизонтальные цилиндрические, РГС Общество с ограниченной ответственностью "ТАИФ-НК АЗС" (ООО "ТАИФ-НК АЗС") (РОССИЯ г. Казань) |
ОТ МП |
5 лет |
|
89385-23 |
Резервуары стальные горизонтальные цилиндрические, РГС-60 Общество с ограниченной ответственностью "ТАИФ-НК АЗС" (ООО "ТАИФ-НК АЗС") (РОССИЯ г. Казань) |
ОТ МП |
5 лет |
|
89386-23 |
Резервуары стальные горизонтальные цилиндрические, РГС-50 (25+25) Общество с ограниченной ответственностью "ТАИФ-НК АЗС" (ООО "ТАИФ-НК АЗС") (РОССИЯ г. Казань) |
ОТ МП |
5 лет |
|
89387-23 |
Резервуары стальные горизонтальные цилиндрические, РГС Общество с ограниченной ответственностью "ТАИФ-НК АЗС" (ООО "ТАИФ-НК АЗС") (РОССИЯ г. Казань) |
ОТ МП |
5 лет |
|
89388-23 |
Резервуары стальные горизонтальные цилиндрические, РГС-25 Общество с ограниченной ответственностью "ТАИФ-НК АЗС" (ООО "ТАИФ-НК АЗС") (РОССИЯ г. Казань) |
ОТ МП |
5 лет |
|
89389-23 |
Резервуары стальные горизонтальные цилиндрические, РГС Общество с ограниченной ответственностью "ТАИФ-НК АЗС" (ООО "ТАИФ-НК АЗС") (РОССИЯ г. Казань) |
ОТ МП |
5 лет |
|
89390-23 |
Резервуар стальной горизонтальный цилиндрический, РГС-75 Общество с ограниченной ответственностью "ТАИФ-НК АЗС" (ООО "ТАИФ-НК АЗС") (РОССИЯ г. Казань) |
ОТ МП |
5 лет |
|
89391-23 |
Резервуар стальной горизонтальный цилиндрический, РГС-20 Общество с ограниченной ответственностью "ТАИФ-НК АЗС" (ООО "ТАИФ-НК АЗС") (РОССИЯ г. Казань) |
ОТ МП |
5 лет |
|
89392-23 |
Резервуар стальной горизонтальный цилиндрический, РГС-20 Общество с ограниченной ответственностью "ТАИФ-НК АЗС" (ООО "ТАИФ-НК АЗС") (РОССИЯ г. Казань) |
ОТ МП |
5 лет |
|
89424-23 |
Резервуары стальные горизонтальные цилиндрические, РГС Общество с ограниченной ответственностью "ТАИФ-НК АЗС" (ООО "ТАИФ-НК АЗС") (РОССИЯ г. Казань) |
ОТ МП |
5 лет |
|
89425-23 |
Резервуары стальные горизонтальные цилиндрические, РГС Общество с ограниченной ответственностью "ТАИФ-НК АЗС" (ООО "ТАИФ-НК АЗС") (РОССИЯ г. Казань) |
ОТ МП |
5 лет |
|
89426-23 |
Резервуары стальные горизонтальные цилиндрические, РГС Общество с ограниченной ответственностью "ТАИФ-НК АЗС" (ООО "ТАИФ-НК АЗС") (РОССИЯ г. Казань) |
ОТ МП |
5 лет |
|
89427-23 |
Резервуары стальные горизонтальные цилиндрические, РГС-25 Общество с ограниченной ответственностью "ТАИФ-НК АЗС" (ООО "ТАИФ-НК АЗС") (РОССИЯ г. Казань) |
ОТ МП |
5 лет |
|
89428-23 |
Резервуары стальные горизонтальные цилиндрические, РГС Общество с ограниченной ответственностью "ТАИФ-НК АЗС" (ООО "ТАИФ-НК АЗС") (РОССИЯ г. Казань) |
ОТ МП |
5 лет |
|
89445-23 |
Резервуары стальные горизонтальные цилиндрические, РГД 50 (25+25) Общество с ограниченной ответственностью "ТАИФ-НК АЗС" (ООО "ТАИФ-НК АЗС") (РОССИЯ г. Казань) |
ОТ МП |
5 лет |
|
89446-23 |
Резервуары стальные горизонтальные цилиндрические, РГС Общество с ограниченной ответственностью "ТАИФ-НК АЗС" (ООО "ТАИФ-НК АЗС") (РОССИЯ г. Казань) |
ОТ МП |
5 лет |
|
89447-23 |
Резервуары стальные горизонтальные цилиндрические, РГС-25 Общество с ограниченной ответственностью "ТАИФ-НК АЗС" (ООО "ТАИФ-НК АЗС") (РОССИЯ г. Казань) |
ОТ МП |
5 лет |
|
89448-23 |
Резервуары стальные горизонтальные цилиндрические, РГС-25 Общество с ограниченной ответственностью "ТАИФ-НК АЗС" (ООО "ТАИФ-НК АЗС") (РОССИЯ г. Казань) |
ОТ МП |
5 лет |
|
89449-23 |
Резервуары стальные горизонтальные цилиндрические, РГС Общество с ограниченной ответственностью "ТАИФ-НК АЗС" (ООО "ТАИФ-НК АЗС") (РОССИЯ г. Казань) |
ОТ МП |
5 лет |
|
89458-23 |
Резервуары стальные горизонтальные цилиндрические, РГД 50 (25+25) Общество с ограниченной ответственностью "ТАИФ-НК АЗС" (ООО "ТАИФ-НК АЗС") (РОССИЯ г. Казань) |
ОТ МП |
5 лет |
|
89459-23 |
Резервуары стальные горизонтальные цилиндрические, РГС-50 Общество с ограниченной ответственностью "ТАИФ-НК АЗС" (ООО "ТАИФ-НК АЗС") (РОССИЯ г. Казань) |
ОТ МП |
5 лет |
|
89460-23 |
Резервуары стальные горизонтальные цилиндрические, РГС-25 Общество с ограниченной ответственностью "ТАИФ-НК АЗС" (ООО "ТАИФ-НК АЗС") (РОССИЯ г. Казань) |
ОТ МП |
5 лет |
|
89461-23 |
Резервуары стальные горизонтальные цилиндрические, РГС-25 Общество с ограниченной ответственностью "ТАИФ-НК АЗС" (ООО "ТАИФ-НК АЗС") (РОССИЯ г. Казань) |
ОТ МП |
5 лет |
|
89475-23 |
Резервуары стальные горизонтальные цилиндрические, РГС-25 Общество с ограниченной ответственностью "ТАИФ-НК АЗС" (ООО "ТАИФ-НК АЗС") (РОССИЯ г. Казань) |
ОТ МП |
5 лет |
|
89506-23 |
Резервуары стальные горизонтальные цилиндрические, РГС Общество с ограниченной ответственностью "ТАИФ-НК АЗС" (ООО "ТАИФ-НК АЗС") (РОССИЯ г. Казань) |
ОТ МП |
5 лет |
|
89507-23 |
Резервуары стальные горизонтальные цилиндрические, РГС Общество с ограниченной ответственностью "ТАИФ-НК АЗС" (ООО "ТАИФ-НК АЗС") (РОССИЯ г. Казань) |
ОТ МП |
5 лет |
|
89508-23 |
Резервуары стальные горизонтальные цилиндрические, РГС Общество с ограниченной ответственностью "ТАИФ-НК АЗС" (ООО "ТАИФ-НК АЗС") (РОССИЯ г. Казань) |
ОТ МП |
5 лет |
|
89509-23 |
Резервуары стальные горизонтальные цилиндрические, РГД 50 Общество с ограниченной ответственностью "ТАИФ-НК АЗС" (ООО "ТАИФ-НК АЗС") (РОССИЯ г. Казань) |
ОТ МП |
5 лет |
|
90564-23 |
Резервуары стальные горизонтальные цилиндрические, РГС-25 Общество с ограниченной ответственностью "ТАИФ-НК АЗС" (ООО "ТАИФ-НК АЗС") (РОССИЯ г. Казань) |
ОТ МП |
5 лет |
|
90565-23 |
Резервуары стальные горизонтальные цилиндрические, РГС-25 Общество с ограниченной ответственностью "ТАИФ-НК АЗС" (ООО "ТАИФ-НК АЗС") (РОССИЯ г. Казань) |
ОТ МП |
5 лет |
|
90580-23 |
Резервуары стальные горизонтальные цилиндрические, РГС Общество с ограниченной ответственностью "ТАИФ-НК АЗС" (ООО "ТАИФ-НК АЗС") (РОССИЯ г. Казань) |
ОТ МП |
5 лет |
|
90581-23 |
Резервуары стальные горизонтальные цилиндрические, РГС-25 Общество с ограниченной ответственностью "ТАИФ-НК АЗС" (ООО "ТАИФ-НК АЗС") (РОССИЯ г. Казань) |
ОТ МП |
5 лет |
|
90582-23 |
Резервуары стальные горизонтальные цилиндрические, РГС-25 Общество с ограниченной ответственностью "ТАИФ-НК АЗС" (ООО "ТАИФ-НК АЗС") (РОССИЯ г. Казань) |
ОТ МП |
5 лет |
|
92536-24 |
Резервуары стальные горизонтальные цилиндрические, РГС Общество с ограниченной ответственностью "ТАИФ-НК АЗС" (ООО "ТАИФ-НК АЗС") (РОССИЯ г. Казань) |
ОТ МП |
5 лет |
|
92537-24 |
Резервуары стальные горизонтальные цилиндрические, РГС-55 Общество с ограниченной ответственностью "ТАИФ-НК АЗС" (ООО "ТАИФ-НК АЗС") (РОССИЯ г. Казань) |
ОТ МП |
5 лет |
|
92538-24 |
Резервуары стальные горизонтальные цилиндрические, РГС Общество с ограниченной ответственностью "ТАИФ-НК АЗС" (ООО "ТАИФ-НК АЗС") (РОССИЯ г. Казань) |
ОТ МП |
5 лет |
|
92539-24 |
Резервуары стальные горизонтальные цилиндрические, РГС-25 Общество с ограниченной ответственностью "ТАИФ-НК АЗС" (ООО "ТАИФ-НК АЗС") (РОССИЯ г. Казань) |
ОТ МП |
5 лет |
|
92564-24 |
Резервуары стальные горизонтальные цилиндрические, РГС Общество с ограниченной ответственностью "ТАИФ-НК АЗС" (ООО "ТАИФ-НК АЗС") (РОССИЯ г. Казань) |
ОТ МП |
5 лет |
|
92580-24 |
Резервуары стальные горизонтальные цилиндрические, РГС-60 Общество с ограниченной ответственностью "ТАИФ-НК АЗС" (ООО "ТАИФ-НК АЗС") (РОССИЯ г. Казань) |
ОТ МП |
5 лет |
|
92581-24 |
Резервуары стальные горизонтальные цилиндрические, РГС-63 Общество с ограниченной ответственностью "ТАИФ-НК АЗС" (ООО "ТАИФ-НК АЗС") (РОССИЯ г. Казань) |
ОТ МП |
5 лет |
|
92582-24 |
Резервуары стальные горизонтальные цилиндрические, РГС-25 Общество с ограниченной ответственностью "ТАИФ-НК АЗС" (ООО "ТАИФ-НК АЗС") (РОССИЯ г. Казань) |
ОТ МП |
5 лет |
|
92583-24 |
Резервуары стальные горизонтальные цилиндрические, РГС-28 Общество с ограниченной ответственностью "ТАИФ-НК АЗС" (ООО "ТАИФ-НК АЗС") (РОССИЯ г. Казань) |
ОТ МП |
5 лет |
|
92584-24 |
Резервуары стальные горизонтальные цилиндрические, РГС Общество с ограниченной ответственностью "ТАИФ-НК АЗС" (ООО "ТАИФ-НК АЗС") (РОССИЯ г. Казань) |
ОТ МП |
5 лет |
|
92585-24 |
Резервуары стальные горизонтальные цилиндрические, РГС-25 Общество с ограниченной ответственностью "ТАИФ-НК АЗС" (ООО "ТАИФ-НК АЗС") (РОССИЯ г. Казань) |
ОТ МП |
5 лет |
|
92586-24 |
Резервуары стальные горизонтальные цилиндрические, РГС-25 Общество с ограниченной ответственностью "ТАИФ-НК АЗС" (ООО "ТАИФ-НК АЗС") (РОССИЯ г. Казань) |
ОТ МП |
5 лет |
|
92587-24 |
Резервуары стальные горизонтальные цилиндрические, РГС-50 Общество с ограниченной ответственностью "ТАИФ-НК АЗС" (ООО "ТАИФ-НК АЗС") (РОССИЯ г. Казань) |
ОТ МП |
5 лет |
|
92596-24 |
Резервуары стальные горизонтальные цилиндрические, РГС-25 Общество с ограниченной ответственностью "ТАИФ-НК АЗС" (ООО "ТАИФ-НК АЗС") (РОССИЯ г. Казань) |
ОТ МП |
5 лет |
|
92597-24 |
Резервуары стальные горизонтальные цилиндрические, РГС-25 Общество с ограниченной ответственностью "ТАИФ-НК АЗС" (ООО "ТАИФ-НК АЗС") (РОССИЯ г. Казань) |
ОТ МП |
5 лет |
|
92598-24 |
Резервуары стальные горизонтальные цилиндрические, РГС Общество с ограниченной ответственностью "ТАИФ-НК АЗС" (ООО "ТАИФ-НК АЗС") (РОССИЯ г. Казань) |
ОТ МП |
5 лет |
|
92599-24 |
Резервуары стальные горизонтальные цилиндрические, РГС-25 Общество с ограниченной ответственностью "ТАИФ-НК АЗС" (ООО "ТАИФ-НК АЗС") (РОССИЯ г. Казань) |
ОТ МП |
5 лет |
|
92615-24 |
Резервуары стальные горизонтальные цилиндрические, РГС-63 Общество с ограниченной ответственностью "ТАИФ-НК АЗС" (ООО "ТАИФ-НК АЗС") (РОССИЯ г. Казань) |
ОТ МП |
5 лет |
|
92616-24 |
Резервуары стальные горизонтальные цилиндрические, РГС-63 Общество с ограниченной ответственностью "ТАИФ-НК АЗС" (ООО "ТАИФ-НК АЗС") (РОССИЯ г. Казань) |
ОТ МП |
5 лет |
|
92651-24 |
Резервуары стальные горизонтальные цилиндрические, РГС-25 Общество с ограниченной ответственностью "ТАИФ-НК АЗС" (ООО "ТАИФ-НК АЗС") (РОССИЯ г. Казань) |
ОТ МП |
5 лет |
|
92652-24 |
Резервуары стальные горизонтальные цилиндрические, РГС-40 Общество с ограниченной ответственностью "ТАИФ-НК АЗС" (ООО "ТАИФ-НК АЗС") (РОССИЯ г. Казань) |
ОТ МП |
5 лет |
|
92653-24 |
Резервуары стальные горизонтальные цилиндрические, РГС-25 Общество с ограниченной ответственностью "ТАИФ-НК АЗС" (ООО "ТАИФ-НК АЗС") (РОССИЯ г. Казань) |
ОТ МП |
5 лет |
|
92654-24 |
Резервуары стальные горизонтальные цилиндрические, РГС Общество с ограниченной ответственностью "ТАИФ-НК АЗС" (ООО "ТАИФ-НК АЗС") (РОССИЯ г. Казань) |
ОТ МП |
5 лет |
|
92695-24 |
Резервуары стальные горизонтальные цилиндрические, РГС Общество с ограниченной ответственностью "ТАИФ-НК АЗС" (ООО "ТАИФ-НК АЗС") (РОССИЯ г. Казань) |
ОТ МП |
5 лет |
|
92696-24 |
Резервуары стальные горизонтальные цилиндрические, РГС Общество с ограниченной ответственностью "ТАИФ-НК АЗС" (ООО "ТАИФ-НК АЗС") (РОССИЯ г. Казань) |
ОТ МП |
5 лет |
|
92697-24 |
Резервуары стальные горизонтальные цилиндрические, РГС-30 Общество с ограниченной ответственностью "ТАИФ-НК АЗС" (ООО "ТАИФ-НК АЗС") (РОССИЯ г. Казань) |
ОТ МП |
5 лет |
|
92700-24 |
Резервуары стальные горизонтальные цилиндрические, РГС-25 Общество с ограниченной ответственностью "ТАИФ-НК АЗС" (ООО "ТАИФ-НК АЗС") (РОССИЯ г. Казань) |
ОТ МП |
5 лет |
|
92745-24 |
Резервуары стальные горизонтальные цилиндрические, РГС-25 Общество с ограниченной ответственностью "ТАИФ-НК АЗС" (ООО "ТАИФ-НК АЗС") (РОССИЯ г. Казань) |
ОТ МП |
5 лет |
|
92746-24 |
Резервуары стальные горизонтальные цилиндрические, РГС Общество с ограниченной ответственностью "ТАИФ-НК АЗС" (ООО "ТАИФ-НК АЗС") (РОССИЯ г. Казань) |
ОТ МП |
5 лет |
|
92747-24 |
Резервуары стальные горизонтальные цилиндрические, РГС Общество с ограниченной ответственностью "ТАИФ-НК АЗС" (ООО "ТАИФ-НК АЗС") (РОССИЯ г. Казань) |
ОТ МП |
5 лет |
|
92763-24 |
Резервуары стальные горизонтальные цилиндрические, РГС-20 Общество с ограниченной ответственностью "ТАИФ-НК АЗС" (ООО "ТАИФ-НК АЗС") (РОССИЯ г. Казань) |
ОТ МП |
5 лет |
|
92774-24 |
Резервуары стальные горизонтальные цилиндрические, РГС-25 Общество с ограниченной ответственностью "ТАИФ-НК АЗС" (ООО "ТАИФ-НК АЗС") (РОССИЯ г. Казань) |
ОТ МП |
5 лет |
|
92775-24 |
Резервуары стальные горизонтальные цилиндрические, РГС-25 Общество с ограниченной ответственностью "ТАИФ-НК АЗС" (ООО "ТАИФ-НК АЗС") (РОССИЯ г. Казань) |
ОТ МП |
5 лет |
|
92940-24 |
Резервуары стальные горизонтальные цилиндрические, РГС Общество с ограниченной ответственностью "ТАИФ-НК АЗС" (ООО "ТАИФ-НК АЗС") (РОССИЯ г. Казань) |
ОТ МП |
5 лет |
|
92952-24 |
Резервуары стальные горизонтальные цилиндрические, РГС-25 Общество с ограниченной ответственностью "ТАИФ-НК АЗС" (ООО "ТАИФ-НК АЗС") (РОССИЯ г. Казань) |
ОТ МП |
5 лет |
|
92940-24 |
Резервуары стальные горизонтальные цилиндрические, РГС Общество с ограниченной ответственностью "ТАИФ-НК АЗС" (ООО "ТАИФ-НК АЗС") (РОССИЯ г. Казань) |
ОТ МП |
5 лет |
|
92952-24 |
Резервуары стальные горизонтальные цилиндрические, РГС-25 Общество с ограниченной ответственностью "ТАИФ-НК АЗС" (ООО "ТАИФ-НК АЗС") (РОССИЯ г. Казань) |
ОТ МП |
5 лет |
|
93126-24 |
Резервуары стальные горизонтальные цилиндрические, РГС-25 Общество с ограниченной ответственностью "ТАИФ-НК АЗС" (ООО "ТАИФ-НК АЗС") (РОССИЯ г. Казань) |
ОТ МП |
5 лет |
|
93144-24 |
Резервуары стальные горизонтальные цилиндрические, РГС-53 Общество с ограниченной ответственностью "ТАИФ-НК АЗС" (ООО "ТАИФ-НК АЗС") (РОССИЯ г. Казань) |
ОТ МП |
5 лет |
|
93145-24 |
Резервуары стальные горизонтальные цилиндрические, РГС-25 Общество с ограниченной ответственностью "ТАИФ-НК АЗС" (ООО "ТАИФ-НК АЗС") (РОССИЯ г. Казань) |
ОТ МП |
5 лет |
|
93146-24 |
Резервуары стальные горизонтальные цилиндрические, РГС Общество с ограниченной ответственностью "ТАИФ-НК АЗС" (ООО "ТАИФ-НК АЗС") (РОССИЯ г. Казань) |
ОТ МП |
5 лет |
|
94492-25 |
Резервуары стальные горизонтальные цилиндрические, РГС Общество с ограниченной ответственностью "ТАИФ-НК АЗС" (ООО "ТАИФ-НК АЗС") (РОССИЯ г. Казань) |
ОТ МП |
5 лет |
|
94512-25 |
Резервуары стальные горизонтальные цилиндрические, РГС Общество с ограниченной ответственностью "ТАИФ-НК АЗС" (ООО "ТАИФ-НК АЗС") (РОССИЯ г. Казань) |
ОТ МП |
5 лет |
|
94587-25 |
Резервуары стальные горизонтальные цилиндрические, РГС Общество с ограниченной ответственностью "ТАИФ-НК АЗС" (ООО "ТАИФ-НК АЗС") (РОССИЯ г. Казань) |
ОТ МП |
5 лет |
|
94588-25 |
Резервуары стальные горизонтальные цилиндрические, РГС-50 Общество с ограниченной ответственностью "ТАИФ-НК АЗС" (ООО "ТАИФ-НК АЗС") (РОССИЯ г. Казань) |
ОТ МП |
5 лет |
|
94589-25 |
Резервуары стальные горизонтальные цилиндрические, РГС-25 Общество с ограниченной ответственностью "ТАИФ-НК АЗС" (ООО "ТАИФ-НК АЗС") (РОССИЯ г. Казань) |
ОТ МП |
5 лет |
|
94590-25 |
Резервуары стальные горизонтальные цилиндрические, РГС Общество с ограниченной ответственностью "ТАИФ-НК АЗС" (ООО "ТАИФ-НК АЗС") (РОССИЯ г. Казань) |
ОТ МП |
5 лет |
|
94591-25 |
Резервуары стальные горизонтальные цилиндрические, РГС Общество с ограниченной ответственностью "ТАИФ-НК АЗС" (ООО "ТАИФ-НК АЗС") (РОССИЯ г. Казань) |
ОТ МП |
5 лет |
|
94592-25 |
Резервуары стальные горизонтальные цилиндрические, РГС-50 Общество с ограниченной ответственностью "ТАИФ-НК АЗС" (ООО "ТАИФ-НК АЗС") (РОССИЯ г. Казань) |
ОТ МП |
5 лет |
|
94593-25 |
Резервуары стальные горизонтальные цилиндрические, РГС Общество с ограниченной ответственностью "ТАИФ-НК АЗС" (ООО "ТАИФ-НК АЗС") (РОССИЯ г. Казань) |
ОТ МП |
5 лет |
|
94564-25 |
Резервуары стальные горизонтальные цилиндрические, РГС-20 Общество с ограниченной ответственностью "ТАИФ-НК АЗС" (ООО "ТАИФ-НК АЗС") (РОССИЯ г. Казань) |
ОТ МП |
5 лет |
|
94565-25 |
Резервуары стальные горизонтальные цилиндрические, РГС-30 Общество с ограниченной ответственностью "ТАИФ-НК АЗС" (ООО "ТАИФ-НК АЗС") (РОССИЯ г. Казань) |
ОТ МП |
5 лет |
|
94566-25 |
Резервуары стальные горизонтальные цилиндрические, РГС-25 Общество с ограниченной ответственностью "ТАИФ-НК АЗС" (ООО "ТАИФ-НК АЗС") (РОССИЯ г. Казань) |
ОТ МП |
5 лет |
|
94605-25 |
Резервуары стальные горизонтальные цилиндрические, РГС-25 Общество с ограниченной ответственностью "ТАИФ-НК АЗС" (ООО "ТАИФ-НК АЗС") (РОССИЯ г. Казань) |
ОТ МП |
5 лет |
|
94606-25 |
Резервуары стальные горизонтальные цилиндрические, РГС-25 Общество с ограниченной ответственностью "ТАИФ-НК АЗС" (ООО "ТАИФ-НК АЗС") (РОССИЯ г. Казань) |
ОТ МП |
5 лет |
|
94607-25 |
Резервуары стальные горизонтальные цилиндрические, РГС Общество с ограниченной ответственностью "ТАИФ-НК АЗС" (ООО "ТАИФ-НК АЗС") (РОССИЯ г. Казань) |
ОТ МП |
5 лет |
|
94608-25 |
Резервуары стальные горизонтальные цилиндрические, РГС-50 Общество с ограниченной ответственностью "ТАИФ-НК АЗС" (ООО "ТАИФ-НК АЗС") (РОССИЯ г. Казань) |
ОТ МП |
5 лет |
|
94609-25 |
Резервуары стальные горизонтальные цилиндрические, РГС Общество с ограниченной ответственностью "ТАИФ-НК АЗС" (ООО "ТАИФ-НК АЗС") (РОССИЯ г. Казань) |
ОТ МП |
5 лет |
|
94610-25 |
Резервуары стальные горизонтальные цилиндрические, РГС Общество с ограниченной ответственностью "ТАИФ-НК АЗС" (ООО "ТАИФ-НК АЗС") (РОССИЯ г. Казань) |
ОТ МП |
5 лет |
|
94835-25 |
Резервуары стальные горизонтальные цилиндрические, РГС-25 Общество с ограниченной ответственностью "ТАИФ-НК АЗС" (ООО "ТАИФ-НК АЗС") (РОССИЯ г. Казань) |
ОТ МП |
5 лет |
|
94836-25 |
Резервуары стальные горизонтальные цилиндрические, РГС Общество с ограниченной ответственностью "ТАИФ-НК АЗС" (ООО "ТАИФ-НК АЗС") (РОССИЯ г. Казань) |
ОТ МП |
5 лет |
|
94854-25 |
Резервуары стальные горизонтальные цилиндрические, РГС-25 Общество с ограниченной ответственностью "ТАИФ-НК АЗС" (ООО "ТАИФ-НК АЗС") (РОССИЯ г. Казань) |
ОТ МП |
5 лет |
|
94855-25 |
Резервуары стальные горизонтальные цилиндрические, РГС-25 Общество с ограниченной ответственностью "ТАИФ-НК АЗС" (ООО "ТАИФ-НК АЗС") (РОССИЯ г. Казань) |
ОТ МП |
5 лет |
|
94856-25 |
Резервуары стальные горизонтальные цилиндрические, РГС Общество с ограниченной ответственностью "ТАИФ-НК АЗС" (ООО "ТАИФ-НК АЗС") (РОССИЯ г. Казань) |
ОТ МП |
5 лет |
|
94857-25 |
Резервуары стальные горизонтальные цилиндрические, РГС Общество с ограниченной ответственностью "ТАИФ-НК АЗС" (ООО "ТАИФ-НК АЗС") (РОССИЯ г. Казань) |
ОТ МП |
5 лет |
|
94871-25 |
Резервуары стальные горизонтальные цилиндрические, РГС-25 Общество с ограниченной ответственностью "ТАИФ-НК АЗС" (ООО "ТАИФ-НК АЗС") (РОССИЯ г. Казань) |
ОТ МП |
5 лет |
|
94872-25 |
Резервуары стальные горизонтальные цилиндрические, РГС-25 Общество с ограниченной ответственностью "ТАИФ-НК АЗС" (ООО "ТАИФ-НК АЗС") (РОССИЯ г. Казань) |
ОТ МП |
5 лет |
|
94873-25 |
Резервуары стальные горизонтальные цилиндрические, РГС-25 Общество с ограниченной ответственностью "ТАИФ-НК АЗС" (ООО "ТАИФ-НК АЗС") (РОССИЯ г. Казань) |
ОТ МП |
5 лет |
|
94888-25 |
Резервуары стальные горизонтальные цилиндрические, РГС-15 Общество с ограниченной ответственностью "ТАИФ-НК АЗС" (ООО "ТАИФ-НК АЗС") (РОССИЯ г. Казань) |
ОТ МП |
5 лет |
|
94889-25 |
Резервуары стальные горизонтальные цилиндрические, РГС-25 Общество с ограниченной ответственностью "ТАИФ-НК АЗС" (ООО "ТАИФ-НК АЗС") (РОССИЯ г. Казань) |
ОТ МП |
5 лет |
|
94890-25 |
Резервуары стальные горизонтальные цилиндрические, РГС-25 Общество с ограниченной ответственностью "ТАИФ-НК АЗС" (ООО "ТАИФ-НК АЗС") (РОССИЯ г. Казань) |
ОТ МП |
5 лет |
|
94909-25 |
Резервуары стальные горизонтальные цилиндрические, РГС-50 Общество с ограниченной ответственностью "ТАИФ-НК АЗС" (ООО "ТАИФ-НК АЗС") (РОССИЯ г. Казань) |
ОТ МП |
5 лет |
|
94947-25 |
Резервуары стальные горизонтальные цилиндрические, РГС-20 Общество с ограниченной ответственностью "ТАИФ-НК АЗС" (ООО "ТАИФ-НК АЗС") (РОССИЯ г. Казань) |
ОТ МП |
5 лет |
|
94972-25 |
Резервуары стальные горизонтальные цилиндрические, РГС Общество с ограниченной ответственностью "ТАИФ-НК АЗС" (ООО "ТАИФ-НК АЗС") (РОССИЯ г. Казань) |
ОТ МП |
5 лет |
|
95093-25 |
Резервуары стальные горизонтальные цилиндрические, РГС-25 Общество с ограниченной ответственностью "ТАИФ-НК АЗС" (ООО "ТАИФ-НК АЗС") (РОССИЯ г. Казань) |
ОТ МП |
5 лет |
|
95094-25 |
Резервуары стальные горизонтальные цилиндрические, РГС Общество с ограниченной ответственностью "ТАИФ-НК АЗС" (ООО "ТАИФ-НК АЗС") (РОССИЯ г. Казань) |
ОТ МП |
5 лет |
|
95095-25 |
Резервуары стальные горизонтальные цилиндрические, РГС-50 Общество с ограниченной ответственностью "ТАИФ-НК АЗС" (ООО "ТАИФ-НК АЗС") (РОССИЯ г. Казань) |
ОТ МП |
5 лет |
|
95096-25 |
Резервуары стальные горизонтальные цилиндрические, РГС-60 Общество с ограниченной ответственностью "ТАИФ-НК АЗС" (ООО "ТАИФ-НК АЗС") (РОССИЯ г. Казань) |
ОТ МП |
5 лет |
|
95097-25 |
Резервуары стальные горизонтальные цилиндрические, РГС-25 Общество с ограниченной ответственностью "ТАИФ-НК АЗС" (ООО "ТАИФ-НК АЗС") (РОССИЯ г. Казань) |
ОТ МП |
5 лет |
Отчёт «MM_4. Статистика по разработчикам МВИ ФГИС «Аршин»» фокусируется на деятельности отдельного разработчика с 2020 года. После выбора разработчика в выпадающем списке рассчитываются ключевые показатели: первая и последняя публикации, общее число МВИ, доля статуса «Действует», количество задействованных аттестующих организаций и средний лаг от даты свидетельства до публикации.
Блок графиков отражает динамику: помесячные публикации и кумулятив, распределение по статусам (stacked), топ-аттестующие организации и «виды измерений» для выбранного разработчика. Отдельно оценивается качество данных — заполненность полей (величина, пределы, погрешность) и доля карточек с контактами, что помогает выявлять пробелы в оформлении и поддержке.
Для оперативного контроля темпов добавлены сравнения YTD/LYTD по ISO-неделям, тепловая карта год×месяц, а также сезонность и топ назначений методик. Наводите курсор для подсказок, используйте меню графиков для выгрузки данных/изображений и сопоставляйте метрики, чтобы вовремя замечать пики активности, снижение темпа или узкие места, связанные с задержками публикаций и качеством карточек.
Кто поверяет Резервуары стальные горизонтальные цилиндрические (РГС-50)
| Наименование организации | Cтатус | Поверенные модификации | Кол-во поверок | Поверок в 2026 году | Первичных поверок | Периодических поверок | Извещений | Для юриков | Для юриков первичные | Для юриков периодические |
|---|---|---|---|---|---|---|---|---|---|---|
| ООО "МЕТРОКОНТ" (RA.RU.311686) | 4 | 2 | 2 | 0 | 2 | 0 | 2 |
Стоимость поверки Резервуары стальные горизонтальные цилиндрические (РГС-50)
| Организация, регион | Стоимость, руб | Средняя стоимость |
|---|
Знак утверждения типа
Знак утверждения типананосится на титульный лист паспорта резервуара типографским способом.
Сведения о методиках измерений
Сведения о методиках (методах) измерений приведены в пункте 8 паспорта на резервуар.Нормативные и технические документы
Нормативные документы, устанавливающие требования к резервуарам стальным горизонтальным цилиндрическим РГС-50Приказ Росстандарта № 256 от 7 февраля 2018 г. «Об утверждении Государственной поверочной схемы для средств измерений массы и объема жидкости в потоке, объема жидкости и вместимости при статических измерениях, массового и объемного расходов жидкости»
Изготовитель
Общество с ограниченной ответственностью «ТАИФ-НК АЗС»(ООО «ТАИФ-НК АЗС»)
ИНН 1639028805
Адрес: 420111, г. Казань, ул. Астрономическая, д. 5/19, кабинет 56
Телефон: +7 (843) 237-63-26
Web-сайт: taifazs.ru
E-mail: office@taif-azs.ru
Испытательный центр
Общество с ограниченной ответственностью «МетроКонТ» (ООО «МетроКонТ»)Адрес: 420132, г. Казань, ул. Адоратского, д. 39Б, офис 51
Телефон: +7 9372834420
Факс +7 (843) 515-00-21 E-mail: trifonovua@mail.ru
Тип резервуаров - стальные горизонтальные цилиндрические, номинальной вместимостью 50 м3 подземного расположения.
Принцип действия резервуаров основан на заполнении их нефтепродуктом до определенного уровня, соответствующего заданному значению объема.
Резервуары представляют собой горизонтально расположенный цилиндрический стальной сосуд с днищами.
Заполнение и выдача продукта осуществляется через приемно-раздаточные патрубки.
Заводские номера резервуаров наносятся на крышку люка резервуара.
Резервуары РГС-50 с заводскими номерами 3, 4 расположены по адресу: Батыревский район, а/д Цивильск-Сызрань, км. 103+650, АЗС №321 ООО «ТАИФ-НК АЗС».
Общий вид резервуаров РГС-50 представлен на рисунках 1, 2.
Нанесение знака поверки на средство измерений не предусмотрено.
Рисунок 1 - Общий вид резервуаров РГС-50
Рисунок 2 - Общий вид резервуаров РГС-50
Пломбирование резервуаров РГС-50 не предусмотрено.
Таблица 3 -
|
Наименование |
Обозначение |
Количество |
|
Резервуар стальной горизонтальный цилиндрический |
РГС-50 |
1 шт. |
|
Паспорт |
- |
1 экз. |
|
Градуировочная таблица |
- |
1 экз. |
Таблица 1 - Метрологические характеристики
|
Наименование характеристики |
Значение |
|
Номинальная вместимость, м3 |
50 |
|
Пределы допускаемой относительной погрешности определения вместимости, % |
±0,25 |
Таблица 2 - Основные технические характеристики
|
Наименование характеристики |
Значение |
|
Условия эксплуатации: | |
|
Температура окружающего воздуха, оС |
от -50 до +50 |
|
Атмосферное давление, кПа |
от 84,0 до 106,7 |
|
Средний срок службы, лет, не менее |
20 |

